Advertorial

Minimalistické dvere IDEA – technická precíznosť a čistota prevedenia

IDEA DOOR od spoločnosti JAP prináša do interiéru čistý minimalistický vzhľad vďaka bezrámovému riešeniu a precíznej...

Schell Vitus – osvedčené riešenie pre sprchy a umývadlá vo verejnom sektore s viac ako desaťročnou tradíciou

Nástenné nadomietkové armatúry Vitus sú mimoriadne vhodné pre rýchlu a efektívnu...

Kompozitné okná predstavujú súčasnosť a budúcnosť

Okenné profily z kompozitného materiálu RAU-FIPRO X od spoločnosti Rehau sú v porovnaní s tradičnými plastovými profilmi mnohonásobne...

Myotis - stoly 2025

Najnovší sortiment stolov pre zariadenie interiérov...

Priemyselné sklenené priečky Dorsis Digero: svetelné rozhranie pre moderné interiéry

Spojenie moderného dizajnu, funkčnosti a svetla do harmonického architektonického prvku.

Význam prirodzeného svetla pre moderné a flexibilné pracovné prostredie

Kancelárska budova Baumit v slovinskom Trzine prešla premenou na moderné a udržateľné pracovisko. Architekti kládli dôraz...

Konferencia Xella Dialóg predstaví novinky a trendy v stavebníctve

Mottom šiesteho ročníku on-line konferencie odborníkov Xella Dialóg je Efektívny návrh budov 2025+: zmeny a riešenia

Murovací robot WLTR stavia svoj prvý dom na Slovensku

Robot WLTR predstavuje moderný prístup k murovaným konštrukciám. Vďaka automatizácii dokáže rýchlo, presne a bezpečne realizovať...

Nová éra bezpečnosti s I-tec Secure od Internorm

Okrem bezpečnosti majú okná aj elegantný vzhľad, pretože nie sú viditeľné žiadne uzamykacie časti kovania.

Skryté zárubne JAP – intenzívny zážitok z bývania

Dvere MASTER v skrytej zárubni AKTIVE je možné vyrobiť až do výšky 3 700 mm

Tienenie namiesto klimatizácie

Internorm stavia na energetickú efektívnosť a inteligentné tieniace riešenia.

BigMat International Architecture Award 2025 - vybrané diela

Slovensko vo výbere zastupuje šesť realizácií.

Milník udržateľnej výroby okien: Internorm zavádza Low-Carbon-Glas iplus

Spoločnosť Internorm odteraz stavia na novej variante tepelnoizolačného skla od AGC, ktorá v produkcii ročne ušetrí 10...

Výsledky 20. ročníka medzinárodnej študentskej súťaže Saint-Gobain Architecture Student Contest 2025

Jubilejný 20. ročník prestížnej medzinárodnej súťaže pre študentov architektúry priniesol...

Dvere MASTER - pre interiéry navrhnuté s rozumom aj vášňou!

Otočné a posuvné dvere MASTER od podlahy až po strop, ponúkajú mimoriadnu variabilitu výšky, materiálu a zladenia so skrytými...

Rodinný dom Kolónia, Galanta

Malý komfortný dom pre majiteľa, ktorý si chce vychutnať pokoj a súkromie.
Diela
Red 303.11.2015
42230+24
Rodinný dom Kolónia, Galanta
Ateliér: ORA-ArchitektiAutori: Ing. arch Zoran SamoľSpolupráca: Dipl. Ing. Barbora ŠajgalíkováPlocha pozemku: 1148 m2Zastavaná plocha: 211 m2Podlažná plocha: 211 m2Obostavaný objem: 710 m3Návrh: 2012 - 2013Realizácia: 2013 - 2015Adresa: Hrabová 8, Galanta, SlovenskoPublikované: 3. november 2015

Orientácia pozemku, jeho koncová poloha a predstavy investora predurčujú vytvoriť na pozemku koncept slnečného prízemného domu maximálne otvoreného smerom do prírody a nerušenej vlastnej záhrady poskytujúcej svojmu majiteľovi dostatočný relax.

foto: Robo Hubač

Rodinný dom je navrhnutý ako prízemný, jednopodlažný objekt, s jemne spádovanou strešnou rovinou, otvárajúci sa smerom do záhrady.

Situácia
Situácia

Základný stvárnený moment tohoto domu tvorí kompaktná doska - strešný obal, ktorý "obaluje" objekt zhora (strecha) a zospodu (terasa). Tento "obal" zabezpečuje tienenie domu a zároveň sa zospodu stáva širokou terasou. Jeho horná a spodná hrana majú rozdielny odstup od zasklenia, čím sa formuje a zvýrazňuje dynamický tvar fasády na jej dominantnej juhozápadnej strane otvorenej do terasy vodnej plochy.

foto: Robo Hubač

Usporiadanie obytných častí domu zodpovedá budúcemu využívaniu a predstavám investora. Dom má dve spálne, ktoré sú oddelené hlavným obytným priestorom spojeným s kuchyňou.

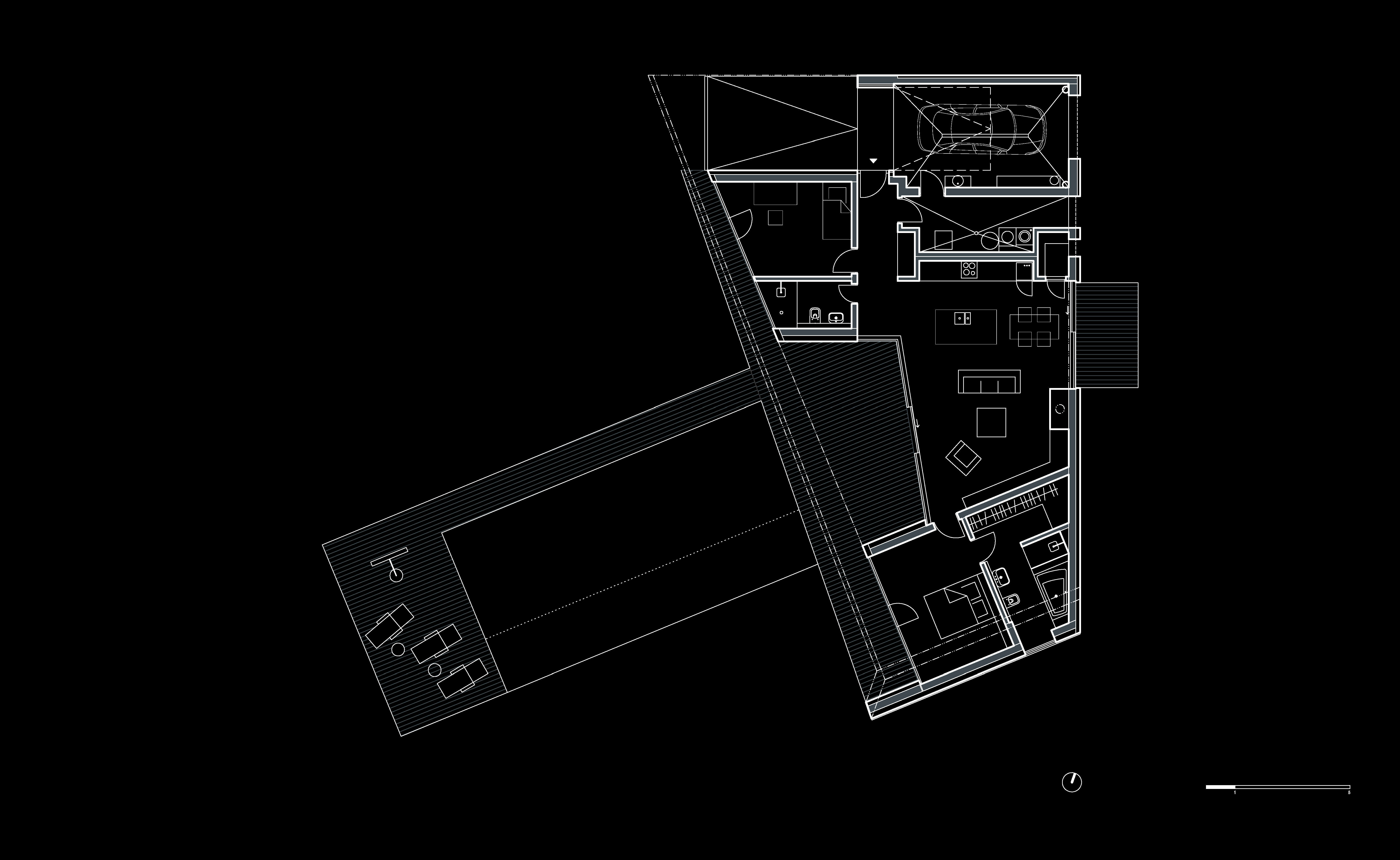
Pôdorys 1. NP
Pôdorys 1. NP

Obývačka je zapustená hlbšie do domu, spálne po stranách zas vybiehajú bližšie k terase, čo znamená lepšie a dôraznejšie tienenie pre hlavnú obytnú miestnosť ako aj vytvorenie väčšieho obslužného priestoru na terase. Riešenie zabezpečuje intimitu spální po krídlach tohoto priestoru.

foto: Robo Hubač

Celá juhozápadná fasada je teda naplno otvorená veľkými preskleniami do zelenej terasy a spolu s ňou aj hlavný obytný priestor. Fasáda využíva priamy kontakt s vodnou plochou, čo vytvára z terasy príjemné letné mólo. Vo vytvorenom poloátriu pred obývačkou je vynechaný otvor v strešnej doske kopírujúci pôdorys vnútornej terasy medzi spálňami, čím sa slnko dostáva do tohoto priestoru zhora. Zároveň je možné terasu tieniť voči nepriaznivému dopadu slnečných lúčov tienením predsadeným na zaskleniach oboch spální.

foto: Robo Hubač

Vstupná časť domu je smerom od príjazdovej cesty prekrytá veľkou konzolou strechy, čo je vlastne ukončenie "obalu" domu a jeho otvorenie smerom do ulice. Táto konzola chráni vjazd do garáže ako aj hlavný vstup do domu.

foto: Robo Hubač
foto: Robo Hubač
foto: Robo Hubač
foto: Robo Hubač
foto: Robo Hubač
foto: Robo Hubač

podklady: ORA Architekti

Poloha diela

Ing. arch Zoran Samoľ

Súvisiace články

Vložené
3. november 2015
0
4223
Hlavný obsahHlavný obsah
Čakajte prosím