IDEA DOOR od spoločnosti JAP prináša do interiéru čistý minimalistický vzhľad vďaka bezrámovému riešeniu a precíznej...
Nástenné nadomietkové armatúry Vitus sú mimoriadne vhodné pre rýchlu a efektívnu...
Okenné profily z kompozitného materiálu RAU-FIPRO X od spoločnosti Rehau sú v porovnaní s tradičnými plastovými profilmi mnohonásobne...
Najnovší sortiment stolov pre zariadenie interiérov...
Spojenie moderného dizajnu, funkčnosti a svetla do harmonického architektonického prvku.
Kancelárska budova Baumit v slovinskom Trzine prešla premenou na moderné a udržateľné pracovisko. Architekti kládli dôraz...
Mottom šiesteho ročníku on-line konferencie odborníkov Xella Dialóg je Efektívny návrh budov 2025+: zmeny a riešenia
Robot WLTR predstavuje moderný prístup k murovaným konštrukciám. Vďaka automatizácii dokáže rýchlo, presne a bezpečne realizovať...
Okrem bezpečnosti majú okná aj elegantný vzhľad, pretože nie sú viditeľné žiadne uzamykacie časti kovania.
Dvere MASTER v skrytej zárubni AKTIVE je možné vyrobiť až do výšky 3 700 mm
Internorm stavia na energetickú efektívnosť a inteligentné tieniace riešenia.
Slovensko vo výbere zastupuje šesť realizácií.
Spoločnosť Internorm odteraz stavia na novej variante tepelnoizolačného skla od AGC, ktorá v produkcii ročne ušetrí 10...
Jubilejný 20. ročník prestížnej medzinárodnej súťaže pre študentov architektúry priniesol...
Otočné a posuvné dvere MASTER od podlahy až po strop, ponúkajú mimoriadnu variabilitu výšky, materiálu a zladenia so skrytými...

Dom v Lozorne z dielne bratislavského ateliéru NOIZ architekti reaguje na požiadavku nenápadného víkendového bývania na kopci s výhľadom na priehradu a okolitú krajinu.
Práve tento výhľad určil osadenie, hmotovo-dispozičné riešenie a orientáciu stavby.
Realizácia okrem prepracovaného architektonického konceptu zaujme aj drobnokresbou a riešením detailov...
Vnímať môžeme to podstatné. Vnútorné prostredie a vzťah interiéru s okolitým prírodným prostredím.
Objekt je situovaný v najvyššej časti parcely, čo umožnilo ustúpenie od priľahlej komunikácie a optimalizovalo vizuálne prepojenie s okolím. Zapustenie časti hmoty do terénu necháva vyniknúť archetypálnu siluetu domu a zároveň prispieva k jeho začleneniu do krajiny.
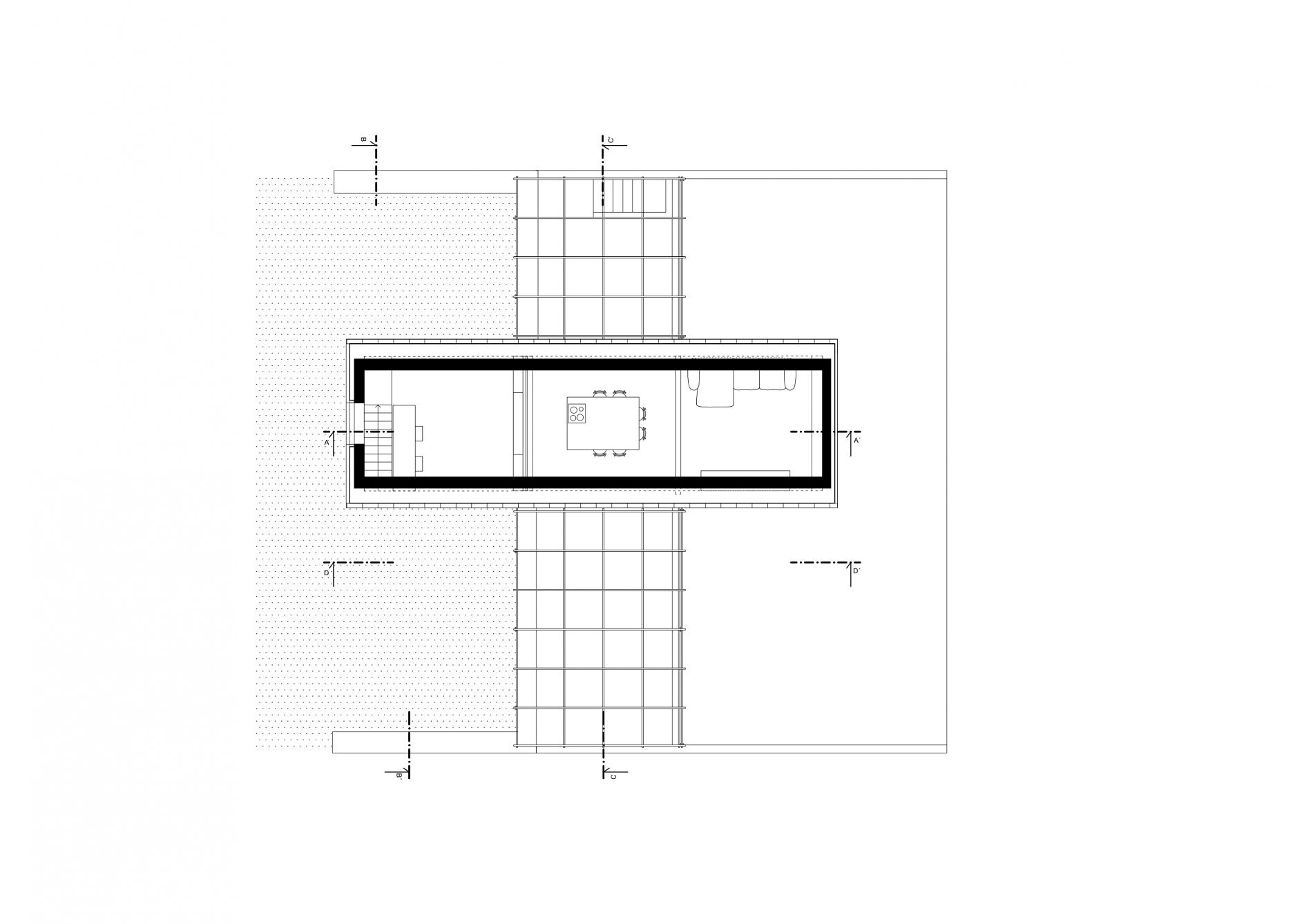
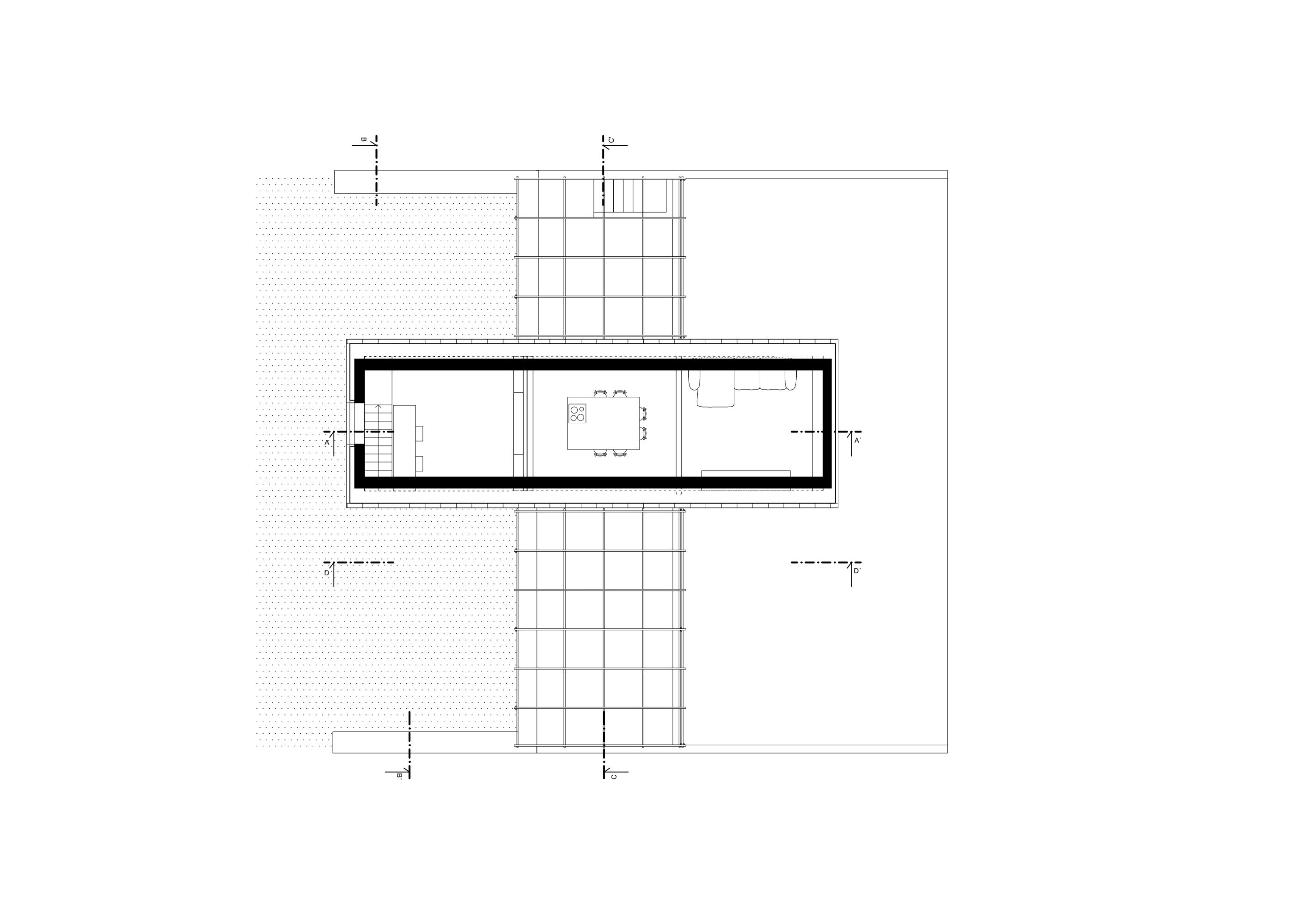
Dispozícia zahŕňa štyri obytné miestnosti a zázemie, rozdelené do dvoch kontrastných celkov: denné priestory sa nachádzajú vo výraznej hmote so sedlovou strechou, zatiaľ čo nočná zóna so spálňami je ukrytá v nízkom trakte zapustenom do terénu.
Osové kríženie objemov zabezpečuje rovnocenné výhľady z každej miestnosti a spolu s opornými múrmi poskytuje ochranu exteriérovým plochám pred pohľadmi z okolitých pozemkov.
Koncept riešenia:
1. Primárnym cieľom pri hľadaní a formovaní konceptu víkendového domu bolo maximálne využiť výhľad, ktorý pozemok ponúka. Tento výhľad sa stal kľúčovým určujúcim prvkom pri umiestnení domu na pozemok, jeho orientácii, ako aj pri návrhu hmotového a dispozičného riešenia.
2. Dom bol v rámci návrhu osadený v hornej časti pozemku. Jeho archetypálna architektúra prirodzene rešpektuje okolité prostredie – hmota domu je jednoduchá, nenápadná a čiastočne zapustená do terénu.
3. Dispozícia domu pozostáva zo štyroch obytných miestností a zázemia. Pre ich čo najefektívnejšie usporiadanie bol objekt rozdelený na dva formálne aj funkčne kontrastné celky. Denné miestnosti sa nachádzajú vo vyššej hmote so sedlovou strechou, zatiaľ čo nočná zóna spolu so zázemím je situovaná v nižšej hmote s plochou strechou. Odlišná orientácia a vzájomné kolmé osadenie týchto dvoch objemov umožňujú každej miestnosti rovnocenný a zároveň najkvalitnejší výhľad z pozemku.
4. Zapustením nižšej hmoty do terénu sa stráca značná časť jej objemu. Prednosť dostáva objekt s charakteristickou sedlovou strechou a oceľovým plášťom, ktorý pripomína vidiecke stodoly vo svahoch. Čiastočné osadenie domu do terénu zároveň vytvára súkromie pre pobytovú terasu a na ňu nadväzujúce obytné miestnosti.
Priestorová schéma návrhu:
Podklady: NOIZ architekti
Fotografie: Alex Shoots Buildings