Využite špeciálnu akciu Internorm: okná za minuloročné ceny a hliníkový kryt úplne zadarmo. Ponuka je časovo obmedzená!
Na podujatí sa predstaví až 37 vystavovateľov - popredných dodávateľov stavebných materiálov a inovácií s prezentáciou...
Sumarizácia najdôležitejších inovácií, ktoré redefinujúcich využitie tohto energetického zdroja.
AMPHIBIA 3000 GRIP 1.3 od spoločnosti ATRO predstavuje modernú hydroizolačnú technológiu, ktorá spája vysokú odolnosť,...
Ambiciózne plány EK narazili na ekonomické možnosti domácností v jednotlivých členských štátoch –...
IDEA DOOR od spoločnosti JAP prináša do interiéru čistý minimalistický vzhľad vďaka bezrámovému riešeniu a precíznej...
Kontinuita riešenia od vonkajšieho obkladu až po kovania a kľučky.
Nástenné nadomietkové armatúry Vitus sú mimoriadne vhodné pre rýchlu a efektívnu...
Okenné profily z kompozitného materiálu RAU-FIPRO X od spoločnosti Rehau sú v porovnaní s tradičnými plastovými profilmi mnohonásobne...
Najnovší sortiment stolov pre zariadenie interiérov...
Spojenie moderného dizajnu, funkčnosti a svetla do harmonického architektonického prvku.
Kancelárska budova Baumit v slovinskom Trzine prešla premenou na moderné a udržateľné pracovisko. Architekti kládli dôraz...
Mottom šiesteho ročníku on-line konferencie odborníkov Xella Dialóg je Efektívny návrh budov 2025+: zmeny a riešenia
Robot WLTR predstavuje moderný prístup k murovaným konštrukciám. Vďaka automatizácii dokáže rýchlo, presne a bezpečne realizovať...
Okrem bezpečnosti majú okná aj elegantný vzhľad, pretože nie sú viditeľné žiadne uzamykacie časti kovania.

Tak ako každý rok, aj tentoraz počas septembra a októbra na ARCHINFO postupne predstavíme najlepšie diplomové práce nominované v celoštátnej súťaži o najlepšiu diplomovú prácu absolventov architektonických škôl na Slovensku – Cenu profesora Jozefa Lacka (CPJL). Séria článkov vzniká v spolupráci s Ing. arch. Jakubom Hantákom, PhD.
Zriaďovateľmi ocenenia sú Spolok architektov Slovenska a Fond výtvarných umení. Aktuálny ročník je jubilejný, v poradí 35.
Tento rok nominovali jednotlivé školy spolu 17 absolventských projektov:
O výsledkoch rozhodne porota v zložení: Matej Honč (Kilo Honč) – predseda, Andrea Macejková (STOA architekti) a Beáta Herrmannová (P-T, spol. s r. o.). Národné kolo a zasadnutie poroty sa uskutoční 18. septembra 2025 v historickej sieni Dušana Jurkoviča v sídle SAS na Panskej ulici v Bratislave. Výsledky budú zverejnené na slávnostnom odovzdávaní cien SAS v kinosále SNG na konci aktuálnej sezóny.
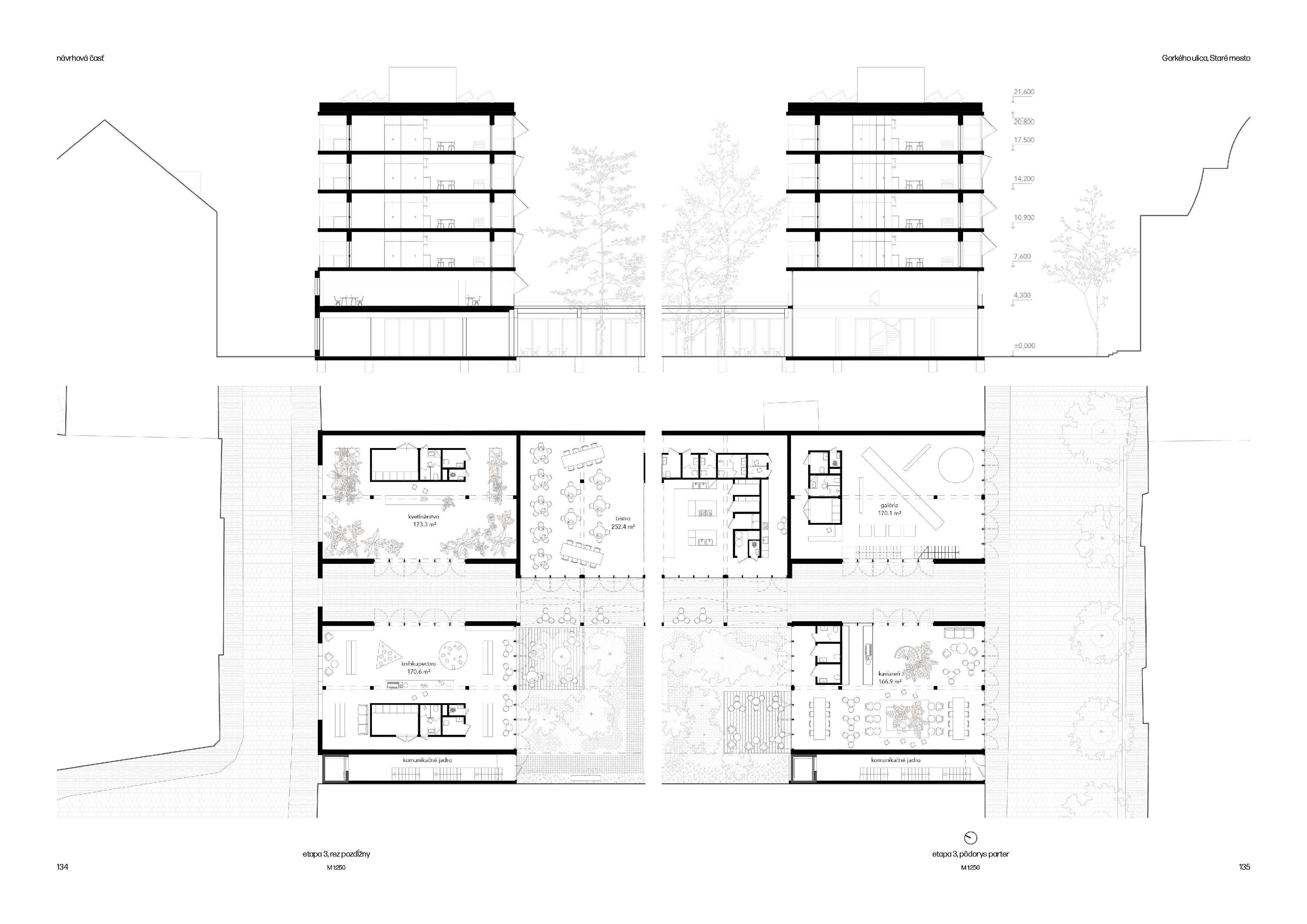
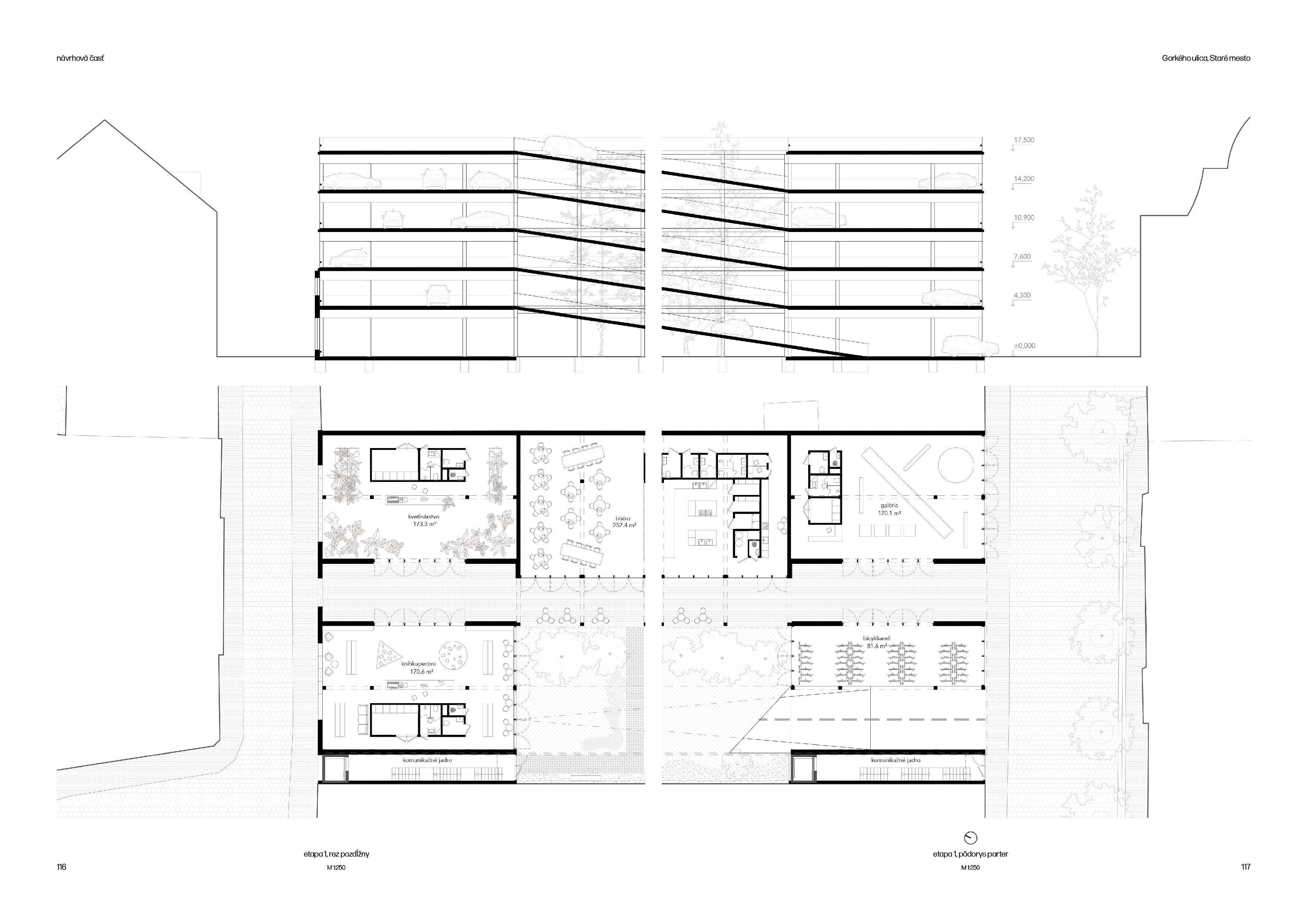
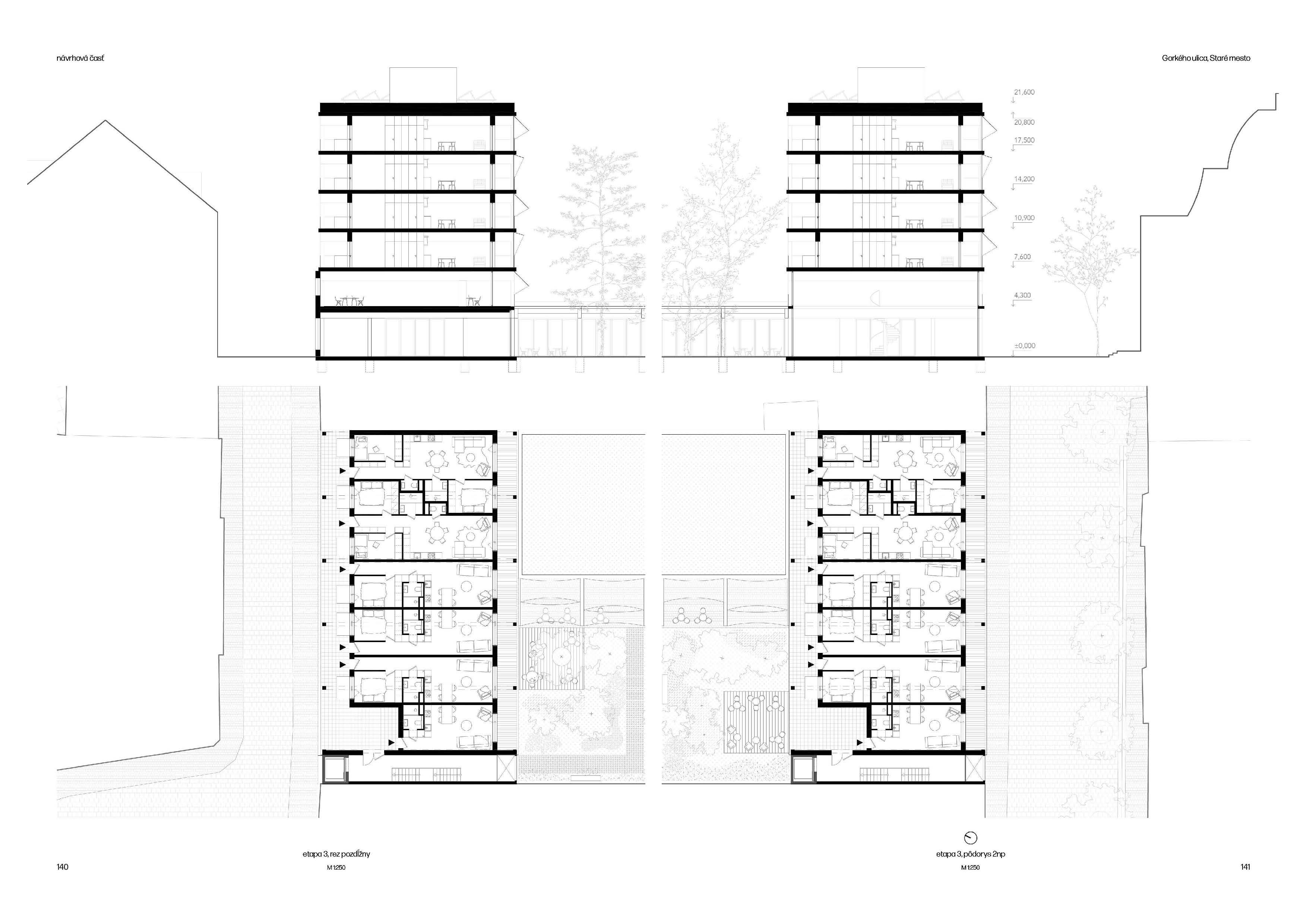
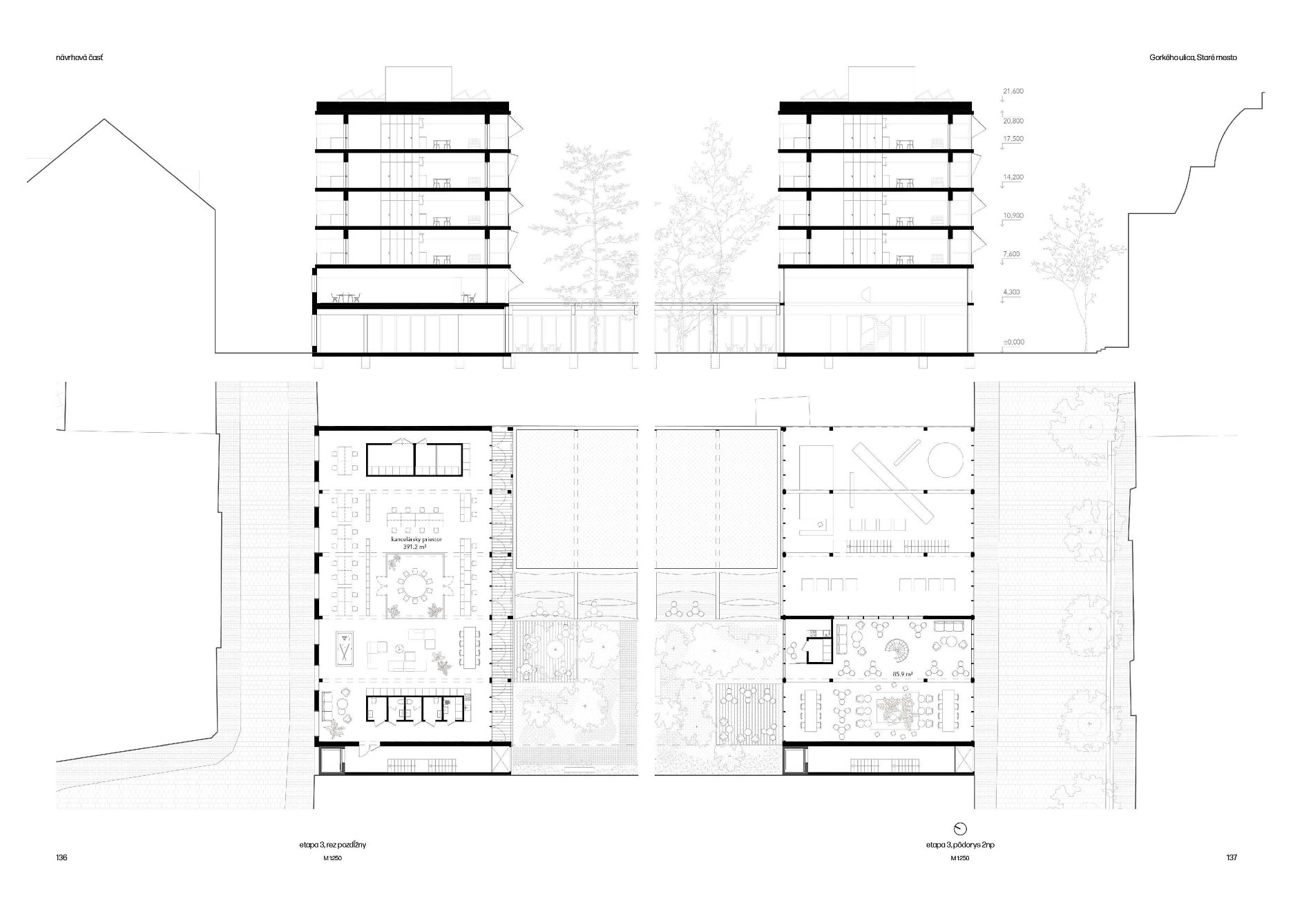
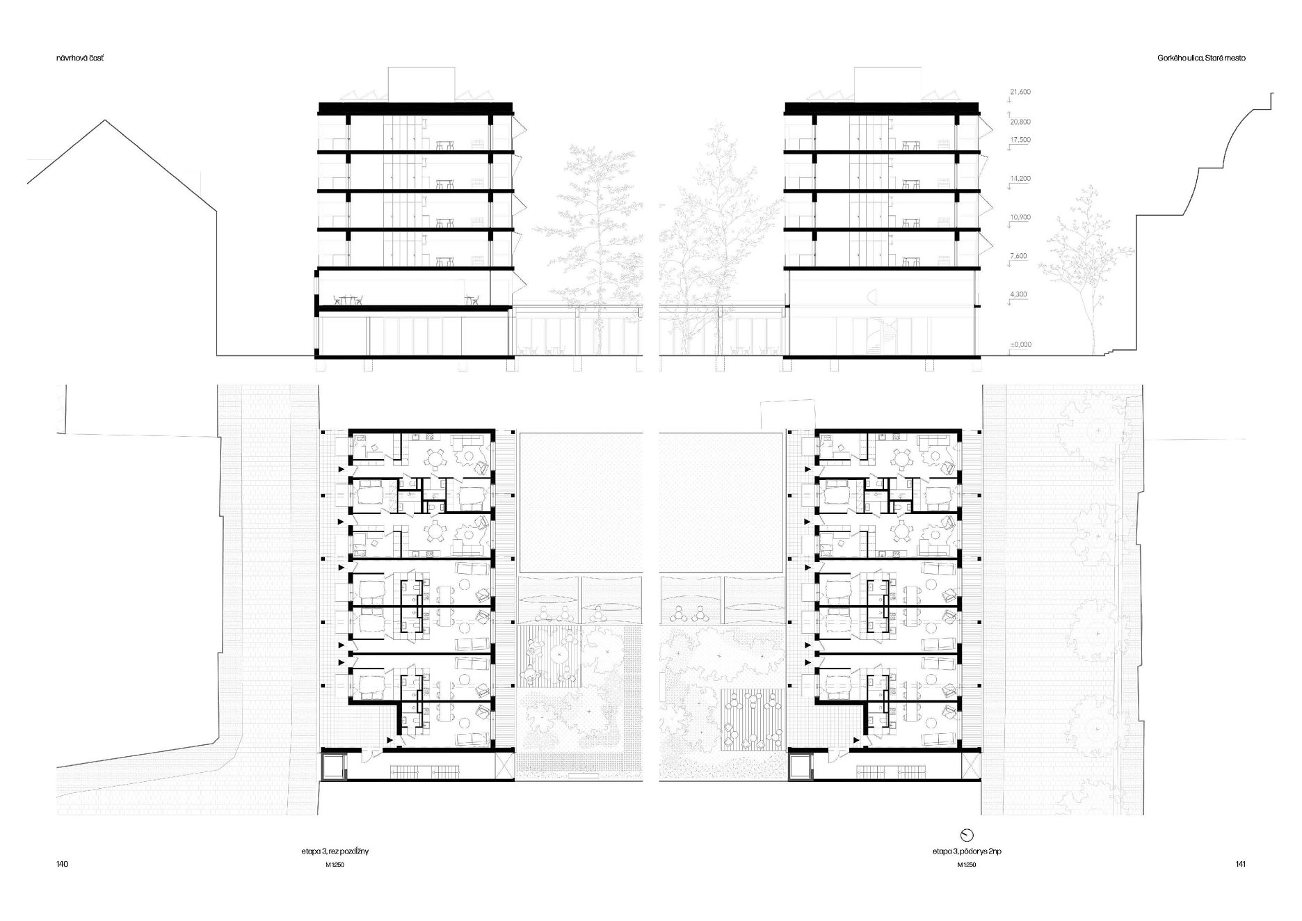
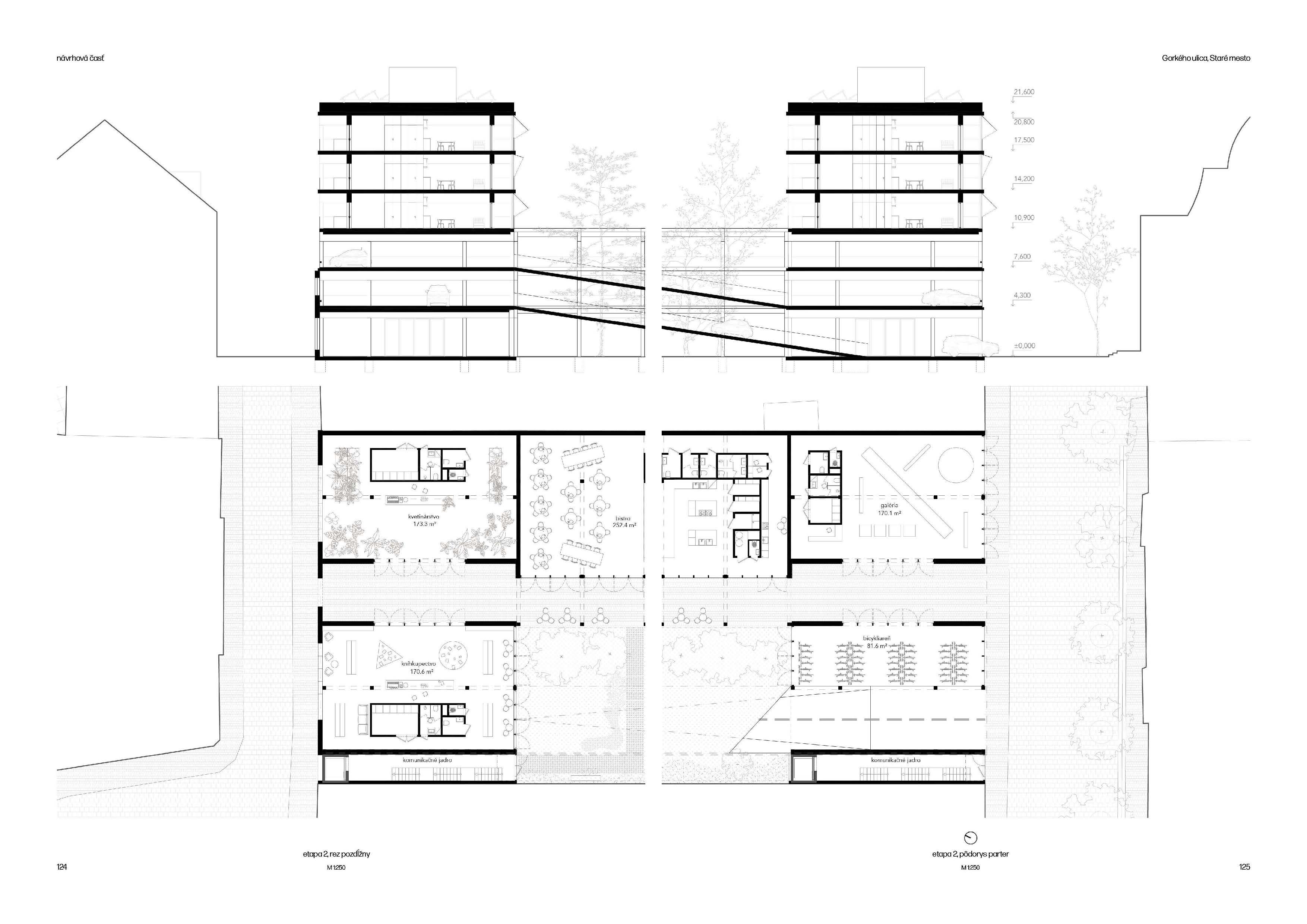
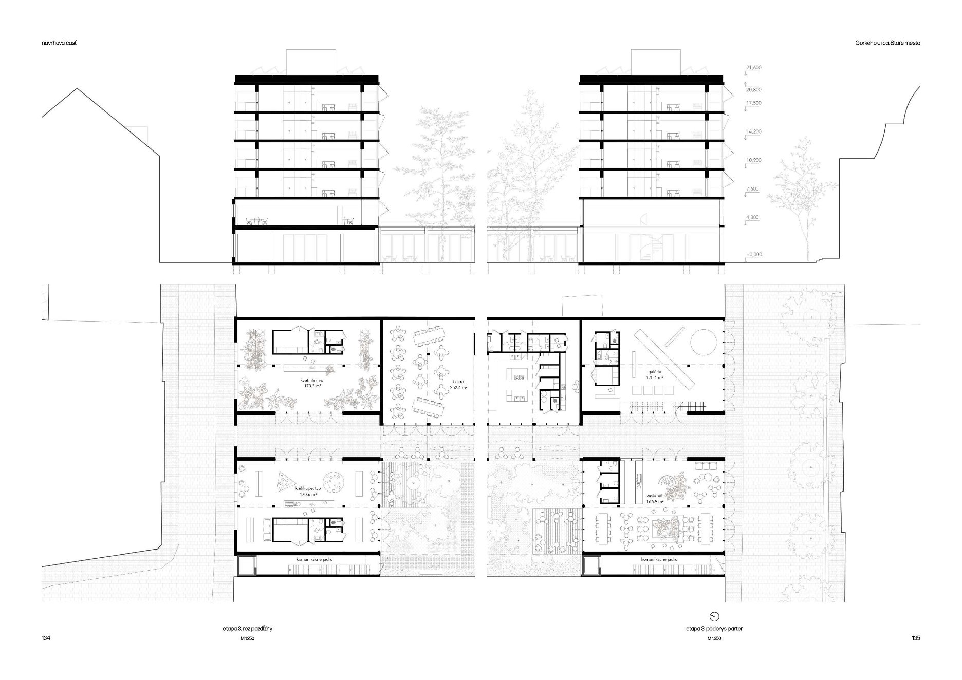
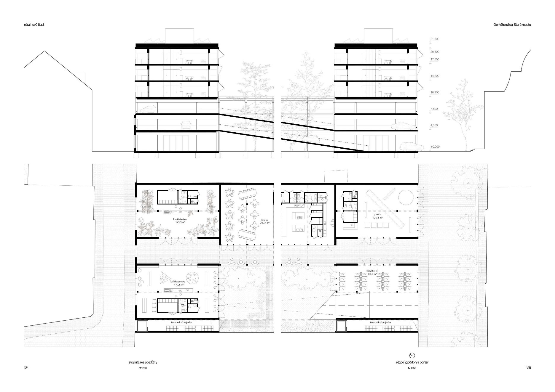
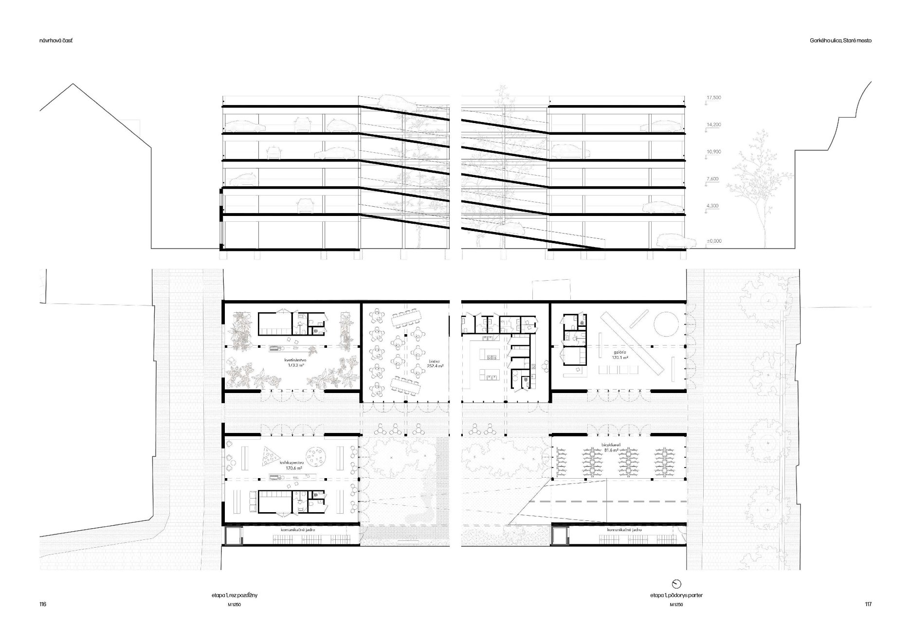
Dnes priblížime prácu „Garáže pre Bratislavu – sklad stavebného materiálu pre budúcnosť“, ktorá vznikla na pôde Fakulty architektúry a dizajnu STU v Bratislave pod vedením Pavla Paňáka. Diplomantka Kristína Rózsová sa zaoberá kritickou reflexiou parkovania v husto zastavaných štvrtiach a typológiou reverzibilného parkovacieho domu, ktorý možno v čase transformovať na bývanie či občiansku vybavenosť v rôznych mestských situáciách.
Na základe výskumu konštrukčných možností a prípadových štúdií autorka rozpracúva etapy „života“ domu od parkovania po následnú premenu, pričom stavbu chápe ako organizmus schopný prispôsobovania sa.
„Mohlo by sa zdať, že parkovacie domy dnes už netreba, nie je to ale celkom tak… Autority by ocenili možnosť realizovať parkovací dom v budúcnosti jednoducho prestaviteľný na inú funkciu, a navyše z dreva. Vidím v navrhovanom riešení aj politicky rafinovaný nástroj… Zvolená miera reality a utópie je veľmi vhodná,“ píše v oponentskom posudku Ondrej Marko.
Postery:
Obrazová príloha:
Portfólio: