Využite špeciálnu akciu Internorm: okná za minuloročné ceny a hliníkový kryt úplne zadarmo. Ponuka je časovo obmedzená!
Na podujatí sa predstaví až 37 vystavovateľov - popredných dodávateľov stavebných materiálov a inovácií s prezentáciou...
Sumarizácia najdôležitejších inovácií, ktoré redefinujúcich využitie tohto energetického zdroja.
AMPHIBIA 3000 GRIP 1.3 od spoločnosti ATRO predstavuje modernú hydroizolačnú technológiu, ktorá spája vysokú odolnosť,...
Ambiciózne plány EK narazili na ekonomické možnosti domácností v jednotlivých členských štátoch –...
IDEA DOOR od spoločnosti JAP prináša do interiéru čistý minimalistický vzhľad vďaka bezrámovému riešeniu a precíznej...
Kontinuita riešenia od vonkajšieho obkladu až po kovania a kľučky.
Nástenné nadomietkové armatúry Vitus sú mimoriadne vhodné pre rýchlu a efektívnu...
Okenné profily z kompozitného materiálu RAU-FIPRO X od spoločnosti Rehau sú v porovnaní s tradičnými plastovými profilmi mnohonásobne...
Najnovší sortiment stolov pre zariadenie interiérov...
Spojenie moderného dizajnu, funkčnosti a svetla do harmonického architektonického prvku.
Kancelárska budova Baumit v slovinskom Trzine prešla premenou na moderné a udržateľné pracovisko. Architekti kládli dôraz...
Mottom šiesteho ročníku on-line konferencie odborníkov Xella Dialóg je Efektívny návrh budov 2025+: zmeny a riešenia
Robot WLTR predstavuje moderný prístup k murovaným konštrukciám. Vďaka automatizácii dokáže rýchlo, presne a bezpečne realizovať...
Okrem bezpečnosti majú okná aj elegantný vzhľad, pretože nie sú viditeľné žiadne uzamykacie časti kovania.

Tak ako každý rok, aj tentoraz počas septembra a októbra na ARCHINFO postupne predstavíme najlepšie diplomové práce nominované v celoštátnej súťaži o najlepšiu diplomovú prácu absolventov architektonických škôl na Slovensku – Cenu profesora Jozefa Lacka (CPJL). Séria článkov vzniká v spolupráci s Ing. arch. Jakubom Hantákom, PhD.
Zriaďovateľmi ocenenia sú Spolok architektov Slovenska a Fond výtvarných umení. Aktuálny ročník je jubilejný, v poradí 35.
Tento rok nominovali jednotlivé školy spolu 17 absolventských projektov:
O výsledkoch rozhodne porota v zložení: Matej Honč (Kilo Honč) – predseda, Andrea Macejková (STOA architekti) a Beáta Herrmannová (P-T, spol. s r. o.). Národné kolo a zasadnutie poroty sa uskutoční 18. septembra 2025 v historickej sieni Dušana Jurkoviča v sídle SAS na Panskej ulici v Bratislave. Výsledky budú zverejnené na slávnostnom odovzdávaní cien SAS v kinosále SNG na konci aktuálnej sezóny.
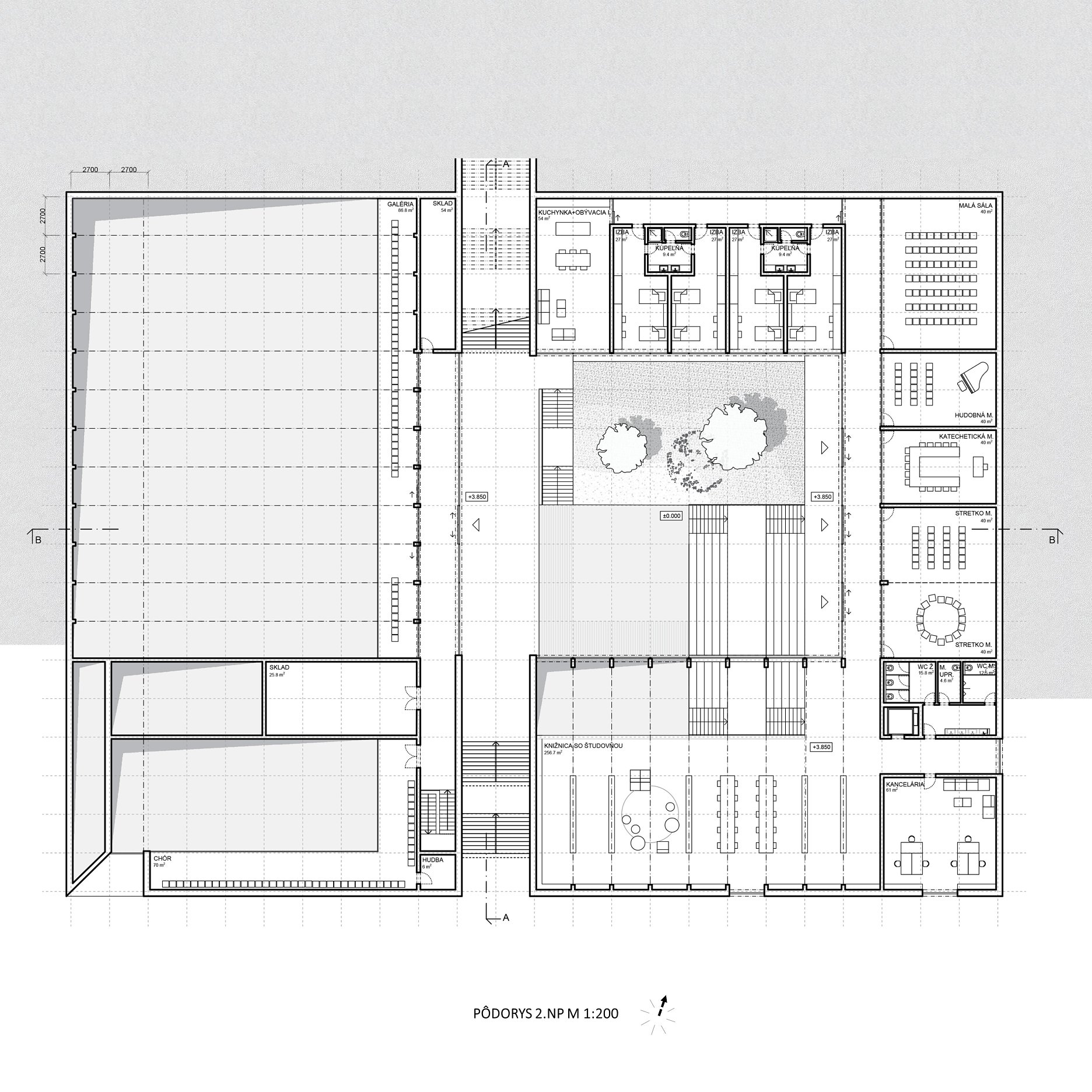
Dnes priblížime prácu „Univerzitné pastoračné centrum, Bratislava“, ktorá vznikla na pôde Fakulty architektúry a dizajnu STU v Bratislave pod vedením Ľubomíra Závodného. Diplomantka Eliška Horváthová navrhuje novostavbu pre Mlynskú dolinu, ktorá má nahradiť provizórne priestory a ponúknuť otvorené ekumenické zázemie pre duchovné, komunitné, kultúrne a športové aktivity študentov.
Na základe analýzy pohybov v území autorka pracuje s jednoduchým lineárnym objemom zasadeným do svahu a zachováva prirodzený peší ťah od Starých Gruntov k internátom. Dispozícia sa sústreďuje okolo átria, ktoré prináša svetlo do interiéru a odkazuje na átriové domy Vladimíra Dedečka. Program tvorí veľká multifunkčná sála s variabilným využitím, kaplnka akcentovaná hlbokým oknom a strešným svetlíkom, libresso a knižnica so študovňou. Cieľom je prostredie, ktoré podporuje komunitu a poskytuje prirodzený priestor na stretnutia aj stíšenie.
Postery:
Obrazová príloha:
Portfólio: