Na podujatí sa predstaví až 37 vystavovateľov - popredných dodávateľov stavebných materiálov a inovácií s prezentáciou...
Novotvar v prostredí alpskej obce.
Hansgrohe - prémiová značka kúpeľňových riešení, ponúka nadčasový dizajn, technickú precíznosť a udržateľné inovácie...
Využite špeciálnu akciu Internorm: okná za minuloročné ceny a hliníkový kryt úplne zadarmo. Ponuka je časovo obmedzená!
Sumarizácia najdôležitejších inovácií, ktoré redefinujúcich využitie tohto energetického zdroja.
AMPHIBIA 3000 GRIP 1.3 od spoločnosti ATRO predstavuje modernú hydroizolačnú technológiu, ktorá spája vysokú odolnosť,...
Ambiciózne plány EK narazili na ekonomické možnosti domácností v jednotlivých členských štátoch –...
IDEA DOOR od spoločnosti JAP prináša do interiéru čistý minimalistický vzhľad vďaka bezrámovému riešeniu a precíznej...
Kontinuita riešenia od vonkajšieho obkladu až po kovania a kľučky.
Nástenné nadomietkové armatúry Vitus sú mimoriadne vhodné pre rýchlu a efektívnu...
Okenné profily z kompozitného materiálu RAU-FIPRO X od spoločnosti Rehau sú v porovnaní s tradičnými plastovými profilmi mnohonásobne...
Najnovší sortiment stolov pre zariadenie interiérov...
Spojenie moderného dizajnu, funkčnosti a svetla do harmonického architektonického prvku.
Kancelárska budova Baumit v slovinskom Trzine prešla premenou na moderné a udržateľné pracovisko. Architekti kládli dôraz...
Mottom šiesteho ročníku on-line konferencie odborníkov Xella Dialóg je Efektívny návrh budov 2025+: zmeny a riešenia

Realizácia architekta Martina Maňa využíva klesajúci terén parcely. Výsledná architektonická kompozíca pôsobí z ulice ako lineárna jednopodlažná hmota. Do záhrady sa bývanie otvára prostredníctvom rozmerného zasklenia. Denná zóna je prostredníctvom terasy priamo prepojená s bazénom a zeleňou. Dôležitú súčasť diela tvorí autorské stvárnenie interiéru a záhradná architektúra.
Dielo bližšie predstaví sprievodný text autora:
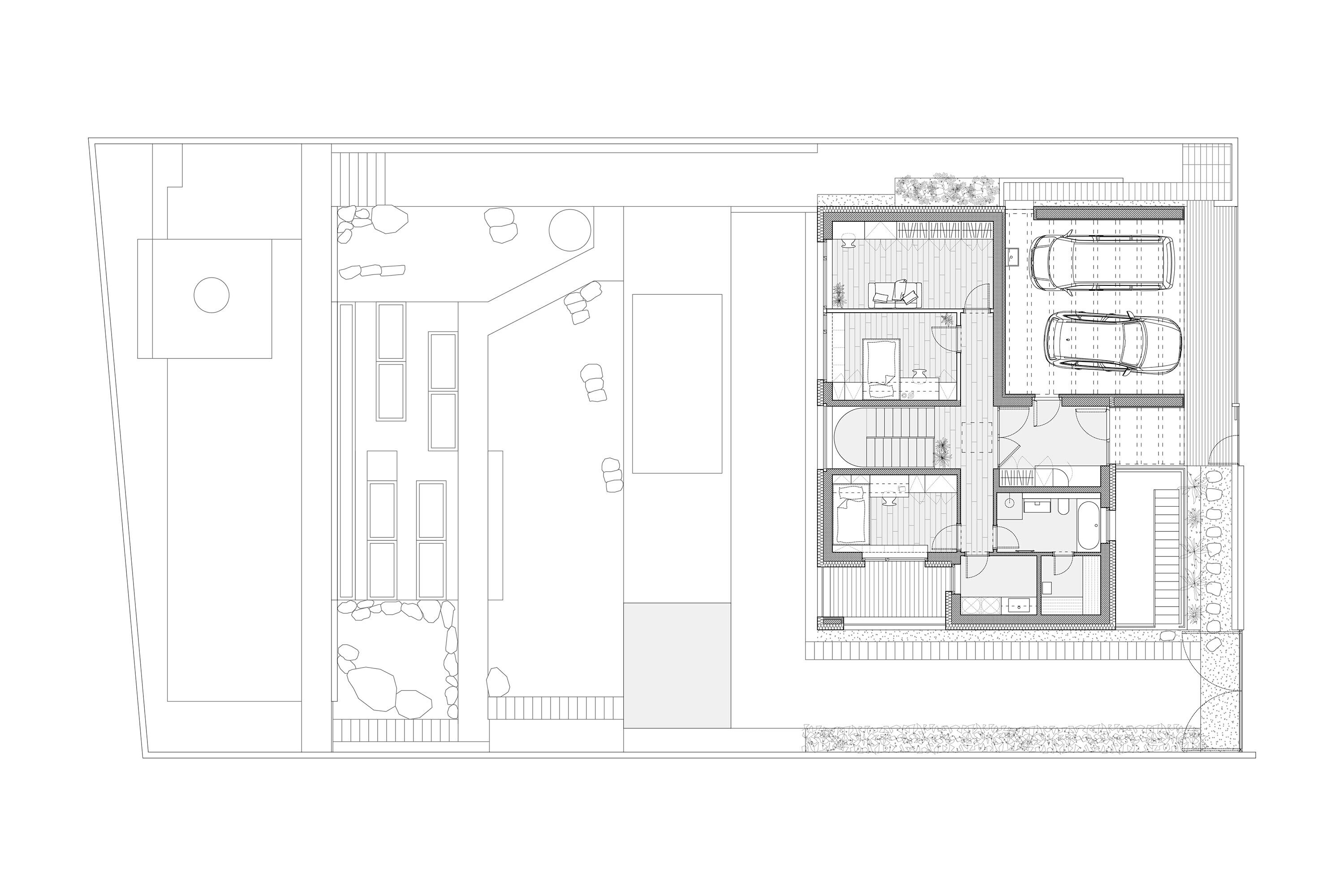
Poloha
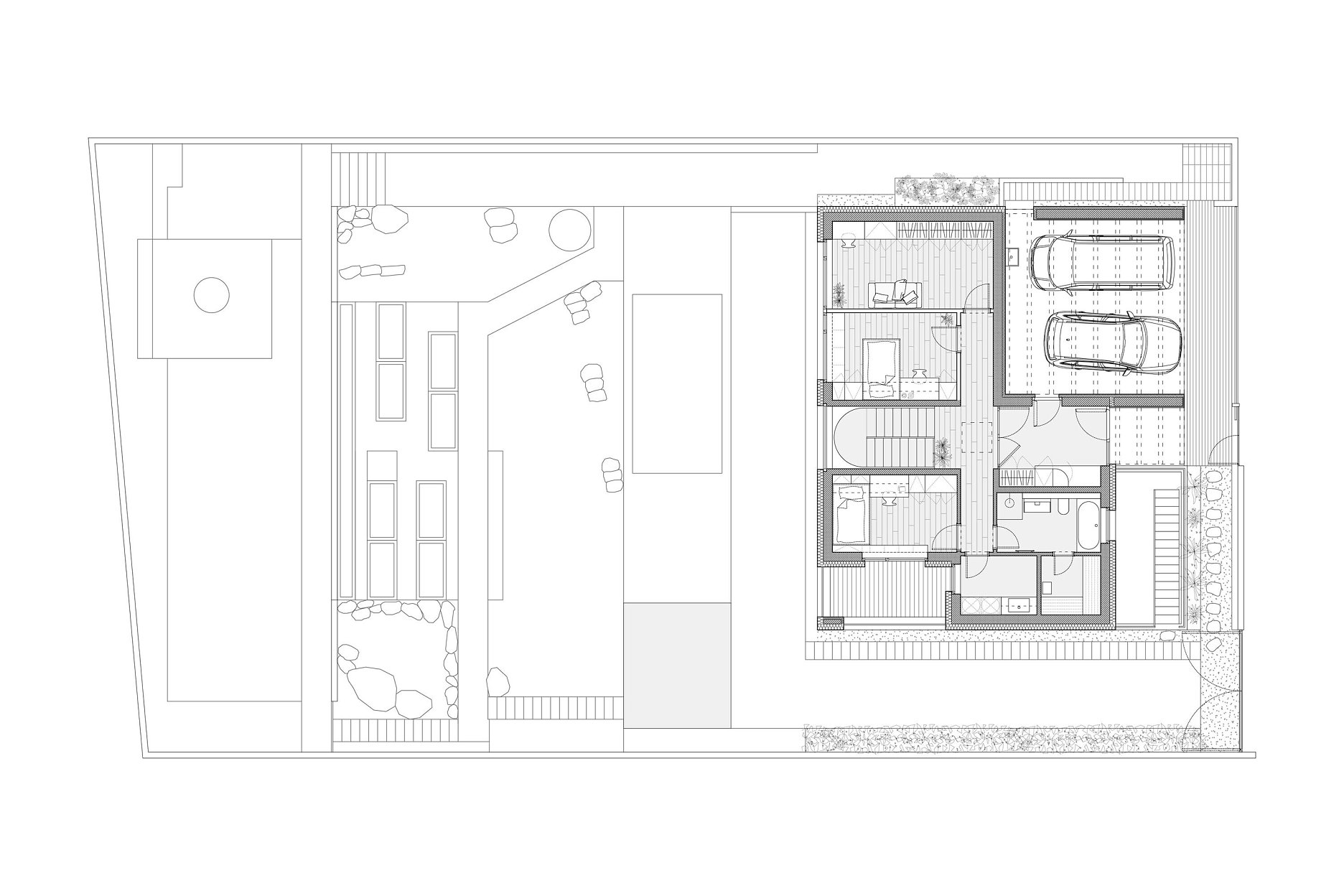
Rodinný dom sa nachádza v Bratislave, v pôvodne záhradkárskej oblasti mestskej časti Záhorská Bystrica, kúsok od lesa. Obkolesený je záhradami. Parcela má obdĺžnikový pôdorys s rozmermi približne 38 × 21 m a celkovú plochu 796 m². Má klesajúci charakter s výškovým rozdielom cca 8 m a zvažuje sa smerom od ulice. Dolnou časťou preteká Bystrický potok. Kratšou stranou je rovnobežná s ulicou. Orientácia parcely smerom od ulice je na juhozápad. Dom sa nachádza v jej hornej časti. Z cesty sa javí ako jednopodlažný objekt, keďže spodné podlažie je zapustené do klesajúceho terénu. V ulici je len elektrické vedenie; iné inžinierske siete tu nie sú.
Dom
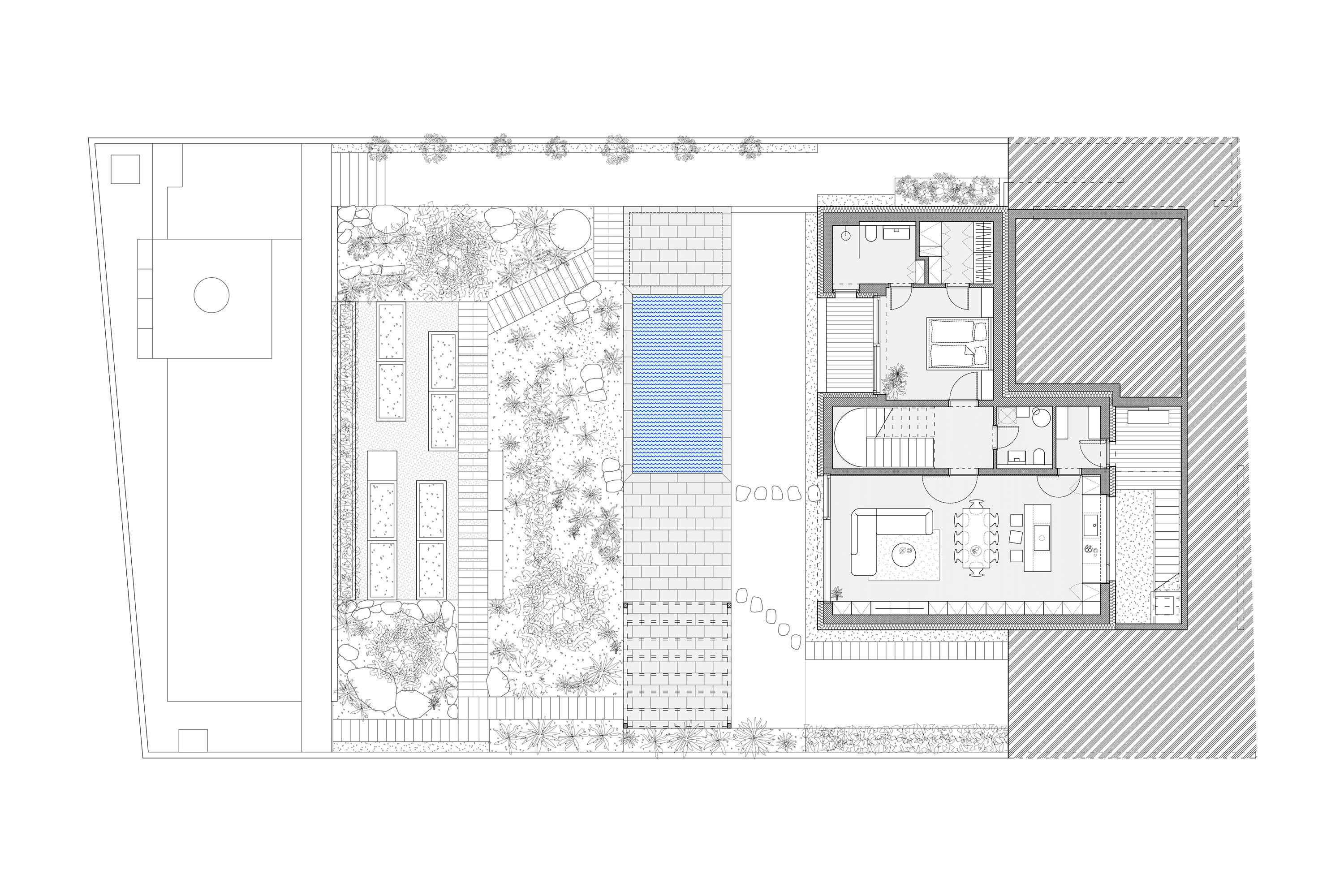
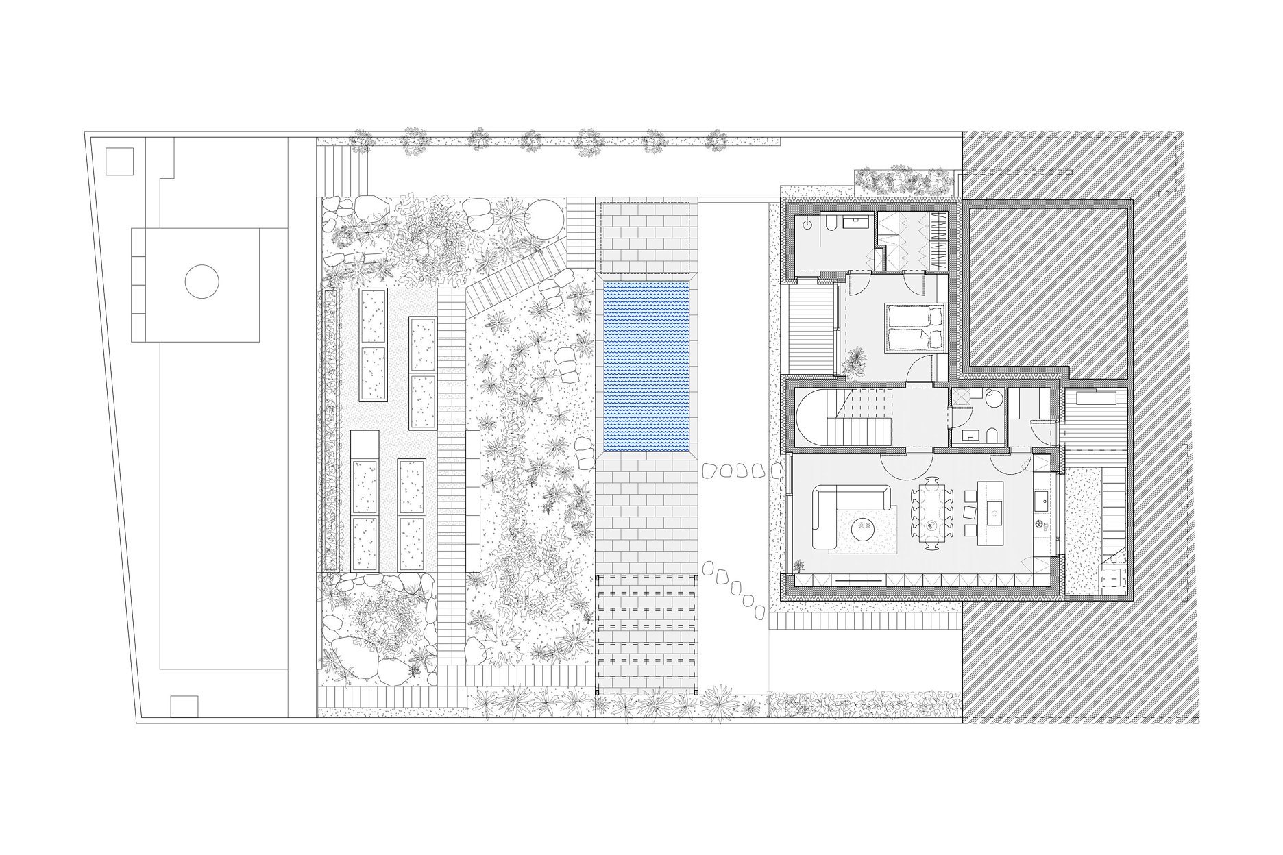
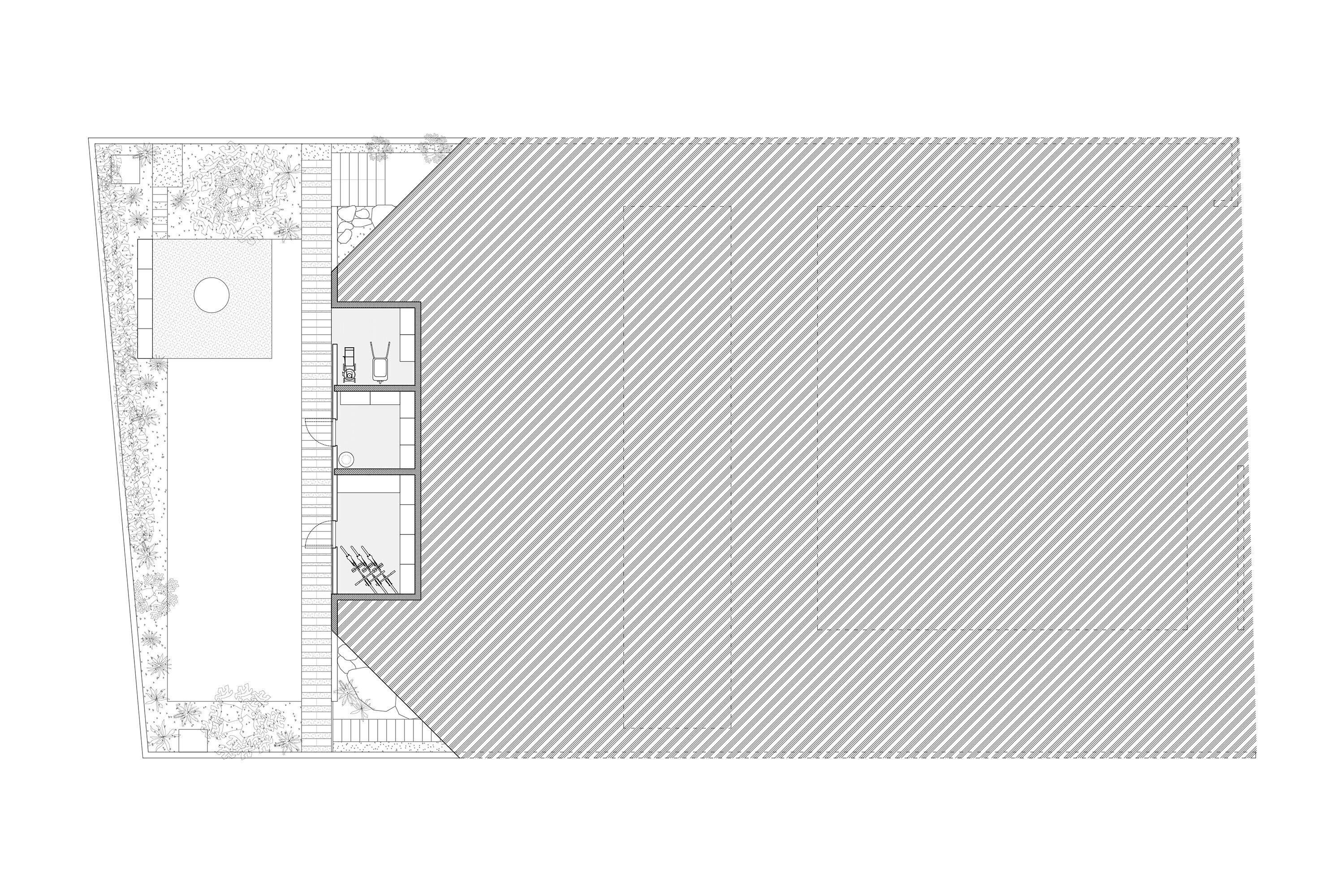
Z hľadiska veľkosti ide o dvojpodlažný rodinný dom zapustený do klesajúcej parcely. Svojou zastavanou plochou 119 m² na 100 % napĺňa maximálnu povolenú zastavanosť pozemku. Pôdorysne má tvar písmena L, v suteréne doplnený anglickým dvorčekom v zadnej časti objektu a krytou parkovacou plochou na hornom podlaží.
Do objektu sa vstupuje zo strany ulice krátkou rampou, prekrytou vysunutou drevenou konštrukciou strechy otvorenej garáže. Zo zádveria je priamy vstup aj do garáže a naopak. Za ním je umiestnená centrálna priečna chodba so schodiskom, presvetleným veľkým oknom smerujúcim do záhrady. Na ľavej strane chodby je detská izba orientovaná do malej loggie a susednej záhrady. Vedľa nej sa nachádza práčovňa, z ktorej sa dá taktiež vyjsť na loggiu. Oproti izbe je kúpeľňa so saunou. Na pravej strane chodby sú dve miestnosti – detská a hosťovská izba. Obe majú výhľad do záhrady.
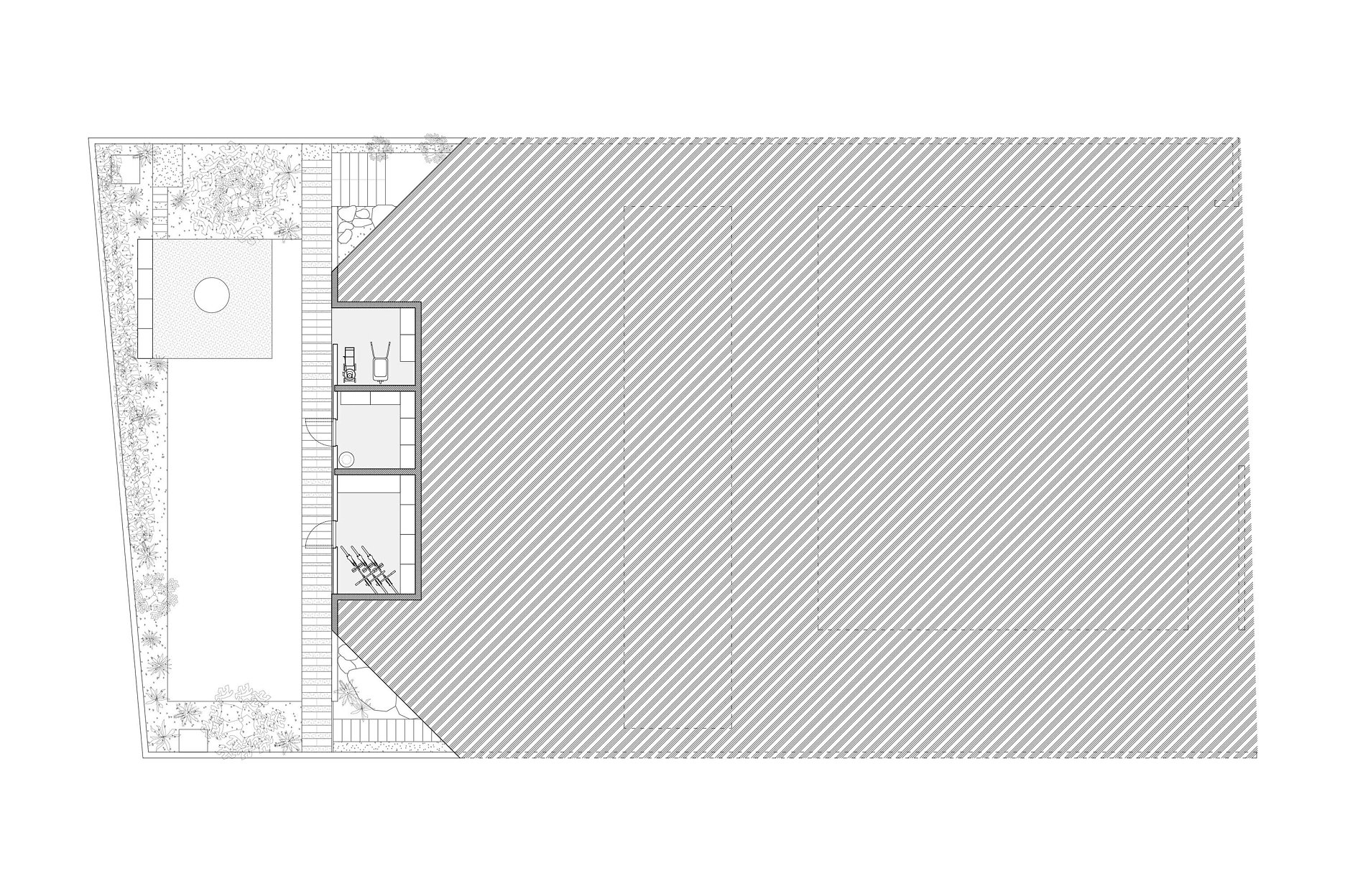
Schodiskom sa schádza do malej haly. Priamo oproti schodom je WC s technickým zázemím domu. Naľavo je spálňa s malým šatníkom a vlastnou kúpeľňou. Zasklenou stenou je prepojená s malou terasou zapustenou do hmoty objektu. Denná časť domu sa nachádza napravo od schodiska a tvorí jeden veľký priestor s obývacou časťou, jedálňou a kuchyňou. Vedľa kuchyne, za technickým zázemím domu, je malá komora. Aj kuchyňa, aj táto komora sú orientované do veľkého anglického dvorčeka, z ktorého vedie do záhrady oceľové schodisko. V priestore pod schodiskom je studňa, z ktorej sa čerpá nielen úžitková, ale aj pitná voda. Vstupná rampa do domu zároveň vytvára krytý priestor pred komorou. V tejto časti domu je osadené tepelné čerpadlo. Obývačka je so záhradou opticky prepojená cez celoplošné zasklenie.
Okolie
Na úrovni spodného podlažia je vo vzdialenosti 3 m od fasády, takmer v celej šírke parcely, vybudovaný pozdĺžny bazén s terasou. Časť terasy je prekrytá drevenou pergolou. Nachádza sa tu stôl so stoličkami a záhradné sedenie. Podlaha terasy aj lem bazéna sú z prírodného travertínu. Z tejto terénnej úrovne pozemok mierne klesá k úžitkovej záhrade. Svah je porastený rôznymi druhmi kvetov a bylín, tisom a doplnený väčšou borovicou. Úžitková záhrada sa nachádza na strope troch betónových pivničných kójí, do ktorých sa vstupuje z najnižšej úrovne parcely. Zábradlie úžitkovej záhrady tvorí pozdĺžny drevený truhlík so vysadeným vtáčím zobom a ibištekom. Na najnižšej úrovni je vytvorený priestor na hry na udržiavanom trávniku a miesto s ohniskom na opekanie. Okrem okrasnej zelene tu rastie aj muchovník a ambrovník. Cez pozemok v tomto mieste preteká potok, ktorý je však vedený v rúre pod zemou. Zošikmené plochy pivnice sú porastené rôznymi druhmi tráv, kosodrevinou a borovicami. Šikmé plochy vedľa domu tvoria trávnik a rad tisov pri hornej hranici parcely.
Konštrukčné a materiálové vyhotovenie
Dom je založený na železobetónových pásoch spriahnutých s betónovou doskou hrúbky 100 mm, na ktorej sa nachádza hydroizolačná fólia. Na takto vytvorenej spodnej konštrukcii leží železobetónová podkladná doska hrúbky 150 mm, previazaná s betónovými bočnými stenami spodného podlažia. Tie sú vymurované z debniacich tvárnic hrúbky 300 mm. Čelná a zadná stena sú taktiež murované, hrúbky 300 mm. V zadnej časti sa nachádza samostatná železobetónová stena, oddelená od obvodovej steny tepelnou izoláciou, nesúca železobetónovú parkovaciu plochu a steny garážového prístrešku. Obvodový plášť na poschodí je vyhotovený z tehál hrúbky 300 mm. Priečky majú hrúbku 115 mm, resp. 140 mm. Stropy sú železobetónové, hrúbky 200 mm. Steny sú omietnuté sadrovou omietkou; strop na spodnom podlaží je priznaný, pohľadový betón. Podlahy v suteréne sú polyuretánové, rovnako ako v obslužných miestnostiach poschodia. Izby a chodba na poschodí majú drevenú jaseňovú podlahu. Z rovnakého materiálu sú vyrobené aj všetky dvere a väčšina nábytku. Časti nábytku, ktoré nie sú z jaseňa, sú buď z laminátu (detské izby), alebo striekané (kuchyňa). Obklady v kúpeľniach sú gresové, v technickej miestnosti a práčovni keramické. Okná a vstupné dvere sú drevohliníkové. Drevený strop garážovej časti je z BSH profilov 140 × 240 mm. Záklop je vyrobený zo škárovky.
Strechy sú fóliové; v časti nad garážou s povrchom z riečneho kameniva, na dome sú navrhnuté ako vegetačné. Zateplenie objektu je z polystyrénu hrúbky 200 mm, na ktorom je natiahnutá kreatívna omietka StoSignature v horizontálnom smere. Omietka, strešné zvody, fasádne svetlá a okná sú vyhotovené v jednotnej farbe.
Autor: Martin Maňo
Fotografie: Matej Hakár, Martin Maňo