Moderné strešné okná ponúkajú pohodlné ovládanie aj lepšiu ochranu domácnosti počas celého roka.
Objavte riešenia Dorsis, ktoré spájajú minimalistický vzhľad s vysokou variabilitou, funkčnosťou a spracovaním na mieru.
Súčasné bývanie v prostredí budapeštianskej vilovej štvrte.
Rad interiérových dverí DIVA DOOR od spoločnosti J.A.P. ponúka čistý dizajn a variabilné riešenia pre súčasné interiéry.
REHAU Window Solutions na veľtrhu Fensterbau Frontale 2026
Sortiment Slim Line zahŕňa pestrý výber dekorov a textúr.
Európska značka okien oslavuje jubileum: za 95 rokov sa vyvinula na najväčšiu medzinárodne pôsobiacu okennú značku a inovačného...
Na podujatí sa predstaví až 37 vystavovateľov - popredných dodávateľov stavebných materiálov a inovácií s prezentáciou...
Novotvar v prostredí alpskej obce.
Hansgrohe - prémiová značka kúpeľňových riešení, ponúka nadčasový dizajn, technickú precíznosť a udržateľné inovácie...
Využite špeciálnu akciu Internorm: okná za minuloročné ceny a hliníkový kryt úplne zadarmo. Ponuka je časovo obmedzená!
Sumarizácia najdôležitejších inovácií, ktoré redefinujúcich využitie tohto energetického zdroja.
AMPHIBIA 3000 GRIP 1.3 od spoločnosti ATRO predstavuje modernú hydroizolačnú technológiu, ktorá spája vysokú odolnosť,...
Ambiciózne plány EK narazili na ekonomické možnosti domácností v jednotlivých členských štátoch –...
IDEA DOOR od spoločnosti JAP prináša do interiéru čistý minimalistický vzhľad vďaka bezrámovému riešeniu a precíznej...

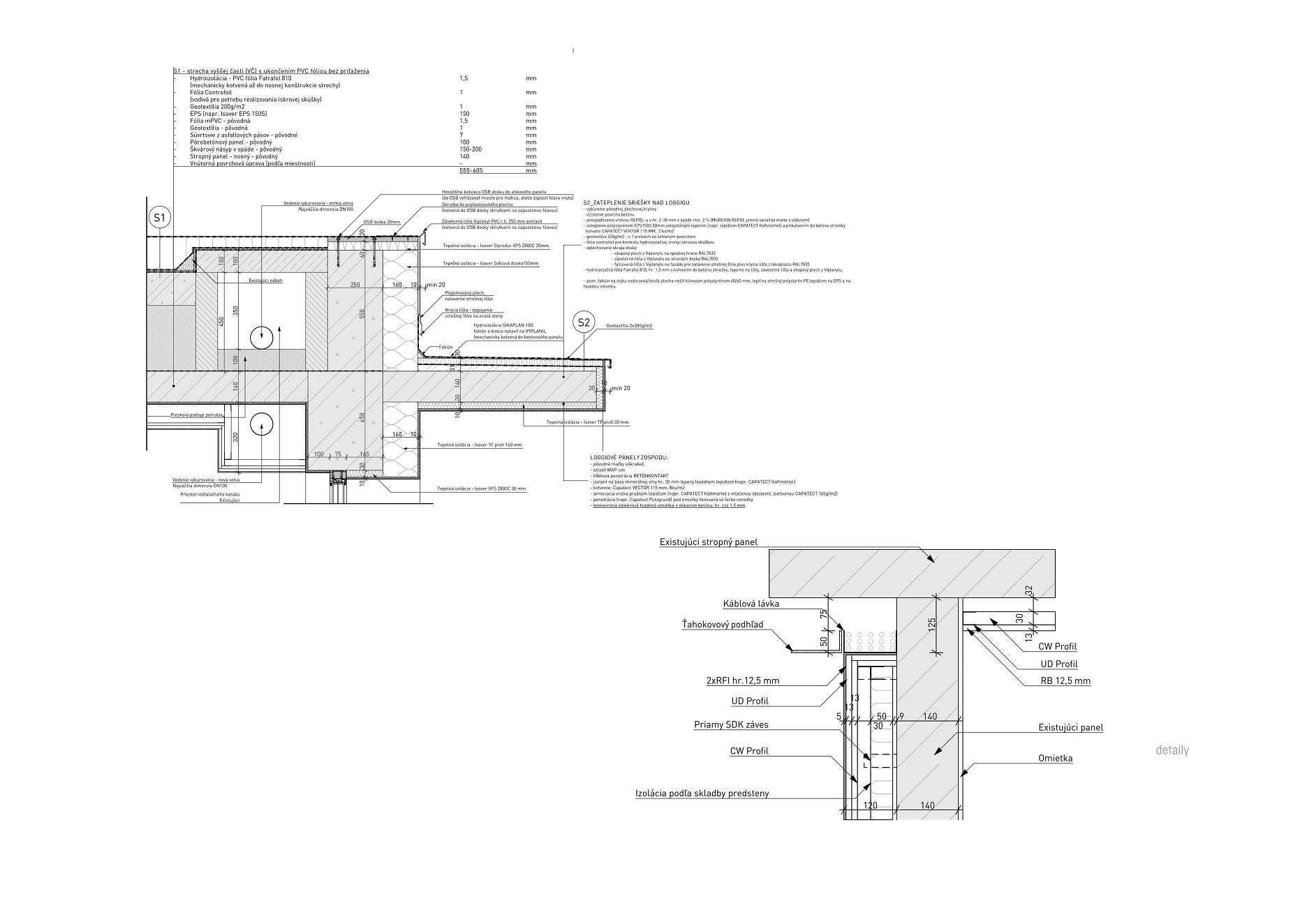
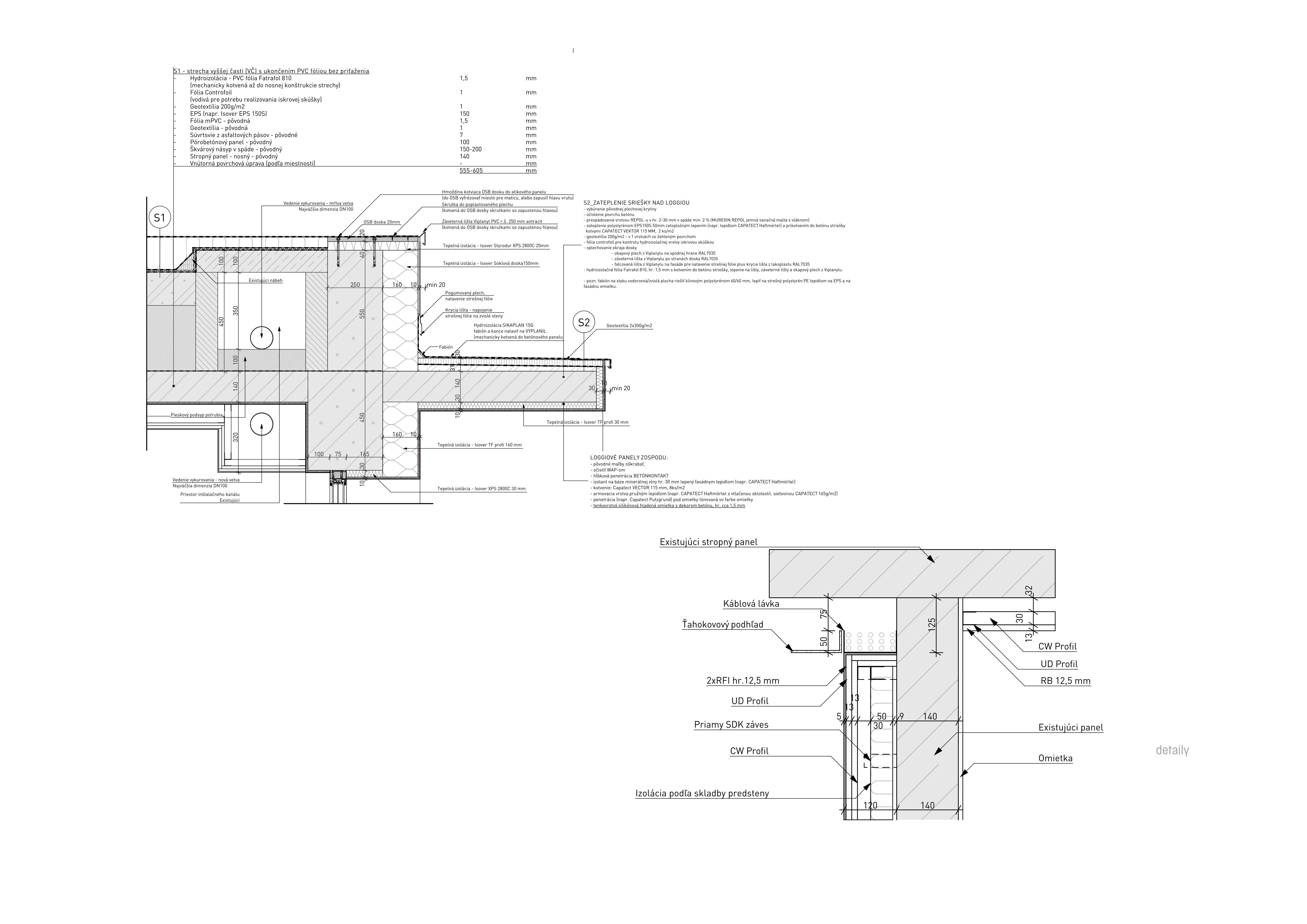
Bývalá robotnícka ubytovňa na košickom sídlisku Terasa prešla výraznou premenou pod vedením ateliéru Atrium Architekti. Stavba nadväzuje na pôvodný architektonický koncept, zachováva jeho čitateľnú kompozíciu a cielene pracuje s pôvodnými princípmi aj materiálmi.
Po desaťročiach využívania, ktoré sa podpísali na stave objektu, priniesla obnova modernizáciu obvodového plášťa, energetickú optimalizáciu a prevádzkovú flexibilitu. Kľúčovou ambíciou bolo zachovať čitateľnosť pôvodnej architektúry, vrátane materiálových kvalít a konštrukčnej logiky a zároveň doplniť nové vrstvy reagujúce na súčasné požiadavky a štandardy.
Projekt balansuje medzi adaptáciou a reinterpretáciou, pričom architekti ukazujú jeden z možných prístupov k obnove neskorej moderny.
Realizáciu priblíži sprievodný autorský text:
KOSMALT je pôvodne najväčšia robotnícka ubytovňa košických železiarní VSŽ, postavená v 60. rokoch podľa návrhu architektov Ladislava Greča a Róberta Kandríka. Názov objektu odkazuje na druh smaltovanej ocele, ktorej výroba bola špecifikom miestnych železiarní. Stavba sa nachádza na košickom sídlisku Terasa a vďaka svojej výraznej siluete a charakteristickej fasáde tvorí dominantu mestskej štruktúry.
Cieľom obnovy exteriéru aj interiéru budovy bolo zachovať identitu stavby, rehabilitovať jej pôvodné kvality a zároveň ju prispôsobiť dnešným požiadavkám na bývanie. Prístup architektov vychádza z presvedčenia, že aj stavby tohto typu môžu po citlivej transformácii ponúknuť plnohodnotné a atraktívne mestské bývanie.
Trinásťpodlažný objekt je charakteristický výraznou fasádou – geometrickou mriežkou vytvorenou z prefabrikovaných betónových modulov. Stavba dôsledne rešpektuje pôvodný prísny raster a tento, sám osebe fascinujúci princíp, ďalej rozvíja a povyšuje na výrazný architektonický motív. Striktne modulárna východná a západná fasáda – raster 22 × 13 identických polí – pôsobí vo svojej monumentalite zvláštne fascinujúco. Monochromatická sivá farebnosť fasády podporuje jej čistotu a výraz.
Dôležitou súčasťou návrhu bolo odkrytie a obnova hodnotných pôvodných materiálov a prvkov stratených pod nánosmi času. Staré a nové zostáva od podlahy až po strop jasne rozlíšené, zároveň však architektonicky vyvážené.
Ubytovňa si zachovala svoju pôvodnú funkciu – bývanie. Dispozičné riešenie rešpektuje logiku stavby a zároveň naplno využíva jej potenciál. Analýzy v projekčnej fáze potvrdili, že navrhnuté XS dispozície dobre fungujú pre obe varianty – ako pre jednotlivca, tak aj pre dvojicu. Na ploche 21 m² sa nachádza všetko v zmysle dnešného štandardu. Pocit stiesnenosti zmierňuje veľkorysé presklenie, lodžie a atraktívne výhľady, najmä z vyšších podlaží. Celkovo objekt ponúka 507 obytných jednotiek.
V kontraste s mierkou samotných bytov pôsobí vstup a vertikálne komunikácie veľkoryso a reprezentatívne. Vďaka dostatku prirodzeného svetla, výhľadom a štedrým rozmerom nadobúdajú charakter spoločenských priestorov na každom z trinástich podlaží. Dve identické, symetricky umiestnené schodiská pritom jasne rozdeľujú objekt na dve časti – pôvodne mužskú a ženskú.
Súčasťou návrhu je aj nový orientačný systém založený na farbe a symbole. Lososová, slonovinová a žltá farba spolu so znakmi plus a mínus rozlišujú jednotlivé chodbové krídla a pomáhajú návštevníkom intuitívne čítať dispozíciu domu.
KOSMALT pôvodne nebol navrhnutý ako adaptabilná stavba, no jeho nedávnou obnovou sa architektom podarilo túto vlastnosť do objektu doplniť. Priniesli tak prístup, ktorý v našich podmienkach stále nie je bežný – citlivú transformáciu existujúcej stavby, a teda „obnovu paneláku“ ako plnohodnotnú architektonickú stratégiu.
Pôvodne objekt slúžil ako socialistická slobodáreň – typ ubytovania určený slobodným robotníkom a robotníčkam, ktorý mal zabezpečiť základné zázemie, ale aj sociálny dohľad. Dnes tá istá budova vstupuje do celkom odlišného spoločenského kontextu a ponúka individuálne, dôstojné a súčasné formy bývania. Transformácia KOSMALTU potvrdzuje, že architektúra sa môže pružne prispôsobovať rôznorodým potrebám a reflektovať životné cykly tých, ktorí ju obývajú.
Fotografie východiskového stavu:
Materiálya dizajnové prvky:
Ateliér: Atrium Architekti
Podklady: Linka
Fotografie: Matej Hakár