Advertorial

Okná Internorm za minuloročné ceny + hliníkový kryt zdarma!

Využite špeciálnu akciu Internorm: okná za minuloročné ceny a hliníkový kryt úplne zadarmo. Ponuka je časovo obmedzená!

Pozvánka na 2. ročník stavebného veľtrhu BigMarket na Slovensku

Na podujatí sa predstaví až 37 vystavovateľov - popredných dodávateľov stavebných materiálov a inovácií s prezentáciou...

Moderné plynové technológie: Efektivita a inovácie pre 21. storočie

Sumarizácia najdôležitejších inovácií, ktoré redefinujúcich využitie tohto energetického zdroja.

Utesňovanie spodných stavieb pomocou hydro-aktívnej fólie AMPHIBIA.

AMPHIBIA 3000 GRIP 1.3 od spoločnosti ATRO predstavuje modernú hydroizolačnú technológiu, ktorá spája vysokú odolnosť,...

Dekarbonizácia individuálneho vykurovania domácností – Green Deal evolučne a nie revolučne

Ambiciózne plány EK narazili na ekonomické možnosti domácností v jednotlivých členských štátoch –...

Minimalistické dvere IDEA – technická precíznosť a čistota prevedenia

IDEA DOOR od spoločnosti JAP prináša do interiéru čistý minimalistický vzhľad vďaka bezrámovému riešeniu a precíznej...

Dom s výhľadom na údolie, Dlouhý Most (ČR)

Kontinuita riešenia od vonkajšieho obkladu až po kovania a kľučky.

Schell Vitus – osvedčené riešenie pre sprchy a umývadlá vo verejnom sektore s viac ako desaťročnou tradíciou

Nástenné nadomietkové armatúry Vitus sú mimoriadne vhodné pre rýchlu a efektívnu...

Kompozitné okná predstavujú súčasnosť a budúcnosť

Okenné profily z kompozitného materiálu RAU-FIPRO X od spoločnosti Rehau sú v porovnaní s tradičnými plastovými profilmi mnohonásobne...

Myotis - stoly 2025

Najnovší sortiment stolov pre zariadenie interiérov...

Priemyselné sklenené priečky Dorsis Digero: svetelné rozhranie pre moderné interiéry

Spojenie moderného dizajnu, funkčnosti a svetla do harmonického architektonického prvku.

Význam prirodzeného svetla pre moderné a flexibilné pracovné prostredie

Kancelárska budova Baumit v slovinskom Trzine prešla premenou na moderné a udržateľné pracovisko. Architekti kládli dôraz...

Konferencia Xella Dialóg predstaví novinky a trendy v stavebníctve

Mottom šiesteho ročníku on-line konferencie odborníkov Xella Dialóg je Efektívny návrh budov 2025+: zmeny a riešenia

Murovací robot WLTR stavia svoj prvý dom na Slovensku

Robot WLTR predstavuje moderný prístup k murovaným konštrukciám. Vďaka automatizácii dokáže rýchlo, presne a bezpečne realizovať...

Nová éra bezpečnosti s I-tec Secure od Internorm

Okrem bezpečnosti majú okná aj elegantný vzhľad, pretože nie sú viditeľné žiadne uzamykacie časti kovania.

Rekonštrukcia interiéru malého bytu, Praha - Vokovice

bývanie v dome z 50. rokov.
Diela
Red 309.08.2021
20100+15
Rekonštrukcia interiéru malého bytu, Praha - Vokovice
Autori: Mga. Pavel Nový (0,5 Studio), Mga. Vít Svoboda (0,5 Studio)Podlažná plocha: 55 m2Návrh: 2020 - 2020Realizácia: 2020 - 2020Adresa: Praha - Vokovice, Česká republikaPublikované: 9. august 2021

Úlohou architektov z ateliéru 0,5 Studio bolo overiť možnosť zmeny dispozície staršieho bytu z usporiadania 2 + 1 na 3 + kk. Bývanie s výmerou necelých 55 m2 je súčasťou zástavby v pražskej časti Vokovice, ktorá vznikla v 50. rokoch v duchu socialistického realizmu. S podobnými projektmi má pražský ateliér početné skúsenosti (viď. súvisiace články pod textom). V prípade tomto patrilo medzi priority najmä efektívne využitie skromného obytného priesoru. “Cílem bylo zachovat komfort a vytvořit dostatek úložných prostorů pro čtyřčlennou rodinu. Podstatné pro návrh bylo pochopení kontextu domu, místa a měřítka,” vysvetľujú autori.

Foto: Peter Fabo
Foto: Peter Fabo

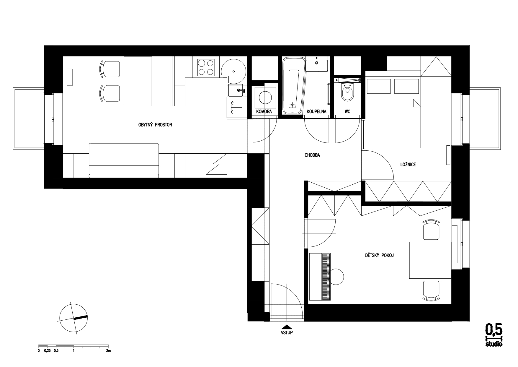
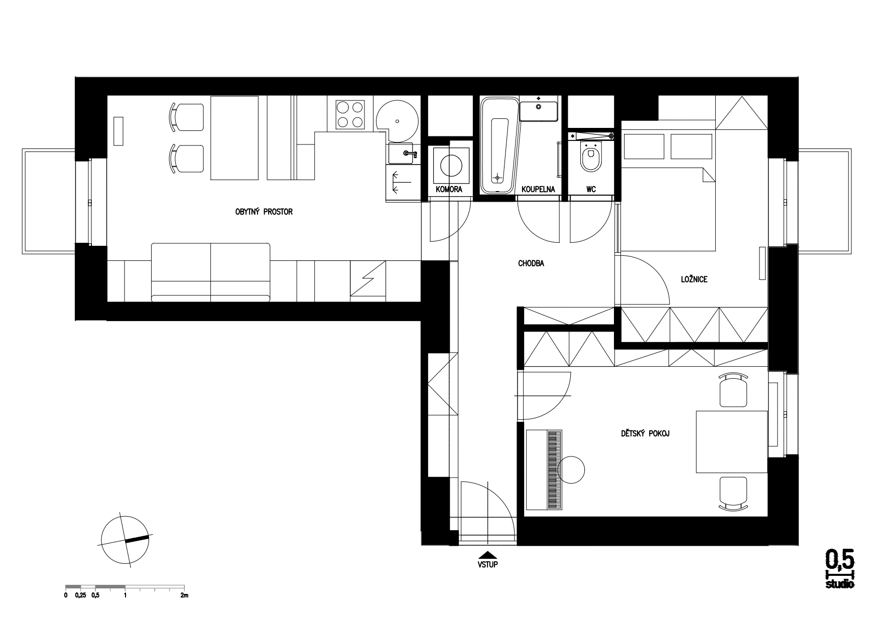
Konštrukcia domu umožnila jednoduchú úpravu priečok. Presunutie a spojenie kuchyne s obývačkou vytvorilo priestor pre samostatnú spálňu. Na mieste tej pôvodnej vznikla komfortná detská izba. Efektívne riešenie úložného priestoru umožnila práca so stenou medzi detskou izbou a spálňou. Zalomená priečka vytvára v detskej izbe výklenok pre zvýšené spanie, s integrovanými šatníkovými skriňami a knižnicou. V spálni a chodbe zas otvára priestor pre nižšie vstavané skrine. Kúpeľňa, WC a technická miestnosť ostali v pôvodnej polohe v rámci bytu.

Pôdorys bytu - pôvodný stav
Pôdorys bytu - pôvodný stavAutor: 0,5 Studio
Pôdorys bytu - nový stav
Pôdorys bytu - nový stavAutor: 0,5 Studio

Dôležitým prvok architektonického riešenia je práca s denným svetlom. To vedie do centrálnej časti rozmerná presklená stena spálne. Atypické zasklenie je možné zatieniť vstavanou roletou. 

Foto: Peter Fabo
Foto: Peter Fabo

Jadro bytu tvorí obývačka s kuchynským kútom. Vstavaná stena, s odkladacími priestormi plynulo prechádza do obytnej polovice miestnosti. Sedenie a knižnicu, integrované do nábytkového prvku, zvýrazňuje jaseňová dyha.

Foto: Peter Fabo
Foto: Peter Fabo

Kúpeľňa a WC sú zariadené nábytkom na mieru. Medzi zaujímavé riešenia patrí atypické umývadlo nad splachovacou nádržkou. 

Foto: Peter Fabo
Foto: Peter Fabo
Foto: Peter Fabo

Priestor zjednocuje podlaha z jaseňovej kantovky, ktorá prechádza takmer celým bytom. Biela farba opticky prepája vstavaný nábytok so stenami bytu, akcenty tvorí jaseňová dyha. Bezrámové dvere, zalícovane so stenou, nechávajú vyniknúť jednoliate farebné plochy bytu. 

Foto: Peter Fabo
Foto: Peter Fabo

Na necelých 55 m2 sa architektom vďaka aplikácii osvedčených téz (jasné funkčné definovanie priestorov, zjednotenie úložných kapacít do väčších celkov, otvorenie dennej zóny...) podarilo vytvoriť fungujúci interiér, ktorý korešponduje so životným štýlom majiteľov.

Foto: Peter Fabo
Foto: Peter Fabo
Foto: Peter Fabo
Foto: Peter Fabo
Foto: Peter Fabo
Foto: Peter Fabo
Foto: Peter Fabo

Podklady: 0,5 Studio

Poloha diela

Mga. Pavel Nový
Mga. Vít Svoboda
Vložené
19. júl 2021
0
2010
Hlavný obsahHlavný obsah
Čakajte prosím