Na podujatí sa predstaví až 37 vystavovateľov - popredných dodávateľov stavebných materiálov a inovácií s prezentáciou...
Novotvar v prostredí alpskej obce.
Hansgrohe - prémiová značka kúpeľňových riešení, ponúka nadčasový dizajn, technickú precíznosť a udržateľné inovácie...
Využite špeciálnu akciu Internorm: okná za minuloročné ceny a hliníkový kryt úplne zadarmo. Ponuka je časovo obmedzená!
Sumarizácia najdôležitejších inovácií, ktoré redefinujúcich využitie tohto energetického zdroja.
AMPHIBIA 3000 GRIP 1.3 od spoločnosti ATRO predstavuje modernú hydroizolačnú technológiu, ktorá spája vysokú odolnosť,...
Ambiciózne plány EK narazili na ekonomické možnosti domácností v jednotlivých členských štátoch –...
IDEA DOOR od spoločnosti JAP prináša do interiéru čistý minimalistický vzhľad vďaka bezrámovému riešeniu a precíznej...
Kontinuita riešenia od vonkajšieho obkladu až po kovania a kľučky.
Nástenné nadomietkové armatúry Vitus sú mimoriadne vhodné pre rýchlu a efektívnu...
Okenné profily z kompozitného materiálu RAU-FIPRO X od spoločnosti Rehau sú v porovnaní s tradičnými plastovými profilmi mnohonásobne...
Najnovší sortiment stolov pre zariadenie interiérov...
Spojenie moderného dizajnu, funkčnosti a svetla do harmonického architektonického prvku.
Kancelárska budova Baumit v slovinskom Trzine prešla premenou na moderné a udržateľné pracovisko. Architekti kládli dôraz...
Mottom šiesteho ročníku on-line konferencie odborníkov Xella Dialóg je Efektívny návrh budov 2025+: zmeny a riešenia

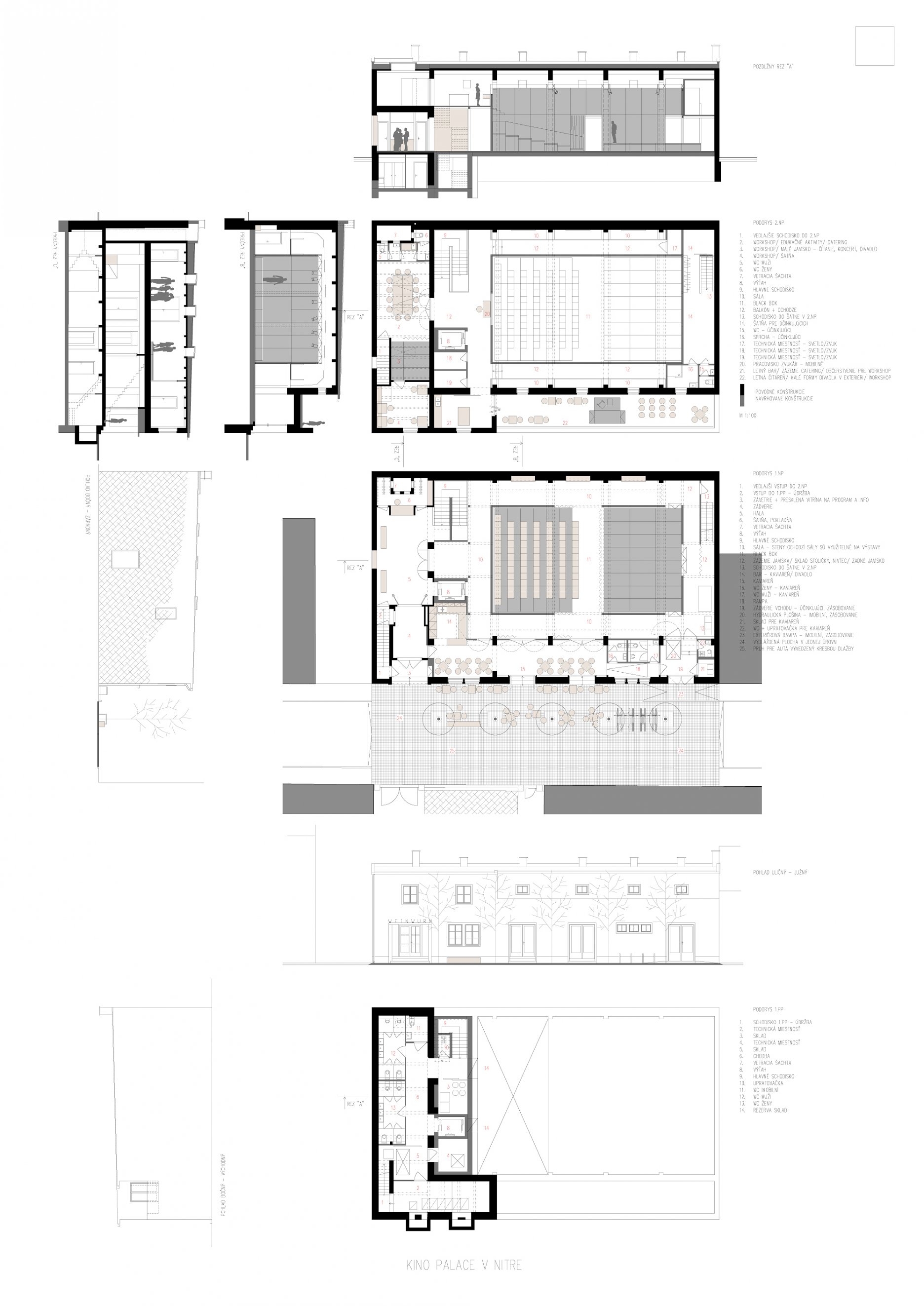
Mesto Nitra vyhlásilo koncom júna jednokolovú súťaž. Predmetom súťaže návrhov bolo nájsť najvhodnejšie riešenie pre využitie bývalého Kina Palace na Radlinského ulici. Objekt postavený v rokoch 1925 - 26 má v budúcnosti slúžiť ako multifunkčná sála so zázemím a kaviareň. Autorom pôvodného architektonického riešenia je Fridrich Weinwurm. V druhej polovici 20. storočia bol však objekt prestavaný a pôvodný rukopis autora sa vytratil. Súťažiaci sa museli s touto situáciou vhodným spôsobom vysporiadať.
Do súťaže sa zapojilo 36 účastníkov. Porota zasadala 10. septembra, poradie určila nasledovne:
1. miesto - návrh č. 22 - Livinark s.r.o.: Ing. arch. Tomáš Boroš, ArtD., Ing. arch. Maroš Mitro,
Bc. Dominika Jenčová, Martina Hončárová, Pavel Bakajsa (9 000 €)
Hodnotenie poroty:
Návrh dokázal splniť náročné požiadavky na pamiatkovú obnovu a súčasne ponúknuť ucelený architektonický názor na zmenu využitia objektu. Z hľadiska svojej novej funkcie je jeho hlavnou výhodou to, že ponúka maximálnu možnú veľkosť sály a uvoľnenie dispozície vstupného podlažia tým, že situuje obslužné priestory (šatne, WC a sklady) do novonavrhovaného podzemného podlažia. Vo svojom materiálovom prevedení a detailoch je prestavba triezvo citlivá v pripomínaní architektonickej a historickej hodnoty diela Friedricha Weinwurma. Porota má výhrady k umiestneniu kaviarne, dôležitého spoločenského katalyzátora, iba na poschodí. Navrhuje pri dopracovaní štúdie rozšírenie jej prevádzky aj na prízemie objektu.
2. miesto - návrh č. 1 - Ing. arch. Martin Simonides, Vladimír Dianiška, František Dlabáč, Zuzana Ondrušková (5 400 €)
Hodnotenie poroty:
Návrh poskytuje veľmi realistické riešenie transformácie objektu na jeho nové využitie. Hmotovým riešením odvolávajúcim sa na pôvodnú formu objektu spĺňa podmienky pamiatkovej obnovy. V rámci svojich možností ponúka prehľadnú dispozíciu s adekvátne veľkorysými vstupnými priestormi a flexibilnú viacúčelovú sálu dostatočných rozmerov. Porota má výhrady k spôsobu prepojenia oboch úrovní kaviarne, ako aj k príliš nostalgickému prevedeniu povrchov a detailných prvkov návrhu.
3. miesto - návrh č. 15 - A B.K.P.Š., s.r.o.: Ing. arch. Róbert Bakyta, Ing. arch. Martin Kusý,
Ing. arch. Tatiana Kuva, Ing. arch. Július Vass (3 600 €)
Hodnotenie poroty:
Podobne ako návrh na prvom mieste, sa aj tento snaží o priestorové uvoľnenie prízemia objektu a o vytvorenie priestrannej viacúčelovej sály. Na rozdiel od víťaza však nevyužíva naplno potenciál podzemného podlažia a ostáva tak niekde na pol-ceste k presvedčivému prevedeniu tejto idey. Z pohľadu požiadaviek Krajského pamiatkového úradu návrh reprezentuje akceptovateľné riešenie.
Odmena - návrh č. 26 - winwin architects s.r.o.: Ing. arch. Lucia Kušnírová, Ing. arch. Soňa Salnerová, Bc. Barbora Gunišová, Bc. Robert Provazník (2 000 €)
Hodnotenie poroty:
Návrh svojím objemom odkazuje na pôvodné hmotové riešenie kina Palace, čím vyhovuje striktným požiadavkám pamiatkovej obnovy. Racionálne upravuje dispozíciu objektu jeho budúcemu využitiu, poskytuje vhodné spoločenské priestory a postačujúcu viacúčelovú sálu. Balkón po troch stranách sály vzbudzuje pochybnosti o jeho využiteľnosti a vhodnosti pre takýto univerzálny priestor. Porota má výhrady aj k prehnanej štylizácii interiéru objektu.
Ostatné návrhy uvádzame v chronologickom poradí, podľa času odovzdania:
Návrh číslo 2 - Ing. arch. Juraj Císar - ORANT
Návrh číslo 3 - Mgr. Akad. arch. Ing. arch. Tomáš Bujna
Návrh číslo 4 - Ing. arch. Adam Koten
Návrh číslo 5 - PH9 sro
Návrh číslo 6 - SD atelier s.r.o.
Návrh číslo 7 - Ing. arch. Michal Kontšek
Návrh číslo 8 - coolstock, s.r.o.
Návrh číslo 9 - A8000 s.r.o.
Návrh číslo 10 - Jacopo Lugli Salvalai
Návrh číslo 11 - MMA ateliér, s.r.o.
Návrh číslo 12 - SLLA s.r.o.
Návrh číslo 13 - Ing. arch. Pavol Vadkerti - PV ART
Návrh číslo 14 - MAPA architekti s.r.o., ATOMstudio s.r.o.
Návrh číslo 16 - ARCHUM architekti s.r.o.
Návrh číslo 17 - Performa Architects s.r.o.
Návrh číslo 18 - Ing. arch. Irenej Šereš
Návrh číslo 19 - Ing.arch. Lívia Dulíková, Ing.arch.Martin Dulík, Ing. Marek Šumichrast
Návrh číslo 20 - NA s.r.o.
Návrh číslo 21 - zerozero, s.r.o.
Návrh číslo 23 - MEB architects s.r.o.
Návrh číslo 24 - impressARCH s.r.o.
Návrh číslo 25 - Ing.arch. Andrej Olah
Návrh číslo 27 - young.s architekti s.r.o.
Návrh číslo 28 - TOME architecture & design, s.r.o.
Návrh číslo 29 - RB ARCHITECTS s.r.o.
Návrh číslo 30 - Kilo Honč, s.r.o.
Návrh číslo 31 - GRESLING, s.r.o.
Návrh číslo 32 - studený architekti s.r.o.
Návrh číslo 33 - R.A.U., s.r.o
Návrh číslo 34 - Ing. arch. Miroslav Hrušovský
Návrh číslo 35 - Ing. arch. Martin Svoboda - AT ORIGIN
Návrh číslo 36 - Ing. arch. Pavel Klein - KT architekti
Konečné poradie návrhov podľa hlasovania poroty:
5 - 9:
10 - 12:
13 - 21:
22 - 36:
O výsledkoch rozhodovala porota v nasledovnom zložení:
Členovia:
Prof. Dr. Ing. arch. Henrieta Moravčíková
Ing. arch. Martin Jančok
Mgr. art. Tomáš Tokarčík
Ing. arch. Tibor Zelenický
Ing. arch.Viktor Šabík
Náhradníci:
Ing. arch. Milan Csanda,
autorizovaný architekt SKA, nezávislý od vyhlasovateľa
Ing. arch. Peter Mezei
závislý od vyhlasovateľa
Predpokladané investičné náklady na realizáciu stavby:
1 500 000 € bez DPH
Predpokladaná hodnota zákazky, ktorá bude zadávaná
v nadväzujúcom priamom rokovacom konaní:
152 132,63 € bez DPH
V prílohách nájdete zápis zo zasadnutia a hodnotenie poroty: