Advertorial

Okná Internorm za minuloročné ceny + hliníkový kryt zdarma!

Využite špeciálnu akciu Internorm: okná za minuloročné ceny a hliníkový kryt úplne zadarmo. Ponuka je časovo obmedzená!

Pozvánka na 2. ročník stavebného veľtrhu BigMarket na Slovensku

Na podujatí sa predstaví až 37 vystavovateľov - popredných dodávateľov stavebných materiálov a inovácií s prezentáciou...

Moderné plynové technológie: Efektivita a inovácie pre 21. storočie

Sumarizácia najdôležitejších inovácií, ktoré redefinujúcich využitie tohto energetického zdroja.

Utesňovanie spodných stavieb pomocou hydro-aktívnej fólie AMPHIBIA.

AMPHIBIA 3000 GRIP 1.3 od spoločnosti ATRO predstavuje modernú hydroizolačnú technológiu, ktorá spája vysokú odolnosť,...

Dekarbonizácia individuálneho vykurovania domácností – Green Deal evolučne a nie revolučne

Ambiciózne plány EK narazili na ekonomické možnosti domácností v jednotlivých členských štátoch –...

Minimalistické dvere IDEA – technická precíznosť a čistota prevedenia

IDEA DOOR od spoločnosti JAP prináša do interiéru čistý minimalistický vzhľad vďaka bezrámovému riešeniu a precíznej...

Dom s výhľadom na údolie, Dlouhý Most (ČR)

Kontinuita riešenia od vonkajšieho obkladu až po kovania a kľučky.

Schell Vitus – osvedčené riešenie pre sprchy a umývadlá vo verejnom sektore s viac ako desaťročnou tradíciou

Nástenné nadomietkové armatúry Vitus sú mimoriadne vhodné pre rýchlu a efektívnu...

Kompozitné okná predstavujú súčasnosť a budúcnosť

Okenné profily z kompozitného materiálu RAU-FIPRO X od spoločnosti Rehau sú v porovnaní s tradičnými plastovými profilmi mnohonásobne...

Myotis - stoly 2025

Najnovší sortiment stolov pre zariadenie interiérov...

Priemyselné sklenené priečky Dorsis Digero: svetelné rozhranie pre moderné interiéry

Spojenie moderného dizajnu, funkčnosti a svetla do harmonického architektonického prvku.

Význam prirodzeného svetla pre moderné a flexibilné pracovné prostredie

Kancelárska budova Baumit v slovinskom Trzine prešla premenou na moderné a udržateľné pracovisko. Architekti kládli dôraz...

Konferencia Xella Dialóg predstaví novinky a trendy v stavebníctve

Mottom šiesteho ročníku on-line konferencie odborníkov Xella Dialóg je Efektívny návrh budov 2025+: zmeny a riešenia

Murovací robot WLTR stavia svoj prvý dom na Slovensku

Robot WLTR predstavuje moderný prístup k murovaným konštrukciám. Vďaka automatizácii dokáže rýchlo, presne a bezpečne realizovať...

Nová éra bezpečnosti s I-tec Secure od Internorm

Okrem bezpečnosti majú okná aj elegantný vzhľad, pretože nie sú viditeľné žiadne uzamykacie časti kovania.

Hasičský polygón, Velké Poříčí

Realizácia, ktorá nezostala iba na úrovni naplnenia požadovaných technických parametrov.
Diela
Red 429.03.2020
14020+30
Hasičský polygón, Velké Poříčí
Autori: Ing. arch. Ivo Balcar, Ing. arch. Michal Ježek, Ing. arch. Aleš Krtička, Pavel VelichInvestor: ČR - HZS Královéhradeckého krajeInvestičný náklad: 1,68 mil. €Návrh: 2017 - 2018Realizácia: 2018 - 2019Adresa: Náchodská 530, Velké Poříčí, Česká republikaPublikované: 29. marec 2020

Objekt slúžiaci pre výcvik záchranných zložiek. Autori transformovali neobvyklé zadanie, do ekonomicky efektívnej a estetickej podoby. Štandardnú fasádu halových objektov striedajú ostro rezané plochy z pohľadového betónu, ktoré sú indikátorom funkčnej náplne a autorským podpisom zároveň.

Úvod - genéza

Učiliště ve Velkém Poříčí (UPO) dostalo v roku 2002 poverenie od generálneho riaditeľstva hasičského zboru, aby ako jediné v ČR odborne pripravovalo hasičov - inštruktorov pre prácu vo výške a nad voľnou hĺbkou. Dovtedy hasiči na výcvikové účely využívali prevažne opustené budovy, na hranici svojej životnosti. S tým však súviselo mnoho nevýhod a rizík. “Hasiči - lezci se proto zhruba před sedmi lety vydali do Francie do městečka Crolles u Grenoblu, kde si firma Petzl (přední výrobce vybavení pro lezce) vystavěla vzdělávací a výcvikové zařízení,” vysvetľkujú architekti. To je však primárne určené pre školenie horských záchranárov pôsobiacich v Alpách a priľahlých oblastiach. “Zde se tedy naši hasiči myšlenkově inspirovali, bylo však zapotřebí doslova vyvinout budovu a její jednotlivé součásti pro specifické účely všech tuzemských složek HZS, IZS a hasičů - lezců,” dopĺňajú autori.

K následnej tvorbe zadania boli prizvaní architekti a projektanti z Ateliéru Tsunami ako konzultanti pre architektonickú a stavebno-technickú stránku. “Na základě těchto nenahraditelných poznatků a následných mnoha společných jednáních s hasiči se základní koncept v mnoha verzích vyvíjel, až postupně vykrystalizoval v konkrétní architektonický návrh, projektovou dokumentaci a následně realizovanou budovu výcvikového polygonu. Neskromně se dá říci, že se jedná o unikátní realizaci výcvikového objektu nejen v České Republice, ale i v evropském měřítku,” približujú architekti genézu projektu.

Foto: Petr Košťál

Architektúra

“Architektonický a projektový tým si vytkl za cíl respektovat jasně definovaný účel a z něho odvozené mimořádné rozměry a proporce objektu, na druhou stranu ale v žádném případě nerezignovat na architektonické řešení dominantního objektu,” hovoria autori. Z dominantného vertikálneho kvádra výcvikovej haly, je na nároží orientovanom k ​​hlavnému vstupu do areálu výtvarne "odobratý" ostro rezaný objem. Takto komponované plochy z pohľadového betónu sú využité pre vonkajšiu lezeckú stenu, ktorá je tak zároveň jedným z najvýraznejších vonkajších indikátorov funkcie objektu. 

Foto: Petr Košťál
Foto: Petr Košťál
Foto: Petr Košťál

Nižší trakt charakterizuje cvičná strecha, ktorá je skladbou mnohých variantov strešných materiálov, či odhalenej konštrukcie krovu, slúžiacich pre výcvik zásahu v rôznorodých prostrediach. V tejto časti strechy sa nachádzajú ďalšie pätky, ktoré slúžia ako kotviace body. Návrh počíta s doplnením ďalších konštrukcií podľa aktuálnych potrieb výcviku, ktoré sa nepochybne budú v budúcnosti vyvíjať.

Pre čo najvernejší nácvik zásahov sú pripravené rôzne druhy i formy strešnej krytiny, vrátane prvkov opláštenia budovy...
Pre čo najvernejší nácvik zásahov sú pripravené rôzne druhy i formy strešnej krytiny, vrátane prvkov opláštenia budovy...Foto: Petr Košťál
Foto: Petr Košťál
Foto: Petr Košťál
Situácia
SituáciaAutor: ATELIER TSUNAMI

Prevádzkové a dispozičné riešenie

Základná skladba objektu - vzájomne prepojená horizontálna a vertikálna hala je doplnená o vystúpené zázemie, obsahujúce vstup, hygienu a sklady. 

Horizontálna hala plní funkciu univerzálneho výcvikového priestoru s možnosťou vjazdu hasičskej techniky. Je tu umiestnená rozbehová dráha pre klasickú hasičskú disciplínu -  zdolávanie veže. Vo vertikálnej veži sa nachádzajú všetky komponenty ako: lezecká stena výšky (výška 20 m), univerzálny objekt polygónu - priečkový a potrubný labyrint, studňová šachta, hasičská veža so zápichovým bazénom, komponenty pre trhacie skúšky - pádová veža.

Primárnym účelom stavby je výcvik a školenie profesionálnych hasičov. Zdokonaľovať sa tu budú môcť tiež dobrovoľní hasiči a zástupcovia ďalších zložiek IZS.

Objekt ako celok je teda navrhnutý tak, aby maximum vnútorných i vonkajších plôch slúžilo pre výcvikové aktivity. Na streche môžu prebiehať napríklad simulácie zásahov pri silnom vetre, alebo prívaloch snehu. Lezecká stena potom ponúka hneď niekoľko profilov, na ktorých môžu hasiči nacvičovať rôzne varianty činností (lezenie, zlaňovanie s nosidlami...). Na objekte sa nachádza množstvo prestupov, ktoré umožňujú simulovať aj komplikované zásahy, ktoré preveria koordináciu a spoluprácu  záchranárov.

Vnútri zariadenia sa nachádza okrem lezeckých stien aj vybavenie pre simulácie zásahov vo veľmi špecifických podmienkach. Nájdeme tu cvičnú studňovú šachtu alebo adaptabilné polygóny stiesnených priestorov. Sú to imitácie stavebných komponentov, kanalizácií, šácht, ale aj stiesnených prírodných priestorov, ktoré simulujú napríklad jaskyne, pričom sa dá časť bezpečne zaplaviť či zadymiť.  V prípade akýchkoľvek problémov je možné využiť núdzové vstupy, priestor je naviac monitorovaný kamerovým systémom.

Stavebné konštrukcie sú maximálne prispôsobené účelu objektu, tak aby umožňovali univerzálne istenie, prípadne dodatočné kotvenie výcvikových komponentov. “Pro ilustraci jsme například řešili požadavek na možnost instalace vrostlého stromu do podlahy pro tréninkový zásah,” hovoria architekti.

Stavebno-konštrukčné riešenie

Klíma nevykurovaného objektu zodpovedá vonkajším podmienkam. Prirodzené vetranie podporuje ideálny, komínový tvaru objektu, vonkajšie žalúzie zabraňujú prehrievaniu interiéru. 

Neobvyklá kombinácia železobetónového a oceľového skeletu reflektuje nielen nároky na univerzálne využitie priestoru, ale aj kotvenie komponentov či umiestnenie istenia. Z tohto dôvodu sú z vodostavebného betónu v pohľadovej kvalite navrhnuté všetky vonkajšie monolitické konštrukcie. V interiéri je rovnaký materiál použitý pri prvkoch umožňujúcich zatopenie vodou.

V rámci výstavby po zhotovení monolitů dvou věží - lezecké stěny a polygonu nastal zvláštní moment. Vznikla nádherná socha! (kterou později pohltilo opláštění fasádou a lezeckou stěnou v interiéru). Nestává se příliš často, kdy chcete ponechat stavbu rozestavěnou. Zde tomu tak bylo a proto dokládáme i fotografií ve fázi výstavby.

Foto: Petr Košťál

Vstupný modul


Železobetónový monolitický sendvič s vloženou tepelnou izoláciou z extrudovaného polystyrénu je prestropený vykonzolovanou železobetónovou doskou, ktorá kryje vstup. Stropná doska je podopretá oceľovými stĺpmi. Steny sú založené na základových pásoch, stĺpy na pätkách. Monolitické podlahové dosky s rozptýlenou výstužou, sú zrealizované v pohľadovej kvalite a prírodnej sivej farbe.


Výcvikový objekt - horizontálna hala


Prefabrikované železobetónové stĺpy skeletu sú votknuté do kalichov, ktoré nesú veľkopriemerové pilóty. Hala je prestropená železobetónovými predpätými panelmi. Požiadavku na variabilnú montáž výcvikových prvkov na streche objektu adresuje pole "pätkových" podpôr, ktoré sú nad strešným plášťom pripravené pre tieto účely, spoločne s odolným pochôdznym strešným plášťom, tvoreným betónovým dlaždicami na rektifikačných podložkách. Vonkajšia cvičná stena s cvičná strecha, s rôznymi variantmi strešných plášťov, je zhotovená ako ľahká. Je naviazaná na konštrukciu "výcvikového objektu 1". Výplňové murivo medzi stĺpmi haly (plynosilikátové tvárnice) je z vonkajšej strany zateplené fasádnymi panelmi s minerálnou vlnou. Prevádzkový celok charakterizuje kombinácia antracitovej (RAL7016) a červenej (RAL3000) farby. Pôdorysné rozmery haly sú 25,5 m x 15,1 m, výška 8,5 m.


Výcvikový objekt - vertikálna hala


Oceľový skelet kombinuje masívne valcované prvky s priehradovými nosníkmi. Oceľové stĺpy sú kotevné k základovým pätkám, ktoré sú opäť podopreté veľkopriemerovými pilótami. Cvičný "polygón stiesnených priestorov" je zrealizovaný ako stenová železobetónová monolitická vostavba. Interiérové ​​stropy a prvky v tejto vostavbe autori “vyskladali” zpreglejkových dosiek, vsadených do oceľových demontovateľných rámov. Vonkajší plášť objektu tvoria prevažne ľahké fasádne panely, zateplených minerálnou vlnou. Vonkajšie lezecké steny sú odliate ako železobetónový monolitický sendvič, s vloženou tepelnou izoláciou z extrudovaného polystyrénu, aby mohli slúžiť pre výcvik a kotvenie prvkov zo strany  interiéru aj exteriéru. Stropná doska je zrealizovaná ako trapézový plech s nadbetonávkou, konštrukcie podlahy ako monolitické dosky s rozptýlenou výstužou. V prípade vertikálnej haly dopĺňa červené fasádne panely (RAL3000) pohľadový betón. Rozmery haly sú 15,9 m x18,1 m, výška 21,2 m.

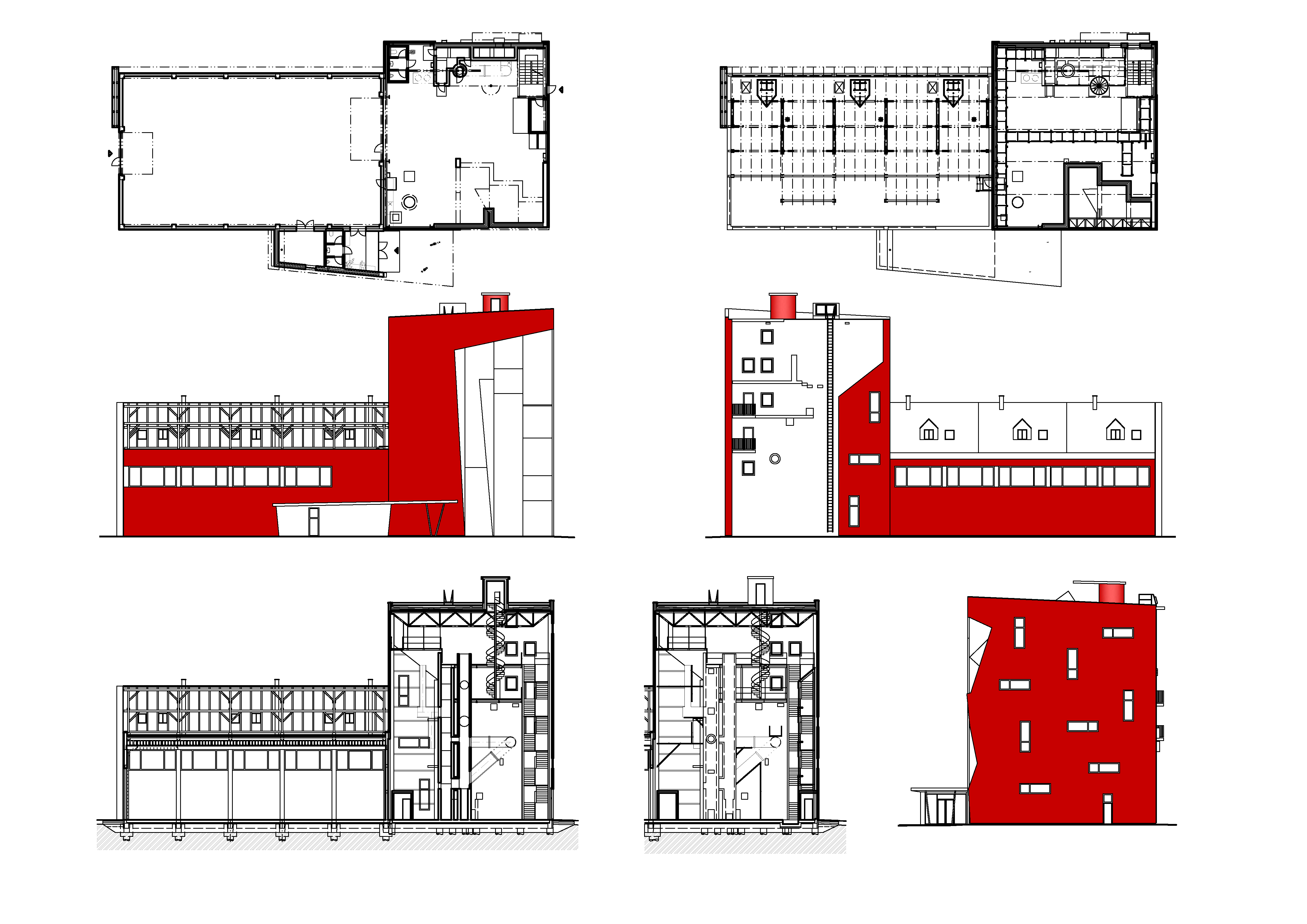
Pôdorysy,rezy a pohľady
Pôdorysy,rezy a pohľadyAutor: ATELIER TSUNAMI
Pôdorys 1.N.P.
Pôdorys 1.N.P.Autor: ATELIER TSUNAMI
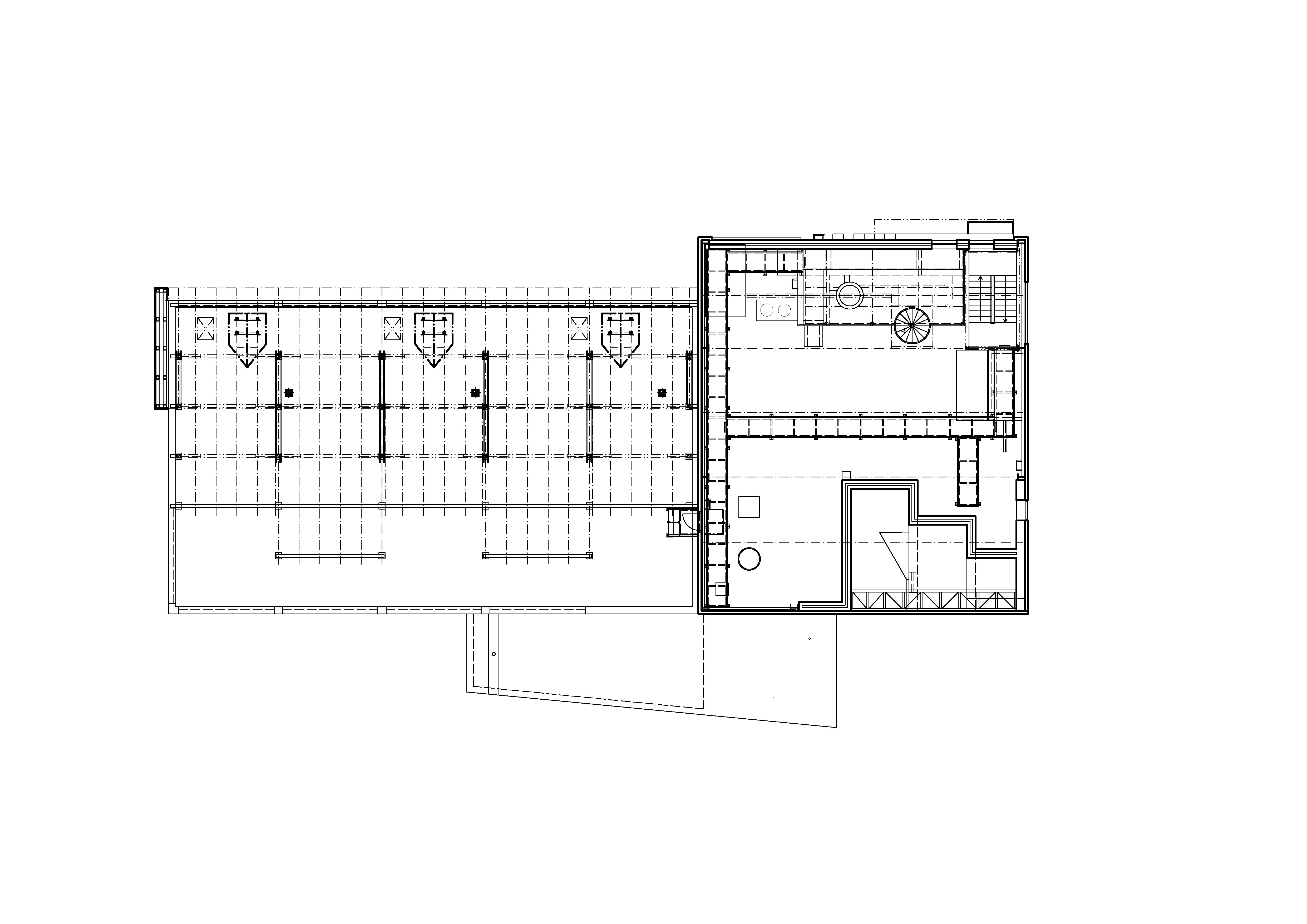
Pôdorys 2.N.P.
Pôdorys 2.N.P.Autor: ATELIER TSUNAMI
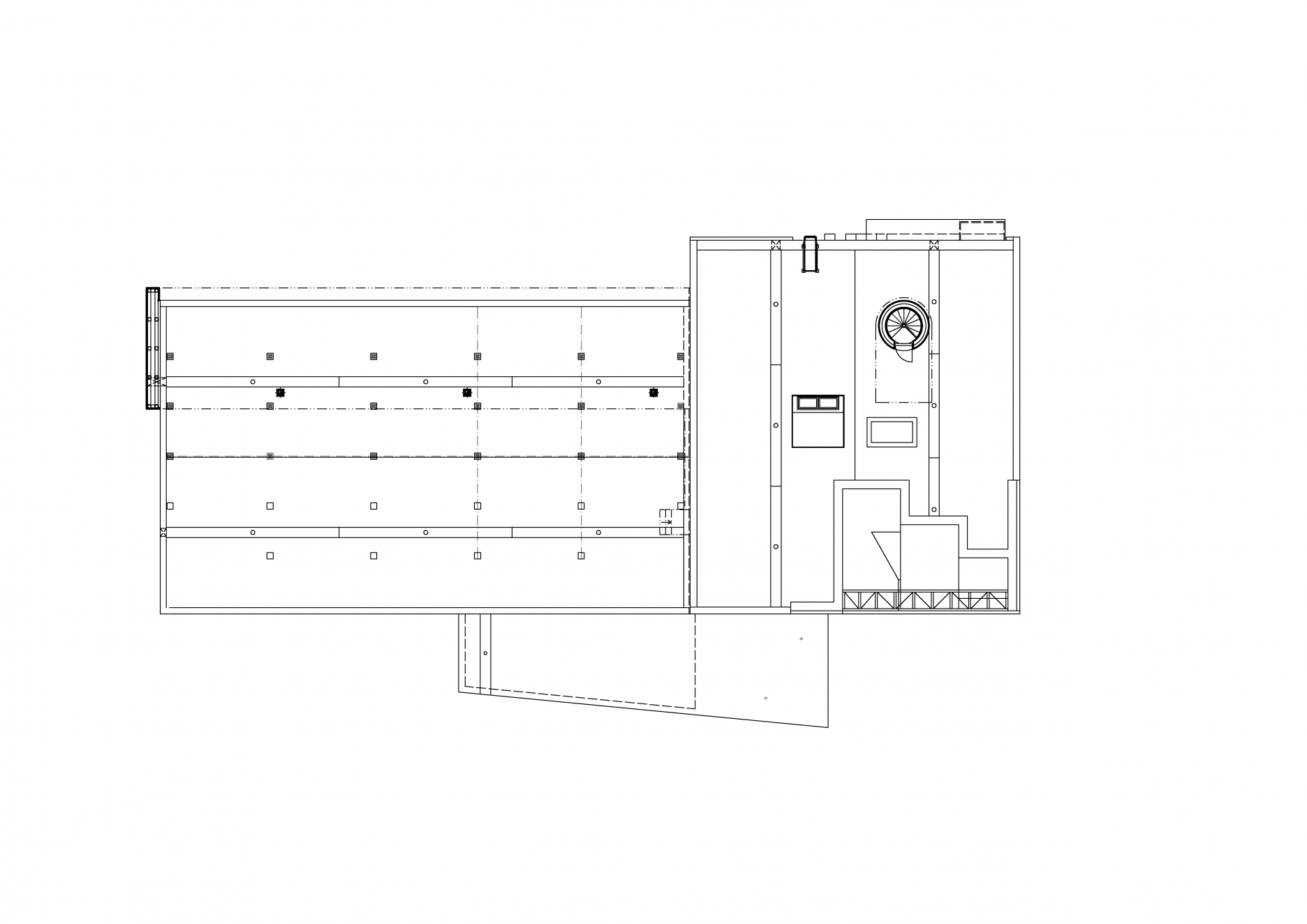
Pôdorys 3.N.P.
Pôdorys 3.N.P.Autor: ATELIER TSUNAMI
Rezy 1,2
Rezy 1,2Autor: ATELIER TSUNAMI
Rez 3 + pôdorysy časti vybavenia polygónu
Rez 3 + pôdorysy časti vybavenia polygónuAutor: ATELIER TSUNAMI
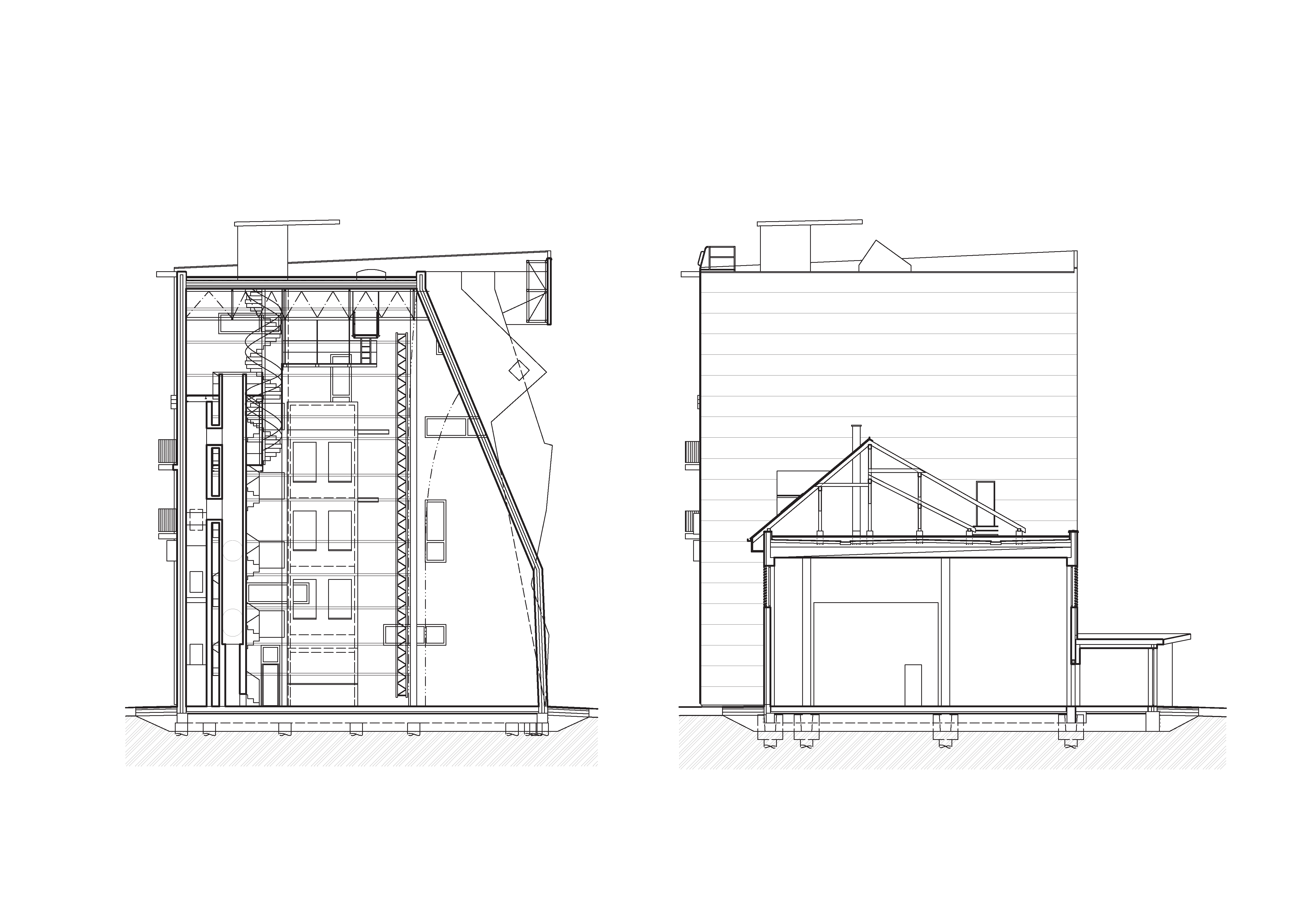
Rezy A,C
Rezy A,CAutor: ATELIER TSUNAMI
Rez B
Rez BAutor: ATELIER TSUNAMI
Pohľady S,J
Pohľady S,JAutor: ATELIER TSUNAMI
Pohľad východný
Pohľad východnýAutor: ATELIER TSUNAMI
Pohľad západný
Pohľad západnýAutor: ATELIER TSUNAMI
Foto: Petr Košťál
Foto: Petr Košťál

Podklady: ATELIER TSUNAMI

Poloha diela

Ing. arch. Ivo Balcar
Ing. arch. Michal Ježek
Ing. arch. Aleš Krtička
Pavel Velich

Súvisiace články

Vložené
23. marec 2020
0
1402
Hlavný obsahHlavný obsah
Čakajte prosím