Advertorial

Pozvánka na 2. ročník stavebného veľtrhu BigMarket na Slovensku

Na podujatí sa predstaví až 37 vystavovateľov - popredných dodávateľov stavebných materiálov a inovácií s prezentáciou...

Hotel Hirschen Spa House, Rakúsko

Novotvar v prostredí alpskej obce.

Vytvorte si kúpeľňu snov: dizajnové riešenie od značky hansgrohe

Hansgrohe - prémiová značka kúpeľňových riešení, ponúka nadčasový dizajn, technickú precíznosť a udržateľné inovácie...

Okná Internorm za minuloročné ceny + hliníkový kryt zdarma!

Využite špeciálnu akciu Internorm: okná za minuloročné ceny a hliníkový kryt úplne zadarmo. Ponuka je časovo obmedzená!

Moderné plynové technológie: Efektivita a inovácie pre 21. storočie

Sumarizácia najdôležitejších inovácií, ktoré redefinujúcich využitie tohto energetického zdroja.

Utesňovanie spodných stavieb pomocou hydro-aktívnej fólie AMPHIBIA.

AMPHIBIA 3000 GRIP 1.3 od spoločnosti ATRO predstavuje modernú hydroizolačnú technológiu, ktorá spája vysokú odolnosť,...

Dekarbonizácia individuálneho vykurovania domácností – Green Deal evolučne a nie revolučne

Ambiciózne plány EK narazili na ekonomické možnosti domácností v jednotlivých členských štátoch –...

Minimalistické dvere IDEA – technická precíznosť a čistota prevedenia

IDEA DOOR od spoločnosti JAP prináša do interiéru čistý minimalistický vzhľad vďaka bezrámovému riešeniu a precíznej...

Dom s výhľadom na údolie, Dlouhý Most (ČR)

Kontinuita riešenia od vonkajšieho obkladu až po kovania a kľučky.

Schell Vitus – osvedčené riešenie pre sprchy a umývadlá vo verejnom sektore s viac ako desaťročnou tradíciou

Nástenné nadomietkové armatúry Vitus sú mimoriadne vhodné pre rýchlu a efektívnu...

Kompozitné okná predstavujú súčasnosť a budúcnosť

Okenné profily z kompozitného materiálu RAU-FIPRO X od spoločnosti Rehau sú v porovnaní s tradičnými plastovými profilmi mnohonásobne...

Myotis - stoly 2025

Najnovší sortiment stolov pre zariadenie interiérov...

Priemyselné sklenené priečky Dorsis Digero: svetelné rozhranie pre moderné interiéry

Spojenie moderného dizajnu, funkčnosti a svetla do harmonického architektonického prvku.

Význam prirodzeného svetla pre moderné a flexibilné pracovné prostredie

Kancelárska budova Baumit v slovinskom Trzine prešla premenou na moderné a udržateľné pracovisko. Architekti kládli dôraz...

Konferencia Xella Dialóg predstaví novinky a trendy v stavebníctve

Mottom šiesteho ročníku on-line konferencie odborníkov Xella Dialóg je Efektívny návrh budov 2025+: zmeny a riešenia

Hudobná škola Wolfurt, Rakúsko

Detail, precíznosť a materiály v ich prirodzenej podobe.
Diela
Red 303.07.2018
9690+18
Hudobná škola Wolfurt, Rakúsko
Autori: Dipl.-Ing. Josef Fink, Dipl.-Ing. Markus Thurnher, MSc. Katharina Berchtold, Dipl.-Ing. Sabine Leins, Dipl.-Ing. André Sallmayer, Dipl.-Ing. Beatrix Thurnher, Luzia EugsterRealizácia: 2015 - 2017Adresa: Sternenpl. 7, Wolfurt, RakúskoPublikované: 3. júl 2018

Na prvý pohľad nie zlé. Na druhý ešte lepšie. Slušná verejná stavba. Jej pravé kvality vyniknú pri podrobnejšom preskúmaní. Toto máme celkom radi. “Hrubá stavba” je definitívnou architektúrou. Nič netreba pridávať. Nič skrývať. Architektonické i technické detaily sú dopredu precízne premyslené. Čistý geometrický koncept je zrealizovaný s mimoriadnou dôslednosťou. Betón je betónom, drevo drevom, sklo sklom, tehla tehlou a použité kovové (mosadzné) prvky sú takisto priznané v ich naturálnej podobe.

Žeby príklad pre slovenské podmienky, že aj verejné stavby môžu byť “robené poriadne”, premyslene, s dôrazom na kvalitu? Alebo radšej “rýchlo a lacno”?

V osemtisícovej obci Wolfurt, v blízkozti Bregenzu v rakúskom Vorlarlbersku nedávno vznikla zaujímavá hudobná škola a knižnica. Od roku 2014, keď bolo odbremenené centrum sídla od intenzívnej dopravy novým tunelom, začal rozvoj malého “športového a kultúrneho jadra”. Jeho súčasťou je aj nová hudobná škola, ktorej fasáda je orientovaná pozdĺž “hlavnej ulice”. Objekt je vzdialený asi pol kilometra od historického centra. Na prvý pohľad by sa mohlo zdať, že fasáda orientovaná “do cesty” rozsiahlym zasklením nie je ideálnym riešením. Zmena organizácie dopravy však umožnila zaviesť v centrálnej zóne rýchlostný limit 30 km/h, čím sa stal priestor atraktívny a bezpečný aj pre chodcov.

Konzervatórium a budova knižnice reaguje na novú situáciu. Západná fasáda je v pravidelnom rastri členená na pätnásť identických polí so štvorcovými oknami tried (skúšobní). Atraktívne priečelie orientované do ulice tak hlavne vo večerných hodinách pôsobí ako výklad, ktorý navonok vystavuje svoj dynamický obsah. Dôležitým "mestotvorným" prvkom je aj transparentný parter s verejnou knižnicou a zapustené “podlubie” ktoré plní funkciu krytej zastávky hromadnej dopravy a slúži aj ako parkovisko bicyklov.

Foto: Martin Mischkulnig
Situácia
SituáciaAutor: Fink Thurnher

Zateplená železobetónová stavba je z vonkajšej strany obložená kontrastnou dvojicou materiálov. Ich skladba bola zvolená hlavne vzhľadom na ich trvácnosť. Drobnej textúre lícovej tehly sekunduje veľkoplošný obklad z leštenej mosadze. Zrkadliace “zlaté” platne vytvárajú hlavne vo večerných hodinách na ulici atraktívnu kulisu. Keramické lícovky s pozdĺžnym formátom 490 x 52 mm oddeľuje od tepelnej izolácie odvetraná “vzduchová medzera”.

Foto: Martin Mischkulnig
Foto: Martin Mischkulnig

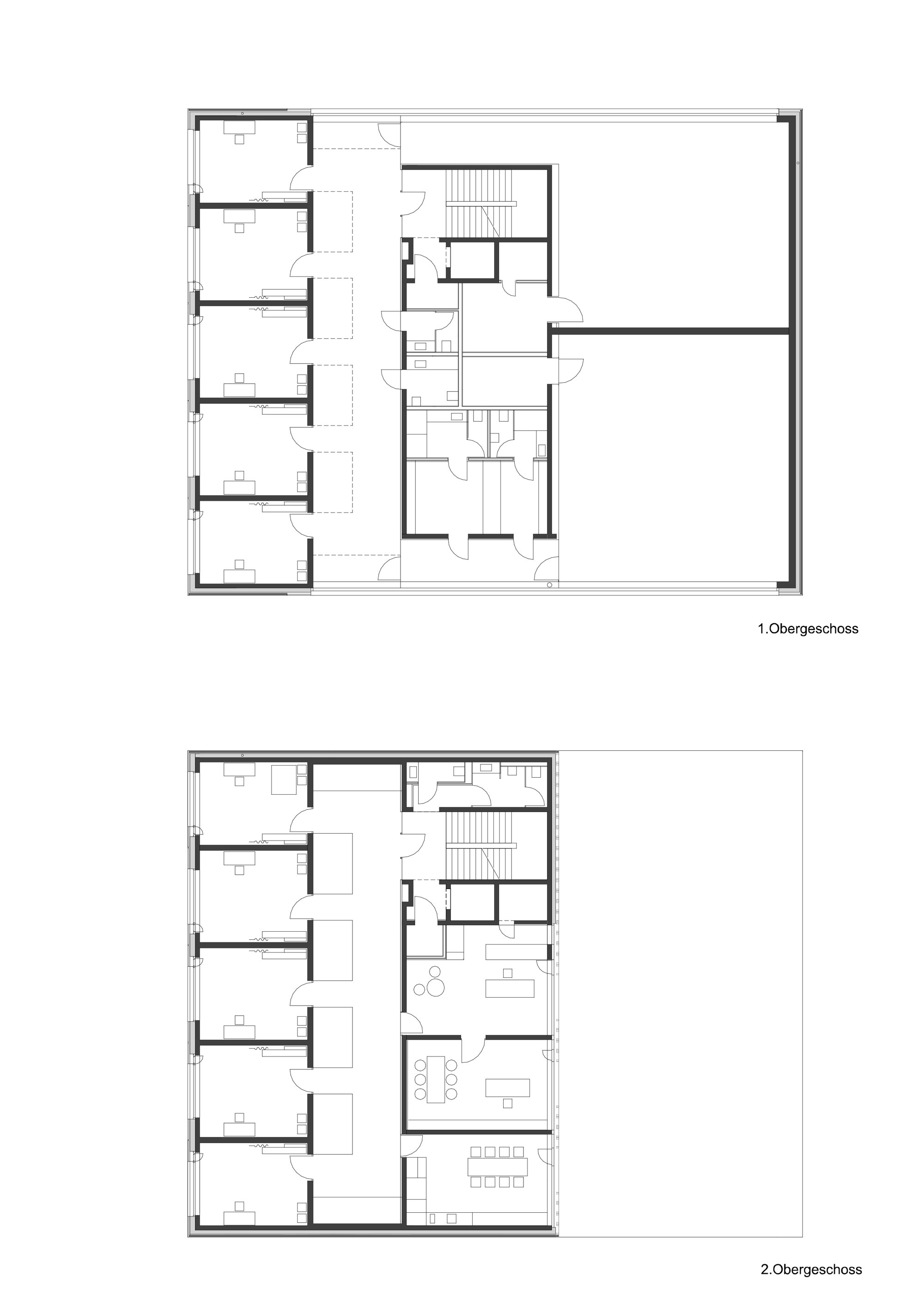
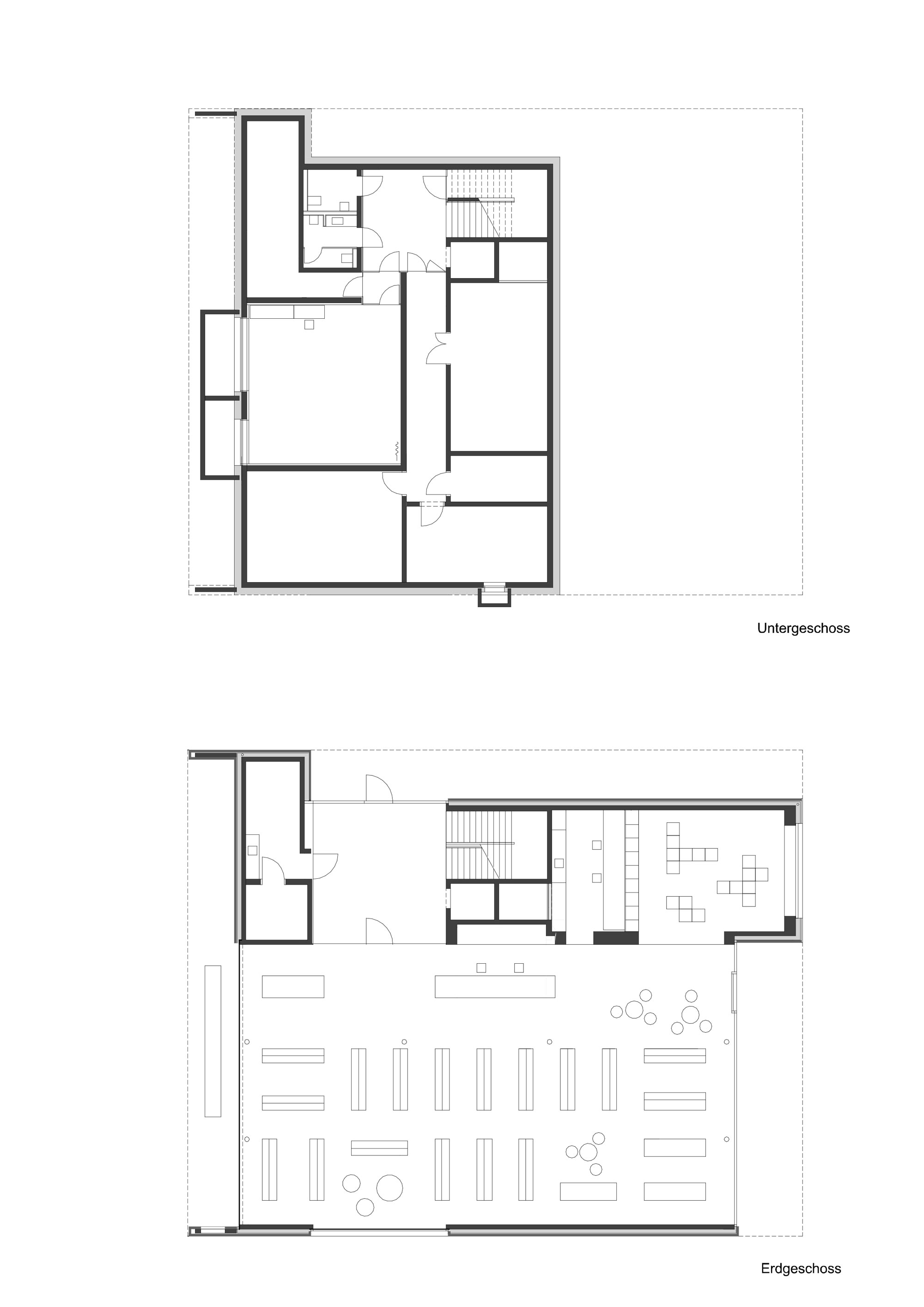
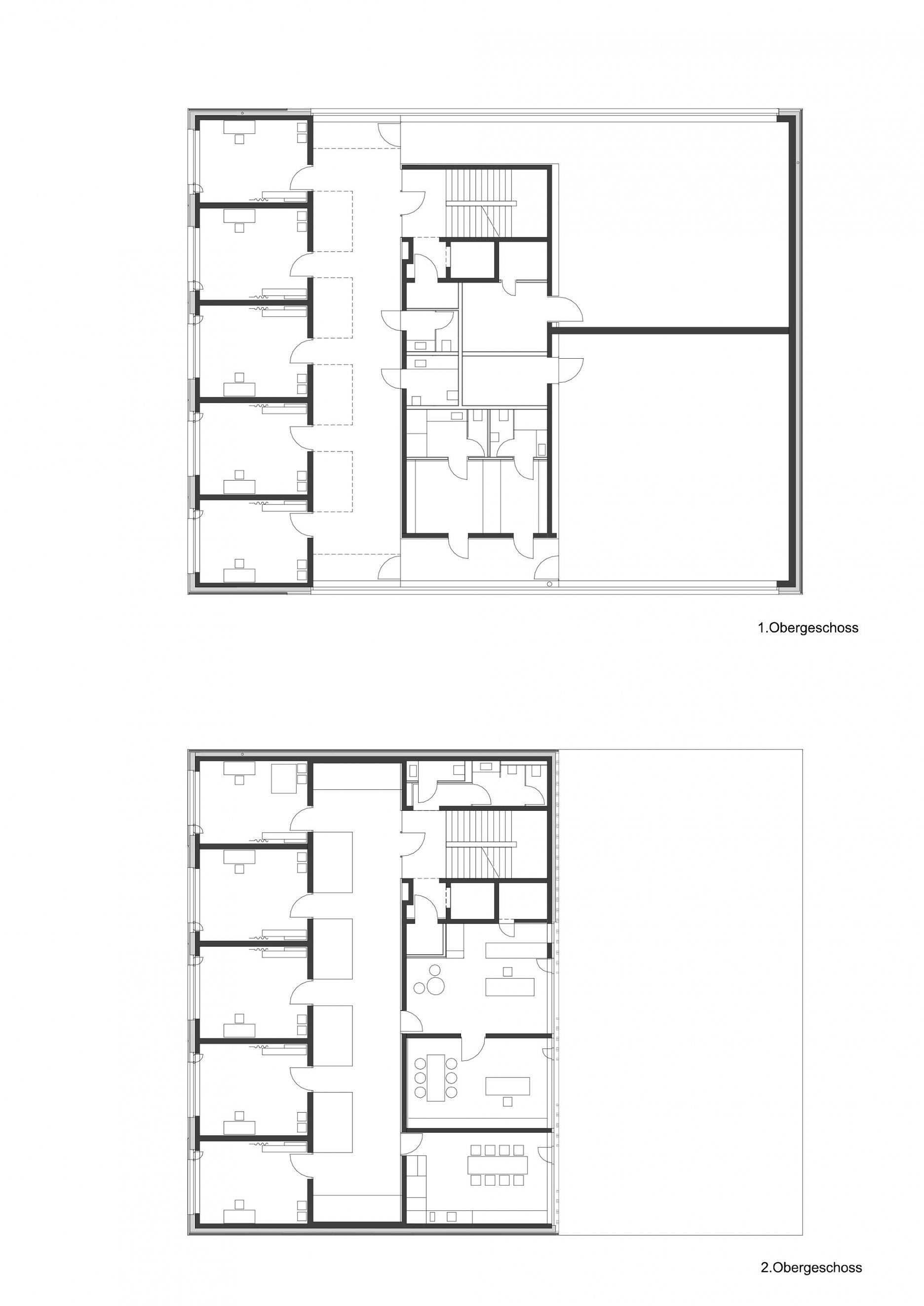
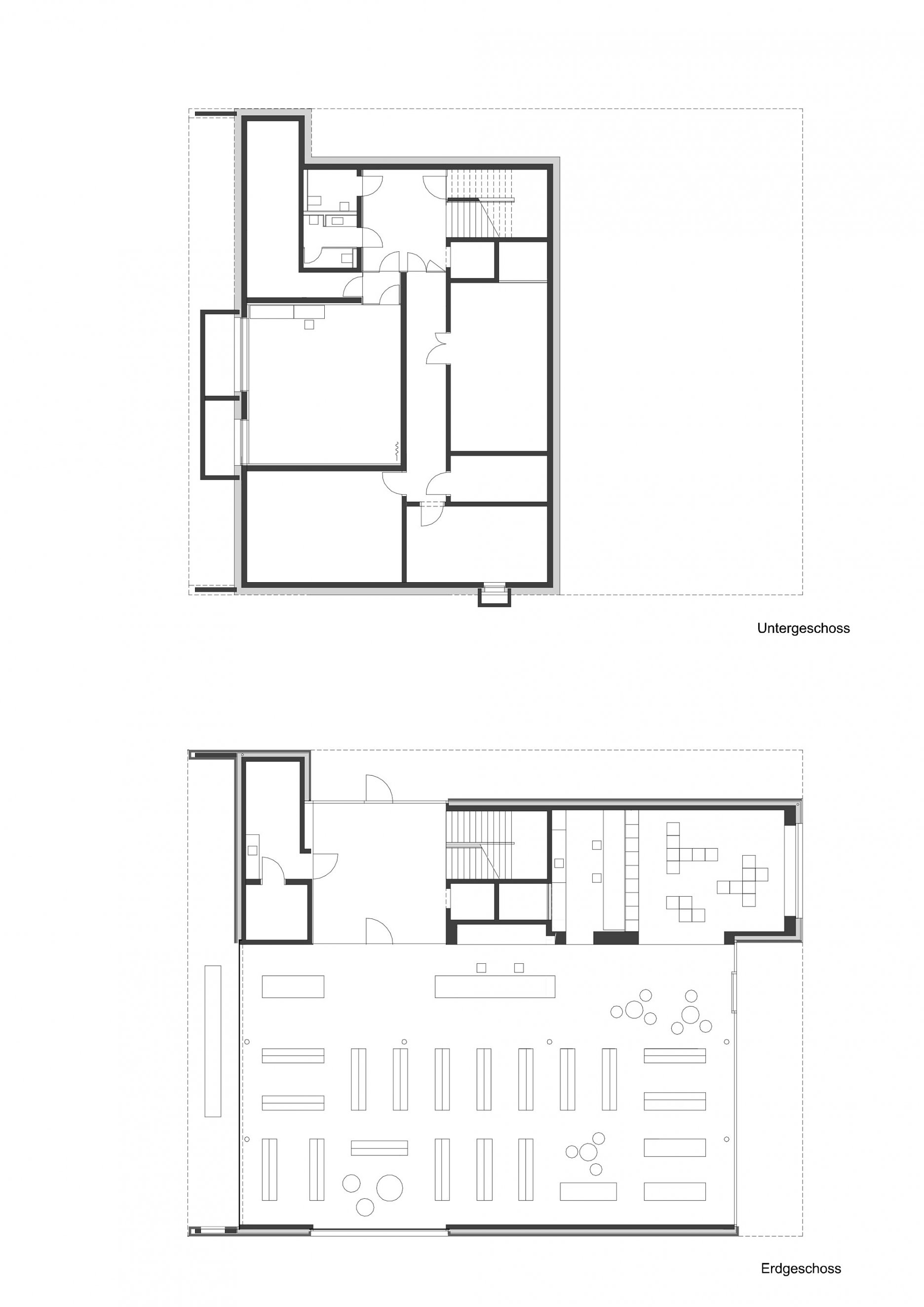
Funkčne je budova členená po vertikále. Knižnica je na prízemí, konzervatórium na horných troch podlažiach. Zapustená terasa spája knižnicu s prednáškovou sálou a záhradou na východe. Ďalšie “vyrezanie” na severnej fasáde vedie návštevníkov do vstupných priestorov. Na pomerne priestrannú halu priamo nadväzuje dvojramenné schodisko, ktoré vedie na poschodie. Tu sa nachádzajú dve veľké (koncertné) sály, ktoré sa “prejavujú” na východnom priečelí ako rozsiahla transparentná plocha ohraničená mosadzným “rámom”. Menšie hudobné triedy sú orientované do ulice. Obdobná priestorová skladba pokračuje aj na vyšších podlažiach, avšak s tým, že veľké sály tu absentujú. Dispozícia je skrátená o jeden modul.

Pôdorys 1. PP a 1. NP
Pôdorys 1. PP a 1. NPAutor: Fink Thurnher
Pôdorys 2. NP a 3. NP
Pôdorys 2. NP a 3. NPAutor: Fink Thurnher
Pôdorys 4. NP a rez
Pôdorys 4. NP a rezAutor: Fink Thurnher

Ako centrálny spojovací prvok funguje vertikálny foyer, ktorý prebieha cez vyššie podlažia. Denné svetlo do prevýšeného priestoru vstupuje cez strešný svetlík. Galéria je pretkaná premostením, ktoré prepája prístupové chodby s jednotlivými učebňami. Tieto platformy súčasne slúžia ako oddychový a zhromažďovací priestor.

Foto: Martin Mischkulnig
Foto: Martin Mischkulnig
Foto: Martin Mischkulnig
Foto: Martin Mischkulnig

Monolitická betónová konštrukcia stavby je v značnej miere priznaná aj v interiéri. Potrebnú akustiku v spoločných priestoroch, ako aj v jednotlivých učebniach zabezpečujú podlahy, roštové stropy a “pílovité” obklady stien, ktoré sú vyhotovené z tvrdého dubového dreva bez ďalšej povrchovej úpravy.

Foto: Martin Mischkulnig
Foto: Martin Mischkulnig
Foto: Martin Mischkulnig
Foto: Martin Mischkulnig
Foto: Martin Mischkulnig

Vo Voralbersku je už takmer štandardom energetická efektívnosť objektu v štandarde “pasívneho domu”. Dobrá tepelná izolácia a vzduchotesnosť obvodových konštrukcií zabezpečuje tepelné straty na úrovni 18 kWh/m²a. Vetranie s rekuperáciou, nízkoteplotné vykurovanie a solárne panely na streche budovy dopĺňajú energetický koncept stavby.

Podklady: Robert Pintér, Stredisko medi

Poloha diela

Dipl.-Ing. Josef Fink
Dipl.-Ing. Markus Thurnher
MSc. Katharina Berchtold
Dipl.-Ing. Sabine Leins
Dipl.-Ing. André Sallmayer
Dipl.-Ing. Beatrix Thurnher
Luzia Eugster

Súvisiace články

Vložené
3. júl 2018
0
969
Hlavný obsahHlavný obsah
Čakajte prosím