Advertorial

Hotel Hirschen Spa House, Rakúsko

Novotvar v prostredí alpskej obce.

Vytvorte si kúpeľňu snov: dizajnové riešenie od značky hansgrohe

Hansgrohe - prémiová značka kúpeľňových riešení, ponúka nadčasový dizajn, technickú precíznosť a udržateľné inovácie...

Okná Internorm za minuloročné ceny + hliníkový kryt zdarma!

Využite špeciálnu akciu Internorm: okná za minuloročné ceny a hliníkový kryt úplne zadarmo. Ponuka je časovo obmedzená!

Pozvánka na 2. ročník stavebného veľtrhu BigMarket na Slovensku

Na podujatí sa predstaví až 37 vystavovateľov - popredných dodávateľov stavebných materiálov a inovácií s prezentáciou...

Moderné plynové technológie: Efektivita a inovácie pre 21. storočie

Sumarizácia najdôležitejších inovácií, ktoré redefinujúcich využitie tohto energetického zdroja.

Utesňovanie spodných stavieb pomocou hydro-aktívnej fólie AMPHIBIA.

AMPHIBIA 3000 GRIP 1.3 od spoločnosti ATRO predstavuje modernú hydroizolačnú technológiu, ktorá spája vysokú odolnosť,...

Dekarbonizácia individuálneho vykurovania domácností – Green Deal evolučne a nie revolučne

Ambiciózne plány EK narazili na ekonomické možnosti domácností v jednotlivých členských štátoch –...

Minimalistické dvere IDEA – technická precíznosť a čistota prevedenia

IDEA DOOR od spoločnosti JAP prináša do interiéru čistý minimalistický vzhľad vďaka bezrámovému riešeniu a precíznej...

Dom s výhľadom na údolie, Dlouhý Most (ČR)

Kontinuita riešenia od vonkajšieho obkladu až po kovania a kľučky.

Schell Vitus – osvedčené riešenie pre sprchy a umývadlá vo verejnom sektore s viac ako desaťročnou tradíciou

Nástenné nadomietkové armatúry Vitus sú mimoriadne vhodné pre rýchlu a efektívnu...

Kompozitné okná predstavujú súčasnosť a budúcnosť

Okenné profily z kompozitného materiálu RAU-FIPRO X od spoločnosti Rehau sú v porovnaní s tradičnými plastovými profilmi mnohonásobne...

Myotis - stoly 2025

Najnovší sortiment stolov pre zariadenie interiérov...

Priemyselné sklenené priečky Dorsis Digero: svetelné rozhranie pre moderné interiéry

Spojenie moderného dizajnu, funkčnosti a svetla do harmonického architektonického prvku.

Význam prirodzeného svetla pre moderné a flexibilné pracovné prostredie

Kancelárska budova Baumit v slovinskom Trzine prešla premenou na moderné a udržateľné pracovisko. Architekti kládli dôraz...

Konferencia Xella Dialóg predstaví novinky a trendy v stavebníctve

Mottom šiesteho ročníku on-line konferencie odborníkov Xella Dialóg je Efektívny návrh budov 2025+: zmeny a riešenia

Experimentárium Hellerup, Dánsko

Nenávratná investícia z verejných zdrojov, napriek tomu však dobre uložené peniaze.
Diela
Red 302.02.2018
9050+14
Experimentárium Hellerup, Dánsko
Autori: Mikkel Frost, Carsten Primdahl, Kolja NielsenZastavaná plocha: 26,850 m2Návrh: 2011 - 2014Realizácia: 2014 - 2017Adresa: Tuborg Havnevej , Hellerup, DánskoPublikované: 2. február 2018

Experimentárium - vedecké a vzdelávacie centrum sa nachádza na mieste bývalého závodu na spracovanie nealkoholických nápojov pivovaru Tuborg, na predmestí Kodane. Budova plničky bola postavená v prvých rokoch 20. storočia. V roku 1932 bola vybudovaná hlavná výrobná hala, ktorá vznikla prestrešením severného a južného krídla pivovaru. Svetlo sa do výrobných priestorov dostávalo cez rozmerný svetlík. Ľahkú oceľovú konštrukciu navrhol stavebný inžinier Christen Ostenfeldt. Produkcia sýtených nápojov v hale bola prerušená v priebehu 80. rokov. Stará plnička prešla rekonštrukciou, a od roku 1991 slúži ako Experimentárium. Zaujímavosťou je, že veľká časť prostriedkov na konverziu priemyselnej pamiatky bola vyzbieraná prostredníctvom fundraisingu. Otvorenie vedeckého a vzdelávacieho centra vtedy prebiehalo za účasti kráľovnej.

Transformácia starého zariadenia na plnenie do fliaš prebiehala podľa návrhu architekta Erika Møllera. Dispozícia budov bola prispôsobená pre potreby moderného “výstavníctva”, miesto tu našlo aj auditórium s kapacitou 250 osôb. V prvej fáze projektu sa podarilo zachovať robustnosť a výraz starej plničky.

Potreba zväčšenia plochy expozície a prispôsobenie sa novým formám prezentácie, súčasne zo zvýšením energetickej efektívnosti však diktovali potrebu ďaľšieho rozšírenia stavby. Na novú podobu centra bola vyhlásená medzinárodná architektonická súťaž, ktorú v roku 2011 vyhral dánsky ateliér Cebra. Rozšírenie expozície bolo determinované pôdorysom historickej budovy.

Víťazný návrh prišiel s myšlienkou situovania nových funkcií do “boxov” ktoré sú umiestnené na úrovni strechy pôvodnej budovy (nadstavba je nesená nezávislým nosným systémom - vloženým betónovým a oceľovým skeletom). Zámerom autorov bolo “vytvoriť dynamickú štruktúru, ktorá odzrkadľuje experimentálnosť a rozmanitosť funkcie budovy”.

Experimentárium - uličný pohľad.
Experimentárium - uličný pohľad.Foto: Adam Mørk
Kontrast starého a nového. Perforácia fasádnych panelov znázorňuje prúdenie v kvapalinách.
Kontrast starého a nového. Perforácia fasádnych panelov znázorňuje prúdenie v kvapalinách.Foto: Adam Mørk
Pohľad na fasádu od hlavného vstupu. Leštené stropné panely zrkadlia verejný priestor.
Pohľad na fasádu od hlavného vstupu. Leštené stropné panely zrkadlia verejný priestor.Foto: Adam Mørk

Priehradová oceľová konštrukcia boxov umožňuje vnútornú náplň prostredníctvom rozmerných presklených plôch komunikovať aj na vonok, čo bola aj jedna z požiadaviek zadania. Nové konštrukcie opláštené hliníkovými perforovanými hliníkovými panelmi mali byť podľa autorov výrazne odlíšené od pôvodnej stavby. Tu je však slabina silného architektonického gesta. Zaniká pôvodná forma a architektonický výraz tehlového priemyselného objektu a elegantného prestropenia výrobnej haly.

Reorganizácia prevádzky si vyžiadala vloženie nových podlaží, pričom však vertikalita haly ostala zachovaná prostredníctvom dvoch vnútorných átrií. Na streche vznikla aj nová terasa vhodná na celoročné využitie. Celková plocha Experimentária sa zdvojnásobila. V súčasnosti disponuje priestormi pre 16 interaktívnych výstav.

Koncept na autorskej skici.
Koncept na autorskej skici.Autor: Cebra
Schematický rezopohľad
Schematický rezopohľadAutor: Cebra
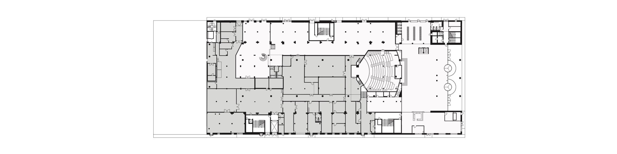
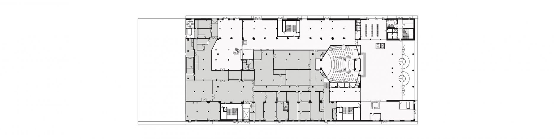
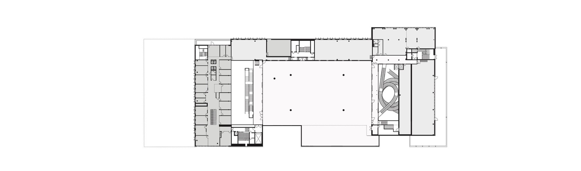
Pôdorys 1. NP.
Pôdorys 1. NP.Autor: Cebra
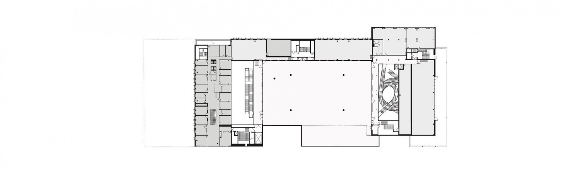
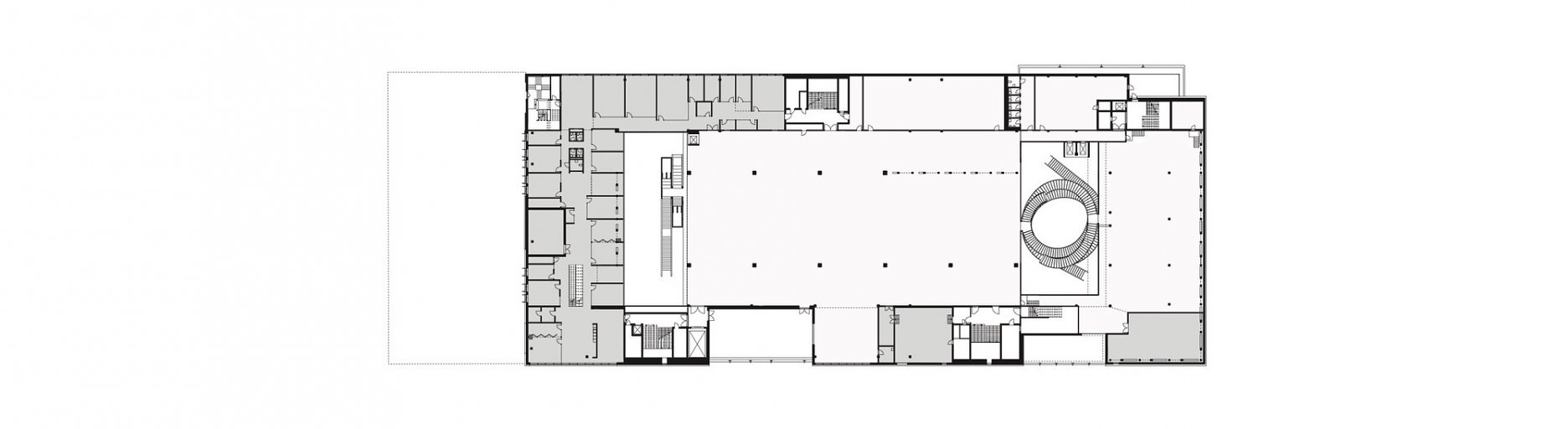
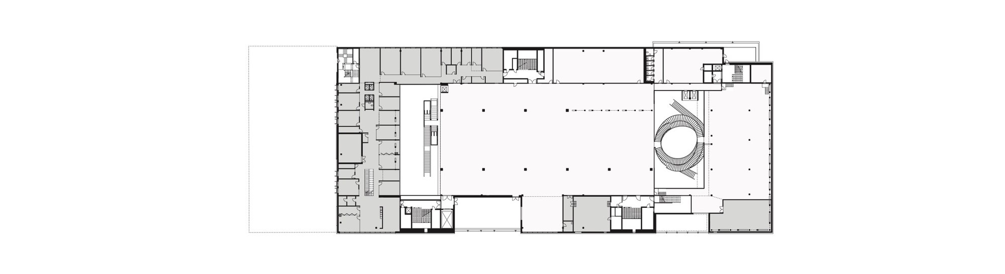
Pôdorys 2. NP.
Pôdorys 2. NP.Autor: Cebra
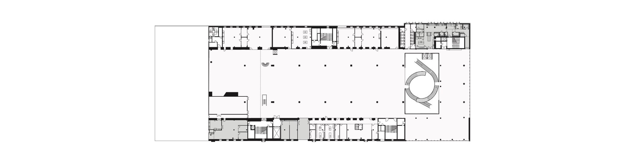
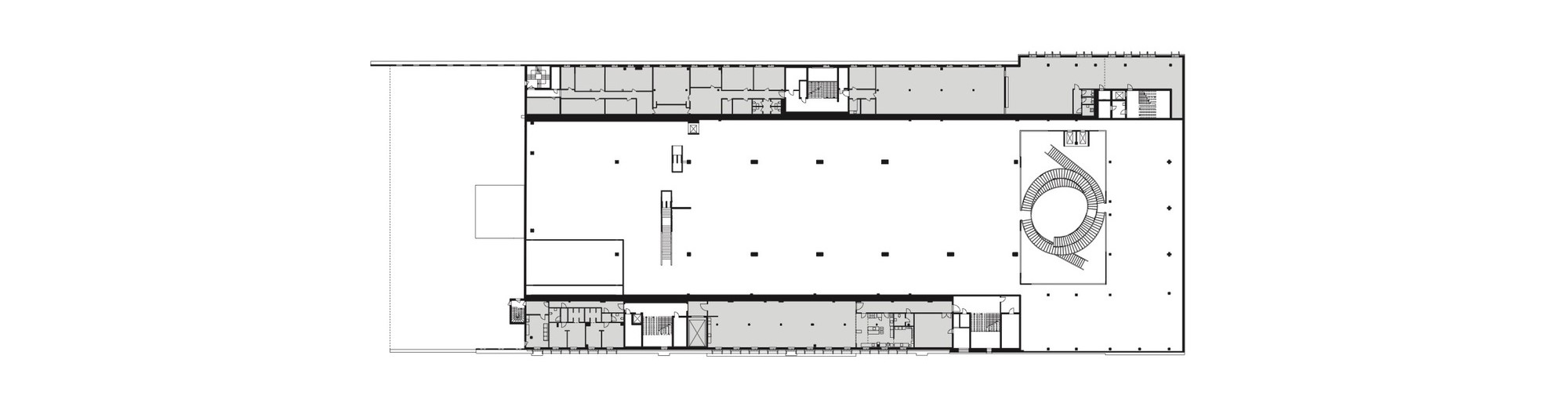
Pôdorys 3. NP.
Pôdorys 3. NP.Autor: Cebra
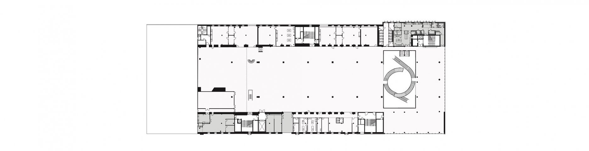
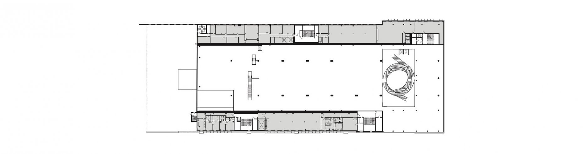
Pôdorys 4. NP.
Pôdorys 4. NP.Autor: Cebra
Pôdorys 5. NP.
Pôdorys 5. NP.Autor: Cebra
Rezy.
Rezy.Autor: Cebra

Ústredným motívom v interiéri, ktorý je viditeľný hneď pri vstupe do budovy je monumentálne špirálové schodisko, ktoré podľa slov architektov abstraktne stvárňujú dvojzávitnicu DNA. Tvarovanie schodiska umožnilo vytvoriť tuhý priestorový nosník, ktorý je zváraný z plochých oceľových segmentov a nepotrebuje dodatočné vertikálne opory. Konštrukcia je kotvená len na štyroch poschodiach, ktoré zároveň vertikálna komunikácia prepája. Oceľová kostra schodiska váži 160 ton. Vonkajší plášť a pohľadovú vrstvu tvorí efektný obklad z leštenej medi. Na opláštenie sto metrov dlhého schodiska bolo potrebných desať ton tohto materiálu. Vzdelávaciu funkciu budovy sa snažili architekti reflektovať aj na fasáde, kde perforácia znázorňuje prúdenie kvapalín. Je až neuveriteľné že, objekt s takýmto zameraním a rozsahom dokáže byť financovaný z verejných zdrojov.

Pohľad hore zo vstupnej haly.
Pohľad hore zo vstupnej haly.Foto: Adam Mørk
Skulpturálne schodisko dominuje átriu.
Skulpturálne schodisko dominuje átriu.Foto: Adam Mørk
Leštené medené panely vážia spolu 10 ton.
Leštené medené panely vážia spolu 10 ton.Foto: Adam Mørk
U profil schodiska zabezpečuje priestorovú tuhosť. Celková dĺžka je 100 metrov.
U profil schodiska zabezpečuje priestorovú tuhosť. Celková dĺžka je 100 metrov.Foto: Adam Mørk
Priestorový tvar prepája všetky štyri podlažia.
Priestorový tvar prepája všetky štyri podlažia.Foto: Adam Mørk
Zo schodiska je možné sledovať pestrú funkčnú náplň budovy.
Zo schodiska je možné sledovať pestrú funkčnú náplň budovy.Foto: Adam Mørk
Dvojitá špirála ako odkaz na vzdelávaciu funkciu bodovy.
Dvojitá špirála ako odkaz na vzdelávaciu funkciu bodovy.Foto: Adam Mørk
Medené panely zrkadlia dianie v átriu.
Medené panely zrkadlia dianie v átriu.Foto: Adam Mørk
Interaktívna Expozícia.
Interaktívna Expozícia.Foto: Adam Mørk
Druhé átrium s nožnicovým schodiskom.
Druhé átrium s nožnicovým schodiskom.Foto: Adam Mørk
Fotografia z priestoru schodiska.
Fotografia z priestoru schodiska.Foto: Adam Mørk

Fotografie priemyselného objektu pred rekonštrukciou:

Objekty plničky pred rekonštrukciou.
Objekty plničky pred rekonštrukciou.Foto: Cebra
Interiér výrobnej haly.
Interiér výrobnej haly.Foto: Cebra

Video zo stavby odhaľuje priehradovú oceľovú konštrukciu nadstavby a špirálové schodisko pred opláštením:

2419
Youtube

Podklady: Robert Pintér, Stredisko medi

Poloha diela

Mikkel Frost
Carsten Primdahl
Kolja Nielsen

Súvisiace články

Robert PintérHUBudapest
Vložené
24. máj 2017
0
905
Hlavný obsahHlavný obsah
Čakajte prosím