Advertorial

95 rokov Internorm: 30 miliónov okien a dverí z Rakúska

Európska značka okien oslavuje jubileum: za 95 rokov sa vyvinula na najväčšiu medzinárodne pôsobiacu okennú značku a inovačného...

Pozvánka na 2. ročník stavebného veľtrhu BigMarket na Slovensku

Na podujatí sa predstaví až 37 vystavovateľov - popredných dodávateľov stavebných materiálov a inovácií s prezentáciou...

Hotel Hirschen Spa House, Rakúsko

Novotvar v prostredí alpskej obce.

Vytvorte si kúpeľňu snov: dizajnové riešenie od značky hansgrohe

Hansgrohe - prémiová značka kúpeľňových riešení, ponúka nadčasový dizajn, technickú precíznosť a udržateľné inovácie...

Okná Internorm za minuloročné ceny + hliníkový kryt zdarma!

Využite špeciálnu akciu Internorm: okná za minuloročné ceny a hliníkový kryt úplne zadarmo. Ponuka je časovo obmedzená!

Moderné plynové technológie: Efektivita a inovácie pre 21. storočie

Sumarizácia najdôležitejších inovácií, ktoré redefinujúcich využitie tohto energetického zdroja.

Utesňovanie spodných stavieb pomocou hydro-aktívnej fólie AMPHIBIA.

AMPHIBIA 3000 GRIP 1.3 od spoločnosti ATRO predstavuje modernú hydroizolačnú technológiu, ktorá spája vysokú odolnosť,...

Dekarbonizácia individuálneho vykurovania domácností – Green Deal evolučne a nie revolučne

Ambiciózne plány EK narazili na ekonomické možnosti domácností v jednotlivých členských štátoch –...

Minimalistické dvere IDEA – technická precíznosť a čistota prevedenia

IDEA DOOR od spoločnosti JAP prináša do interiéru čistý minimalistický vzhľad vďaka bezrámovému riešeniu a precíznej...

Dom s výhľadom na údolie, Dlouhý Most (ČR)

Kontinuita riešenia od vonkajšieho obkladu až po kovania a kľučky.

Schell Vitus – osvedčené riešenie pre sprchy a umývadlá vo verejnom sektore s viac ako desaťročnou tradíciou

Nástenné nadomietkové armatúry Vitus sú mimoriadne vhodné pre rýchlu a efektívnu...

Kompozitné okná predstavujú súčasnosť a budúcnosť

Okenné profily z kompozitného materiálu RAU-FIPRO X od spoločnosti Rehau sú v porovnaní s tradičnými plastovými profilmi mnohonásobne...

Myotis - stoly 2025

Najnovší sortiment stolov pre zariadenie interiérov...

Priemyselné sklenené priečky Dorsis Digero: svetelné rozhranie pre moderné interiéry

Spojenie moderného dizajnu, funkčnosti a svetla do harmonického architektonického prvku.

Význam prirodzeného svetla pre moderné a flexibilné pracovné prostredie

Kancelárska budova Baumit v slovinskom Trzine prešla premenou na moderné a udržateľné pracovisko. Architekti kládli dôraz...

Rekonštrukcia a nadstavba bytového domu Jaselská, Praha

Staré bytové domy v širšom centre Prahy patria medzi najžiadanejšie bývanie v meste. V rámci rekonštrukcie bytového domu zo začiatku 20. storočia sa investor rozhodol pre dve nové obytné podlažia.
Diela
Red 317.09.2017
21990+9
Rekonštrukcia a nadstavba bytového domu Jaselská, Praha
Autori: Prof. ing. arch. Ladislav Lábus, Ing. arch. Mgr. Norbert Schmidt, Ing. arch. František KošařNávrh: 2006 - 2013Realizácia: 2013 - 2015Adresa: Jaselská 13, Praha, Česká republikaPublikované: 17. september 2017

Nie je však nadstavba ako nadstavba. V niektorých prípadoch pribudnú na strechy romantizujúce vikiere, v iných zas odvážny novotvar. Na Jaselskej ulici autori ukázali, že s použitím klasických materiálov a súčasného architektonického jazyka možno vytvoriť architektúru, ktorá pôsobí akoby bola "odtiaľ". Dom si zachoval pôvodný charakter a podobu, pričom na najvyšších podlažiach vznikli otvorené priestory, ktoré sú charakterom bývania diametrálne odlišné od pôvodných bytov.

Zrekonštruovaný dom sa nachádza v atraktívnej lokalite Dejvice, v blízkosti stanice metra Hradčanská. Objekt je súčasťou kompaktnej blokovej zástavby domov z konca 19. a začiatku 20. storočia. Samotný dom aj s bývalou koniarňou vo dvore postavil v roku 1912 staviteľ Antonín Hulán. Dispozícia domu vychádza z konštrukčného trojtraktu s dvojramenným schodiskom umiestneným v ose dvorného traktu.

Pohľd na uličnú fasádu a strešnú krajinu
Pohľd na uličnú fasádu a strešnú krajinuFoto: Lábus AA
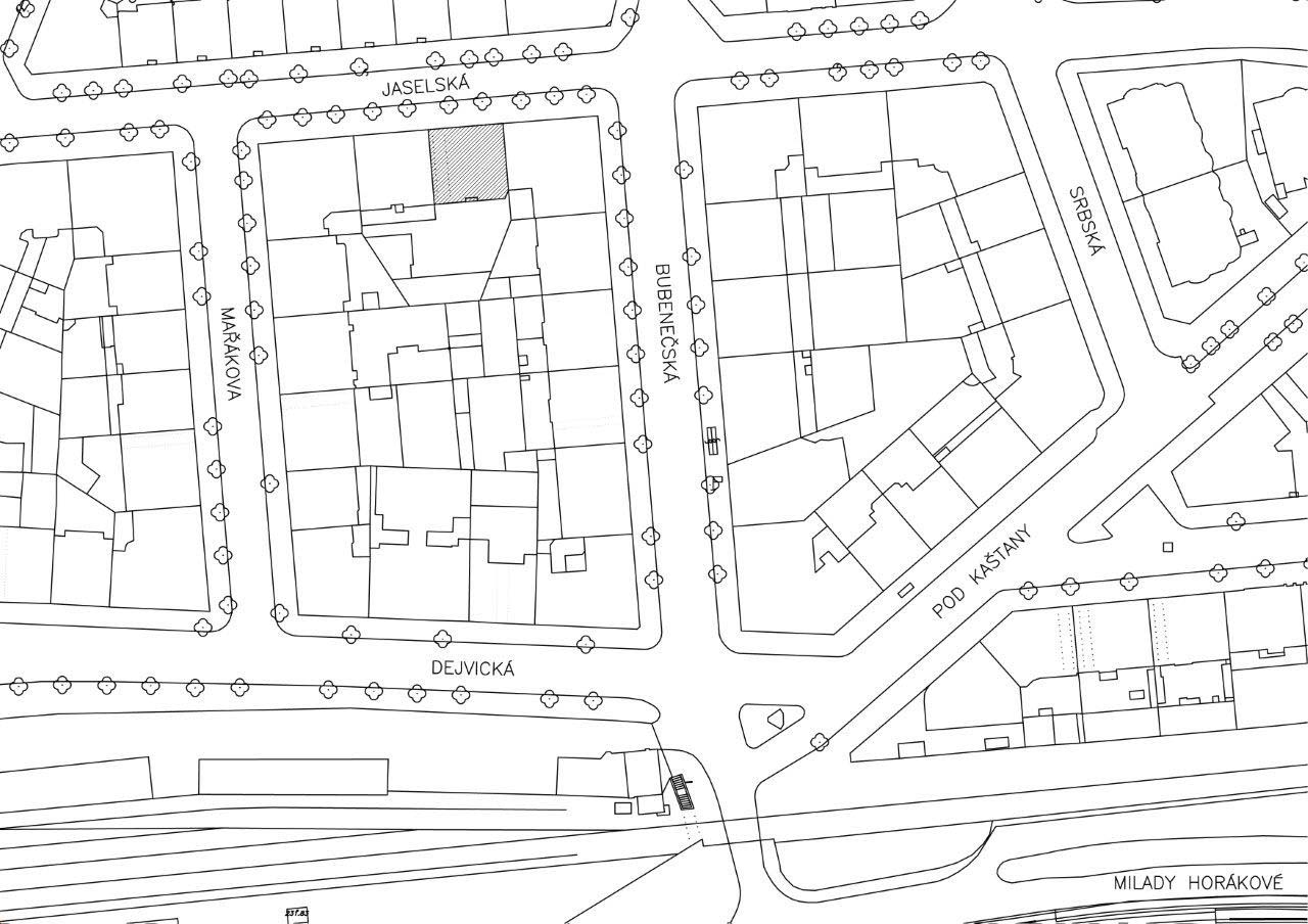
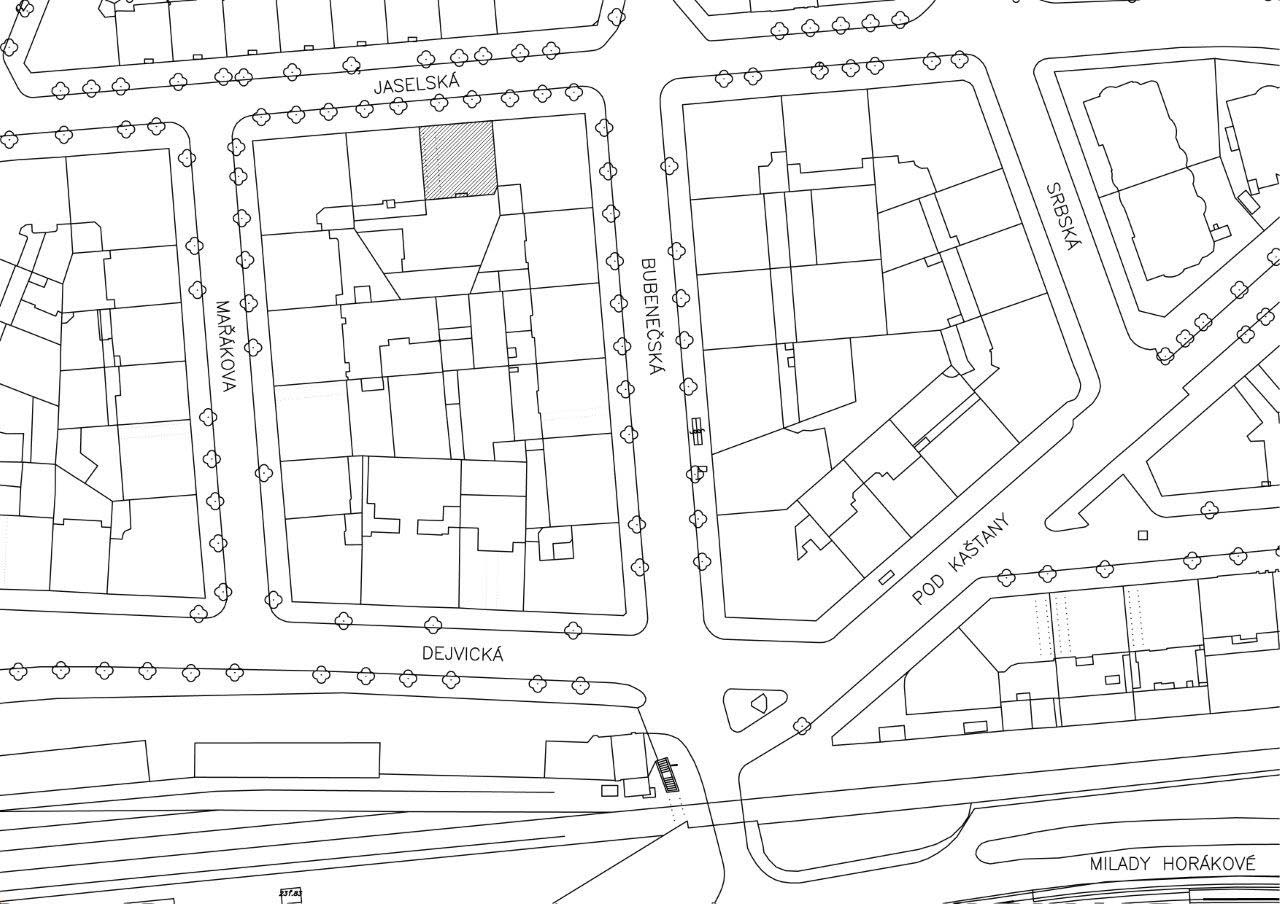
Situácia
SituáciaAutor: Lábus AA

Na prízemí je dispozícia ovplyvnená prejazdom do dvora. Pôvodne sa počítalo s dvoma bytmi na poschodie, časom však bolo jasné členenie narušené úpravami dispozície. Rekonštrukcia domu spočívala predovšetkým v návrate k pôvodnému dispozičnému usporiadaniu a obnove autentického charakteru bytov. Do priestoru schodiska bol vstavaný výťah. K významným úpravám patrí aj rozšírenie balkónov na dvornej fasáde. Oprava fasády rešpektovala členenie a štruktúru povrchov. Práce zahŕňali odstránenie novodobých omietok, obnovu poškodeného tvaroslovia a štukových obrazcov. V nadstavbe vznikol priestor pre dva mezonetové byty v úrovni podkrovia.

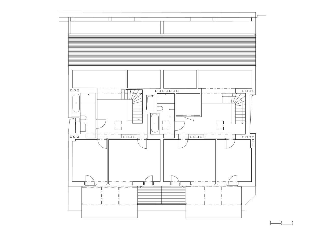
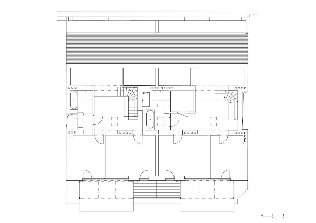
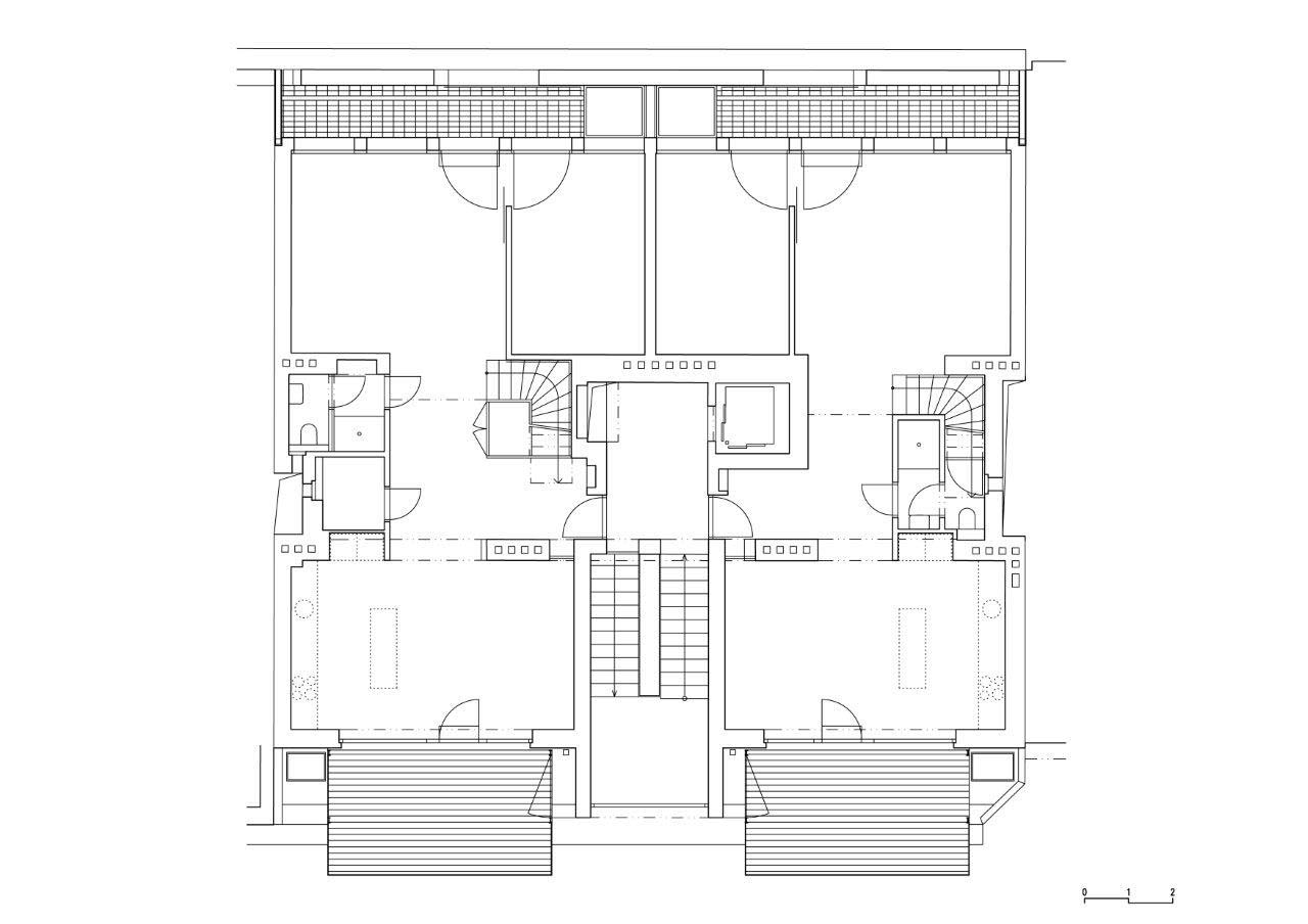
Pôdorys 4. NP
Pôdorys 4. NPAutor: Lábus AA
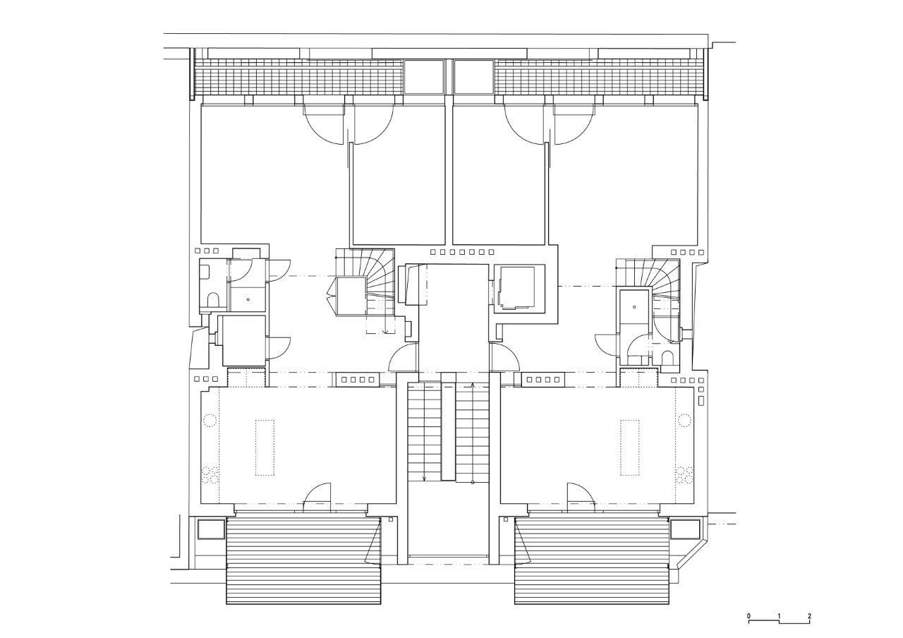
Pôdorys 5. NP
Pôdorys 5. NPAutor: Lábus AA
Rez
RezAutor: Lábus AA

Forma nadstavby je ovplyvnená kontextom okolitej zástavby. Zámerom bolo ponechať strešnú krajinu orientovanú do ulice bez rušivých prvkov v podobe vikierov, alebo strešných okien. Smerom do dvora sa snaží riešenie zhodnotiť ideálnu orientáciu pre funkciu bývania. Vyjadriť ju adekvátnym súčasným spôsobom, otvorenosťou a obytnosťou strešnej krajiny a dvorných traktov.

Zrekonštruovaná dvorová fasáda s ustúpenou dvojpodlažnou nadstavbou
Zrekonštruovaná dvorová fasáda s ustúpenou dvojpodlažnou nadstavbouFoto: Lábus AA

Nové rozšírenie je od dvorovej fasády hlboko ustúpené, v podstate je ukryté za strešnou rímsou. Netransparentné časti sú realizované ako ľahké, montované. Exteriérovú vrstvu tvorí obklad z medeného plechu. Nadstavba sa tak svojou farebnosťou a patinou približuje strešnej krajine okolitých budov.

Medený plášť s patinou
Medený plášť s patinouFoto: Lábus AA
Dvorová fasáda
Dvorová fasádaFoto: Lábus AA
Interiér mezonetového bytu v nadstavbe
Interiér mezonetového bytu v nadstavbeFoto: Lábus AA
Obytná plocha s prístupom na terasu
Obytná plocha s prístupom na terasuFoto: Lábus AA
Interiér zrekonštruovaného bytu
Interiér zrekonštruovaného bytuFoto: Lábus AA

Poloha diela

Prof. ing. arch. Ladislav Lábus
Ing. arch. Mgr. Norbert Schmidt
Ing. arch. František Košař

Súvisiace články

Robert PintérHUBudapest
Vložené
17. september 2017
0
2199
Hlavný obsahHlavný obsah
Čakajte prosím