Na podujatí sa predstaví až 37 vystavovateľov - popredných dodávateľov stavebných materiálov a inovácií s prezentáciou...
Novotvar v prostredí alpskej obce.
Hansgrohe - prémiová značka kúpeľňových riešení, ponúka nadčasový dizajn, technickú precíznosť a udržateľné inovácie...
Využite špeciálnu akciu Internorm: okná za minuloročné ceny a hliníkový kryt úplne zadarmo. Ponuka je časovo obmedzená!
Sumarizácia najdôležitejších inovácií, ktoré redefinujúcich využitie tohto energetického zdroja.
AMPHIBIA 3000 GRIP 1.3 od spoločnosti ATRO predstavuje modernú hydroizolačnú technológiu, ktorá spája vysokú odolnosť,...
Ambiciózne plány EK narazili na ekonomické možnosti domácností v jednotlivých členských štátoch –...
IDEA DOOR od spoločnosti JAP prináša do interiéru čistý minimalistický vzhľad vďaka bezrámovému riešeniu a precíznej...
Kontinuita riešenia od vonkajšieho obkladu až po kovania a kľučky.
Nástenné nadomietkové armatúry Vitus sú mimoriadne vhodné pre rýchlu a efektívnu...
Okenné profily z kompozitného materiálu RAU-FIPRO X od spoločnosti Rehau sú v porovnaní s tradičnými plastovými profilmi mnohonásobne...
Najnovší sortiment stolov pre zariadenie interiérov...
Spojenie moderného dizajnu, funkčnosti a svetla do harmonického architektonického prvku.
Kancelárska budova Baumit v slovinskom Trzine prešla premenou na moderné a udržateľné pracovisko. Architekti kládli dôraz...
Mottom šiesteho ročníku on-line konferencie odborníkov Xella Dialóg je Efektívny návrh budov 2025+: zmeny a riešenia

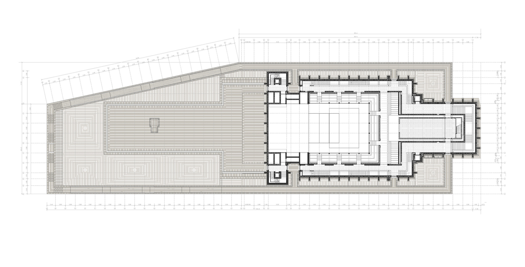
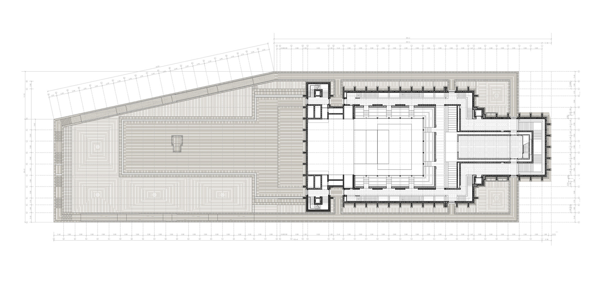
Projekt čerpá inšpiráciu z historického a politicko-kultúrneho charakteru miesta. Gdansk je baltské mesto, známe už od počiatku 17. storočia drevenou budovou alžbetínskeho divadla. O štyri storočia neskôr vzniklo na rovnakom mieste nové divadlo, ale v úplne inom kontexte. V roku 2004 vstúpilo Poľsko do Európskej únie. V tomto roku tiež prebehla medzinárodná súťaž na projekt nového Shakespearovho divadla. Akoby nové divadlo malo na javisku v Gdansku reprezentovať zmenu politického obzoru.
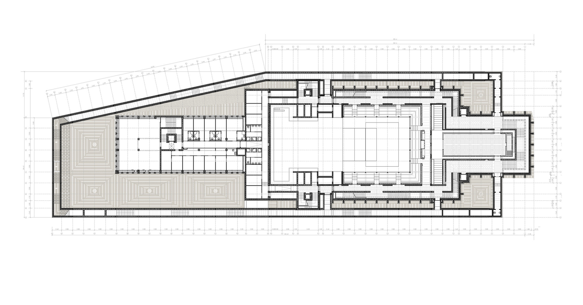
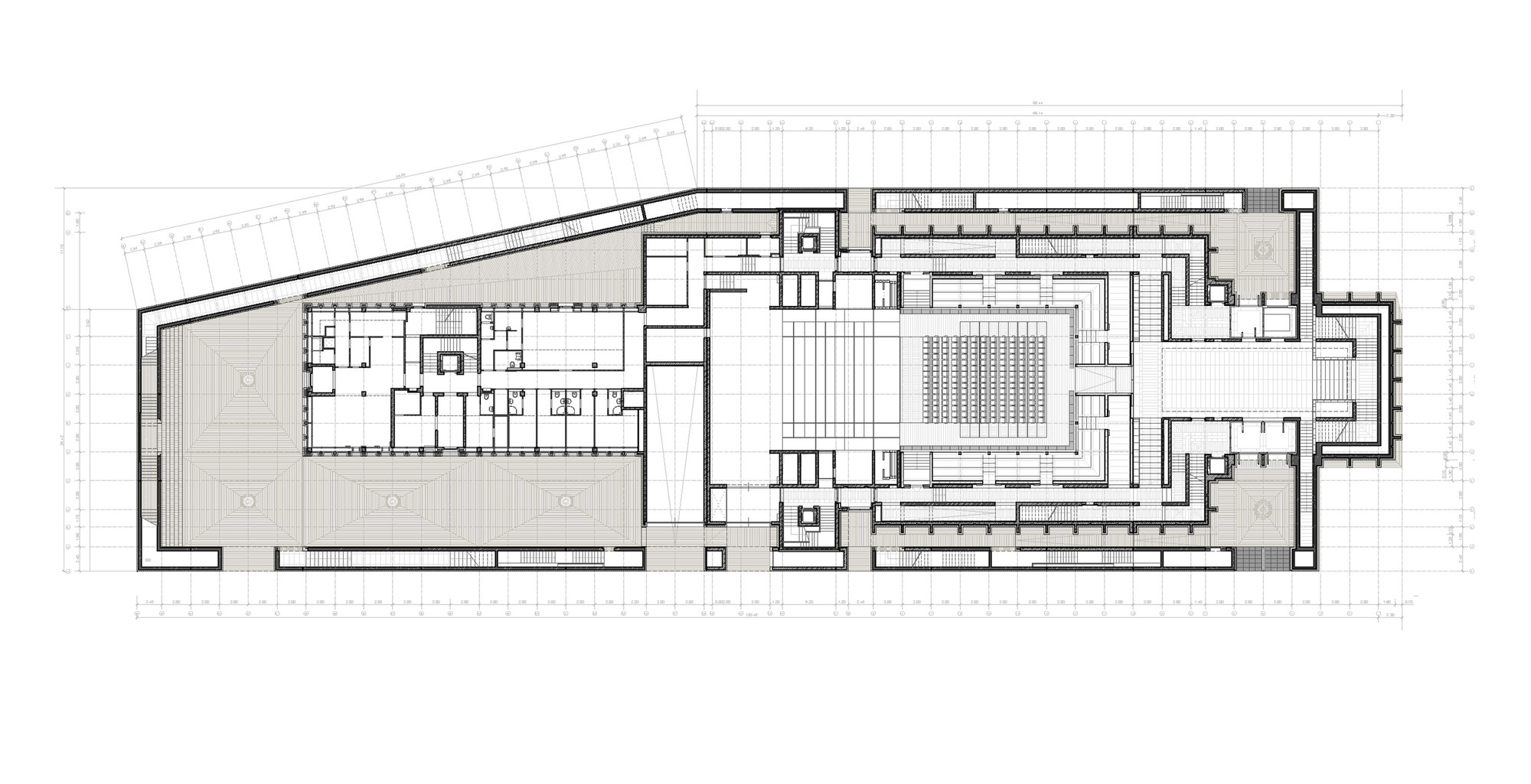
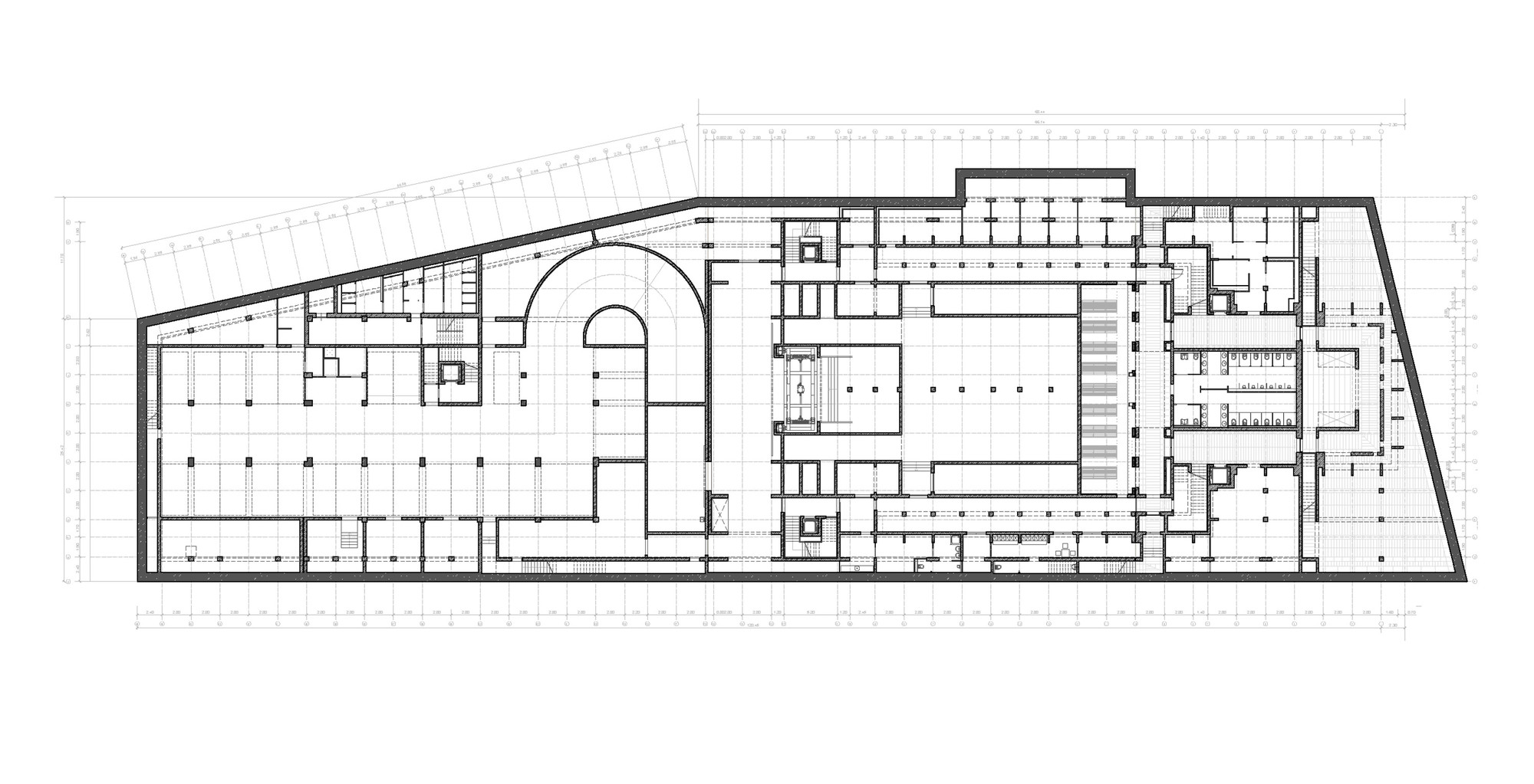
Divadelná budova je rozdelená formálne a funkčne na tri hlavné časti: javisko a divadelnú sálu, administratívnu časť so zázemím (kancelárie, reštaurácia, šatne, skúšobne) a okružnú komunikáciu.
Po celom obvode komplexu vedie verejne prístupná vonkajšia promenáda. Táto nová pešia mestská platforma sa nachádza 6 metrov nad úrovňou vchodu, čo umožňuje návštevníkom zmeniť uhol pohľadu na mesto. Vonkajšia komunikácia zaisťuje únikové cesty z divadla a pešie prepojenie so všetkými úrovňami komplexu.
Z vonku je silueta divadla charakterizovaná tromi hlavnými prvkami: masívnou hmotou, murovanými rebrami a otvárateľnou strechou. Hlavnú hmotu tvoria dve veľmi odlišné časti. Prvá patrí alžbetínskemu divadlu a je vysoká 12 metrov. Druhou časťou je 18 metrov vysoká scénická veža. Nachádza sa tu všetka potrebná technológia a slúži tiež ako vyhliadkový bod.
Keď je strecha divadla otvorená, je z veže vidieť až do interiéru divadla. Murované rebrá na vonkajších stenách sú charakteristickým prvkom veže a celého divadla. Určujú rytmus vnútornej modulárnej konštrukcie. Sú dôležité pre absorbovanie tlaku, ktorý otvorené krídla strechy vyvíjajú na konštrukciu a spevňujú múry aj z hľadiska zaťaženia silným severným vetrom.
Na obvode sa nachádzajú všetky horizontálne a vertikálne komunikácie pre peších. Táto figurálne autonómna časť je odsadená od vonkajších okrajov práve kvôli vyjadreniu priestorovej hierarchie medzi rôznymi formálnymi systémami.
Otvárateľná strecha vychádza z typologických a symbolických potrieb. Hrana otvorenej strechy siaha do výšky 24 metrov, čo završuje vertikálny rast úrovní (6, 12, 18, 24 m). Delenie otváravých krídel strechy prebieha pozdĺž hlavnej kompozičnej osi budovy orientovanej v smere východ - západ. Scénická veža oddeľuje divadelnú časť od administratívnej. Jej centrálna poloha odsúva pešie komunikácie k vonkajším okrajom.
Výber materiálu pre strešné krídla (zelená predpatinovaná meď) bol ovplyvnený neďalekou katedrálou Panny Márie. Budova z tmavých tehál v historickom centre mesta, z ktorej vyrastajú veže so svojimi ihlicovými strechami. Vysoké, štíhle, s patinou. S jednoliatym povrchom strechy kontrastuje vnútorná strana krídel - strop. Kosoštvorcový motív, ktorý geometricky vychádza z podpornej konštrukcie prispôsobuje mierku interiéru.