Advertorial

Pozvánka na 2. ročník stavebného veľtrhu BigMarket na Slovensku

Na podujatí sa predstaví až 37 vystavovateľov - popredných dodávateľov stavebných materiálov a inovácií s prezentáciou...

Hotel Hirschen Spa House, Rakúsko

Novotvar v prostredí alpskej obce.

Vytvorte si kúpeľňu snov: dizajnové riešenie od značky hansgrohe

Hansgrohe - prémiová značka kúpeľňových riešení, ponúka nadčasový dizajn, technickú precíznosť a udržateľné inovácie...

Okná Internorm za minuloročné ceny + hliníkový kryt zdarma!

Využite špeciálnu akciu Internorm: okná za minuloročné ceny a hliníkový kryt úplne zadarmo. Ponuka je časovo obmedzená!

Moderné plynové technológie: Efektivita a inovácie pre 21. storočie

Sumarizácia najdôležitejších inovácií, ktoré redefinujúcich využitie tohto energetického zdroja.

Utesňovanie spodných stavieb pomocou hydro-aktívnej fólie AMPHIBIA.

AMPHIBIA 3000 GRIP 1.3 od spoločnosti ATRO predstavuje modernú hydroizolačnú technológiu, ktorá spája vysokú odolnosť,...

Dekarbonizácia individuálneho vykurovania domácností – Green Deal evolučne a nie revolučne

Ambiciózne plány EK narazili na ekonomické možnosti domácností v jednotlivých členských štátoch –...

Minimalistické dvere IDEA – technická precíznosť a čistota prevedenia

IDEA DOOR od spoločnosti JAP prináša do interiéru čistý minimalistický vzhľad vďaka bezrámovému riešeniu a precíznej...

Dom s výhľadom na údolie, Dlouhý Most (ČR)

Kontinuita riešenia od vonkajšieho obkladu až po kovania a kľučky.

Schell Vitus – osvedčené riešenie pre sprchy a umývadlá vo verejnom sektore s viac ako desaťročnou tradíciou

Nástenné nadomietkové armatúry Vitus sú mimoriadne vhodné pre rýchlu a efektívnu...

Kompozitné okná predstavujú súčasnosť a budúcnosť

Okenné profily z kompozitného materiálu RAU-FIPRO X od spoločnosti Rehau sú v porovnaní s tradičnými plastovými profilmi mnohonásobne...

Myotis - stoly 2025

Najnovší sortiment stolov pre zariadenie interiérov...

Priemyselné sklenené priečky Dorsis Digero: svetelné rozhranie pre moderné interiéry

Spojenie moderného dizajnu, funkčnosti a svetla do harmonického architektonického prvku.

Význam prirodzeného svetla pre moderné a flexibilné pracovné prostredie

Kancelárska budova Baumit v slovinskom Trzine prešla premenou na moderné a udržateľné pracovisko. Architekti kládli dôraz...

Konferencia Xella Dialóg predstaví novinky a trendy v stavebníctve

Mottom šiesteho ročníku on-line konferencie odborníkov Xella Dialóg je Efektívny návrh budov 2025+: zmeny a riešenia

Múzeum francúzsko-pruskej vojny, Gravelotte, Francúzsko

Múzeum na pamiatku francúzsko-pruskej vojny v roku 1870 a okupácie Francúzska. Mohutný objem budovy so štvorcovým pôdorysom je "rozbitý" výrazným horizontálnym členením. Členité strešné roviny vytvárajú zaujímavú siluetu a pomáhajú začleniť objekt do vidieckej krajiny. Výrazné tvaroslovie sa podarilo preniesť aj do interiéru. Takmer sochárske stvárnenie budovy podporuje aj použitie jednotného materiálu - bronzu.
Diela
Red 323.10.2016
6750+9
Múzeum francúzsko-pruskej vojny, Gravelotte, Francúzsko
Autori: Bruno MaderSpolupráca: Pierre VergerInvestor: Département de la MoselleZastavaná plocha: 2750 m2Investičný náklad: 5 760 000 € Návrh: 2009 - 2013Realizácia: 2014 - 2015Adresa: rue de Metz 11, Gravelotte, FrancúzskoPublikované: 23. október 2016

Múzeum francúzsko-pruskej vojny sa nachádza v obci Gravelotte vo Francúzsku. Budova je situovaná na vzdialenom horizonte polí – bývalom bojisku.

foto: Gaston Bergeret

Pôdorysne jednoduchá hmota je horizontálne výrazne členená. Výraz stavby vytvára členitá strešná rovina. Strecha sa pozdĺž východnej osi láme a triešti objem budovy, čo uľahčuje dialóg s okolitými domami a poľnohospodárskymi budovami bez toho aby imitovala ich tvar. Rozdielne sklony strešných rovín vytvárajú priestor pre zvislé presklené plochy, ktoré zachytávajú severné svetlo. Rozmerné panely z patinovaného bronzu sú použité v exteriéri aj v interiéri na stenách chodieb. Jednotný materiál - bronz dodáva stavbe až skulpturálny výraz. Architektonické vyjadrenie strechy evokuje ostré čepele, rozrezanie či roztrhanie. „Rozseknutými“ časťami prechádza do interiéru budovy severné svetlo.

Architektúra múzea vyjadruje rôzne pocity spojené s vojnou: napätie - kovový blok, rozrušenie - perforované vstupné fasády, zlomeniny - tvar vstupnej haly, ničenie - trhliny v podobe svetlíkov na streche, ale aj mier a nádej, ktorú symbolizuje panoramatický a pokojný výhľad na okolitú krajinu.

foto: Gaston Bergeret

Budova je opláštená fasádnou z patinovaného bronzu. Voľba kovu nebola náhodná. Je to materiál, z ktorého sú vyrobené zbrane, granáty, kanóny. Patina a oxidácia zas symbolizuje plynutie času, ako spomienka na udalosti ku ktorým v roku 1870 došlo.

foto: Gaston Bergeret
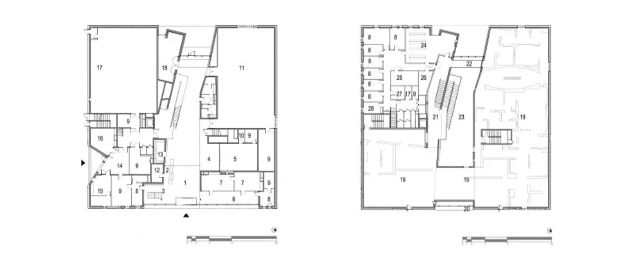
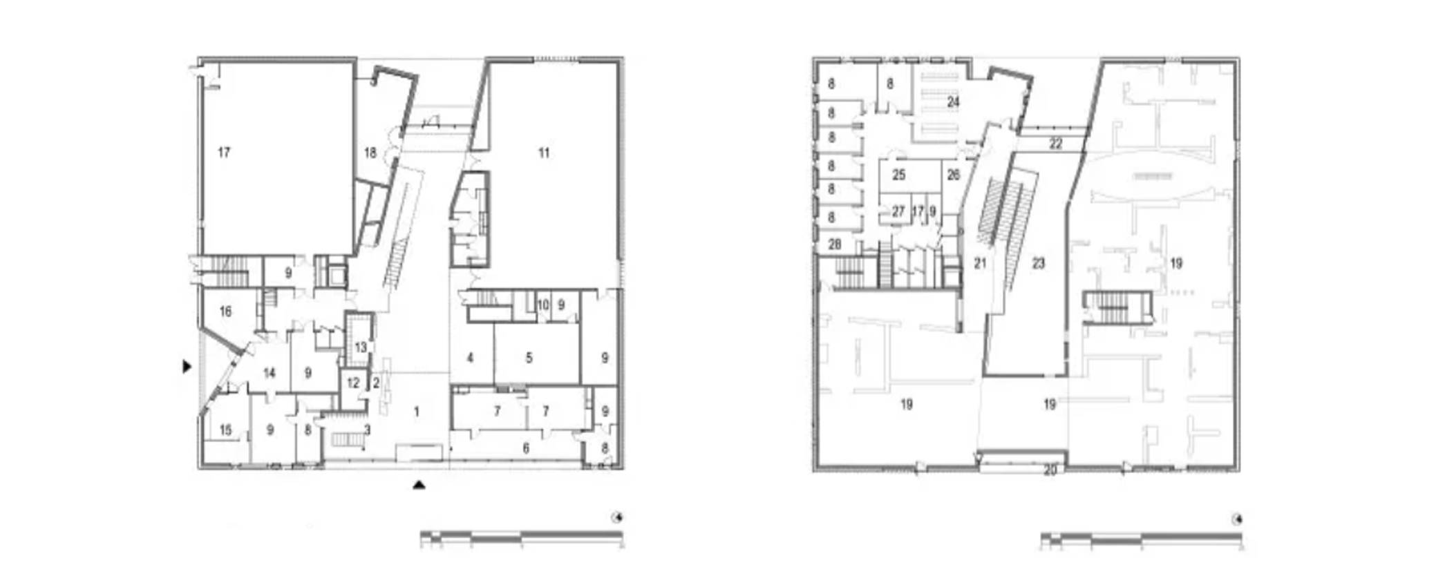
Pôdorysy
Pôdorysy
foto: Gaston Bergeret

Svetlo prichádzajúce cez nepravidelné pílovité svetlíky na streche osvetľuje centrálnu časť budovy, ktorá sa tiahne cez dve podlažia na výšku 8m. Centrálny priestor rozčleňuje dispozíciu na dva prevádzkové celky.

Vznikol dramatický priestor, ktorého tmavé, nepravidelné steny a "roztrhaná" strecha sú architektonickým výkladom toho, čo predstavuje vojna: zlomeniny, ničenie a vyhorené budovy, ktorých trámy sčerneli a kontrastujú s oblohou.

Obrovské panely patinovaného kovu tvoriace steny sály sú zhodné s panelmi použitými na fasádach. Budova tak nadobúda silnú identitu a pôsobí celistvo.

foto: Gaston Bergeret

Stredobodom budovy je "živý" priestor, oživený kolobehom návštevníkov na rôznych poschodiach a odleskami exponátov.

Za recepciou sa nachádzajú priestory výstavných galérií, konferenčná sála a priestory pre vzdelávacie podujatia. Všetky sú prístupné priamo z haly múzea. Hlavný výstavný priestor múzea je prístupný schodiskom.

Poloha diela

Bruno Mader

Súvisiace články

Robert PintérHUBudapest
Vložené
19. október 2016
0
675
Hlavný obsahHlavný obsah
Čakajte prosím