Advertorial

Pozvánka na 2. ročník stavebného veľtrhu BigMarket na Slovensku

Na podujatí sa predstaví až 37 vystavovateľov - popredných dodávateľov stavebných materiálov a inovácií s prezentáciou...

Hotel Hirschen Spa House, Rakúsko

Novotvar v prostredí alpskej obce.

Vytvorte si kúpeľňu snov: dizajnové riešenie od značky hansgrohe

Hansgrohe - prémiová značka kúpeľňových riešení, ponúka nadčasový dizajn, technickú precíznosť a udržateľné inovácie...

Okná Internorm za minuloročné ceny + hliníkový kryt zdarma!

Využite špeciálnu akciu Internorm: okná za minuloročné ceny a hliníkový kryt úplne zadarmo. Ponuka je časovo obmedzená!

Moderné plynové technológie: Efektivita a inovácie pre 21. storočie

Sumarizácia najdôležitejších inovácií, ktoré redefinujúcich využitie tohto energetického zdroja.

Utesňovanie spodných stavieb pomocou hydro-aktívnej fólie AMPHIBIA.

AMPHIBIA 3000 GRIP 1.3 od spoločnosti ATRO predstavuje modernú hydroizolačnú technológiu, ktorá spája vysokú odolnosť,...

Dekarbonizácia individuálneho vykurovania domácností – Green Deal evolučne a nie revolučne

Ambiciózne plány EK narazili na ekonomické možnosti domácností v jednotlivých členských štátoch –...

Minimalistické dvere IDEA – technická precíznosť a čistota prevedenia

IDEA DOOR od spoločnosti JAP prináša do interiéru čistý minimalistický vzhľad vďaka bezrámovému riešeniu a precíznej...

Dom s výhľadom na údolie, Dlouhý Most (ČR)

Kontinuita riešenia od vonkajšieho obkladu až po kovania a kľučky.

Schell Vitus – osvedčené riešenie pre sprchy a umývadlá vo verejnom sektore s viac ako desaťročnou tradíciou

Nástenné nadomietkové armatúry Vitus sú mimoriadne vhodné pre rýchlu a efektívnu...

Kompozitné okná predstavujú súčasnosť a budúcnosť

Okenné profily z kompozitného materiálu RAU-FIPRO X od spoločnosti Rehau sú v porovnaní s tradičnými plastovými profilmi mnohonásobne...

Myotis - stoly 2025

Najnovší sortiment stolov pre zariadenie interiérov...

Priemyselné sklenené priečky Dorsis Digero: svetelné rozhranie pre moderné interiéry

Spojenie moderného dizajnu, funkčnosti a svetla do harmonického architektonického prvku.

Význam prirodzeného svetla pre moderné a flexibilné pracovné prostredie

Kancelárska budova Baumit v slovinskom Trzine prešla premenou na moderné a udržateľné pracovisko. Architekti kládli dôraz...

Konferencia Xella Dialóg predstaví novinky a trendy v stavebníctve

Mottom šiesteho ročníku on-line konferencie odborníkov Xella Dialóg je Efektívny návrh budov 2025+: zmeny a riešenia

Nová budova Štetínskej filharmónie získala Mies van der Rohe Award 2015

Víťazným dielom Európskej Ceny za architektúru - Mies van der Rohe Award 2015, sa stala nová budova Filharmónie v poľskom Štetíne, od španielskeho architektonického štúdia Barozzi/Veiga (architekti Fabrizio Barozzi a Alberto Veiga).
Diela
Red 110.05.2015
10460+3
Nová budova Štetínskej filharmónie získala Mies van der Rohe Award 2015
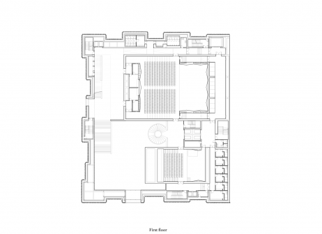
Autori: Fabrizio Barozzi, Alberto VeigaInvestor: Mesto ŠtetínPlocha pozemku: 13000 m2Zastavaná plocha: 3800 m2Investičný náklad: 2 310.-€/m2Návrh: 2007 - 2011Realizácia: 2011 - 2014Adresa: Jana Matejki , Štetín, PoľskoPublikované: 10. máj 2015

V piatok 8. mája tradične v Pavilóne Miesa van der Rohe v Barcelone, boli vyhlásené tohtoročné výsledky Európskej ceny za architektúru - Mies van der Rohe Award 2015. Spomedzi nominovaných prác (Študentského centra na London School of Economics, Dánskeho námorného múzea v Helsingore, Múzea umenia v Ravensburgu, Filharmónie v Štetíne a Vinárstva Antinori vo Florencii) sa víťazom stala Filharmónie v Štetíne od španielskeho architektonického štúdia Barozzi/Veiga (architekti Fabrizio Barozzi a Alberto Veiga). Víťaz spolu s cenou získa aj finančnú odmenu v sume 60-tisíc eur.

Cenu udeľuje Európska komisia v spolupráci s Miesovou nadáciou každé dva roky. Odbornú stránku zaručujú architektonické inštitúty a komisia odborníkov z vyše tridsiatich krajín.

Nová budova filharmónie sa nachádza na mieste pôvodného "Kncerthausu", ktorý bol zničený počas druhej svetovej vojny. Prestavbou tohto rožného bloku v blízkosti historického centra mesta vzniklo multifunkčné kultúrne centrum. Obsahuje symfonickú koncertnú halu pre 1000 poslucháčov, halu pre komorné koncerty s 200 miestami, priľahlé výstavné a konferenčné priestory, veľký foyer... umožňujúce okrem základného poslania vytvárať podmienky pre široké spektrum kultúrnych a spoločenských podujatí.

Rozčlenenie samotnej hmoty a "rozbitie" veľkej hmoty rozľahlého objektu filharmónie vnáša do štruktúry mesta nový zaujímavý a nezameniteľný prvok. Porota ocenila jednoduchý a jasný architektonický koncept, čisté a zrozumiteľné usporiadanie vnútorných priestorov, úspornosť riešenia a jeho ekologické aspekty...

Skôr, ako mnoho slov nám ocenené dielo predstaví niekoľko ilustračných obrázkov (foto: Simon Menges) a najmä priložené video dolu pod fotogalériou. .

3713
Vimeo

Poloha diela

Fabrizio Barozzi
Alberto Veiga

Súvisiace články

Vložené
10. máj 2015
0
1046
Hlavný obsahHlavný obsah
Čakajte prosím