Hansgrohe - prémiová značka kúpeľňových riešení, ponúka nadčasový dizajn, technickú precíznosť a udržateľné inovácie...
Využite špeciálnu akciu Internorm: okná za minuloročné ceny a hliníkový kryt úplne zadarmo. Ponuka je časovo obmedzená!
Na podujatí sa predstaví až 37 vystavovateľov - popredných dodávateľov stavebných materiálov a inovácií s prezentáciou...
Sumarizácia najdôležitejších inovácií, ktoré redefinujúcich využitie tohto energetického zdroja.
AMPHIBIA 3000 GRIP 1.3 od spoločnosti ATRO predstavuje modernú hydroizolačnú technológiu, ktorá spája vysokú odolnosť,...
Ambiciózne plány EK narazili na ekonomické možnosti domácností v jednotlivých členských štátoch –...
IDEA DOOR od spoločnosti JAP prináša do interiéru čistý minimalistický vzhľad vďaka bezrámovému riešeniu a precíznej...
Kontinuita riešenia od vonkajšieho obkladu až po kovania a kľučky.
Nástenné nadomietkové armatúry Vitus sú mimoriadne vhodné pre rýchlu a efektívnu...
Okenné profily z kompozitného materiálu RAU-FIPRO X od spoločnosti Rehau sú v porovnaní s tradičnými plastovými profilmi mnohonásobne...
Najnovší sortiment stolov pre zariadenie interiérov...
Spojenie moderného dizajnu, funkčnosti a svetla do harmonického architektonického prvku.
Kancelárska budova Baumit v slovinskom Trzine prešla premenou na moderné a udržateľné pracovisko. Architekti kládli dôraz...
Mottom šiesteho ročníku on-line konferencie odborníkov Xella Dialóg je Efektívny návrh budov 2025+: zmeny a riešenia
Robot WLTR predstavuje moderný prístup k murovaným konštrukciám. Vďaka automatizácii dokáže rýchlo, presne a bezpečne realizovať...

Areál bývalej pradiarne v Kežmarku, ktorú v roku 1860 založil Karol Wein, patril k najmodernejším továrňam v Uhorsku. V období, keď sa pod Tatrami rozvíjal tkáčsky priemysel, išlo o významný priemyselný podnik.
Výroba prebiehala nepretržite až do roku 1946, keď pôvodní majitelia museli odísť do zahraničia. Následne závod fungoval ako Tatraľan – mechanická pradiareň a tkáčovňa ľanu – a zamestnával až 2 500 pracovníkov. Po roku 1989 sa však v dôsledku ekonomickej transformácie výroba zastavila. Napriek zložitým obdobiam sa areál zachoval a jeho architektonická hodnota bola potvrdená vyhlásením hlavného výrobného objektu za národnú kultúrnu pamiatku.
Keď areál prešiel do rúk súčasného investora, nachádzal sa v havarijnom stave. Pod budovou preteká potok, pričom niektoré časti sú založené na drevených pilótach, ktoré sa postupne rozkladali. Vlhkosť a opakované zatekanie poškodili murivo, podlahy i stropy. Bolo preto nevyhnutné vykonať rozsiahle sanačné a statické opatrenia.
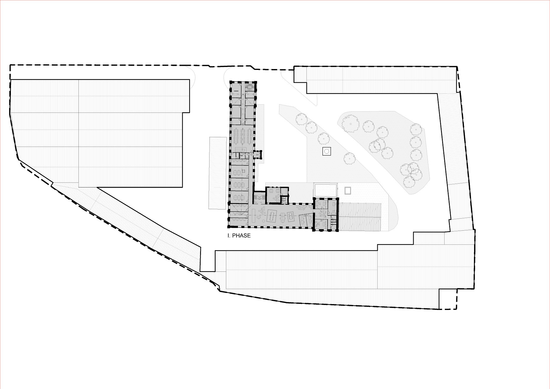
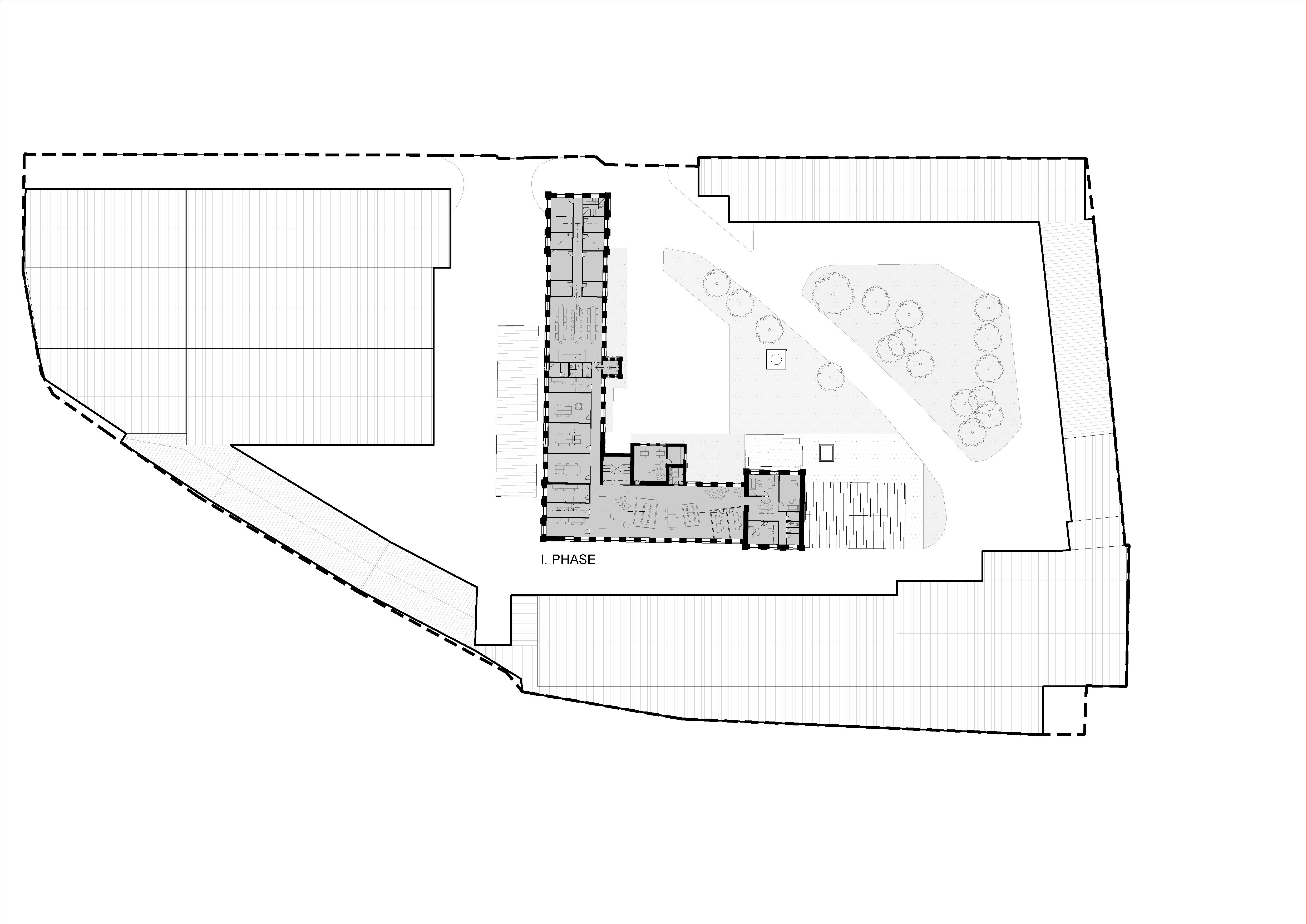
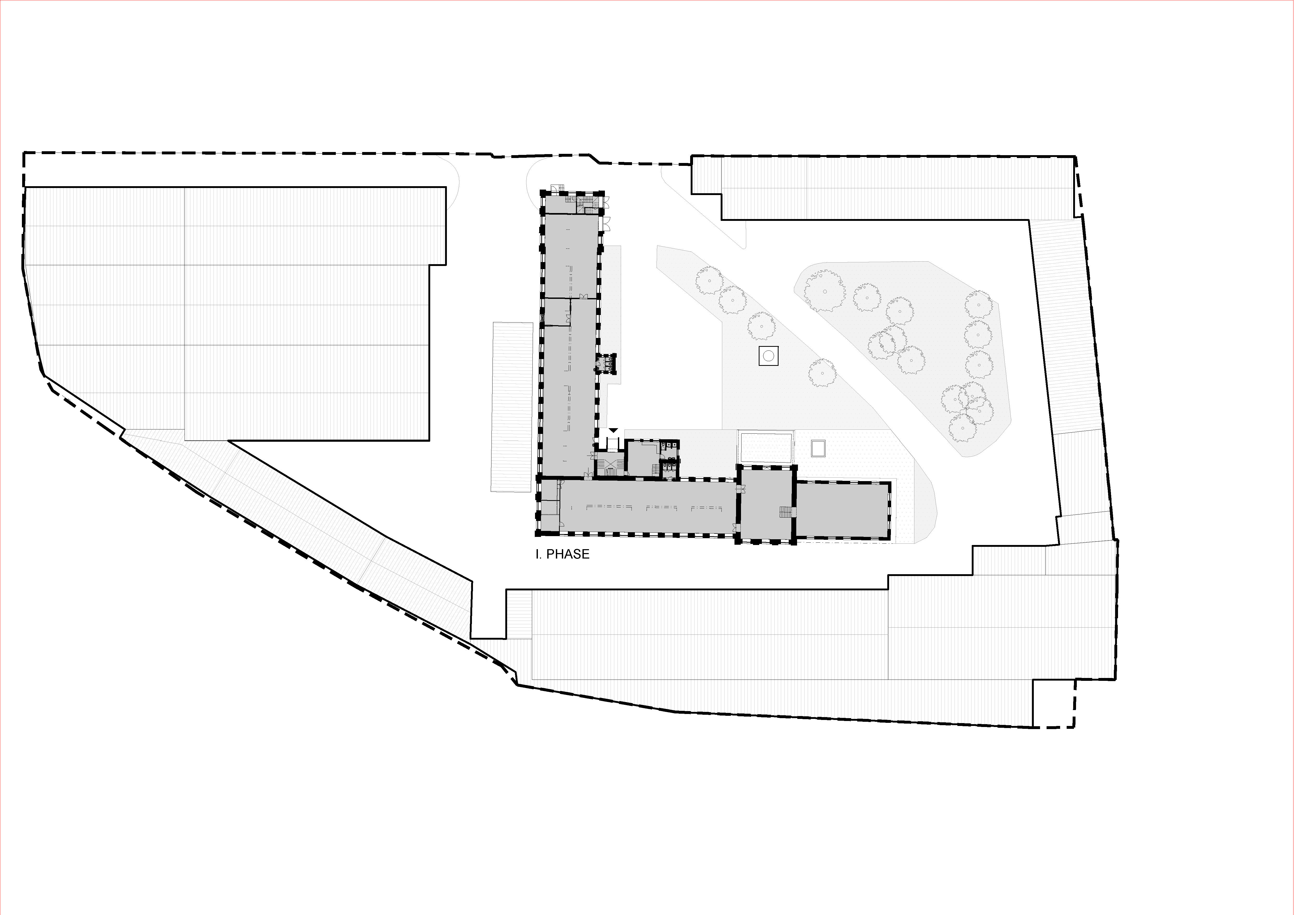
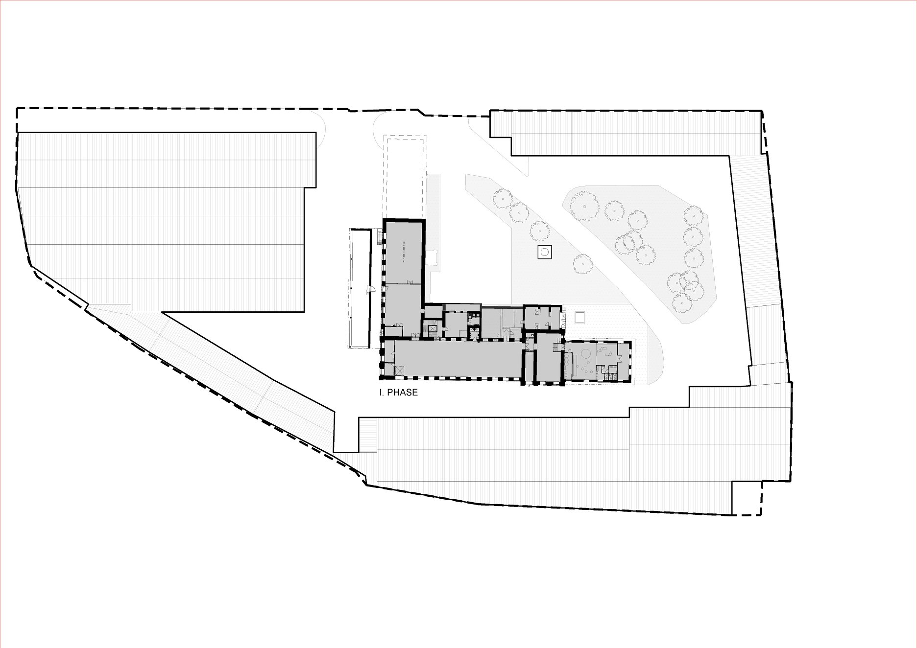
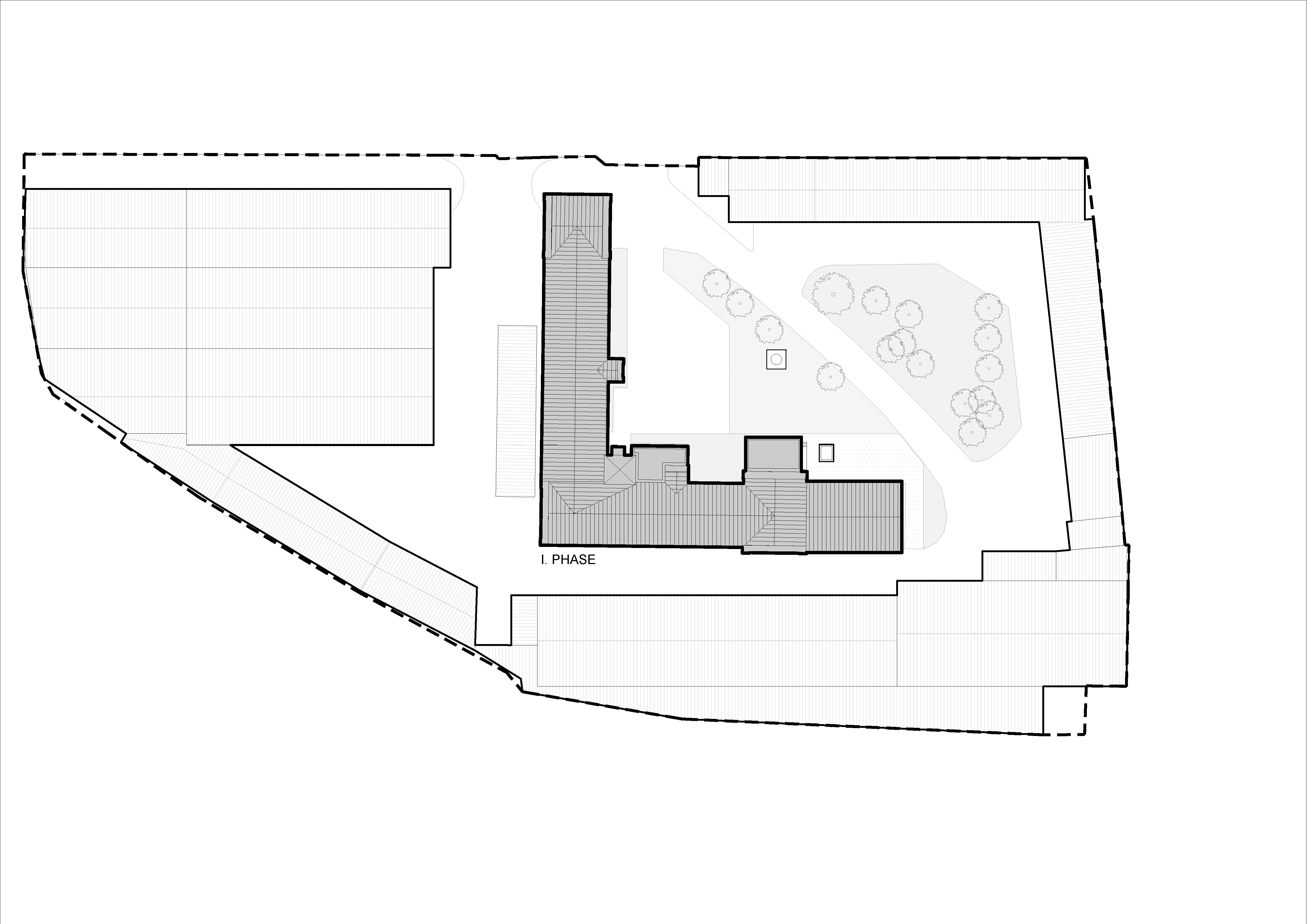
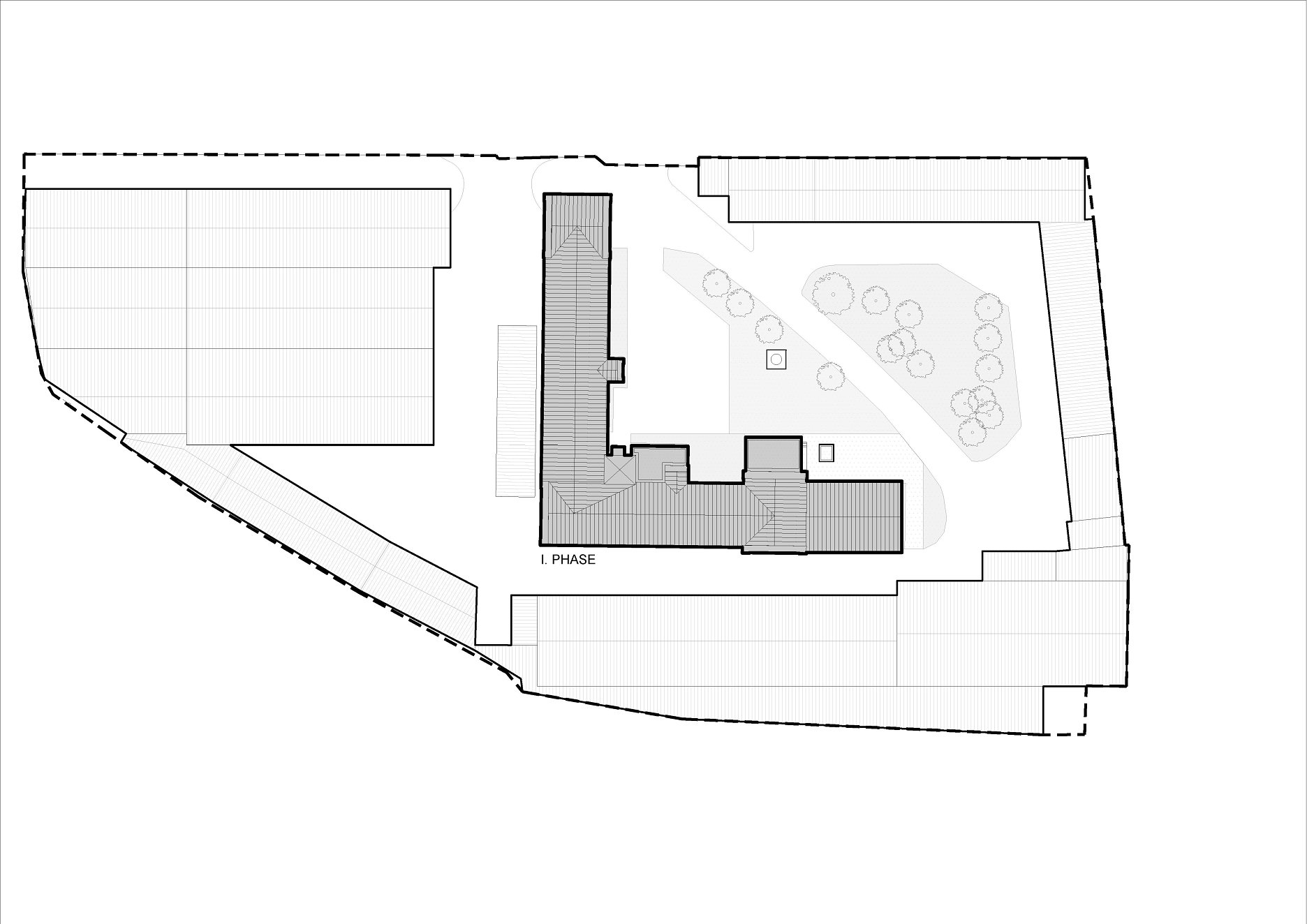
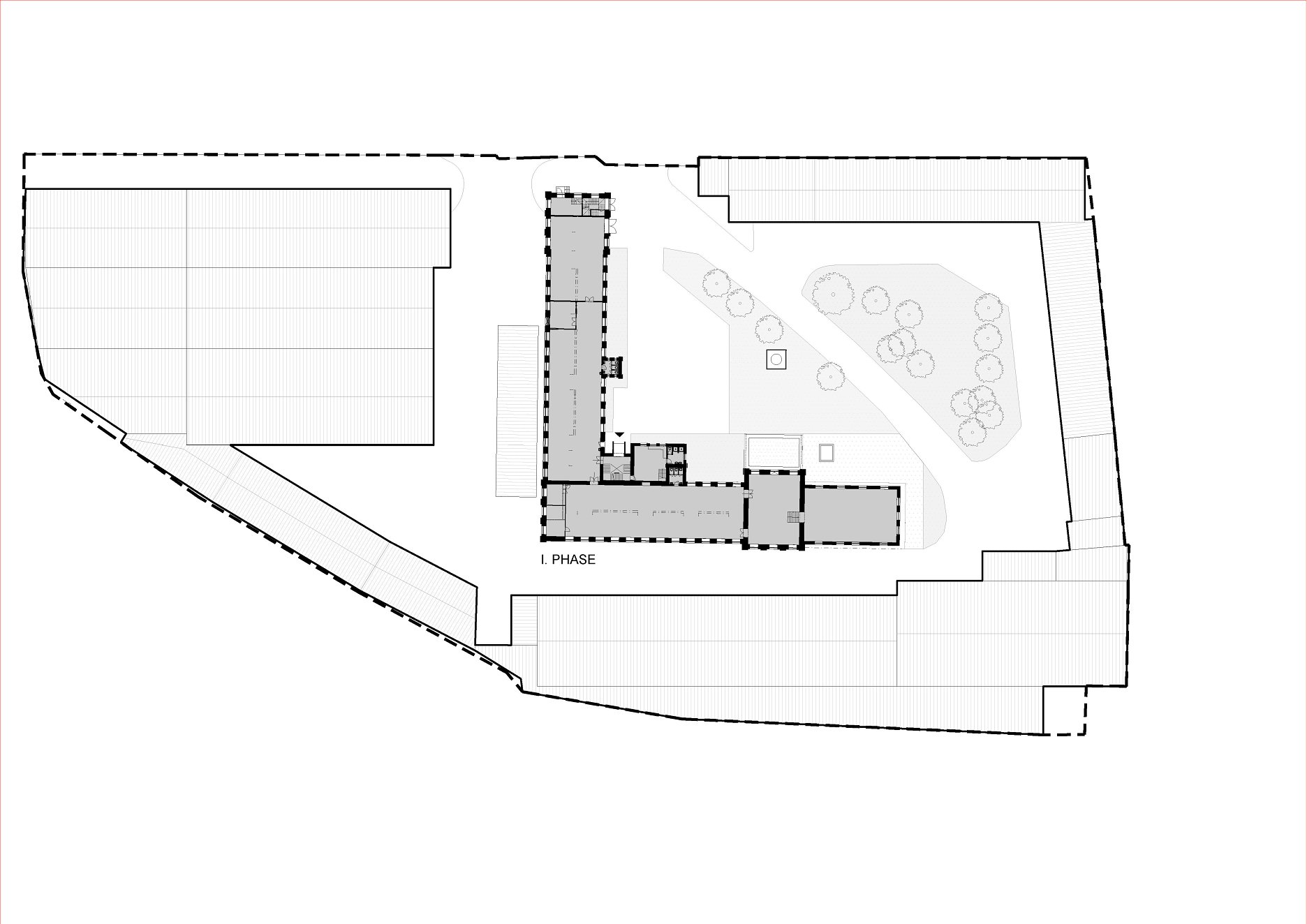
Architektonický koncept a súťaž – Vzťah k mestu a verejnému priestoru
V roku 2019 bola novým majiteľom vyhlásená architektonickú súťaž, ktorej cieľom bolo vytvoriť moderné výrobné a administratívne zázemie pre výrobcu alkoholu, integrované do historickej budovy. Ateliér BEEF ARCHITEKTI kládol vo svojom návrhu dôraz na prepojenie priemyselnej histórie areálu s novou vrstvou funkcie a architektúry, ktoré sprístupnia toto miesto verejnosti. Areál pradiarne sa prakticky nachádza v extraviláne - v priemyselnej zóne mesta. Autori ho vnímajú ako miesto s potenciálom stať sa novým urbánnym uzlom lokality. Preto navrhli verejný priestor, ktorý prepája jednotlivé časti areálu a sprístupňuje historickú budovu obyvateľom a návštevníkom.
Navrh vytvára kombináciu výrobných, kultúrnych, rekreačných a spoločenských funkcií. V prízemí novonavrhovanej dostavby vznikne kaviareň, podniková predajňa a múzeum venované histórii spracovania ľanu, čo priemyselné dedičstvo priblíži verejnosti. Prvá, medzičasom už dokončená fáza prestavby areálu, sa zaoberala hlavne rekonštrukciou pôvodnej budovy s adaptáciou jej priestorov na prevádzku výroby, administratívnej časti, degustačných priestorov a apartmánov pre hostí.
Keďže ide o národnú kultúrnu pamiatku, celý proces prebiehal v úzkej spolupráci s pamiatkovým úradom. Dbalo sa na zachovanie autentických detailov – od liatinových výstuží s motívom ľanového kvetu až po tehlový komín, ktorý sa v budúcnosti stane vyhliadkou s panoramatickým výhľadom na Tatry.
Prepojenie histórie s novou funkciou
Zachovanie historickej vrstvy bolo pre projekt kľúčové. Autori od začiatku pristupovali k projektu s rešpektom k industriálnemu charakteru objektu, ktorý vnímajú ako podstatnú súčasť identity miesta.
Odstránili neskoršie prístavby, hlavne kotolňu, ktoré narúšali proporcie a siluetu pôvodného objektu, a prinavrátili jeho pôvodnú hmotu. Jednu z prístavieb ponechali z funkčných dôvodov – poskytuje zázemie pre zamestnancov – pričom je vizuálne oddelená od zvyšku objektu.
Materiálové riešenie vsádza na striedmu paletu: k pôvodnej obnaženej konštrukcii s liatinovými stĺpmi pribudli len terakotové dlažby a svetlé omietky. Nové vrstvy sú zámerne neutrálne, aby nechali vyniknúť pôvodnú konštrukciu a patinu.
Interiér a technické riešenia
Interiér je navrhnutý s dôrazom na čitateľnosť pôvodnej statickej logiky. Liatinové stĺpy, tehlové klenby a poloklenby ostali zachované. Pôvodná materiálová vrstva bola očistená a steny premaľované, aby si zachovali prirodzenú textúru. Nové prvky – podlahy, zábradlia, svietidlá – sú riešené jednoducho a účelne, aby nepôsobili rušivo.
Z technického hľadiska bolo najväčšou výzvou zabezpečiť protipožiarne opatrenia vzhľadom na prítomnosť liehu a skladových priestorov. Všetky zásahy sú riešené tak, aby minimalizovali vizuálny zásah do architektúry.
Hodnota projektu
Najväčšou pridanou hodnotou obnovy pradiarne je to, že objekt získava novú funkciu bez straty identity. Rešpekt k histórii sa spojil s funkčnou adaptáciou a vytvoril priestor, ktorý má potenciál stať sa centrom života tejto skôr technickej enklávy mesta.
Okrem samotnej rekonštrukcie budovy vznikne aj nový verejný priestor, ktorý v tejto časti Kežmarku doteraz chýbal. Projekt tak nepredstavuje len záchranu pamiatky, ale aj jej premenu na živé miesto, kde sa priemyselná minulosť stretáva s mestskou funkciou.
Projekt získal v závere uplynulého roku ocenenie I.CON.A 2025 za najlepšiu architektonickú konverziu.
Ateliér: BEEF ARCHITEKTI
Podklady: Linka
Fotografie: Jakub Čaprnka