Objavte riešenia Dorsis, ktoré spájajú minimalistický vzhľad s vysokou variabilitou, funkčnosťou a spracovaním na mieru.
Súčasné bývanie v prostredí budapeštianskej vilovej štvrte.
Moderné strešné okná ponúkajú pohodlné ovládanie aj lepšiu ochranu domácnosti počas celého roka.
Rad interiérových dverí DIVA DOOR od spoločnosti J.A.P. ponúka čistý dizajn a variabilné riešenia pre súčasné interiéry.
REHAU Window Solutions na veľtrhu Fensterbau Frontale 2026
Sortiment Slim Line zahŕňa pestrý výber dekorov a textúr.
Európska značka okien oslavuje jubileum: za 95 rokov sa vyvinula na najväčšiu medzinárodne pôsobiacu okennú značku a inovačného...
Na podujatí sa predstaví až 37 vystavovateľov - popredných dodávateľov stavebných materiálov a inovácií s prezentáciou...
Novotvar v prostredí alpskej obce.
Hansgrohe - prémiová značka kúpeľňových riešení, ponúka nadčasový dizajn, technickú precíznosť a udržateľné inovácie...
Využite špeciálnu akciu Internorm: okná za minuloročné ceny a hliníkový kryt úplne zadarmo. Ponuka je časovo obmedzená!
Sumarizácia najdôležitejších inovácií, ktoré redefinujúcich využitie tohto energetického zdroja.
AMPHIBIA 3000 GRIP 1.3 od spoločnosti ATRO predstavuje modernú hydroizolačnú technológiu, ktorá spája vysokú odolnosť,...
Ambiciózne plány EK narazili na ekonomické možnosti domácností v jednotlivých členských štátoch –...
IDEA DOOR od spoločnosti JAP prináša do interiéru čistý minimalistický vzhľad vďaka bezrámovému riešeniu a precíznej...

Nedávno sme predstavili 7 finalistov ceny, ktorá je všeobecne považovaná za najprestížnejšie ocenenie za architektonickú tvorbu na starom kontinente.
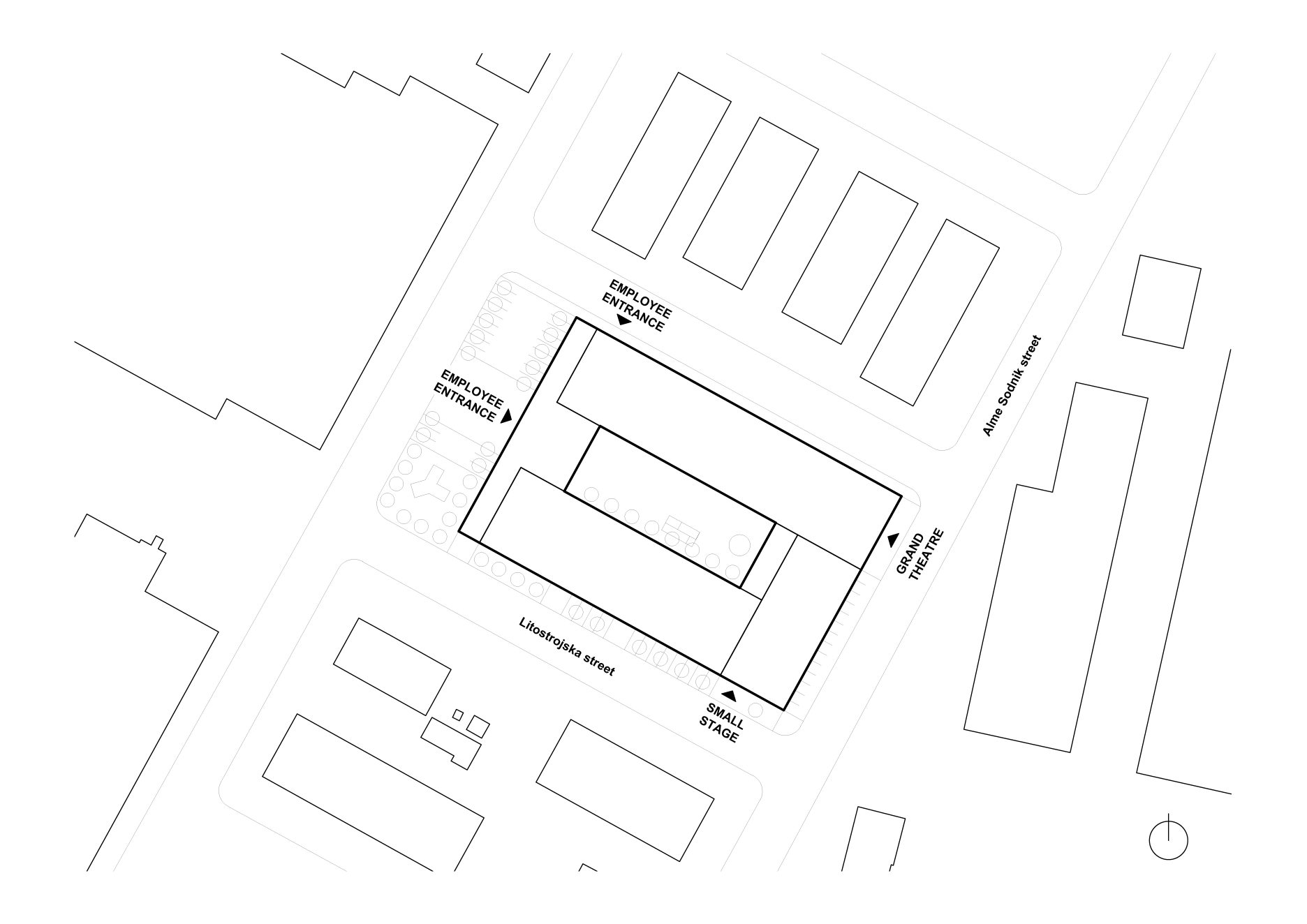
Postupne predstavujeme jednotlivé diela z finálovej sedmičky. Po dielach v hlavnej kategórii „Architecture“ pokračujeme realizáciami v kategórii „Emerging“, určenej pre mladých architektov. Dnes sa pozrieme do slovinskej metropoly, kde vznikli dočasné priestory Slovinského národného divadla. Zadaním pre architektov z ateliéru Vidic Grohar Arhitekti bolo vytvoriť dočasné zázemie pre celý program hlavnej slovinskej divadelnej scény v historických priemyselných objektoch, s obmedzeným rozpočtom a v krátkom čase.
Projekt vznikol v areáli bývalých priemyselných hál zo 60. rokov v areáli Litostroj. Namiesto budovania dočasnej divadelnej prevádzky na zelenej lúke architekti využili existujúcu štruktúru a premenili ju na plnohodnotné kultúrne zázemie, ktoré počas obnovy historickej budovy v centre mesta preberá úlohu domovskej scény Slovinského národného divadla. Práve táto schopnosť adaptovať dostupný stavebný fond a dočasné premiestnenie významnej verejnej inštitúcie do vzdialenejšej časti mesta patrí k najsilnejším vrstvám návrhu.
Autori rozdelili zásahy do dvoch základných skupín. Prvú tvorí trvácna „infraštruktúra“, teda vstupy, komunikačné priestory, obslužné jadrá a verejne prístupné časti, ktoré sú navrhnuté z odolných materiálov tak, aby mohli slúžiť aj po ukončení dočasnej divadelnej prevádzky. Druhú skupinu predstavujú dočasné prvky viazané priamo na potreby divadla, ktoré možno po návrate súboru do zrekonštruovanej historickej budovy rozobrať a znovu využiť. Tento prístup dáva projektu jasnú logiku a zároveň znižuje mieru stavebného odpadu.
Súčasťou komplexu je hlavná sála s kapacitou 361 miest, menšia scéna pre 100 divákov, foyer, pokladňa, verejný bar, otvorená terasa vo vnútornom dvore, dve skúšobne a samozrejme ďaľšie potrebné obslužné priestory. Vnútorný dvor pritom nefunguje iba ako medzičlánok medzi jednotlivými časťami areálu, ale aj ako spoločenské centrum celého súboru. Nové vstupy, pavilón, terasa či drobnejšie architektonické zásahy dávajú pôvodne utilitárnemu areálu čitateľnejší verejný charakter.
Dôležitou témou projektu je materiálové a konštrukčné riešenie. Veľká sála bola vytvorená z veľkoformátových CLT panelov, ktoré umožnili rýchlu a presnú montáž a zároveň sa počíta s ich ďalším využitím po skončení dočasnej prevádzky. Trvácnejšie časti projektu, teda najmä vstupné priestory a niektoré spoločné prevádzky, pracujú s pohľadovým betónom. Celé riešenie sa tak pohybuje medzi dočasnosťou a trvácnosťou, medzi ľahko demontovateľnými zásahmi a pevnými prvkami, ktoré pomáhajú definovať budúce fungovanie areálu.
Projekt je zároveň ukážkou toho, ako môže aj časovo a rozpočtovo limitovaná úloha priniesť architektonicky zaujímavý výsledok. Namiesto provizória vzniklo prostredie s jasnou priestorovou identitou, ktoré odpovedá na prevádzkové nároky národnej kultúrnej inštitúcie a popritom otvára novú vrstvu mestského života mimo centra Ľubľany.
Ateliér: Vidic Grohar Arhitekti
Fotografie: Maxime Delvaux, Anja Vidic