Advertorial

Pozvánka na 2. ročník stavebného veľtrhu BigMarket na Slovensku

Na podujatí sa predstaví až 37 vystavovateľov - popredných dodávateľov stavebných materiálov a inovácií s prezentáciou...

Hotel Hirschen Spa House, Rakúsko

Novotvar v prostredí alpskej obce.

Vytvorte si kúpeľňu snov: dizajnové riešenie od značky hansgrohe

Hansgrohe - prémiová značka kúpeľňových riešení, ponúka nadčasový dizajn, technickú precíznosť a udržateľné inovácie...

Okná Internorm za minuloročné ceny + hliníkový kryt zdarma!

Využite špeciálnu akciu Internorm: okná za minuloročné ceny a hliníkový kryt úplne zadarmo. Ponuka je časovo obmedzená!

Moderné plynové technológie: Efektivita a inovácie pre 21. storočie

Sumarizácia najdôležitejších inovácií, ktoré redefinujúcich využitie tohto energetického zdroja.

Utesňovanie spodných stavieb pomocou hydro-aktívnej fólie AMPHIBIA.

AMPHIBIA 3000 GRIP 1.3 od spoločnosti ATRO predstavuje modernú hydroizolačnú technológiu, ktorá spája vysokú odolnosť,...

Dekarbonizácia individuálneho vykurovania domácností – Green Deal evolučne a nie revolučne

Ambiciózne plány EK narazili na ekonomické možnosti domácností v jednotlivých členských štátoch –...

Minimalistické dvere IDEA – technická precíznosť a čistota prevedenia

IDEA DOOR od spoločnosti JAP prináša do interiéru čistý minimalistický vzhľad vďaka bezrámovému riešeniu a precíznej...

Dom s výhľadom na údolie, Dlouhý Most (ČR)

Kontinuita riešenia od vonkajšieho obkladu až po kovania a kľučky.

Schell Vitus – osvedčené riešenie pre sprchy a umývadlá vo verejnom sektore s viac ako desaťročnou tradíciou

Nástenné nadomietkové armatúry Vitus sú mimoriadne vhodné pre rýchlu a efektívnu...

Kompozitné okná predstavujú súčasnosť a budúcnosť

Okenné profily z kompozitného materiálu RAU-FIPRO X od spoločnosti Rehau sú v porovnaní s tradičnými plastovými profilmi mnohonásobne...

Myotis - stoly 2025

Najnovší sortiment stolov pre zariadenie interiérov...

Priemyselné sklenené priečky Dorsis Digero: svetelné rozhranie pre moderné interiéry

Spojenie moderného dizajnu, funkčnosti a svetla do harmonického architektonického prvku.

Význam prirodzeného svetla pre moderné a flexibilné pracovné prostredie

Kancelárska budova Baumit v slovinskom Trzine prešla premenou na moderné a udržateľné pracovisko. Architekti kládli dôraz...

Konferencia Xella Dialóg predstaví novinky a trendy v stavebníctve

Mottom šiesteho ročníku on-line konferencie odborníkov Xella Dialóg je Efektívny návrh budov 2025+: zmeny a riešenia

Základňa technických služieb Praha - Lysolaje

Funkčné a kvalitné ≠ nákladné a komplikované.
Diela
Red 324.05.2023
11260+46
Základňa technických služieb Praha - Lysolaje
Autori: Ing. arch. Jan Kalivoda, Ing.arch. Vojtěch Kaas, Michal Svoboda, Tereza SoubustováInvestor: Mestská časť Praha - LysolajeZastavaná plocha: 437 m²Návrh: 2019 - 2020Realizácia: 2020 - 2022Adresa: Květová , Praha - Lysolaje, Česká republikaPublikované: 24. máj 2023

Utilitárna technická stavba z prostriedkov samosprávy. Bežné materiály, dôraz na efektívne využitie prostriedkov a jednoduchú údržbu...

Spomínané východiská v našich končinách často vedú k "nearchitektúre", ktorá v konečnom dôsledku nespĺňa ani jedno z kritérií. Príklad z pražskej štvrte Lysolaje ukazuje protipól. Výsledok, za ktorým stojí tvorivá práca kolektívu PROGRES architekti: "Myslíme si, že je správné stavbu pojmout moderně, pravdivě, jednoduše, ale přitom pokorně k okolí. Proto pracujeme s přiznanou betonovu konstrukcí, která odpovídá charakteru průmyslové stavby (dílny, garáže) v kombinaci s přírodními materiály jako jsou dřevo (velkoformátové výklopné panely garážových vrat), sklo, ocel, zelená střecha."

 

Realizáciu predstavíme so sprievodným slovom autorov:

Při přípravě projektu jsme zjistili, že na rozdíl od zahraničí vzniká v ČR většina technických objektů bez architektonické péče. Časté jsou výrazné a nákladné stavby bez konceptu a kontextu, u kterých byl promarněn potenciál odhalit jejich neopakovatelnou poetiku.

Společně se zástupci městské části jsme si proto na začátku stanovili základní teze zadání. Funkčnost, pravdivost, variabilita, udržitelnost, respekt k okolí, kvalita vnitřního prostředí a edukativnost se staly hlavními tématy, která jsme dále hnětli, abychom získali vyvážený výsledek.

Přirozenému usazení do okolí pomáháme zapuštěním nízké hmoty do svahu. Vztah s okolní obytnou zástavbou navazujeme rytmizací fasád a použitím dřeva na hlavním průčelí. Jeho klidná plocha ožívá při provozu, kdy tep otvírání a zavírání jednotlivých modulů dává stavbě jedinečnou dynamiku.

Prostorová modulární pavučina prefabrikovaného betonového skeletu naplňuje maximální míru variability a dovoluje nám svobodně umístit dva provozy s rozdílnými nároky. Zároveň umožňuje pružně reagovat na budoucí změny požadavků.

Větší technická část obsahuje garáže pro vozidla údržby, autodílnu, sklad materiálu a krytou deponii.

Menší část pro posádku má výrazně odlišné nároky na velikost místností, prosvětlení, akustiku, vnitřní teplotu i výraz. Proto jsme ji koncipovali jako nezávislou vloženou krabičku z lehké montované ocelové konstrukce v pasivním tepelném standardu. Ukrývá v sobě šatny se zázemím, dílnu, kancelář, teplé sklady a společenskou místnost, která slouží i při nočních směnách sněhové pohotovosti.

Lehkou konstrukci jsme využili i pro samostatný objem bytu správce ve druhém podlaží, který je i rezervou do budoucna a je možné ho rozšířit nad sousední moduly.

Zásadní roli ve fungování domu hraje prostorové nic - vstupní atrium. Slouží jako propojka s ulicí, hlavní vstup a komunikační uzel, jehož míru otevřenosti lze nastavit velkými otočnými žábrami. Jeho plášť ze skleněných tvarovek prosvětluje interiér jemným rozptýleným světlem. Je to polosoukromé místo setkávání, kde prší, roste tráva a pěstují se rajčata.

Použití přiznaných konstrukcí a pohledových materiálů bez dalších krycích vrstev podtrhuje celkovou autentickou výpověď.

Vždy přemýšlíme o udržitelnosti a odpovědnosti za vstup do prostředí, ve kterém žijeme. Energetický a enviromentální koncept jsme řešili v čase, kdy nebylo toto téma ještě tak celospolečensky aktuální. Stavba díky tomu obstála i v době současné energetické krize.

Objekt má sloužit jako vzorová realizace a inspirace pro veřejnost. Veřejná stavba by měla jít příkladem v oblastech udržitelnosti, práce s obnovitelnými energiemi, standardu vnitřního prostředí i použitých materiálů.

Díky zapuštění do terénu si nevytápěná technická část udržuje stabilní teplotu a nepromrzá. Vytápěná část je zateplena v pasivním standardu, zdrojem vytápění je tepelné čerpadlo. Fotovoltaická elektrárna s bateriovým úložištěm zajišťuje provoz domu i vybavení údržby. Dešťová voda je akumulována a znovu využívána pro provoz údržby a zálivku. Zelené střechy zlepšují mikroklima, zadržují vodu a zjemňují stavbu. Všechny vnitřní prostory jsou osvětleny přirozeným denním světlem a všechny pobytové plochy mají vysoký standard vnitřní akustiky.
Variabilita provozního uspořádání a použití trvanlivých materiálů prodlužuje životní cyklus.

Foto: Alex Shoots Buildings
Foto: Alex Shoots Buildings
Foto: Alex Shoots Buildings
Foto: Alex Shoots Buildings
Foto: Alex Shoots Buildings
Foto: Alex Shoots Buildings
Foto: Alex Shoots Buildings
Foto: Alex Shoots Buildings
Foto: Alex Shoots Buildings
Foto: Alex Shoots Buildings
Foto: Alex Shoots Buildings
Foto: Alex Shoots Buildings
Foto: Alex Shoots Buildings
Foto: Alex Shoots Buildings
Foto: Alex Shoots Buildings
Foto: Alex Shoots Buildings
Foto: Alex Shoots Buildings
Foto: Alex Shoots Buildings
Foto: Alex Shoots Buildings
Foto: Alex Shoots Buildings
Foto: Alex Shoots Buildings
Foto: Alex Shoots Buildings
Foto: Alex Shoots Buildings
Foto: Alex Shoots Buildings
Foto: Alex Shoots Buildings
Foto: Alex Shoots Buildings
Foto: Alex Shoots Buildings
Foto: Alex Shoots Buildings
Foto: Alex Shoots Buildings
Foto: Alex Shoots Buildings
Foto: Alex Shoots Buildings
Situácia
SituáciaAutor: PROGRES architekti
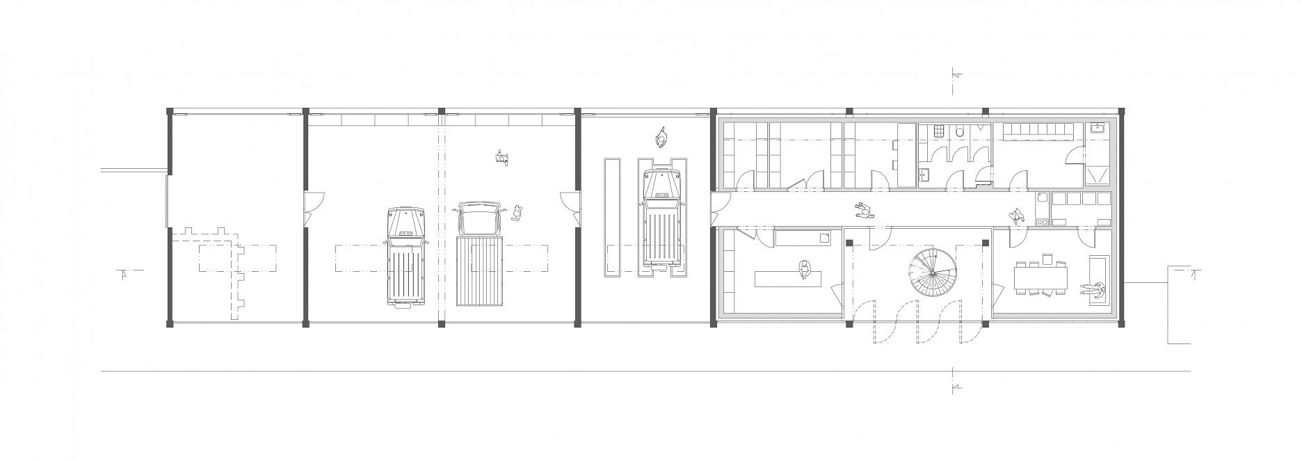
Pôdorys 1. NP
Pôdorys 1. NPAutor: PROGRES architekti
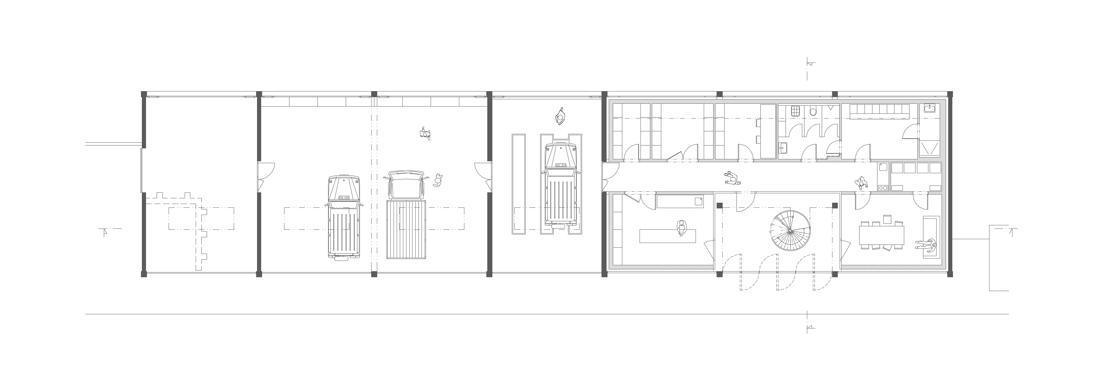
Pôdorys 2. NP
Pôdorys 2. NPAutor: PROGRES architekti
Pozdĺžny rez
Pozdĺžny rezAutor: PROGRES architekti
Priečny rez
Priečny rezAutor: PROGRES architekti
Južný a severný pohľad
Južný a severný pohľadAutor: PROGRES architekti
Východný pohľad
Východný pohľadAutor: PROGRES architekti
Západný pohľad
Západný pohľadAutor: PROGRES architekti
Axonometria
AxonometriaAutor: PROGRES architekti

Materiály:

  • betón - stĺpy, väzníky, stropy, podlahy
  • oceľ - schodisko, rošty, dvere
  • tvarované sklo - stena v átriu
  • drevo - brány, nábytok

Podklady: Linka
Autor: PROGRES architekti
Fotografie: Alex Shoots Buildings

Poloha diela

Ing. arch. Jan Kalivoda
Ing.arch. Vojtěch Kaas
Michal Svoboda
Tereza Soubustová

Súvisiace články

Vložené
24. máj 2023
0
1126
Hlavný obsahHlavný obsah
Čakajte prosím