Advertorial

Pozvánka na 2. ročník stavebného veľtrhu BigMarket na Slovensku

Na podujatí sa predstaví až 37 vystavovateľov - popredných dodávateľov stavebných materiálov a inovácií s prezentáciou...

Hotel Hirschen Spa House, Rakúsko

Novotvar v prostredí alpskej obce.

Vytvorte si kúpeľňu snov: dizajnové riešenie od značky hansgrohe

Hansgrohe - prémiová značka kúpeľňových riešení, ponúka nadčasový dizajn, technickú precíznosť a udržateľné inovácie...

Okná Internorm za minuloročné ceny + hliníkový kryt zdarma!

Využite špeciálnu akciu Internorm: okná za minuloročné ceny a hliníkový kryt úplne zadarmo. Ponuka je časovo obmedzená!

Moderné plynové technológie: Efektivita a inovácie pre 21. storočie

Sumarizácia najdôležitejších inovácií, ktoré redefinujúcich využitie tohto energetického zdroja.

Utesňovanie spodných stavieb pomocou hydro-aktívnej fólie AMPHIBIA.

AMPHIBIA 3000 GRIP 1.3 od spoločnosti ATRO predstavuje modernú hydroizolačnú technológiu, ktorá spája vysokú odolnosť,...

Dekarbonizácia individuálneho vykurovania domácností – Green Deal evolučne a nie revolučne

Ambiciózne plány EK narazili na ekonomické možnosti domácností v jednotlivých členských štátoch –...

Minimalistické dvere IDEA – technická precíznosť a čistota prevedenia

IDEA DOOR od spoločnosti JAP prináša do interiéru čistý minimalistický vzhľad vďaka bezrámovému riešeniu a precíznej...

Dom s výhľadom na údolie, Dlouhý Most (ČR)

Kontinuita riešenia od vonkajšieho obkladu až po kovania a kľučky.

Schell Vitus – osvedčené riešenie pre sprchy a umývadlá vo verejnom sektore s viac ako desaťročnou tradíciou

Nástenné nadomietkové armatúry Vitus sú mimoriadne vhodné pre rýchlu a efektívnu...

Kompozitné okná predstavujú súčasnosť a budúcnosť

Okenné profily z kompozitného materiálu RAU-FIPRO X od spoločnosti Rehau sú v porovnaní s tradičnými plastovými profilmi mnohonásobne...

Myotis - stoly 2025

Najnovší sortiment stolov pre zariadenie interiérov...

Priemyselné sklenené priečky Dorsis Digero: svetelné rozhranie pre moderné interiéry

Spojenie moderného dizajnu, funkčnosti a svetla do harmonického architektonického prvku.

Význam prirodzeného svetla pre moderné a flexibilné pracovné prostredie

Kancelárska budova Baumit v slovinskom Trzine prešla premenou na moderné a udržateľné pracovisko. Architekti kládli dôraz...

Konferencia Xella Dialóg predstaví novinky a trendy v stavebníctve

Mottom šiesteho ročníku on-line konferencie odborníkov Xella Dialóg je Efektívny návrh budov 2025+: zmeny a riešenia

Pracovisko a sídlo firmy v historickom mestskom dome. AON Praha

Kancelárie v neobarokovom dome s bohato zdobeným štítom orientovaným na "Václavák".
Diela
Red 106.10.2018
12030+9
Pracovisko a sídlo firmy v historickom mestskom dome. AON Praha
Ateliér: PROGRES ATELIERAutori: Ing. arch. Jan Kalivoda, Ing.arch. Vojtěch KaasInvestor: AON Central and Eastern EuropePodlažná plocha: 1100 m2Investičný náklad: 30 mil. KčNávrh: 2016 - 2016Realizácia: 2016 - 2017Adresa: Václavské námestie 832/19, Praha, Česká republikaPublikované: 6. október 2018

Reprezentačné schodisko, dekor v miestnostiach s vysokým stropom. Vhodné priestory pre sídlo firmy. Dá sa to však povedať aj o kanceláriách? Ako skĺbiť požiadavky na moderné pracovisko, bez toho, aby nebola pôvodná architektúra potlačená do úzadia? Aj na tieto otázky sa snažili architekti pri realizácii odpovedať.

Sídlo spoločnosti sa nachádza v starom mestskom dome, na mieste, kde Jindřišská ulica križuje Václavské námestie. Neobaroková budova bol postavenená v roku 1896 podľa návrhu rakúskeho architekta Friedricha Ohmanna. Prvou, menšou úlohou, ktorej sa zhostili architekti z ateliéru Progres bola rekonštrukcia jedálne. Ďaľším nadväzujúcim projektom bol návrh malej open space časti v zadnom trakte domu. V roku 2016 už architekti riešili pôdorys celého poschodia s výmerou 1100 m2.

Foto: BoysPlayNice
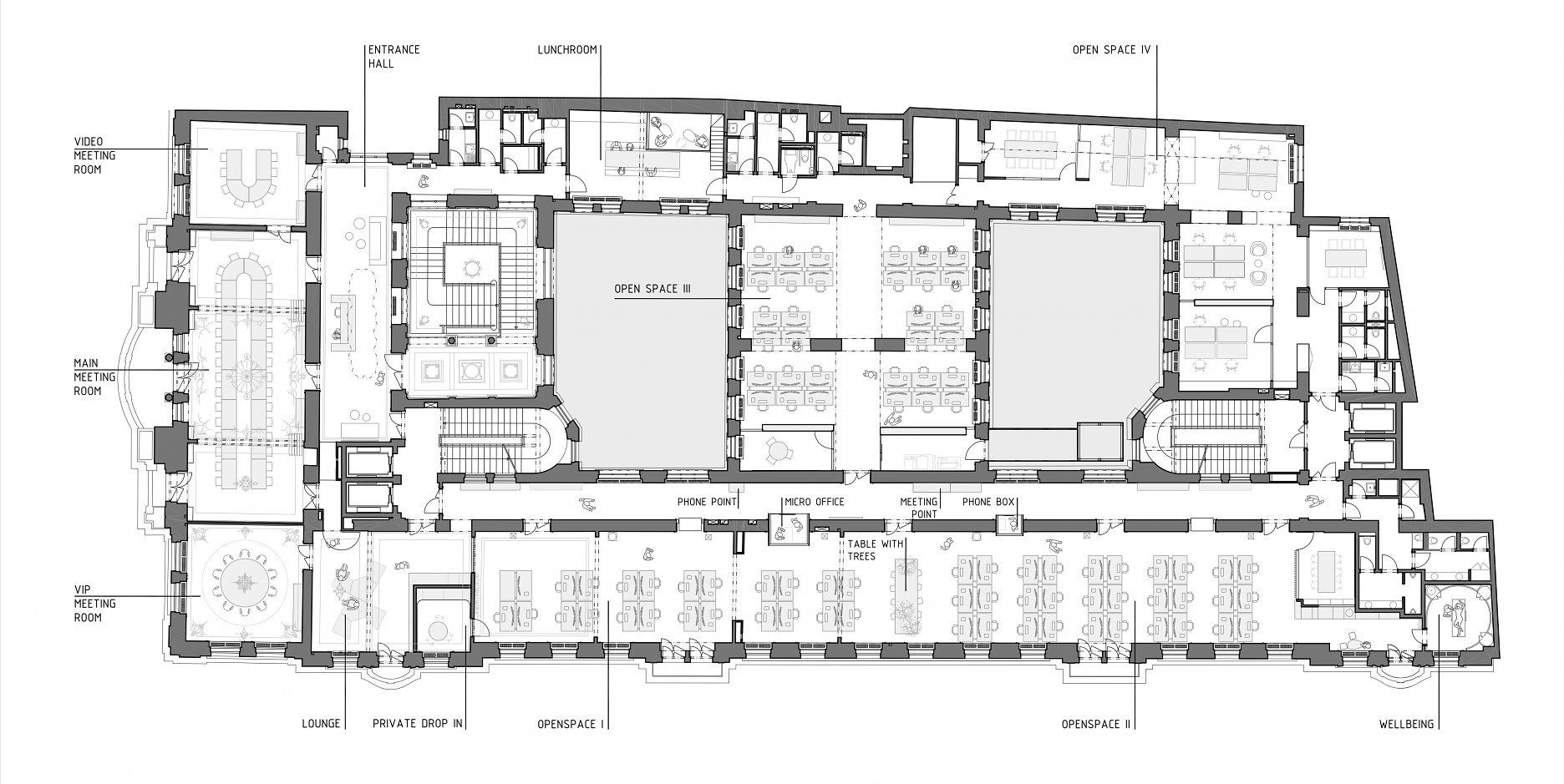
Pôdorys poschodia
Pôdorys poschodia

Zadanie bolo od začiatku formulované jasne: vytvoriť reprezentatívne sídlo firmy, kvalitné pracovné prostredie s dostatkom oddychových priestorov. Dané boli kapacitné požiadavky na jednotlivé funkčné časti. Okrem spomínaného rámca mali autori pri návrhu voľnú ruku. Začalo sa náročné hľadanie adekvátnych odpovedí na nejednoznačné otázky. "Hlavu jsme si lámali především s nestandardními prostorovými omezeními a s implementací moderních technologií a ergonomických standardů do historického prostředí.", ozrejmujú autori. To všetko samozrejme s minimálnymi zásahmi do historickej budovy.

Foto: BoysPlayNice
Foto: BoysPlayNice
Foto: BoysPlayNice
Foto: BoysPlayNice

V priestoroch celého poschodia sa v rôznych podobách prelínajú tri základné funkcie - reprezentácia, práca a odpočinok. Do prvej kategórie patria vstupné priestory s mosadzným recepčným pultom. Pod stropom "plynie" zavesené svietidlo s organicky tvarovaným textilným tienidlom. Na vstupné priestory naväzuje hlavná zasadacia miestnosť pre 36 osôb, ktorú je možné rozdeliť na tri nezávislé "meeting roomy" vďaka systému posuvných akustických panelov. Firmu tiež reprezentuje VIP salón, s masívnym kruhovým stolom. Akustiku rokovacích miestností zabezpečujú na mieru zhotovené čalúnené kazety. 

Foto: BoysPlayNice
Foto: BoysPlayNice

Pri navrhovaní pracoviska sa architekti zamerali na priestorovú variabilitu a vytvorenie rozmanitých funkčných zón. Pracovné miesta sú vybavené ergonomickými polohovateľnými stolami. Celou open space kanceláriou prechádzajú subtílne svetelné profily ovládané systémom umožňujúcim meniť mieru priamej a nepriamej zložky osvetlenia. Bezproblémovú komunikáciu zamestnancov zabezpečujú pod stropom zavesené veľkoformátové akustické panely. Pracovisko dopĺňa zeleň na stenách alebo živé stromy rastúce cez dosku štyri metre dlhého pracovného pultu. Každý zamestnanec môže na stretnutia využiť čalúnené meeting pointy, uskutočniť hovor v phoneboxe, vybaviť krátke jednanie v micro office so sklenenou stenou, či využiť množstvo menších jednacích miestností.

Foto: BoysPlayNice
Foto: BoysPlayNice
Foto: BoysPlayNice
Foto: BoysPlayNice

Pracovisko dopĺňa množstvo oddychových priestorov. Sú to malé, presne definované body v pôdoryse poschodia, ktoré sú však pre fungovanie celku veľmi dôležité. V lunchroome sa stretávajú kolegovia pri rannej káve, neskôr tu obedujú pri stole z masívneho dreva. Majú tiež možnosť posedieť si v súkromí vykonzolovaného pódia. Lounge slúži ako zóna kľudu a odpočinku, miesto neformálneho stretávania alebo ako mini kino pri sledovaní napínavých športových prenosov. Miestnosť ukrytá za machovou stenou vytvára podmienky pre tiché sústredenie, či meditáciu. Jeho päť metrov vysoký kruhový priestor využívaný tiež na cvičenie. Raz do týždňa tu prebiehajú v rámci benefitov pre zamestnancov masáže.

Foto: BoysPlayNice
Foto: BoysPlayNice
Foto: BoysPlayNice
Foto: BoysPlayNice
Foto: BoysPlayNice
Foto: BoysPlayNice
Foto: BoysPlayNice
Foto: BoysPlayNice
Foto: BoysPlayNice
Foto: BoysPlayNice

Poloha diela

Ing. arch. Jan Kalivoda
Ing.arch. Vojtěch Kaas

Súvisiace články

Vložené
31. júl 2018
0
1203
Hlavný obsahHlavný obsah
Čakajte prosím