Advertorial

Pozvánka na 2. ročník stavebného veľtrhu BigMarket na Slovensku

Na podujatí sa predstaví až 37 vystavovateľov - popredných dodávateľov stavebných materiálov a inovácií s prezentáciou...

Hotel Hirschen Spa House, Rakúsko

Novotvar v prostredí alpskej obce.

Vytvorte si kúpeľňu snov: dizajnové riešenie od značky hansgrohe

Hansgrohe - prémiová značka kúpeľňových riešení, ponúka nadčasový dizajn, technickú precíznosť a udržateľné inovácie...

Okná Internorm za minuloročné ceny + hliníkový kryt zdarma!

Využite špeciálnu akciu Internorm: okná za minuloročné ceny a hliníkový kryt úplne zadarmo. Ponuka je časovo obmedzená!

Moderné plynové technológie: Efektivita a inovácie pre 21. storočie

Sumarizácia najdôležitejších inovácií, ktoré redefinujúcich využitie tohto energetického zdroja.

Utesňovanie spodných stavieb pomocou hydro-aktívnej fólie AMPHIBIA.

AMPHIBIA 3000 GRIP 1.3 od spoločnosti ATRO predstavuje modernú hydroizolačnú technológiu, ktorá spája vysokú odolnosť,...

Dekarbonizácia individuálneho vykurovania domácností – Green Deal evolučne a nie revolučne

Ambiciózne plány EK narazili na ekonomické možnosti domácností v jednotlivých členských štátoch –...

Minimalistické dvere IDEA – technická precíznosť a čistota prevedenia

IDEA DOOR od spoločnosti JAP prináša do interiéru čistý minimalistický vzhľad vďaka bezrámovému riešeniu a precíznej...

Dom s výhľadom na údolie, Dlouhý Most (ČR)

Kontinuita riešenia od vonkajšieho obkladu až po kovania a kľučky.

Schell Vitus – osvedčené riešenie pre sprchy a umývadlá vo verejnom sektore s viac ako desaťročnou tradíciou

Nástenné nadomietkové armatúry Vitus sú mimoriadne vhodné pre rýchlu a efektívnu...

Kompozitné okná predstavujú súčasnosť a budúcnosť

Okenné profily z kompozitného materiálu RAU-FIPRO X od spoločnosti Rehau sú v porovnaní s tradičnými plastovými profilmi mnohonásobne...

Myotis - stoly 2025

Najnovší sortiment stolov pre zariadenie interiérov...

Priemyselné sklenené priečky Dorsis Digero: svetelné rozhranie pre moderné interiéry

Spojenie moderného dizajnu, funkčnosti a svetla do harmonického architektonického prvku.

Význam prirodzeného svetla pre moderné a flexibilné pracovné prostredie

Kancelárska budova Baumit v slovinskom Trzine prešla premenou na moderné a udržateľné pracovisko. Architekti kládli dôraz...

Konferencia Xella Dialóg predstaví novinky a trendy v stavebníctve

Mottom šiesteho ročníku on-line konferencie odborníkov Xella Dialóg je Efektívny návrh budov 2025+: zmeny a riešenia

Obytný súbor – nájomné bývanie, Košice: diplomová práca nominovaná na Cenu profesora Jozefa Lacka

Záverečná práca absolventa Katedry architektúry Svf STU, nominovaná v rámci Celoštátnej súťaže o najlepšiu diplomovú prácu absolventov architektonických škôl.
Diela
Red 305.09.2021
22590+44
Obytný súbor – nájomné bývanie, Košice: diplomová práca nominovaná na Cenu profesora Jozefa Lacka
Autori: Ing. Dávid Husár, Ing. arch. Pavol Paňák (vedúci práce)Návrh: 2021 - 2021Adresa: Jesenského 4, Košice, SlovenskoPublikované: 5. september 2021

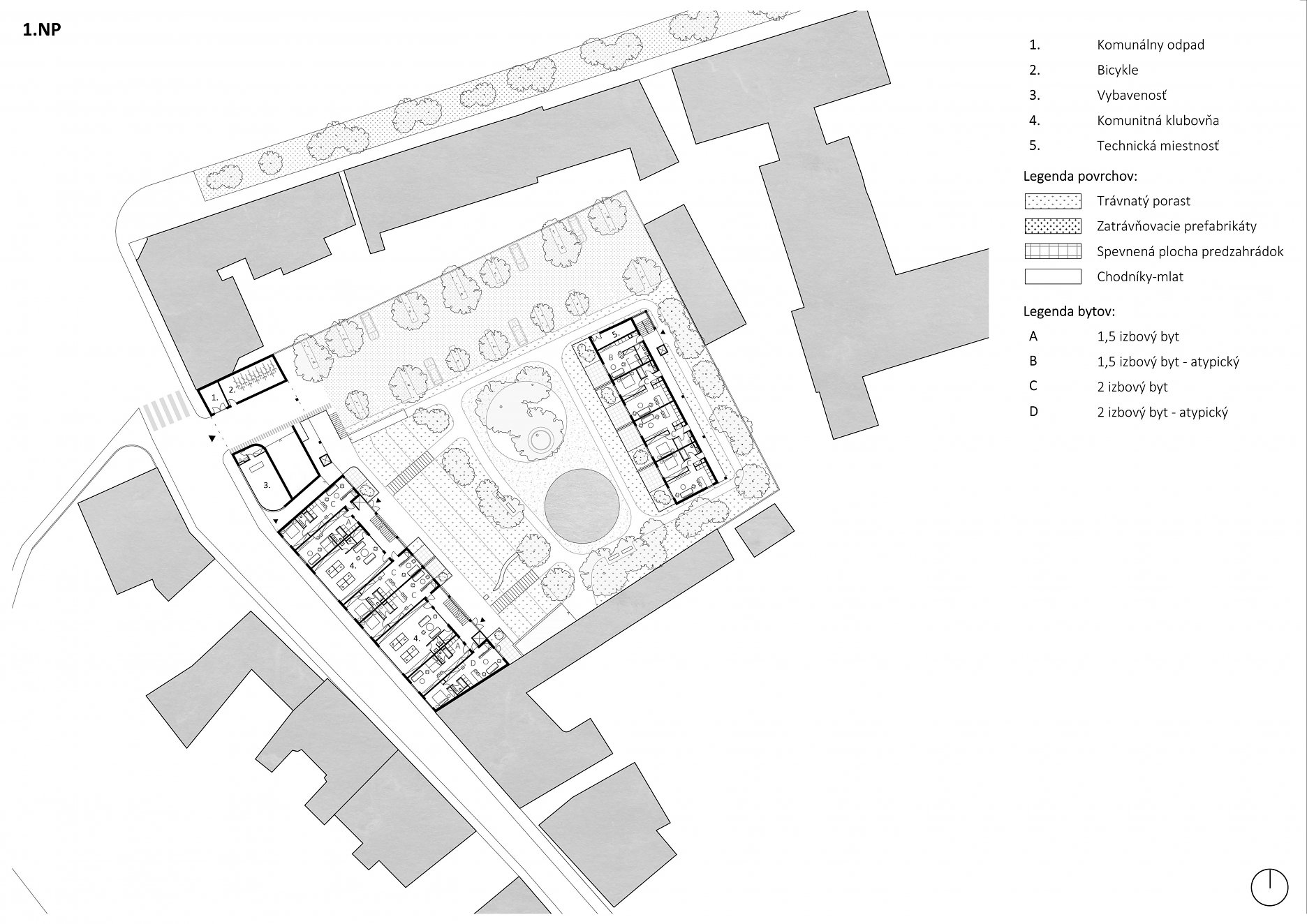
Diplomový projekt Davida Husára, ktorý vznikol pod vedením Pavla Paňáka, vychádza zo zadania architektonickej súťaže "Výstavba nájomných bytov na Jesenského 4 v Košiciach". Obytný súbor tvorí dvojica domov. Prvý z nich vypĺňa prieluku a kopíruje pôdorysnú stopu pôvodného funkcionalistického domu. Posunutie druhého objektu na severovýchodnú hranicu územia definuje priestor vnútrobloku s novým funkčným využitím.

Z posudku Róberta Bakytu:

Riešené územie sa nachádza na mestskom ringu, v dotyku historického jadra, v pozícii kde expandovala väčšina európskych miest ihneď potom ako stredoveké hradobné opevnenia stratili svoj význam; neďaleko mŕtveho ramena rieky Hornád, v dotyku s mestským parkom. Vzhľadom na vyššie uvedené je namieste požadovať tu dom mestotvorného charakteru, čo sa autorovi nepochybne podarilo.

Mesto Košice sa na tomto pozemku rozhodlo vypísaním súťaže nájsť vhodné riešenie pre nájomné bývanie a diplomová práca Dávida Husára sa stala jednou z možných správnych odpovedí na toto zadanie.

Okolitá zástavba je charakteristická uličnou čiarou s prielukami, ktorá však nie je úplne kompaktná.
V súčasnosti je riešená parcela ohraničená štítmi dvoch mestských domov, zastavaná hospodárskymi objektami bez väčšej architektonickej hodnoty. Zároveň sa v dotyku s Jesenského ulicou mierne zalamuje.
Autor hospodárske objekty búra a medzi dva mestské štíty – veľmi správne – umiestňuje na uličnú čiaru hmotu v tvare zalomeného abstraktného štvorpodlažného hranola, perforovaného dvoma otvormi pre vstupy do dvora.

Hranol umiestňuje na sokel – akúsi platformu, ktorá smerom do dvora vychádza mimo jeho objem a tvorí nástupné plató pre pavlače bytov v kontakte s vnútornou zeleňou. Táto platforma je zapustená o pol podlažia do suterénu a prístupná krátkou rampu, poskytuje priestor pre parkovanie. Zároveň tak úroveň prvého nadzemného podlažia posúva nad úroveň parteru, toto sa stáva obytným. Riešenie je veľmi čisté a ponúka logickú prevádzku a vedie na dispozíciu s pavlačou.

Keďže požadovaný program mesta nebolo možné umiestniť do jednej hmoty, autor pridáva ďalší -solitérny objekt. Tento komponuje pozdĺž východnej hranice riešeného pozemku. Tým sa jednak vymedzuje zelený dvor, ktorý slúži obyvateľom a zároveň sa minimalizuje dopad na jestvujúce štruktúry na severnej časti bloku, naopak ich jestvujúce dvorové fasády budú ťažiť z výhľadu na kultivovanú zeleň, radením nových hmôt sa stávajú aktívnymi partnermi novej, dobre fungujúcej schémy. Vzniká tak harmonický celok starej a novej zástavby.

Riešenie architektúry fasád je poňaté veľmi decentne, Vertikálne okenné otvory bytov na uličnej fasáde ale i vo dvore majú harmonickú proporciu, sú zvládnuté aj v detaile v prevedení s balkónmi alebo bez.

Dispozície bytov sú riešené v duchu súčasných trendov. Obe hmoty ponúkajú spoločné pobytové priestory – pavlače a solitérny objekt aj terasu.

Proporcia, veľkosti hmôt, ich vzájomné radenie v jestvujúcej urbanistickej štruktúre, vnútorná logika prevádzok dvora, parkovania a domov je zvládnutá a nepochybne sa jedná o dobre spracovaný, konzistentný a kultivovaný návrh. Projektové rozpracovanie je na vysokej úrovni, precízne riešený detail a interiér sú dôkladne spracované so značným estetickým nárokom...

 

Plagát:

Textová časť diplomovej práce:

Poloha diela

Ing. Dávid Husár
Ing. arch. Pavol Paňák

Súvisiace články

Vložené
19. august 2021
0
2259
Hlavný obsahHlavný obsah
Čakajte prosím