Advertorial

Okná Internorm za minuloročné ceny + hliníkový kryt zdarma!

Využite špeciálnu akciu Internorm: okná za minuloročné ceny a hliníkový kryt úplne zadarmo. Ponuka je časovo obmedzená!

Pozvánka na 2. ročník stavebného veľtrhu BigMarket na Slovensku

Na podujatí sa predstaví až 37 vystavovateľov - popredných dodávateľov stavebných materiálov a inovácií s prezentáciou...

Moderné plynové technológie: Efektivita a inovácie pre 21. storočie

Sumarizácia najdôležitejších inovácií, ktoré redefinujúcich využitie tohto energetického zdroja.

Utesňovanie spodných stavieb pomocou hydro-aktívnej fólie AMPHIBIA.

AMPHIBIA 3000 GRIP 1.3 od spoločnosti ATRO predstavuje modernú hydroizolačnú technológiu, ktorá spája vysokú odolnosť,...

Dekarbonizácia individuálneho vykurovania domácností – Green Deal evolučne a nie revolučne

Ambiciózne plány EK narazili na ekonomické možnosti domácností v jednotlivých členských štátoch –...

Minimalistické dvere IDEA – technická precíznosť a čistota prevedenia

IDEA DOOR od spoločnosti JAP prináša do interiéru čistý minimalistický vzhľad vďaka bezrámovému riešeniu a precíznej...

Dom s výhľadom na údolie, Dlouhý Most (ČR)

Kontinuita riešenia od vonkajšieho obkladu až po kovania a kľučky.

Schell Vitus – osvedčené riešenie pre sprchy a umývadlá vo verejnom sektore s viac ako desaťročnou tradíciou

Nástenné nadomietkové armatúry Vitus sú mimoriadne vhodné pre rýchlu a efektívnu...

Kompozitné okná predstavujú súčasnosť a budúcnosť

Okenné profily z kompozitného materiálu RAU-FIPRO X od spoločnosti Rehau sú v porovnaní s tradičnými plastovými profilmi mnohonásobne...

Myotis - stoly 2025

Najnovší sortiment stolov pre zariadenie interiérov...

Priemyselné sklenené priečky Dorsis Digero: svetelné rozhranie pre moderné interiéry

Spojenie moderného dizajnu, funkčnosti a svetla do harmonického architektonického prvku.

Význam prirodzeného svetla pre moderné a flexibilné pracovné prostredie

Kancelárska budova Baumit v slovinskom Trzine prešla premenou na moderné a udržateľné pracovisko. Architekti kládli dôraz...

Konferencia Xella Dialóg predstaví novinky a trendy v stavebníctve

Mottom šiesteho ročníku on-line konferencie odborníkov Xella Dialóg je Efektívny návrh budov 2025+: zmeny a riešenia

Murovací robot WLTR stavia svoj prvý dom na Slovensku

Robot WLTR predstavuje moderný prístup k murovaným konštrukciám. Vďaka automatizácii dokáže rýchlo, presne a bezpečne realizovať...

Nová éra bezpečnosti s I-tec Secure od Internorm

Okrem bezpečnosti majú okná aj elegantný vzhľad, pretože nie sú viditeľné žiadne uzamykacie časti kovania.

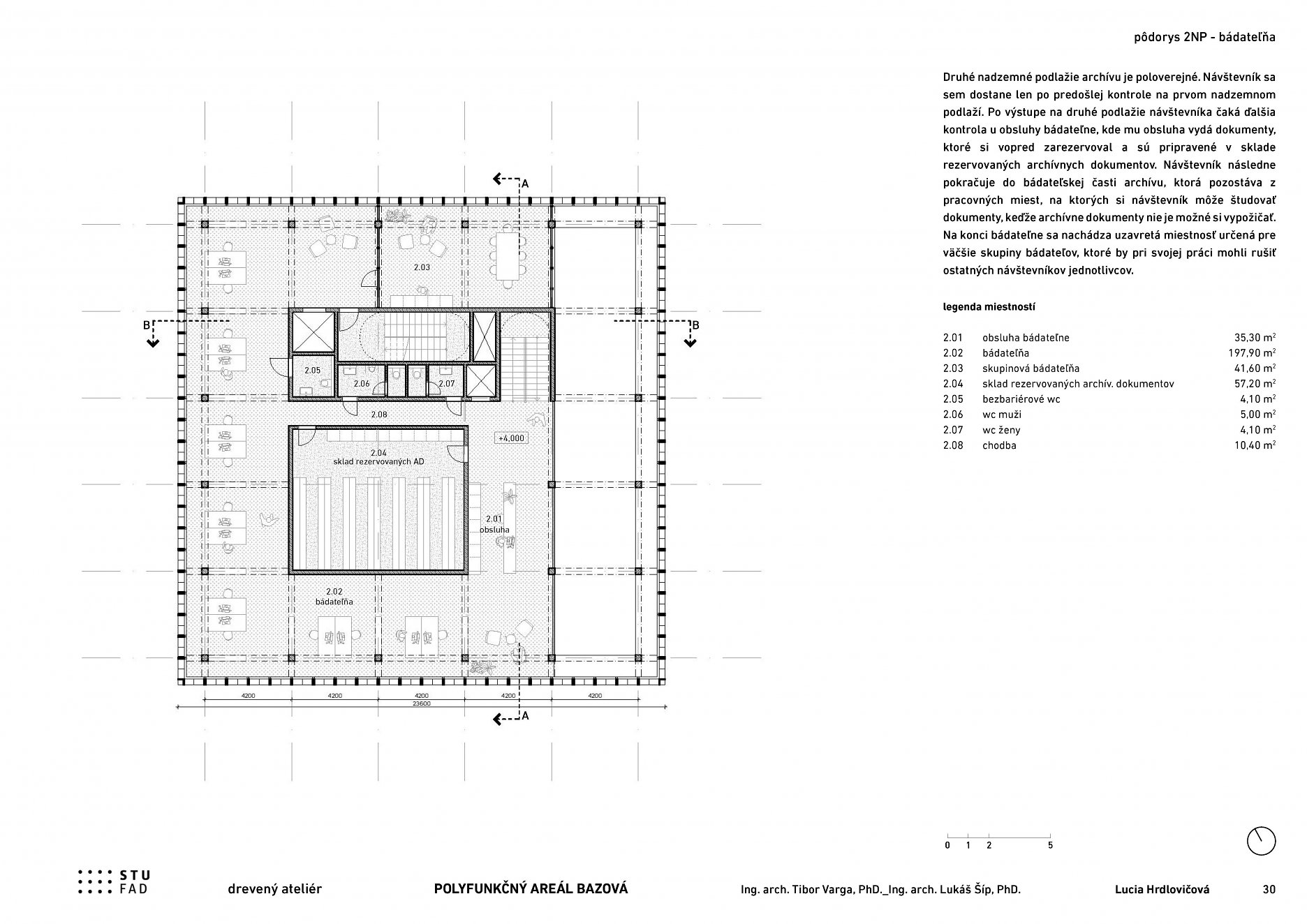
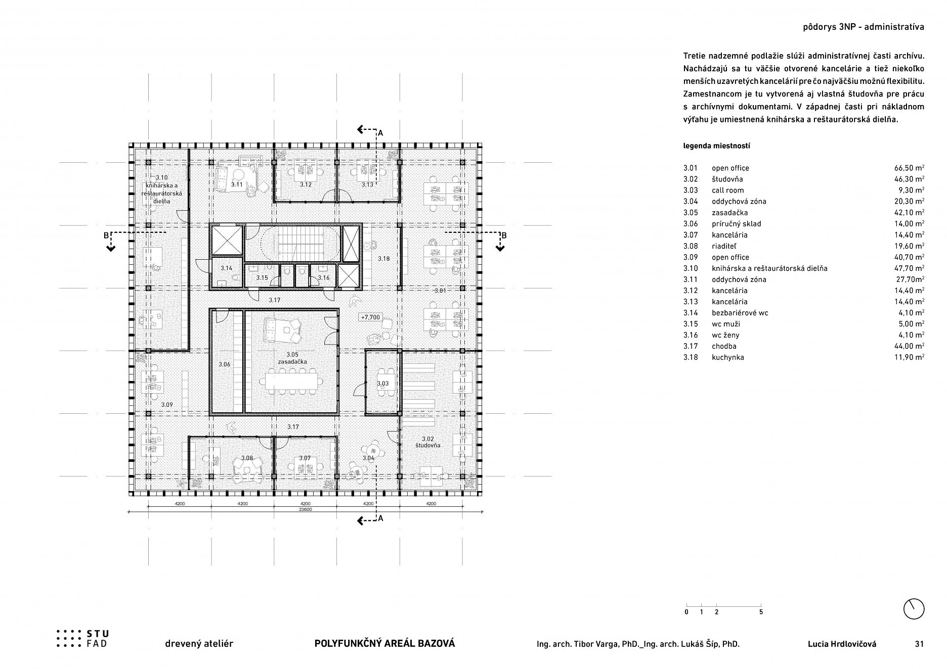
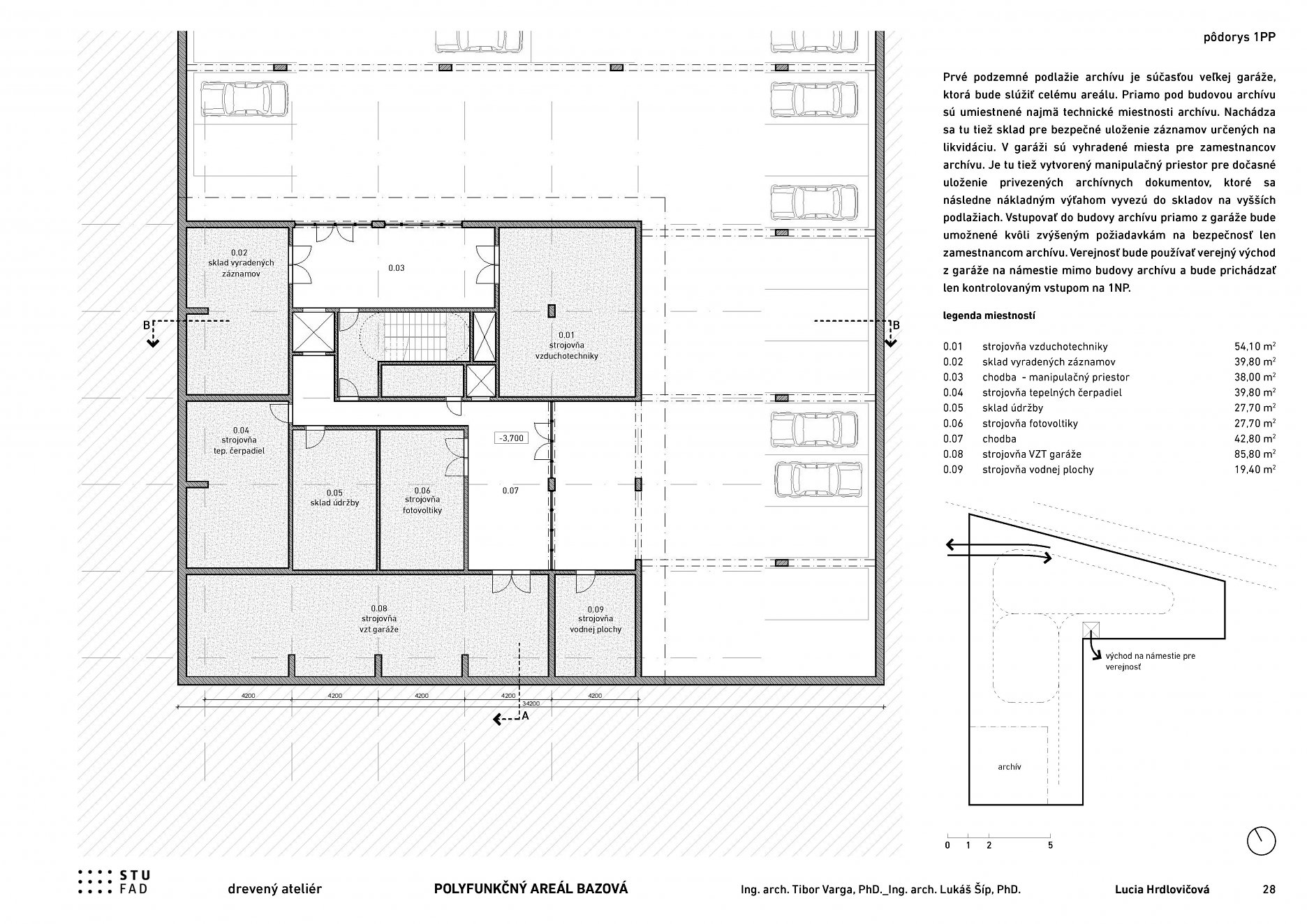
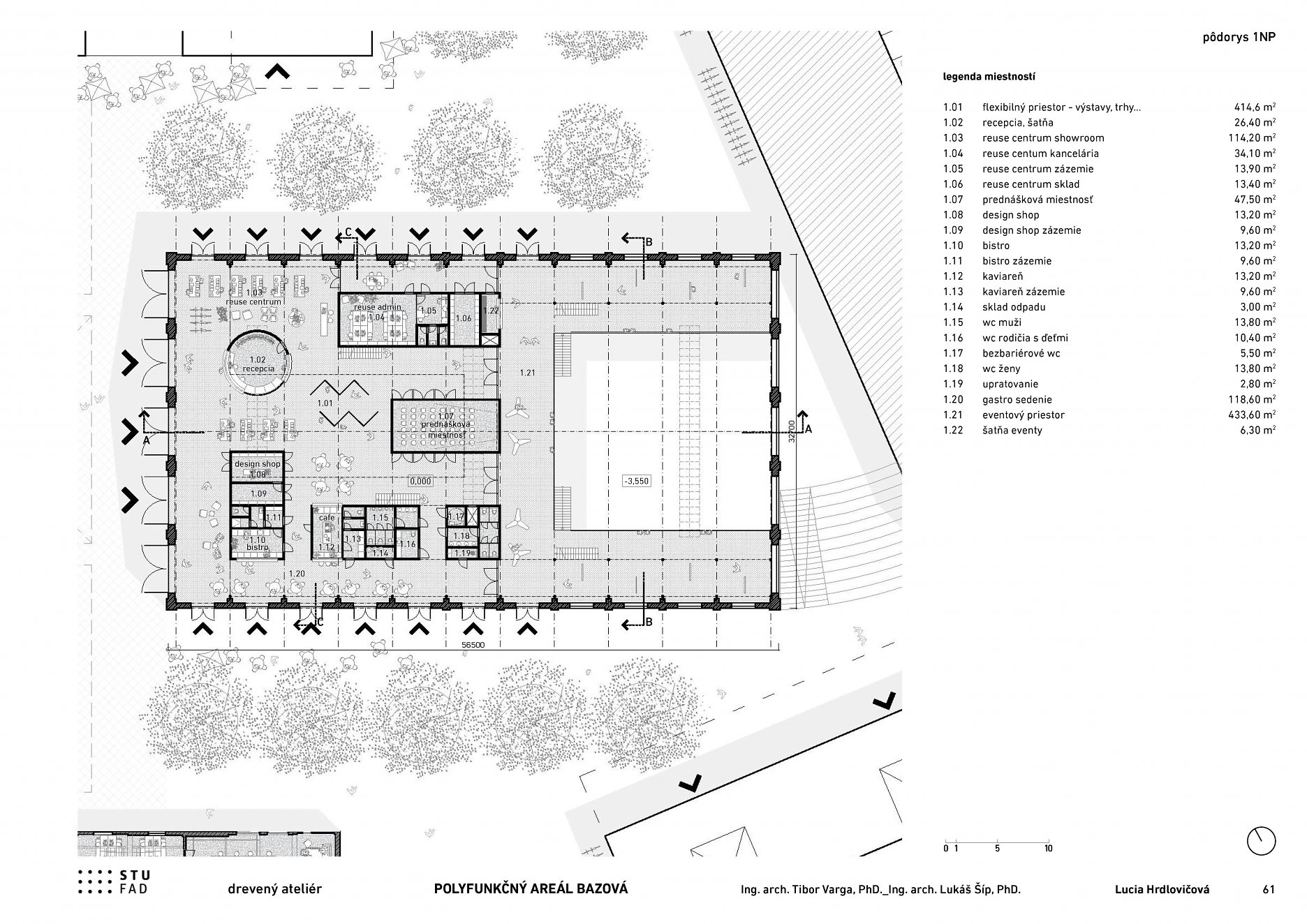
Polyfunkčný areál Bazová: diplomová práca nominovaná na Cenu profesora Jozefa Lacka

Záverečná práca absolventky Fakulty architektúry a dizajnu STU, nominovaná v rámci Celoštátnej súťaže o najlepšiu diplomovú prácu absolventov architektonických škôl.
Diela
Red 330.09.2021
19070+30
Polyfunkčný areál Bazová: diplomová práca nominovaná na Cenu profesora Jozefa Lacka
Autori: Ing. arch. Lucia Hrdlovičová, Ing. arch. Tibor Varga, PhD. (vedúci práce)Návrh: 2021 - 2021Adresa: Bazová , Bratislava, SlovenskoPublikované: 30. september 2021

Záverečná práca sa zameriava na revitalizáciu bývalého areálu technických služieb mesta Bratislava na Bazovej ulici. 

"Chátrajúce územie má vďaka vďaka výbornej polohe v rámci hlavného mesta potenciál stať sa novým kultúrnym centrom, kde dôjde k stretu mnohých zaujímavých mestských inštitúcií - nachádzať sa tu bude MIB – Metropolitný inštitút Bratislava, CAMP - Centrum architektúry a mestského plánovania, nový Archív mesta Bratislava a GIB - Generálny investor Bratislavy. Mestské inštitúcie doplnenia ďalšie funkcie: mestské nájomné bývanie, občianska vybavenosť, gastro prevádzky či Reuse centrum... Spomínané funkcie majú v tejto polohe potenciál vytvoriť živú, fungujúcu a atraktívnu lokalitu. V areáli budú revitalizované existujúce objekty hál a taktiež budú doplnené novostavby mestského archívu a nájomných bytov," vysvetľuje v abstrakte svoj pohľad na ideálnu budúcnosť areálu Lucia Hrdlovičová. 

Dôvody nominácie ozrejmuje hodnotiaca komisia Ceny profesora Jozefa Lacka: "Výborné urbanistické riešenie so štvorcovým pôdorysom archívu, efektívna pravouhlá dispozícia s konceptom domu ako drevostavby. Výraz objektu zodpovedá funkcii, je racionálny a popri tom objekt pôsobí poeticky a kontextuálne zapadá do prostredia. Výborná prezentácia diplomovej práce."

Plagát:

Poloha diela

Ing. arch. Lucia Hrdlovičová
Ing. arch. Tibor Varga, PhD.

Súvisiace články

Vložené
17. september 2021
0
1907
Hlavný obsahHlavný obsah
Čakajte prosím