Advertorial

95 rokov Internorm: 30 miliónov okien a dverí z Rakúska

Európska značka okien oslavuje jubileum: za 95 rokov sa vyvinula na najväčšiu medzinárodne pôsobiacu okennú značku a inovačného...

Pozvánka na 2. ročník stavebného veľtrhu BigMarket na Slovensku

Na podujatí sa predstaví až 37 vystavovateľov - popredných dodávateľov stavebných materiálov a inovácií s prezentáciou...

Hotel Hirschen Spa House, Rakúsko

Novotvar v prostredí alpskej obce.

Vytvorte si kúpeľňu snov: dizajnové riešenie od značky hansgrohe

Hansgrohe - prémiová značka kúpeľňových riešení, ponúka nadčasový dizajn, technickú precíznosť a udržateľné inovácie...

Okná Internorm za minuloročné ceny + hliníkový kryt zdarma!

Využite špeciálnu akciu Internorm: okná za minuloročné ceny a hliníkový kryt úplne zadarmo. Ponuka je časovo obmedzená!

Moderné plynové technológie: Efektivita a inovácie pre 21. storočie

Sumarizácia najdôležitejších inovácií, ktoré redefinujúcich využitie tohto energetického zdroja.

Utesňovanie spodných stavieb pomocou hydro-aktívnej fólie AMPHIBIA.

AMPHIBIA 3000 GRIP 1.3 od spoločnosti ATRO predstavuje modernú hydroizolačnú technológiu, ktorá spája vysokú odolnosť,...

Dekarbonizácia individuálneho vykurovania domácností – Green Deal evolučne a nie revolučne

Ambiciózne plány EK narazili na ekonomické možnosti domácností v jednotlivých členských štátoch –...

Minimalistické dvere IDEA – technická precíznosť a čistota prevedenia

IDEA DOOR od spoločnosti JAP prináša do interiéru čistý minimalistický vzhľad vďaka bezrámovému riešeniu a precíznej...

Dom s výhľadom na údolie, Dlouhý Most (ČR)

Kontinuita riešenia od vonkajšieho obkladu až po kovania a kľučky.

Schell Vitus – osvedčené riešenie pre sprchy a umývadlá vo verejnom sektore s viac ako desaťročnou tradíciou

Nástenné nadomietkové armatúry Vitus sú mimoriadne vhodné pre rýchlu a efektívnu...

Kompozitné okná predstavujú súčasnosť a budúcnosť

Okenné profily z kompozitného materiálu RAU-FIPRO X od spoločnosti Rehau sú v porovnaní s tradičnými plastovými profilmi mnohonásobne...

Myotis - stoly 2025

Najnovší sortiment stolov pre zariadenie interiérov...

Priemyselné sklenené priečky Dorsis Digero: svetelné rozhranie pre moderné interiéry

Spojenie moderného dizajnu, funkčnosti a svetla do harmonického architektonického prvku.

Význam prirodzeného svetla pre moderné a flexibilné pracovné prostredie

Kancelárska budova Baumit v slovinskom Trzine prešla premenou na moderné a udržateľné pracovisko. Architekti kládli dôraz...

Dez / orientácia: víťazná práca Ceny profesora Jozefa Lacka

Záverečná práca absolventky Katedry architektúry na Technickej univerzite v Košiciach, ktorá zvíťazila v Celoštátnej súťaže o najlepšiu diplomovú prácu absolventov architektonických škôl.
Diela
Red 325.09.2021
28020+64
Dez / orientácia: víťazná práca Ceny profesora Jozefa Lacka
Autori: Ing. arch. Daniela SabováSpolupráca: Ing. arch. Irakli Eristavi (vedúci práce)Návrh: 2021 - 2021Adresa: Košice, SlovenskoPublikované: 25. september 2021

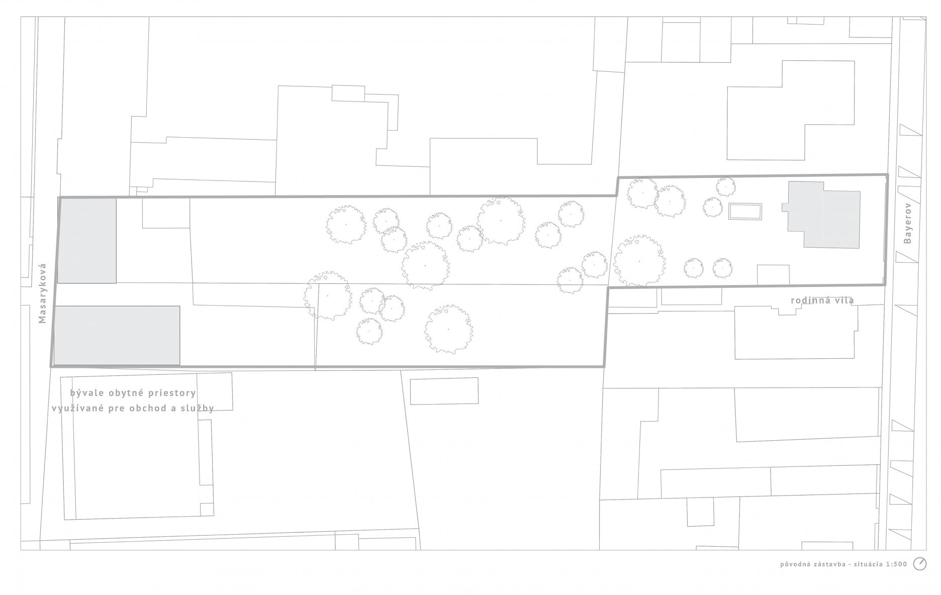
Diplomová práca zachytáva proces skúmania orientácie a dezorientácie v priestore. Pozoruje človeka v mestskej štruktúre. Prechádza od kolektívneho, až k intímnemu priestoru, ktorý skúma vo filozofickej, urbanistickej aj architektonickej rovine.

Teoretická časť všeobecne približuje orientáciu, dezorientáciu a paralely, ktoré vzišli z pozorovania v konkrétnych prostrediach. Cieľom je rozvinúť alternatívne prístupy pri analýze.

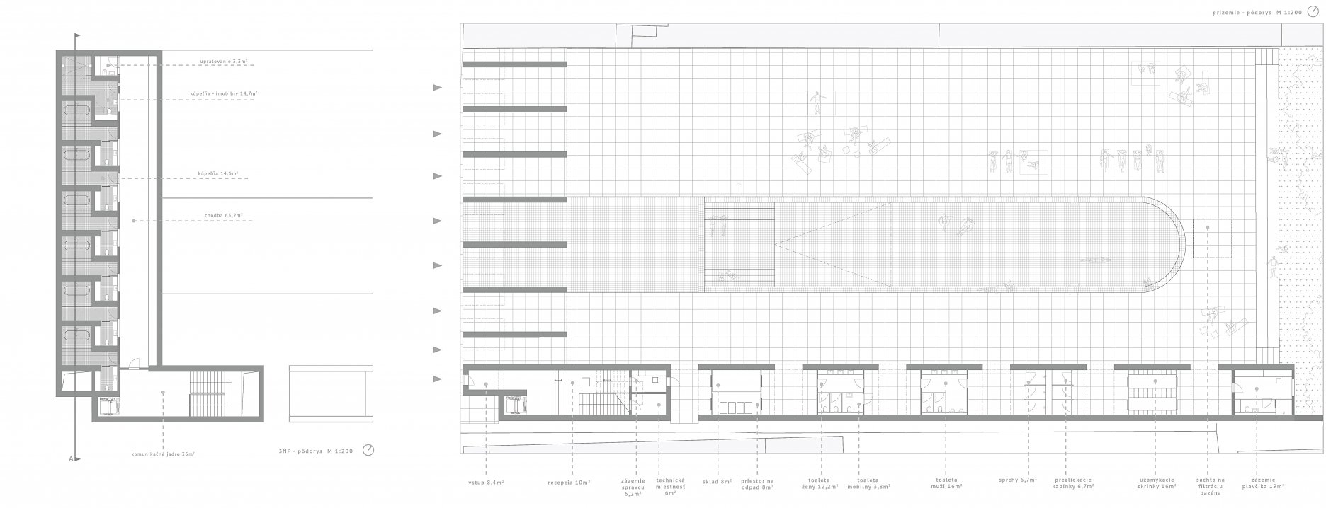
Architektonická štúdia, s podtitulom Kúpeľňa v meste, následne overuje východiská na konkrétnom prípade. "Mestské kúpeľne" sú alternatívnou typológiou, ktorá experimentuje s ľudskou intimitou vo verejnom priestore. 

 

Teoretická časť práce:

Dez / orientácia
Dez / orientácia
Skutočné mesto
Skutočné mesto
Extrémny obraz mesta
Extrémny obraz mesta
Dystopický obraz mesta
Dystopický obraz mesta

 

 

 

Architektonická štúdia:

 

Sketchbook:

 

Plagáty:

Textová časť diplomovej práce:

Plagát:

Poloha diela

Ing. arch. Daniela Sabová

Súvisiace články

Vložené
17. september 2021
0
2802
Hlavný obsahHlavný obsah
Čakajte prosím