Na podujatí sa predstaví až 37 vystavovateľov - popredných dodávateľov stavebných materiálov a inovácií s prezentáciou...
Novotvar v prostredí alpskej obce.
Hansgrohe - prémiová značka kúpeľňových riešení, ponúka nadčasový dizajn, technickú precíznosť a udržateľné inovácie...
Využite špeciálnu akciu Internorm: okná za minuloročné ceny a hliníkový kryt úplne zadarmo. Ponuka je časovo obmedzená!
Sumarizácia najdôležitejších inovácií, ktoré redefinujúcich využitie tohto energetického zdroja.
AMPHIBIA 3000 GRIP 1.3 od spoločnosti ATRO predstavuje modernú hydroizolačnú technológiu, ktorá spája vysokú odolnosť,...
Ambiciózne plány EK narazili na ekonomické možnosti domácností v jednotlivých členských štátoch –...
IDEA DOOR od spoločnosti JAP prináša do interiéru čistý minimalistický vzhľad vďaka bezrámovému riešeniu a precíznej...
Kontinuita riešenia od vonkajšieho obkladu až po kovania a kľučky.
Nástenné nadomietkové armatúry Vitus sú mimoriadne vhodné pre rýchlu a efektívnu...
Okenné profily z kompozitného materiálu RAU-FIPRO X od spoločnosti Rehau sú v porovnaní s tradičnými plastovými profilmi mnohonásobne...
Najnovší sortiment stolov pre zariadenie interiérov...
Spojenie moderného dizajnu, funkčnosti a svetla do harmonického architektonického prvku.
Kancelárska budova Baumit v slovinskom Trzine prešla premenou na moderné a udržateľné pracovisko. Architekti kládli dôraz...
Mottom šiesteho ročníku on-line konferencie odborníkov Xella Dialóg je Efektívny návrh budov 2025+: zmeny a riešenia

Ocenenie sa od roku 1998 udeľuje každoročne architektonickému dielu, ktoré medzinárodná porota uzná za najvýraznejší architektonický čin reflektovaný v uplynulom období na stránkach časopisu.
V stredu 3. júla 2019 sa na Fakulte architektúry STU konalo zasadnutie redakčnej rady časopisu ARCH, na ktorom jej členovia v trojkolovej rozprave rozhodli, ktoré architektonické či urbanistické diela budú nominované na Cenu ARCH 2019.
Táto tradičná architektonická cena, ktorá nepozná kategórie a je ňou vždy ocenené len jediné dielo, bude tento rok udelená už po 22. krát. Ako je zakotvené v štatúte ceny, do výberu spadali realizácie publikované v časopise ARCH za ostatných 12 mesiacov, čiže v číslach 7-8/2018 až 6/2019.
Výsledkom výberu poroty je nasledujúcich 10 kvalitných architektonických diel, typologicky už tradične veľmi rôznorodých:
Ark shelter, Kysuce, autori: Martin Mikovčák, Michiel de Backer. Modulárnu stavbu "položenú" v krajine sme predstavili tu.
Hájpark, 2. etapa, Kutlíkova ulica, Bratislava-Petržalka, autori: GutGut (Lukáš Kordík, Štefan Polakovič, Jana Benková, Samuel Zeman, Katarína Bergerová, Patrícia Botková) a Drahan Petrovič. Krajinná architektúra: Michal Marcinov, Ivan Juhás, Eva Wernerová. Obytný súbor sme predstavili v tomto článku.
Dom P, Moravany nad Váhom, autori: TOITO (Ivan Príkopský, Katarína Príkopská, Tomáš Szőke). O dome s podjazdom sme písali tu.
Námestie Centrum, Sídlisko III, Prešov, autori: zerozero (Irakli Eristavi, Pavol Šilla). Verejný priestor na prešovskom Sídlisku III sme predstavili tu.
Voľnočasový priestor JAMA, Ulica odbojárov - Kalinčiakova, Bratislava, autori: Martin Berežný, Katarína Fejo Boháčová, Daniel Šubín. Spolupráca: Eugen Lipka (záhradná architektúra). Projekt zrealizovaný na základe architektonickej súťaže sme priblížili v tomto článku.
Rodinný dom Hrušovská, Bratislava, autori: Radoslav Buzinkay, Andrej Ferenčík, Jakub Viskupič, Gabriela Masláková. Viac o dome s pátiom si prečítate tu.
Výrobná hala s kanceláriami, Bratislava-Devínska Nová Ves, autori: Roman Žitňanský, Lukáš Kordík, Štefan Polakovič. O sídle firmy, ktorá sa zaoberá vývojom technológií pre hĺbkové vŕtanie a frézovanie pomocou plazmy sme písali tu.
Bytový dom N!DO, Tomášikova ulica - Trnavská cesta, Bratislava, autori: Grido architekti (Peter Sticzay-Gromski). O projekte, ktorý sa mení stereotypný pohľad na proporcie bytových domov sme písali v tomto článku.
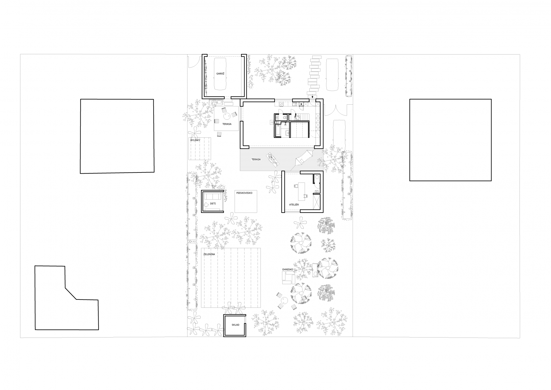
Mladá rodinná usadlosť, Budmerice, autori: TOITO (Ivan Príkopský, Katarína Príkopská, Tomáš Szőke. Dom, ktorý rastie s rodinou sme predstavili tu.
Interiér bytu, Mariánska ulica, Bratislava, autor: Roman Žitňanský
O tom, kto bude tohtoročným laureátom Ceny ARCH, rozhodne medzinárodná odborná
porota začiatkom septembra. Pri príležitosti udelenia Ceny ARCH vyjde ako vždy katalóg s autentickým záznamom diskusie poroty.