Novotvar v prostredí alpskej obce.
Hansgrohe - prémiová značka kúpeľňových riešení, ponúka nadčasový dizajn, technickú precíznosť a udržateľné inovácie...
Využite špeciálnu akciu Internorm: okná za minuloročné ceny a hliníkový kryt úplne zadarmo. Ponuka je časovo obmedzená!
Na podujatí sa predstaví až 37 vystavovateľov - popredných dodávateľov stavebných materiálov a inovácií s prezentáciou...
Sumarizácia najdôležitejších inovácií, ktoré redefinujúcich využitie tohto energetického zdroja.
AMPHIBIA 3000 GRIP 1.3 od spoločnosti ATRO predstavuje modernú hydroizolačnú technológiu, ktorá spája vysokú odolnosť,...
Ambiciózne plány EK narazili na ekonomické možnosti domácností v jednotlivých členských štátoch –...
IDEA DOOR od spoločnosti JAP prináša do interiéru čistý minimalistický vzhľad vďaka bezrámovému riešeniu a precíznej...
Kontinuita riešenia od vonkajšieho obkladu až po kovania a kľučky.
Nástenné nadomietkové armatúry Vitus sú mimoriadne vhodné pre rýchlu a efektívnu...
Okenné profily z kompozitného materiálu RAU-FIPRO X od spoločnosti Rehau sú v porovnaní s tradičnými plastovými profilmi mnohonásobne...
Najnovší sortiment stolov pre zariadenie interiérov...
Spojenie moderného dizajnu, funkčnosti a svetla do harmonického architektonického prvku.
Kancelárska budova Baumit v slovinskom Trzine prešla premenou na moderné a udržateľné pracovisko. Architekti kládli dôraz...
Mottom šiesteho ročníku on-line konferencie odborníkov Xella Dialóg je Efektívny návrh budov 2025+: zmeny a riešenia

V závere minulého roka vyhlásilo Národní divadlo moravskoslezské súťaž na revitalzáciu vnútrobloku Divadla Jiřího Myrona v Ostrave. Zadanie užšej projektovej architektonickej súťaže spočívalo predovšetkým v sprehľadnení a zjednodušení prevádzky vnútrobloku, doplnenie nutných priestorov divadla a celkové skvalitnenie zázemia, vrátane obnovy technickej infraštruktúry. Veľký dôraz bol pritom kladený na zapojenie zelene a energetickú úspornosť riešenia. Vnútorné nádvorie, ktoré má dnes charakter zadného traktu má byť nielen revitalizované a zefektívnené z praktického hľadiska (kríženie technológií, skladovania, odpadovho hospodárstva, zásobovania…), ale tiež zhumanizované tak, aby slúžilo ako príjemné miesto na pobyt.
Odborná porota na základe žiadostí o účasť a hodnotenia predložených portfólií vyzvala 5 účastníkov na predloženie súťažných návrhov. Zvíťazil návrh brnianskeho kolektívu, Szymon Rozwałka + Ada Rypl-Žabčíková + Jaroslav Sedlák, druhé miesto obsadil bratislavský ateliér PLURAL, na tretej priečke sa umiestnil pražský kolektív žalský architekti.
1.cena (500 000 Kč): Szymon Rozwałka + Ada Rypl-Žabčíková + Jaroslav Sedlák, Brno - Česká republika
Tím: Szymon Rozwałka, Ada Rypl-Žabčíková, Jaroslav Sedlák, Šimon Doubrava, Kazuhiro Okamoto, Ludmila Jankovichová, Tomáš Müller, Dušan Navrátil, Rostislav Rypl, Stanislav Šimoníček, Šarka Svobodová, zahradní architektura: Mirka Svorová a Jana Zuntychová
Anotácia:
Ekologický aspekt projektu je jedním z nejdůležitějších. Vnáší do města antropologický kus přírody - současnou verzi ostravské haldy. Neutuchající žár historických hald v této konkrétní lokalitě bude generován kulturou. Logicky organizujeme celý divadelní komplex. Vytváříme nový divadelní prostor, který je funkční, ale zároveň příjemný pro uživatele. Jednotlivé části tohoto úžasného organismu se navzájem posilují, aniž by si odporovaly. Zavádíme nový architektonický jazyk, který má být dalším prvkem rozmanité architektonické mozaiky, jež se v tomto prostoru nachází. Puzzle, které doplňuje, ale zároveň uspořádává.
Hodnotenie poroty:
Návrh s jistotou vstupuje do prostoru heterogenního nádvoří, aniž by konkuroval kvalitní architektuře divadelního sálu. Je zachován dialog mezi novým a starým. Návrh zdařile vytváří různá prostředí: nádvoří, kryté prostory, novou střešní krajinu. Kvalita architektonického konceptu je podtržena provozním řešením, které z předložených návrhů jako jediné odpovídá požadavkům zadavatele a zároveň se jeví dostatečně flexibilní, aby umožnilo adjustaci návrhu dle provozních požadavků zadavatele. Koncept je koherentní svým přístupem. Forma se uzavírá navenek a otevírá dovnitř svým uživatelům.
2.cena (400 000 Kč): PLURAL, Bratislava - Slovenko
Anotácia:
Návrh predstavuje prepojenie správnej budovy a scény Divadla Jiřího Myrona prostredníctvom spojovacej chodby, ktorá delí vnútroblok na dve časti. Zásobovací park a nový objekt oranžérie. Tá je nielen miestom pre oddych zamestnancov, ale slúži aj ako dôležitý uzol, prepájajúci jednotlivé objekty na úrovni prvého podlažia, vrátane nového služobného vstupu a výstupu z garáží. Navrhované nové zázemie divadla, garáže a technické priestory, sú umiestnená pod úrovňou terénu vnútrobloku.
Hodnotenie poroty:
Hlavní přínos návrhu spočívá v posunu všech technických provozů do suterénních podlaží a tím uvolnění prostoru nádvoří. V některých dispozičních vazbách však tento posun přináší úskalí a není tak možné zajistit řádné funkční provozní vazby – například zcela chybí zázemí v úrovni s Divadlem 12. Za spornou lze považovat i navrženou hloubku založení a nepropojenost navržených suterénu na stávající suterén divadla. Koncept zajímavě pracuje s výrazným ozeleněním parteru. Navržený objekt oranžerie však působí nepřesvědčivě, a to zejména z pohledu využití objektu.
3. cena (300 000 Kč): žalský architekti, Praha - Česká republika
Tím: Tomáš Nováček, Matěj Hoffman, Lenka Levíčková, Jakub Cibula, Adam Kocík, Valérie Filipová, Aneta Voženílková, Jan Žalský
Anotácia:
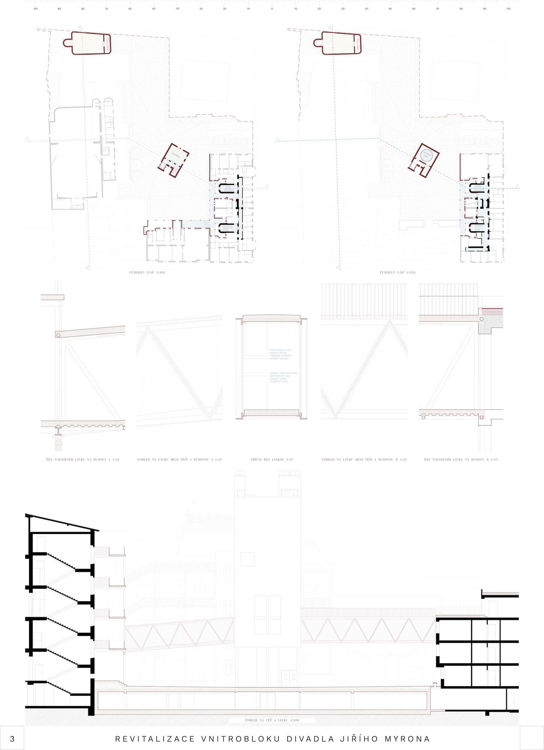
Návrh vychází ze současné situace v místě. Vnitřní dvůr městského bloku dávno přestal být vnitřním a uzavírat jej je dnes již nereálné. Nejen proto, že roh bloku obsadil solitérní věžový dům, ale také k vůli východní fasádě divadla. Namísto polovičatého řešení a snah o částečné zavírání dvora návrh dvůr otevírá a vytváří nové veřejné prostranství. Ze zadních fasád historických domů se přidáním pavlačí stávají fasády čelní. Divadlu vzniká náležitý předprostor. Odstraněním plotu a uvolněním povrchu se stává ze zásobovacího dvora součást okolního městského prostředí. Auta, trafostanice a výměník tepla je umístěn pod zem. Do středu prostranství je umístěna věž. Jinak je plocha dvora v návrhu záměrně nezaplněna tak, aby sami divadelníci společně s obyvateli města mohli toto prázdno vyplnit. Sklad výpravy umístěný trochu stranou byl vyzdvižen na půdorysné stopě zídek opírajících svah. Hmota skladu je navržena se stejným nadhledem /z ptačí perspektivy/ jako bylo tvarováno divadlo. Kulisárna přebírá tvarosloví významného souseda a v kompozici vytváří protiváhu vstupní části divadla. Tam, kde mizela hmota divadla pod zemí, vytváří uliční fasádu jako součást městského bloku. Návrh byl tvořen na ručních skicách, ve fyzickém modelu i ve virtuálním prostředí. Jen kombinací více pracovních metod lze dosáhnout uspokojivých výsledků.
Hodnotenie poroty:
Návrh je založen na silném konceptu soliterní středové věže umístěné v prostoru nádvoří a propojené s původními objekty lávkami. Tento jednoznačný koncept je oslaben zvoleným řešením skladovací věže umístěné za divadlem. Sklad proporčně konkuruje původní architektuře divadla a zcela ji zastiňuje. Problematický se návrh jeví i z pohledu provozního využití, kdy využití centrální věže je sporné a uspořádání skladu na mnoha malých etážích s frontálně umístěným výtahem nelze považovat za efektivní. Za přínosné lze považovat řešení vstupu přes stávající historický objekt z Milíčovy ulice. Potenciál formálně sjednocujícího prvku pavlačí zůstává nevyužit a provozu návrhu nepřispívá.
Finalista (150 000 Kč): MIAS ARQUITECTURA SLP, Barcelona - Španielsko
Anotácia:
Vnitroblok chceme proměnit v hlavní vztahový prostor mezi budovami, který bude fungovat jako hala, jako rozšíření stávajících budov a jako výraz komunity. MYSLÍME VE VELKÉM. Navrhujeme budoucnost. Navrhujeme nové chápání celku. Navrhujeme skutečnou proměnu tohoto vnitrobloku, který hraje hlavní roli v celé činnosti tohoto komplexu. Plný energie, plný aktivit, plný lidí. Chceme odkazovat na okolní budovy, vlastně navrhujeme, aby na něj odkazovaly jednotlivé budovy jako na prodloužení jednotlivých aktivit. Nejen účel, ale i spousta z nich. Nejen jedna činnost, ale i nové. Objevování nového místa pro město, VYTVOŘENÍ NOVÉHO MÍSTA, kde se budou dít věci.
Hodnotenie poroty:
Návrh vstupuje na scénu sebevědomě – nicméně bez primárního pochopení zadání i charakteru místa. Velkorysá venkovní scéna stávající divadlo zcela zastiňuje. Provozní požadavky zadavatele nejsou návrhem vůbec řešeny. Představa tohoto typu veřejného prostranství v daném místě je zavádějící.
Finalista (150 000 Kč): Laubová - Sosna, Vidonín / Praha - Česká republika
Anotácia:
Stávající budovy doplňují nové přístavby, které tvarově i materiálově navazují na stavbu divadla od architekta Klimeše z roku 1986. Spojení nových i starých hmot člení prostory vnitrobloku na tři na sebe navazující části. Prostor sevřený mezi stěnami domů je intimní pro trávení času jednotlivce či menší skupiny lidí, centrální prostor ohraničený čtveřicí stromů pro pořádání neformálních akcí a setkávání více lidí a prostor provozní ve funkčním a esteticky upraveném prostředí.
Hodnotenie poroty:
Projekt minimalizuje nové stavební objemy do dvou vzájemně kontrastních objektů a drobného schodišťového kubusu s navazujícími prosklenými pasarelami. Jedná se o nejekonomičtější z předložených návrhu. Umístění a charakter nových objektů sice vhodně doplňuje kompozici vnitrobloku, umístění nové skladové věže však není vhodně řešeno v návaznosti na divadlo Jiřího Myrona. Diskutabilní je též mimikování architektonického jazyka Klimešovy přístavby, které nedostatečně sebevědomě artikuluje nové objekty a zároveň komplikuje jednoznačnost čtení původní přístavby.