Na podujatí sa predstaví až 37 vystavovateľov - popredných dodávateľov stavebných materiálov a inovácií s prezentáciou...
Novotvar v prostredí alpskej obce.
Hansgrohe - prémiová značka kúpeľňových riešení, ponúka nadčasový dizajn, technickú precíznosť a udržateľné inovácie...
Využite špeciálnu akciu Internorm: okná za minuloročné ceny a hliníkový kryt úplne zadarmo. Ponuka je časovo obmedzená!
Sumarizácia najdôležitejších inovácií, ktoré redefinujúcich využitie tohto energetického zdroja.
AMPHIBIA 3000 GRIP 1.3 od spoločnosti ATRO predstavuje modernú hydroizolačnú technológiu, ktorá spája vysokú odolnosť,...
Ambiciózne plány EK narazili na ekonomické možnosti domácností v jednotlivých členských štátoch –...
IDEA DOOR od spoločnosti JAP prináša do interiéru čistý minimalistický vzhľad vďaka bezrámovému riešeniu a precíznej...
Kontinuita riešenia od vonkajšieho obkladu až po kovania a kľučky.
Nástenné nadomietkové armatúry Vitus sú mimoriadne vhodné pre rýchlu a efektívnu...
Okenné profily z kompozitného materiálu RAU-FIPRO X od spoločnosti Rehau sú v porovnaní s tradičnými plastovými profilmi mnohonásobne...
Najnovší sortiment stolov pre zariadenie interiérov...
Spojenie moderného dizajnu, funkčnosti a svetla do harmonického architektonického prvku.
Kancelárska budova Baumit v slovinskom Trzine prešla premenou na moderné a udržateľné pracovisko. Architekti kládli dôraz...
Mottom šiesteho ročníku on-line konferencie odborníkov Xella Dialóg je Efektívny návrh budov 2025+: zmeny a riešenia

Ocenenie sa od roku 1998 udeľuje každoročne architektonickému dielu, ktoré medzinárodná porota uzná za najvýraznejší architektonický čin reflektovaný v uplynulom období na stránkach časopisu.
Redakčná rada časopisu ARCH o architektúre a inej kultúre na svojom zasadnutí dňa 2. júla 2018 nominovala architektonické diela na udelenie Ceny ARCH 2018.
Medzinárodná odborná porota v zložení Mario Ramoni (Rakúsko), Andrej Hrausky (Slovinsko), Eva Eichlerová (Česká republika), Andrej Alexy, Samuel Netočný a Andrea Bacová posúdi kvality vybraných nominovaných diel in sitú v dňoch 5. - 7. septembra.
Výber bol tento rok uskutočnený v troch kolách, z architektonických diel publikovaných v ARCH-u za ostatný rok (od čísla 7-8/2017 po číslo 06/2018). V prvom kole redakčná rada vybrala 24 nominácií. Ich počet potom v druhom kole zúžila na 15, aby sa následne po náročnej diskusii zhodla na výbere 10 stavieb. Tie bude medzinárodná porota posudzovať počas spomínaného septembrového trojdňového zasadnutia. Pri výbere nominovaných stavieb sa členovia redakčnej rady zamerali už tradične na tie architektonické diela, ktorých autori hľadajú nové riešenia aktuálnych tém súčasnej architektúry a snažia sa tak prispieť k rozvíjaniu architektonického diskurzu.
Výsledkom výberu poroty je nasledujúcich 10 kvalitných architektonických diel, typologicky už tradične veľmi rôznorodých:
Rekonštrukcia meštianskeho domu a Nádvorie, Trnava (Vallo Sadovsky Architects / Matúš Vallo, Oliver Sadovský, Marcel Vadík, Branislav Husárik, Viliam Zajíček, Mateja Vonkomerová, Marián Stanislav, Zuzana Krejčířová, Elena Šoltésová). Projekt sme predstavili tu a tu. Dielo bolo publikované v tlačenej forme v časopise ARCH 7-8/2017 a ARCH 6/2018.
3x3, Hrubá Borša (Endorfine / Tomáš Dupkala, Štefan Petras, Matúš Repka, Pavol Ružbarský, spolupráca: Barbora Luptáková - interiér). Rekreačné domy sme predstavili tu a tu. Diela bolo publikované v tlačenej forme v časopise ARCH 9/2017.
Zelený les - odkaz dejín dnešku, Modra-Kráľová (Daniel Bartoš, spolupráca: Ondrej Klučár - návrh parkových úprav). Pietne miesto sme predstavili v tomto článku. Dielo bolo publikované v tlačenej forme v časopise ARCH 11/2017.
Mlynica, Bratislava (GutGut / Štefan Polakovič, Lukáš Kordík, Jana Benková, Tomáš Vrtek, spoluautori štúdie: Roman Žitňanský, Patrícia Botková, Katarína Bergerová). O konverzii výrobného objektu sme písali tu. Dielo bolo publikované v tlačenej forme v časopise ARCH 1-2/2018.
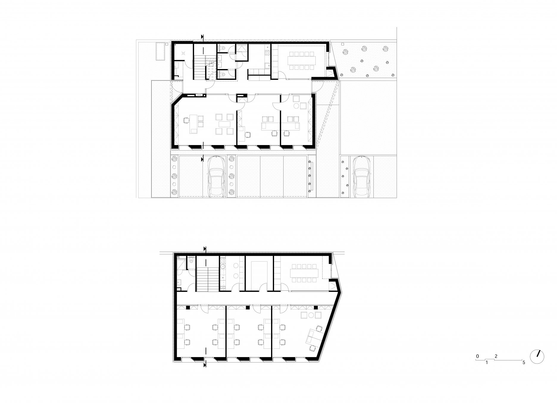
Sídlo spoločnosti PDP, Nitrianske Sučany (FVA / Ľubomír Fuňa, Martin Vanko, spolupráca: Radka Švecová, Tomáš Martiš, Stanislava Madara, Dávid Chaľ). "Administratívnu budovu na vidieku" sme predstavili v tomto článku. Dielo bolo publikované v tlačenej forme v časopise ARCH 3/2018.
Vyhliadková veža na Dubni, Žilina-Budatín (Gábor Nagy, Ladislav Vikartovský). Vyhliadku, ktorá vznikla na základe víťazného návrhu v otvorenej súťaži sme predstavili tu. Dielo bolo publikované v tlačenej forme v časopise 4/2018.
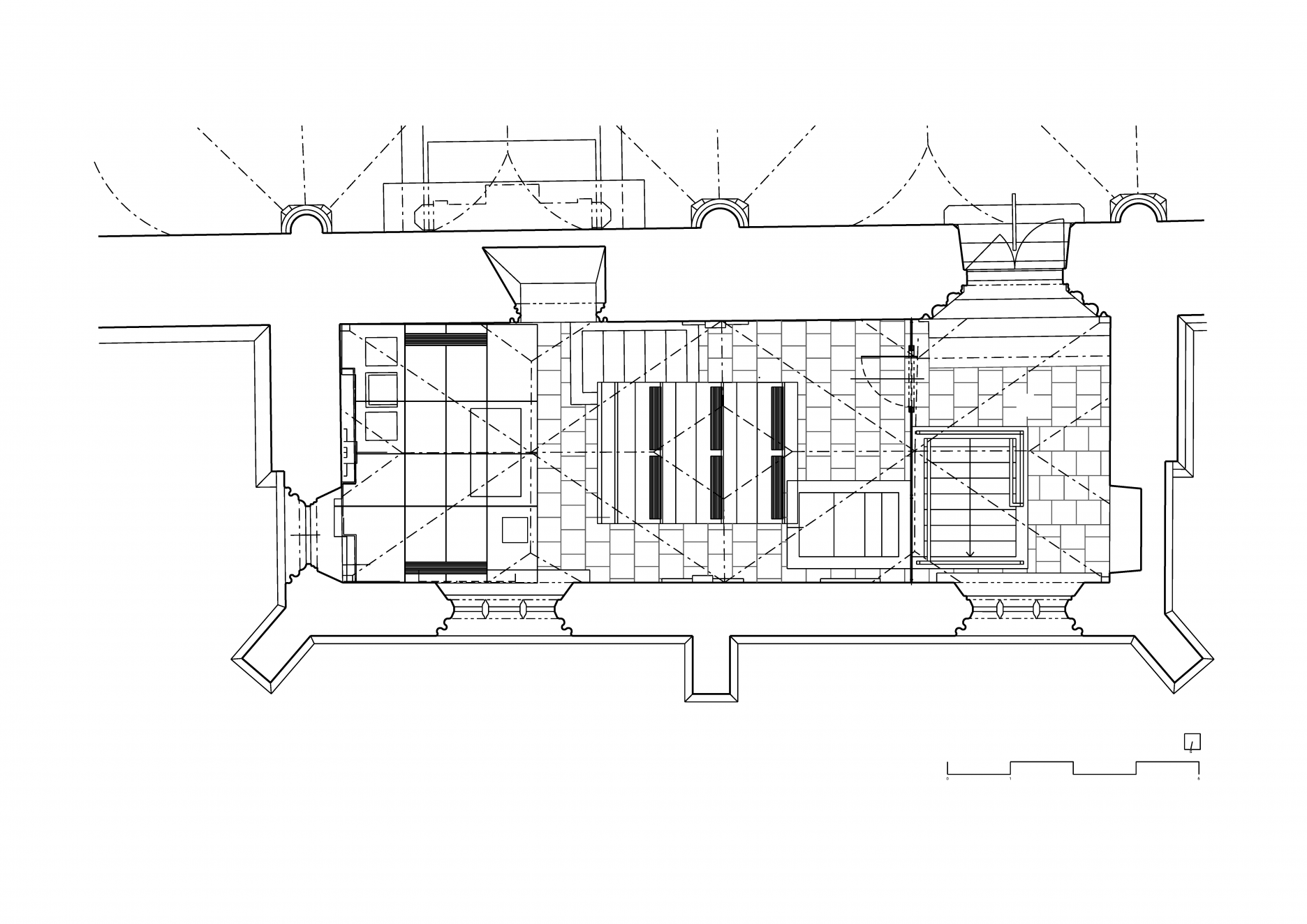
Úprava interiéru Kaplnky sv. Anny, Katedrála sv. Martina, Bratislava (G-ATELIÉR / Július Rybák, spolupráca: Ján Kostrian, Pavol Mikolaj, Stanislav Krajňák – 3D modelovanie). Rekonštrukciu sakrálneho priestoru sme priblížili v tomto článku. Dielo bolo publikované v tlačenej forme v časopise 4/2018.
Obytná skupina Plzenská, Prešov (zerozero / Irakli Eristavi, Pavol Šilla, spolupráca: Gabriel Boženík, Martin Ratkoš). Viac o "dynamickom" obytnom bloku v širšom centre prešova si prečítate tu. Dielo bolo publikované v tlačenej forme v časopise 5/2018.
Rezidencie Priekopnícka, Bratislava-Podunajské Biskupice (MARTIN VOJTA architekti / Martin Vojta, spolupráca: Ján Pieš, Rado Zelenák). O malých bytových domoch so zaujímavým priestorovým konceptom sme písali tu. Dielo bolo publikované v tlačenej forme v časopise ARCH 5/2018.
Mestská vila Mudroňova, Bratislava (Iľja Skoček, spolupráca: Igor Čierny, Danica Ščepková, Peter Kožuško). O komplexnom prerode vily zo štyridsiatych rokov sme písali v tomto článku. Dielo bolo publikované v tlačenej forme v časopise ARCH 6/2018.
Slávnostné vyhlásenie laureáta Ceny ARCH 2018 sa uskutoční v utorok 6. novembra 2018 v Moyzesovej sieni v Bratislave. Pri príležitosti udelenia Ceny ARCH vyjde ako vždy katalóg s autentickým záznamom diskusie poroty.