Advertorial

Pozvánka na 2. ročník stavebného veľtrhu BigMarket na Slovensku

Na podujatí sa predstaví až 37 vystavovateľov - popredných dodávateľov stavebných materiálov a inovácií s prezentáciou...

Hotel Hirschen Spa House, Rakúsko

Novotvar v prostredí alpskej obce.

Vytvorte si kúpeľňu snov: dizajnové riešenie od značky hansgrohe

Hansgrohe - prémiová značka kúpeľňových riešení, ponúka nadčasový dizajn, technickú precíznosť a udržateľné inovácie...

Okná Internorm za minuloročné ceny + hliníkový kryt zdarma!

Využite špeciálnu akciu Internorm: okná za minuloročné ceny a hliníkový kryt úplne zadarmo. Ponuka je časovo obmedzená!

Moderné plynové technológie: Efektivita a inovácie pre 21. storočie

Sumarizácia najdôležitejších inovácií, ktoré redefinujúcich využitie tohto energetického zdroja.

Utesňovanie spodných stavieb pomocou hydro-aktívnej fólie AMPHIBIA.

AMPHIBIA 3000 GRIP 1.3 od spoločnosti ATRO predstavuje modernú hydroizolačnú technológiu, ktorá spája vysokú odolnosť,...

Dekarbonizácia individuálneho vykurovania domácností – Green Deal evolučne a nie revolučne

Ambiciózne plány EK narazili na ekonomické možnosti domácností v jednotlivých členských štátoch –...

Minimalistické dvere IDEA – technická precíznosť a čistota prevedenia

IDEA DOOR od spoločnosti JAP prináša do interiéru čistý minimalistický vzhľad vďaka bezrámovému riešeniu a precíznej...

Dom s výhľadom na údolie, Dlouhý Most (ČR)

Kontinuita riešenia od vonkajšieho obkladu až po kovania a kľučky.

Schell Vitus – osvedčené riešenie pre sprchy a umývadlá vo verejnom sektore s viac ako desaťročnou tradíciou

Nástenné nadomietkové armatúry Vitus sú mimoriadne vhodné pre rýchlu a efektívnu...

Kompozitné okná predstavujú súčasnosť a budúcnosť

Okenné profily z kompozitného materiálu RAU-FIPRO X od spoločnosti Rehau sú v porovnaní s tradičnými plastovými profilmi mnohonásobne...

Myotis - stoly 2025

Najnovší sortiment stolov pre zariadenie interiérov...

Priemyselné sklenené priečky Dorsis Digero: svetelné rozhranie pre moderné interiéry

Spojenie moderného dizajnu, funkčnosti a svetla do harmonického architektonického prvku.

Význam prirodzeného svetla pre moderné a flexibilné pracovné prostredie

Kancelárska budova Baumit v slovinskom Trzine prešla premenou na moderné a udržateľné pracovisko. Architekti kládli dôraz...

Konferencia Xella Dialóg predstaví novinky a trendy v stavebníctve

Mottom šiesteho ročníku on-line konferencie odborníkov Xella Dialóg je Efektívny návrh budov 2025+: zmeny a riešenia

Obnova katedrály v Segedíne

Ťažké zadanie, roboty ako na kostole... Hľadanie rovnováhy medzi požiadavkami dnešnej doby a historickým odkazom.
Diela
Red 316.01.2018
12230+18
Obnova katedrály v Segedíne
Autori: Katalin Csillag, Zsolt Gunther, László VánczaPlocha pozemku: 7 452 m²Návrh: 2012 - 2014Realizácia: 2014 - 2015Adresa: Dóm tér 16, Segedín, MaďarskoPublikované: 16. január 2018

Nedávno sme publikovali rozhovor s významnými maďarskými architektmi Katalin Csillag a Zsoltom Guntherom. Dnes predstavíme jednu z ich kľúčových realizácií. 

Zásah do kultúrnej pamiatky je vždy citlivá téma. To platí najmä vtedy, keď projekt nie je iba striktnou rekonštrukciou, ale prichádza s výraznejšími zmenami s cieľom prispôsobiť objekt novodobým požiadavkám. Je ťažké nájsť rovnováhu medzi minulosťou a súčasnosťou, medzi konzerváciou pamiatky a jej novým využitím. Kopírovanie a snaha o historizujúcu tvorbu, či novodobé zásahy ignorujúce kontext sú protipóly, ktorým sa treba vyhnúť. Autorom sa v tomto prípade podarilo nájsť vyvážený kompromis. Rekonštrukcii a prestavbe predchádzal rozsiahly pamiatkový výskum, ktorý spolu z plánovaným lokalitným programom nastolil mnoho otázok a často protichodných požiadaviek. Úlohou architektov bolo na ne odpovedať v každom konkrétnom prípade.

Centrum Segedínu sa nachádza v záplavovom území, aj preto počas svojej histórie prešlo mnohými rekonštrukciami. Cieľom projektu bolo preskúmať hranice v historicky husto vrstvenej mestskej štruktúre a prispôsobiť katedrálu a intenzívne využívaný verejný priestor rastúcemu cestovného ruchu. Szegedi dóm s 91 metrov vysokými vežami patrí svojou rozlohou medzi najväčšie stavby v Maďarsku. Tehlová stavba je mladšia, ako by sa na prvý pohľad mohlo zdať. S výstavbou sa začalo v roku 1913, dokončená bola až začiatkom tridsiatych rokov, kedy sa začal prejavovať už vplyv moderny.

Situáia
SituáiaAutor: 3h architecture + Váncza Muvek Studio

Objekt je zaujímavou zmesou historizujúcich a moderných prvkov, štýlov a stavebných postupov. Architektonická koncepcia obnovy sa pokúsila objasniť vzťah medzi pôvodnou budovou a neskoršími vrstvami. Architekti považovali stavbu za otvorený artefakt, ktorý obohatili o súčasnú vrstvu ako ekvivalentnú hodnotu. Citlivý reštaurátorský prístup je doplnený o novotvary, ktoré majú silnú súčasnú formu, napriek tomu však striktne rešpektujú historický kontext. Renovácia zahŕňala aj transformáciu kľúčových prvkov komplexu. Medzi najdôležitejšie patrí sprístupnenie západnej veže katedrály s panoramatickým výhľadom na mesto a tiež otvorenie románskej Demeterovej veže. Celý areál je po prestavbe prístupný bezbariérovo. Vylepšená bola tiež akustika obradných priestorov.

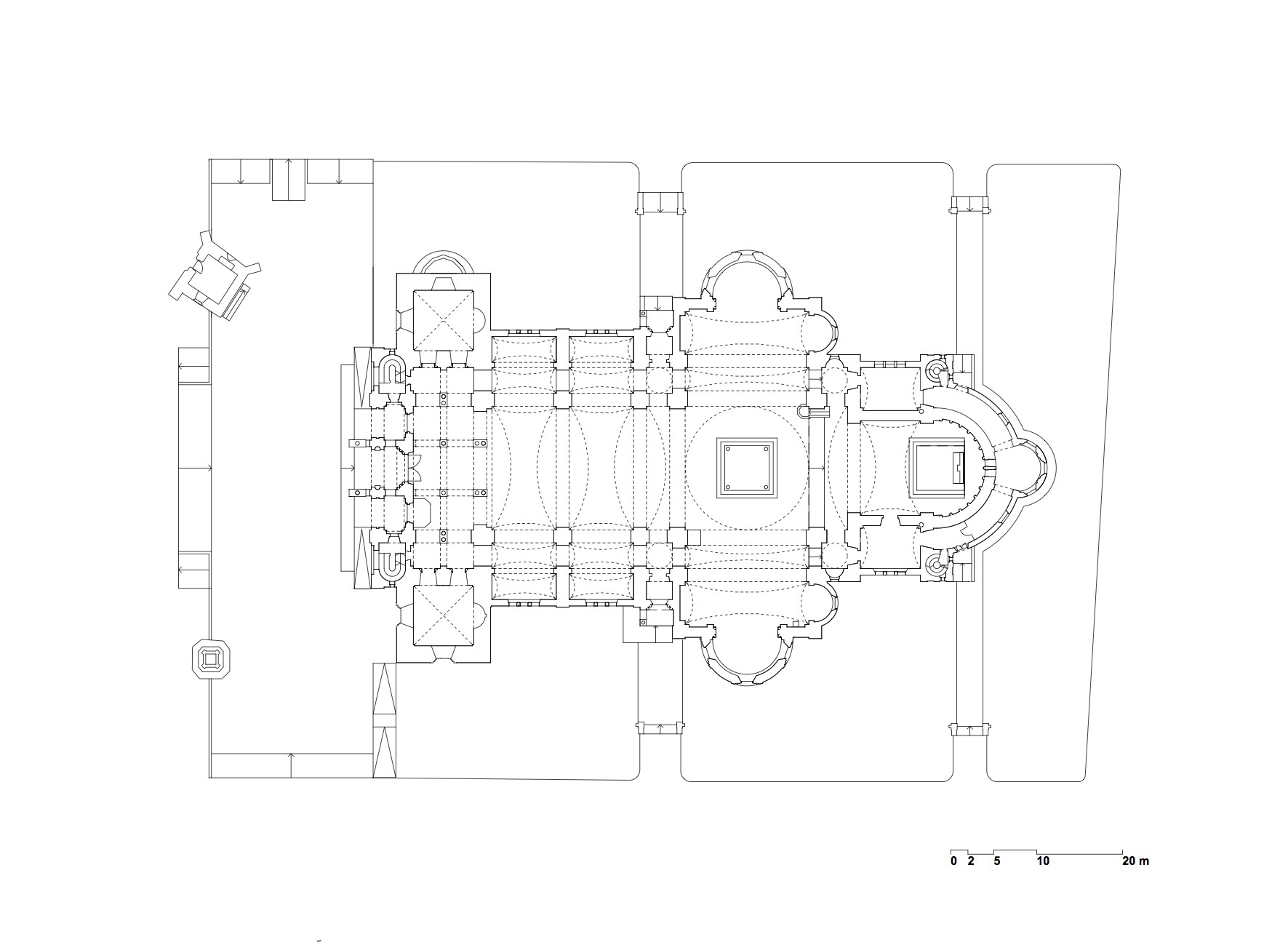
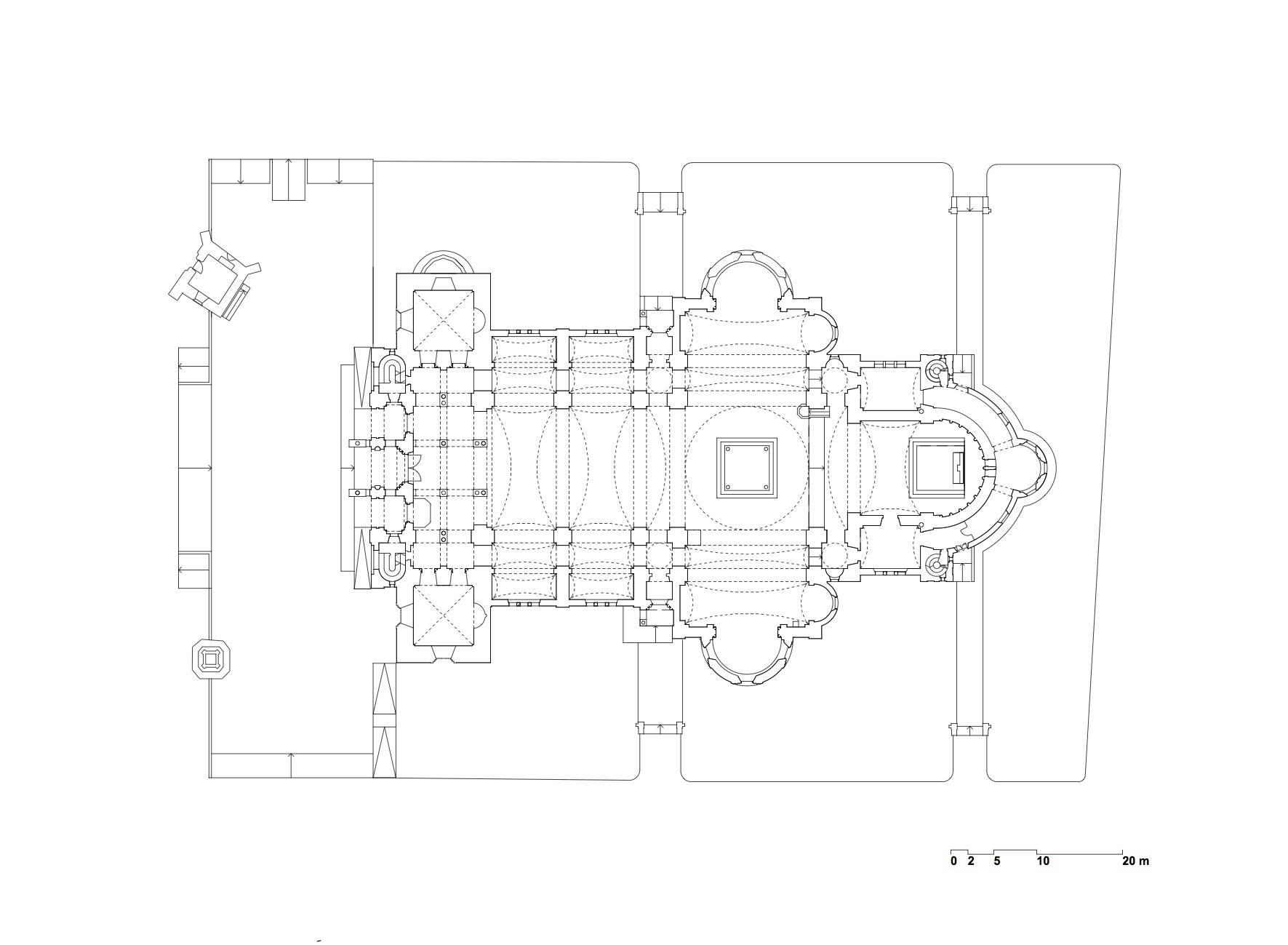
Katedrála po rekonštrukcii - pôdorys prízemia
Katedrála po rekonštrukcii - pôdorys prízemiaAutor: 3h architecture a Váncza Művek Studio
Katedrála po rekonštrukcii - liturgický priestor
Katedrála po rekonštrukcii - liturgický priestorAutor: 3h architecture a Váncza Művek Studio
Katedrála po rekonštrukcii - krypta
Katedrála po rekonštrukcii - kryptaAutor: 3h architecture a Váncza Művek Studio
Katedrála po rekonštrukcii - pozdĺžny rez
Katedrála po rekonštrukcii - pozdĺžny rezAutor: 3h architecture a Váncza Művek Studio
Katedrála po rekonštrukcii - rez západnou vežou
Katedrála po rekonštrukcii - rez západnou vežouAutor: 3h architecture a Váncza Művek Studio

Jednou z hlavných otázok, s ktorou sa musel projekt vysporiadať bol vzťah modernej architektúry, ornamentu a symetrie. Jemne zdobený interiér katedrály funguje v kombinácii s exteriérom a prvkami modernistickej estetiky, ktorá hľadá krásu v jasne viditeľnej štruktúre a v samotnom materiáli. Novotvary, najmä v liturgickom priestore rozvíjajú túto dualitu. Autori s ornamentom experimentujú v triezvej forme. Nové prvky zapadajú do miestneho kontextu, mažú sterilitu, prinášajú do priestoru reliéf. V prípade nábytku je monochromatický ornament integrovaný priamo do materiálu.

V nanovo sprístupnených častiach, akou je napríklad krypta našla uplatnenie jednoduchšia materialita. Staré murivo bolo zjednotené bielou omietkou. Rytmické osvetlenie, hra svetla a tieňa necháva vyniknúť pravidelnú geometriu zaklenutých priestorov.

Architekti tvarujú priestory organickým spôsobom, spájajú katedrálu a jej okolie do fungujúceho celku, pridávajúc význam a funkcie relevantné pre súčasných používateľov. Komplexný projekt vyzdvihol krásu baziliky, posilnil budovanie komunity a otvoril cirkev a jej kultúrne priestory pre návštevníkov, cirkevníkov a obyvateľov mesta.

Foto: Tamás Bujnovszky a Balázs Danyi 

Podklady: 3h architecture a Váncza Művek Studio

Poloha diela

Katalin Csillag
Zsolt Gunther
László Váncza

Súvisiace články

Vložené
16. január 2018
0
1223
Hlavný obsahHlavný obsah
Čakajte prosím