Na podujatí sa predstaví až 37 vystavovateľov - popredných dodávateľov stavebných materiálov a inovácií s prezentáciou...
Novotvar v prostredí alpskej obce.
Hansgrohe - prémiová značka kúpeľňových riešení, ponúka nadčasový dizajn, technickú precíznosť a udržateľné inovácie...
Využite špeciálnu akciu Internorm: okná za minuloročné ceny a hliníkový kryt úplne zadarmo. Ponuka je časovo obmedzená!
Sumarizácia najdôležitejších inovácií, ktoré redefinujúcich využitie tohto energetického zdroja.
AMPHIBIA 3000 GRIP 1.3 od spoločnosti ATRO predstavuje modernú hydroizolačnú technológiu, ktorá spája vysokú odolnosť,...
Ambiciózne plány EK narazili na ekonomické možnosti domácností v jednotlivých členských štátoch –...
IDEA DOOR od spoločnosti JAP prináša do interiéru čistý minimalistický vzhľad vďaka bezrámovému riešeniu a precíznej...
Kontinuita riešenia od vonkajšieho obkladu až po kovania a kľučky.
Nástenné nadomietkové armatúry Vitus sú mimoriadne vhodné pre rýchlu a efektívnu...
Okenné profily z kompozitného materiálu RAU-FIPRO X od spoločnosti Rehau sú v porovnaní s tradičnými plastovými profilmi mnohonásobne...
Najnovší sortiment stolov pre zariadenie interiérov...
Spojenie moderného dizajnu, funkčnosti a svetla do harmonického architektonického prvku.
Kancelárska budova Baumit v slovinskom Trzine prešla premenou na moderné a udržateľné pracovisko. Architekti kládli dôraz...
Mottom šiesteho ročníku on-line konferencie odborníkov Xella Dialóg je Efektívny návrh budov 2025+: zmeny a riešenia

V priebehu tohto roka otvoril v Leopoldove svoje brány denný stacionár pre seniorov Nezábudka. Vďaka nenávratnému príspevku 1,4 mil. € z Integrovaného regionálneho operačného programu sa podarilo mestu zrealizovať komplexnú obnovu objektu, v ktorom pôvodne sídlila Verejná bezpečnosť a neskôr knižnica. Autori z ateliéru SPDe architekti stáli pred neľahkou úlohou - humanizovať panelovú stavbu zo 70. rokov minulého storočia a prispôsobiť ju pre potreby modernej starostlivosti o seniorov. Architektom sa podarilo výrazne otvoriť a presvetliť pôvodnú dispozíciu a podporiť prepojenie s okolím, vrátane zrevitalizovaného dvora pri objekte. Čisté architektonické riešenie zdôrazňuje prostredníctvom viacerých detailov tektoniku pôvodnej stavby, tá je zároveň oživená novou dynamikou stavebných otvorov. Dielo možno smelo zaradiť medzi kvalitné realizácie, ktoré spadajú do ucelenej vízie rozvoja štvortisícového mesta Leopoldov. Systematická práca na projektoch, ktoré presahujú jedno volebné obdobie prináša dlhodobo svoje ovocie (viď. súvisiace články v závere textu).
Realizáciu bližšie predstaví sprievodný text autorov:
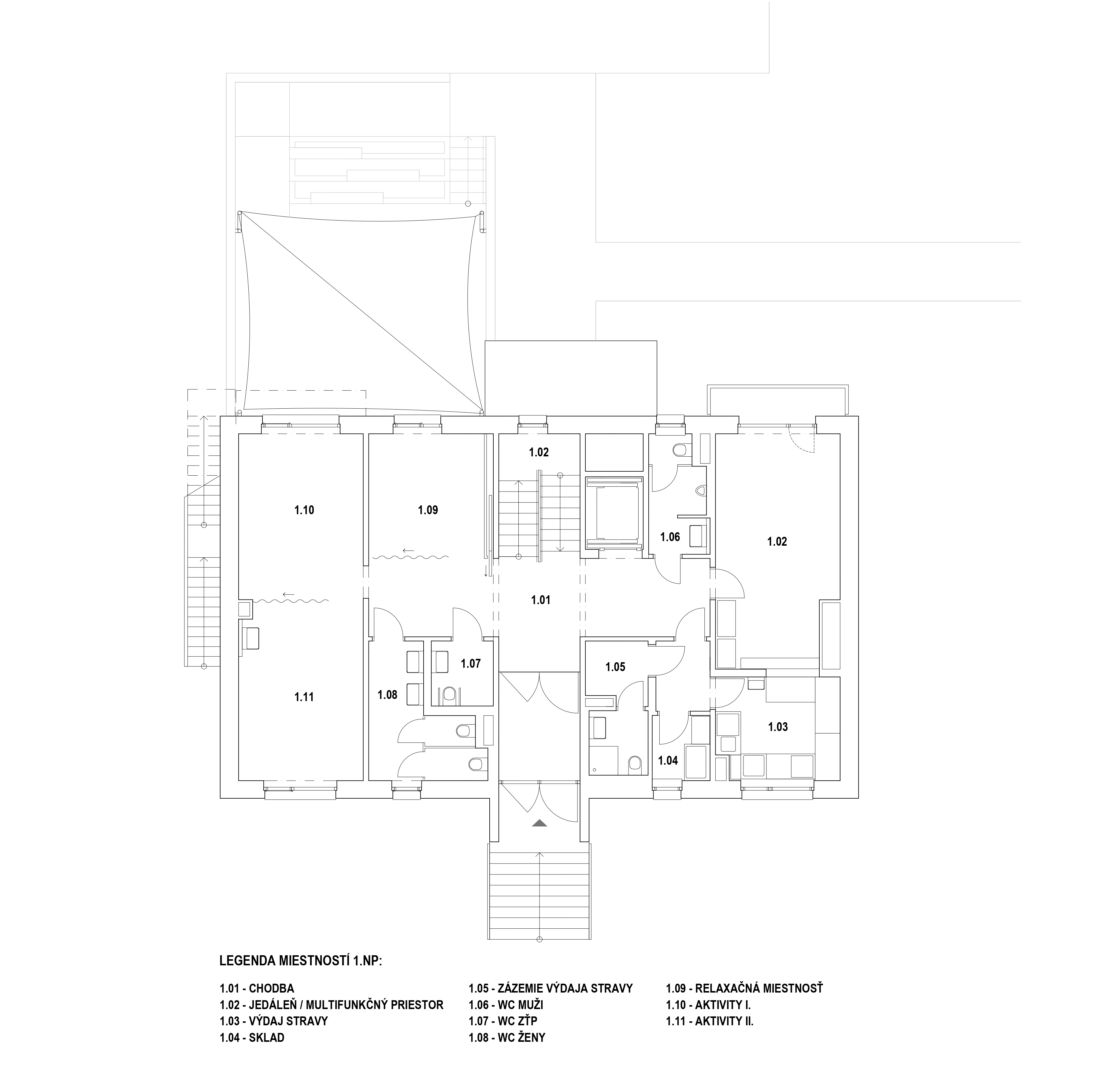
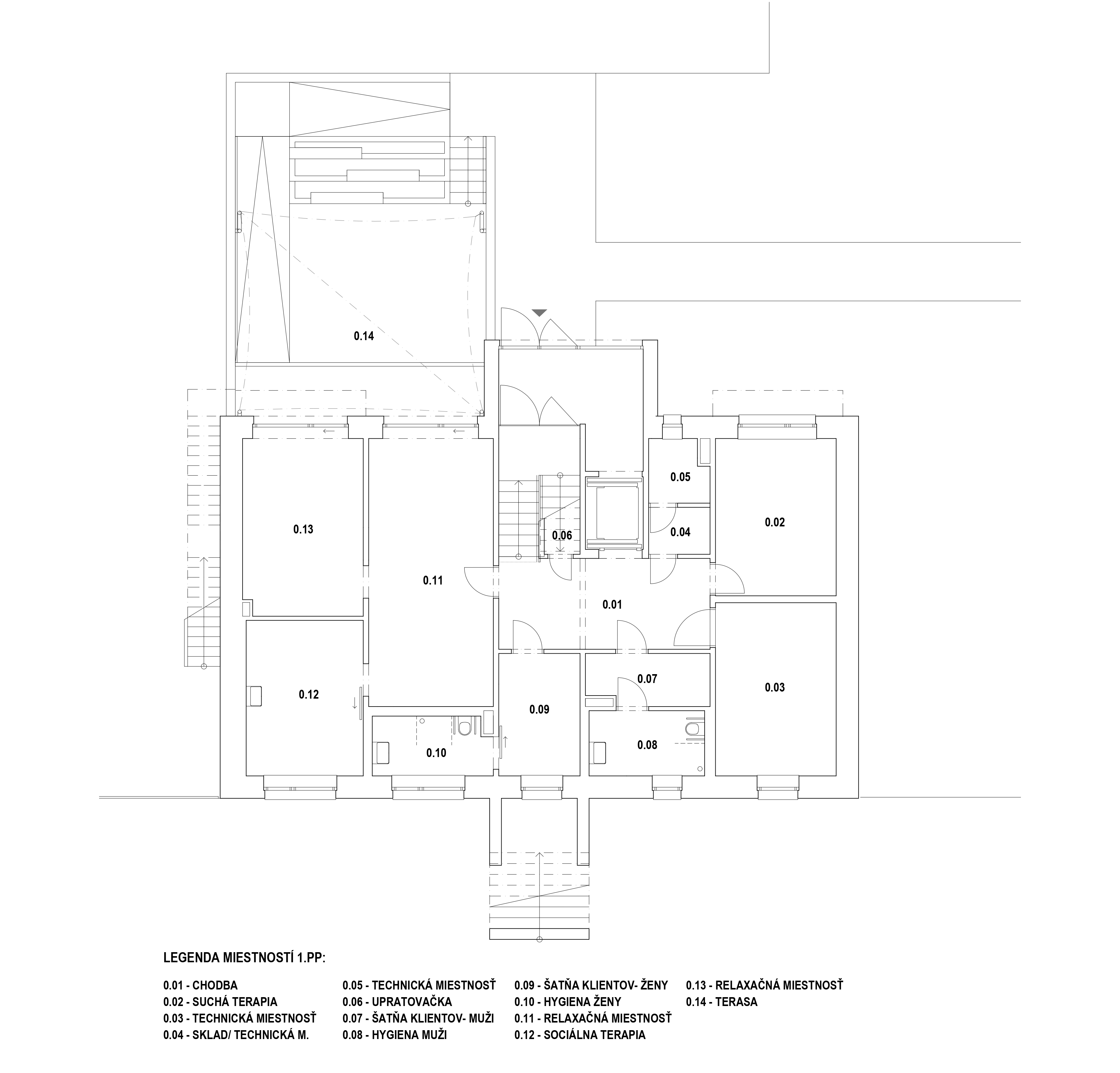
Domov sociálnych služieb Nezábudka v Leopoldove je situovaný v mestskej zástavbe, kde prevažujú samostatne stojace rodinné domy. Z urbánnej štruktúry svojou veľkosťou mierne vystupujú len niektoré objekty, medzi ktorými sú v bezprostrednej blízkosti materská škola a zdravotné stredisko. Objekt prináša nový typ služby - denný stacionár pre seniorov, ktorý na Slovensku ešte nie je úplne etablovaný a zatiaľ je pomerne výnimočný. Funkčne objekt harmonizuje nielen s okolitou vybavenosťou, ale aj s obytnou funkciou rodinných domov. Denné stacionáre, resp. domovy sociálnych služieb (DSS), by mali mať komornú mierku, a je vhodné, aby boli situované v rámci fungujúcej komunity, predovšetkým v obytných štruktúrach s dostupnou vybavenosťou, alebo v blízkosti centra sídla.
Projekt DSS mesta Leopoldov, v pozícii investora, vychádzal z ambicióznej predstavy o komplexnej skladbe funkcií, ktorá poskytuje dennú starostlivosť o seniorov, ale zároveň je orientovaná na širšiu komunitu, čím rozširuje každodennú starostlivosť o starších obyvateľov. Okrem tradičných denných aktivít, odpočinku a stravovania boli navrhnuté aj priestory na cvičenie, ako aj na suché a vaňové terapie. Zároveň sa uvažovalo o vytvorení pobytovej odľahčovacej služby pre seniorov s potrebou vysokej miery podpory, určenú najmä na krátkodobé pobyty alebo krízové krátkodobé ubytovanie pre širšie skupiny obyvateľov. Vzhľadom na legislatívne obmedzenia však tieto plány, napriek pripravenosti objektu, zatiaľ neboli realizované. Už samotný koncept denného stacionára pre seniorov je však veľmi inovatívny, a hoci ho komunita zatiaľ ešte len objavuje, jeho vznik naznačuje budúci smer rozvoja sociálnych služieb v meste.
Navrhované funkcie sú vložené do rekonštruovaného panelového objektu bývalej stanice Verejnej bezpečnosti zo 70. rokov 20. storočia, ktorý bol neskôr využívaný ako mestská knižnica. Po jej presťahovaní do novo zrekonštruovanej budovy pri novom Mestskom úrade bol objekt uvoľnený a pripravený na novú funkciu. Rekonštrukcia prebehla v pôvodných rozmeroch objektu, s jedným podzemným a dvoma nadzemnými podlažiami, bez zväčšenia pôdorysu alebo výšky, čím si zachoval charakteristický objem v rámci okolitej urbánnej štruktúry.
Základnou myšlienkou premeny objektu bolo využitie pôvodnej substancie, vytvorenie vnútornej otvorenosti objektu, odstránenie bariér a intenzifikácia väzieb s okolím
Výraz objektu nadväzuje na modularitu pôvodného panelového objektu naznačenú na monochromatickej fasáde rastrom línií vystupujúcich na nepravidelnej štruktúre omietky s drsnou kefovou úpravou. Perforácie okenných otvorov a presklených stien navonok signalizujú funkcie jednotlivých priestorov. Okná a presklené steny sú variabilne zatieniteľné screenovými roletami v ružovom odtieni, ktorý nadväzuje na pôvodnú farebnosť terazzovej úpravy centrálneho vnútorného schodiska. Nové konštrukcie v interiéri zabezpečujúce bezbariérové prepojenie, ako napríklad výťah, sú naznačené materialitou neomietaného pohľadového betónu. Vstupy do objektu, či už zo strany ulice, alebo bezbariérový vstup zo strany dvora, sú zvýraznené obkladom zo sklovláknobetónových dosiek v odtieni svetlého pohľadového betónu, ktorý sa jemne líši od omietkových plôch hlavných fasád v prírodnej farebnosti. Výrazným prvkom exteriéru je vonkajšie oceľové pozinkované schodisko navrhnuté ako druhá úniková cesta z objektu určeného aj pre pohybovo obmedzených užívateľov.
Pri premene objektu sa využila pôvodná stavba, ktorá bola upravená na energetické a technologické požiadavky súčasnosti. Integrované boli vyspelé technológie obnoviteľných zdrojov energií zabezpečujúce vykurovanie a chladenie. Okrem rekonštrukcie samotného objektu boli upravené aj plochy okolo objektu - bola vytvorená aktívna terasa s mobilným zatienením počas slnečných dní v kontakte so zeleňou záhrady. Návrh krajinárskeho riešenia revitalizovaných zelených plôch v areáli objektu spracovala A. Prievalská z ateliéru zelenydesign.
Objekt predstavuje udržateľné riešenie využitia existujúcich zdrojov v prostredí - pôvodnej nevyužitej stavby, ktorá rekonštrukciou dostala nový život. Je príkladom toho, že obnova existujúcich budov môže byť efektívnou a ekologickou cestou, ako pristupovať k využívaniu našich súčasných zdrojov.
Fotografie z realizácie stravby:
Použité materiály a riešenia:
Podklady: SPDe architekti
Fotografie: Matej Hakár