Na podujatí sa predstaví až 37 vystavovateľov - popredných dodávateľov stavebných materiálov a inovácií s prezentáciou...
Novotvar v prostredí alpskej obce.
Hansgrohe - prémiová značka kúpeľňových riešení, ponúka nadčasový dizajn, technickú precíznosť a udržateľné inovácie...
Využite špeciálnu akciu Internorm: okná za minuloročné ceny a hliníkový kryt úplne zadarmo. Ponuka je časovo obmedzená!
Sumarizácia najdôležitejších inovácií, ktoré redefinujúcich využitie tohto energetického zdroja.
AMPHIBIA 3000 GRIP 1.3 od spoločnosti ATRO predstavuje modernú hydroizolačnú technológiu, ktorá spája vysokú odolnosť,...
Ambiciózne plány EK narazili na ekonomické možnosti domácností v jednotlivých členských štátoch –...
IDEA DOOR od spoločnosti JAP prináša do interiéru čistý minimalistický vzhľad vďaka bezrámovému riešeniu a precíznej...
Kontinuita riešenia od vonkajšieho obkladu až po kovania a kľučky.
Nástenné nadomietkové armatúry Vitus sú mimoriadne vhodné pre rýchlu a efektívnu...
Okenné profily z kompozitného materiálu RAU-FIPRO X od spoločnosti Rehau sú v porovnaní s tradičnými plastovými profilmi mnohonásobne...
Najnovší sortiment stolov pre zariadenie interiérov...
Spojenie moderného dizajnu, funkčnosti a svetla do harmonického architektonického prvku.
Kancelárska budova Baumit v slovinskom Trzine prešla premenou na moderné a udržateľné pracovisko. Architekti kládli dôraz...
Mottom šiesteho ročníku on-line konferencie odborníkov Xella Dialóg je Efektívny návrh budov 2025+: zmeny a riešenia

V krátkosti o autorovi:
Podľa počtu medzinárodných ocenení je ateliér Roberta Konieczneho jeden z najúspešnejších v strednej Európe. V poslednom desaťročí bola pozornosť významných médií venujúcich sa architektúre sústredená takmer vždy na západ od nás. Takisto sem smerovali aj všetky významnejšie ocenenia (pozri napríklad Cenu Miesa van der Rohe). Zástupcovia z východnej časti kontinentu boli uvádzaní skôr ako osamotené výnimky či kuriozity pre ilustráciu. Toto však v posledných rokoch prestáva platiť, aj vďaka generácii talentovaných architektov, kam patrí aj R. Konieczny.
Najvýznamnejším momentom návrhového procesu je v podaní ateliéru KWK Promes hľadanie dobre uchopiteľného konceptu. Priestorové riešene, forma aj funkcia navrhovaného objektu, materiály a tiež detaily vychádzajú zo silnej základnej idey. Niekedy sa jedná o jednoduchý kubický tvar, inokedy o organickú až amorfnú formu. Výsledok vždy vyplýva priamo z počiatočnej koncepcie, ktorá určuje konštrukčné princípy celku. Takáto architektúra nie je tendenčná a nepodlieha aktuálnej móde. "Prestaňme architektúru estetizovať. Prestane byť formálny a bude jednoducho logická a pochopiteľná", proklamuje svoj prístup autor.
Do pozornosti dávame aj Autorodinný dom, ktorý bol publikovaný na našich stránkach a pripravujeme pre vás ďalšie projekty tohto ateliéru.
Architekt si pre vlastné bývanie vybral pozemok v rekreačnom stredisku Brenna v Sliezskzch Beskydoch. Nádherný pozemok, ktorý sa nachádza vo svahu pod lesom je sprístupnený úzkou panelovou cestou. Z tohto miesta sa otvára nerušený výhľad do celej doliny. Dom vytvára pevný rám, ideálne stanovisko pre pozorovateľa. Jednopodlažná obytná plocha je otvorená voči horskej krajine.
Pretože sa parcela nachádza v mimo intravilánu, do popredia sa dostala otázka bezpečnosti. Riešenie architekti našli v osadení stavby. Obytná časť tvaru kvádra sa zeme dotýka len jedeným rohom, zatiaľ čo zvyšok je postavený na skosenej podstave. Vďaka tomuto riešeniu je obytná časť zdvihnutá na bezpečnú úroveň. Veľké presklené plochy domu sú uzatvárateľné (podobné riešenie môžeme vidieť pri projektoch R. Konieczneho). Zaujímavým prvkom je aj "padací most", ktorý v sebe kombinuje funkciu schodov a okeníc.
Umiestnenie domu na strmom svahu v sebe nieslo vysoké riziko zosuvu pôdy a nahromadeniu vody, ku ktorému dochádza kvôli výrubom čoraz častejšie. Aby sa zamedzilo pohybu podložia, umožňuje dom voľné stekanie nahromadenej vody popod obytný priestor.
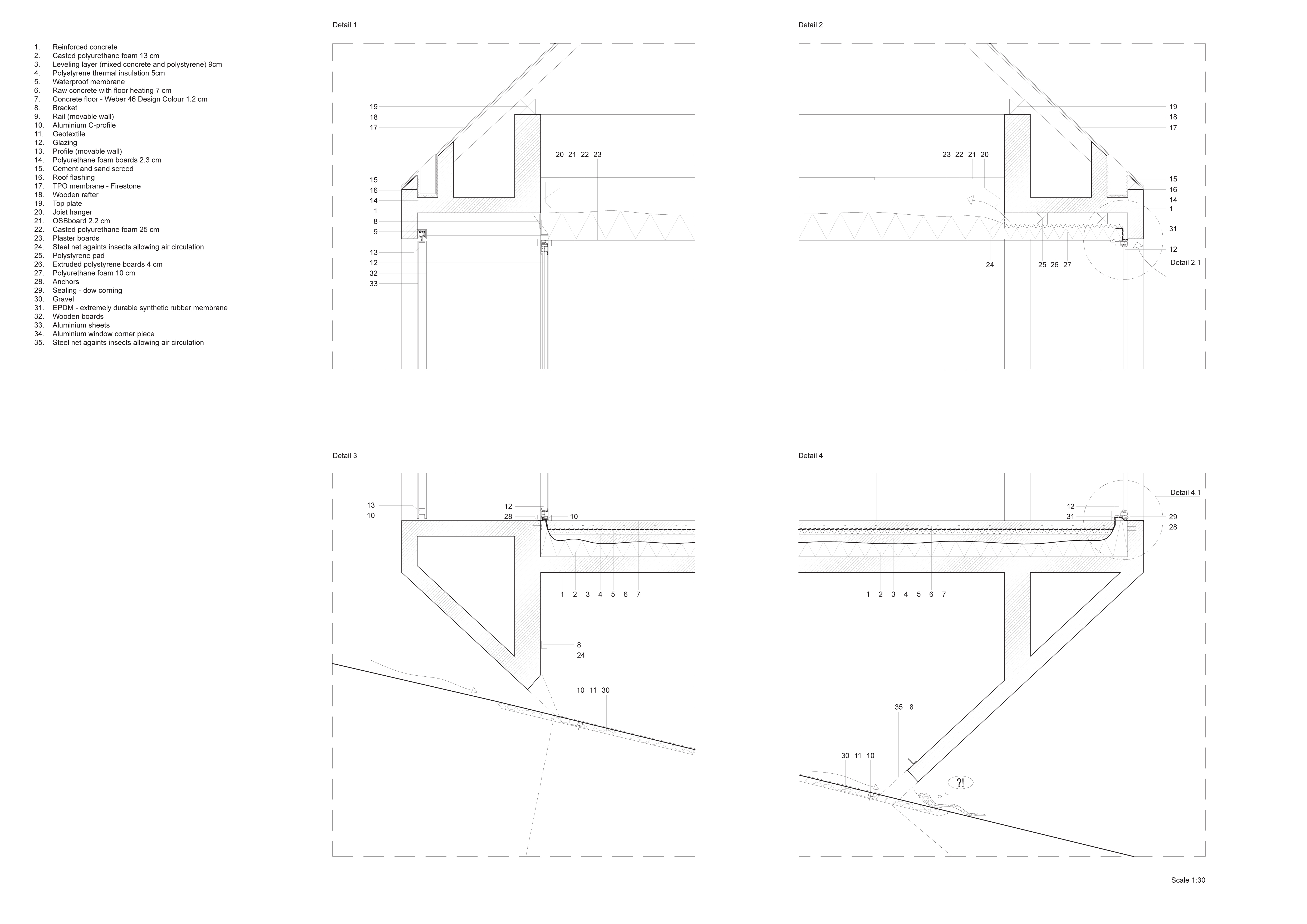
Hornatá krajina rovnako ako aj miestna stavebná regulácia si vynútili sedlovú strechu. Dom si za vzor vzal archetyp stodoly stojacej na troch tenkých stenách. Jednoliata hmota vznikla zrkadlením šikmých rovín strechy pod podlahu obytnej časti. Dom vďaka svojmu tvaru začal pripomínať archu plávajúcu nad terénom. Architekti v snahe nenarušiť tento dojem minimálne zasahovali do okolitej prírodnej scenérie. Oplotením sa stal dočasný elektrický oplotok pre kone a prístupovým chodníkom pár plochých kameňov. Stavba mala od začiatku obmedzený rozpočet, z čoho vyplýva jej racionálna konštrukcia. Aj z tohto dôvodu sa architekti rozhodli izolovať ju zvnútra. Pohľadový betón sa z vonkajšej strany stal konečnou povrchovou úpravou. Ako optimálna tepelná izolácia sa ukázala striekaná izolačná pena, ktorá slúži tiež ako parozábrana.
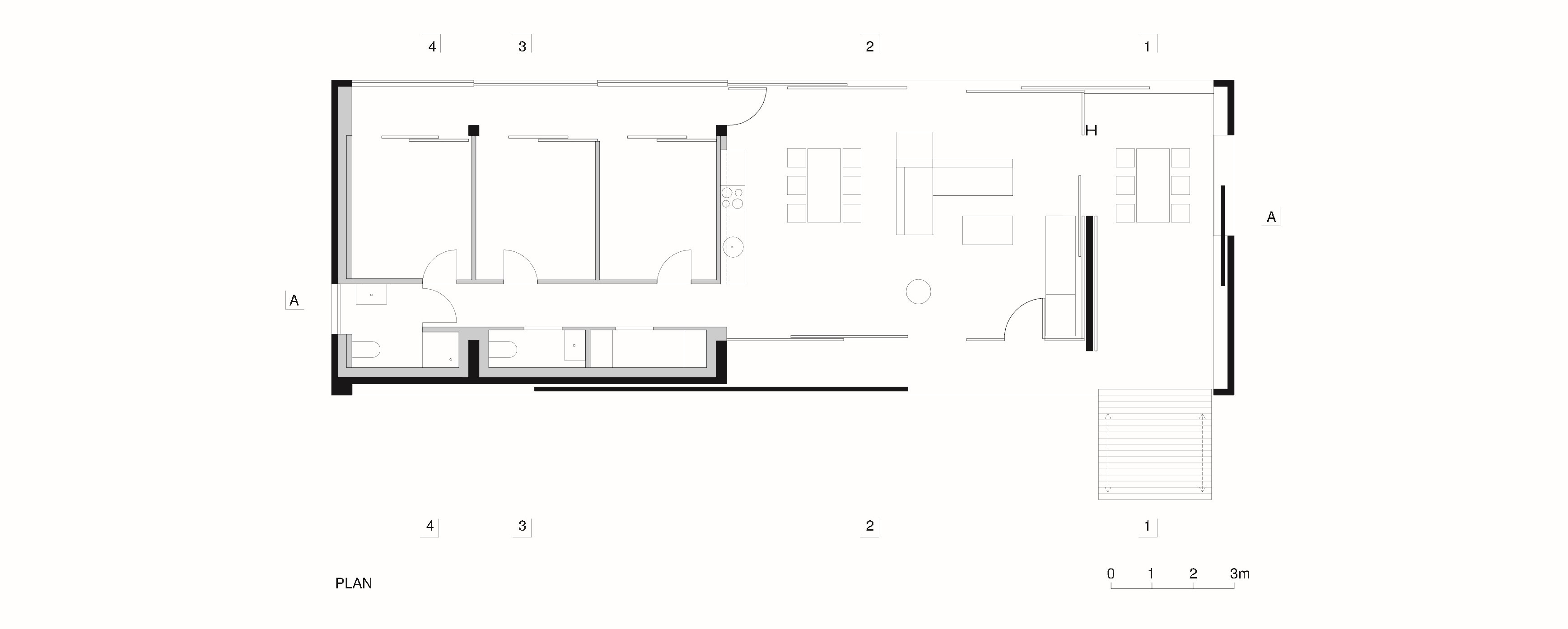
Výkresová časť:
Detaily:
Podklady: KWK Promes, fotografie: Olo studio, Jakub Certowicz, Robert Konieczny,