Advertorial

Pozvánka na 2. ročník stavebného veľtrhu BigMarket na Slovensku

Na podujatí sa predstaví až 37 vystavovateľov - popredných dodávateľov stavebných materiálov a inovácií s prezentáciou...

Hotel Hirschen Spa House, Rakúsko

Novotvar v prostredí alpskej obce.

Vytvorte si kúpeľňu snov: dizajnové riešenie od značky hansgrohe

Hansgrohe - prémiová značka kúpeľňových riešení, ponúka nadčasový dizajn, technickú precíznosť a udržateľné inovácie...

Okná Internorm za minuloročné ceny + hliníkový kryt zdarma!

Využite špeciálnu akciu Internorm: okná za minuloročné ceny a hliníkový kryt úplne zadarmo. Ponuka je časovo obmedzená!

Moderné plynové technológie: Efektivita a inovácie pre 21. storočie

Sumarizácia najdôležitejších inovácií, ktoré redefinujúcich využitie tohto energetického zdroja.

Utesňovanie spodných stavieb pomocou hydro-aktívnej fólie AMPHIBIA.

AMPHIBIA 3000 GRIP 1.3 od spoločnosti ATRO predstavuje modernú hydroizolačnú technológiu, ktorá spája vysokú odolnosť,...

Dekarbonizácia individuálneho vykurovania domácností – Green Deal evolučne a nie revolučne

Ambiciózne plány EK narazili na ekonomické možnosti domácností v jednotlivých členských štátoch –...

Minimalistické dvere IDEA – technická precíznosť a čistota prevedenia

IDEA DOOR od spoločnosti JAP prináša do interiéru čistý minimalistický vzhľad vďaka bezrámovému riešeniu a precíznej...

Dom s výhľadom na údolie, Dlouhý Most (ČR)

Kontinuita riešenia od vonkajšieho obkladu až po kovania a kľučky.

Schell Vitus – osvedčené riešenie pre sprchy a umývadlá vo verejnom sektore s viac ako desaťročnou tradíciou

Nástenné nadomietkové armatúry Vitus sú mimoriadne vhodné pre rýchlu a efektívnu...

Kompozitné okná predstavujú súčasnosť a budúcnosť

Okenné profily z kompozitného materiálu RAU-FIPRO X od spoločnosti Rehau sú v porovnaní s tradičnými plastovými profilmi mnohonásobne...

Myotis - stoly 2025

Najnovší sortiment stolov pre zariadenie interiérov...

Priemyselné sklenené priečky Dorsis Digero: svetelné rozhranie pre moderné interiéry

Spojenie moderného dizajnu, funkčnosti a svetla do harmonického architektonického prvku.

Význam prirodzeného svetla pre moderné a flexibilné pracovné prostredie

Kancelárska budova Baumit v slovinskom Trzine prešla premenou na moderné a udržateľné pracovisko. Architekti kládli dôraz...

Konferencia Xella Dialóg predstaví novinky a trendy v stavebníctve

Mottom šiesteho ročníku on-line konferencie odborníkov Xella Dialóg je Efektívny návrh budov 2025+: zmeny a riešenia

Víťazný návrh Krakovskej galérie “Bunkier Sztuki”

Ateliér Roberta Konieczneho zvíťazil v medzinárodnej architektonickej súťaži na obnovu a rozšírenie galérie moderného umenia. Ako jediný sa nedržal formy nadzemnej “superštruktúry” (odporučenej v súťažných podmienkach) a ukázal alternatívu - podzemný "stroj" s pohyblivými mechanickými časťami.
Diela
Red 308.11.2016
9850+7
Víťazný návrh Krakovskej galérie “Bunkier Sztuki”
Autori: Robert KoniecznyInvestor: Bunkier SztukiNávrh: 2016 - 2016Adresa: Plac Szczepański 3A, Krakov, PoľskoPublikované: 8. november 2016

V Krakove prebehla medzinárodná architektonická súťaž vyhlásená slávnou galériou moderného umenia Bunkier Sztuki (bunker umenia), ktorá sa nachádza v historickom centre mesta. Cieľom súťaže bolo nájsť najvhodnejšie riešenie pre plánovanú reorganizáciu a rozšírenie výstavných priestorov. Budova zo šesťdesiatych rokov je ojedinelý a hodnotný zjav v zástavbe Krakovského starého mesta. Obľúbená galéria, ktorá ťaží z blízkosti mestského parku Planty je jedným z hŕstky príkladov Poľského Brutalizmu. Dominantným prvkom je monumentálna fasáda “Bunkra”.

Situácia
Situácia
Galéria po dokončení - archívna fotogrfia
Galéria po dokončení - archívna fotogrfia
Archívna fotografia expozície
Archívna fotografia expozície
Archívna fotografia vstupného priestoru
Archívna fotografia vstupného priestoru

Zo 130 (!) architektonických kancelárií, ktoré sa prihlásili do súťaže bolo na základe referencií vybraných 33 kolektívov. Návrh architektonickej kancelárie KWK Promes architekta Roberta Konieczneho sa ako jediný nedržal formy nadzemnej “superštruktúry” (odporučenej v súťažných podmienkach) a ukázal alternatívu - podzemné rozšírenie existujúcej budovy.

Schéma konceptu
Schéma konceptu

Nový výstavný priestor je silným gestom, tak ako pôvodná budova v čase svojho vzniku. Ide o ultramoderný "stroj" venovaný prezentácii umenia. Jeho forma je úplne podriadená výstavným účelom. Využitie mechanických prvkov - pohyblivých podláh a strechy umožňuje pokryť obrovskú škálu rôznych typov výstav a podujatí čo by pri klasickom pojatí návrhu nebolo možné. Akonáhle je strecha otvorená, nový výstavný priestor je vnímateľný z perspektívy chodca, čo umožňuje interakciu galérie a okolia.

Konfigurácia novej expozície
Konfigurácia novej expozície
Funkčné členenie a prevádzka
Funkčné členenie a prevádzka
Pohľad z parku - galéria so zatvorenou strechou
Pohľad z parku - galéria so zatvorenou strechou
Pohľad z parku - galéria s otvorenou strechou
Pohľad z parku - galéria s otvorenou strechou
Interiér - výstavný priestor so zatvorenou strechou
Interiér - výstavný priestor so zatvorenou strechou
Interiér - výstavný priestor s otvorenou strechou
Interiér - výstavný priestor s otvorenou strechou

Koncept spočíva aj v rešpektovaní pôvodnej budovy galérie. Architekti sa rozhodli očistiť objekt od všetkých neskorších stavebných zásahov a obnoviť jeho pôvodnú elegantnú formu. Návrh zachováva integritu galérie a verejného priestoru, a súčasne prináša novú kvalitu a zaujímavý prvok do verejného priestoru.

Vizualizácia expozície v pôvodných priestoroch galérie
Vizualizácia expozície v pôvodných priestoroch galérie
Vizualizácia vstupu v pôvodných priestoroch galérie
Vizualizácia vstupu v pôvodných priestoroch galérie
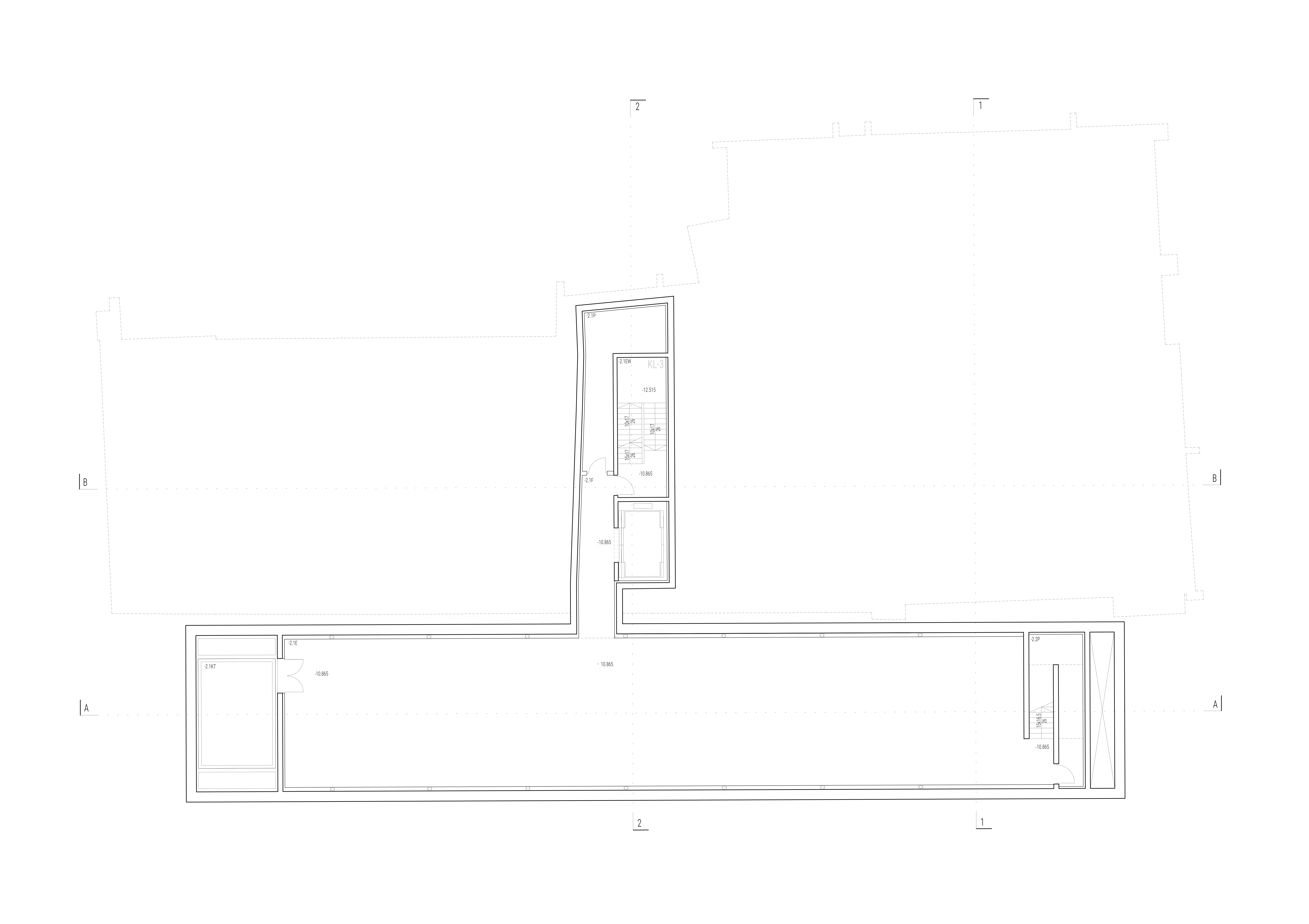
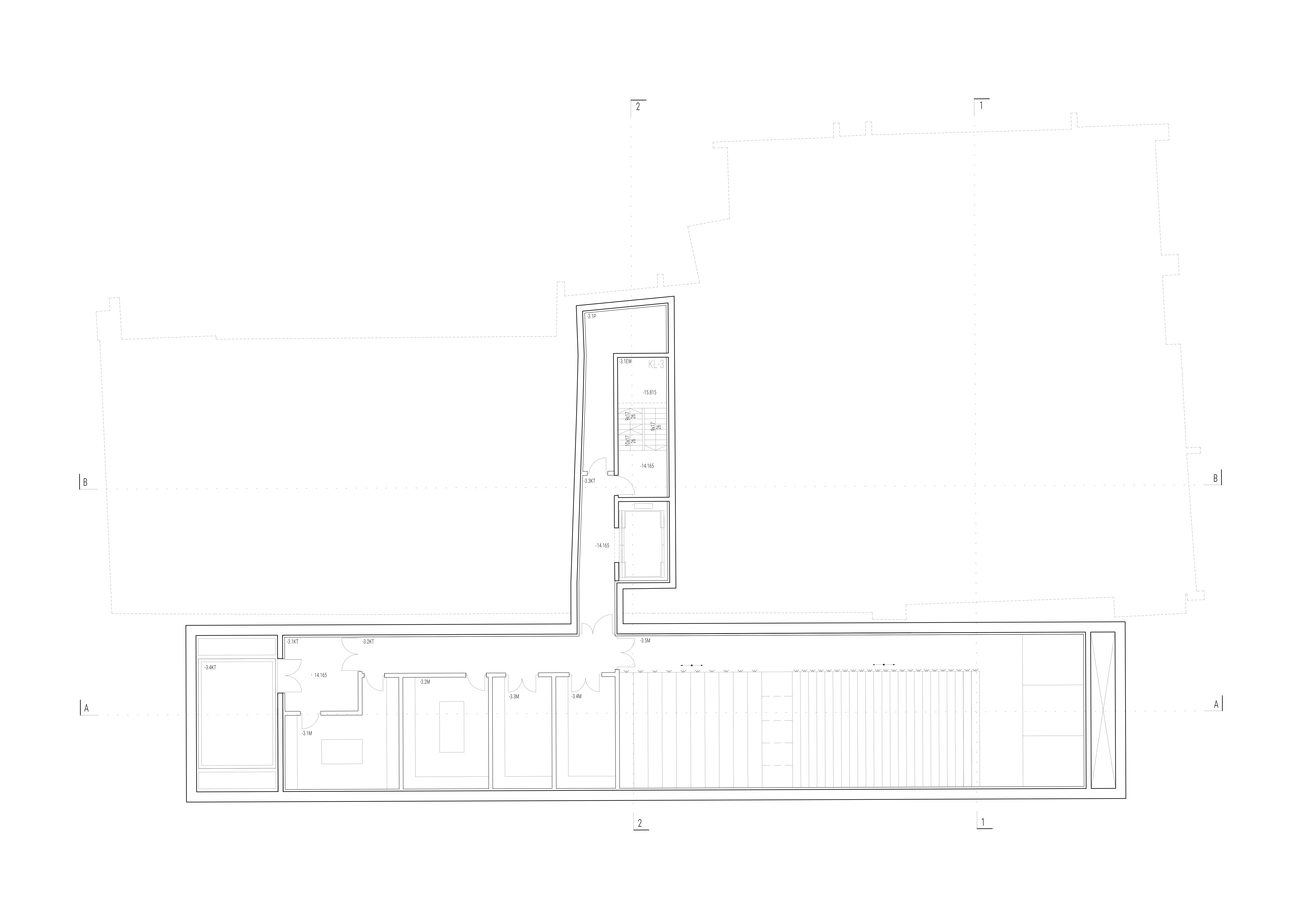
Pôdorys 4. PP
Pôdorys 4. PP
Pôdorys 3. PP
Pôdorys 3. PP
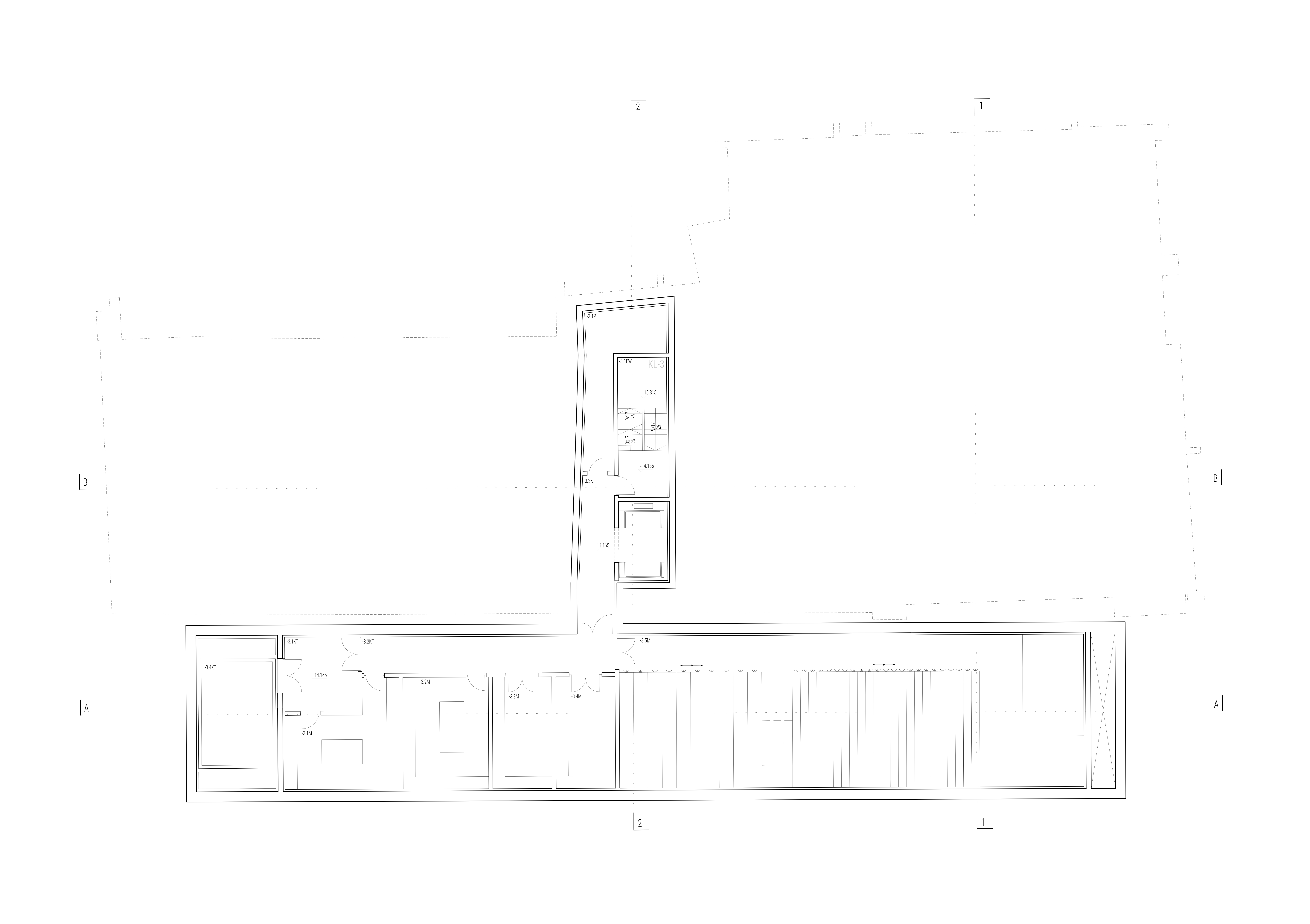
Pôdorys 2. PP
Pôdorys 2. PP
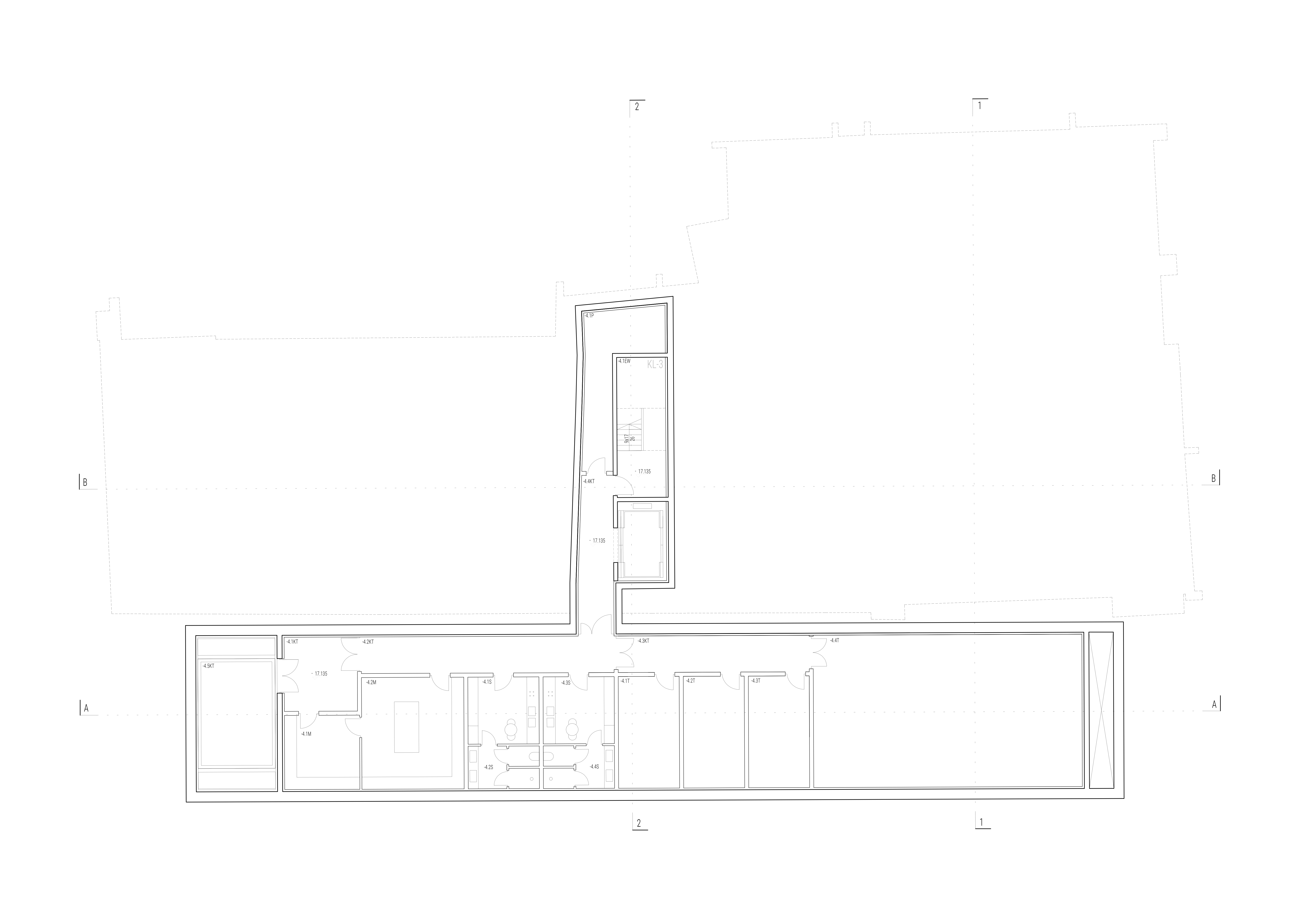
Pôdorys 1. PP
Pôdorys 1. PP
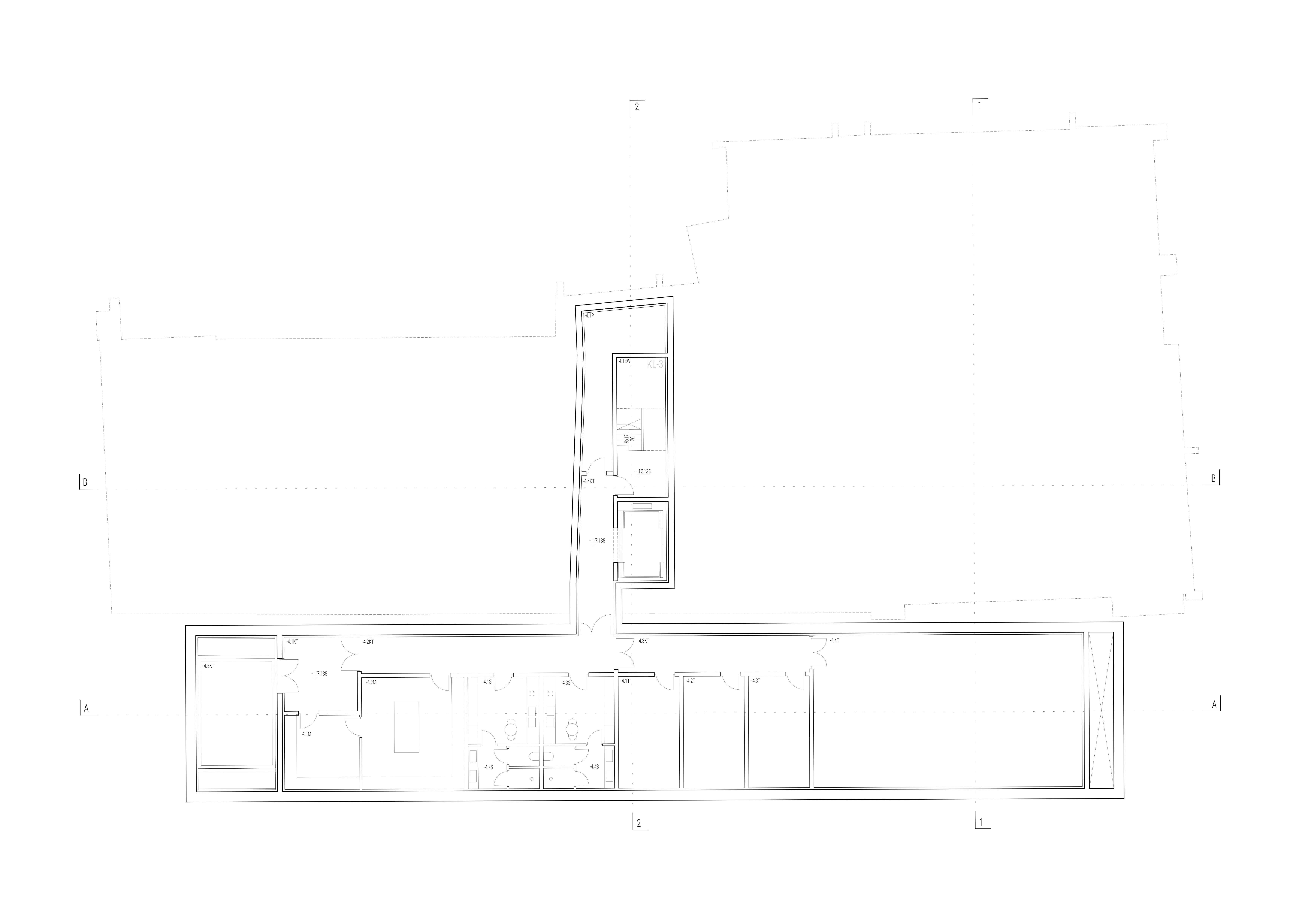
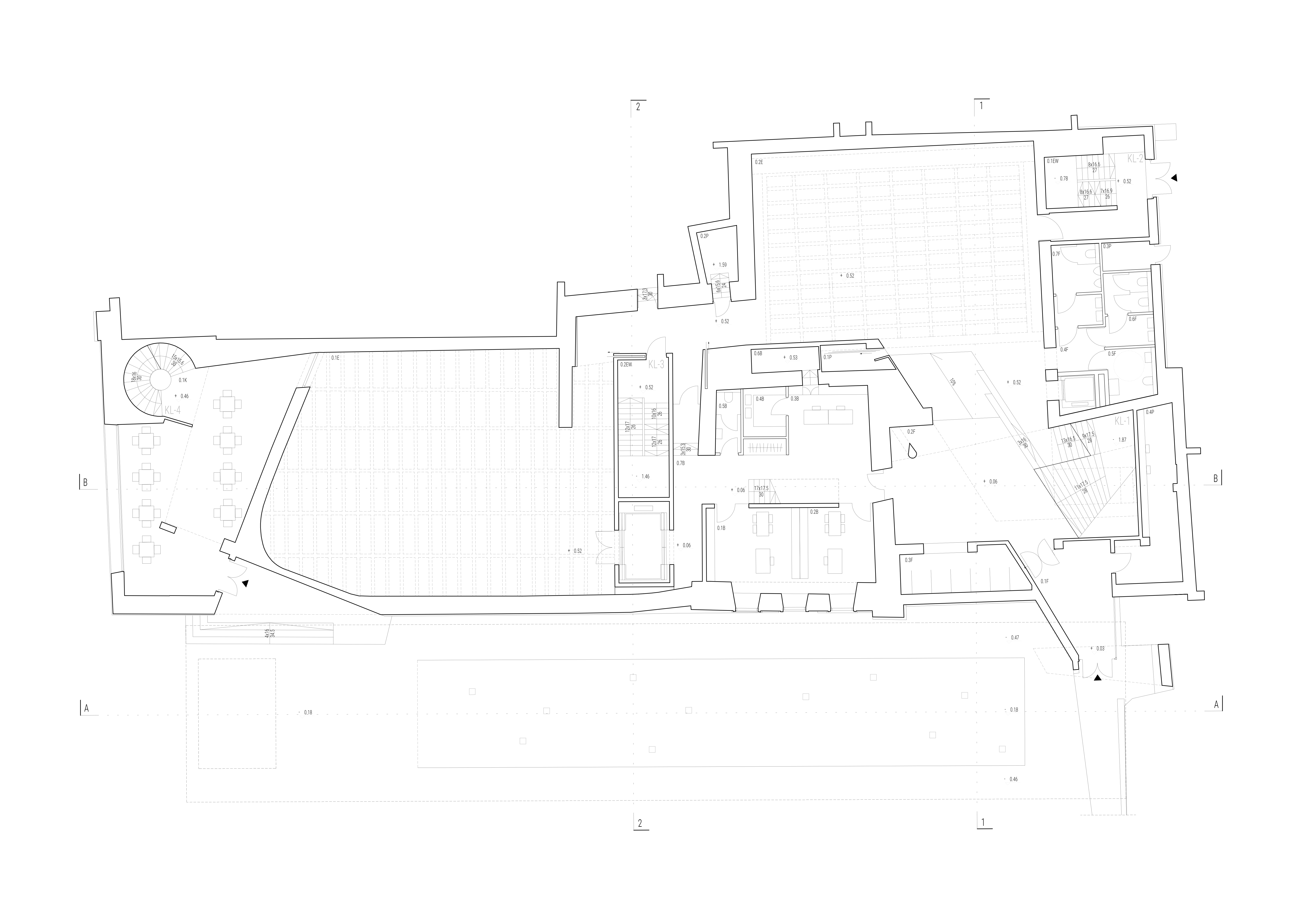
Pôdorys 1. NP
Pôdorys 1. NP
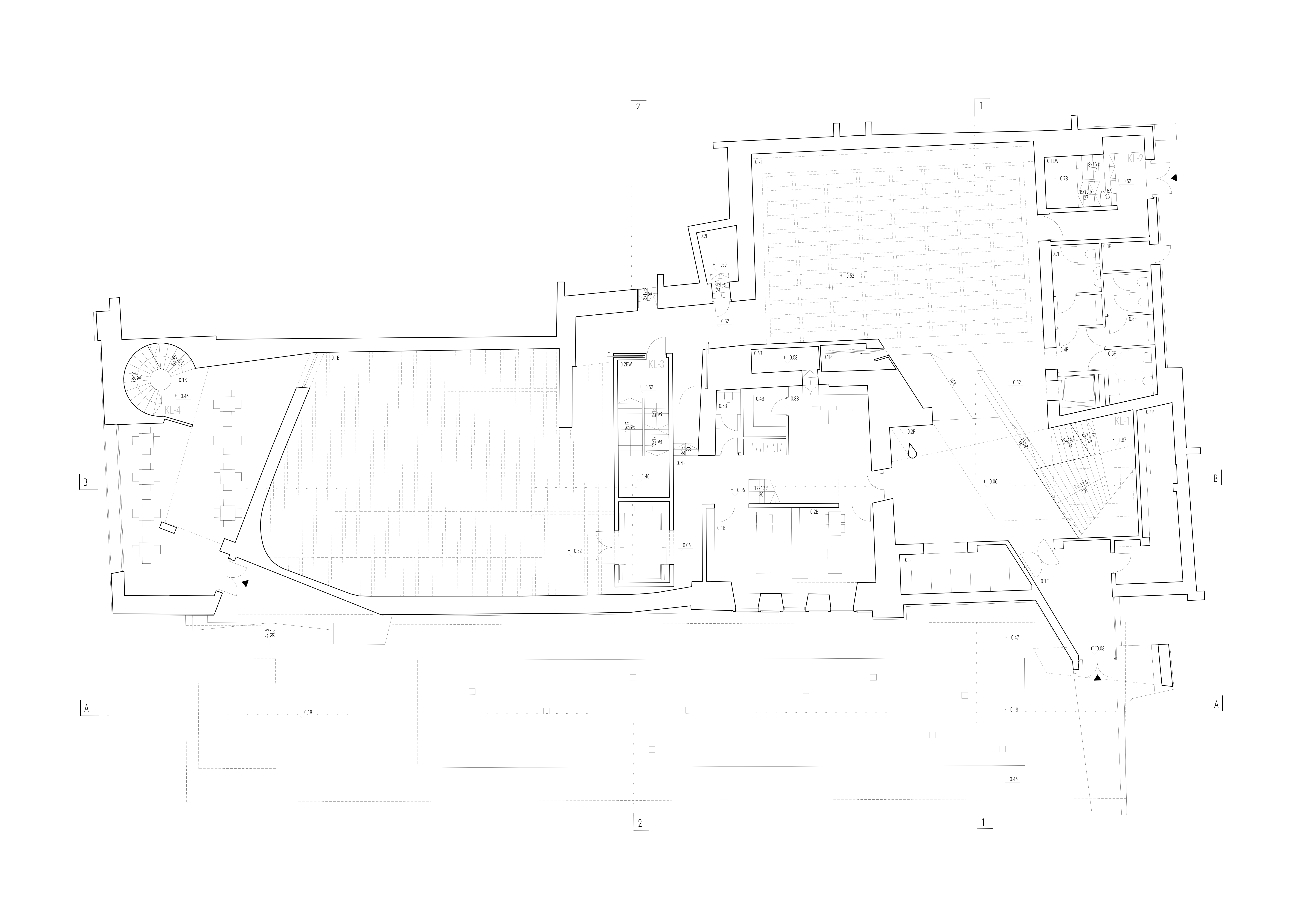
Pôdorys medziposchodia
Pôdorys medziposchodia
Pôdorys 2. NP
Pôdorys 2. NP
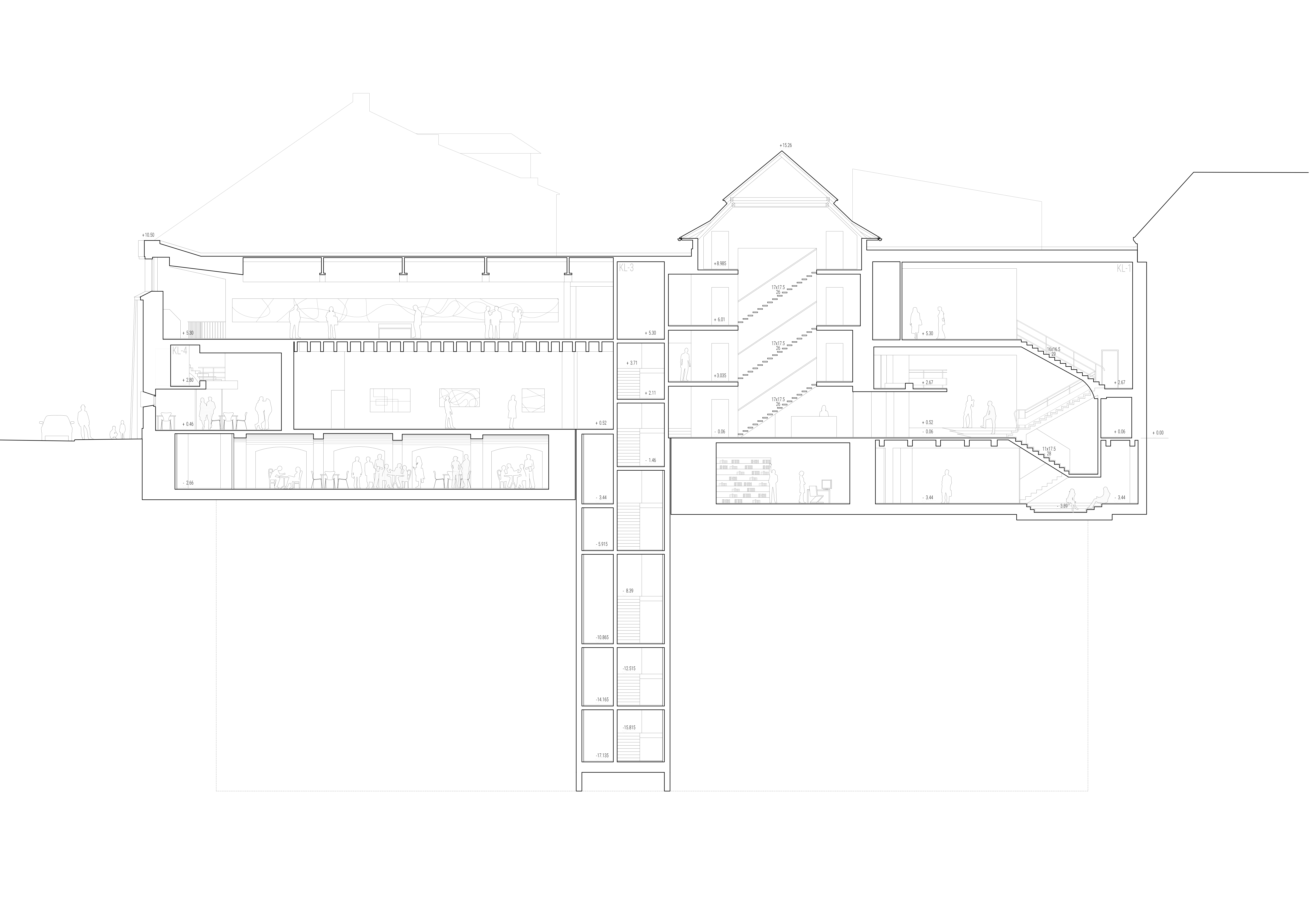
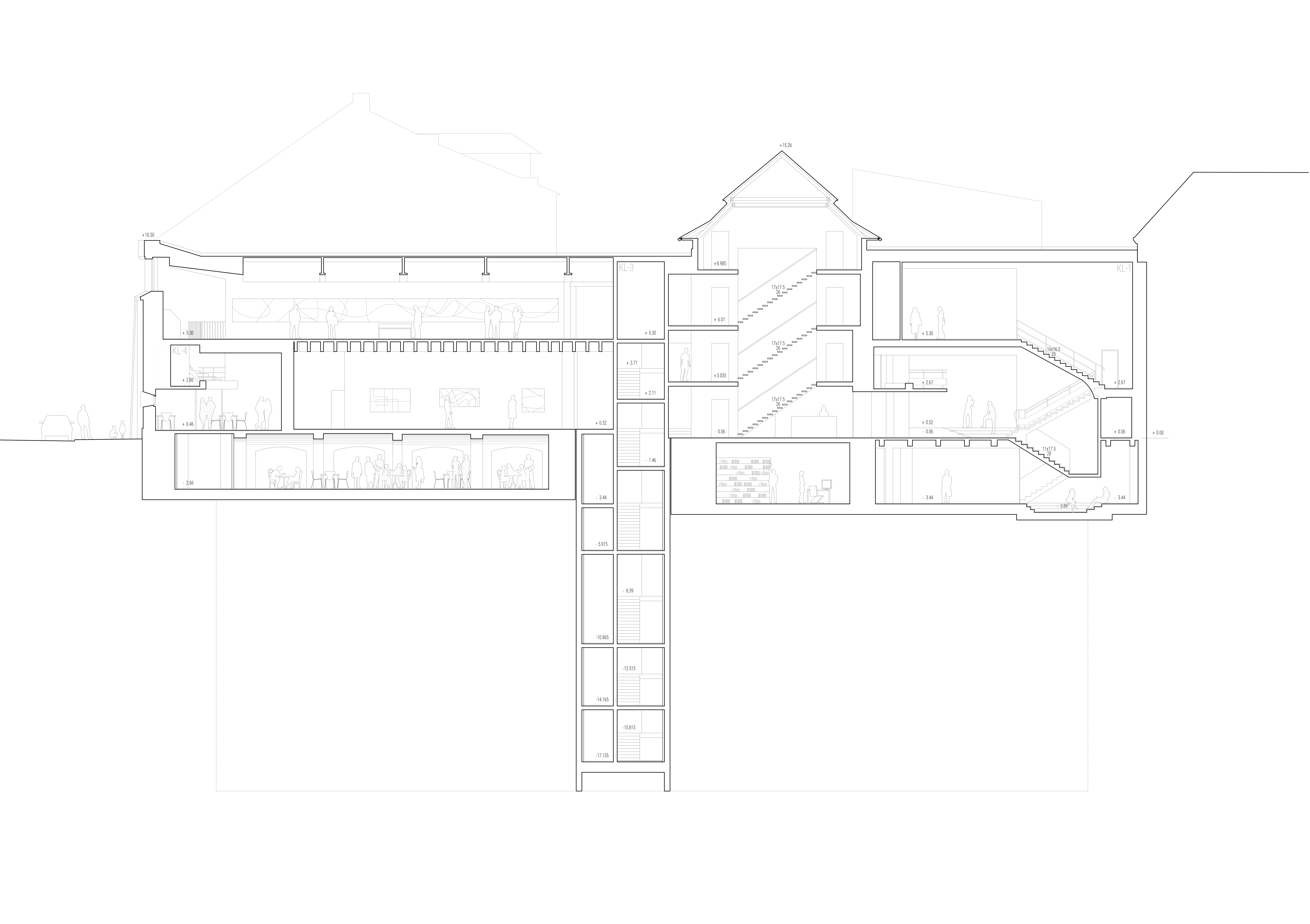
Pozdĺžny rez novým schodiskom
Pozdĺžny rez novým schodiskom
Pozdĺžny rez novou časťou galérie - zatvorená strecha
Pozdĺžny rez novou časťou galérie - zatvorená strecha
Pozdĺžny rez novou časťou galérie - otvorená strecha
Pozdĺžny rez novou časťou galérie - otvorená strecha
Priečny rez novým schodiskom
Priečny rez novým schodiskom
Priečny rez vstupom do novej časti galérie
Priečny rez vstupom do novej časti galérie

Súčastný stav: v priebehu rokov bol vzhľad pôvodnej stavby výrazne zmenený početnými stavebnými úpravami. Zmenila sa podoba exteriéru aj interiéru. Najvýraznejším zásahom je “dočasné” prestrešenie vonkajšej kaviarne, ktoré tu ostalo natrvalo a zakrýva takmer celú betónovú fasádu. 

Fotografia súčasného stavu
Fotografia súčasného stavu

Podklady: KWK PROMES

Poloha diela

Robert Konieczny

Súvisiace články

Vložené
8. november 2016
0
985
Hlavný obsahHlavný obsah
Čakajte prosím