Advertorial

Pozvánka na 2. ročník stavebného veľtrhu BigMarket na Slovensku

Na podujatí sa predstaví až 37 vystavovateľov - popredných dodávateľov stavebných materiálov a inovácií s prezentáciou...

Hotel Hirschen Spa House, Rakúsko

Novotvar v prostredí alpskej obce.

Vytvorte si kúpeľňu snov: dizajnové riešenie od značky hansgrohe

Hansgrohe - prémiová značka kúpeľňových riešení, ponúka nadčasový dizajn, technickú precíznosť a udržateľné inovácie...

Okná Internorm za minuloročné ceny + hliníkový kryt zdarma!

Využite špeciálnu akciu Internorm: okná za minuloročné ceny a hliníkový kryt úplne zadarmo. Ponuka je časovo obmedzená!

Moderné plynové technológie: Efektivita a inovácie pre 21. storočie

Sumarizácia najdôležitejších inovácií, ktoré redefinujúcich využitie tohto energetického zdroja.

Utesňovanie spodných stavieb pomocou hydro-aktívnej fólie AMPHIBIA.

AMPHIBIA 3000 GRIP 1.3 od spoločnosti ATRO predstavuje modernú hydroizolačnú technológiu, ktorá spája vysokú odolnosť,...

Dekarbonizácia individuálneho vykurovania domácností – Green Deal evolučne a nie revolučne

Ambiciózne plány EK narazili na ekonomické možnosti domácností v jednotlivých členských štátoch –...

Minimalistické dvere IDEA – technická precíznosť a čistota prevedenia

IDEA DOOR od spoločnosti JAP prináša do interiéru čistý minimalistický vzhľad vďaka bezrámovému riešeniu a precíznej...

Dom s výhľadom na údolie, Dlouhý Most (ČR)

Kontinuita riešenia od vonkajšieho obkladu až po kovania a kľučky.

Schell Vitus – osvedčené riešenie pre sprchy a umývadlá vo verejnom sektore s viac ako desaťročnou tradíciou

Nástenné nadomietkové armatúry Vitus sú mimoriadne vhodné pre rýchlu a efektívnu...

Kompozitné okná predstavujú súčasnosť a budúcnosť

Okenné profily z kompozitného materiálu RAU-FIPRO X od spoločnosti Rehau sú v porovnaní s tradičnými plastovými profilmi mnohonásobne...

Myotis - stoly 2025

Najnovší sortiment stolov pre zariadenie interiérov...

Priemyselné sklenené priečky Dorsis Digero: svetelné rozhranie pre moderné interiéry

Spojenie moderného dizajnu, funkčnosti a svetla do harmonického architektonického prvku.

Význam prirodzeného svetla pre moderné a flexibilné pracovné prostredie

Kancelárska budova Baumit v slovinskom Trzine prešla premenou na moderné a udržateľné pracovisko. Architekti kládli dôraz...

Konferencia Xella Dialóg predstaví novinky a trendy v stavebníctve

Mottom šiesteho ročníku on-line konferencie odborníkov Xella Dialóg je Efektívny návrh budov 2025+: zmeny a riešenia

Quadrant House, Poľsko

Dom s pohyblivou terasou.
Diela
Red 425.08.2019
26680+32
Quadrant House, Poľsko
Autori: Robert KoniecznySpolupráca: Marcin Harnasz, Mariusz Pawlus, Marcin Króliczek, Grzegorz Ostrowski, Justyna GórnicaPlocha pozemku: 1679 m2Podlažná plocha: 558 m2Obostavaný objem: 2802 m2Návrh: 2013 - 2015Realizácia: 2015 - 2018Adresa: PoľskoPublikované: 25. august 2019

Architekt Robert Konieczny sa stane členom L'Académie d'architecture. Počas slávnostného stretnutia, ktoré sa uskutoční 12. septembra o 18.30 v Paríži, bude poľský architekt Robert Konieczny prijatý medzi členov francúzskej Akadémie architektúry (Académie d'architecture). 

Je to potešiteľná udalosť aj z regionálneho hľadiska. Architekti z blízkeho okolia sa nestávajú často členmi podobných prestížnych inštitúcií.

"Sused" Robert Konieczny tak rozšíri skupinu zahraničných architektov, ktorým sa dostalo podobnej pocty. Medzi nich patria okrem iných aj Tadao Ando, Santiago Calatrava, Norman Foster, Massimiliano Fuksas, Jacques Herzog, Fumihiko Maki, Pierre De Meuron, Ieoh Ming Pei, Renzo Piano, Richard Rogers alebo Alvaro Siza. Ceremoniálu udelenie členstva bude predchádzať prednáška nového člena, ​​ktorý bude hovoriť o kľúčových projektoch katovického ateliéru KWK promes a uvedie ich do kontextu poľskej a svetovej architektúry.

V tomto kontexte predstavujeme jednu z posledných realizácií ateliéru Roberta Konieczneho - Quadrant House

Mnoho vecí vnímame ako konštantu. Nemennú skutočnosť. Až kým sa niekto neopýta "prečo?", a nezačne s týmito, na prvý pohľad nemennými vecami, narábať podľa nových pravidiel. V prezentovanom prípade "postrčila" architekta k variabilnému konceptu rodinného domu požiadavka investora. Premennou je pohyblivý element terasy.

Foto: Jaroslaw Syrek
Foto: Jaroslaw Syrek
Foto: Jaroslaw Syrek

Problematiku preslnenia rieši každý architekt. Robert Koniezcny ju uchopil spôsobom jemu vlastným, neuspokojil sa s bežným prístupom k problému. Východiskom bola požiadavka, ktorá zaznela vo vzájomných dialógoch s investorom: "jednoduchý, preslnený dom, ktorý by bol schopný reagovať na pohyb slnka."

Architekt zúročil svoje predchádzajúce skúsenosti s "pohyblivými domami". V návrhu rozvinul koncept do funkčnej podoby, ktorú zhmotnil v prezentovanej realizácii. 

Foto: Jaroslaw Syrek

Rodinný dom vyrástol na predmestí, ako súčasť novej, heterogénnej zástavby. 

Situácia,
Situácia,autor: KWK Promes

Základnú hmotovú koncepciu najlepšie približujú nasledovné schémy:

Koncept,
Koncept,autor: KWK Promes

Východiskom výslednej kompozície je jednoduchý pravouhlý kváder. Jeho segment - prízemnú časť autor otočil rovnobežne s ulicou, aby tak získal čo najviac súkromia. Do priestoru, ktorý vznikol "vyrezaním" otočenej časti umiestnil obývaciu izbu, nad ktorou sa nachádza súkromná zóna. V časti paralelnej s ulicou vznikla "SPA zóna". Spolu (tieto na seba kolmé časti) uzatvárajú súkromnú časť záhrady. 

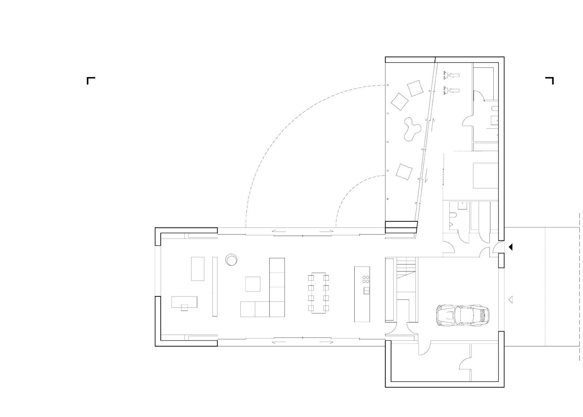
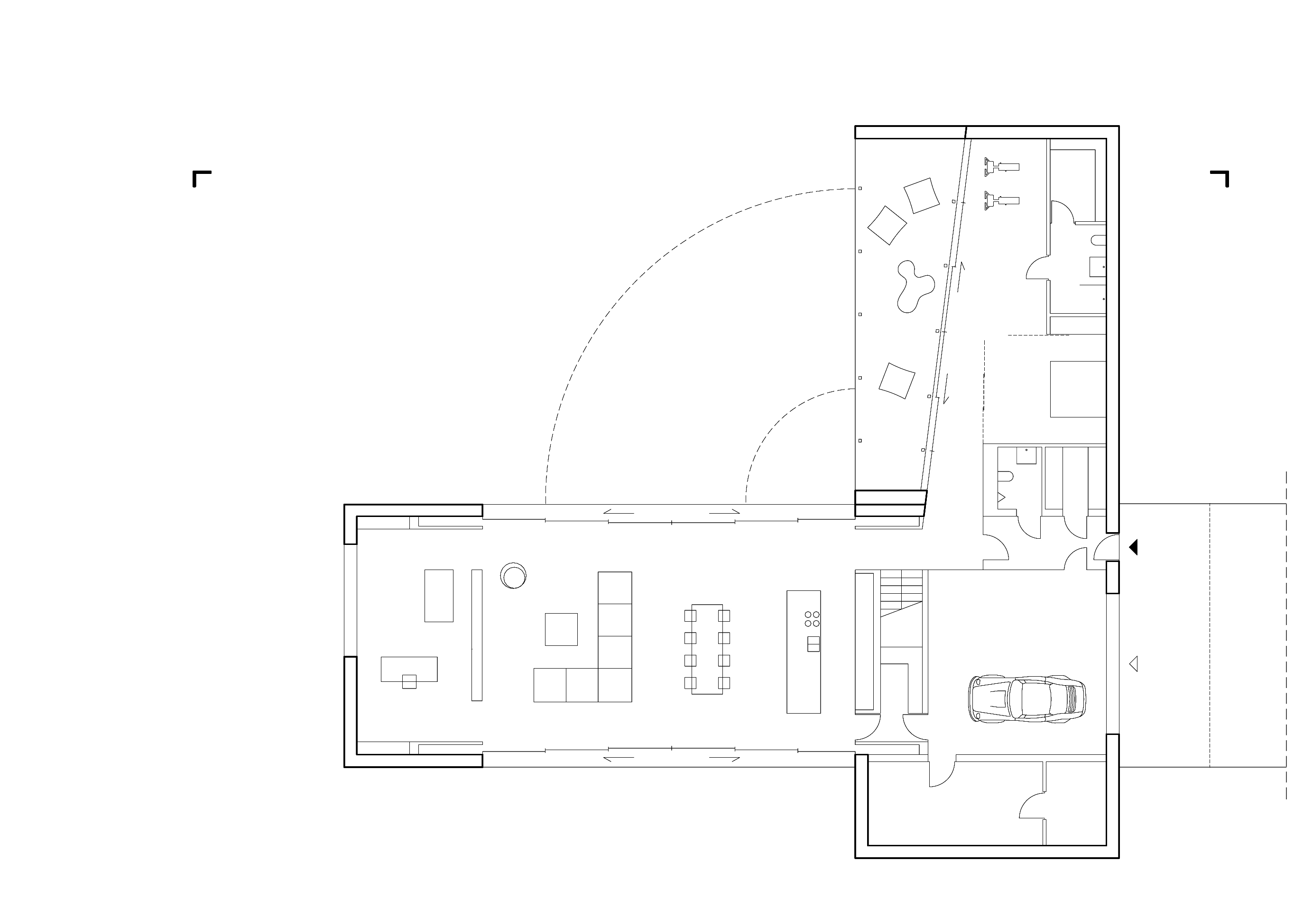
Pôdorys prízemia,
Pôdorys prízemia,autor: KWK Promes

Automatizovaný pohyb terasy sa podriaďuje aktuálnej polohe slnka. Odtiaľ pochádza aj názov domu, ktorý odkazuje na kvadrant (astronomický prístroj na meranie zenitových vzdialeností hviezd). Sledovanie pohybu našej najbližšej hviezdy - Slnka sa premieta do aktuálnej polohy terasy. Počas leta zabezpečuje čo najviac tieňa. Terasa sa pripája k najvhodnejšiemu priestoru (SPA, alebo obývacia izba). Naopak, otvorená poloha v zimných umožňuje preslnenie obytných priestorov. 

Pôdorys poschodia,
Pôdorys poschodia,autor: KWK Promes

Stavebník preferoval jednoduchý, na pohľad elementárny dom s plochou strechou. Miestna regulácia však predpisovala použitie sedlovej strechy. Výsledkom je neobvyklé riešenie, ktoré definuje charakteristickú formu objektu. Zo strany ulice môžeme vnímať šikmú štítovú stenu a siluetu strechy, ktorá postupne prechádza k vodorovnej hrane zadnej fasády. 

Pohľady,
Pohľady,autor: KWK Promes

Monolickú železobetónovú konštrukciu domu dopĺňa drevený krov. Fasáda je omietnutá bledosivou exteriérovou omietkou Sto. Obdobné farebné spektrum prevláda aj v interiéri. Na stenách, stropoch aj podlahách. Za pozornosť stojí bezrámové posuvné zasklenie, ktoré bolo vyvinuté ako prototyp pre túto stavbu. Podobnou výzvou bola realizácia mechanizmu pre pohyblivú terasu. Automatický režim zahŕňa bezpečnostný mechanizmus pre zastavenie pohybu pri kolízii s prekážkou. Samozrejmosťou je v prípade potreby aj ručné ovládanie.

Dom nie je zaujímavý iba pre svoje technické riešenie. Elementárna forma je zvýraznená monochromatickým stvárnením. Celkový dojem dotvárajú precízne detaily. Zvolené zasklenie, oplotenie domu, či skoro neviditeľný vstup do objektu a garážová brána.

Foto: Olo Studio
Foto: Olo Studio
Foto: Juliusz Sokołowski
Foto: Juliusz Sokołowski
Foto: Juliusz Sokołowski
Foto: Juliusz Sokołowski
Foto: Juliusz Sokołowski
Foto: Olo Studio
Foto: Olo Studio
Foto: Juliusz Sokołowski
Foto: Olo Studio
Foto: Juliusz Sokołowski
Foto: Juliusz Sokołowski
Foto: Juliusz Sokołowski
Foto: Juliusz Sokołowski
Foto: Juliusz Sokołowski
Foto: Juliusz Sokołowski
Foto: Juliusz Sokołowski
Foto: Juliusz Sokołowski
Foto: Olo Studio
46039
Youtube

V krátkosti o autorovi:

 

Podľa počtu medzinárodných ocenení je ateliér Roberta Konieczneho jeden z najúspešnejších v strednej Európe. V poslednom desaťročí bola pozornosť významných médií venujúcich sa architektúre sústredená takmer vždy na západ od nás. Takisto sem smerovali aj všetky významnejšie ocenenia (napríklad EU Mies Award). Zástupcovia z východnej časti kontinentu boli uvádzaní skôr ako osamotené výnimky či kuriozity pre ilustráciu. Toto v posledných rokoch prestáva platiť, aj vďaka generácii talentovaných architektov, kam patrí aj R. Konieczny.

Najvýznamnejším momentom návrhového procesu je v podaní ateliéru KWK Promes hľadanie dobre uchopiteľného konceptu. Priestorové riešene, forma aj funkcia navrhovaného objektu, materiály a tiež detaily vychádzajú zo silnej základnej idey. Niekedy sa jedná o jednoduchý kubický tvar, inokedy o organickú až amorfnú formu. Výsledok vždy vyplýva priamo z počiatočnej koncepcie, ktorá určuje konštrukčné princípy celku. Takáto architektúra nie je tendenčná a nepodlieha aktuálnej móde. "Prestaňme architektúru estetizovať. Nebude formálna, ale logická a pochopiteľná", proklamuje svoj prístup autor.

 

Do pozornosti dávame napríklad vlastný dom architekta, alebo viacero realizácií a projektov, ktoré sme publikovali na našich stránkach (súvisiace články pod týmto príspevkom). 

Podklady: KWK Promes

Poloha diela

Robert Konieczny

Súvisiace články

Sto Slovensko, s.r.o.SKStavať zodpovedne
Vložené
24. jún 2019
0
2668
Hlavný obsahHlavný obsah
Čakajte prosím