Advertorial

Pozvánka na 2. ročník stavebného veľtrhu BigMarket na Slovensku

Na podujatí sa predstaví až 37 vystavovateľov - popredných dodávateľov stavebných materiálov a inovácií s prezentáciou...

Hotel Hirschen Spa House, Rakúsko

Novotvar v prostredí alpskej obce.

Vytvorte si kúpeľňu snov: dizajnové riešenie od značky hansgrohe

Hansgrohe - prémiová značka kúpeľňových riešení, ponúka nadčasový dizajn, technickú precíznosť a udržateľné inovácie...

Okná Internorm za minuloročné ceny + hliníkový kryt zdarma!

Využite špeciálnu akciu Internorm: okná za minuloročné ceny a hliníkový kryt úplne zadarmo. Ponuka je časovo obmedzená!

Moderné plynové technológie: Efektivita a inovácie pre 21. storočie

Sumarizácia najdôležitejších inovácií, ktoré redefinujúcich využitie tohto energetického zdroja.

Utesňovanie spodných stavieb pomocou hydro-aktívnej fólie AMPHIBIA.

AMPHIBIA 3000 GRIP 1.3 od spoločnosti ATRO predstavuje modernú hydroizolačnú technológiu, ktorá spája vysokú odolnosť,...

Dekarbonizácia individuálneho vykurovania domácností – Green Deal evolučne a nie revolučne

Ambiciózne plány EK narazili na ekonomické možnosti domácností v jednotlivých členských štátoch –...

Minimalistické dvere IDEA – technická precíznosť a čistota prevedenia

IDEA DOOR od spoločnosti JAP prináša do interiéru čistý minimalistický vzhľad vďaka bezrámovému riešeniu a precíznej...

Dom s výhľadom na údolie, Dlouhý Most (ČR)

Kontinuita riešenia od vonkajšieho obkladu až po kovania a kľučky.

Schell Vitus – osvedčené riešenie pre sprchy a umývadlá vo verejnom sektore s viac ako desaťročnou tradíciou

Nástenné nadomietkové armatúry Vitus sú mimoriadne vhodné pre rýchlu a efektívnu...

Kompozitné okná predstavujú súčasnosť a budúcnosť

Okenné profily z kompozitného materiálu RAU-FIPRO X od spoločnosti Rehau sú v porovnaní s tradičnými plastovými profilmi mnohonásobne...

Myotis - stoly 2025

Najnovší sortiment stolov pre zariadenie interiérov...

Priemyselné sklenené priečky Dorsis Digero: svetelné rozhranie pre moderné interiéry

Spojenie moderného dizajnu, funkčnosti a svetla do harmonického architektonického prvku.

Význam prirodzeného svetla pre moderné a flexibilné pracovné prostredie

Kancelárska budova Baumit v slovinskom Trzine prešla premenou na moderné a udržateľné pracovisko. Architekti kládli dôraz...

Konferencia Xella Dialóg predstaví novinky a trendy v stavebníctve

Mottom šiesteho ročníku on-line konferencie odborníkov Xella Dialóg je Efektívny návrh budov 2025+: zmeny a riešenia

Obnova hradov v stredoeurópskom priestore - Csókakő, Maďarsko

V tomto dieli predstavíme obnovu hradu Csókakő v Maďarsku. Je to jeden z mála príkladov použitia metódy náznakovej rekonštrukcie v stredoeurópskom priestore.
Diela
Red 318.01.2016
14390+4
Obnova hradov v stredoeurópskom priestore - Csókakő, Maďarsko
Autori: doc. Ing. arch. Jana Gregoroá, prof. Ing. arch. Pavel Gregor, Ing. arch. Zuzana Ondrejková, PhD., Ing. arch. Silvia Petrášová, PhD.Realizácia: 2015 - 2015Adresa: Námestie slobody 19, Bratislava, SlovenskoPublikované: 18. január 2016

Hrad Csókakő - obnova areálu a náznaková rekonštrukcia vstupnej veže a kaplnky

Realizácia: 2010 - 2014

Autori obnovy: Gál Tibor, Gerák Miklós, Lénárd Márton

Výskum: Székesfehérvári Múzeum

Stavebník: Kincstár/Várbarátok Köre

Metodika obnovy: Náznaková rekonštrukcia

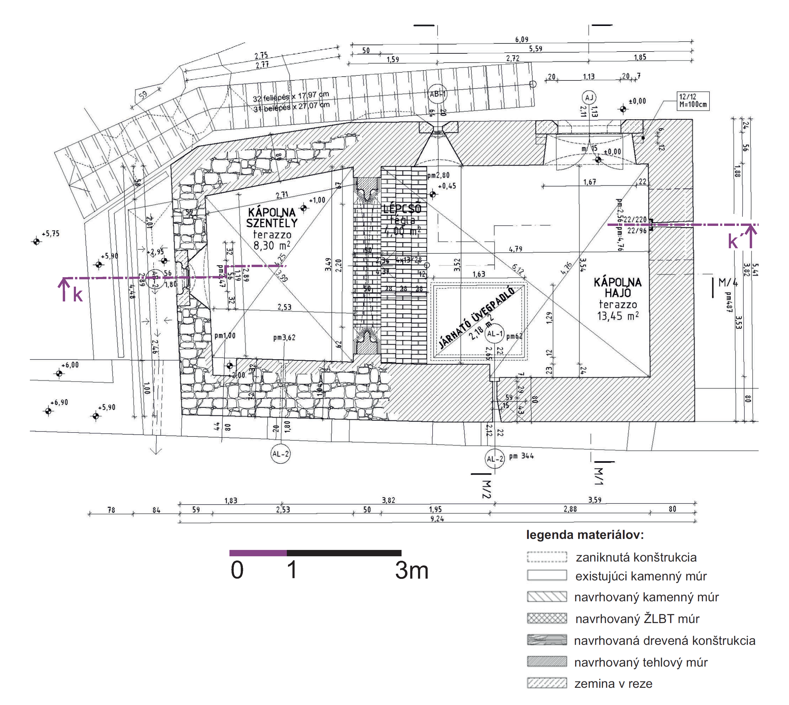
Náznaková rekonštrukcia patrí medzi rekonštrukčné metódy obnovy, neobnovuje však prvotný vzhľad, ale pôvodný charakter pamiatky. Princíp re interpretácie zaniknutej skutočnosti v sebe nesie bohatý potenciál inšpirácie z minulosti. Aby mohol byt' plnohodnotne využitý, je potrebné ovládať aspoň základné znaky zaniknutej architektúry. Naznačovať je možné hmotnými prvkami, ale aj nehmotnými. Pokiaľ sa využívajú hmotné, dá sa postupovať formou štylizácie alebo transformácie pôvodných prvkov zaniknutej architektúry.

V roku 1955 vznikla spoločnosť "Priatelia hradu Csókakő" a odvtedy sa na hrade realizuje výskum a rekonštrukčné práce. Priamo z ruín stredovekého hradu vyrástli náznakové rekonštrukcie vstupnej brány a kaplnky. Hradná brána a je vernejšou rekonštrukciou, kde nový stavebný materiál je od originálu odlíšený vápenným náterom. Otvory majú abstrahovaný tvar voči historickým originálom. Pri náznakovej rekonštrukcii kaplnky bol ten to objekt stvárnený voľnejšie. Úzke štrbinové otvory využili ako lajtmotív, ktorým vytvorili nielen okenne otvory na bočnej fasáde, ale aj okno v tvare kríža na štítovej fasáde kaplnky. Vznikol tak moderný akcent v mieste pôvodného symbolického rozetového okna a súčasná funkčná kaplnka vyrastajúca z historických základov aj tradícií

História hradu a začiatok obnovy (Tibor Gál)

S výstavbou hradu - jediného v kraji, čo bolo v tých časoch dosť neobvyklé - začal rod Csákovcov v 13. storočí. Slúžil im ako samostatné správne centrum ich rozsiahlych statkov, ktoré zaberali až štvrtinu kraja. Jeho história bola spätá s blízkym korunovačným mestom. Székesfehérvár. Hlavná budova hradu nebola nikdy dostavaná.

Napriek tomu hrad začiatkom 14. storočia odolal tureckej invázii a spravovať ho mohol príslušný krajský hajtman. Väčšina stredného hradu bola zničená až počas 19. storočia inštitucionalizovanou pamiatkovou starostlivosťou.

Obnova hradu začala z iniciatívy miestnych komunít v roku 1955. Ako prvá bola dokončená obnova oporných stien a rekonštrukcia vstupnej veže (2012). Nasledovala výstavba ochrannej budovy nad kaplnkou (2014). V súčasnosti prebieha archeologický výskum dolného hradu, kde sa predpokladajú veľmi sľubné výsledky.

Slohová analýza
Slohová analýza
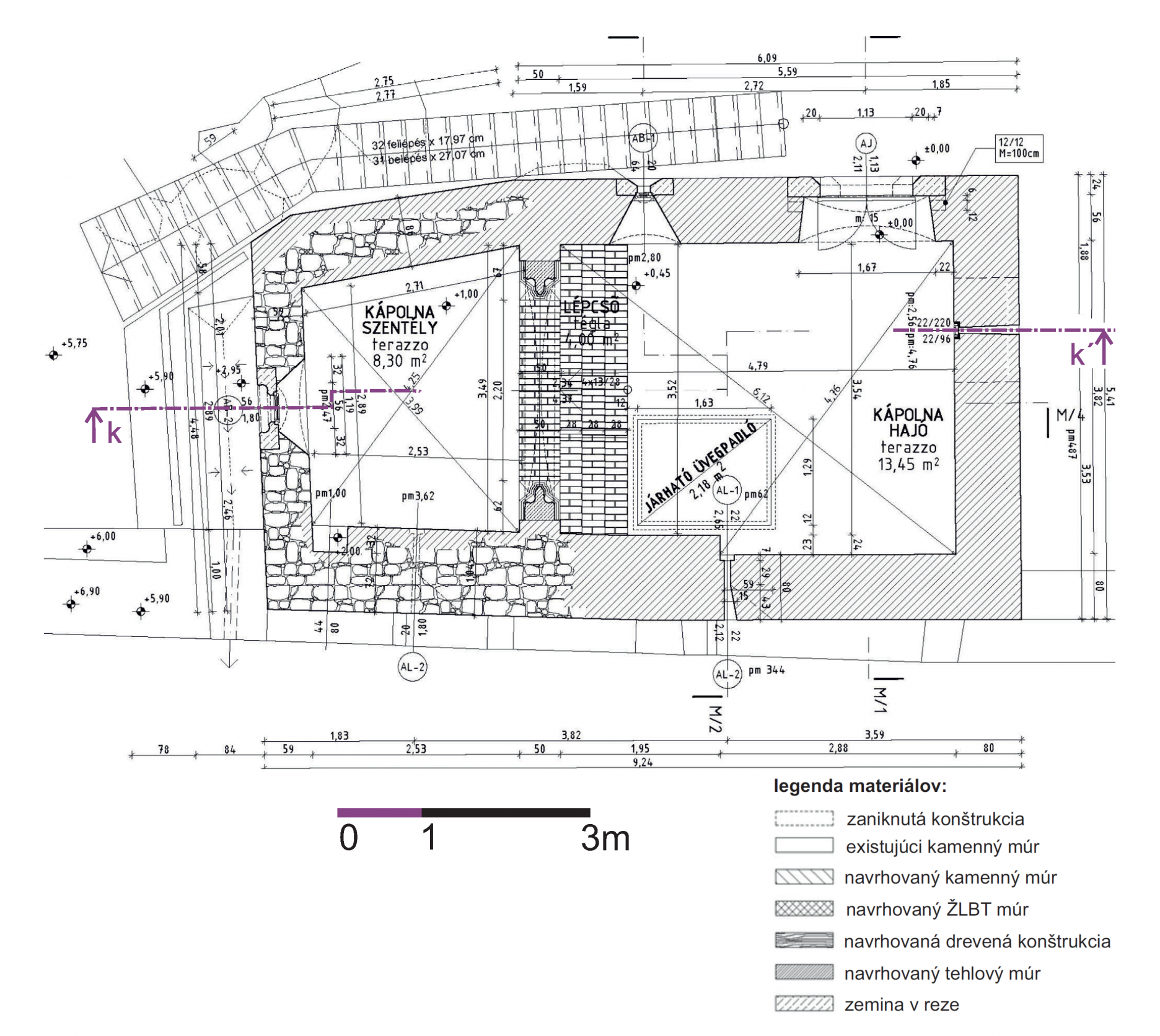
Rezopohľad k-k´
Rezopohľad k-k´
Pôdorys kaplnky
Pôdorys kaplnky
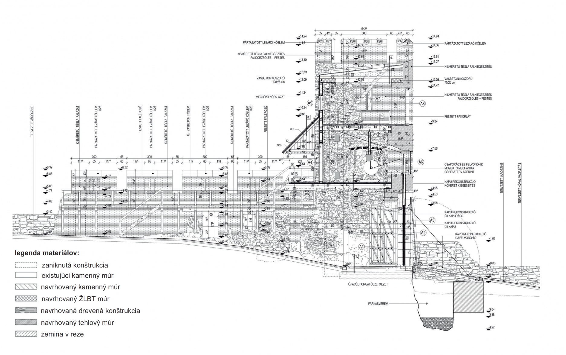
Rezopohľad v1-v1´
Rezopohľad v1-v1´
Rezopohľad v2-v2´
Rezopohľad v2-v2´
Pôdorys vstupnej veže
Pôdorys vstupnej veže
Letecká fotografia hradu počas obnovy 2010
Letecká fotografia hradu počas obnovy 2010
Rok 1930 - fotografia pred začiatkom obnovy
Rok 1930 - fotografia pred začiatkom obnovyfoto: Neogrády S.
Rok 1995 - fotografia pred začiatkom obnovy
Rok 1995 - fotografia pred začiatkom obnovy
Rok 2003- fotografia počas obnovy
Rok 2003- fotografia počas obnovy
Rok 2007- fotografia počas obnovy
Rok 2007- fotografia počas obnovy
Súčasnosť - náznaková rekonštrukcia vstupnej veže
Súčasnosť - náznaková rekonštrukcia vstupnej veže
Súčasnosť - náznaková rekonštrukcia kaplnky
Súčasnosť - náznaková rekonštrukcia kaplnky
Súčasnosť - premostenie
Súčasnosť - premostenie
Súčasnosť - pohľad na kaplnku
Súčasnosť - pohľad na kaplnku
Stav po obnove areálu a náznakovej rekonštrukcii kaplnky a vstupnej veže
Stav po obnove areálu a náznakovej rekonštrukcii kaplnky a vstupnej veže

Výstavu "Obnova hradov v stredoeurópskom priestore" pripravili:

Fakulta architektúry STU - Vzdelávacie a vedecko-výskumné centrum v Banskej Štiavnici a platforma „Načo sú nám pamiatky?“
Menovite: prof. Ing. arch. Pavel Gregor, PhD., doc. Ing. arch. Jana Gregorová PhD., Ing. arch. Zuzana Ondrejková PhD., Ing. arch. Silvia Petrášová, PhD.

Odborná platforma „Načo sú nám pamiatky?“ vznikla na Fakulte architektúry STU v roku 2013 s cieľom popularizovať problematiku pamiatkovej obnovy. Platforma sa snaží systematicky pripravovať akcie s hlavným cieľom propagovať pamiatky, a to nielen v radoch študentov, ale aj širokej verejnosti. Za zmienku určite stojí dokumentárny film “Načo sú nám pamiatky?” - sonda do názorov súčasnej spoločnosti (2013), panelová diskusia o úlohe architekta pri obnove pamiatok (2014) a výstava Obnova hradov v stredoeurópskom priestore (2015).

Podklady poskytli: Ing. arch. Zuzana , PhD. Ondrejková Ing. arch. Silvia Petrášová, PhD

Poloha diela

doc. Ing. arch. Jana Gregoroá
prof. Ing. arch. Pavel Gregor
Ing. arch. Zuzana Ondrejková, PhD.
Ing. arch. Silvia Petrášová, PhD.

Súvisiace články

Vložené
18. január 2016
0
1439
Hlavný obsahHlavný obsah
Čakajte prosím