Na podujatí sa predstaví až 37 vystavovateľov - popredných dodávateľov stavebných materiálov a inovácií s prezentáciou...
Novotvar v prostredí alpskej obce.
Hansgrohe - prémiová značka kúpeľňových riešení, ponúka nadčasový dizajn, technickú precíznosť a udržateľné inovácie...
Využite špeciálnu akciu Internorm: okná za minuloročné ceny a hliníkový kryt úplne zadarmo. Ponuka je časovo obmedzená!
Sumarizácia najdôležitejších inovácií, ktoré redefinujúcich využitie tohto energetického zdroja.
AMPHIBIA 3000 GRIP 1.3 od spoločnosti ATRO predstavuje modernú hydroizolačnú technológiu, ktorá spája vysokú odolnosť,...
Ambiciózne plány EK narazili na ekonomické možnosti domácností v jednotlivých členských štátoch –...
IDEA DOOR od spoločnosti JAP prináša do interiéru čistý minimalistický vzhľad vďaka bezrámovému riešeniu a precíznej...
Kontinuita riešenia od vonkajšieho obkladu až po kovania a kľučky.
Nástenné nadomietkové armatúry Vitus sú mimoriadne vhodné pre rýchlu a efektívnu...
Okenné profily z kompozitného materiálu RAU-FIPRO X od spoločnosti Rehau sú v porovnaní s tradičnými plastovými profilmi mnohonásobne...
Najnovší sortiment stolov pre zariadenie interiérov...
Spojenie moderného dizajnu, funkčnosti a svetla do harmonického architektonického prvku.
Kancelárska budova Baumit v slovinskom Trzine prešla premenou na moderné a udržateľné pracovisko. Architekti kládli dôraz...
Mottom šiesteho ročníku on-line konferencie odborníkov Xella Dialóg je Efektívny návrh budov 2025+: zmeny a riešenia

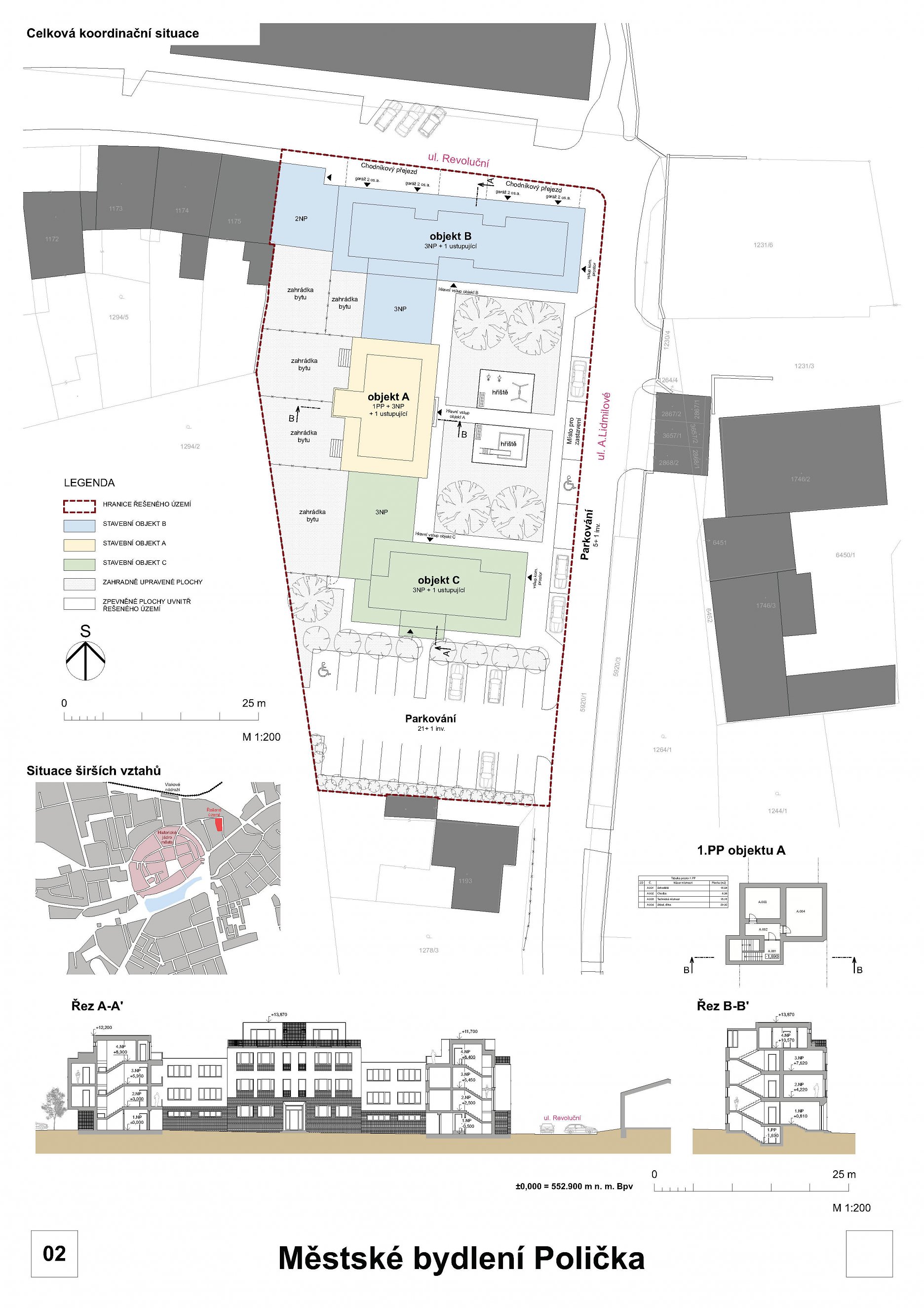
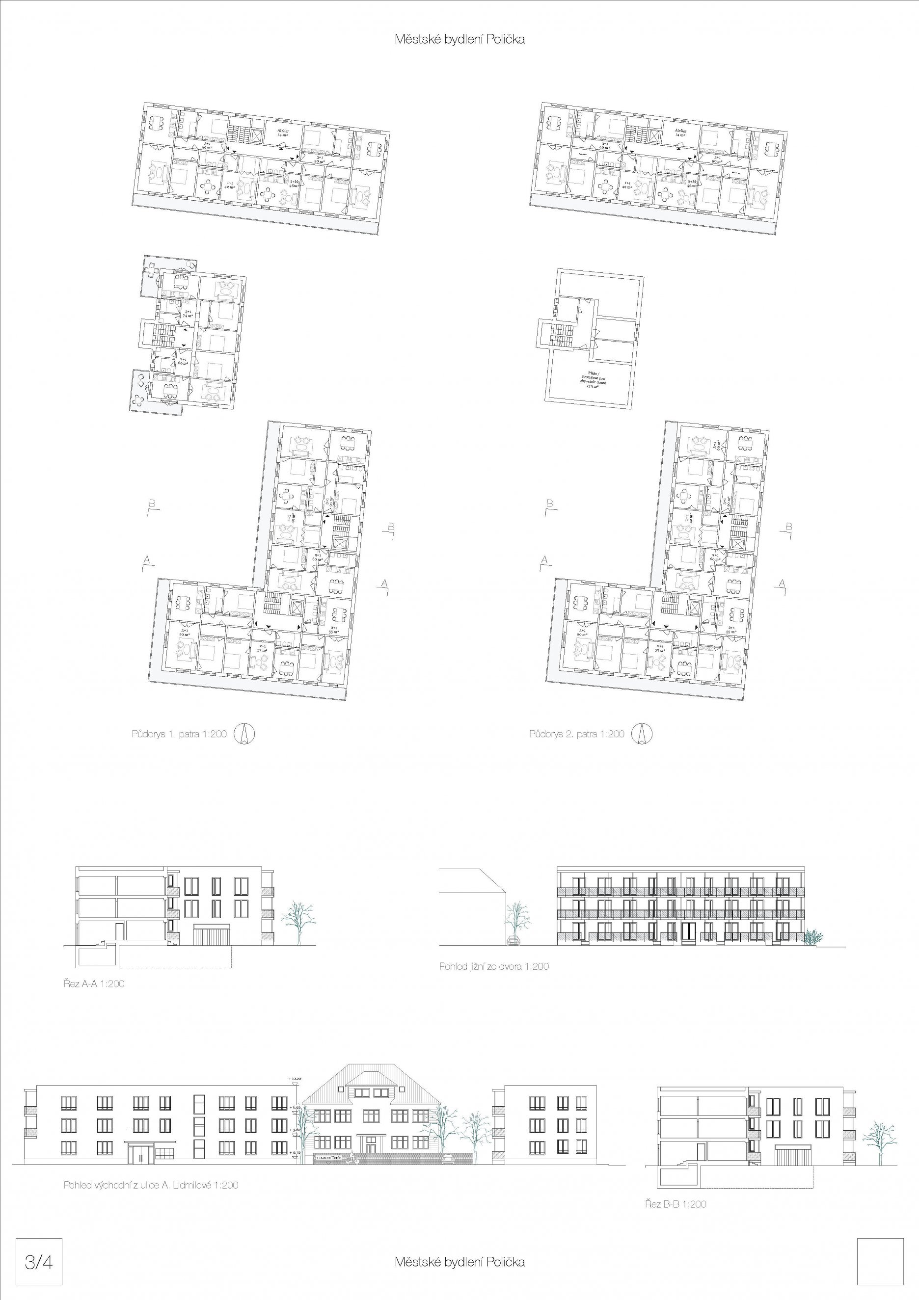
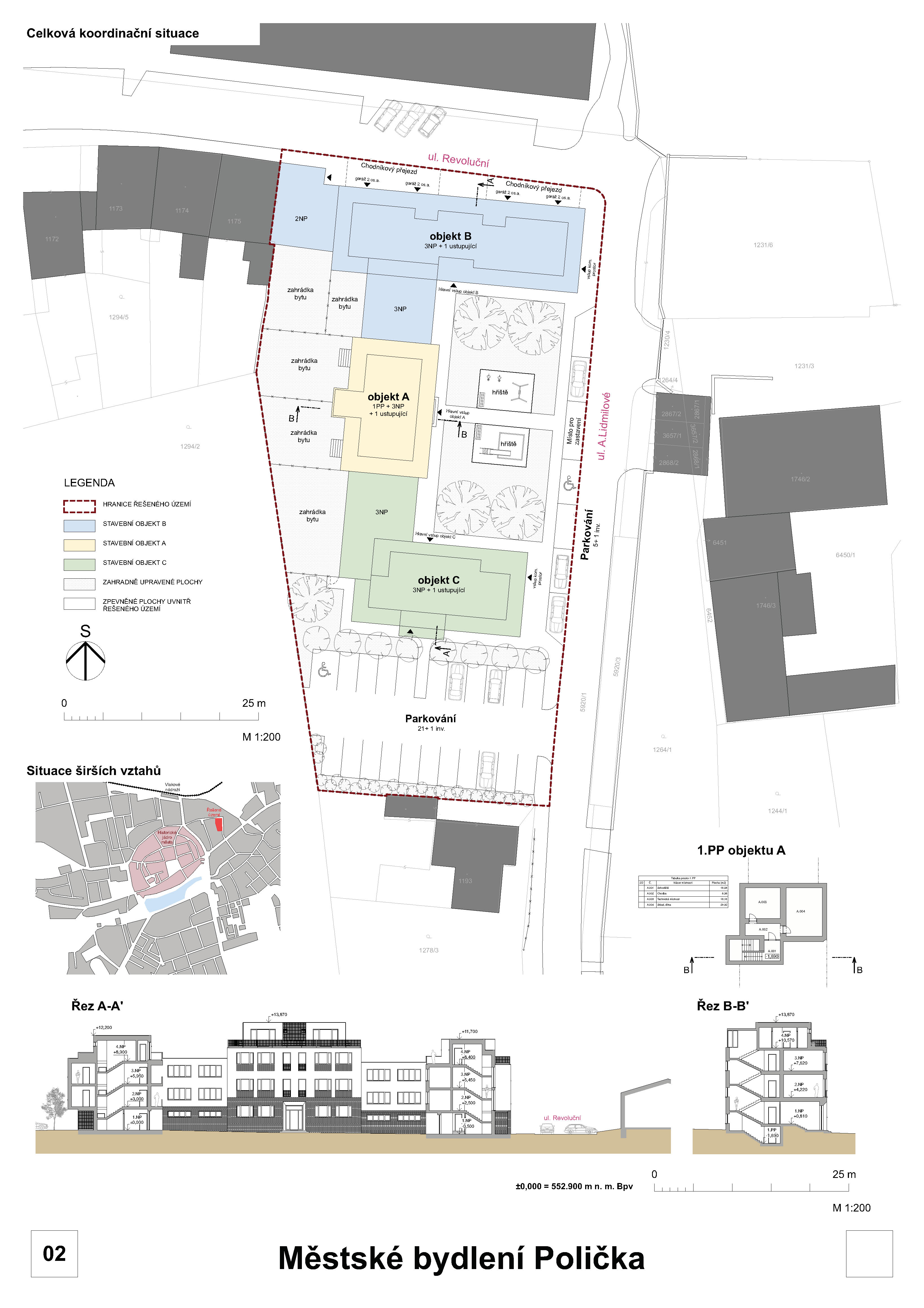
Predmetom verejnej architektonickej súťaže, ktorú vypísalo desaťtisícové české mesto, bolo urbanistické a architektonické riešenie pozemku s objektom detského domova. Cieľom zadávateľa bola efektívna transformácia areálu na plnohodnotný mestský obytný súbor. Súťažné podmienky počítali so scenárom zachovania, prestavby, alebo odstránenia pôvodného objektu. Do súťaže sa zapojili štyri slovenské ateliéry. Lokalitný program je rozsahom podobný napríklad zadaniu súťaže Bytový súbor Parková, ktorej výsledky sme zverejnili začiatkom roka. Tému mestského nájomného bývania riešila aj súťaž na obytný súbor Terchovská. V najbližšej dobe očakávame výsledky súťaže na obytný súbor na Jesenského ulici v Košiciach.
Hodnotiaca komisia rozhodla o výsledkoch nasledovne:
1. cena (250.000,- Kč) - návrh 23: Apropos Architects s.r.o., Chrudim
Autori návrhu: Ing. arch Michal Gabaš, Ing. arch. Tomáš Beránek, Ing. arch. Magdaléna Havlová
Spolupráca: Ing. arch. Tereza Práchenská, Bc. Kryštof Jireš
Hodnotenie poroty:
Čisté a srozumitelné urbanistické řešení reaguje na okolní zástavbu v severní části bloku, který dokončuje. Dále navrhuje solitérní objekt, který reaguje na umístění stávajícího objektu domova a sousedního rodinného domu v ulici A. Lidmilové. Návrh přináší ucelený areál s jasným výrazem architektury při zachování citlivě zrekonstruovaného stávajícího objektu domova.
Návrh dobře zhodnocuje celkový rozsah pozemku a přináší kvalitativně přínosné řešení veřejných, poloveřejných a soukromých ploch, dvorků a zahrad, při maximalizaci možné kapacity bytů.
Dispoziční řešení bytů a společných prostor je vyhovující a přináší řadu nápaditých řešení.
Materiálové řešení inspirované budovou Masarykovy školy v Poličce je kultivované. Výraz novostaveb a proporce adekvátně odpovídají účelu objektů.
Porota doporučuje další dopracovaní veřejných prostor (proporce zahrádek a veřejných prostor, dopracování řešení průchodů a propojení).
Z hlediska přiměřenosti ekonomiky záměru porota konstatuje, že návrh je v porovnání s ostatními oceněnými návrhy nejefektivnější.
2. cena (180.000,- Kč) - návrh 22: Ing. arch. Jiří Papoušek, Hostim
Autori návrhu: Ing. arch. Jiří Papoušek, Ing.arch. Martin Šilhan
Hodnotenie poroty:
Čisté a srozumitelné urbanistické řešení reaguje na okolní zástavbu, dobře zhodnocuje celkový rozsah pozemku a přináší kvalitativně přínosné řešení hierarchie veřejných, poloveřejných a soukromých ploch, dvorků a zahrad, s primárním umístěním parkovacích stání po obvodu řešeného území. Umístění parkovaní podél ulice A. Lidmilové se stromořadím vytváří legitimní odstup od komunikace.
Univerzální výraz architektonického řešení objektů se jeví jako formální a vyžadoval by detailní dopracování. Přestavba domova ve snaze o sjednocení s novostavbami působí schematicky a samoúčelně. Pavlačové dispozice vyžadují další dopracování (možnosti prosvětlení bytů přes pavlače, okna ve štítových stěnách atd.) za účelem zvýšení kvality bytů.
Porota doporučila v případě účasti návrhu v JŘBU jeho dopracovaní.
3. cena (120.000,- Kč) - návrh 7: Ing. arch. Jan Doubek, Praha
Autori návrhu: Ing. arch. Jan Doubek, Ing. arch. Soňa Minárechová
Hodnotenie poroty:
Přiměřené urbanistické řešení založené na symetrii s ohledem na stávající budovu domova. Architektonické řešení je zvolenou dvoupodlažní velikostí citlivé k měřítku okolní zástavby. Objemové členění objektů se jeví příliš rozdrobené a vyžaduje další dopracování. Propojení novostaveb se stávajícím objektem formou dvoupodlažních „pergol“ se jeví jako formální, přísné dodržení symetrie je omezující.
Dispoziční řešení nabízí kultivované bydlení s možnou variabilitou dispozic díky přehlednému modulovému členění. Konstrukční řešení nabízí varianty dřevostavby nebo jiného zděného systému. Umístění stromů v parkovacích stáních by v důsledku znamenalo redukci počtu parkovacích míst.
Návrh přináší ucelený areál s ohledem na rekonstrukci stávající budovy domova téměř v jeho současné podobě.
Porota doporučila v případě účasti návrhu v JŘBU jeho výrazné dopracovaní.
Odmena (40.000,- Kč) - návrh 16: ATELIER HORYNA, s.r.o., Praha
Autor návrhu: Ing. arch. Radek Horyna
Spolupráca: Ing. arch Michal Fousek
Hodnotenie poroty:
Kultivované a přiměřené urbanistické řešení tří viladomů a dvorů přehledně a čistě využívá řešené území. Zvolený koncept viladomů založený na menším počtu bytů kapacitně nevyužívá možnosti lokality a v důsledku vede převaze veřejných či poloveřejných venkovních ploch. Potenciál veřejných prostor zůstává však nevyužit. Deklarovaný přínos není prokazatelný.
Čistá a kultivovaná architektura a materiálové řešení. Výrazná přestavba objektu domova v rámci snahy o sjednocení výrazu s novostavbami se jeví jako příliš násilná. Dispoziční řešení venkovních prostor bytů formou zapuštěných lodžií menších výměr nepřináší očekávanou kvalitu bydlení.
Odmena (20.000,- Kč) - návrh 13: at DESTYL s.r.o., Praha
Autori návrhu: Ing. arch. Martin Poledníček, Ing. arch. Jakub Sedlák, Ing. arch. Anna Línková, Bc. Zuzana Butelová, Stanislav Janíček, Ing. Radek Eis
Hodnotenie poroty:
Originální urbanistické řešení není dotaženo v architektonickém a dispozičním řešením objektů, nevyužívá tak svůj potenciál. Porota oceňuje grafické ztvárnění a zvolené atypické řešení lineárního dvoupodlažního objektu, který vhodně navazuje na okolní zástavbu a svou křivkou vnitřní fasády reaguje na nepravidelnost dvorů a zahrad.
Odmena (10.000,- Kč) - návrh 1: Ing. arch. Zdeněk Kadlec, Mladá Boleslav
Autor návrhu: Zdeněk Kadlec
Hodnotenie poroty:
Urbanistické řešení vytváří veřejný prostor promenádního charakteru, který je danému prostředí cizí. Architektonické řešení objektů neodpovídá charakteru okolní zástavby.
Neocenené návrhy v chronologickom poradí (podľa dátumu odovzdania):
Návrh 2 - about_architecture, s.r.o., Bratislava
Autori návrhu: Ing. arch. Pavol Zibrin, Ing. Róbert Donoval
Porotě se jeví architektonické řešení objektů jako nepřesvědčivé a neodpovídající charakteru lokality. Snaha o sjednocení přestavovaného objektu domova a novostaveb je čistě formální.
Návrh 3 - build&build s.r.o., Praha
Autor návrhu: Ing. arch. Martin Kulštejn
Architektonický výraz objektů je nepřesvědčivý a řešení dopravy v klidu pod domy transparentně do vnitrobloku zhoršuje kvalitu poloprivátního dvora.
Návrh 4 - TRIGLYPH architektonická kancelář s.r.o., Praha
Autor návrhu: Ing. arch. Josef Dastych
Předimenzované využití pozemku jak plošně tak objemově. Společné prostory dvorku apod. jsou minimální oproti zpevněným plochám např. parkování. Architektonický výraz je nesourodý.
strana 12 (celkem 21)
Návrh 5 - Matouš Pluhař, Velký Týnec
Autori návrhu: Matouš Pluhař, Ing. Jaromír Pecháček
Uměřené urbanistické řešení je oslabeno schématickým architektonickým tvaroslovím objektů, které nereaguje na rozdílný kontext (ulice, nároží..), který nerozvíjí. Otázkou je umístění velkého severního parkoviště v proluce.
Návrh 6 - Masák&Partner, s.r.o., Praha
Autor návrhu: Ing. arch. Jan Brejcha
Urbanistické a architektonické řešení je formálně, hmotově a měřítkově mimo kontext lokality. Formálně symetrický architektonický výraz objektů vytváří zdání jiného účelu než je bytový dům.
Návrh 8 - Archsign s.r.o., Praha
Autori návrhu: Ing. arch. Petr Sobotka
Urbanisticky solitérní řešení staveb je odtrženo od okolní zástavby. Kontext okolí nerozvíjí a stávající objekt domova je začleněn zcela formálně.
Návrh 9 - Ing. arch. Vladislava Rynešová, Bratislava
Autorky návrhu: Ing. arch. Vladislava Rynešová, Ing. arch. Jana Špaňová
Nevhodné urbanistické řešení, včetně umístění parkovacích stání. Čtyřpodlažní přestavba domova neodpovídá regulativům.
Návrh 10 - OK PLAN ARCHITECTS, s.r.o. Humpolec
Autor návrhu: Ing. arch. Luděk Rýzner
Nevhodné urbanistické řešení. Architektonický výraz je mimo kontext lokality. Čtyřpodlažní nárožní část objektu neodpovídá regulativu.
Návrh 11 - Ing. arch. Tereza Sedlářová, Hradčovice
Autorka návrhu: Ing. arch. Tereza Sedlářová
Spolupráca: Mgr. Jan Knotek
Urbanistické přiměřené řešení a však při maximalizaci počtu bytů spotřebovává většinu veřejného prostoru. Soulad s výškovým regulativem je diskutabilní.
Návrh 12 - Ing. Jiří Zuman, Praha
Autori návrhu: Ing. Jiří Zuman, Markéta Korbeliusová, Jan Zrzavý
Urbanistické řešení působí stísněně a architektonický výraz je formální a kontext lokality nerozvíjející.
Návrh 14 - LZ-PROJEKT plus s.r.o., Valašské Meziřičí
Autori návrhu: Ing. Leoš Zádrapa, Bc. Lucie Zádrapová
Nevyvážené urbanistické umístění objektů na pozemek nevhodně ve prospěch řešení parkovacích stání v jižní části pozemku.
Návrh 15 - Ing. arch. Radek Toman, Ph.D., Litomyšl
Autori návrhu: Ing. arch. Radek Toman, Ph.D., Bc.Tatiana Uhríková, Bc. Lenka Haasová, Ing. Tomáš Moudrý – Astalon s.r.o.
Urbanistické řešení působí hodně zahuštěně a komplikovaně. Společné prostory dvorku apod. jsou minimální oproti zpevněným plochám např. parkování a komunikací.
Návrh 17 - Stempel Tesař architekti s.r.o., Praha
Autori návrhu: Ing. arch. Jan Jakub Tesař Ph.D., Bc. Jakub Kender, Ing. arch. Jakub Neumann
Formální urbanistické řešení. Opakování stejného objektu v odlišném kontextu (ulice, nároží, vnitroblok) nerozvijí charakter místa.
Návrh 18 - Ing. arch. Jan Trávníček, Praha
Autori návrhu: Ing. arch. Jan Trávníček,, Ing. arch. Jakub Sládek
Vyhovující urbanistické řešení není dále rozvinuto architektonicky a provozně.
Návrh 19 - D+Architekti s.r.o., Pozďatín
Autori návrhu: Ing. arch. Milan Drbálek, Bc. Přemysl Zhoř
Uměřené urbanistické řešení je oslabeno schématickým architektonickým tvaroslovím objektů, které nereaguje na charakter lokality.
Návrh 20 - Ing. Tomáš Vávra, Brno
Autori návrhu: Ing. arch. Tomáš Zavoral, Ing. Tomáš Vávra, Ing. Tomáš Kolkp
Urbanistické řešení s parkováním uvnitř areálu je nepřesvědčivé. Parkování spotřebovává většinu veřejného prostoru. Návrh je vzhledem k okolní zástavbě příliš hmotný. Způsob vyhovění regulativu (ustoupené podlaží) se zdá sporný.
Návrh 21- Aoc architekti s.r.o., Praha
Autori návrhu: MgA. Ondřej Císler, Ing. arch. Josef Choc, Ing. arch. Filip Rašek, Ing. arch. Barbora Lopraisová
Spolupráca: Emily Hillová
Urbanisticky přiměřené řešení není adekvátně architektonicky dopracováno (např. parter plný garáží, návrh přestavby objektu domova). Navržená parkovací stání kolidují s požadavkem možnosti průjezdu na sousední pozemek.
Návrh 25 - Ing. arch. Michal Kontšek, Bratislava
Autori návrhu: Ing. arch. Michal Kontšek
Urbanistické řešení dvou novostaveb bytových domů podmíněné demolicí stávajícího objektu domova nepřináší větší efektivitu využití ani adekvátní zvýšení kvality bydlení a charakteru lokality.
Porota oceňuje kultivované architektonické řešení a prověření varianty s demolicí objektu domova.
Porota se rozhodla ocenit tento návrh odměnou.
Přiměřené urbanistické řešení je v kontrastu k schematicky univerzálnímu architektonickému výrazu, kterému je násilně přizpůsoben i objekt domova.
Návrh 26 - Ing. arch. Vojtěch Sosna
Autori návrhu: Ing. arch. Vojtěch Sosna, Norbert Lichý, Jiří Formánek
Urbanistické řešení prokazuje, že snaha o maximalizaci počtu bytů vyvolává výrazný nepoměr mezi plochami parkování a klidovými plochami dvorků a zahrad. Architektonické řešení násilně sjednocující budovu domova s novostavbami je nepřesvědčivé a formální.
Návrh 27 - atelier H3T architekti s.r.o., Praha
Autori návrhu: Ing. arch. Jiří Ksandr, Ing. arch. Elena Seregina, MgA. Vít Šimek, MgA. Štěpán Řehoř, Ing. arch. Alexandr Kačalov
Urbanistické a architektonické řešení působí formálně a přísně a vytváří si svůj vlastní architektonický mikrosvět rezignující na kontext okolní zástavby.
Návrh 28 - Ing. arch. Kamil Měrka, Praha
Autor návrhu: Ing. arch. Kamil Měrka
Spolupráca: Ing. arch. Tomáš Kozel, Ing. arch. Petra Měrková, Roman Filip
Urbanistické řešení solitérního čtyřdomu vytváří pro lokalitu neadekvátní a cizí městský prostor na úkor kvality vnitřních dvorků a zahrádek. Zachování objektů domova je čistě formální.
Návrh 29 - BY architects, Praha
Autori návrhu: MgA. Markéta Zdebská
Spolupráca: Ing. arch. Marek Žáček, Ing. arch. Michaela Křižáková, Ing. arch. Marie Čáslavská
Příznivé urbanistické řešení není promítnuto do architektonického a provozního schématu objektů. Bydlení nad garáží omezuje plnohodnotné využití vnitřního dvora a zahrádky.
Návrh 30 - M.Šrámek A.A -architektonická kancelář, Praha
Autori návrhu: Akad. arch. Michal Šrámek, Ing. arch. Josef Krejčí
Spoluautori: Ondřej Toman, Petr Lhoťan
Přiměřené urbanistické řešení je oslabeno vtažením parkování do vnitrobloku. Navržené řešení soukromých předzahrádek je limitováno schématickým řešením. Porota oceňuje zájem o návaznost na stávající zástavbu na severní straně pozemku a originalitu kultivované novostavby. Dispoziční řešení bytů pouze se severní orientací je problematické.
Návrh 31 - Studený architekti s.r.o., Bratislava
Autori návrhu: Ladislav Bartko, Jan Studený
Spolupráca: Antonín Šíma, Júlia Kolláthová, Maroš Bátora
Urbanistické řešení s paralelní vnitřní ulicí s parkováním je diskutabilní a redukuje společné klidové prostory na minimum. Navržené objekty se zdají převýšené a splnění regulativu diskutabilní. Formální chyby ve výkresech.
Návrh 32 - Consequence forma s.r.o., Brno
Autori návrhu: Ing. arch. Martin Sládek, Ing. arch. MArch. Jana Šipulová
Spolupráca: Ing. arch. Petra Buganská, Ing. arch. Jan Schleider, Ing. arch. Prokop Matěj MSc., Ing. arch. Barbora Bělunková, Ing. arch. Nina Vlček Ličková
Urbanistické řešení je příliš zahuštěné, snaha o maximální využití pozemku z hlediska počtů bytů a parkování, vedoucích k úvahám o zapuštěných nebo podzemních garážích, se jeví jako diskutabilní.
Návrh 33 - Ing. arch. David Hlouch, Tehov
Autor návrhu: Ing. arch. David Hlouch
Přiměřené urbanistické řešení se jeví jako nedopracované z hlediska funkčního využití veřejných prostor a návrhu zeleně. Architektonický návrh je nepřesvědčivě prezentován a vyvolává spíše otázky. Některé výkresy chybí úplně, například řezy.
Návrh 34 - Ing. arch. Vít Kalivoda, Svitavy
Autori návrhu: Ing. arch. Vít Kalivoda, Ing. arch. František Košňar, Ing. arch. Tomáš Pavlovský, Ph.D.
Urbanistické řešení s motivem otevřeného nároží je diskutabilní. Navržený architektonický výraz nereaguje na okolní zástavbu a lokalitu.
Návrh 35 - MgA. Matyáš Fialka, Praha
Autori návrhu: MgA. Matyáš Fialka, Ing.arch. Vladimír Fialka, Jonáš Fialka, BcA. Pavlína Kruteková
Utilitární urbanismus, diskutabilní dispoziční řešení a zahuštění ploch parkovaní v jižní části pozemku vyvolává pochyby.
Návrh 36 - Ing.arch. Jakub Mareš, Plzeň
Autori návrhu: Ing. arch. Jakub Mareš, Ing. arch. Matěj Smola, Ing. arch. Anna Pflugová, Ing. arch Jan Ret
Ojedinělé urbanistické řešení spočívající v umístění průjezdné komunikace ve středu pozemku nepřináší lepší kvalitu, ale naopak rozděluje veřejné prostory. Architektonické řešení působí rozpačitě.
Porota rozhodovala v nasledovnom zložení:
Riadni členovia poroty - závislí:
Jaroslav Martinů, starosta města – podpredseda poroty
Mgr. Jan Matouš
Radim Totušek,
Riadni členovia poroty - nezávislí:
Ing. arch. MgA. David Mateásko - predseda poroty
Ing. arch. Pavla Pannová
M.A. Martin Kloda
Ing. arch. Lenka Dvořáková
Náhradníci poroty - závislí:
Jiří Mach
Anita Stanislavová
Náhradníci poroty - nezávislí:
Ing. arch. Jiří Hůrka
Oznámenie o výbere najvhodnejšieho uchádzača:
Protokol o priebehu súťaže: