Okenné profily z kompozitného materiálu RAU-FIPRO X od spoločnosti Rehau sú v porovnaní s tradičnými plastovými profilmi mnohonásobne...
Najnovší sortiment stolov pre zariadenie interiérov...
Spojenie moderného dizajnu, funkčnosti a svetla do harmonického architektonického prvku.
Kancelárska budova Baumit v slovinskom Trzine prešla premenou na moderné a udržateľné pracovisko. Architekti kládli dôraz...
Mottom šiesteho ročníku on-line konferencie odborníkov Xella Dialóg je Efektívny návrh budov 2025+: zmeny a riešenia
Robot WLTR predstavuje moderný prístup k murovaným konštrukciám. Vďaka automatizácii dokáže rýchlo, presne a bezpečne realizovať...
Okrem bezpečnosti majú okná aj elegantný vzhľad, pretože nie sú viditeľné žiadne uzamykacie časti kovania.
Dvere MASTER v skrytej zárubni AKTIVE je možné vyrobiť až do výšky 3 700 mm
Internorm stavia na energetickú efektívnosť a inteligentné tieniace riešenia.
Pohľad na moderné prístupy k výrobe s dôrazom na udržateľnosť.
Slovensko vo výbere zastupuje šesť realizácií.
Spoločnosť Internorm odteraz stavia na novej variante tepelnoizolačného skla od AGC, ktorá v produkcii ročne ušetrí 10...
Jubilejný 20. ročník prestížnej medzinárodnej súťaže pre študentov architektúry priniesol...
Otočné a posuvné dvere MASTER od podlahy až po strop, ponúkajú mimoriadnu variabilitu výšky, materiálu a zladenia so skrytými...
Predstavené produkty, spájajú premyslený dizajn, funkčnosť a udržateľnosť. Nábytok Materia vzniká s cieľom podporiť inšpiratívne stretnutia...

Skupina BigMat International so sídlom v Luxembursku organizuje od roku 2005 súťažné bienále BigMat International Architecture Award. Táto cena sa prvýkrát odovzdávala v Španielsku, po troch ročníkoch sa rozšírila na medzinárodnú úroveň (Belgicko, Česká republika, Slovensko, Francúzsko, Taliansko, Portugalsko a Španielsko). Do aktuálneho ročníka sa prihlásilo viac ako tisíc diel. Do finálového výberu poroty sa dostalo 14 stavieb, dve nominácie smerovali na Slovensko.
Cieľom BMIAA’21 je ocenenie a prezentácia kvalitnej architektúry a realizácií, ktoré významnou mierou prispeli k súčasnej architektonickej kultúre v Belgicku, Českej republike, Slovensku, Španielsku, Francúzsku, Taliansku a Portugalsku.
Hlavné ceny súťaže budú vyhlásené na slávnostnom večere, ktorý sa bude konať v Paríži v piatok 12. novembra v Pavilóne Cambon. Na víťazov čakajú ceny v celkovej hodnote 70.000 €.
V porote majú zastúpenie uznávaní odborníci zo zúčastnených krajín. Porote predsedá, rovnako ako v predchádzajúcich ročníkoch, španielsky architekt Jesús Aparicio. Tajomníkom ceny je Jesús Donaire. Medzinárodná porota zasadá v nasledovnom zložení: Adrien Verschuere za Belgicko; Pavol Paňák za Českú republiku a Slovensko; Alexandre Theriot za Francúzsko; Nicola di Battista za Taliansko a Inês Lobo za Portugalsko a Španielsko.
V aktuálnom ročníku súťaže postúpila do finále dvojica slovenských diel: Nový park Leopoldov (dielo sme predstavili tu) a Nová synagóga Žilina (o realizácii sme písali tu)
Jedna z týchto realizácií získa Národnú cenu BigMat, obe budú bojovať o Hlavnú cenu BMIAA’21.
Predstavujeme všetkých 14 finalistov:
Slovensko
Nový park Leopoldov
Autori: Ing. arch. Jakub Kopec, Ing. Klára Zahradníčková, M.A., MgA. Tomáš Džadoň, ArtD.
Park s detským ihriskom na mieste starého cintorína. Prírodne poňatá revitalizácia verejného priestoru v širšom centre mesta, umelecky stvárnené herné prvky, výsledok otvorenej architektonickej súťaže...
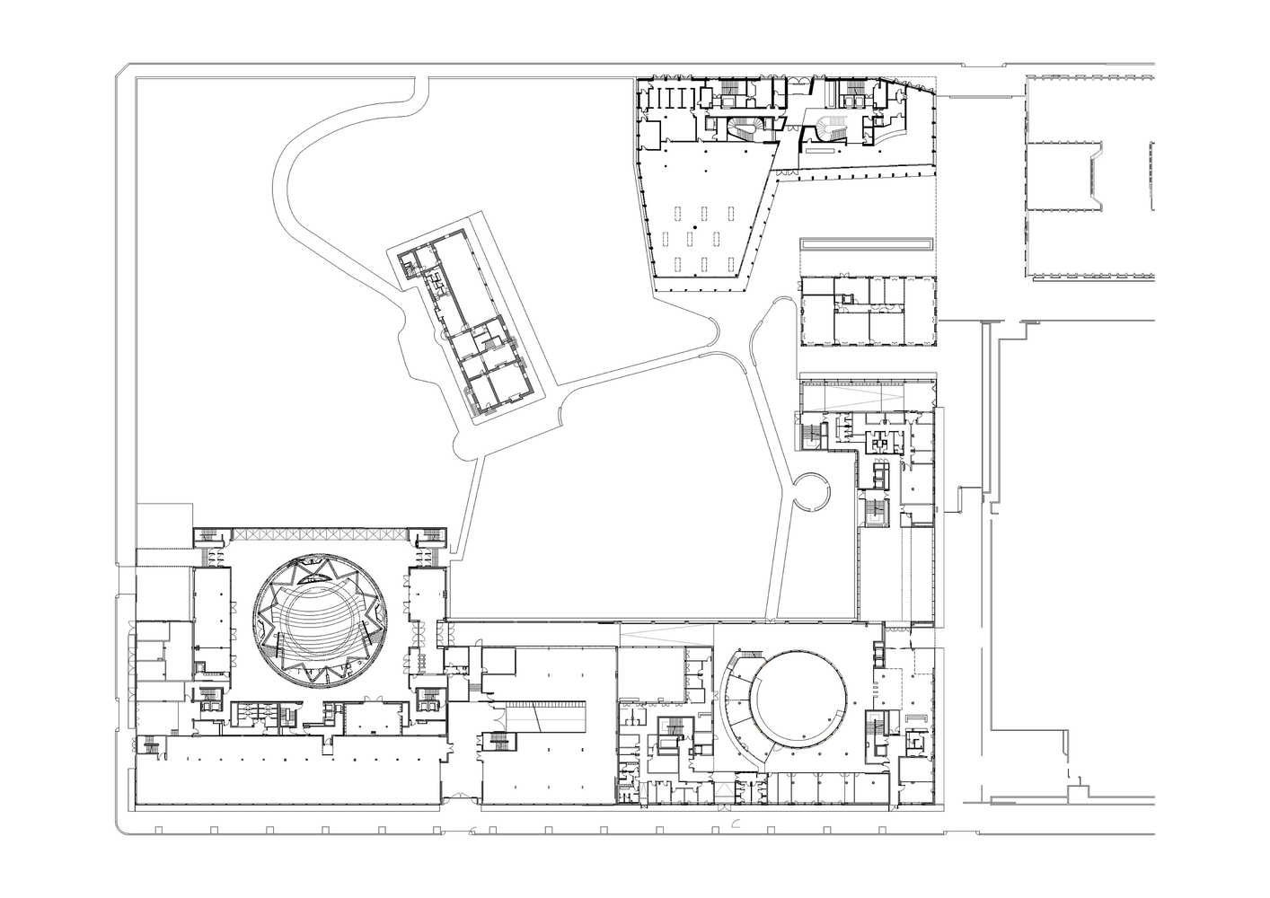
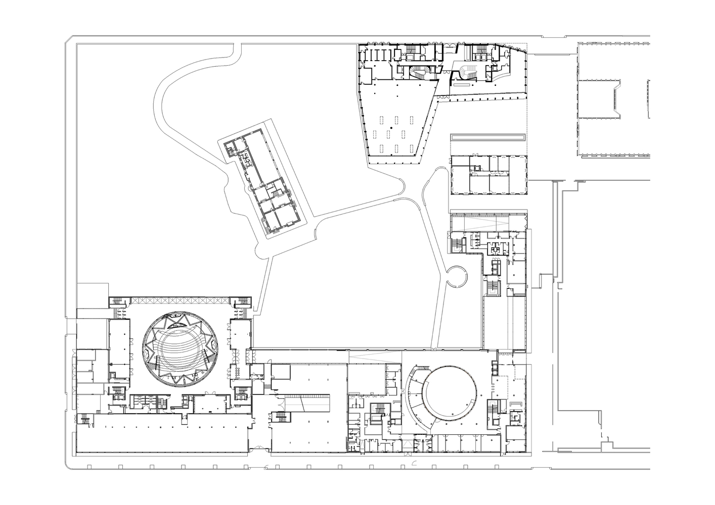
Nová synagóga Žilina, Slovensko
Autori: Ing. arch. Martin Jančok, Arch. Michal Janák, Ing. arch. Eva Štrocholcová
Výnimočná stavba i proces obnovy, smerujúci k vytvoreniu priestoru pre súčasné umenie a ďalšie kultúrne aktivity európskeho rozmeru.
Z Českej republiky postúpili do finálového výberu takisto dve realizácie:
Revitalizácia pražských náplaviek, Česká republika (dielo sme predstavili tu)
Autor: Ing. arch. MgA. Petr Janda
Architektonické a programové využitie kobiek na nábreží Vltavy. Revitalizácia pražských náplaviek je jedna z najväčších investícií českej Metropoly do verejného priestoru za posledné desiatky rokov. Od prvotných impulzov tento proces trvá viac ako desať rokov. Novootvorené a využité kobky v nábrežnom múre vytvárajú tak potrebné zázemie a predlžujú “náplavkovú sezónu” na celý rok. Za projektom od počiatku stojí architekt Petr Janda a jeho ateliér brainwork.
Dielne na opravu poľnohospodárskych strojov, Opatov, Česká republika (o diele sme písali tu)
Autori: Ing. arch. Jiří Weinzettl, Ing. arch. Veronika Indrová
Utilitárna stavba - infraštruktúra v rámci poľnohospodárskeho areálu. Trojloďová prejazdná hala s bazilikálnym osvetlením. Štandardná konštrukcia z plnostenných oceľových valcovaných profilov. Plášť z vlnitého plechu a profilovaného skla. Technický priestor bez akýchkoľvek príkras. Úprimná architektúra, ktorá sa nesnaží zaobaliť do prvoplánovo atraktívneho obalu. Zodpovedá kontextu, priznáva svoj účel.
Realizácia názorne ukazuje prínos práce architektov. Bez výrazného navýšenia nákladov je možné stavať racionálne a koncepčne, bez rezignácie na estetickú stránku. V ostrom kontraste so štandardom novostavieb v našich poľnohospodárskych areáloch...
Prehľad ďalších postupujúcich diel z ostatných štátov (Belgicko, Francúzsko, Taliansko Portugalsko a Španielsko ):
Belgicko
Hangar à Sel (sklad posypovej soli)
Autor: Goffart Polomè Architectes
Melopee School XDGA (škola v prístavnej zóne Gentu)
Autor: Xaveer De Geyter Architects
Francúzsko
House extension, Kervalet (zimná záhrada domu v Bretónsku)
Autor: Exercice
Maillon Theater (priestor pre nové formy divadla - Štrasburg)
Autor: LAN (Local Architecture Network)
Taiansko
Panta Rei Beach (Kaviareňa na pláži - Pescara)
Autor: Toffoli Architetti
Pirelli Learning Center (Administratívna budova v historickom areáli v širšom centre Milána)
Autor: Onsitestudio srl
Portugalsko
Bar & Pavilion in Belém (bar a reštaurácia v lisabonskej štvrti Belém)
Autor: Bak Gordon Arquitectos
Lisbon Cruise Terminal (terminál výletných lodí, Lisabon)
Autor: Carrilho da Graça Arquitectos
Španielsko
Casa O Fieiro (rekonštrukcia historického domu, O Fieiro)
Autor: Estudio Arturo Franco
Viviendas Sociales en Cornellà (85 sociálnych bytov, Cornellà)
Autor: Peris + Toral Architectes
Viac informácií nájdete na bigmat.com.