Advertorial

Pozvánka na 2. ročník stavebného veľtrhu BigMarket na Slovensku

Na podujatí sa predstaví až 37 vystavovateľov - popredných dodávateľov stavebných materiálov a inovácií s prezentáciou...

Hotel Hirschen Spa House, Rakúsko

Novotvar v prostredí alpskej obce.

Vytvorte si kúpeľňu snov: dizajnové riešenie od značky hansgrohe

Hansgrohe - prémiová značka kúpeľňových riešení, ponúka nadčasový dizajn, technickú precíznosť a udržateľné inovácie...

Okná Internorm za minuloročné ceny + hliníkový kryt zdarma!

Využite špeciálnu akciu Internorm: okná za minuloročné ceny a hliníkový kryt úplne zadarmo. Ponuka je časovo obmedzená!

Moderné plynové technológie: Efektivita a inovácie pre 21. storočie

Sumarizácia najdôležitejších inovácií, ktoré redefinujúcich využitie tohto energetického zdroja.

Utesňovanie spodných stavieb pomocou hydro-aktívnej fólie AMPHIBIA.

AMPHIBIA 3000 GRIP 1.3 od spoločnosti ATRO predstavuje modernú hydroizolačnú technológiu, ktorá spája vysokú odolnosť,...

Dekarbonizácia individuálneho vykurovania domácností – Green Deal evolučne a nie revolučne

Ambiciózne plány EK narazili na ekonomické možnosti domácností v jednotlivých členských štátoch –...

Minimalistické dvere IDEA – technická precíznosť a čistota prevedenia

IDEA DOOR od spoločnosti JAP prináša do interiéru čistý minimalistický vzhľad vďaka bezrámovému riešeniu a precíznej...

Dom s výhľadom na údolie, Dlouhý Most (ČR)

Kontinuita riešenia od vonkajšieho obkladu až po kovania a kľučky.

Schell Vitus – osvedčené riešenie pre sprchy a umývadlá vo verejnom sektore s viac ako desaťročnou tradíciou

Nástenné nadomietkové armatúry Vitus sú mimoriadne vhodné pre rýchlu a efektívnu...

Kompozitné okná predstavujú súčasnosť a budúcnosť

Okenné profily z kompozitného materiálu RAU-FIPRO X od spoločnosti Rehau sú v porovnaní s tradičnými plastovými profilmi mnohonásobne...

Myotis - stoly 2025

Najnovší sortiment stolov pre zariadenie interiérov...

Priemyselné sklenené priečky Dorsis Digero: svetelné rozhranie pre moderné interiéry

Spojenie moderného dizajnu, funkčnosti a svetla do harmonického architektonického prvku.

Význam prirodzeného svetla pre moderné a flexibilné pracovné prostredie

Kancelárska budova Baumit v slovinskom Trzine prešla premenou na moderné a udržateľné pracovisko. Architekti kládli dôraz...

Konferencia Xella Dialóg predstaví novinky a trendy v stavebníctve

Mottom šiesteho ročníku on-line konferencie odborníkov Xella Dialóg je Efektívny návrh budov 2025+: zmeny a riešenia

Obnova a rozvoj Kúpeľov Sliač - výsledky súťaže

Zvíťazil návrh ateliéru BETWEEN.
Súťaže
Red 312.08.2022
80950+117
Obnova a rozvoj Kúpeľov Sliač - výsledky súťaže

S cieľom vdýchnuť významnému kúpeľnému miestu na Slovenku nový život, pripravili Kúpele Sliač a.s., v spolupráci s Ministerstvom hospodárstva SR a spoločnosťou MH Manažment a.s. projekt obnovy a rozvoja Kúpeľov Sliač.

V januári vyhlásili súťaž na návrh riešenia obnovy a rozvoja areálu Kúpeľov Sliač v podobe urbanistického rozvojového plánu, spodrobneného o riešenie prevádzkových vzťahov a vybraných detailov.

Účelom urbanisticko-architektonickej súťaže návrhov je získať spracovateľa urbanistického a architektonického riešenia obnovy a spracovateľa urbanistickej a architektonickej dokumentácie obnovy a rozvoja kúpeľov, vychádzajúcej z víťazného návrhu.

Do prvej etapy súťaže, ktorej cieľom bolo nájsť najvhodnejšie koncepčné riešenie areálu sa zúčastnilo 11 autorských kolektívov. Hodnotiaca komisia z nich následne vybrala 6 ateliérov, ktoré dopracovali návrhy na základe adresovaných odporúčaní.

So suverénne najlepším skóre v hlasovaní poroty, ktorá bola vo svojom rozhodnutí veľmi konzistentná, zvíťazil ateliér BETWEEN s.r.o. z Bratislavy. Hodnotiaca komisia určila víťaza takmer jednohlasne. 

Ďalšími súťažiacimi ateliérmi, ktoré postúpili do druhej etapy boli:

  • Lucký architects s.r.o.
  • geome3 s.r.o.
  • architekti SPDe s.r.o.
  • PHA, s.r.o.
  • AMŠ Partners spol. s.r.o.

V prvom kole boli tiež doručené a hodnotené návrhy od:

  • Architekti Šebo Lichý s.r.o.
  • Y100 architekti, s.r.o.
  • DMArchitekti s.r.o.
  • 2021 s.r.o.
  • P-T, spol. s.r.o.

"Chcem vyjadriť svoju vieru, že sme spoločnými silami vybrali kvalitný, ´normálny´, civilný a ohľaduplný návrh s potenciálom ďalšieho rozvoja, tak aby bol časom pretavený do kvalitnej realizácie. Normálnosť a civilnosť považujem za jedny z hlavných hodnôt, ktorými sa autori v návrhu prezentovali. Víťazný návrh ponúka kontinuitu.“ hodnotí výsledky súťaže predseda poroty Irakli Eristavi.

 

Porota v zložení: Irakli Eristavi, Ján Stempel, Roman Brychta, Tatiana Buijs-Vitková, Iľja Skoček, Mária Šamová a Ľudmila Jágerčíková rozhodla 8. augusta na hodnotiacom zasadnutí v spoločenskej dvorane kúpeľného domu Palace o výsledkoch nasledovne:

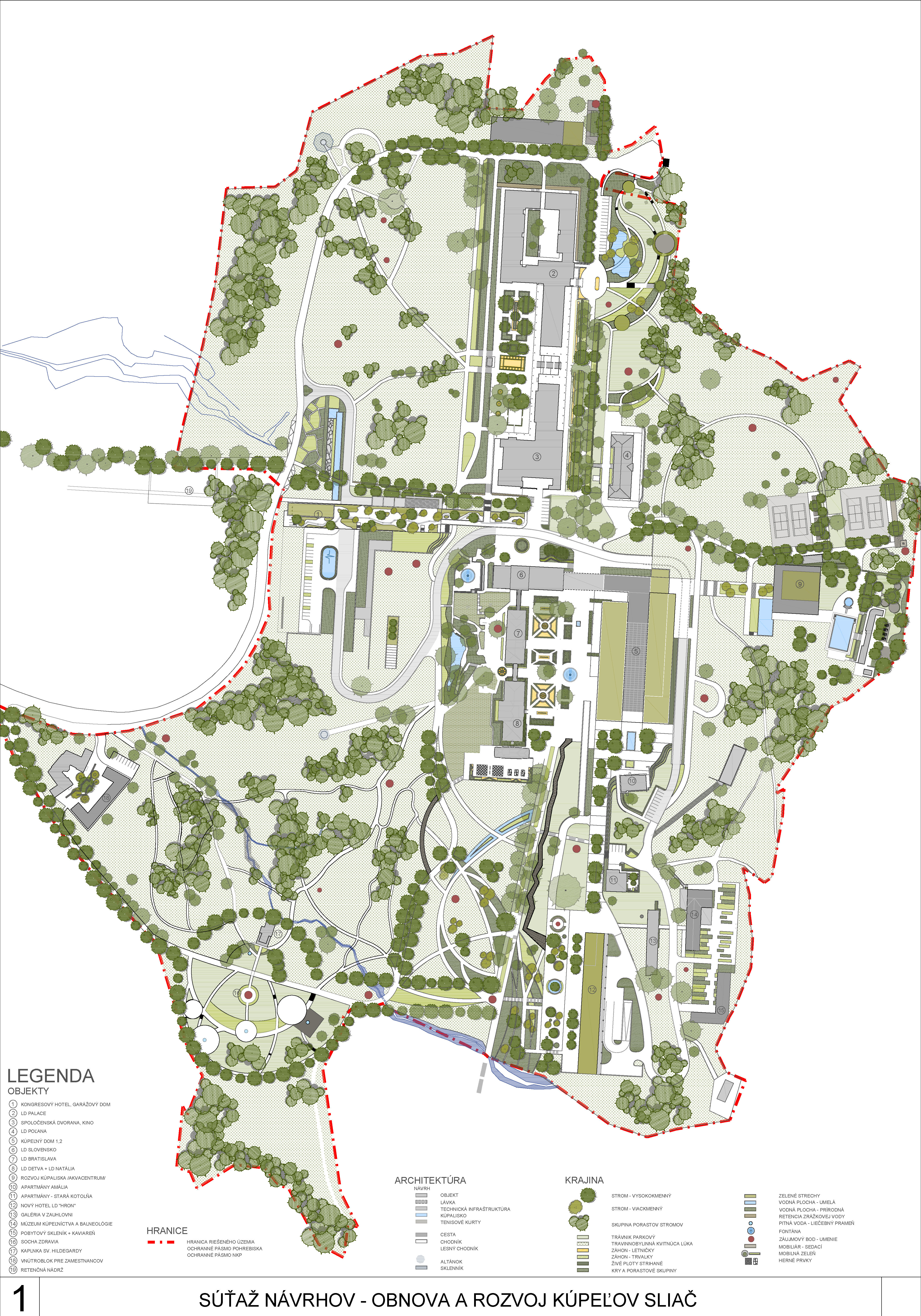
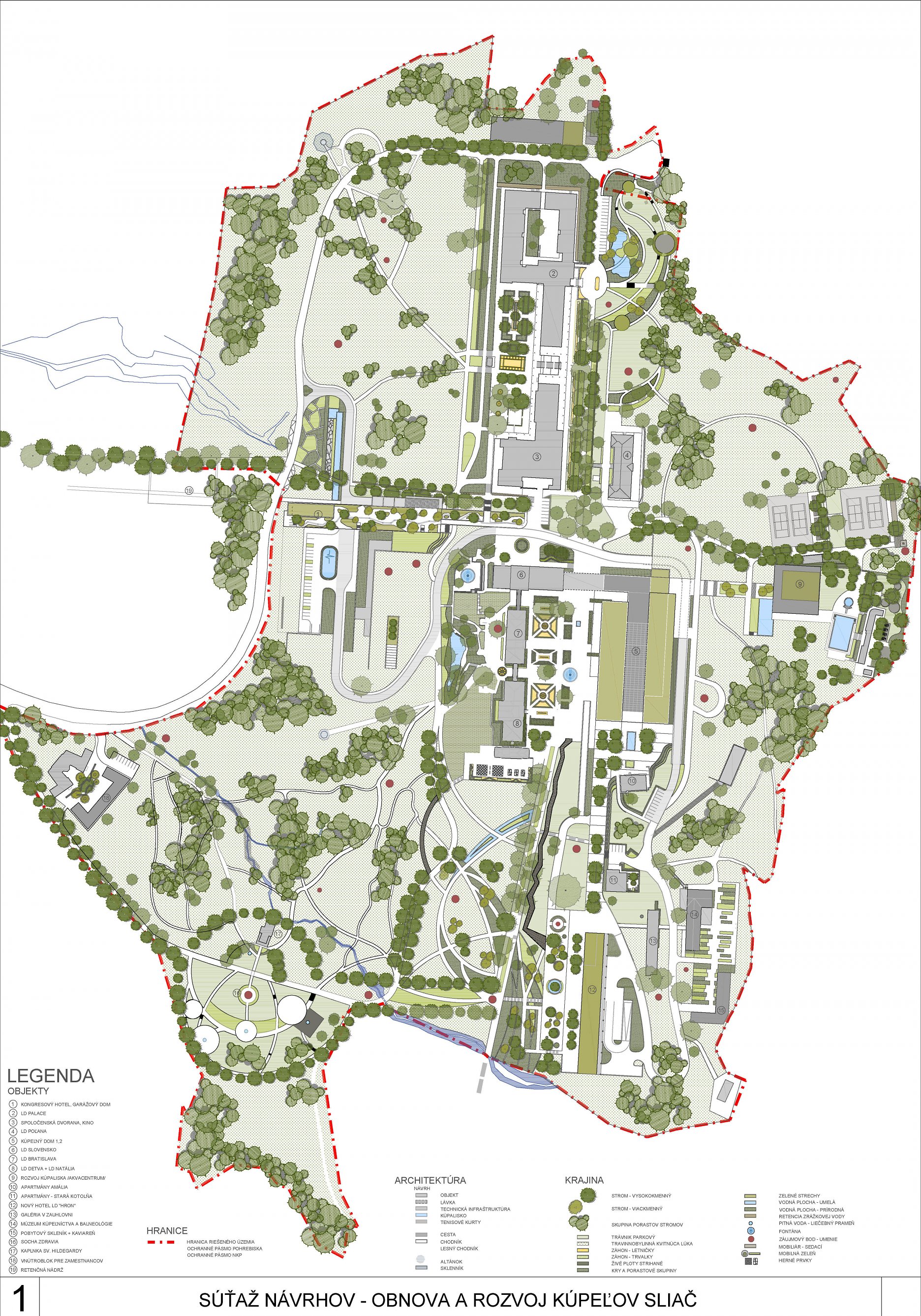
1. miesto (25 000 €): návrh B - BETWEEN s.r.o.
Autori: Katarína Fejo, Tomáš Hanáček, Zuzana Mihalová, Natália Marková, Tomáš Danko, Ivana Fabianová, Alex Očková

Komentár poroty:

  • primerane zaťažuje prostredie NKP Kúpeľného parku, nie je rušivý, mierka hmôt novej zástavby je adekvátna
  • zásahy do existujúcej architektúry sú kultivované a nová architektúra vhodne reaguje na kontext
  • správne chápe unikátnosť územia, je veľmi racionálny a citlivý, dopĺňa a vyzdvihuje priestor pri prameňoch, implementuje výtvarné prvky v interiéri
  • spĺňa hospodárnosť prevádzky a umožňuje realizáciu obnovy kúpeľov v etapách
  • presvedčivo rieši dispozičné a prevádzkové usporiadanie objektov v centre kúpeľov
  • správne rieši dopravné väzby ako jediný vylúčením dopravy z priestoru medzi kúpeľnými domami a jej nahradením novým prepojením. Toto prepojenie bude potrebné v ďalšom postupe projektovej prípravy dôkladne overiť s ohľadom na morfológiu terénu
  • dobre prepája interiér s exteriérom, navrhuje doplnenie verejného priestoru „kúpeľného námestia“ a vytvorením nového komplementárneho intímneho priestoru medzi kúpeľnými domami
  • kvalitné krajinárske riešenie, práca s fenoménom vody (vodné prvky, ochladzovacie jazierka, manažment dažďových vôd) rozširuje a obohacuje charakter územia a dopĺňa ho o nové biotopy. Vodnými a sadovníckymi atrakciami rozvíja a zhodnocuje územie a plynulo ho napája na existujúce spoločenské centrum kúpeľného nádvoria
  • stavebne nezasahuje do kľudových zón parku
  • Navrhované lôžkové kapacity distribuuje v dvoch lokalitách, a to na mieste bývalého LD Coeur a v juhovýchodnej časti riešeného územia. Racionálne rozloženie kapacít medzi oboma lokalitami má potenciál umožniť využitie juhovýchodnej časti územia aj pre širšiu verejnosť
  • návrh je realizovateľný, pričom jeho ekonomická náročnosť je prijateľná, návrh počtu lôžok je primeraný

Súťažné panely z 2. kola:

Vizualizácie:

 

3. miesto ex-aeqo (15 500 €): návrh F - Lucký architects s.r.o.

Komentár poroty:

  • nezaznamenal zásadný progres oproti návrhu v I. etape súťaže
  • systematicky komponuje stavebný rozvoj v predĺžení dominantnej existujúcej osi, hierarchicky ho jasne definuje,
  • pozitívne hodnotená je architektúra s jasným názorom – striktnosťou, naväzujúcou na kvality Stockarovho LD Palace,
  • pozitívne hodnotené je riešenie rozšírenia balneoterapie, priestorovo ho však neprepája do celku,
  • práca so systémom existujúcich stromových alejí a ich obnovou,bola hodnotená pozitívne
  • novonavrhovaný park s kvetinovou výsadbou sa javí ako zaujímavý impulz, avšak nie len z pohľadu udržateľnosti a prevádzkových nákladov je v danom prostredí nevhodný,
  • problematické je dopravné riešenia areálu, keďže “srdce” kúpeľov pretína intenzívna doprava.
  • intenzita novej zástavby v juhovýchodnej časti areálu zostáva vysoká, čo zvyšuje jej záťaž statickou dopravou. V návrhu sa opakuje riziko kolízneho dopravného napojenia prechádzajúceho cez stred kúpeľov,
  • ťažiskové krajinárske plochy celého areálu ako aj okolie prameňa Štefánik alebo ochladzovacie jazierka v predpolí LD Bratislava necháva bez pozornosti,
  • návrh sa javí ako investične náročný a z hľadiska hospodárnosti prevádzky málo efektívny

Súťažné panely z 2. kola:

 

3. miesto ex-aeqo (15 500 €): návrh K - geome3 s.r.o.

Komentár poroty:

  • oproti prvej etape zaznamenal výrazný kvalitatívny posun,
  • do územia sebavedome vkladá novú architektonickú vrstvu balneoterapie, balneolab-u a sférickou kupolou prekrytý biobazén,
  • detský LD situuje na mieste bývalého LD Coeur, pričom jeho riešenie výborne reaguje na morfológiu terénu a generuje príjemné átrium,
  • navrhované úpravy „kúpeľného námestia“ mu dávajú novú identitu a charakter,
  • krajinársky návrh napriek určitým výtvarným kvalitám nepracuje dostatočne so skutočnou morfológiou terénu a tak ostáva v polohe formálnej grafickej schémy. Vzťah navrhovaných krajinárskych úprav k NKP je veľmi problematický.
  • dopravné riešenie predstavené v dvoch alternatívach a ponecháva nevhodnú vnútornú dopravu medzi kúpeľnými domami I. a II., dokonca využíva pre dopravu aj pešiu alej pred LD Palace.
  • novonavrhované objekty balneoterapie vyznačujúce sa prelínaním interiéru a exteriéru hodnotila porota pozitívne. V tejto snahe o invenčné riešenie však porota identifikovala značné problémy vo funkčnosti dispozícii,
  • predpokladaná výška investičných nákladov sa javí ako nerealistická, celkový počet lôžok nebol preukázaný,

Súťažné panely z 2. kola:


4. miesto (8 000 €): návrh I - architekti SPDe s.r.o.
Autori: Štefan Lichvár, Mária Lichvárová, Michal Petráš, Alexander Schleicher, Simona Kolimárová, Eugen Guldan, Ján Tomko

Komentár poroty:

  • rešpektuje a predlžuje severojužnú os, i keď nie presvedčivo, súčasne prezentuje sériu lokálnych zásahov, ale nereprezentuje ucelenú koncepciu rozvoja,
  • pridáva tretiu líniu nad kúpeľné domy 1 a 2, ktorá sa javí ako urbanisticky nevhodná a nadbytočná,
  • prezentácia architektúry je málo presvedčivá a kolonáda v priestore prameňov je príliš formálna,
  • premiestnenie vnútornej dopravy medzi kúpeľný dom a nový objekt wellness nerieši súčasnú kolíznu situáciu v doprave, zároveň tým nenecháva vzniknúť kvalitnému priestoru medzi objektami,
  • v mieste bývalého LD Coeur hľadá historické súvislosti, obnovuje zaniknutý park a dopĺňa pavilón reštaurácie a skleníka,
  • nerieši priestor „kúpeľného námestia“ pred kúpeľným domom, nedostatočne sa zaoberá verejnými priestormi,
  • krajinársky neponúkol prínosné riešenia.
  • ekonomická realizovateľnosť návrhu je prijateľná, návrh počtu lôžok je primeraný.

Súťažné panely z 2. kola:



5. miesto (8 000 €): návrh J - PHA, s.r.o.

Komentár poroty:

  • prináša kvalitu v podobe dôsledného napojenia nových objektov suchou nohou vo forme prepojených objemov smerom na juh,
  • napriek tomu, že možnosť etapizácie sa javí ako príťažlivá, merítko jednej masívnej hmoty -pozostávajúcej z viacerých objemov - pôsobí v danom prostredí neadekvátne a tvorí neprijateľnú prekážku,
  • masívnosť navrhnutej kolonády v spolupôsobení s novými objektami vybočuje z merítka kúpeľného prostredia,
  • architektonické riešenie je vo veľkom kontraste s pôvodnou hodnotnou architektonickou substanciou areálu,
  • vhodne umiestňuje reštauráciu pri kúpeľnom „námestí“,
  • prináša zaujímavý prvok multifunkčného skleníka v južnej časti areálu,
  • dopravné riešenie ponecháva nevhodnú vnútornú dopravu medzi kúpeľnými domami I. a II.,
  • dopravná komunikácia pre zásobovanie nevhodne prechádza cez areál prameňov,
  • ekonomická realizovateľnosť návrhu je prijateľná, návrh počtu lôžok je primeraný.

Súťažné panely z 2. kola:


6. miesto (8 000 €): návrh H - AMŠ Partners spol. s r.o.

Komentár poroty:

  • odporúčanie poroty zvážiť nevyhnutnosť asanácie a novú výstavbu objektu balneoterapie nebolo premietnuté do návrhu v druhej etape, rovnako nedošlo ani k prehodnoteniu monumentálnosti vstupného objektu,
  • nepreukázal opodstatnenosť vnesenia novej západo-východnej osi do pôvodného areálu komponovaného v smere sever-juh,
  • v návrhu došlo k nepriaznivému zvýšeniu zastavanosti vo vstupnej časti areálu (podzemný parking),
  • kompletne stavebne prehodnocuje balneologické “srdce kúpeľov”, pričom dispozične ani prevádzkovo v návrhu nového domu neprináša adekváktne zlepšenie,
  • výtvarno - architektonický prístup sa javí ako nejednoznačný a rozpačitý,
  • návrh naďalej kladie dôraz na tvorbu novobudovaných verejných priestorov v super-pozíciách na úkor kultivácie existujúcich plôch a nepriniesol požadovanú mieru inovácie, ktorú naznačoval v I. etape,
  • v parku navrhuje množstvo trajektórií, ktoré nereagujú na morfológiu terénu a sú skôr schématické, zásahy do vzrastlej zelene sú neadekvátne,
  • gestickosť a merítko nových zásahov (aj napriek odporúčaniam poroty z I.etapy) naďalej potvrdzuje neopodstatnenosť takéhoto prístupu vo vzťahu k existujúcej funkcii a prevádzke areálu,
  • potláča kvality kúpeľného prostredia a je príliš invazívny vo vzťahu k NKP Kúpeľného parku,
  • javí sa ako ekonomicky mimoriadne náročný, navrhnutý počet lôžok je s ohľadom na kapacitu územia kúpeľov a kúpeľného prameňa značne predimenzovaný.

Súťažné panely z 2. kola:

 

 

Návrhy, ktoré boli doručené v I. etape súťaže a nepostúpili do II. etapy súťaže:

Návrh A - Architekti Šebo Lichý s.r.o. 

Súťažné panely z 1. kola:


Návrh C - Y100 architekti, s.r.o. 

Súťažné panely z 1. kola:


Návrh D - DMArchitekti s.r.o. 

Súťažné panely z 1. kola:


Návrh E - 2021 s.r.o. 

Súťažné panely z 1. kola:


Návrh G - P-T, spol. s r.o. 

Súťažné panely z 1. kola:

 

 

Návrh nehodnotený v 2. kole súťaže - Ing. arch. Andrej Gürtler:

 

 

 

Link na tlačovú besedu ministra Richarda Sulíka, predsedníčky predstavenstva MH Manažmentu Marianny Ondrovej a riaditeľa Kúpeľov Sliač Martina Beňucha k vyhodnoteniu urbanisticko-architektonickej súťaže na rekonštrukciu kúpeľov.

 

 

Za podklady ďakujeme Tomášovi Sobotovi.

Súvisiace články

Vložené
11. august 2022
0
8095
Hlavný obsahHlavný obsah
Čakajte prosím