Sumarizácia najdôležitejších inovácií, ktoré redefinujúcich využitie tohto energetického zdroja.
AMPHIBIA 3000 GRIP 1.3 od spoločnosti ATRO predstavuje modernú hydroizolačnú technológiu, ktorá spája vysokú odolnosť,...
Ambiciózne plány EK narazili na ekonomické možnosti domácností v jednotlivých členských štátoch –...
IDEA DOOR od spoločnosti JAP prináša do interiéru čistý minimalistický vzhľad vďaka bezrámovému riešeniu a precíznej...
Nástenné nadomietkové armatúry Vitus sú mimoriadne vhodné pre rýchlu a efektívnu...
Okenné profily z kompozitného materiálu RAU-FIPRO X od spoločnosti Rehau sú v porovnaní s tradičnými plastovými profilmi mnohonásobne...
Najnovší sortiment stolov pre zariadenie interiérov...
Spojenie moderného dizajnu, funkčnosti a svetla do harmonického architektonického prvku.
Kancelárska budova Baumit v slovinskom Trzine prešla premenou na moderné a udržateľné pracovisko. Architekti kládli dôraz...
Mottom šiesteho ročníku on-line konferencie odborníkov Xella Dialóg je Efektívny návrh budov 2025+: zmeny a riešenia
Robot WLTR predstavuje moderný prístup k murovaným konštrukciám. Vďaka automatizácii dokáže rýchlo, presne a bezpečne realizovať...
Okrem bezpečnosti majú okná aj elegantný vzhľad, pretože nie sú viditeľné žiadne uzamykacie časti kovania.
Dvere MASTER v skrytej zárubni AKTIVE je možné vyrobiť až do výšky 3 700 mm
Internorm stavia na energetickú efektívnosť a inteligentné tieniace riešenia.
Slovensko vo výbere zastupuje šesť realizácií.

Vo februári otvorila Praha 7 po rokoch provizórií a prenájmov vlastnú radnicu. Kompletná realizácia projektu, vrátane medzinárodnej architektonickej súťaže, zabrala iba štyri roky. Samotná stavba prebiehala 27 mesiacov. To je v “našich” podmienkach neobvyklá rýchlosť.
Na začiatku cesty k novej radnici stálo občianske referendum, ktoré určilo, že kompletné náklady na radnicu nepresiahnu hranicu 500 miliónov korún a jej podobu určí architektonická súťaž. Obe podmienky sa podarilo splniť.
V prvej polovici roku 2016 prebehla medzinárodná architektonická súťaž. V konkurencii sedemdesiatich kolektívov zvíťazil pražský ateliér bod architekti, ktorý najlepšie odpovedal na otázku, ako na existujúcom skelete postaviť reprezentatívnu a zároveň užívateľsky prívetivú radnicu mestskej časti. Stavbu, ktorá bude schopná starnúť a zachovať si svoju dôstojnosť niekoľko desaťročí.
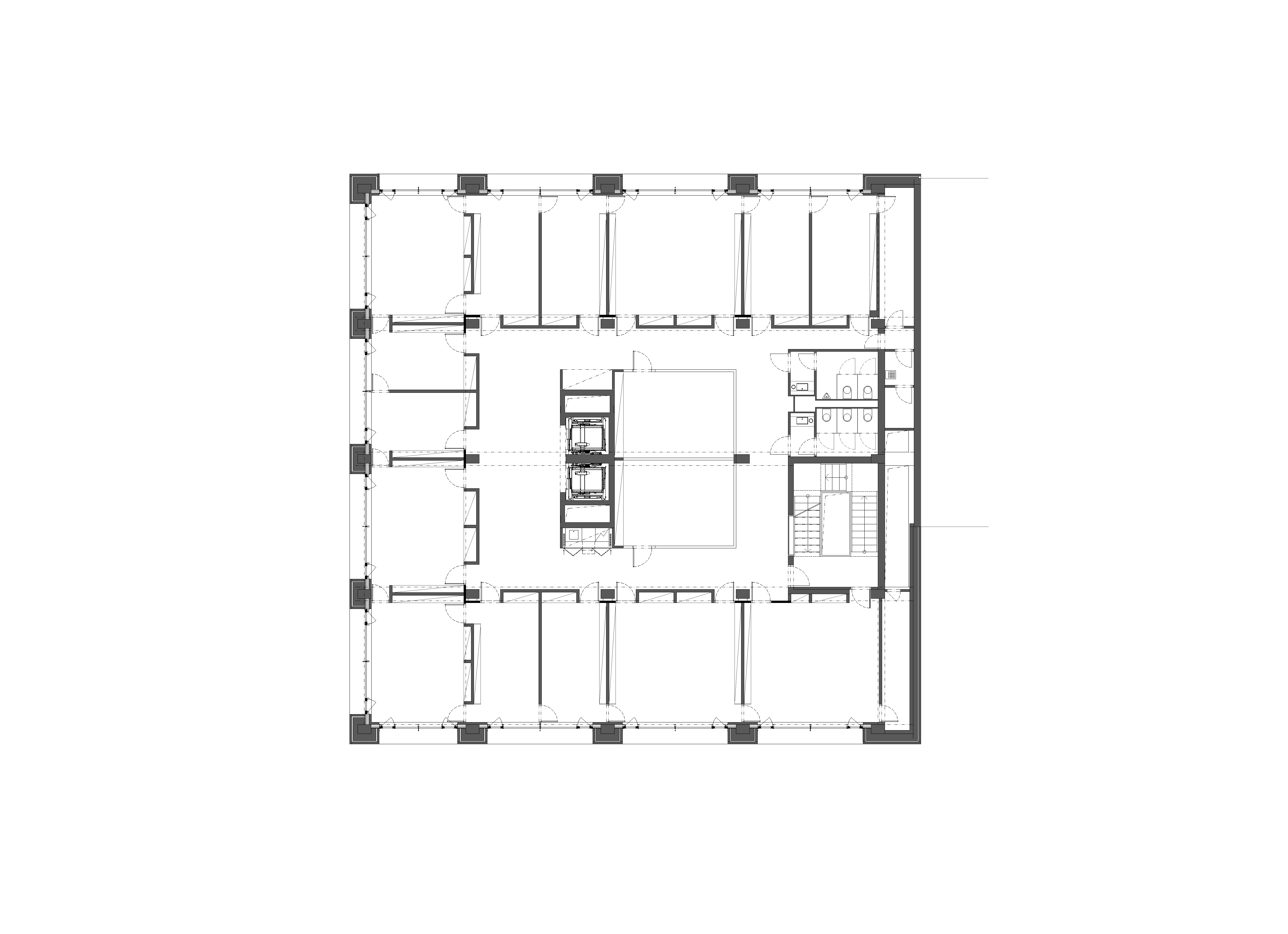
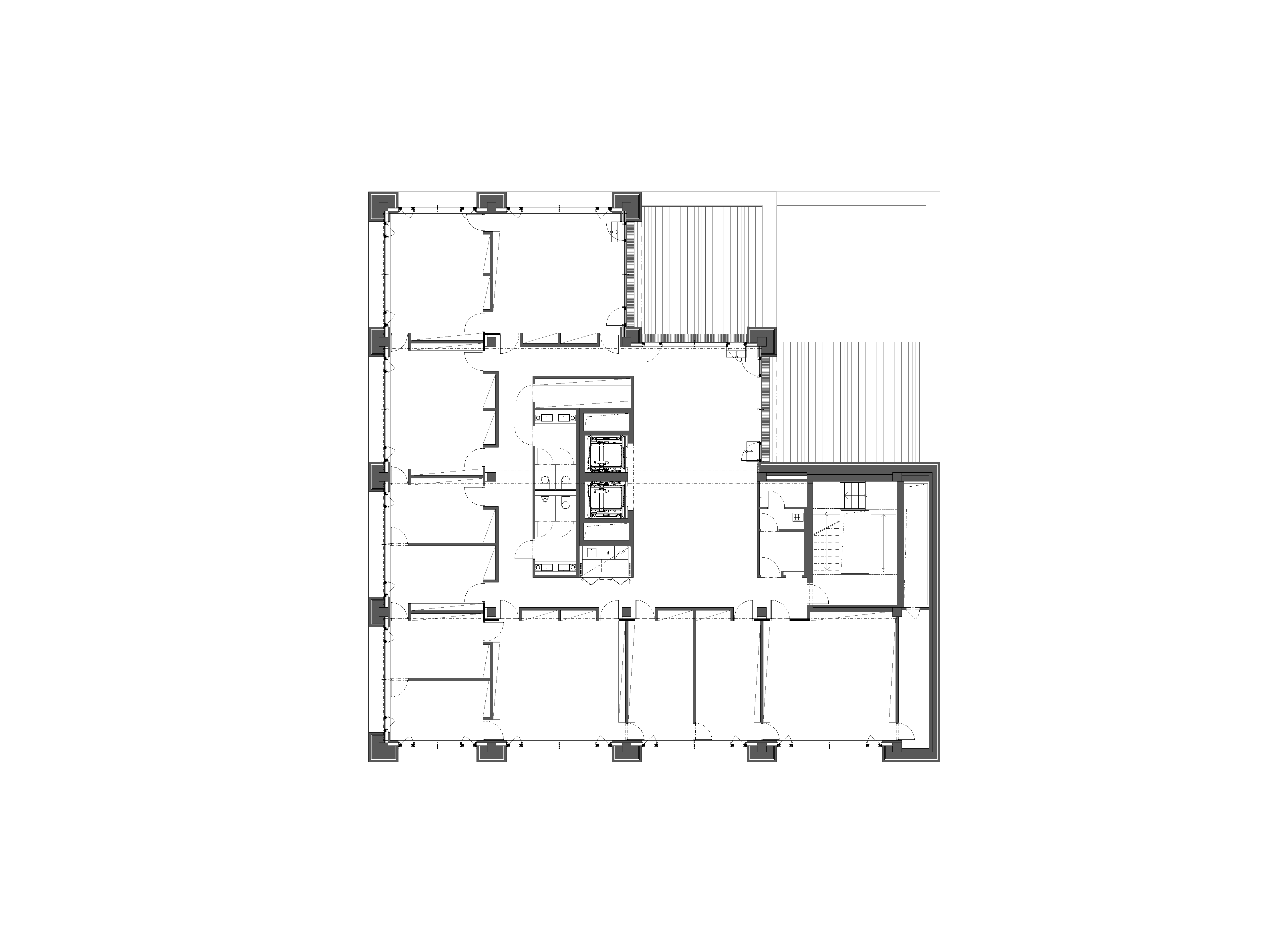
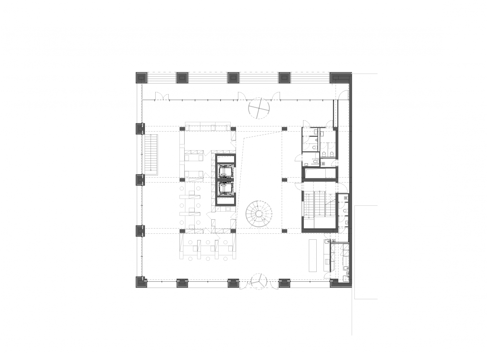
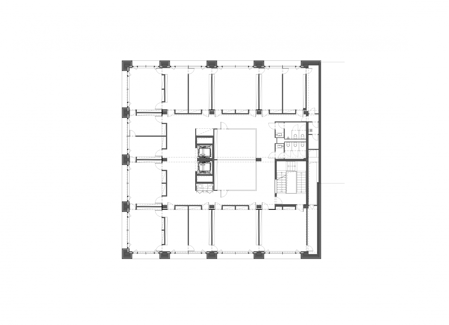
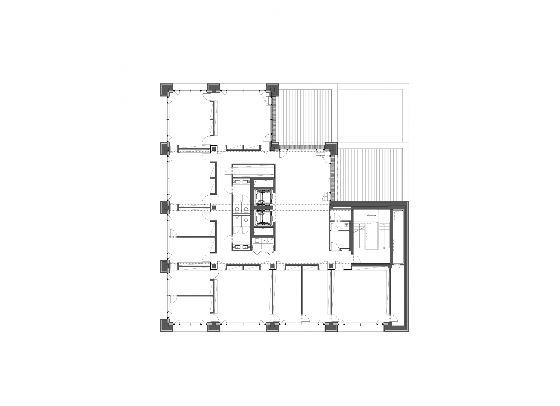
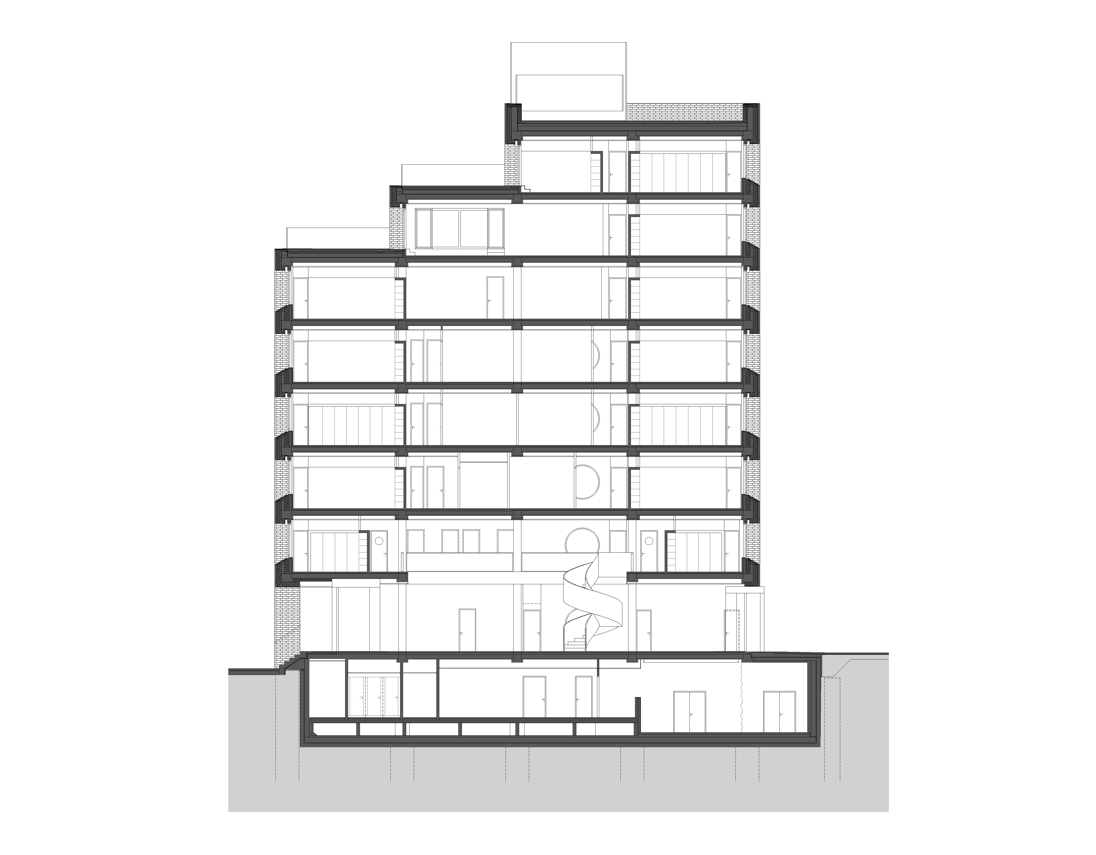
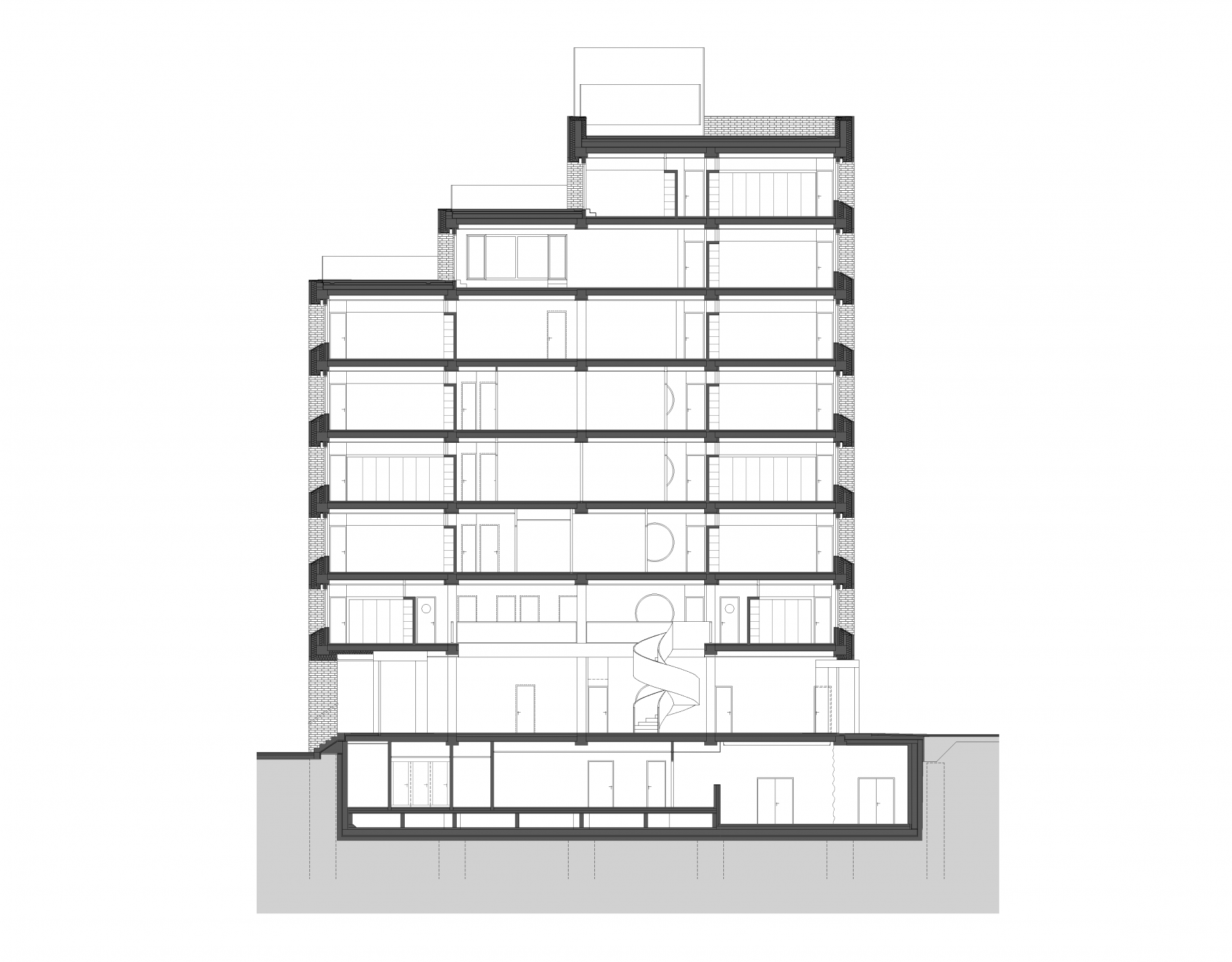
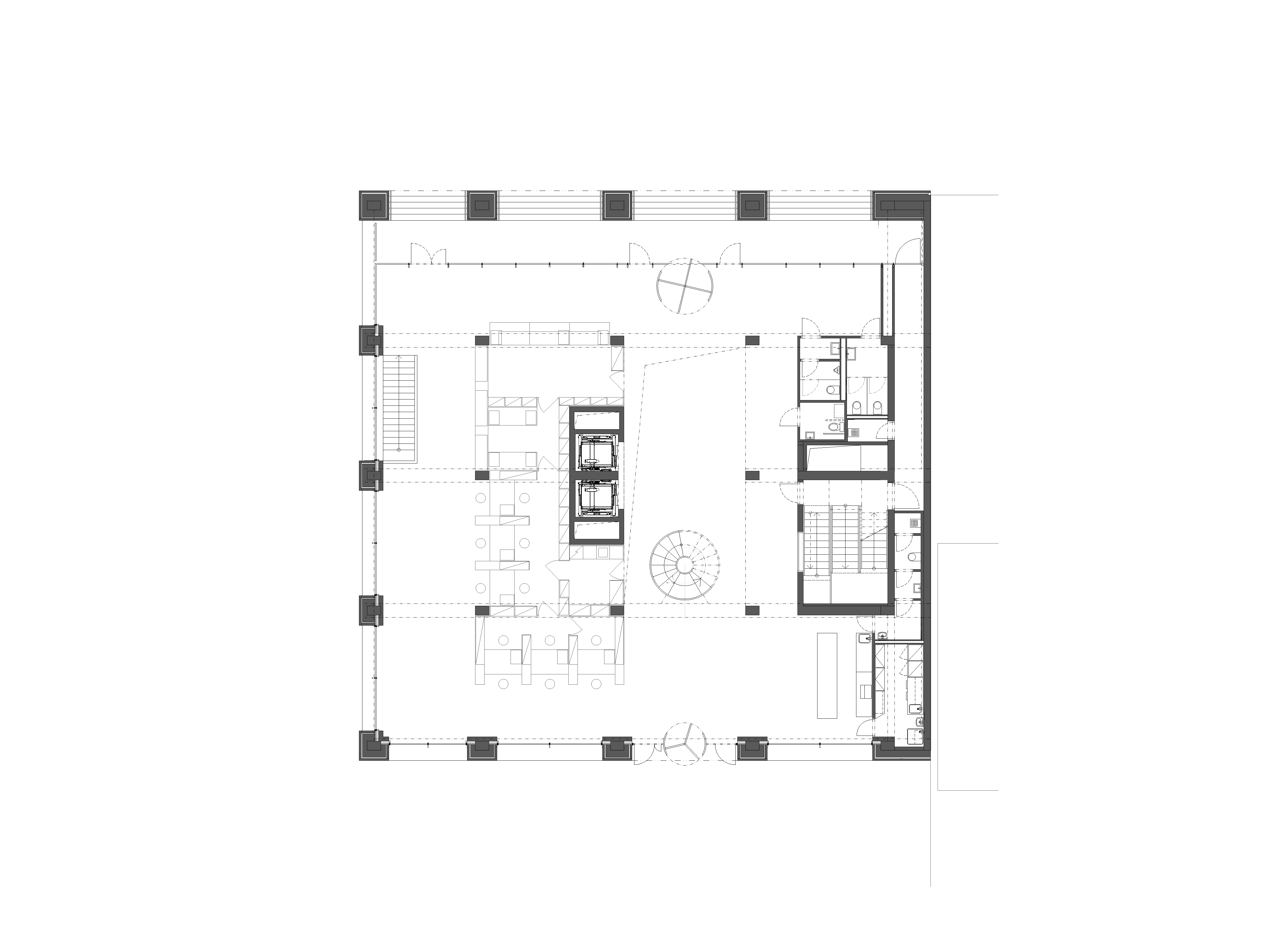
Rekonštrukcia objektu odštartovala v novembri 2017 a prebiehala 27 mesiacov. Nová radnica Prahy 7 má symbolicky sedem administratívnych podlaží s celkovou výmeru 5 500 m2. V budove je 202 pracovných miest a zasadačky pre 230 osôb.
Dielo predstavujeme prostredníctvom autorského textu:
Dům a Holešovice
Výrazové prostředky použité při rekonstrukci domu citují tvarosloví a matérii Holešovic. Dům ctí historický kontext čtvrti, ctí její specifika, ctí průmyslovou estetiku v Holešovicích často postavenou na detailu z cihly. Byť je objekt výrazný, jeho výraznosti je docíleno pokornou cestou - použitím tradičních holešovických motivů.
Původní objekt je očištěn na samotný skelet, na technickou nutnost - na nosnou konstrukci, kterou vnímáme jako krásnou. Krása inženýrských staveb tkví v jejich opravdovosti a upřímnosti. Proto ctíme velikosti stavebních modulů, rytmus konstrukce. Používáme motivy, které dělají z běžného domu dům vznešený - radnici.
Vztah budovy a okolí
Radnice je domem pro veřejnost. Samospráva je služba veřejnosti. Budova radnice by měla vzbuzovat respekt a vážnost, dům by měl reprezentovat stálost a solidnost, být vlídný ne však podbízivý, ale hlavně by měl být otevřený, pocitově přístupný. Toho lze dosáhnout jak kompozičními principy, tak použitými materiály. Objekt výrazovými prostředky s akcentem na tektoniku odkazuje k inženýrskému přemýšlení. Tektonická architektura je architektura vznešených chrámů, ale i továrních hal, kterých je v Holešovicích dost. Průmyslová historie je tu velmi silná asi i silnější než na Smíchově. Dům tektonický, pevně stojící na zemi vyvolává pocit stálosti, což by radnice jako dům vzbuzovat měla. Použitý materiál - cihla má podobnou vlastnost jako tektonika, je velmi stará, používá se už více než dva tisíce let. V Holešovicích ji najdeme na starých halách nebo jako architektonický detail na bytových domech. Kromě vysokých estetických kvalit má cihla i jednu ohromnou výhodu - umí stárnout, není nutné o ni pečovat, vydrží stovky let a stářím krásní. Pro otevřenost je radnice v maximální míře přístupná ze svého okolí, do ulice U Průhonu se dům otevírá podloubím se schodištěm. Vstup do domu po schodišti do prostoru podloubí vyčleňuje stavbu z běžnosti a obyčejnosti. Samotný akt stoupání po schodech vzbudí respekt. Pás trávníku je v úseku před budovou odstraněn, aby byl podtržen význam domu v ulici. Nový dlážděný prostor je nezbytný i jako rozptylová plocha pro návštěvníky.
Výraz domu
Budova radnice byla běžně symbolem města. Téměř vždy mívala věž s hodinami. Původní gradující hmota je velice výrazná. Hodiny umístěné na nejvyšším místě hmoty jsou samozřejmostí. Použití rastru společně s hlubokými ostěními oken dodává domu na solidnosti a na nebývale výrazné plasticitě. Jasně rastrovaná fasáda odpovídá racionálnímu uspořádání provozů uvnitř. Modul je většinou využit pro jednu, nebo pro dvě kanceláře.
Interiér
Koncept interiéru domu je postaven na rytmizování prostorů, na používání stálých materiálů. Strukturu nosné konstrukce v interiéru akcentujeme. Snažíme se o jasně rozpoznatelnou hranici mezi novým a starým, mezi nosným a vloženým. Tato jednoduchá úvaha vede při striktním dodržení k velmi výraznému rytmizování interiérových chodeb. Všechny nové příčky v chodbách nikdy přímo nedosahují k nosné konstrukci - k průvlakům a ke sloupům. Příčky se chovají jako vložené boxy - nejčastěji jsou využity jako úložný prostor pro kancelář. To, co nakonec příčku a sloup spojí, jsou dveře s oknem a nadsvětlík. Tento princip má i provozní výhodu - do kanceláří je trochu vidět a chodby v nitru objektu mají přirozené osvětlení. V podobných úvahách jsou řešeny všechny odbory a oddělení radnice. Budova má dva sály. Velký sál pro zastupitelstvo se nachází v podzemí, kde je větší konstrukční výška objektu. Radniční sál je naopak umístěný v posledním podlaží. Každé patro má svojí unikátní barevnost podlahy, což povede k jednodušší orientaci v objektu. Významným prvkem, který propojuje všechny prostory interiéru, je kovový pohled s akustickou úpravou.
Vizualizácie:
Časová os projektu:
2016
2017
2018
2019
2020
Fotografie zo stavby:
Podklady: ateliér bod architekti