Súčasné bývanie v prostredí budapeštianskej vilovej štvrte.
Rad interiérových dverí DIVA DOOR od spoločnosti J.A.P. ponúka čistý dizajn a variabilné riešenia pre súčasné interiéry.
REHAU Window Solutions na veľtrhu Fensterbau Frontale 2026
Sortiment Slim Line zahŕňa pestrý výber dekorov a textúr.
Európska značka okien oslavuje jubileum: za 95 rokov sa vyvinula na najväčšiu medzinárodne pôsobiacu okennú značku a inovačného...
Na podujatí sa predstaví až 37 vystavovateľov - popredných dodávateľov stavebných materiálov a inovácií s prezentáciou...
Novotvar v prostredí alpskej obce.
Hansgrohe - prémiová značka kúpeľňových riešení, ponúka nadčasový dizajn, technickú precíznosť a udržateľné inovácie...
Využite špeciálnu akciu Internorm: okná za minuloročné ceny a hliníkový kryt úplne zadarmo. Ponuka je časovo obmedzená!
Sumarizácia najdôležitejších inovácií, ktoré redefinujúcich využitie tohto energetického zdroja.
AMPHIBIA 3000 GRIP 1.3 od spoločnosti ATRO predstavuje modernú hydroizolačnú technológiu, ktorá spája vysokú odolnosť,...
Ambiciózne plány EK narazili na ekonomické možnosti domácností v jednotlivých členských štátoch –...
IDEA DOOR od spoločnosti JAP prináša do interiéru čistý minimalistický vzhľad vďaka bezrámovému riešeniu a precíznej...
Kontinuita riešenia od vonkajšieho obkladu až po kovania a kľučky.
Nástenné nadomietkové armatúry Vitus sú mimoriadne vhodné pre rýchlu a efektívnu...

Návrhy sú prestavené pod číslami pridelenými vypisovateľom súťaže. Čísla boli prideľované chronologicky podľa času doručenia. (Posudky poroty pripájame k návrhom ktoré postúpili do 2., 3. a 4. kola).
Súťažný návrh č.31 - TVAR architekti (Ing. arch. Igor Pohanič, Ing. arch. Mariána Lucký, Ing. arch. Tomáš Pohanič, Ing. arch. Michal Buranovský)
- Návrh postúpil do 2.kola súťaže a skončil v poradí 16–23 ex aequo s počtom bodov 90.
"Objekt škôlky z architektonického hľadiska reaguje na svažitý terén čiastočným zapustením svojho objemu do terénu. Z tohto dôvodu koncept škôlky prináša svah okolitého terénu aj do interiérov. To umožňuje vytvoriť umelú topografiu vo vnútri, vizuálne priamo nadväzujúcu na skutočný terén v exteriéri."
Hodnotenie poroty:
Návrh sa prezentuje Lineárnym modelom zástavby s najdôslednejším prepojením školského areálu okolo centrálneho dvora pomocou krytej ochodze. Toto riešenie sa nakoniec porote javilo ako príliš násilné a nákladné. Návrh dobre rozvíjanie riešenie dispozície paralelne so školským dvorom, v presahu do exteriéru, v miere nadštandardnom, sa pokúša definovať prestávkové priestory. Trochu megalomanskému amfiteátrovému schodisku chýba- mierka a detail. Taktiež hmota je vo svojej kinetike príliš nekompromisná a v dotyku s jedálňou ťažkopádna. Naopak odskočenie sklenenej fasády –odhaľujúcej podhľady vykonzolovanej strechy, trochu topornú hmotu ozvláštňujú.
Návrh nedokázal uspokojivo pretaviť do výrazu a riešenia materiálovej bázy jednoduchosť konceptu, a preto sa do najužšieho výberu nedostal.
Panely a text vo formáte PDF nájdete v prílohe nižšie:
Súťažný návrh č.32 - PLUKK (Ing. arch. Petrer Krajč, Ing. arch. Martin Herzán, Bc. Martin Krivánek, Bc. Petra Krajčová)
- Návrh postúpil do 2.kola súťaže a skončil v poradí 16–23 ex aequo s počtom bodov 90.
"Nová budova je navrhnutá ako pasívna drevostavba, ktorá môže využiť lokálne zdroje, aby sa stala ekologickým prostredníkom pre novú generáciu občanov, ktorú bude vychovávať. "
Hodnotenie poroty:
Zaujímavý diagonálny koncept umožňujúci orientáciu miestností k všetkým svetovým stranám. Diagonálna, stredom dispozície vedená chodba/rampa trochu nevhodne delí dispozíciu, naviac šikmé začiatky a ukončenia rámp znemožňujú stabilný rozvoz čohokoľvek (napríklad stravy) na štvorkolesových vozíkoch :-) V predložených riešeniach sme našli presvedčivejšie alternatívy podobných riešení.
Panely a text vo formáte PDF nájdete v prílohe nižšie:
Súťažný návrh č.33 - Mgr. Art. Jana Dusemund, Bc. Katarína Máčková, Mgr. Art. Ing. Richard Schlesinger, PhD. Akad. Arch. Mariána Strieženec
"Hmotou a vizuálne reflektuje novostavba tri hlavné objekty nachádzajúce sa v areáli materskej školy a zároveň pracuje s daným terénom a je prispôsobená klimatickým podmienkam. Členenie hmoty pripomína tradičnú archetypálnu detskú predstavu domu v súčasnom ponímaní. Detská ruka obkreslená na papieri vytvára zákutia a exponované miesta na hru a rozvoj individuálnej tvorivosti."
Panely a text vo formáte PDF nájdete v prílohe nižšie:
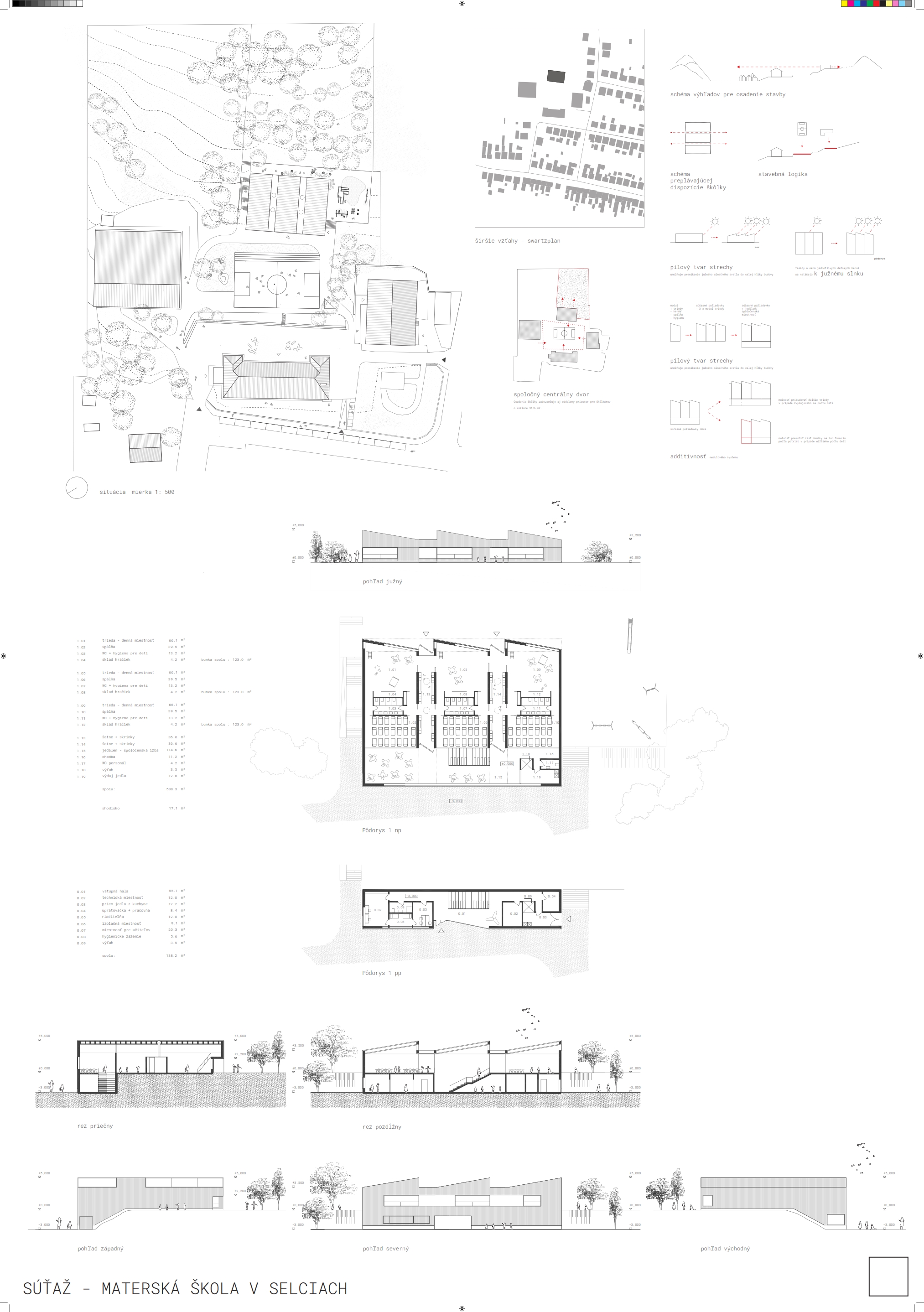
Súťažný návrh č.34 - Ján Studený, Maroš Bátora, Benjamín Bradňanský, Vito Halada, Marián Počuch, Miroslav Búran, Michal Auxt, Gabriel Smetanová
- Návrh postúpil do 3.kola súťaže a skončil v poradí 8 – 10 ex aequo s počtom bodov 120.
"Navrhujeme jednoduchý ale výrazný dom. Dom s prehľadným usporiadaním odzrkadlujúcim zadanie. Dom, ktorý ponúka výrazný interiér (reprezentovaný strešným svetlíkom) a jeho prepojenie s prírodným prostredím slnečnej záhrady."
Hodnotenie poroty:
Tento návrh predstavuje Lineárny model pavilónu primknutý k jedálne a družine školy. Návrh vhodne radí základné miestnosti za sebou využívajúc rovnú časť terénu. Dlhý objem je vhodne členený exteriérovými samostatnými pasážami so vstupmi do jednotlivých tried.
Zásadný problém porota videla v samotných vstupoch do jednotlivých tried cez akúsi zimnú záhradu alebo gánok. V tomto prípade pobytová časť triedy je problematická z hľadiska hygieny, osvetlenia i vetrania. Tiež trochu megalomansky pôsobili obrovské lofty v otvorenom krove bizarne tvarovanej strechy. Napojenie pravidelnej hmoty pavilónu na objekt jedálne sa javil nepresvedčivo a náhodne. Návrh mal výbornú čitateľnosť čomu prispela výborná grafika.
Panely a text vo formáte PDF nájdete v prílohe nižšie:
Súťažný návrh č.35 - Mgr. akad. arch. Ing. arch. Tomáš Bujna, Ing. arch. Matúš Gibala
"Na samom začiatku to bola inšpirácia klasickou rozprávkou „O troch prasiatkach“, kde každé z nich býva v materiálovo inom domčeku. Samotný objekt sme teda rozčlenili hmotou tried na tri menšie časti, medzi ktorými vzniká voľný, ale chránený a čiastočne prekrytý exteriérový priestor - dvor. Objekt má byť ponáškou na rozprávku, kde z pohľadu dieťaťa každá trieda-herňa je vnímaná inými vnemami, vizuálnymi, haptickými... Každé dieťa si tak pozná „svoj“ domček."
Panely a text vo formáte PDF nájdete v prílohe nižšie:
Súťažný návrh č.36 - Ing. arch. Daniela Šestinová, Ing. arch. Tomáš Ružiak, Ing. arch. Miroslav Šestina, Ing. arch. Eva Šišková, BC. Matúš Šestina
"Cieľom návrhu je vytvorenie fungujúceho celku s dostatočnou diverzifikáciou funkcií a minimálnym krížením prevádzok. V našom riešení rozdeľujeme miniurbanizmom objektov pozemok na pomyselné úrovne rozlišujúce jednotlivé funkcie."
Panely a text vo formáte PDF nájdete v prílohe nižšie:
Súťažný návrh č.37 - AK Jančina s.r.o. (Ing. arch. Juraj Jančina, Ing. arch. Jozef. Bátor, Ing. arch. Jozef Kijonka, Jozef Karlubík, Lukáš Maršalka)
- Návrh postúpil do 2.kola súťaže a skončil v poradí 16–23 ex aequo s počtom bodov 90.
"Ako jeden zo základných princípov považujeme priestorovú variabilitu, kde za „jedny peniaze“ dokážeme vytvárať rôzne atmosféry podľa aktuálnych požiadaviek užívateľov."
Hodnotenie poroty:
Zástupca Diagonálneho modelu umiestnenia škôlky má všetky výhody a nevýhody tohto riešenia. Návrh rozohráva dispozíciu objektu v priamej väzbe na objekt družiny a jedálne v smere do hĺbky pozemku. Tým zachováva atraktívny vizuálny priehľad cez celý pozemok do krajiny. Zaujímavo (organicky) otvára centrálne nádvorie, využíva maximálne južnú orientáciu na oslnenie tried s prekvapivým parapetom pod oknami. To, čo návrh brzdí, je zbytočný akcentovaný a predimenzovaný viacúčelový priestor na úkor jednoduchého prístupu do jedálne. Dynamická hmota vybiehajúca z kompozície oslabuje centrálny priestor a neprispieva k čitateľnosti autorovho zámeru. Z návrhu je bohužiaľ cítiť väčší záujem o zobrazenie expresivity hmoty než prezentáciu pobytového priestoru pre predškoláka ako v interiéri, tak aj v exteriéri. Istou nevýhodou riešenia je aj trvalé zatienenie denných miestností MŠ vysokou zeleňou.
Panely a text vo formáte PDF nájdete v prílohe nižšie:
Súťažný návrh č.38 - Designatelier (Ing. arch. Igor Faško), Ing. J. Nociar a Bc. B. Vančová
"Návrh vychádza z predstavy pohodených detských kociek, ktoré sú farebne odlíšené a vedú deti zo psychologického hľadiska k hravej forme identifikácie ich prostredia.Zároveň slúži táto aj ako poznávanie základných farieb, či k priblíženiu ku svojej skupine, triede, vzhľadom na predpokladaný počet 60 detí, ktorý je možné aj opticky rozdeliť do troch skupín, či tried."
Panely a text vo formáte PDF nájdete v prílohe nižšie:
Súťažný návrh č.39 - Mgr. Art. Andrea Dilhoffová, Ing. arch. Lukáš Radošovský, Ing. arch. Róbert Bakyta, Monika Bočková
"Návrh je vedome poňatý skôr funkčne a racionálne. Základnou myšlienkou je preplávajúca dispozícia severojužného smeru. Dom tak svojou polohou nevytvára bariéru, skôr vymedzuje tok priestoru a núti ku konfrontácii."
Panely a text vo formáte PDF nájdete v prílohe nižšie:
Súťažný návrh č.40 - studio B52 (Ing. arch. Michal Lang, Ing. arch. Boris Benedek, Ing. arch. Ján Pieš)
- I. cena s počtom bodov 186
"Hmotovo objekt vychádza z jednoduchého tvaru jednopodlažnej dosky, vsadenej do svahu v jeho severozápadnej časti, výškovo v jednej úrovni prepojenej z existujúcim objektom jedálne, čím sa vytvára ich vzájomné plynulé bezbariérové prepojenie."
Hodnotenie poroty:
Víťazný súťažný návrh je protagonistom prístupu, keď prevádzkové a hmotové usporiadanie situuje do spodnej časti pozemku po vrstevnici, čo umožnilo eliminovať potrebu prekonávania výšok rampami a schodiskami vo väzbe na jestvujúci objekt čoho výsledkom je bezbariérová prevádzka objektu. Spojenie s ním je artikulované multifunkčným preskleným priestorom s priehľadom na pozemok a skupinu stromov. Táto poloha objektu jasne definuje verejný priestor medzi jednotlivými budovami a podľa poroty umožňuje v budúcnosti aj možnosť vytvorenia prepojenia s objektom telocvične.
Autori sa rozhodli pre jednoduchý lineárny tvar jednopodlažného objektu, ktorého dispozícia sa rozvíja do tvaru L, čo umožnilo vytvoriť intímny herný priestor s dobrou vizuálnou kontrolou. Zárez krídla do svahu umožnilo autorom sprístupniť zelenú strechu. To je príjemné pre pohľady z náprotivnej budovy ZŠ ako aj z pozorovacích stanovísk z členitého terénu okolia areálu. Myšlienka „ohybnosti“ strechy MŠ viedla autorov k prestavbe sedlovej strechy na plochu s ihriskom aj na objekte jedálne a kuchyne.
Odporúčanie poroty:
- Zvážiť reálnosť resp. potreby prestavby strechy objekt jedálne a kuchyne
- Preveriť vynaloženie eliptickej markízy z hľadiska osvetlenia vnútorných priestorov
- pri hlavnom vstupe absentuje zádverie a markíza
- Preveriť veľkosti exteriérových plôch /terás/ pre účely vyučovania a pobytu detí na „čerstvom vzduchu“
- V ďalšej etape rozpracovať priestor medzi školou a škôlkou tak, aby vznikla exteriérová plocha využiteľná deti a mládež všetkých vekových kategórií počas školských prestávok, v tejto súvislosti odporúčame zvážiť parametre deliacej steny, ktorá pôsobí ako priestorová bariéra /podľa vizualizácií/
Panely a text vo formáte PDF nájdete v prílohe nižšie:
Súťažný návrh č.41 - Atrium Architekti (Ing. arch. Tomáš Boroš)
4. miesto s počtom bodov 142
"Miestnosti v rámci MŠ sme koncipovali ako bunky, ktoré medzi sebou vytváraju tečúci pristor. Ten vie byť delený posuvnými priečkami na menšie celky. Naším zámerom bolo vytvoriť menší urbanizmus- mesto pre deti. Tie vedia celý priestor donekonečna objavovať."
Hodnotenie poroty:
Veľmi dobre zvládnutý návrh usporiadania areálu Základnej školy v Selciach. Logicky a prehľadne radí jednotlivé objekty, plochy a funkcie tak, že tvoria logicky usporiadaný celok s potenciálom na dobré fungovanie celého komplexu. Lineárny návrh materskej školy je racionálny a ekonomický. Zvolené riešenie by patrilo k tým, ktoré by sa dali realizovať bez väčších problémov a dobre by fungovalo aj vo väzbách na okolie. V dispozičnom riešení nám však chýba univerzálny priestor pre neformálne aktivity (napríklad s rodičmi). Tak, ako je dobre a názorne prezentovaný "mikrourbanizmus", samotná architektúra a stvárnenie objektov sú vyjadrené iba náznakovo, schématicky.
Panely a text vo formáte PDF nájdete v prílohe nižšie:
Súťažný návrh č.42 - Ing. arch. Ivan Rozdobuďko, Ing. arch. Michal Mihalak , Ing. Erik Neupauer
"Budova sa plazí po teréne, vyčnievajú z nej triedy do sadu s terasou - medzistupňom medzi interiérom a sadom, tu sú i schody, na ktorých deti rady sedia, triedy vyčnievajú i nad strechu, tu majú na juh orientované svetlíky na "nasávanie" slnečného svetla."
Panely vo formáte PDF nájdete v prílohe nižšie:
Súťažný návrh č.43 - Kubla and Architects (Ing. Ondřej Kubla, Bc. Lukáš Kvaššay,) /ČR/
- Návrh postúpil do 3.kola súťaže a skončil v poradí 8 – 10 ex aequo s počtom bodov 120.
"Samotná škôlka je pojatá ako jednopodlažný objekt, ktorého architektonická skladba vychádza čisto z vnútorného usporiadania. Šetrili sme priestorom a snažili sa o maximálnu presvetlenie a prirodzené odvetranie všetkých miestností."
Hodnotenie poroty:
„čierny kôň“ súťaže, najmenej dotiahnutý (dorazil ako posledný), nevýrazná grafika opretá len o fotky modelu, neorezaný papier ... všetko na hrane formálnej akceptácie.
Na druhej strane –sústredený výkon založený na jednoduchej a prehľadnej lineárnej dispozícii. 100% bezbariérová prevádzka, nástup cez foyer (trochu veľký) oddeliteľná viacúčelová miestnosť, dobré parametre tried –pôdorys blízky štvorcu s variabilnou plochou pre odpočinok a hru, jednoduché ploché stropy.
V exteriéri, aj z minimálneho prejavu a čierno bielej grafiky, je čitateľná vkusná výbava. Bohužiaľ porota vnímala rozdiely medzi vizualizovaným modelom a pôdorysom (napr. rôzne veľkosti polátrií prerezávajúcich dvornú fasádu) a spolu s jeho skicovitou formou, a preto návrh nemohla poslať do posledného kolo súťaže.
Panely a text vo formáte PDF nájdete v prílohe nižšie: