Okenné profily z kompozitného materiálu RAU-FIPRO X od spoločnosti Rehau sú v porovnaní s tradičnými plastovými profilmi mnohonásobne...
Najnovší sortiment stolov pre zariadenie interiérov...
Spojenie moderného dizajnu, funkčnosti a svetla do harmonického architektonického prvku.
Kancelárska budova Baumit v slovinskom Trzine prešla premenou na moderné a udržateľné pracovisko. Architekti kládli dôraz...
Mottom šiesteho ročníku on-line konferencie odborníkov Xella Dialóg je Efektívny návrh budov 2025+: zmeny a riešenia
Robot WLTR predstavuje moderný prístup k murovaným konštrukciám. Vďaka automatizácii dokáže rýchlo, presne a bezpečne realizovať...
Okrem bezpečnosti majú okná aj elegantný vzhľad, pretože nie sú viditeľné žiadne uzamykacie časti kovania.
Dvere MASTER v skrytej zárubni AKTIVE je možné vyrobiť až do výšky 3 700 mm
Internorm stavia na energetickú efektívnosť a inteligentné tieniace riešenia.
Pohľad na moderné prístupy k výrobe s dôrazom na udržateľnosť.
Slovensko vo výbere zastupuje šesť realizácií.
Spoločnosť Internorm odteraz stavia na novej variante tepelnoizolačného skla od AGC, ktorá v produkcii ročne ušetrí 10...
Jubilejný 20. ročník prestížnej medzinárodnej súťaže pre študentov architektúry priniesol...
Otočné a posuvné dvere MASTER od podlahy až po strop, ponúkajú mimoriadnu variabilitu výšky, materiálu a zladenia so skrytými...
Predstavené produkty, spájajú premyslený dizajn, funkčnosť a udržateľnosť. Nábytok Materia vzniká s cieľom podporiť inšpiratívne stretnutia...

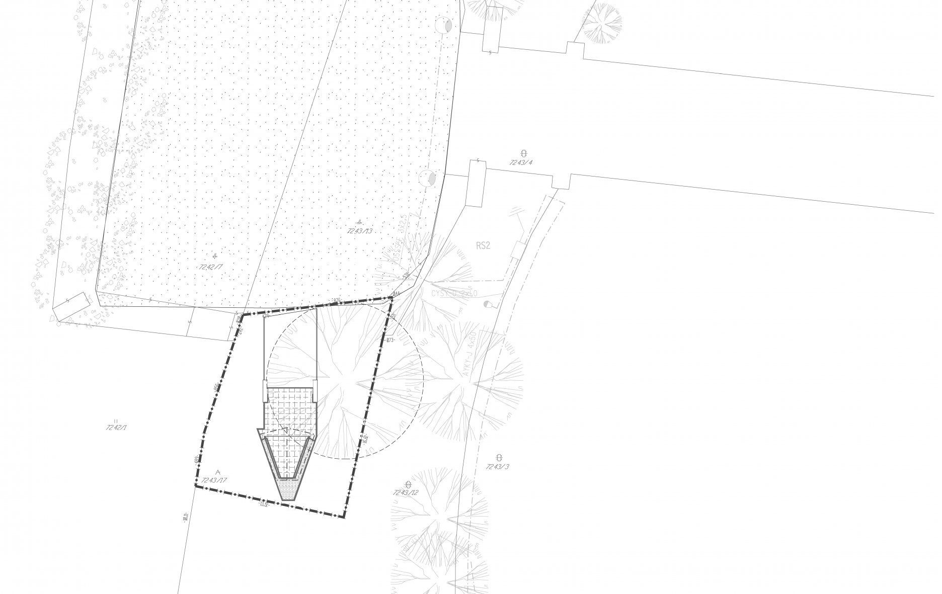
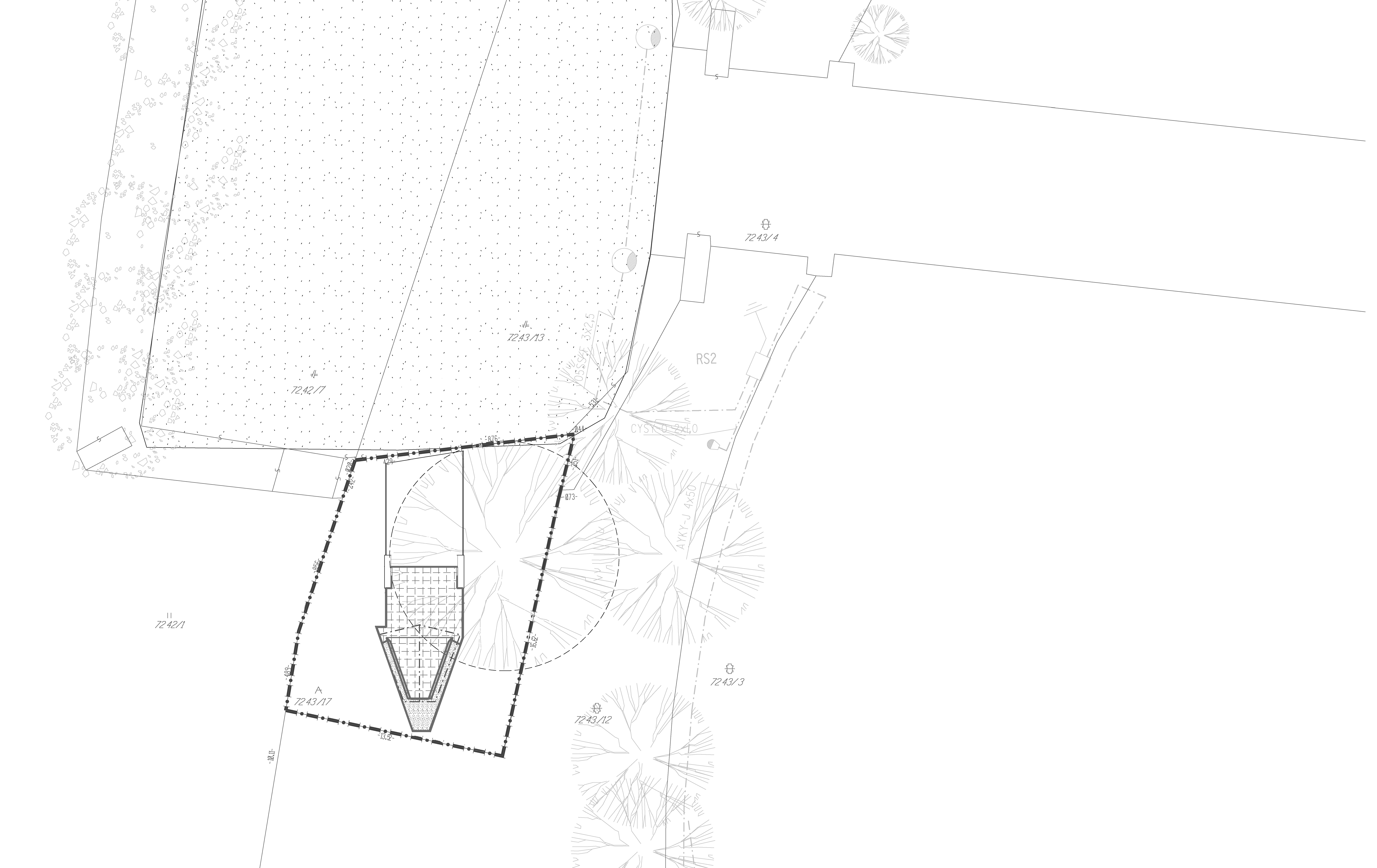
Nový Pomník príslušníkom Ozbrojených síl Slovenskej republiky je súčasťou pietneho areálu na vrchu Háj-Nicovô, ktorý sa týči nad severovýchodným okrajom Liptovského Mikuláša. Práve na tomto mieste sa koncom druhej svetovej vojny odohrávali jedny z najťažších a najdlhších bojov na našom území. Vojenský cintorín dopĺňa monumentálny pamätník, venovaný vojakom padlým pri oslobodzovaní Liptova. Autormi jeho výtvarného riešenia sú architekti Aladár Búzik a Vladimír Bauer, ktorí spolupracovali s akademickými sochármi Alfonzom Gromom a Miroslavom Ksandrom. Komplex je od roku 1963 vyhlásený za národnú kultúrnu pamiatku.
Nedávnym prírastkom v areáli je pamätník pre 58 novodobých hrdinov, ktorí zahynuli pri plnení úloh v zahraničných misiách a operáciách. Autorkou architektonického riešenia je Karin Barényiová, ktorá so svojim návrhom zvíťazila na sklonku roku 2017 vo vyzvanej súťaži. Podľa návrhu architektky bola na pietnom mieste už v minulosti zrealizovaná Pamätná tabuľa. Za spomenutie určite stojí aj realizácia Vojenského cintorína v neďalekom Važci, za ktorý ako spoluautorka získala na prelome milénií cenu Dušana Jurkoviča.
"Základná otázka po prečítaní zadania znela: Ako areál Pamätníka doplniť pomníkom tak, aby bola zachovaná jeho historická aj výtvarná kontinuita? Ako nájsť riešene, ktoré nebude mať snahu konkurovať areálu koncipovanému so všetkými atribútmi klasicky, monumentálne... Zároveň splniť podmienky libreta na súdobej výtvarnej úrovni. Preto som navrhla pomník ako Memoriálnu kaplnku /Memorial chapel/, kontemplatívny priestor, ktorého posvätnosť je ukrytá v každom jednom mene vytesanom do jeho stien, v nekonečnosti jeho obete," vysvetľuje v librete súťažného návrhu Karin Barényiová.
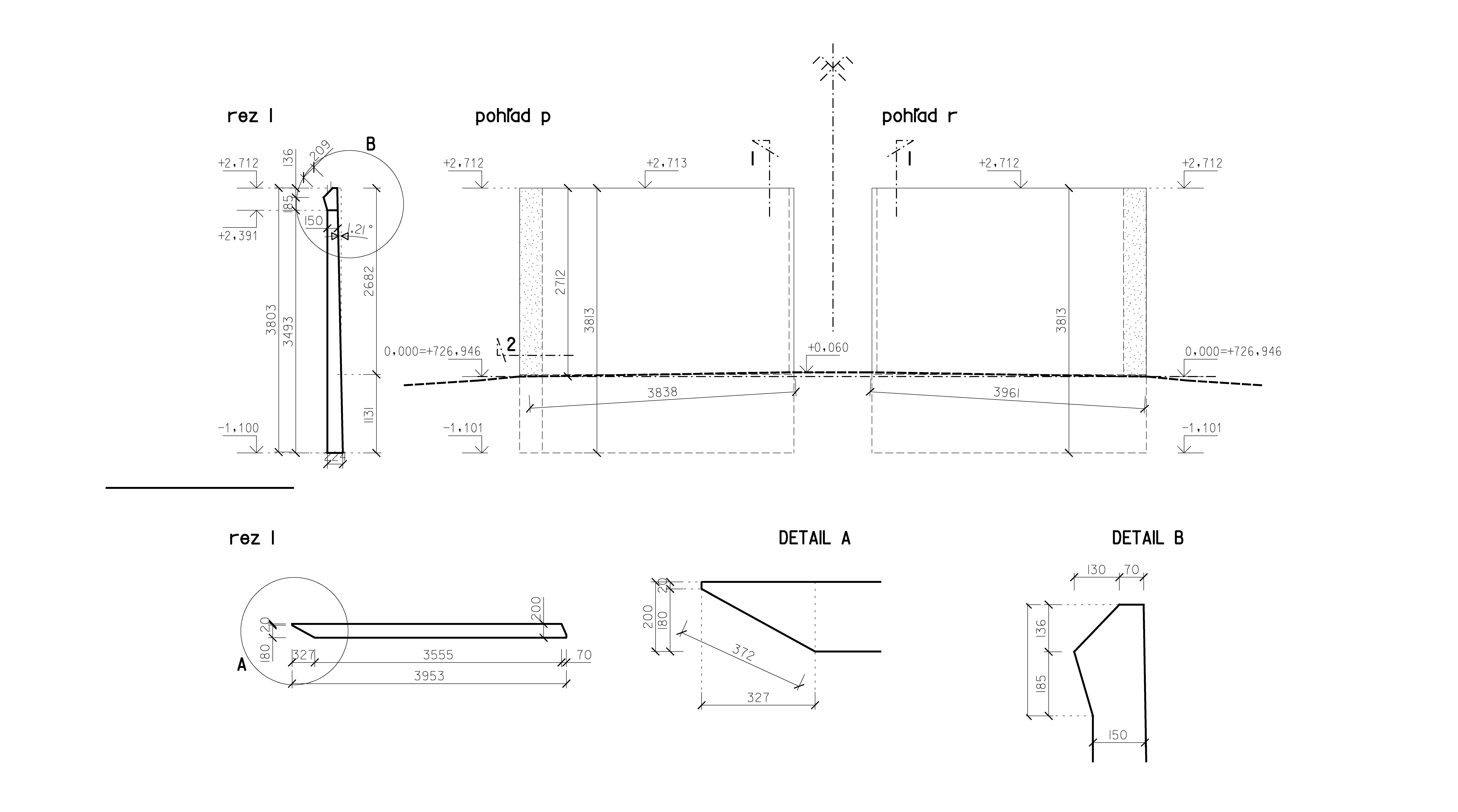
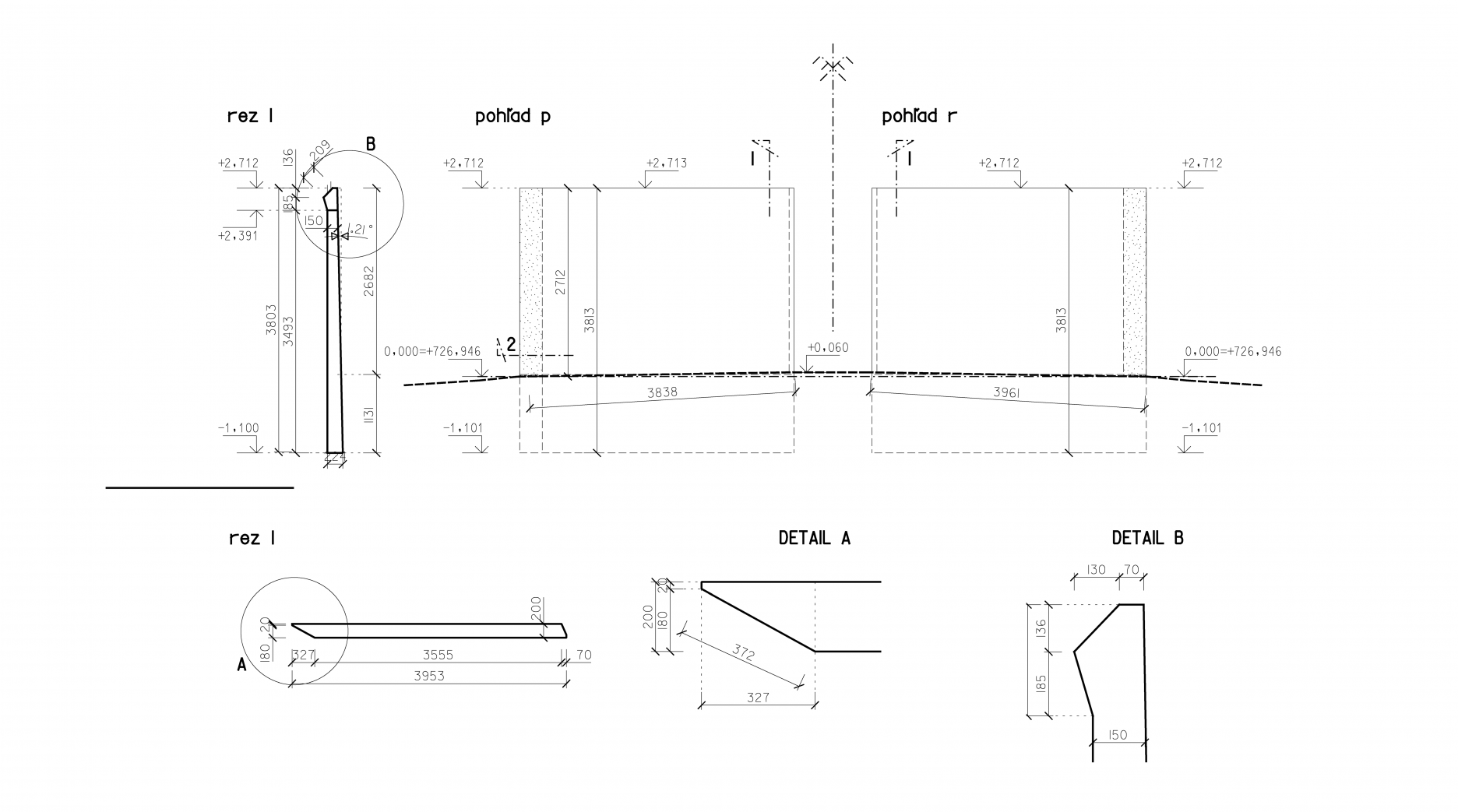
Archetypálne riešenie kaplnky je pretavené do priestoru, ktorý sa otvára pre prichádzajúceho. Jednotlivé steny z lešteného travertínového betónu (prefabrikované železobetónové prvky obohatené v procese výroby o travertínové kamenivo) s plasticky stvárnenými znakmi a menami sa zbiehajú do priehľadu na krásny horizont, ktorý je z pohľadu autorov večný.
"Mená aj symboly som umiestnila dovnútra, nech spolu pôsobia ako fresky v skutočnom chráme. Rovnako 'levitujúca' strecha dovolí citom plynúť. Biela podlaha s miernym sklonom podčiarkuje perspektívu." dopĺňa architektka.
Pre prípadné pamätné udalosti sa pomník stáva svätyňou a nástupný priestor je hlavnou loďou chrámu. Súčasťou pomníka je vlajkosláva a dve lavičky zo spomínaného bieleho lešteného betónu. Návrh nepočíta s oplotením pomníka ani zložitými sadovými úpravami, zapojenie do existujúcej krajiny je cieľom aj cestou.
Podklady: Ing. arch. Karin Barényiová