Okenné profily z kompozitného materiálu RAU-FIPRO X od spoločnosti Rehau sú v porovnaní s tradičnými plastovými profilmi mnohonásobne...
Najnovší sortiment stolov pre zariadenie interiérov...
Spojenie moderného dizajnu, funkčnosti a svetla do harmonického architektonického prvku.
Kancelárska budova Baumit v slovinskom Trzine prešla premenou na moderné a udržateľné pracovisko. Architekti kládli dôraz...
Mottom šiesteho ročníku on-line konferencie odborníkov Xella Dialóg je Efektívny návrh budov 2025+: zmeny a riešenia
Robot WLTR predstavuje moderný prístup k murovaným konštrukciám. Vďaka automatizácii dokáže rýchlo, presne a bezpečne realizovať...
Okrem bezpečnosti majú okná aj elegantný vzhľad, pretože nie sú viditeľné žiadne uzamykacie časti kovania.
Dvere MASTER v skrytej zárubni AKTIVE je možné vyrobiť až do výšky 3 700 mm
Internorm stavia na energetickú efektívnosť a inteligentné tieniace riešenia.
Pohľad na moderné prístupy k výrobe s dôrazom na udržateľnosť.
Slovensko vo výbere zastupuje šesť realizácií.
Spoločnosť Internorm odteraz stavia na novej variante tepelnoizolačného skla od AGC, ktorá v produkcii ročne ušetrí 10...
Jubilejný 20. ročník prestížnej medzinárodnej súťaže pre študentov architektúry priniesol...
Otočné a posuvné dvere MASTER od podlahy až po strop, ponúkajú mimoriadnu variabilitu výšky, materiálu a zladenia so skrytými...
Predstavené produkty, spájajú premyslený dizajn, funkčnosť a udržateľnosť. Nábytok Materia vzniká s cieľom podporiť inšpiratívne stretnutia...

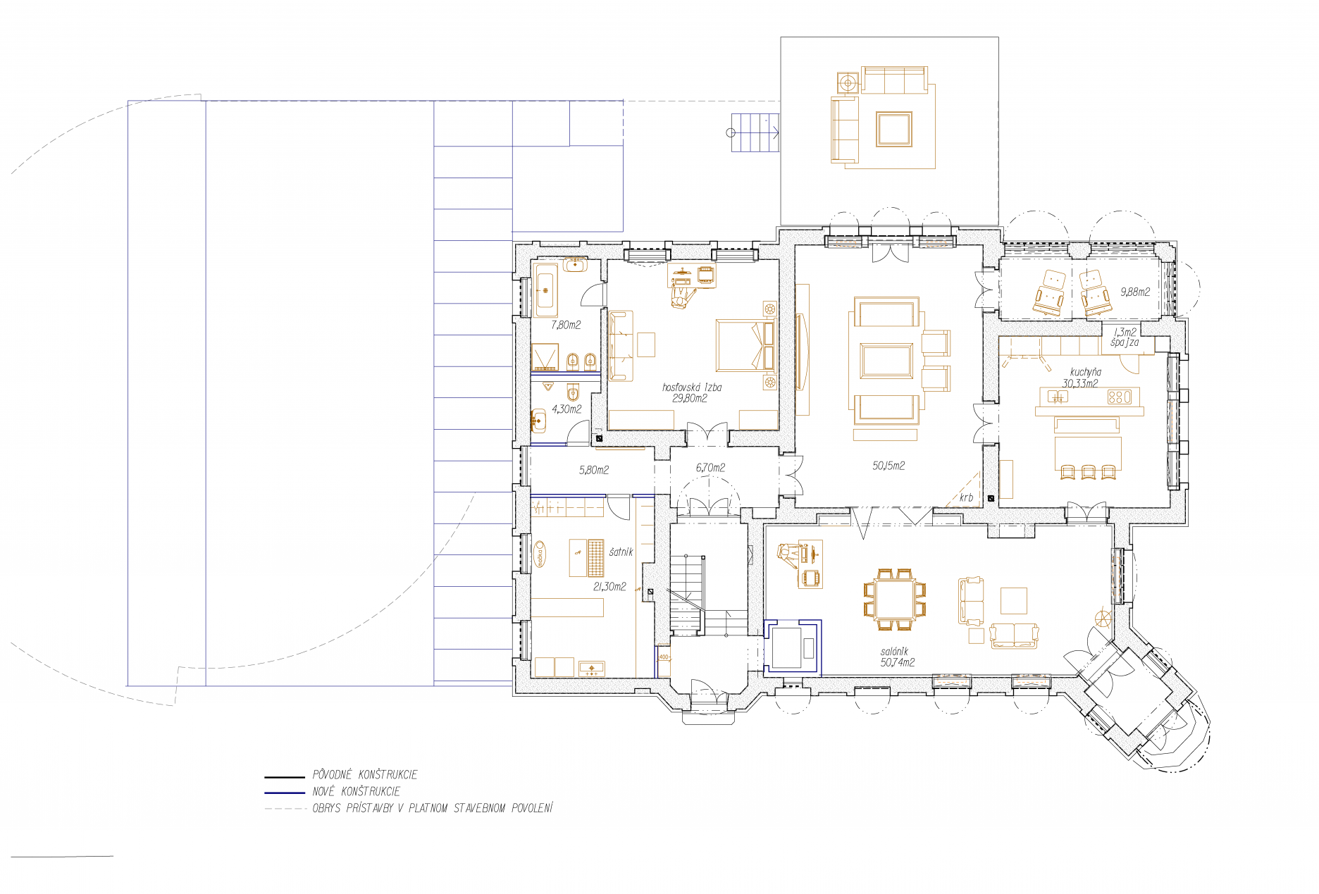
Honosná vila v centre Liptovského Mikuláša už dva roky slúži svojmu pôvodnému účelu. Prestavba vily na rezidenčné sídlo po viac ako polstoročí si vyžiadala úpravy dispozície aj technického zariadenia. "Domáci" architekti z ateliéru BARÉNYI & ARCHITEKTI, ktorí úzko spolupracovali s pamiatkarmi však v prvom rade dbali na zachovanie a zvýraznenie architektonických a výtvarných kvalít pôvodného Harmincovho diela. Odvážnym počinom je v kontexte precíznej pamiatkovej rekonštrukcie prístavba vo východnej časti objektu. Vhodne zvolená lineárna figúra, čiastočne zapustená pod úroveň terénu, elegantne integruje rozšírenú funkčnú náplň. Nová vrstva sa stala plnohodnotnou súčasťou vzácneho historického prostredia.
História
Vila stojí v centre Liptovského Mikuláša, oproti súčasnej Pošte na Hodžovej ulici. Objekt bol postavený začiatkom minulého storočia podľa návrhu "nestora slovenskej architektúry" - Michala Milana Harminca. Mladý architekt v tom čase pôsobil v Budapešti a rodinná vila bola jeho prvou stavbou v Mikuláši a rovnako i jeho prvou stavbou tohto druhu na území Slovenska.
Vilu navrhol Harminc pre rodinu doktora Emila Stodolu. "Zámoček", ako ju prezývajú miestni, dostala jeho manželka Vincentia Polóny ako svadobný dar od svojho majetného otca. Emil Stodola takisto pochádzal zo zámožnej rodiny - jeho starší brat bol vedec - vynálezca turbíny Aurel Stodola. Emil sa okrem právnickej praxe aktívne venoval politike a boju za práva národa, bol signatárom Martinskej deklarácie a prvým predsedom Zväzu advokátov na Slovensku.
Reprezentatívny charakter stavby odráža spoločenské postavenie majiteľov, ich vkus a národné cítenie. Vo výsledku sa snúbia neobarokové a secesné motívy s romantizujúcimi prvkami i vplyvmi ľudovej architektúry. Harminc ako zručný staviteľ vedel k riešeniu stavieb pristupovať operatívne, podľa dostupnosti materiálov a remeselníkov, čo vysvetľuje viaceré zmeny voči prvotnému návrhu.
Po odchode Stodolovcov do Budapešti kúpil vilu v roku 1911 mikulášsky továrnik Ján Pálka. Dal ju prestavať a zväčšiť, aby vyhovovala potrebám jeho početnej rodiny. Pribudlo niekoľko izieb, kúpeľňa i toaleta, do domu dal zaviesť ústredné kúrenie - prvé v Mikuláši. Progresívne zmýšľanie nového majiteľa ilustruje tenisový kurt, alebo bežecký ovál, ktoré pribudli v rozľahlej záhrade s parkovou úpravou. Rovnako zriadil objekt pre automobil a motorky, ktoré intenzívne využíval. Vila tak nadobudla svoj dnešný vzhľad, pričom aj za týmito zmenami stál pravdepodobne Harminc.
Po roku 1937 sa vlastníkmi vily stali lekári Pavel Kustra a Pavel Čabrádi, po vojne bola využívaná na administratívne účely. Nedávnu históriu objektu dopovedia architekti: "Koncom roku 1967 vilu od súkromného vlastníka odkúpil Okresný výbor československého zväzu telesnej výchovy, po ňom Slovenské združenie telesnej kultúry. Jej predseda ju v roku 2004 netransparentne založil na pôžičku - celá táto udalosť mala zrejme za cieľ ľahko získať pozemky v centre mesta.
Po finančných vyrovnaniach sa vila dostala do rúk majiteľa, ktorého investičný zámer výstavby obchodného domu zahŕňal asanáciu vily.
Mesto žiadosť o zbúranie vily zamietlo a rozbehli sa legislatívne aktivity o jej ochranu zapísaním do Ústredného zoznamu pamiatok, ktoré bolo uskutočnené v novembri 2010. Medzitým sa zmenili aj majitelia vily a s ním aj zámery - znovu oživiť túto architektonickú pamätihodnosť Liptovského Mikuláša". Nevhodné funkcie a necitlivé zaobchádzanie zo strany predchádzajúcich vlastníkov sa však už stihli podpísať pod neslávny stav objektu.
Rekonštrukcia a návrat k pôvodnej funkcii
Prinavrátenie pôvodného využitia objektu udržiava kontinuitu principiálnej podstaty pamiatky. Zámerom investora bolo využiť vilu ako rezidenčné sídlo v centre Liptovského Mikuláša. Samozrejme pri dodržaní zásad, ktoré sa vzťahujú na objekt nedávno zapísaný do pamiatkového fondu.
Prestavba vily na svoj pôvodný účel (po viac ako polstoročí) si vyžiadala úpravy dispozície aj technického zariadenia. Architekti a investor, ktorí úzko spolupracovali s pamiatkarmi však v prvom rade dbali na zachovanie a zvýraznenie architektonických a výtvarných kvalít Harmincovho diela. Výsledné riešenie akceptuje principiálne členenie dispozície na dennú a nočnú časť. Denná časť objektu, situovaná na prízemí, pozostáva zo vstupnej haly, obývacej izby, kuchyne so zázemím a hosťovskej izby.
Pre využitie druhého nadzemného podlažia, ako nočnej časti, navrhli architekti secesnú repliku staticky nevyhovujúceho schodiska. Nový bezbariérový prístup zabezpečuje atypický výťah situovaný v logickej polohe, v kontakte so vstupom a ústredným schodiskom.
Podkrovie umožnilo len čiastočné “zobytnenie”. Je využité ako čitáreň, v rozsahu, ktorý nezasahuje do pôvodných nosných konštrukcií a strešného plášťa.
Najväčších zmien sa dočkal suterén. Ten okrem nevyhnutného technického zázemia (kotolňa, práčovňa, vzduchotechnika…) architekti povýšili na na časť domu určenú pre stretnutia a oddych. V pôvodne pivničných priestoroch vznikla vináreň s vinotékou.
Samostatnou kapitolou je prístavba suterénu, ktorá je navrhnutá ako polozapustený objekt s celopresklennou južnou fasádou a extenzívnou vegetačnou strechou. Nový stavebný objem zastrešuje oddychovú zónu s bazénom, saunou a posilňovňou. Polkruhovú figúru navrhnutú v predchádzajúcom projekte nahradila elementárna lineárna forma, ktorá je do značnej miery zapustená pod úroveň terénu. Jej strecha zasahuje len do úrovne parapetu okien prízemia. Dostavba jasne historicky identifikovateľná.
Záhrada je obnovená v súlade s celkovým vyznením pamiatky. Rekonštrukcia zahŕňala odstránenie spevnených asfaltových plôch, doplnenie výsadby so systémom zavlažovania, doplnenie oplotenia a vybudovanie vstupu z Hodžovej ulice.
Samotná obnova kládla dôraz na s prioritou maximálneho zachovania dobových hodnôt a obnovou tvaroslovných prvkov. Časovo i umelecky najkomplikovanejšia bola obnova dvoch reprezentatívnych fasád. Zvláštna pozornosť bola venovaná obnove pôvodných štukových a kovových detailov, vrátane okenných vitráží. Obnovená červeno-zelená farebnosť zdobí drevené prvky štítov i striech, takisto ako červeno-zelenú polychrómiu, vonkajší povrch okenných rámov a krídiel. Výsledné farebné riešenie bolo zvolené až na základe neskoršieho výskumu. Precízne obnovených prvkov v interiéri je nespočetné množstvo. Viac snáď povedia nasledovné fotografie:
Originálna výkresová dokumentácia M. M. Harminca z roku 1902:
Fotodokumentácia stavby pred rekonštrukciou:
Rekonštrukcia vily doktora Emila Stodolu bola v ešte v roku 2018 ocenená výročnou cenou časopisu Pamiatky a múzeá.
Podklady: BARÉNYI & ARCHITEKTI