Advertorial

Pozvánka na 2. ročník stavebného veľtrhu BigMarket na Slovensku

Na podujatí sa predstaví až 37 vystavovateľov - popredných dodávateľov stavebných materiálov a inovácií s prezentáciou...

Hotel Hirschen Spa House, Rakúsko

Novotvar v prostredí alpskej obce.

Vytvorte si kúpeľňu snov: dizajnové riešenie od značky hansgrohe

Hansgrohe - prémiová značka kúpeľňových riešení, ponúka nadčasový dizajn, technickú precíznosť a udržateľné inovácie...

Okná Internorm za minuloročné ceny + hliníkový kryt zdarma!

Využite špeciálnu akciu Internorm: okná za minuloročné ceny a hliníkový kryt úplne zadarmo. Ponuka je časovo obmedzená!

Moderné plynové technológie: Efektivita a inovácie pre 21. storočie

Sumarizácia najdôležitejších inovácií, ktoré redefinujúcich využitie tohto energetického zdroja.

Utesňovanie spodných stavieb pomocou hydro-aktívnej fólie AMPHIBIA.

AMPHIBIA 3000 GRIP 1.3 od spoločnosti ATRO predstavuje modernú hydroizolačnú technológiu, ktorá spája vysokú odolnosť,...

Dekarbonizácia individuálneho vykurovania domácností – Green Deal evolučne a nie revolučne

Ambiciózne plány EK narazili na ekonomické možnosti domácností v jednotlivých členských štátoch –...

Minimalistické dvere IDEA – technická precíznosť a čistota prevedenia

IDEA DOOR od spoločnosti JAP prináša do interiéru čistý minimalistický vzhľad vďaka bezrámovému riešeniu a precíznej...

Dom s výhľadom na údolie, Dlouhý Most (ČR)

Kontinuita riešenia od vonkajšieho obkladu až po kovania a kľučky.

Schell Vitus – osvedčené riešenie pre sprchy a umývadlá vo verejnom sektore s viac ako desaťročnou tradíciou

Nástenné nadomietkové armatúry Vitus sú mimoriadne vhodné pre rýchlu a efektívnu...

Kompozitné okná predstavujú súčasnosť a budúcnosť

Okenné profily z kompozitného materiálu RAU-FIPRO X od spoločnosti Rehau sú v porovnaní s tradičnými plastovými profilmi mnohonásobne...

Myotis - stoly 2025

Najnovší sortiment stolov pre zariadenie interiérov...

Priemyselné sklenené priečky Dorsis Digero: svetelné rozhranie pre moderné interiéry

Spojenie moderného dizajnu, funkčnosti a svetla do harmonického architektonického prvku.

Význam prirodzeného svetla pre moderné a flexibilné pracovné prostredie

Kancelárska budova Baumit v slovinskom Trzine prešla premenou na moderné a udržateľné pracovisko. Architekti kládli dôraz...

Konferencia Xella Dialóg predstaví novinky a trendy v stavebníctve

Mottom šiesteho ročníku on-line konferencie odborníkov Xella Dialóg je Efektívny návrh budov 2025+: zmeny a riešenia

Materská škola Dolní Břežany

Novostavba škôlky s infraštruktúrou na zelenej lúke.
Diela
Red 322.05.2021
23980+22
Materská škola Dolní Břežany
Autori: Ing. arch. Vladimíra Holubová, Ing. arch. Lukáš Holub, Ing. arch. Lubor SladkýInvestor: Obec Dolní BřežanyPlocha pozemku: 3441 m2Zastavaná plocha: 969 m2Podlažná plocha: 815,98 m2Obostavaný objem: 4966 m2Investičný náklad: 3 mil. €Návrh: 2015 - 2017Realizácia: 2019 - 2020Adresa: K Hradišťátku 900, Dolní Břežany, SlovenskoPublikované: 22. máj 2021

Štvortisícová obec Dolní Břežany leží v tesnom susedstve s územím hlavného mesta Prahy. Rastúce sídlo, ktoré sa stáva atraktívnym miestom pre ľudí vyhľadávajúcich život mimo metropoly, prešlo v posledných rokoch zásadnou premenou. Výrazným podielom k nej prispelo vybudovanie dvojice špičkových výskumných zariadení. Vedenie obce sa dlhodobo zaoberá kultiváciou verejného priestoru a pri realizácii nových projektov kladie dôraz na architektonické a urbanistické hľadisko (svedčia o tom realizácie zbierajúce architektonické ceny, napríklad výskumné centrum ELI Beamlines, nový cintorín, či športová hala ocenená v rámci Českej ceny za architektúru). 

Jedným projektov ktoré, prispeli k rozvoju vybavenost sídla je aj nedávna realizácia Materskej školy, ktorej autorom je pražský ateliér S.H.S architekti.

Foto: Pavel Kučera
Foto: Pavel Kučera

Architektonické riešenie materskej školy definuje základný objem kvádra s prevádzkovým zázemím detí a vychovávateliek a trojica "prstov", ktoré zastrešujú herné a pobytové miestnosti. 

Situácia
SituáciaAutor: S.H.S architekti

Pôdorysná diverzifikácia prevádzok je v priestore podporená stúpajúcu hmotou tubusov smerom do záhrady. Presklené steny v zakončeniach “prstov” umožňujú priamy výstup z herní na vonkajšiu terasu, do záhrady a k detským ihriskám. Tienenie presklených stien zabezpečuje ich čiastočné zapustenie a systém exteriérových žalúzií.  

Foto: Pavel Kučera
Foto: Pavel Kučera

Hravý raster kruhových okien v bočných stenách denných miestností zaisťuje dostatok svetla a optický kontakt s exteriérom, zároveň však obmedzuje vzájomné priehľady do herní. Zadná časť herní je navyše osvetlená kruhovým svetlovodom. 

Foto: Pavel Kučera
Foto: Pavel Kučera
Foto: Pavel Kučera
Foto: Pavel Kučera
Foto: Pavel Kučera

Fasádu objektu tvorí obklad z cementovláknitých dosiek Cembrit Grey Patina v nepravidelnom rastri. V miestach herní, na stenách orientovaných do záhrad, tvorí dvojitú fasádu, ukrývajúcu úložné priestory.

Foto: Pavel Kučera

Hrúbku obvodovej konštrukcie zároveň využívajú architekti na variabilné osadenie zasklenia voči ploche fasády. Vznikajú valcové výklenky, prístupné deťom ako zo strany záhrady, aj z priestoru herní. 

Foto: Pavel Kučera
Foto: Pavel Kučera

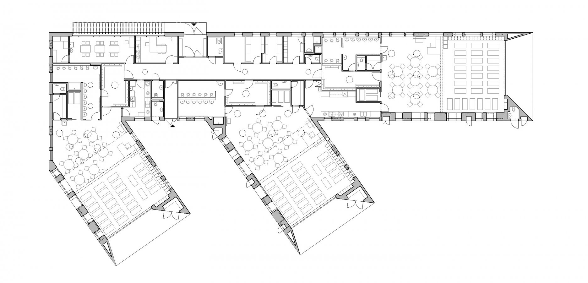
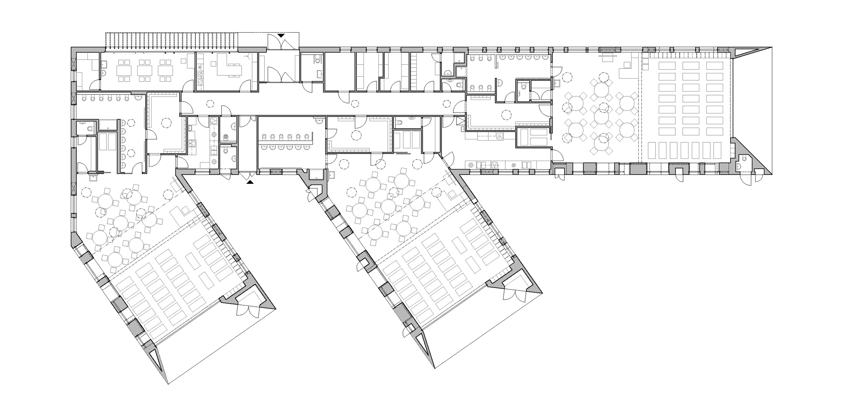
Dispozícia a prevádzka

Trojica prízemných tried (3 x 28 detí), vrátane vonkajších smeruje na juhozápad. Centrálny vstup je situovaný z východnej strany. Zádverie ústi do spoločnej chodby, ktorá sprístupňuje jednotlivé triedy s vlastným zázemím (šatňa, umyváreň + WC), zónu pre personál v severnej časti objektu. Dovezené jedlo smeruje do dvoch prípravovní, s výdajom do jednotlivých tried. Celý areál materskej škôlky je pôdorysne vymedzený a ohraničený oplotením. 

Pôdorys
PôdorysAutor: S.H.S architekti

Materiálové a technické riešenie 

Objekt je založený na základových pásoch šírky 800 mm a hĺbky minimálne 1000 mm. Stenový konštrukčný systém, s obvodovými monolitickými stenami hrúbky 250 mm nesie železobetónový rebierkový strop (výška rebierok s metrovým rozostupom, ktoré vystužujú desaťcentimetrovú stropnú dosku je približne 300 mm)

Pozdĺžny rez
Pozdĺžny rezAutor: S.H.S architekti
Pohľad
PohľadAutor: S.H.S architekti
Foto: Pavel Kučera
Foto: Pavel Kučera
Foto: Pavel Kučera
Foto: Pavel Kučera
Foto: Pavel Kučera
Foto: Pavel Kučera

Zo strany interiéru prilieha k stene vstavaný úložný systém s policami, ktorého pohľadovú časť tvorí interiérový obklad. Kruhové okná, umiestnené na interiérovej strane obvodovej steny, sú osadené do zdvojeného nosného tubusu s tepelnou izoláciou. Tubus je ukotvený k železobetónovej konštrukcii. 

Foto: Pavel Kučera
Foto: Pavel Kučera
Foto: Pavel Kučera
Foto: Pavel Kučera
Foto: Pavel Kučera
Foto: Pavel Kučera
Foto: Pavel Kučera
Foto: Pavel Kučera
Foto: Pavel Kučera
Foto: Pavel Kučera
Foto: Pavel Kučera
Foto: Pavel Kučera

Podklady: S.H.S architekti
Použité materiály a riešenia: fasáda z cementovláknitých dosiek Cembrit Grey Patina

Poloha diela

Ing. arch. Vladimíra Holubová
Ing. arch. Lukáš Holub
Ing. arch. Lubor Sladký

Súvisiace články

Vložené
14. máj 2021
0
2398
Hlavný obsahHlavný obsah
Čakajte prosím