Advertorial

Pozvánka na 2. ročník stavebného veľtrhu BigMarket na Slovensku

Na podujatí sa predstaví až 37 vystavovateľov - popredných dodávateľov stavebných materiálov a inovácií s prezentáciou...

Hotel Hirschen Spa House, Rakúsko

Novotvar v prostredí alpskej obce.

Vytvorte si kúpeľňu snov: dizajnové riešenie od značky hansgrohe

Hansgrohe - prémiová značka kúpeľňových riešení, ponúka nadčasový dizajn, technickú precíznosť a udržateľné inovácie...

Okná Internorm za minuloročné ceny + hliníkový kryt zdarma!

Využite špeciálnu akciu Internorm: okná za minuloročné ceny a hliníkový kryt úplne zadarmo. Ponuka je časovo obmedzená!

Moderné plynové technológie: Efektivita a inovácie pre 21. storočie

Sumarizácia najdôležitejších inovácií, ktoré redefinujúcich využitie tohto energetického zdroja.

Utesňovanie spodných stavieb pomocou hydro-aktívnej fólie AMPHIBIA.

AMPHIBIA 3000 GRIP 1.3 od spoločnosti ATRO predstavuje modernú hydroizolačnú technológiu, ktorá spája vysokú odolnosť,...

Dekarbonizácia individuálneho vykurovania domácností – Green Deal evolučne a nie revolučne

Ambiciózne plány EK narazili na ekonomické možnosti domácností v jednotlivých členských štátoch –...

Minimalistické dvere IDEA – technická precíznosť a čistota prevedenia

IDEA DOOR od spoločnosti JAP prináša do interiéru čistý minimalistický vzhľad vďaka bezrámovému riešeniu a precíznej...

Dom s výhľadom na údolie, Dlouhý Most (ČR)

Kontinuita riešenia od vonkajšieho obkladu až po kovania a kľučky.

Schell Vitus – osvedčené riešenie pre sprchy a umývadlá vo verejnom sektore s viac ako desaťročnou tradíciou

Nástenné nadomietkové armatúry Vitus sú mimoriadne vhodné pre rýchlu a efektívnu...

Kompozitné okná predstavujú súčasnosť a budúcnosť

Okenné profily z kompozitného materiálu RAU-FIPRO X od spoločnosti Rehau sú v porovnaní s tradičnými plastovými profilmi mnohonásobne...

Myotis - stoly 2025

Najnovší sortiment stolov pre zariadenie interiérov...

Priemyselné sklenené priečky Dorsis Digero: svetelné rozhranie pre moderné interiéry

Spojenie moderného dizajnu, funkčnosti a svetla do harmonického architektonického prvku.

Význam prirodzeného svetla pre moderné a flexibilné pracovné prostredie

Kancelárska budova Baumit v slovinskom Trzine prešla premenou na moderné a udržateľné pracovisko. Architekti kládli dôraz...

Konferencia Xella Dialóg predstaví novinky a trendy v stavebníctve

Mottom šiesteho ročníku on-line konferencie odborníkov Xella Dialóg je Efektívny návrh budov 2025+: zmeny a riešenia

Rekonštrukcia bytu v panelovom dome na ulici Ostredková v Bratislave

Aj v štandardných panelových domoch môže vzniknúť kavalitný interiér.
Diela
Red 322.03.2016
31080+19
Rekonštrukcia bytu v panelovom dome na ulici Ostredková v Bratislave
Autori: Ing. arch. Peter Šercel, Ing. arch. Andrej ŠvecNávrh: 2014 - 2014Realizácia: 2015 - 2015Adresa: Ostredky 13, Bratislava, Ružinov, SlovenskoPublikované: 22. marec 2016

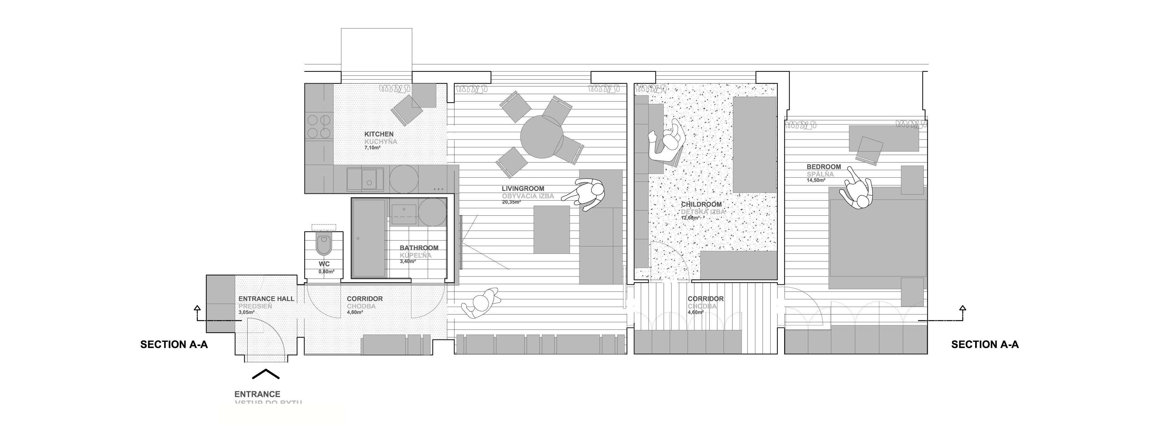
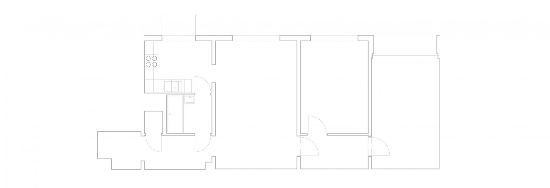
Koncepcia bytu na mieru pre mladú rodinu vychádza z pôvodnej dispozície panelového domu. S minimálnymi zásahmi do panelového systému sa podarilo vytvoriť priame prepojenie centrálneho obytného priestoru s kuchyňou. Architektom sa podarilo funkčne využíiť komunikačné častí bytu a opticky ich začleniť do obytného priestoru. 

Foto: Tomáš Manina
Pôvodný pôdorys
Pôvodný pôdorys
Pôdorys po rekonštrukcii
Pôdorys po rekonštrukcii
Axonometria bytu
Axonometria bytu
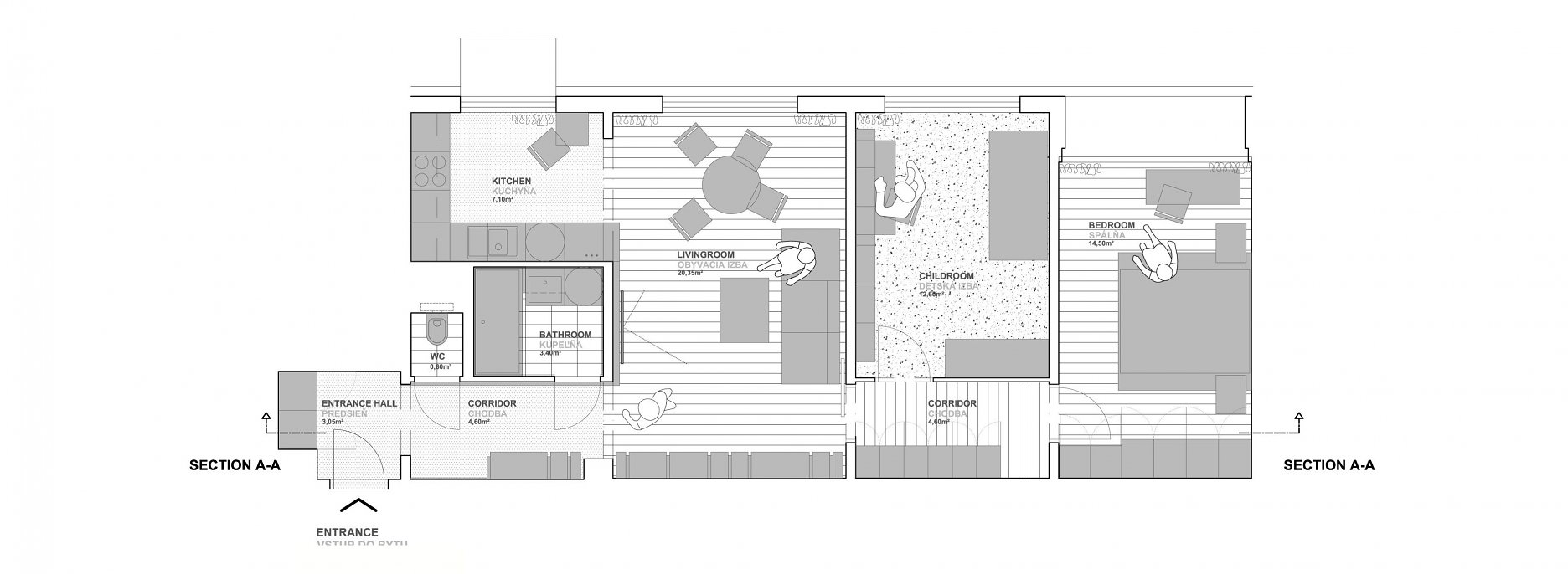
Rez A-A
Rez A-A

Vstavaný nábytok s dreveným obkladom plynulo prepája priestory dennej časti, od vstupu do bytu až po kuchyňu. Dominantným prvkom v interiéri je vložený drevený nábytkový kubus, ktorý skrýva všetko nutné pre obsluhu a fungovanie bytu. Tento prvok sa stal smerodajný pre celkový dizajn bytu.

Foto: Tomáš Manina
Foto: Tomáš Manina

Byt sa snaží priblížiť aj najmladším členom rodiny. Stena s TV je umožňuje deťom kreslenie po stene. Jednoduché členenie spolu s  prirodzeným osvetlením dodáva bytu väčšiu vzdušnosť, ktorá je pre tažiskový pristor dennej časti veľmi dôležitá. Otvorený policový systém podčiarkuje čisté riešenie bytu.

Foto: Tomáš Manina
Foto: Tomáš Manina

Mobiliár je z veľkej časti realizovaný na mieru, doplnený o dizajnové solitéry. Technológia bytu bola doplnená o rekuperáciu s klimatizačnou jednotkou.

Foto: Tomáš Manina
Foto: Tomáš Manina
Foto: Tomáš Manina
Foto: Tomáš Manina
Foto: Tomáš Manina
Foto: Tomáš Manina
Foto: Tomáš Manina
Foto: Tomáš Manina

Poloha diela

Ing. arch. Peter Šercel
Ing. arch. Andrej Švec

Súvisiace články

Vložené
22. marec 2016
0
3108
Hlavný obsahHlavný obsah
Čakajte prosím