Advertorial

Pozvánka na 2. ročník stavebného veľtrhu BigMarket na Slovensku

Na podujatí sa predstaví až 37 vystavovateľov - popredných dodávateľov stavebných materiálov a inovácií s prezentáciou...

Hotel Hirschen Spa House, Rakúsko

Novotvar v prostredí alpskej obce.

Vytvorte si kúpeľňu snov: dizajnové riešenie od značky hansgrohe

Hansgrohe - prémiová značka kúpeľňových riešení, ponúka nadčasový dizajn, technickú precíznosť a udržateľné inovácie...

Okná Internorm za minuloročné ceny + hliníkový kryt zdarma!

Využite špeciálnu akciu Internorm: okná za minuloročné ceny a hliníkový kryt úplne zadarmo. Ponuka je časovo obmedzená!

Moderné plynové technológie: Efektivita a inovácie pre 21. storočie

Sumarizácia najdôležitejších inovácií, ktoré redefinujúcich využitie tohto energetického zdroja.

Utesňovanie spodných stavieb pomocou hydro-aktívnej fólie AMPHIBIA.

AMPHIBIA 3000 GRIP 1.3 od spoločnosti ATRO predstavuje modernú hydroizolačnú technológiu, ktorá spája vysokú odolnosť,...

Dekarbonizácia individuálneho vykurovania domácností – Green Deal evolučne a nie revolučne

Ambiciózne plány EK narazili na ekonomické možnosti domácností v jednotlivých členských štátoch –...

Minimalistické dvere IDEA – technická precíznosť a čistota prevedenia

IDEA DOOR od spoločnosti JAP prináša do interiéru čistý minimalistický vzhľad vďaka bezrámovému riešeniu a precíznej...

Dom s výhľadom na údolie, Dlouhý Most (ČR)

Kontinuita riešenia od vonkajšieho obkladu až po kovania a kľučky.

Schell Vitus – osvedčené riešenie pre sprchy a umývadlá vo verejnom sektore s viac ako desaťročnou tradíciou

Nástenné nadomietkové armatúry Vitus sú mimoriadne vhodné pre rýchlu a efektívnu...

Kompozitné okná predstavujú súčasnosť a budúcnosť

Okenné profily z kompozitného materiálu RAU-FIPRO X od spoločnosti Rehau sú v porovnaní s tradičnými plastovými profilmi mnohonásobne...

Myotis - stoly 2025

Najnovší sortiment stolov pre zariadenie interiérov...

Priemyselné sklenené priečky Dorsis Digero: svetelné rozhranie pre moderné interiéry

Spojenie moderného dizajnu, funkčnosti a svetla do harmonického architektonického prvku.

Význam prirodzeného svetla pre moderné a flexibilné pracovné prostredie

Kancelárska budova Baumit v slovinskom Trzine prešla premenou na moderné a udržateľné pracovisko. Architekti kládli dôraz...

Konferencia Xella Dialóg predstaví novinky a trendy v stavebníctve

Mottom šiesteho ročníku on-line konferencie odborníkov Xella Dialóg je Efektívny návrh budov 2025+: zmeny a riešenia

Reštart Ľubických Kúpeľov/ Reštart pamäte prostredníctvom architektonického aktivizmu - diplomová práca

Záverečná práca z Fakulty umení Technickej univerzity v Košiciach nominovaná na Cenu profesora Lacka o najlepší diplomový projekt.
Diela
Red 423.09.2018
23260+24
Reštart Ľubických Kúpeľov/ Reštart pamäte prostredníctvom architektonického aktivizmu - diplomová práca
Autori: Ing. arch. Marek CehulaSpolupráca: doc. Ing. arch. Juraj Koban, PhD. (Konzultant), Mgr. Ivana Komanická, MA, PhD. (Konzultantka), Ing. arch. Tomáš Boroš (Konzultant)Návrh: 2017 - 2018Adresa: Ľubické Kúpele, SlovenskoPublikované: 23. september 2018

Dielo predstavujeme so skráteným autorským textom:

Práca sa zaoberá problematikou zaniknutej dediny Ľubické Kúpele. Tá musela v roku 1952 ustúpiť štátnemu záujmu vytvoriť na jej území a území ďalších troch obcí vojenský obvod Javorina. Všetci obyvatelia boli násilne vysídlení a dediny zrovnané so zemou. V roku 1991 vzniklo Združenie za obnovu obce Ľubické Kúpele a v roku 2011 zanikol obvod. Snahy o obnovu sa zintenzívnili, stali sa reálnejšími. Na to reaguje práca návrhom projektu. Snaží sa byť podporou v snahách združenia. Prezentuje a obhajuje projekt reštartu Ľubických Kúpeľov, ktorý ma znaky architektonického aktivizmu.

Stručná história

 

Prvá písomná zmienka o sírnych prameňoch neďaleko mesta Kežmarok pochádza z 13. storočia. Od tohto času ľudia z blízka i ďaleka využívali liečivú silu vody. Význam tohto prírodného bohatstva bol natoľko markantný, že dal v 17. storočí za vznik osade, ktorá sa neskôr stala plnohodnotnou dedinou - Ľubické Kúpele.

V roku 1952 však cestu nádejne sa rozvíjajúcej dedine skrížili štátne plány s budovaním vojenského obvodu Javorina. V priebehu niekoľkých dní neostal kameň na kameni. Obyvatelia boli vysťahovaní a 700 rokov pamäte boli zasypané zemou.

V roku 2011 bol však obvod zrušený a pozemky sa vracajú naspäť. Súčasne už od roku
1991 existuje Združenie za obnovu obce Ľubické Kúpele. Uvedomuje si hodnotu prírodného bohatstva, ktoré im bolo dočasne vzaté z opatery, no nastal čas návratu.

Združenie prejavuje snahy o znovu naštartovanie dediny, ktorú museli opustiť.

Ľubické Kúpele - okolitá príroda
Ľubické Kúpele - okolitá príroda

Prítomnosť

60 rokov fungovania vojenského obvodu dokonale zotrelo aj posledné stopy po kúpeľnej dedine. Asi jedinou pripomienkou histórie je kríž a zopár vyvalených náhrobných kameňov na mieste cintorína. Vojaci po sebe však zanechali výrazne markantnejšie stopy. Os dediny lemujú zľava i sprava murované i betónové objekty. Možno tu nájsť tak muničný sklad ako aj obyčajnú maštaľ. Často sú zbavené okien, dverí či brán. Ich kondícia je však stále pomerne dobrá a objekty sú využiteľné. Okrem toho majú aj veľmi príjemnú architektonickú kvalitu.

Ľubické Kúpele - súčasný stav
Ľubické Kúpele - súčasný stav

Budúcnosť

Skupina pôvodných obyvateľov sa v roku 1991 jasne vyjadrila k zámeru so svojím rodiskom. ZDRUŽENIE ZA OBNOVU OBCE ĽUBICKÉ KÚPELE vzniklo s cieľom konať. Obnoviť zaniknuté hodnoty a ukázať ich novej generácii. Dedinu však nemožno znovu vybudovať za jeden deň a jednu noc. Navyše si projekt takéhoto formátu vyžaduje sám čas a postupnosť, aby sa ukázalo či má vôbec šancu prežiť. Je nutné postupovať pomaly a v malých krokoch. Odskúšať či veci fungujú v malom a následne na ich fungujúcom základe budovať ďalej.

Návrat kúpeľnej vily -  ilustračná grafika - pôvodná kúpeľná vila v súčasnom prostredí
Návrat kúpeľnej vily - ilustračná grafika - pôvodná kúpeľná vila v súčasnom prostredí

Návrat... v dvoch fázach

Návrat života do dediny a odkrývanie “zahrabaných” hodnôt miesta by malo prebehnúť v dvoch fázach. Prvá, finančne nenáročná, využívajúca lokálne zdroje a materiály, koncipovaná tak, aby mohla začať okamžite. Nazývame ju REŠTART. Druhá, ktorú nazývame OBNOVA, vytvára názor, ako nakladať so všetkým, čo vznikne v prvej fáze. Posúva fungovanie dediny a kúpeľov do trvalejších intencií. Je podmienená vyšším kapitálom, ktorý plynie z vyššieho záujmu o dedinu.

Obe fázy rešpektujú existujúce. Vstupujú ako nová vrstva, ktorá obohatí existujúcu. Nebúra sa, stavia sa. Búrania už tu bolo dosť.

Reštart

Fáza reštartu začína tam, kde vojaci skončili. Zanechali po sebe využiteľné objekty. Združenie za obnovu obce má už dnes v držbe niekoľko hektárov lesa, v ktorých je možná ťažba. Zároveň sa venuje poľnohospodárskej činnosti, preto dokáže vyprodukovať aj dostatočné množstva slamy. Tieto dva dostupné materiály sa preto stávajú základom pre fázu reštartu.

Vznikajú drobné objekty, ktoré sú vložené do existujúcich. Najdôležitejšími sú v tejto fáze dva veľké muničné sklady a panelové pole medzi nimi, do ktorých sú vložené tri rady buniek. Prvé dva rady obsahujú bunky dočasného bývania určené tak pre pôvodných obyvateľov (pri výjazdoch do svojho rodiska), ako aj pre turistov, ktorý chcú zažiť relaxačno-oddychový pobyt v prírode. Tretí rad sú bunky obsahujúce rozličné kúpeľné kúry, poskytujúce program pre záujemcov odkazujúc na históriu miesta. Dve kúrové bunky sú umiestnené aj na panelovom poli.

Ďalej dochádza k transformácii senážnej jamy na exteriérový bio bazén. Ten využína vodu z potoka pretekajúceho dedinou. Samospádom doň voda priteká a aj odteká.

Do strážnice je vložený taktiež drobný objekt, ktorý ju rozdelí a vytvorí byt pre správcu celého areálu/projektu (predpokladá sa niektorý z pôvodných obyvateľov, resp. jeho nasledovník) a byt lekára, ktorý prináša odbornosť do kúpeľnej problematiky.

Malý muničný sklad slúži v tejto fáze ako informačné miesto, kde sa záujemcovia dozvedia o dedine, o projekte a zároveň je to miesto bezkontaktného výdaju kľúčov k jednotlivým bunkám.

V tejto fáze je taktiež možné vybudovať drobnú kaplnku na kopci, na mieste cintorína, nakoľko miesto má symbolický význam, zároveň otvára príjemné výhľady na východ, kam by smerovala oltárna strana kaplnka.

Na západnej strane nad dedinou je vedľa vodojemu vybudované pomyselné dvojča, štyri kúrové jednotky využívajúce nádherné prostredie a výhľad na celú dedinu.

Počiatočná fáza reštartu poskytuje ubytovanie - prináša ľudí. A poskytuje funkcie - drží ľudí na mieste. Takto vzrastá počet záujemcov a je možné pustiť sa do náročnejších projektov.

Dochádza k transformácii maštale na vzdelávacie centrum, ktoré preberá funkciu osvety ekologickejšieho spôsobu života, ktorý sa črtá v celej dedine. (neskôr je to škola, ktorá pôvodne v dedine bola)

Taktiež je zrekonštruovaný vodojem nad dedinou na západe, nakoľko bude neskôr potrebný a posteupne sa odkrývajú zasypané sírne pramene. Uvoľňuje sa prírodná sila. Doteraz bola potreba vody pokrytá potokom a verejným vodovodom, ktorý v dedine existuje. Od teraz však vstupuje do hry aj liečivá voda. (odkrývanie prameňa je náročný proces, preto k nemu nedochádza hneď na začiatku)

Celá fáza reštartu stavia na lokálnych, dostupných materiáloch, využíva pracovnú silu združenia za obnovu a nových záujemcov. Finančné prostriedky predpokladá čiastočne zo zdrojov združenia a z ubytovania, ktoré by vzniklo. To by sa malo financovať formou crowdfundingu, kedy by odmenou za príspevok bolo niekoľko nocí v objekte. Aj následný prenájom kreuje zdroje.

Obnova

Fáza obnovy nadväzuje na reštart. A tak ako reštart budoval na existujúcej štruktúre, tak aj obnova využíva to, čo má.

Reštart začal s rozširovaním povedomia o dedine a kúpeľoch. Preto je možný nárast záujmu o územie. Vzniká požiadavka trvalého bývania v dedine. Vstupné náklady na rodinný dom však nie sú najmenšie. Nakoľko je ale cieľom projektu život prebudiť a obnoviť, je v jeho záujme trvalé bývanie podporiť. Činí tak skrz jednotky dočasného bývania, ktoré je možné rozobrať na časti, preniesť za potok a znovu zoskladať. Vzniká tak jadro alternatívneho rodinného domu, ktoré obsahuje miesto kde si môžem navariť, kde môžem vykonať hygienu a kde sa môžem vyspať. Jadro ale nie je chránené pred dažďom, nakoľko to doteraz nebolo potrebné. Preto fáza obnovy prichádza s ďalšou vrstvou, ktorú nanesie na existujúcu. Ochranný plášť vo forme drevenej stĺpikovej konštrukcie, ktorý nesie drevený rošt so zelenou strechou. Vytvára ochranu pred dažďom a vymedzuje prestrešený exteriér, ktorý môže majiteľ obstarať podľa svojich možností. Môže ho ponechať vo forme exteriéru, urobiť z neho interiér, vložiť podlažie, ale aj ponechať vysoké svetlé výšky. Stĺpy môže využiť ako pomocnú konštrukciu pre slamu, ktorú tam uloží v zime (konzola ju chráni pred dažďom do miery, ktorá je potrebná). Naopak v lete, keď je vonku príjemne, ju poskytne chovateľom zvierat a využíva prestrešený exteriér.

Muničné sklady v tejto fáze opúšťajú aj bunky na bývanie z prostredného radu. Tie, aby umožnili komunikáciu v strednom koridore a dostali svetlo potrebné pre bývanie, boli vyzdvihnuté na stĺpy a prepichli strechu. Na šikmých strechách majú fotovoltaické panely, a nakoľko si to situácia vyžiadala, tak je možné ich bez akýchkoľvek úprav umiestniť v extriéri. Tieto bunky sú umiestňované v okolitých lesoch a slúžia ako alternatívne zážitkové bývanie. Bunky s kúrami sú vytiahnuté na panelové pole medzi muničnými skladmi. Doplnia raster, ktorý už obsahuje 2 bunky. Zhluk dostáva principiálne rovnaký ochranný obal ako rodinné domy. Haly, muničné sklady, ostali prázdne. Preto je možné ich využiť inak.

Sírne pramene, ktoré sa tu nachádzajú, majú ozdravné účinky na ochorenia pohybového aparátu a kožné choroby. Základným predpokladom liečby je teda cvičenie/pohyb - telocvičňa, bazén a pôsobenie liečivej vody - kúry.

V prázdnych halách je preto zmysluplné uberať sa týmto smerom. Do objektov skladov, ako aj medzi kúrové bunky sú vložené drevené objekty so sociálnymi zariadeniami. Nová vrstva podporuje funkcie, ktorých charakter sa stáva trvalejším.

Nový charakter funkcií v muničných skladoch vyžaduje aj zmenu ostatných funkcií. Byt správcu je možné transformovať na pohostinstvo/kaviareň, ktorá by pokryla požiadavky hostí na občerstvenie.

Malý muničný sklad už nie je potrebný ako výdaj kľúčov, a preto sa mení na akýsi úrad, administratívno-správne centrum kúpeľov a dediny. Stále poskytuje informácie, teraz však iného charakteru.

Pretvorenie bývania z dočasného na trvalé posilnilo aj kúpeľnú funkciu a tá spätne posilňuje bývanie. To má predpoklad sa vďaka kúpeľnej funkcii rozrastať. Zástavba sa zahusťuje, dedina silnie. Na základe tej starej vzniká nová. Nekopíruje ju, len na ňu odkazuje. Nové bývanie je umiestnené na uličnej osi. Nie však na pôvodnej, ale na novej. Pôvodná hlavná ulica je ponechaná vážnosti kúpeľnej funkcie. Je plne verejná, zatiaľčo druhá je poloverejná. Obsahuje kúpele, centrálnu zónu s bazénom a pohostinstvom, úrad a kaplnku na kopci. A tak ako sa bývanie preklápa okolo osi potoka, tak sú aj nové kúpele preklopené podľa uličnej osi na druhú stranu. Staré funkcie dostávajú nové miesto vynútené historickým vývojom dediny.

Základné "stavebné kamene" projektu:

Univerzálna jednotka

Základným “stavebným kameňom” reštartu je takmer vždy určitá modifikácia univerzálnej jednotky. Má pôdorysný rozmer 4200 x 4200 mm. Rozmer vychádza zo vzdialenosti medzi dvomi nosníkmi v muničnom sklade. Je buď jednopodlažná (výška 3000 mm), alebo dvojpodlažná (výška 5000 mm). Môže byť uskočená, strechu môže mať plochú, prípadne skosenú. Vždy sa prispôsobuje konkrétnej situácii. Preberá funkciu tak bývania, ako aj kúr, šatne, toalety a pod. Vždy je to však drevostavba a vždy je zateplená slamou.

Drevo, slama a iné lokálne materiály

Celý projekt počíta so zachovaním existujúcich štruktúr. S ich opätovným využitím, aby CO2 ktoré už raz bolo vypustené do ovzdušia, nevyšlo na zmar. Aby zbytočne nedochádzalo k zväčšovaniu uhlíkovej stopy, ak to nie je nevyhnutné. Ruka v ruke s týmto spôsobom riešenia je aj voľba materiálu. Zvoliť materiál, ktorý sa nemusí dovážať stovky kilometrov a ktorý je z obnoviteľných zdrojov sa veľmi pomaly stáva praxou v stavebníctve. Ak však existuje možnosť rozhodnúť sa pre takéto riešenie, netreba to premrhať. Združenie za obnovu obce disponuje lesom určeným na ťažbu, ktorý sa nachádza v bezprostrednom okolí dediny. Píla je asi 4 km ďaleko. Preto bolo samozrejmosťou zvoliť drevo ako hlavný stavebný materiál. Združenie sa taktiež venuje poľnohospodárstvu. Aj slama je preto veľmi dostupnou a vhodnou komoditou. Tieto dva materiály sa preto stali hlavnou surovinou, z ktorej sa kreuje celý projekt.

 

Pohľad na jednotlivé časti projektu:

Jednotka na bývanie - fáza reštartu

Jednotka dočasného bývania, viazaná na “inkubátor”. Nosná konštrukcia je vyrobená z dreva. Funguje ako skladačka, kde sa spája viacero prvkov s prierezom 200 x 50 mm. Ich uskočenie na koncoch (viď. grafika) uľahčuje spájanie jednotlivých prvkov. Ako tepelne izolačný materiál je použitá slama. Objekt je obložený dreveným obkladom. Nakoľko sú bunky vo fáze reštartu umiestnené v halách, voči vode ich nie je nutné chrániť.

Pôdorysy - fáza reštartu
Pôdorysy - fáza reštartu
Pohľady - fáza reštartu
Pohľady - fáza reštartu

Muničný sklad "A" - fáza reštartu

Muničný sklad je železobetónová skeletová stavba. Jej svetlé rozmery sú zhruba 30 x 15 m. Južná stena obsahuje sedem bránových otvorov. Východná a západná stena je plná a na severe sa nachádzajú otvory vyplnené matným kopilitom. Prístup k objektu je vyasfaltovanou plochou na celú šírku objektu na juhu. Zo všetkých ostatných strán obklopuje stavbu násyp zhruba do úrovne strechy.

Fáza reštartu pre objekt znamená vkladanie nových buniek o pôdorysných rozmeroch 4200 x 4200 mm. Vložené sú v troch radoch. Prvý - dočasné bývanie, druhý - dočasné bývanie presahujúce nad strechu, tretí - kúrové jednotky (relaxácia a ozdravovanie za pomoci vody, kľudu, Slnka, ...)

Muničný sklad - súčasný stav
Muničný sklad - súčasný stav
Muničný sklad - fáza reštartu
Muničný sklad - fáza reštartu
Muničný sklad A - súčasný stav
Muničný sklad A - súčasný stav
Pôdorys muničného skladu - súčasný stav
Pôdorys muničného skladu - súčasný stav
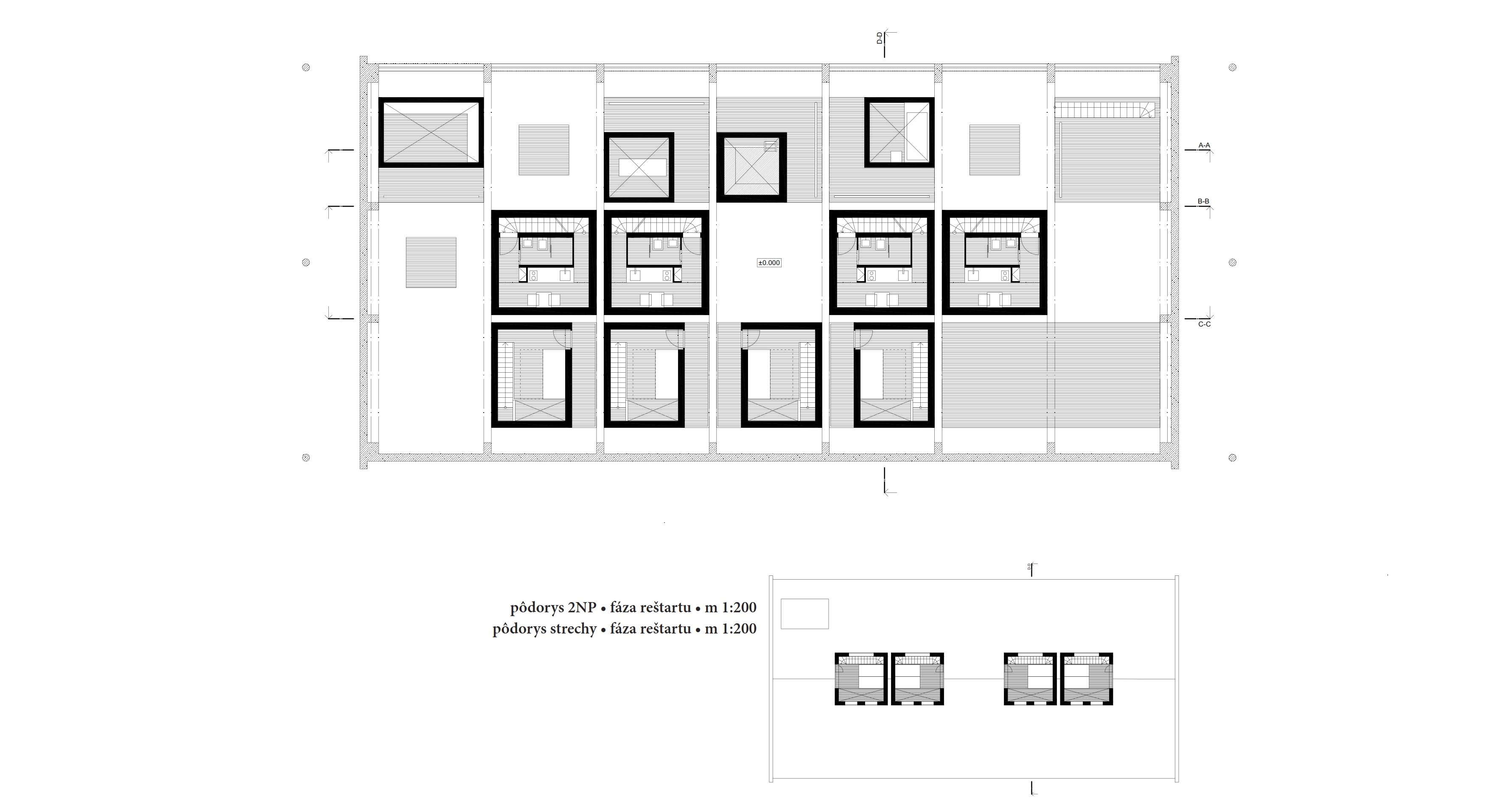
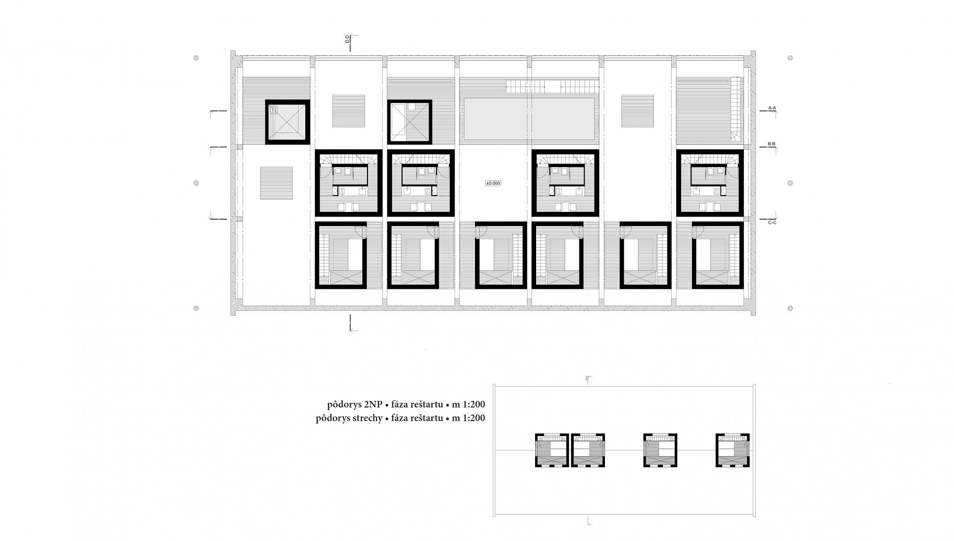
Pôdorys 1. NP - fáza reštartu
Pôdorys 1. NP - fáza reštartu
Pôdorys 2. NP - fáza reštartu
Pôdorys 2. NP - fáza reštartu
Rezy - fáza reštartu
Rezy - fáza reštartu
Rezy - fáza reštartu
Rezy - fáza reštartu
Pohľady - fáza reštartu
Pohľady - fáza reštartu
Pohľady - fáza reštartu
Pohľady - fáza reštartu

Muničný sklad "A" - fáza obnovy 

Muničný sklad je vo fáze obnovy oslobodený od buniek. Vkladá sa doň nový drevený objem obsahujúci sociálne zariadenia pre mužov, ženy a osobytná šatňa s hygienou pre imobilného. Kubus má výšku jedného podlažia, takže vytvára terasu, z ktorej je možné sledovať situáciu v hale. Zvyšok voľného priestoru slúži ako telocvičňa s južým, severným a horným svetlom.

Muničný sklad - fáza obnovy
Muničný sklad - fáza obnovy
Telocvičňa - Pôdorys 1. NP - fáza obnovy
Telocvičňa - Pôdorys 1. NP - fáza obnovy
Telocvičňa - Rezy - fáza obnovy
Telocvičňa - Rezy - fáza obnovy
Telocvičňa - Pohľady - fáza obnovy
Telocvičňa - Pohľady - fáza obnovy

Muničný sklad "B" - fáza reštartu

Muničný sklad je železobetónová skeletová stavba. Jej svetlé rozmery sú zhruba 30 x 15 m. Južná stena obsahuje sedem bránových otvorov. Východná a západná stena je plná a na severe sa nachádzajú otvory vyplnené matným kopilitom. Prístup k objektu je vyasfaltovanou plochou na celú šírku objektu na juhu. Zo všetkých ostatných strán obklopuje stavbu násyp zhurba do úrovne strechy.

Fáza reštartu pre objekt znamená vkladanie nových buniek o pôdorysných rozmeroch 4200 x 4200 mm. Vložené sú v troch radoch. Prvý - dočasné bývanie, druhý - dočasné bývanie presahujúce nad strechu, tretí - kúrové jednotky (relaxácia a ozdravovanie za pomoci vody, kľudu, Slnka, ...

Muničný sklad - súčasný stav
Muničný sklad - súčasný stav

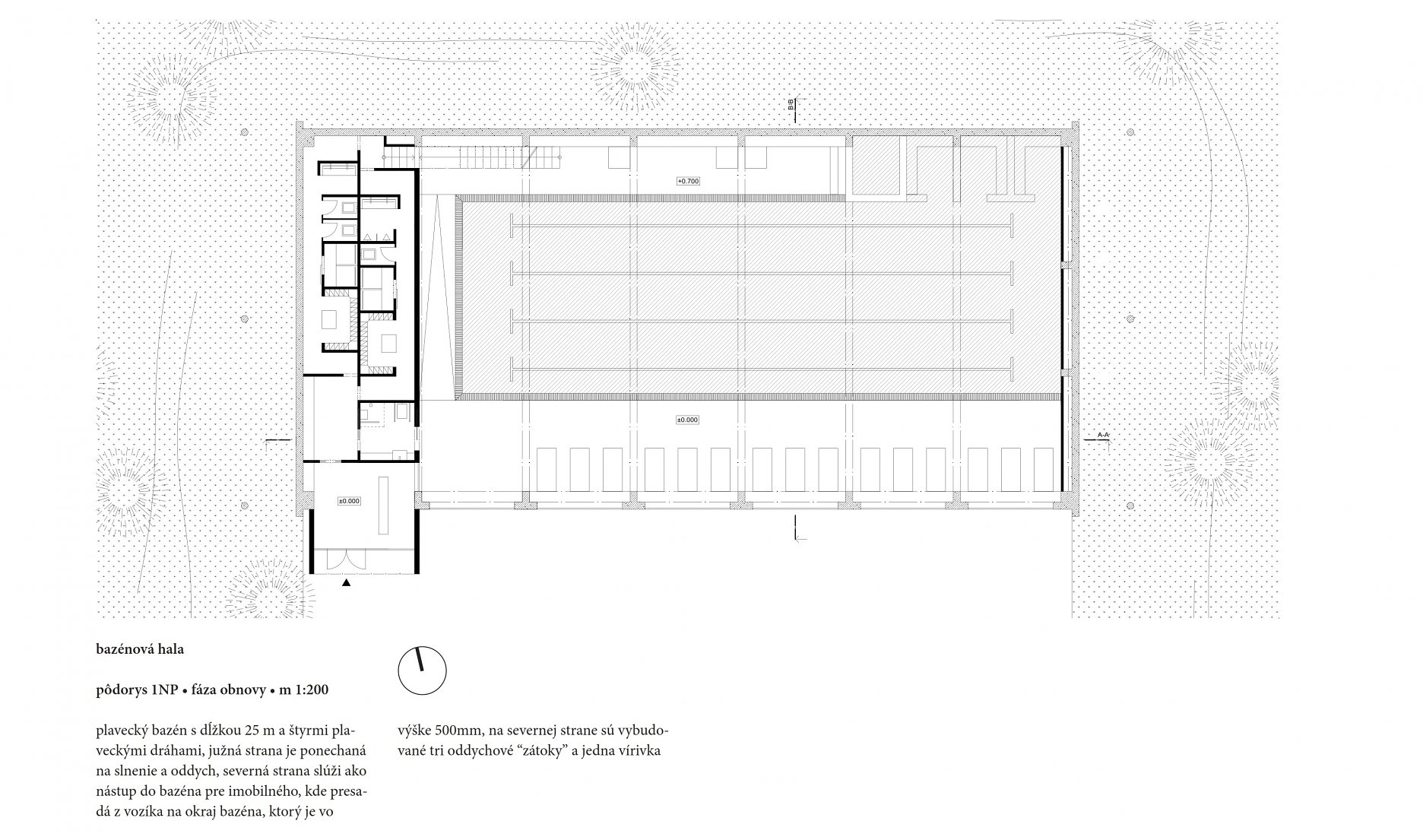
Muničný sklad "B" - fáza obnovy

Muničný sklad je vo fáze obnovy oslobodený od buniek. Vkladá sa doň nový drevený objem obsahujúci sociálne zariadenia pre mužov, ženy a osobytná šatňa s hygienou pre imobilného. Kubus má výšku jedného podlažia, takže vytvára terasu, z ktorej je možné sledovať situáciu v hale. Zvyšok voľného priestoru je koncipovaný ako bazénová hala.

Bazénová hala - Pôdorys 1. NP - fáza obnovy
Bazénová hala - Pôdorys 1. NP - fáza obnovy
Bazénová hala - Rezy - fáza obnovy
Bazénová hala - Rezy - fáza obnovy
Bazénová hala - Pohľady - fáza obnovy
Bazénová hala - Pohľady - fáza obnovy

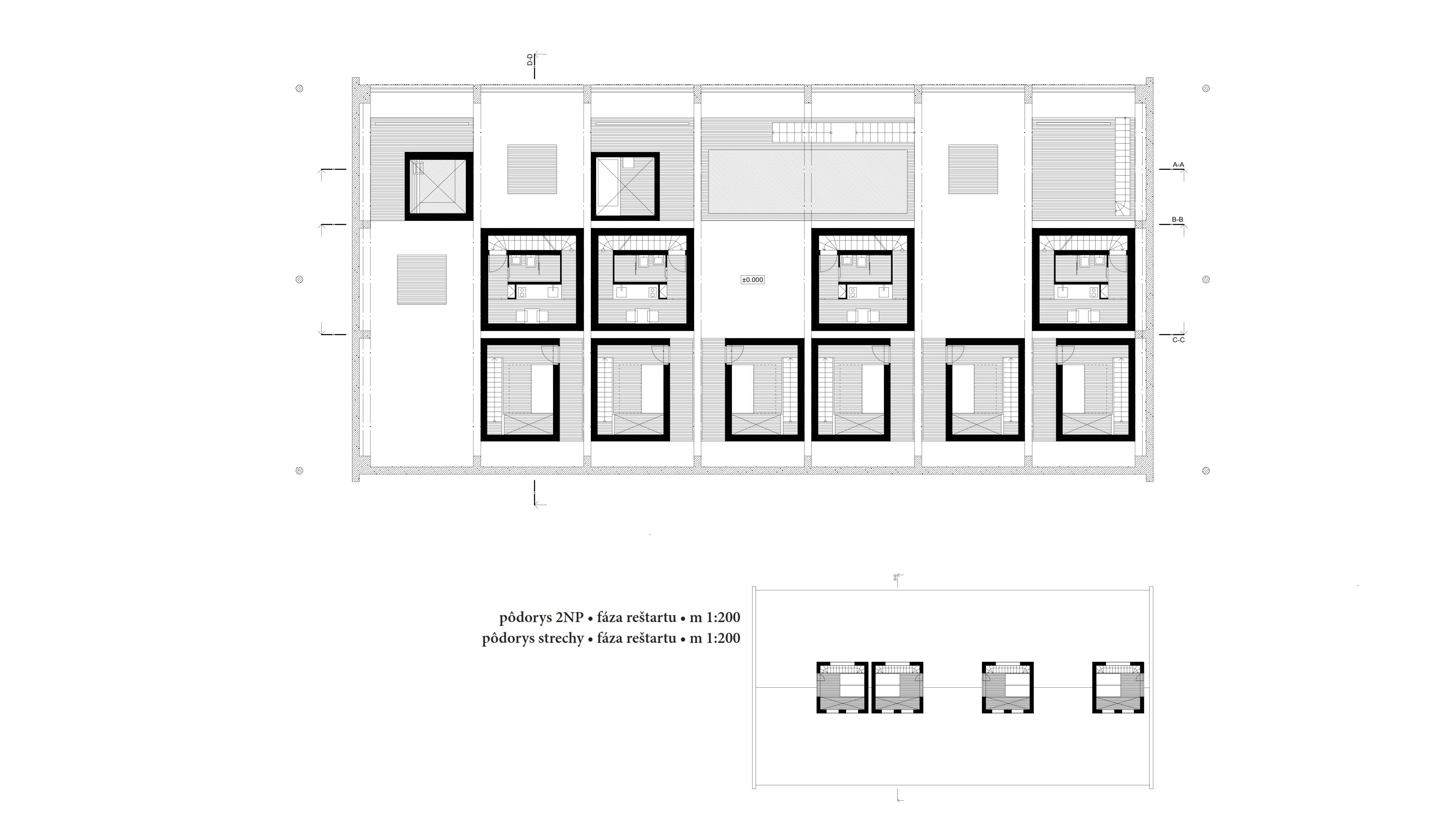
Betónové panely - fáza reštartu

Pole obsahuje 10 x 10 panelov, každý o rozmere 3000 x 2000 mm. Nachádzajú sa na vyvýšenom mieste medzi muničnými skladmi s príjemným výhľadom na južnej strane a kulisou lesa na strane severnej. Na panely sú umiestnené dve kúrové bunky a dopĺňajú tak triptych - sklad, pole, sklad. Upozorňujú na dianie v skladoch. Počet buniek je minimalizovaný kvôli ich náročnejšiemu prevedeniu voči tým v halách. Zároveň ponechávajú voľný priestor, ktorý je využitý v neskoršej fáze projektu.

Betónové panely  - súčasný stav
Betónové panely - súčasný stav
Betónové panely  - fáza reštartu
Betónové panely - fáza reštartu
Betónové panely - súčasný stav
Betónové panely - súčasný stav
Betónové panely - Pôdorys - súčasný stav
Betónové panely - Pôdorys - súčasný stav
Betónové panely - Pôdorys 1.NP - fáza reštartu
Betónové panely - Pôdorys 1.NP - fáza reštartu
Betónové panely - Pôdorys 2.NP - fáza reštartu
Betónové panely - Pôdorys 2.NP - fáza reštartu
Betónové panely - Pohľady - fáza reštartu
Betónové panely - Pohľady - fáza reštartu
Betónové panely - Pohľady - fáza reštartu
Betónové panely - Pohľady - fáza reštartu

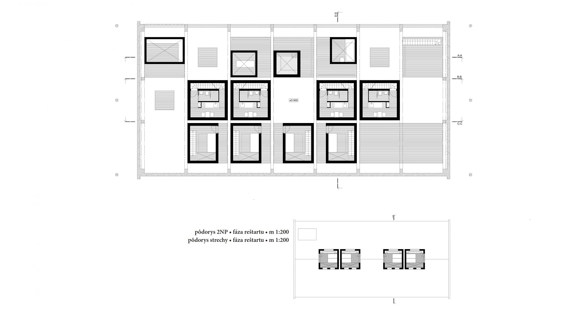
Betónové panely - fáza obnovy

Fáza obnovy vyťahuje všetky kúrové bunky na panelové pole, kde sú usporiadané v rastri. Doplnené sú o ochranný plášť - zelená strecha a podlaha, ktorá ich prepája. Do stredu je vložený drevený objem so sociálnymi zariadeniami. Vďaka koordinácii rozmerov je možné niektoré objekty vypúšťať, vkladať podlažie na želané miesto. Objekt je kvôli nejasnosti budúcnosti tvárny a je možné ho, do istej miery, prispôsobiť aktuálnej situácii.

Betónové panely - fáza obnovy
Betónové panely - fáza obnovy
Betónové panely - Pôdorys 1. NP - fáza obnovy
Betónové panely - Pôdorys 1. NP - fáza obnovy
Betónové panely - Pôdorys 2. NP - fáza obnovy
Betónové panely - Pôdorys 2. NP - fáza obnovy
Betónové panely - Rezy - fáza obnovy
Betónové panely - Rezy - fáza obnovy
Betónové panely - Pohľady - fáza obnovy
Betónové panely - Pohľady - fáza obnovy

Jednotka na bývanie - fáza obnovy

Jednotka na bývanie vo fáze obnovy reaguje na potenciálnu možnosť rastu dediny. Vzniká požiadavka trvalého bývania a sprístupnenie skladov trvalejším funkciám. Jednotka dočasného bývanie preto vychádza zo skladov na otvorené priestranstvo, kde sa stáva základom rodinného domu. Stáva sa základom novej vrstvy. Slúži ako jadro s regulovateľnou tepelnou pohodou. Poskytuje základné funkcie - stravovanie, hygiena, spanie. Predošlá koncepcia jednotky jej však nedovoľuje umiestnenie v exteriéri bez úprav. Preto je jednotka opatrená ochranným plášťom.

Jednotka na bývanie - Pôdorys - fáza obnovy
Jednotka na bývanie - Pôdorys - fáza obnovy
Alternatívny dom - Pôdorys - fáza obnovy
Alternatívny dom - Pôdorys - fáza obnovy
Alternatívny dom  - Rezy a pohľady - fáza obnovy
Alternatívny dom - Rezy a pohľady - fáza obnovy

Senážna jama - fáza reštartu - fáza obnovy

Vybetónovaná jama o svetlých rozmeroch 21,5 x 7 m a hĺbkou 2 m využíva blízskosť potoka pretekajúceho dedinou a je transformovaná na neodmysliteľnú časť kúpeľnej dediny, na bazén. V tomto prípade ide o bio bazén, ktorý nevytvára nákladné nároky na údržbu. Doplnený je o otvorený drevený objekt obsahujúci WC a miesto na prezlečenie. Bazén sa principiálne nemení ani v neskorších fázach projektu.

Senážna jama - súčasný stav
Senážna jama - súčasný stav
Senážna jama - fáza reštartu a obnovy
Senážna jama - fáza reštartu a obnovy
Senážna jama - súčasný stav
Senážna jama - súčasný stav
Senážna jama - Pôdorys - fáza reštartu a obnovy
Senážna jama - Pôdorys - fáza reštartu a obnovy
Bio bazén - Pôdorys - fáza reštartu a obnovy
Bio bazén - Pôdorys - fáza reštartu a obnovy
Bio bazén - Rez - fáza reštartu a obnovy
Bio bazén - Rez - fáza reštartu a obnovy

Strážnica - fáza reštartu

Bývalá strážnica je murovaný objekt so svetlými rozmermi 19 x 9,1 m. V objekte sa nachádza zopár nenosných priečok, ktorých stav je nevyhovujúci. Fáza reštartu vkladá do objektu drevený objem zateplený slamou. Objekt rozdeľuje strážnicu na menšiu a väčšiu časť.

Strážnica - súčasný stav
Strážnica - súčasný stav
Strážnica - fáza reštartu
Strážnica - fáza reštartu
Strážnica - súčasný stav
Strážnica - súčasný stav
Strážnica - Pôdorys 1. NP- fáza reštartu
Strážnica - Pôdorys 1. NP- fáza reštartu
Byt správcu a lekára - Pôdorys 1. NP- fáza reštartu
Byt správcu a lekára - Pôdorys 1. NP- fáza reštartu
Byt správcu a lekára - Rezy a pohľady - fáza reštartu
Byt správcu a lekára - Rezy a pohľady - fáza reštartu

Strážnica - fáza obnovy

Fáza obnovy sa v tomto prípade prejavuje vo forme minimálne. Mení sa hlavne funkcia priestoru, samozrejme iba za predpokladu, že je to žiadané. Objekt sa mení na pohostinstvo, miesto kde si môžte vypiť pivo, či zjesť drobnosť. Drevený objem slúži ako jadro a zvyšok ostáva ako priestor, ktorý možno prispôsobovať.

Strážnica - Pôdorys 1. NP - fáza obnovy
Strážnica - Pôdorys 1. NP - fáza obnovy
Strážnica - Pôdorys 1. NP - fáza obnovy
Strážnica - Pôdorys 1. NP - fáza obnovy

Maštaľ - fáza reštartu - fáza obnovy

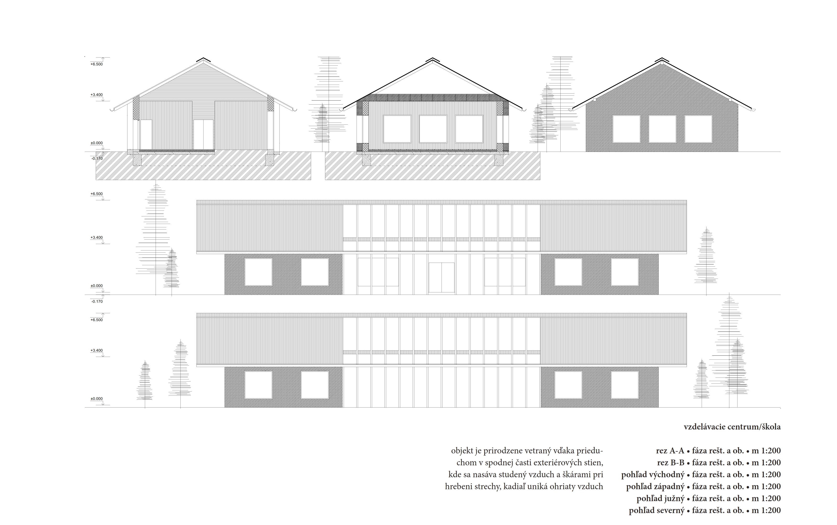
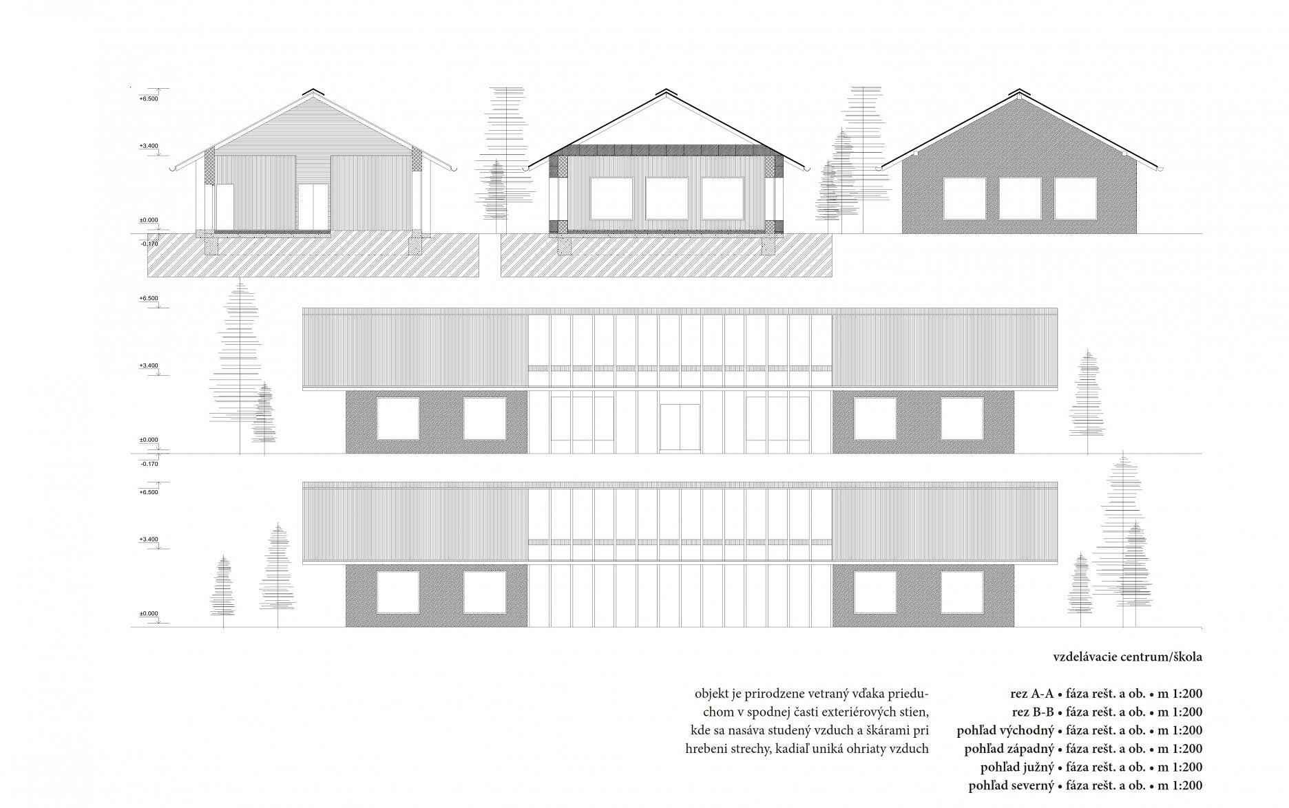
Maštaľ je koncipovaná ako jednoduchá murovaná stavba obdĺžnikového pôdorysu o rozmeroch 29,1 x 9,1 m s drevným krovom. Nakoľko bol objekt zbavený plechovej krytiny, krov je v dezolátnom stave a jeho využitie v ďalších fázach projektu nie je možné. Na fasáde sa objavujú otvory, ktoré skôr pripomínajú diery než okenné otvory. Reštart počíta pri tomto objekte s výmenou krovu. Nahradený je novým s väčšími presahmi na všetkých stranách. Objekt je transformovaný na vzdelávacie centrum vytvorením dvoch tried a zázemia. Slúži ako osvetové centrum ekologickejšieho a udržateľnejšieho života, ktorý je prezentovaný v dedine. Súčasne dokáže neskôr fungovať ako malotriedna škola, ktorá v dedine kedysi existovala.

Maštaľ - súčasný stav
Maštaľ - súčasný stav
Maštaľ - fáza reštartu a obnovy
Maštaľ - fáza reštartu a obnovy
Maštaľ - súčasný stav
Maštaľ - súčasný stav
Maštaľ - Pôdorys 1. NP - fáza reštartu a obnovy
Maštaľ - Pôdorys 1. NP - fáza reštartu a obnovy
Vzdelávacie centrum / škola - Pôdorys 1. NP - fáza reštartu a obnovy
Vzdelávacie centrum / škola - Pôdorys 1. NP - fáza reštartu a obnovy
Vzdelávacie centrum / škola - Rezy a pohľady - fáza reštartu a obnovy
Vzdelávacie centrum / škola - Rezy a pohľady - fáza reštartu a obnovy
Kaplnka - fáza reštartu a obnovy
Kaplnka - fáza reštartu a obnovy
Krajina ako súčasť architektúry
Krajina ako súčasť architektúry

“Uznesenie vlády je konečné a pre každého funkcionára a občana záväzné. Každý občan musí uznesenie rešpektovať a za jeho uskutočnenie bojovať. Akýkoľvek odpor voči uzneseniu (deputácia k súdruhovi prezidentovi Gottwaldovi, šťažnosti na MNO, atď.) je treba považovať za negatívny postoj k nášmu ľudovodemokratickému zriadeniu.”

Toto bol začiatok. Veľkej krivdy a konca niečoho, čo malo nezanedbateľnú hodnotu.
Musí to takto ostať navždy? 

 Diplomovú prácu si môžete pozrieť aj vo forme ISSUU:

Ing. arch. Marek Cehula

Súvisiace články

Vložené
7. september 2018
0
2326
Hlavný obsahHlavný obsah
Čakajte prosím