Advertorial

Pozvánka na 2. ročník stavebného veľtrhu BigMarket na Slovensku

Na podujatí sa predstaví až 37 vystavovateľov - popredných dodávateľov stavebných materiálov a inovácií s prezentáciou...

Hotel Hirschen Spa House, Rakúsko

Novotvar v prostredí alpskej obce.

Vytvorte si kúpeľňu snov: dizajnové riešenie od značky hansgrohe

Hansgrohe - prémiová značka kúpeľňových riešení, ponúka nadčasový dizajn, technickú precíznosť a udržateľné inovácie...

Okná Internorm za minuloročné ceny + hliníkový kryt zdarma!

Využite špeciálnu akciu Internorm: okná za minuloročné ceny a hliníkový kryt úplne zadarmo. Ponuka je časovo obmedzená!

Moderné plynové technológie: Efektivita a inovácie pre 21. storočie

Sumarizácia najdôležitejších inovácií, ktoré redefinujúcich využitie tohto energetického zdroja.

Utesňovanie spodných stavieb pomocou hydro-aktívnej fólie AMPHIBIA.

AMPHIBIA 3000 GRIP 1.3 od spoločnosti ATRO predstavuje modernú hydroizolačnú technológiu, ktorá spája vysokú odolnosť,...

Dekarbonizácia individuálneho vykurovania domácností – Green Deal evolučne a nie revolučne

Ambiciózne plány EK narazili na ekonomické možnosti domácností v jednotlivých členských štátoch –...

Minimalistické dvere IDEA – technická precíznosť a čistota prevedenia

IDEA DOOR od spoločnosti JAP prináša do interiéru čistý minimalistický vzhľad vďaka bezrámovému riešeniu a precíznej...

Dom s výhľadom na údolie, Dlouhý Most (ČR)

Kontinuita riešenia od vonkajšieho obkladu až po kovania a kľučky.

Schell Vitus – osvedčené riešenie pre sprchy a umývadlá vo verejnom sektore s viac ako desaťročnou tradíciou

Nástenné nadomietkové armatúry Vitus sú mimoriadne vhodné pre rýchlu a efektívnu...

Kompozitné okná predstavujú súčasnosť a budúcnosť

Okenné profily z kompozitného materiálu RAU-FIPRO X od spoločnosti Rehau sú v porovnaní s tradičnými plastovými profilmi mnohonásobne...

Myotis - stoly 2025

Najnovší sortiment stolov pre zariadenie interiérov...

Priemyselné sklenené priečky Dorsis Digero: svetelné rozhranie pre moderné interiéry

Spojenie moderného dizajnu, funkčnosti a svetla do harmonického architektonického prvku.

Význam prirodzeného svetla pre moderné a flexibilné pracovné prostredie

Kancelárska budova Baumit v slovinskom Trzine prešla premenou na moderné a udržateľné pracovisko. Architekti kládli dôraz...

Konferencia Xella Dialóg predstaví novinky a trendy v stavebníctve

Mottom šiesteho ročníku on-line konferencie odborníkov Xella Dialóg je Efektívny návrh budov 2025+: zmeny a riešenia

Čabiny - hľadanie identity - diplomová práca

Záverečná práca z Fakulty umení Technickej univerzity v Košiciach nominovaná na Cenu profesora Lacka o najlepší diplomový projekt.
Diela
Red 401.09.2018
13980+25
Čabiny - hľadanie identity - diplomová práca
Autori: Ing. arch. Anna LongauerováSpolupráca: akad. arch. Ing. Karol Gregor (Vedúci práce)Návrh: 2017 - 2018Adresa: Čabiny, SlovenskoPublikované: 1. september 2018

Čabiny sú obec v okrese Medzilaborce, ktorá je prototypom vyľudnenej a starnúcej dediny. Autorka si kladie za cieľ identifikovať historické procesy, ktoré najvýraznejšie ovplyvnili život a obraz dediny a zároveň uvažovať o budúcnosti slovenského vidieka z pohľadu profesie architekta.

Diplomovú prácu s rozsiahlou analitickou časťou sme sa rozhodli prezentovať v ucelenej podobe vo forme ISSUU, vybrané state z návrhovej časti sú následne prezentované priamo v článku.

 Dielo predstavujeme s autorským textom:

Zámerom diplomovej práce je skúmať minulosť a hľadať potenciály, ktoré môžu ovplyvniť budúcnosť slovenského vidieka. Prostredníctvom identifikácie dejov, ktoré formovali priestor vidieka a ich dopadov na obraz vidieckych sídel nasledované aplikáciou na konkrétnu situáciu obce Čabiny, prebieha hľadanie základných čŕt identity dediny. Zároveň práca predkladá pohľad na budúcnosť vidieka a hľadá preň nový zmysel, ktorý sa v súčasnosti zdá byť skrytý. V snahe zodpovedať otázku budúcnosti vidieckych sídel, práca približuje formy prístupu k špecifikám, ktoré sú pre slovenský vidiek jedinečné.

Čabiny sú obec na severovýchodnom Slovensku. Nachádzajú sa v oblasti, ktorá je, vďaka svojej polohe, na periférii záujmu investorov, úradníkov a v súčasnosti aj bežných ľudí. Exodus tu dosahuje svoj vrchol a z regiónu sa stáva “zem nikoho”. Mladí ľudia motivovaní najmä ekonomickou situáciou odchádzajú do krajského mesta, na západné Slovensko alebo do zahraničia. Tendencie opúšťania vidieka a neustáleho rastu mestských aglomerácií sú prejavom súčasného životného štýlu, ktorý je však dlhodobo neudržateľný. Osud vidieckych sídel, ktoré sú, na rozdiel od miest, prototypom udržateľnosti, je v mnohých častiach Slovenska takmer spečatený. Táto skutočnosť je zároveň aj hlavnou motiváciou pre vznik diplomovej práce. Hľadanie identity v nej predstavuje hľadanie budúcnosti pre obce, akou sú Čabiny.

Analitická časť vo forme ISSUU:

Výsledkom analýzy a hľadania východísk pre vidiek slovenských periférií (zachytené v teoretickej časti diplomovej práce) sú dve kategórie hodnôt, ktoré vidiecke prostredie kvalitatívne odlišujú od prostredia mestského, a na ktorých by mal spočívať jeho rozvoj. Prírodný a ľudský kapitál vytvára potenciál pre udržateľný život na dedine. Výsledok zároveň tvorí východisko pre úvahy o možnostiach architektúry a urbanizmu v priestore vidieka. Práve človek a jeho vzťahy vytvárajú silnú sieť, ktorá však pôsobením depopulácie i silnejúcim individualizmom, postupne chradne. Vysoké ploty a absencia verejných funkcií a priestorov v štruktúre obcí, vytvárajú nehostinné prostredie pre sociálnu interakciu obyvateľov. Vzťah obyvateľa k miestu bydliska sa stráca s ubúdajúcimi miestami, ku ktorým sa môže vzťahovať a identifikovať sa s nimi.

Zdanlivo bezvýchodiskový cyklus (ubúdanie obyvateľov → rušenie občianskej vybavenosti → ubúdanie obyvateľov) je však možné usmerniť, minimalizovať, prípadne zastaviť vhodne zvolenou stratégiou a komponovaním funkcií v priestore dediny. Poslaním projektu je nachádzať priestorové prieniky funkcií a body interakcie ľudí. Sila komunity totiž spočíva na vzťahoch, ktoré vznikajú a zanikajú v priestoroch formovaných architektúrou; zároveň na sile komunity spočíva životaschopnosť dediny ako takej.

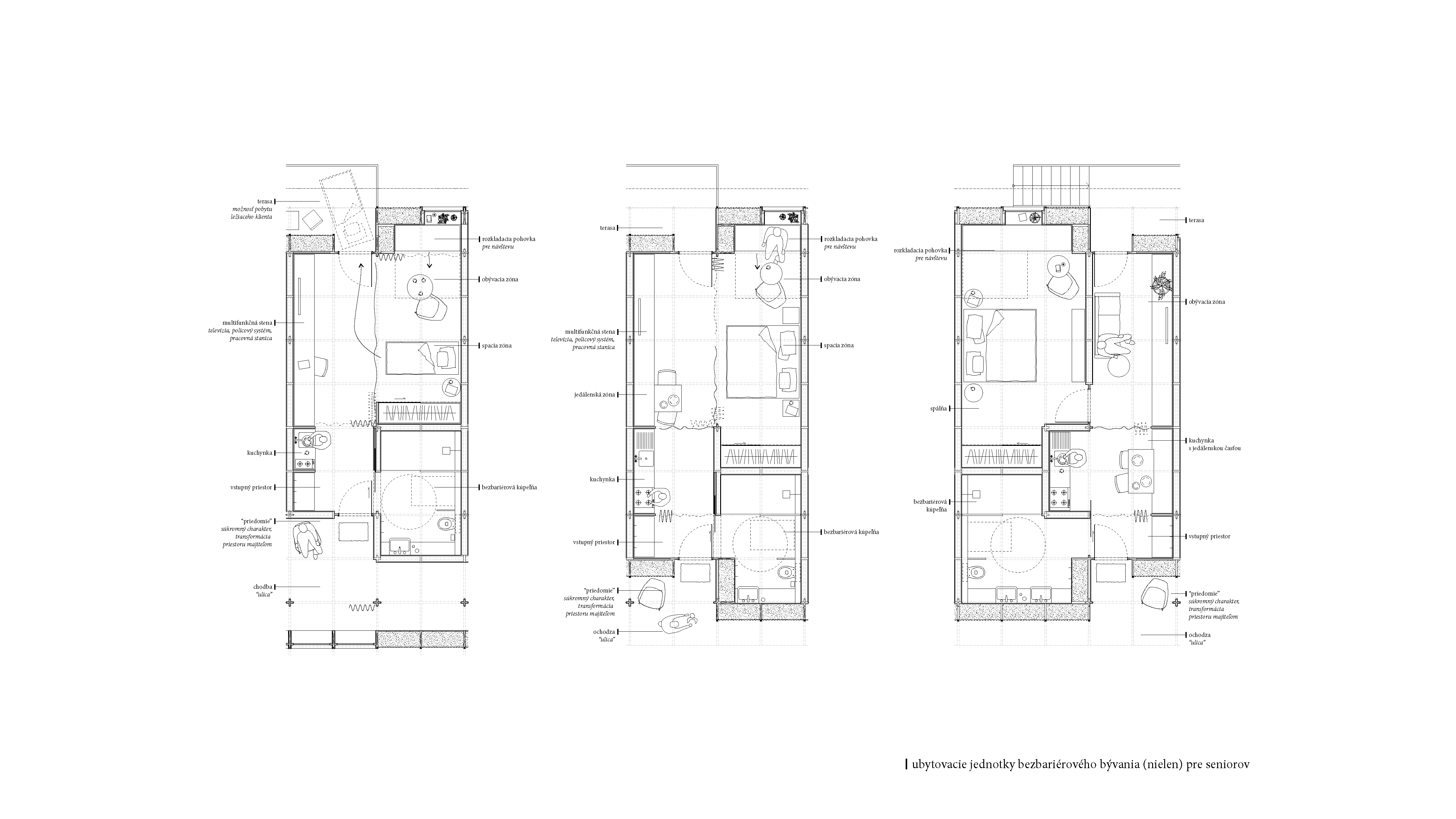
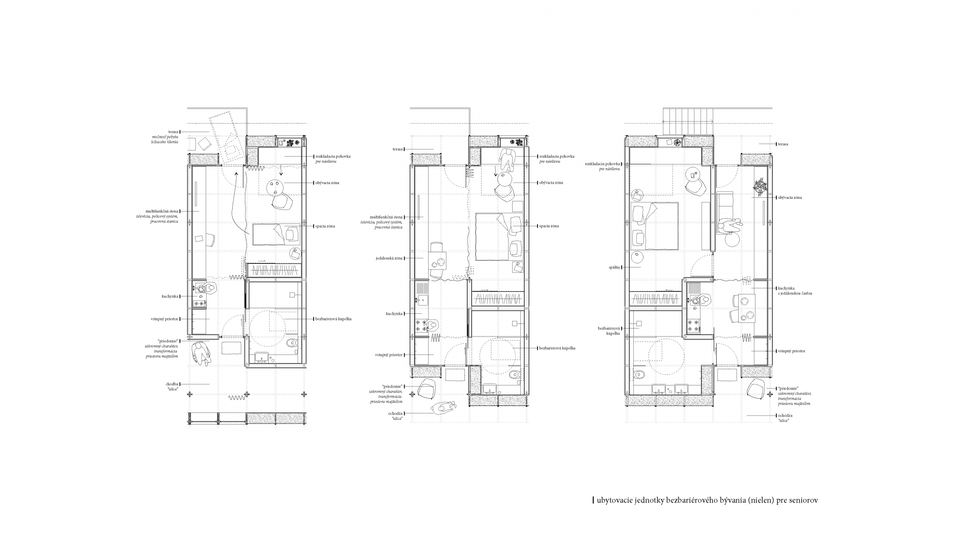
Projekt v Čabinách je založený na dvoch elementoch. Obe časti pracujú s jestvujúcim fondom objektov, ktoré adaptujú a formujú. Časť „Priedomie“ predstavuje program znovuobývania objektov, ktoré v súčasnosti spadajú do súkromného vlastníctva, no nie sú obývané. Architektonickým zásahom symbolizujúcim sociálnu funkciu priedomia, ktoré sa zo súčasnej vidieckej architektúry vytráca, a odstránením oplotenia sú v obytnej sieti dediny zvýraznené domy zapojené do projektu prenájmu starých domov. Časť „Dvor“ predstavuje dedinskú obdobu komunitného centra. Na prvý pohľad chaotická zmes funkcií pod jednou strechou tu nachádza svoje opodstatnenie z dôvodu jednoduchšej obsluhy, koncentrácie aktivít, ale najmä zaujímavého prelínania trajektórií jednotlivých zložiek komunity. 

Návrhová časť vo forme ISSUU:

PRIEDOMIE - Koncept projektu znovuobývania dediny

Program znovuobývania Čabín má za cieľ využiť obytné kapacity, ktoré sú v súčasnosti opustené a zanedbané a generovať pre obec aj pre majiteľov nehnuteľností zisk. Veľké množstvo prázdných domov sa v štruktúrach dedín vyľudňujúceho sa vidieka stáva bežnou praxou. Situácia v Čabinách nie je odlišná. Fond existujúcich no nevyužívaných objektov sa rozrastá.

Znovuobývanie Čabín predstavuje formu podnikania s prenájmom nehnuteľností v autentickom stave, tak ako ich obyvatelia opustili (obývateľné objekty), alebo v opravenom stave (v prípade, že technicky a staticky už nevyhovujú). Správca (sídli v objekte Dvor), ktorému sú domy odovzdané do správy, vystupuje ako kontaktný bod medzi majiteľom a nájomcom. Zisk z prenájmu je rozdelený medzi majiteľa a obec - komunitu. Namiesto stavby chatových oblastí, hotelov či penziónov tak dedina využíva existujúce objekty, ktoré sa vďaka nezvyčajnému konceptu môžu stať lákadlom pre turistov, školy alebo ľudí, ktorí uvažujú o živote na vidieku.

Projekt Priedomie sa pokúša architektonicky podchytiť spomínanú tému. Prostredníctvom zásahu do jestvujúcej formy domu a pozemku sa pokúšame usmerňovať správanie nájomcu aj trvalých obyvateľov. Projekt reaguje na rastúci individualizmus a ponúkaným riešením sa mu snaží predchádzať.

PRIEDOMIE - Urbanistické riešenie

Prostredníctvom skúmania historických prameňov a dejín ľudovej architektúry sa nám v teoretickej časti diplomovej práce podarilo vytvoriť obraz obce, ale aj slovenského vidieka ako takého v jednotlivých dejinných obdobiach, z ktorých si možno zobrať ponaučenie pre ďalšie smerovanie. Súčasné trendy príznačné silnejúcim individualizmom a nepochopením potenciálu vidieckej krajiny prinášajú do priestoru vidieka cudzie elementy, akými sú vysoké ploty, trávnaté záhrady bez úžitkovej funkcie a neprimerane nadimenzované obydlia. Prejavy mestského spôsobu života na dedine spôsobujú odcudzenie sa pôvodným obyvateľom. Práve vzťah „prišelca“ a „starousadlíka“ je pritom pre budovanie komunity s budúcnosťou kľúčovým.

Navrhované zásahy do opustených obydlí možno definovať ako opatrenia nabádajúce k sociálnej interakcii medzi jednotlivými obyvateľmi. Prvým krokom je odstránenie oplotenia okolo pozemkov zapojených do programu. Ide o návrat k urbanistickej štruktúre východoslovenského vidieka spred viac než sto rokov. Domy vidieckeho ľudu boli v tej dobe oplotené iba čiastočne, a to najmä v miestach, kde to bolo nevyhnutné z dôvodu chovu zvierat. Napriek tomu, že pozemok nemá vizuálne jasnú hranicu, človek považuje priestor okolo domu za majetok obyvateľa. Odstránením plota sa odstraňuje jedna z bariér, ktoré sa okolo človeka v súčasnosti nahromadili.

Projektu prepožičiava názov element vidieckej architektúry, ktorý je z pohľadu komunity a jej budovania veľmi významný - priedomie. Priedomie ako priestranstvo pred domom v uličnej línii je dôležitým prvkom vo vnímaní rozhrania interiéru a exteriéru. Priedomie opatrené lavicou malo od nepamäti sociálnu funkciu. Domáci tu posedávali so susedmi, príbuznými alebo priateľmi, najčastejšie vo sviatočné popoludnia. Starostlivosť o priedomie patrila k prestížnym prácam gazdinej alebo dievky pred vydajom. Priedomia plnili v tradičnej pospolitosti významnú komunikačnú a integračnú funkciu. Na priedomie sa postupne zabúda, socialistická výstavba na vidieku ho vylúčila zo svojho architektonického slovníka. Je preto našou snahou prinavrátiť ho k životu.

PRIEDOMIE - Architektonické riešenie

Architektonický koncept je založený na pojme „priedomie“ a jeho význame. K domom zapojeným do programu znovuobývania je priradený drobný objekt, ktorý upozorňuje na priestor pred domom, resp. ho vytvára. Táto doplnková konštrukcia je akýmsi prechodom - bránou medzi interiérom a exteriérom s pridanou hodnotou.

Priedomie funguje na báze modulov, ktoré sa dokážu prispôsobiť konkrétnej situácii a domu. Primárnou funkciou objektu je vytvorenie zastrešeného exteriérového priestoru pred vstupom do objektu, no k modulu strechy možno doplniť modul so skladom dreva (v celej obci sa dodnes kúri iba drevom) alebo modul sedenia.

Jednoduchá forma drevenej skeletovej konštrukcie je doplnená o steny z priehľadného polykarbonátu alebo drevenej preglejky. Formou a materiálom ide o odkaz na komunitný objekt Dvor, s ktorým Priedomie vytvára podmienky pre stabilitu a rast komunity, ako jednej z hlavných hodnôť vidieckeho sídla.

DVOR - Urbanistické riešenie

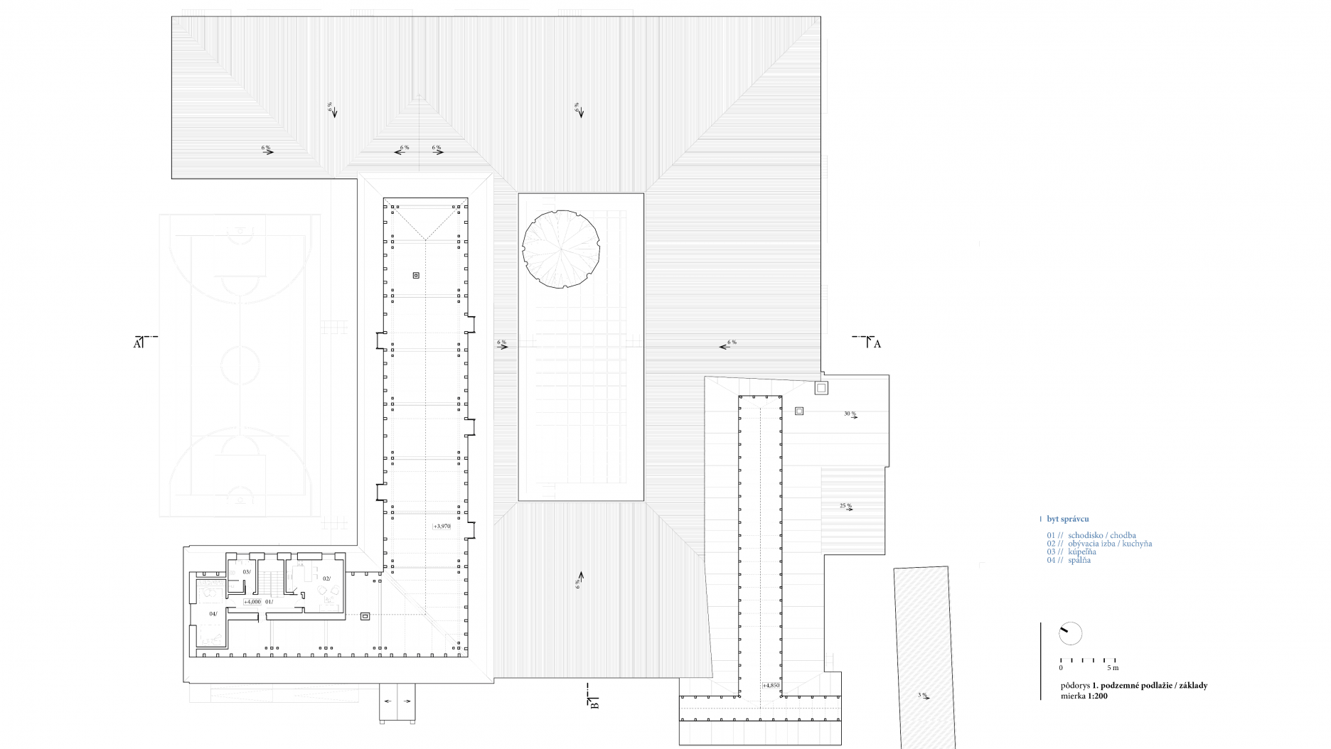
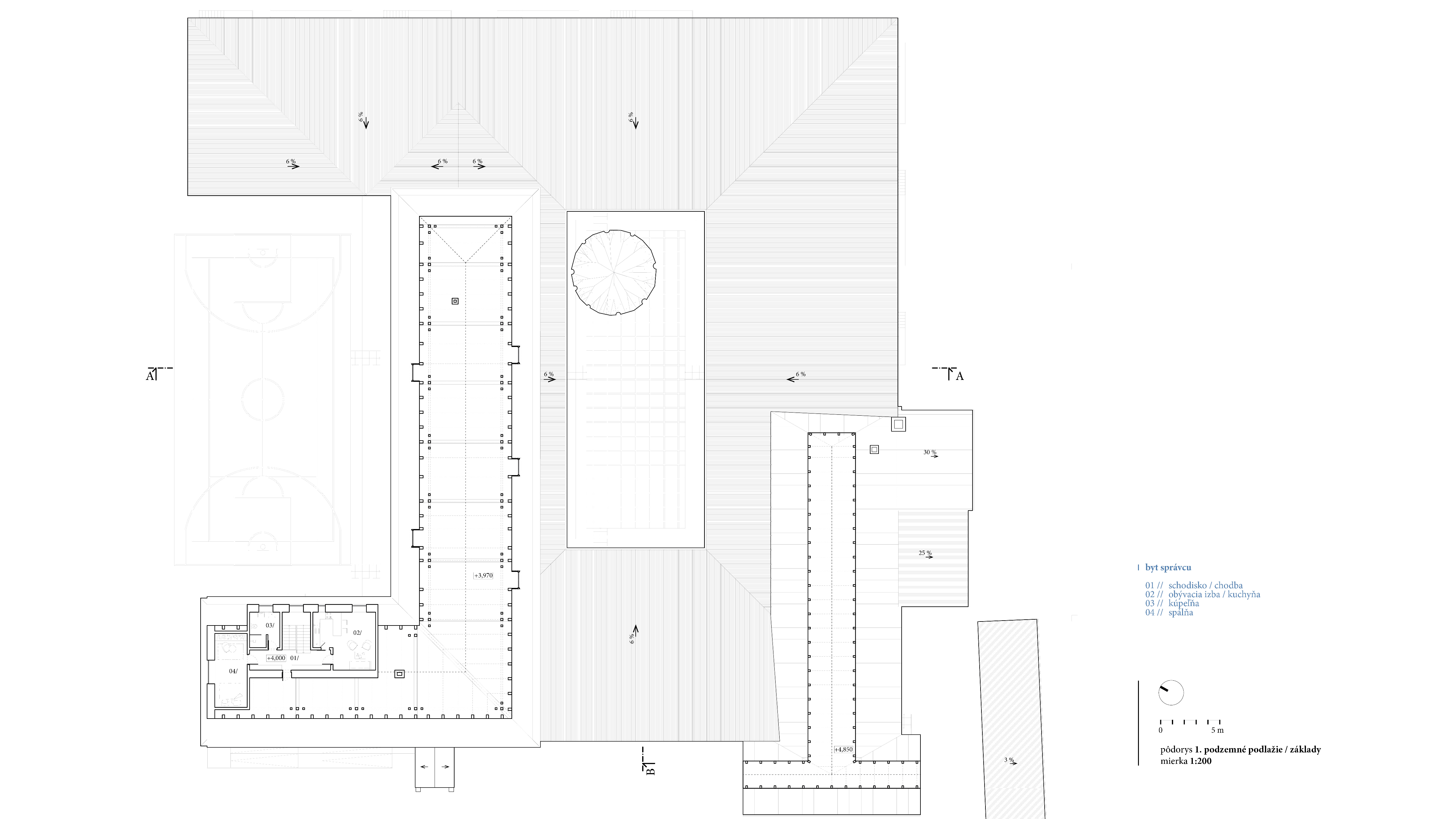
Objekt je navrhnutý v centrálnej časti Stredných Čabín ako adaptácia budovy bývalej školy a priľahlej niekdajšej pekárne z 50. rokov 20. storočia, ktoré navzájom prepája a zväzuje novostavba. Škola bola v dôsledku nedostatku detí zatvorená; podobný osud čaká aj v súčasnosti ešte fungujúcu škôlku a jedáleň. Dostavba jestvujúce objekty preväzuje a urbanisticky vytvára v štruktúre obce významný bod.

Obec Čabiny je tzv. „ulicovka“, ktorej zástavba je orientovaná pozdĺž hlavnej ulice. Schéma ulicovej obce nevytvára ideálne podmienky pre kreovanie verejných priestranstiev, aké je možné vidieť v obciach „návesných“. Napriek tomu sa navrhovaný objekt nesnaží deformovať ulicovú schému a vytvára introvertný verejný priestor svojou vlastnou hmotou. Poloha bývalej školy umožňuje vytvorenie novej mlatovej cesty na severnej strane pozemku spájajúcej hlavnú ulicu s kostolom, ktorá slúži na praktickejšie a poetickejšie prepojenie domu smútku s cintorínom popod alej stromov a vytvára tak novú trajektóriu pohybu obyvateľov, ktorú možno využíť v prospech prevádzkovej schémy objektu. Komunikácia zo zatrávňovacích tvárnic vedená po južnej hrane pozemku je primárne hospodárskeho charakteru a slúži na prepojenie ulice s obecným sadom. Zároveň sa táto poloha stáva ideálnym miestom pre parkovanie a skladovanie odpadkových nádob.

Kompozícia pôvodných a nových hmôt vytvárajúcich átrium je prístupná zo všetkých troch komunikácií, pričom portál v školskej budove si zachováva charakter primárneho vchodu do objektu.

DVOR - Architektonické riešenie

Obsahom projektu je adaptácia bývalej školy a pekárne a dostavba nového objektu s bezbariérovým bývaním a školou. Architektonické riešenie do veľkej miery zohľadňuje existujúce budovy. Vzniká areál orientovaný okolo centrálneho átria, s ktorým každý z objektov komunikuje svojským spôsobom - dvor. Hmotová kompozícia generuje dvor ako centrum aktivít, multifunkčný priestor pod holým nebom obkolesený pobytovým schodiskom a textilnou pohyblivou bariérou s možnosťou vytvárať rôznorodé priestorové konštelácie. Jednopodlažný objekt novostavby vyzdvihnutý nad zemou jemne tvarovo dopĺňa robustnejšie a formálne rôznorodejšie pôvodné budovy. Na severozápadnej strane pozemku vzniká doplnením hmoty „pol-átrium“ fungujúce ako ihrisko, ku ktorému sa zo strany bývalej školy zvažuje tribúna.

Funkčná schéma objektu je založená na protipóloch dvoch vzdialených generácií. Zatiaľ čo hmota na juhozápadnej strane átria funguje ako materská škola (neskôr možno odčleniť malotriedku), severozápadná strana obsahuje ubytovacie jednotky domova sociálnych služieb. Práve hlavný priestor bývalej školy vytvára miesto prelínania aktivít týchto skupín. Priestor zdieľaný celou komunitou formuje podnety pre interakciu. Jednoducho obsluhovaný jednou či dvoma osobami funguje ako denný stacionár pre seniorov, no zároveň zastrešuje aj knižnicu, herňu, jedáleň, kaviareň, prednáškovú miestnosť, infopoint a recepciu (pre projekt „Priedomia“). Pomerne veľká univerzálnosť je docielená voľným pôdorysom a textilnými závesmi. Priestor má priame spojenie s platóm okolo dvora a s tribúnou na severnej strane. V juhovýchodnej časti pozemku sú na ochodzu napojené bezbariérové byty, pre ľudí, ktorí požadujú väčšiu mieru samostatnosti. Objekt pekárne sa smerom do dvora otvára predajňou pečiva, zatiaľ čo priestory chránenej dielne a prípravy pečiva sú orientované do hospodárskeho dvora.

Dispozične sa areál rozvíja najmä na prvom nadzemnom podlaží; 1,35 m nad terénom. Pôvodné objekty sú čiastočne podpivničené. V podzemnom podlaží sa nachádzajú sklady a kotolňa. Podkrovie bývalej školy je zobytnené iba vo forme správcovského bytu.

Vizualizácia
Vizualizácia
Vizualizácia
Vizualizácia
Vizualizácia
Vizualizácia
Vizualizácia
Vizualizácia

Poloha diela

Ing. arch. Anna Longauerová

Súvisiace články

Vložené
28. august 2018
0
1398
Hlavný obsahHlavný obsah
Čakajte prosím