Na podujatí sa predstaví až 37 vystavovateľov - popredných dodávateľov stavebných materiálov a inovácií s prezentáciou...
Novotvar v prostredí alpskej obce.
Hansgrohe - prémiová značka kúpeľňových riešení, ponúka nadčasový dizajn, technickú precíznosť a udržateľné inovácie...
Využite špeciálnu akciu Internorm: okná za minuloročné ceny a hliníkový kryt úplne zadarmo. Ponuka je časovo obmedzená!
Sumarizácia najdôležitejších inovácií, ktoré redefinujúcich využitie tohto energetického zdroja.
AMPHIBIA 3000 GRIP 1.3 od spoločnosti ATRO predstavuje modernú hydroizolačnú technológiu, ktorá spája vysokú odolnosť,...
Ambiciózne plány EK narazili na ekonomické možnosti domácností v jednotlivých členských štátoch –...
IDEA DOOR od spoločnosti JAP prináša do interiéru čistý minimalistický vzhľad vďaka bezrámovému riešeniu a precíznej...
Kontinuita riešenia od vonkajšieho obkladu až po kovania a kľučky.
Nástenné nadomietkové armatúry Vitus sú mimoriadne vhodné pre rýchlu a efektívnu...
Okenné profily z kompozitného materiálu RAU-FIPRO X od spoločnosti Rehau sú v porovnaní s tradičnými plastovými profilmi mnohonásobne...
Najnovší sortiment stolov pre zariadenie interiérov...
Spojenie moderného dizajnu, funkčnosti a svetla do harmonického architektonického prvku.
Kancelárska budova Baumit v slovinskom Trzine prešla premenou na moderné a udržateľné pracovisko. Architekti kládli dôraz...
Mottom šiesteho ročníku on-line konferencie odborníkov Xella Dialóg je Efektívny návrh budov 2025+: zmeny a riešenia

Slovenská asociácia interiérových dizajnérov (SAID) organizuje od roku 2020 súťaž INSAID AWARDS o ceny za najlepší slovenský interiér. Do súťaže sa v druhom ročníku prihlásilo 69 interiérov v šiestich kategóriách, z 12 miest. Celková plocha prihlásených interiérov - 28 000 m2 predstavuje približne 3 futbalové ihriská.
Porota INSAID AWARDS 2021 udelila ocenenie v piatich profesionálnych kategóriách. Hodnotiaca komisia (Michal Staško, Tomáš Šebo, Zuzana Cambelová, Júlia Kunovská, Bohuš Kubinský, Peter Daniel, Sylvia Jokelová, Michaela Hantabalová) osobne obhliadla interiéry z vybraného shortlistu, aby vybrala víťaza v každej kategórii. Súčasne prebehlo verejné hlasovanie o najlepší interiér.
Kategóriu Privátny interiér vyhral Byt PC od Martina Skočeka. (viac tu)
Autori | Martin Skoček
Lucia Miklová, Alan Prekop
Foto | Matúš Bence
Bývanie "s nadhľadom".
Interiér v jednom z dvojice vežiakov Panorama Towers. Architektom sa podarilo účelne využiť netradičný pôdorys bytu, vpísaný do trojuholníkovej obálky výškovej budovy...
Kategória Pracovisko patrí interiéru Mikelssen, Realit(k)a na dva ťahy od Petra Gondu. (viac tu)
Autori | Peter Gonda
Foto | Matej Hakár
Hra so svetlom a tieňom, formovanie kontinuálneho priestoru prostredníctvom organicky plynúcich línií.
Abstrahovanú kulisu pre každodennú prácu dotvárajú precízne autorské detaily. Realizácia nesie autorský rukopis Petra Gondu, ktorý s motívmi svetlo vs. tieň a transparentnosť vs. solídna materialita pracoval aj pri scénografických projektoch...
V kategórii HoReCa zvíťazil interiér Likerka od Juraja Hubinského v spolupráci s Petrom Kuklicom a Martinom Smerekom. (viac tu)
Autori | Juraj Hubinský
Peter Kuklica
Martin Smerek
Foto | Lousy Auber
Nová náplň, nový život.
"Učesaný" vizuál, ktorý pracuje s esenciou pôvodného architektonického riešenia nahradil žltú omietku a zaslepené plastové okná. Dom sa opäť otvoril do ulice a parku. Monochromatické plochy fasád s decentnou typografiou vyniknú v spleti pútačov a výkladov, prebiehajúcej pozdĺž ulice. V tomto prípade je atraktorom vnútorná náplň, vrátane odhalenej destilačnej aparatúry, ktorá cez presklené "výklady" vstupuje do promenády. Prepojenie odbytovej a výrobnej časti likérky posilňuje zážitok aj v interiéri...
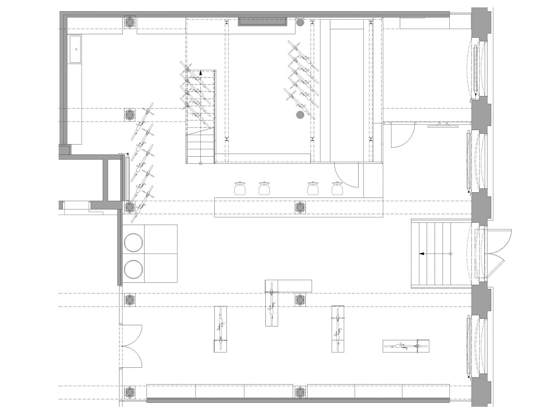
Kategória Obchod patrí Showroomu MTBIKER od autorov Ľudovíta a Silvii Vitkových z Vauarchitects. (viac tu)
Autori | Ľudovít Vitko
Silvia Vitková
Foto | Silvia Vitková
Minimalistický priestor pre cyklistický sortiment na prízemí objektu Pradiareň 1900.
Architekti Ľudovít Vitko a Silvia Vitková sa pri návrhu interiéru pre novú prevádzku zamerali na primeranosť výrazových prvkov, ktoré nechávajú vyniknúť kontext priestoru industriálnej pamiatky a precízny výber produktov predajcu...
V kategórii Občiansky interiér zvíťazilo Informačné centrum VISIT Košice od autorov Tomáša Boroša, Maroša Mitra a Ondreja Jurča z ateliéru DOXA. (viac tu)
Autori | Ing.arch. Tomáš Boroš, ArtD.
Ing.arch. Maroš Mitro
Ing.arch. Ondrej Jurčo
Juraj Sabol
Foto | Ing.arch. Maroš Mitro
Kompaktné bloky zariadenia odsadené od obvodových konštrukcií umožňujú voľne vnímať klenutý interiér starej radnice.
Architekti stavajú vizuálnu identitu návštevníckeho centra na podprahových odkazoch, ktoré nahradili výrazné farby a logotypy. Zvolené riešenie napriek tomu vytvára zapamätateľný vizuál, s potenciálom dlhodobej životnosti. Povrchy, ktoré odkazujú (nielen) na oceliarsky priemysel, sú lokálne perforované pravidelným rastrom. Ten umožňuje bez dodatočných zásahov zobrazenie ľubovoľného textu alebo grafického odkazu.
Zariadenie obsahuje všetky potrebné funkcie a prvky. Ostrovy, zvárané z oceľového plechu, efektívne využívajú priestor. Integrujú vitríny, sedenie, úložné priestory aj rozvody, čím minimalizujú zásahy do pôvodnej stavebnej podstaty...
V kategórii Študent sa porota rozhodla udeliť dve prvé ceny pre interiér Hostela v areáli baní Handlová od Simony Fischerovej (viac tu) a pre interiér Keramickej dielne a showroomu od Terézie Kováčikovej.
Verejné hlasovanie odzrkadlilo chute a vkus bežných ľudí a zvíťazilo DavajMakaj - Športovo-vzdelávacie centrum od ateliéru Maukš.
Viac na https://www.insaid.sk/.
Partnerom vyhlásenia INSAID AWARDS 2021 bola spoločnosť KRONOSPAN .