Advertorial

Pozvánka na 2. ročník stavebného veľtrhu BigMarket na Slovensku

Na podujatí sa predstaví až 37 vystavovateľov - popredných dodávateľov stavebných materiálov a inovácií s prezentáciou...

Hotel Hirschen Spa House, Rakúsko

Novotvar v prostredí alpskej obce.

Vytvorte si kúpeľňu snov: dizajnové riešenie od značky hansgrohe

Hansgrohe - prémiová značka kúpeľňových riešení, ponúka nadčasový dizajn, technickú precíznosť a udržateľné inovácie...

Okná Internorm za minuloročné ceny + hliníkový kryt zdarma!

Využite špeciálnu akciu Internorm: okná za minuloročné ceny a hliníkový kryt úplne zadarmo. Ponuka je časovo obmedzená!

Moderné plynové technológie: Efektivita a inovácie pre 21. storočie

Sumarizácia najdôležitejších inovácií, ktoré redefinujúcich využitie tohto energetického zdroja.

Utesňovanie spodných stavieb pomocou hydro-aktívnej fólie AMPHIBIA.

AMPHIBIA 3000 GRIP 1.3 od spoločnosti ATRO predstavuje modernú hydroizolačnú technológiu, ktorá spája vysokú odolnosť,...

Dekarbonizácia individuálneho vykurovania domácností – Green Deal evolučne a nie revolučne

Ambiciózne plány EK narazili na ekonomické možnosti domácností v jednotlivých členských štátoch –...

Minimalistické dvere IDEA – technická precíznosť a čistota prevedenia

IDEA DOOR od spoločnosti JAP prináša do interiéru čistý minimalistický vzhľad vďaka bezrámovému riešeniu a precíznej...

Dom s výhľadom na údolie, Dlouhý Most (ČR)

Kontinuita riešenia od vonkajšieho obkladu až po kovania a kľučky.

Schell Vitus – osvedčené riešenie pre sprchy a umývadlá vo verejnom sektore s viac ako desaťročnou tradíciou

Nástenné nadomietkové armatúry Vitus sú mimoriadne vhodné pre rýchlu a efektívnu...

Kompozitné okná predstavujú súčasnosť a budúcnosť

Okenné profily z kompozitného materiálu RAU-FIPRO X od spoločnosti Rehau sú v porovnaní s tradičnými plastovými profilmi mnohonásobne...

Myotis - stoly 2025

Najnovší sortiment stolov pre zariadenie interiérov...

Priemyselné sklenené priečky Dorsis Digero: svetelné rozhranie pre moderné interiéry

Spojenie moderného dizajnu, funkčnosti a svetla do harmonického architektonického prvku.

Význam prirodzeného svetla pre moderné a flexibilné pracovné prostredie

Kancelárska budova Baumit v slovinskom Trzine prešla premenou na moderné a udržateľné pracovisko. Architekti kládli dôraz...

Konferencia Xella Dialóg predstaví novinky a trendy v stavebníctve

Mottom šiesteho ročníku on-line konferencie odborníkov Xella Dialóg je Efektívny návrh budov 2025+: zmeny a riešenia

Nádvorie Trnava, Štefánikova ulica

Nový kultúrny priestor v centre Trnavy.
Diela
Red 412.07.2018
125240+107
Nádvorie Trnava, Štefánikova ulica
Autori: Ing. arch. Matúš Vallo, Ing. arch. Oliver Sadovský, Mgr. art. Marián Stanislav, Ing. arch. Viliam Zajíček, Ing. arch. Mateja Vonkomerová, Ing. arch. Marcel Vadík, Ing. arch. Zuzana Krejčířová, Ing. arch. Elena ŠoltésováInvestor: Trnka InvestmentsPlocha pozemku: 2603 m2Zastavaná plocha: 1030 m2Podlažná plocha: 3393 m2Investičný náklad: 15,0 mil. €Návrh: 2013 - 2018Realizácia: 2013 - 2018Adresa: Štefánikova 3-4, Trnava, SlovenskoPublikované: 12. júl 2018

Zaujímavý investičný zámer vznikol spojením parciel historických meštianskych domov a ich nádvorí do jedného prepojeného komplexu. Mnohotvárny a rozsiahly projekt v komplikovaných podmienkach jadrovej časti mesta. Rôznorodá stavebná štruktúra, zložité priestorové vzťahy, zlý technický stav mnohých pôvodných objektov, odvážna vízia… Východiská neboli jednoduché.

Zdá sa, že sa podarilo v príhodnom čase dať dokopy ľudí s otvorenou hlavou. Správny mix nadšenia, odvahy a schopností pomohol vytvoriť a dotiahnuť do konca na Slovensku zriedkavú vec. Komplexnú revitalizáciu ucelenej historickej časti mesta. Zachovala sa pestrosť aj rôznorodosť typická pre rastlé historické jadrá. Výsledkom je integrácia nového aj starého, dnešného aj minulého do jedného celistvého riešenia. Uplatnili sa viaceré postupy. Od pamiatkovej rekonštrukcie po novú autonómnu autorskú výpoveď. Boli použité všetky tri princípy práce v historickom prostredí - rekonštrukcia, replika i novostavba. Vždy so snahou o vyrovnaný dialóg všetkých prvkov. Bez mechanického “pamiatkárskeho” prístupu, avšak s rešpektovaním “nesporných pamiatkových a historických hodnôt”.

Je to zaujímavý precedens, ukazujúci prístup, ktorý sa nezaoberá prednostne jednotlivosťami, ale hľadá skôr podobu miestu primeranej urbánnej štruktúry. Práca s priestorom v meste, kde vo vzájomnej rovnováhe koexistujú rôzne tvorivé postupy. Ochranárske aj sebavedomé architektonické, analytické aj tvorivé...  Snahou bolo vytvoriť vyvážený a funkčný celok, atraktívny pre ľudí, životaschopný a v neposlednom rade aj dlhodobo udržateľný.

Je zrejmé, že iniciátorom podobnej investície môže byť iba osvietený investor. Nemôže ísť primárne iba o zisk. Ten je zatiaľ v nedohľadne (aj keď investičná a prevádzková primeranosť sú pre celkovú udržateľnosť projektu určite dôležité). Preto si treba vážiť osobné nasadenie Rodiny Trnkovcov, bez ktorých by dielo nevzniklo.

Takisto, ako vždy, rozhodujúcim faktorom kvality diela sú autori, v hlavách ktorých sa zrodilo to, čo dnes môžeme vidieť buď priamo v Trnave, alebo sprostredkovane v nasledujúcom článku.

Situácia pomáhajúca zorientovať sa v relatíne zložitých priestorových vzťahoch
Situácia pomáhajúca zorientovať sa v relatíne zložitých priestorových vzťahochAutor: Nádvorie Trnava

Pred dvoma rokmi sme predstavili dokončenú prvú etapu rekonštrukcie objektu a priľahlých priestorov na Trojičnom námestí č. 5. Návštevníkov víta kaviareň, ktorej súčasťou je pasáž pod holým nebom. Na prízemí vznikli nové administratívne priestory, na poschodí byty. Už počas realizácie sa však podarilo investorovi kúpiť priľahlé budovy na susednej Štefánikovej ulici. Projekt teda logicky pokračoval a nadviazal na predchádzajúce etapy rekonštrukcie. Dnes predstavujeme ústredný priestor a komplex objektov prístupný z Štefánikovej ulice - "Nádvorie Trnava". Jeho súčasťou sú tri národné kultúrne pamiatky - pôvodne meštianske domy s prejazdom, ktoré ohraničujú rozľahlý vnútorný dvor.

Snahou investora aj architektov bolo vytvoriť “mikrosvet” pre komunitu nadaných mladých ľudí. Historická mestská štruktúra dostáva, aktuálnu, zmysluplnú a zdá sa že aj udržateľnú náplň. “Mesto Trnava je častokrát označované za malý slovenský Rím, či Atény Uhorska. Bolo odjakživa považované za centrum inteligencie. Tento všadeprítomný genius loci sme sa snažili premietnuť do návrhu,” približujú autori.

Foto: BoysPlayNice
Foto: BoysPlayNice

Susediace objekty v kompaktnej uličnej zástavbe boli pôvodne postavené ako prejazdové poschodové domy. “V objektoch sme sa snažili odprezentovať všetky dôležité časové stopy prestavieb, pričom sme dbali na jednotný materiálový jazyk dodržujúc zásady pamiatkovej ochrany,” objasňujú prístup pri projektovaní architekti z ateliéru Vallo Sadovsky. História objektov na Štefánikovej ulici siaha až do 14. storočia. Pamiatkový prieskum odhalil gotický základ objektov, neskoršie renesančné a barokové stavebné úpravy, či nadstavby z 30. rokov minulého storočia. Architekti sa museli vysporiadať aj s prístavbami z nedávnej minulosti (hlavne zo strany dvora). Výsledné architektonické riešenie dynamicky pracuje s prelínaním historických vrstiev. Nádvorie sa zbavuje nedávnych “vylepšení”, ktoré sú nahradené novou pridanou hodnotou.

Vnútroblok smerom od Pekárskej ulice ohraničujú nové tehlové “domčeky” s ubytovaním pre študentov. Dostavba rešpektuje hmotu pôvodného krídla, ľahká oceľová konštrukcia s napojením na východný objekt areálu sprístupňuje izby a slúži aj ako letná terasa. Objekty sústreďujú viacero funkcií poloverejného i privátneho charakteru, pričom sú na úrovni podkrovia vzájomne prepojené.

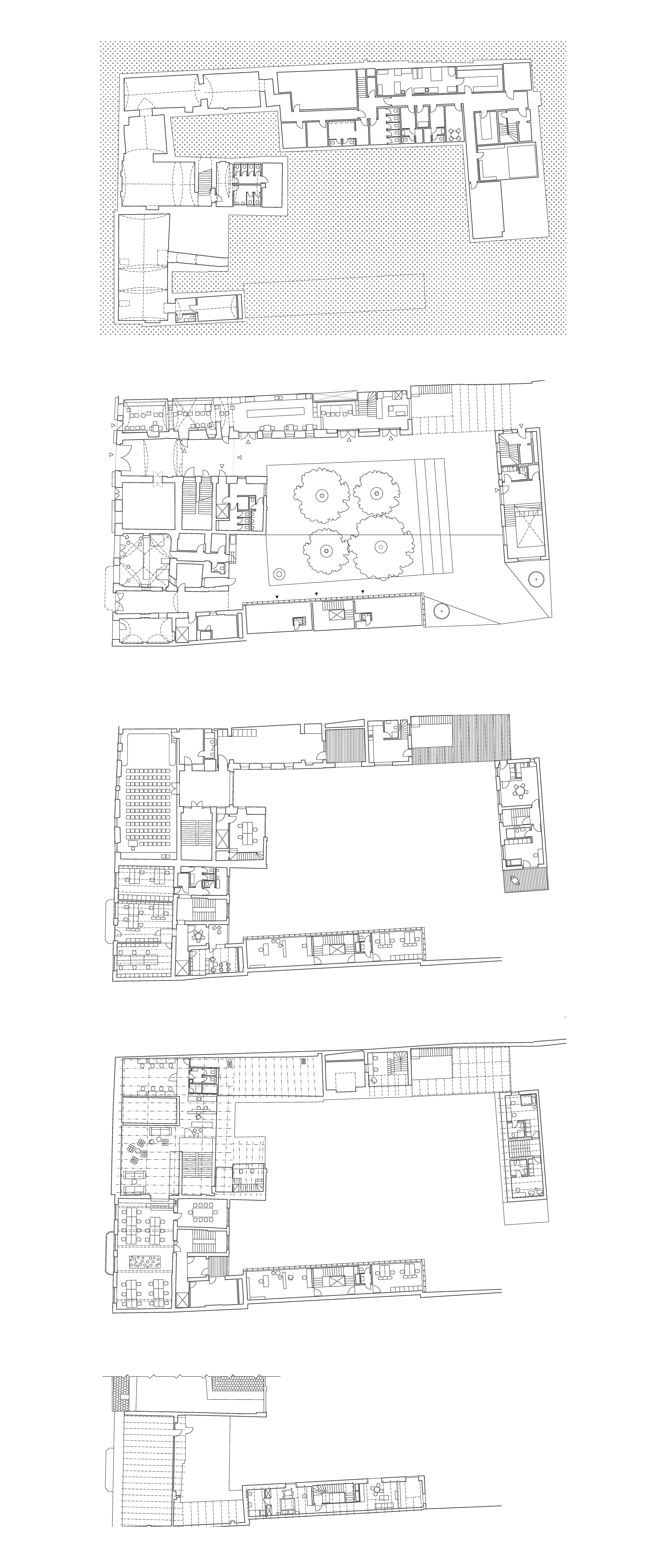
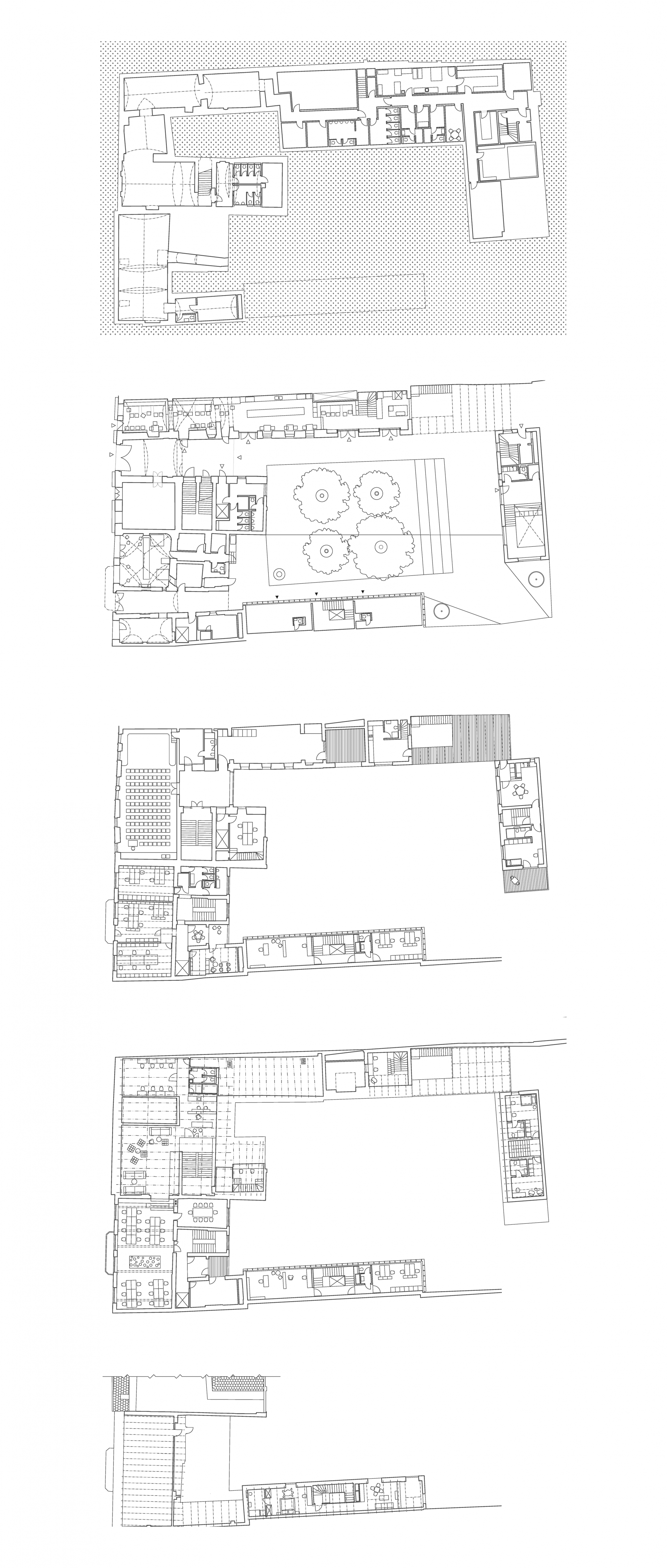
Pôdorysy 1. PP - 4. NP
Pôdorysy 1. PP - 4. NPAutor: Vallo Sadovsky Architects
Rezopohľad objektu na Štefánikovej ulici č. 4
Rezopohľad objektu na Štefánikovej ulici č. 4Autor: Vallo Sadovsky Architects
Pôdorys a axonometria Nádvoria
Pôdorys a axonometria NádvoriaAutor: Vallo Sadovsky Architects
Foto: BoysPlayNice
Foto: BoysPlayNice
Foto: BoysPlayNice
Foto: BoysPlayNice
Foto: BoysPlayNice
Foto: BoysPlayNice
Foto: BoysPlayNice

Priestory v podkroví "priečelného" krídla oboch domov sú prepojené. Objekt na Štefánikovej ulici č.3 bol nadstavaný o tretie podlažie až v 30. rokoch minulého storočia. Počas spomínaných stavebných prác bol pôvodný barokový krov rozobratý a osadený o poschodie vyššie. Staré drevené trámy architekti v interiéri hrdo prezentujú. Funkčná náplň v podobe otvoreného coworkingového priestoru necháva vyniknúť pôvodnú stavebnú "esenciu".

Foto: BoysPlayNice
Foto: BoysPlayNice
Foto: BoysPlayNice
Foto: BoysPlayNice

V dome na Štefánikovej ulici č.4 sa nachádza kultúrne centrum Malý Berlín. Funkčná náplň objektu nadväzuje na staršie časy, keď sa tu nachádzala tančiareň, či telocvičňa. "Veľká sála" hostí pravidelne hudobné vystúpenia a premietania. Pokračovaním kultúrneho priestoru je malá sála orientovaná do nádvoria. V dome sídli tiež administratíva organizácie.

Foto: BoysPlayNice
Foto: BoysPlayNice
Foto: BoysPlayNice
Foto: BoysPlayNice

Dominantným prvkom v interiéri pekárne Chlieb Náš je zreštaurovaná štuková klenba z roku 1640. 

Foto: BoysPlayNice
Foto: BoysPlayNice
Foto: BoysPlayNice

Rozmerná pasáž (v minulosti prejazd) je "vstupnou bránou" do priestorov situovaných na prízemí.

Foto: BoysPlayNice
Foto: BoysPlayNice
Foto: BoysPlayNice

V súčastnosti sa dokončuje aj realizácia traktu vinárskych pivníc, ktoré budú slúžiť ako eventový a zábavný priestor.

Foto: BoysPlayNice
Foto: BoysPlayNice

Moderná reštaurácia Akadémia (jej súčasťou je aj malá pekáreň Chlieb Náš) “prebieha” cez tri priestory s rôznou atmosférou. Všetky miestnosti sú však “prepojené” hnedou betónovou podlahou, jednotným typom osvetlenia, dubovým nábytkom a čiernymi stoličkami. Najstarším a najhodnotnejším je priestor s gotickými klenbami, kde sa po rekonštrukcii nachádzajú len stoly s lavicami a stoličkami. Stredná časť má výrazný barokový trámový strop, pod ktorým sa nachádza masívny, keramický barový pult, ktorý je jadrom Akadémie. Najnovšou časťou je priestor, ktorý bol pristavený k objektu počas rekonštrukcie a slúži ako “show kuchyňa” a má priznaný betónový strop.

Foto: BoysPlayNice
Foto: BoysPlayNice
Foto: BoysPlayNice
Foto: BoysPlayNice
Foto: BoysPlayNice
Foto: BoysPlayNice
Foto: BoysPlayNice
Foto: BoysPlayNice
Foto: BoysPlayNice

Súčasťou nádvoria je aj nová polyfunkčná budova. Objekt navrhnutý ako rozšírenie domu na Štefánikovej ulici č.3, je postavený k slepej stene susedného objektu s cieľom “aktivovať” novovzniknuté nádvorie. Nachádza sa na mieste zbúraného múru. “Špecifikom je 4,5 metra široký pôdorys a prevažne jednostranná orientácia (smerom do nádvoria). Výškovo sa drží pôvodnej časti. Objekt je materiálovo horizontálne členený a vytvára tak plynulý nárast mierky od domu na Trojičnom námestí. Kontrastné tvaroslovie fasády je zmiernené pravidelným rytmom a použitými materiálmi. V rámci okolitej štruktúry sa tak zachováva prirodzený ráz vnútromestskej rozdrobenosti,”  vysvetľujú architekti.  Jednoduchá dispozícia je členená vertikálne na prenajímateľné priestory, administratívu a podkrovný apartmán. Flexibilná dispozícia je však schopná reagovať na zmenu funkcie. Prenajímateľné celky sú orientované a vďaka rozsiahlemu preskleniu otvorené do nádvoria. Apartmán na najvyššom podlaží má vlastnú terasu a výhľadom na mesto.

Foto: BoysPlayNice
Foto: BoysPlayNice
Foto: BoysPlayNice
Foto: BoysPlayNice
Foto: BoysPlayNice
Foto: BoysPlayNice
Foto: BoysPlayNice
Foto: BoysPlayNice

Archeologické nálezy sú prezentované prízemnej výstavnej sieni. Artefakty sú prezentované v "strohom" galerijnom prostredí.

Foto: BoysPlayNice
Foto: BoysPlayNice

Architektonické stvárnenie parteru orientovaného do Štefánikovej ulice odkazuje na riešenie výkladov zo začiatku minulého storočia. Pôvodný podjazd slúži ako vstupná brána do kultúrneho priestoru nádvoria.

Foto: BoysPlayNice
Foto: BoysPlayNice
Foto: BoysPlayNice
Foto: BoysPlayNice
Foto: BoysPlayNice

Nové objekty, ktorý ohraničujú zástavbu smerom od Pekárskej ulice zastrešujú ubytovanie pre študentov. "Byty" bude pridelovať v rámci štipendia nadácia Nádvorie. Dve mezonetové bytové jednotky majú kapacitu osem študentov.

Foto: BoysPlayNice
Foto: BoysPlayNice
Foto: BoysPlayNice
Foto: BoysPlayNice
Foto: BoysPlayNice
Foto: BoysPlayNice
Foto: BoysPlayNice
Foto: BoysPlayNice

Okrem rozsiahlej funkčnej náplne sústredenej v zrekonštruovaných a nových objektoch je pre projekt kľúčové práve samotné nádvorie. Hlavne v letných mesiacoch to pod holým nebom "žije".

Podklady: Vallo Sadovsky Architects

Poloha diela

Ing. arch. Matúš Vallo
Ing. arch. Oliver Sadovský
Mgr. art. Marián Stanislav
Ing. arch. Viliam Zajíček
Ing. arch. Mateja Vonkomerová
Ing. arch. Marcel Vadík
Ing. arch. Zuzana Krejčířová
Ing. arch. Elena Šoltésová

Súvisiace články

Vložené
7. jún 2018
0
12524
Hlavný obsahHlavný obsah
Čakajte prosím