Európska značka okien oslavuje jubileum: za 95 rokov sa vyvinula na najväčšiu medzinárodne pôsobiacu okennú značku a inovačného...
Na podujatí sa predstaví až 37 vystavovateľov - popredných dodávateľov stavebných materiálov a inovácií s prezentáciou...
Novotvar v prostredí alpskej obce.
Hansgrohe - prémiová značka kúpeľňových riešení, ponúka nadčasový dizajn, technickú precíznosť a udržateľné inovácie...
Využite špeciálnu akciu Internorm: okná za minuloročné ceny a hliníkový kryt úplne zadarmo. Ponuka je časovo obmedzená!
Sumarizácia najdôležitejších inovácií, ktoré redefinujúcich využitie tohto energetického zdroja.
AMPHIBIA 3000 GRIP 1.3 od spoločnosti ATRO predstavuje modernú hydroizolačnú technológiu, ktorá spája vysokú odolnosť,...
Ambiciózne plány EK narazili na ekonomické možnosti domácností v jednotlivých členských štátoch –...
IDEA DOOR od spoločnosti JAP prináša do interiéru čistý minimalistický vzhľad vďaka bezrámovému riešeniu a precíznej...
Kontinuita riešenia od vonkajšieho obkladu až po kovania a kľučky.
Nástenné nadomietkové armatúry Vitus sú mimoriadne vhodné pre rýchlu a efektívnu...
Okenné profily z kompozitného materiálu RAU-FIPRO X od spoločnosti Rehau sú v porovnaní s tradičnými plastovými profilmi mnohonásobne...
Najnovší sortiment stolov pre zariadenie interiérov...
Spojenie moderného dizajnu, funkčnosti a svetla do harmonického architektonického prvku.
Kancelárska budova Baumit v slovinskom Trzine prešla premenou na moderné a udržateľné pracovisko. Architekti kládli dôraz...

Súčasťou komplexu Židovskej obce je kóšer reštaurácia, múzeum židovskej kultúry, židovské komunitné centrum s administratívou obce a spoločenskou sálou, obchod s kóšer potravinami, rituálny kúpeľ mikve, nová modlitebňa a záhrada. Blok je rozdelený na tri objekty, vzájomne prepojené pomocou kolonády a polo-súkromného nádvoria otvárajúceho sa do priľahlého verejného námestia, súčasne však chráneného od ruchu hlavnej triedy.
Základom návrhu bola snaha o obnovenie dialógu medzi súkromným a verejným (otázka otvorenosti vs. uzatvorenosti židovskej komunity voči verejnosti). A taktiež vzájomné prepojenie jednotlivých funkcií a vytvorenie uzatvoreného funkčného celku pre potreby Židovskej obce, ktorý sa však zároveň otvára a komunikuje s verejnosťou a napomáha tak zvyšovať povedomie o židovskej kultúre.
Výsledkom je ponúknutie nového konceptu a perspektívy pre Židovskú obec v podobe prelínania priestorov od súkromného (synagóga s malou záhradou), cez polo-súkromný (nádvorie), až po verejný (námestie s parkom) a tri vďaka týmto priestorom komunikujúce objekty.
Navrhované objekty sú vzájomne prepojené pomocou kolonády a nádvoria otvárajúceho sa do priľahlého verejného námestia, súčasne však chráneného od ruchu hlavnej triedy.
Kolonáda oddeľuje nádvorie od námestia presklenou stenou, súčasne však zachováva vizuálny kontakt medzi nimi. Zároveň umožňuje návštevníkom komplexu prechod "suchou nohou" medzi jednotlivými objektami.
Nádvorie Židovskej obce môže slúžiť súkromným podujatiam, môže sa však príležitostne otvoriť verejnosti smerom do námestia alebo slúžiť ako letná záhrada kóšer reštaurácie (umiestnenej v prízemí múzea).
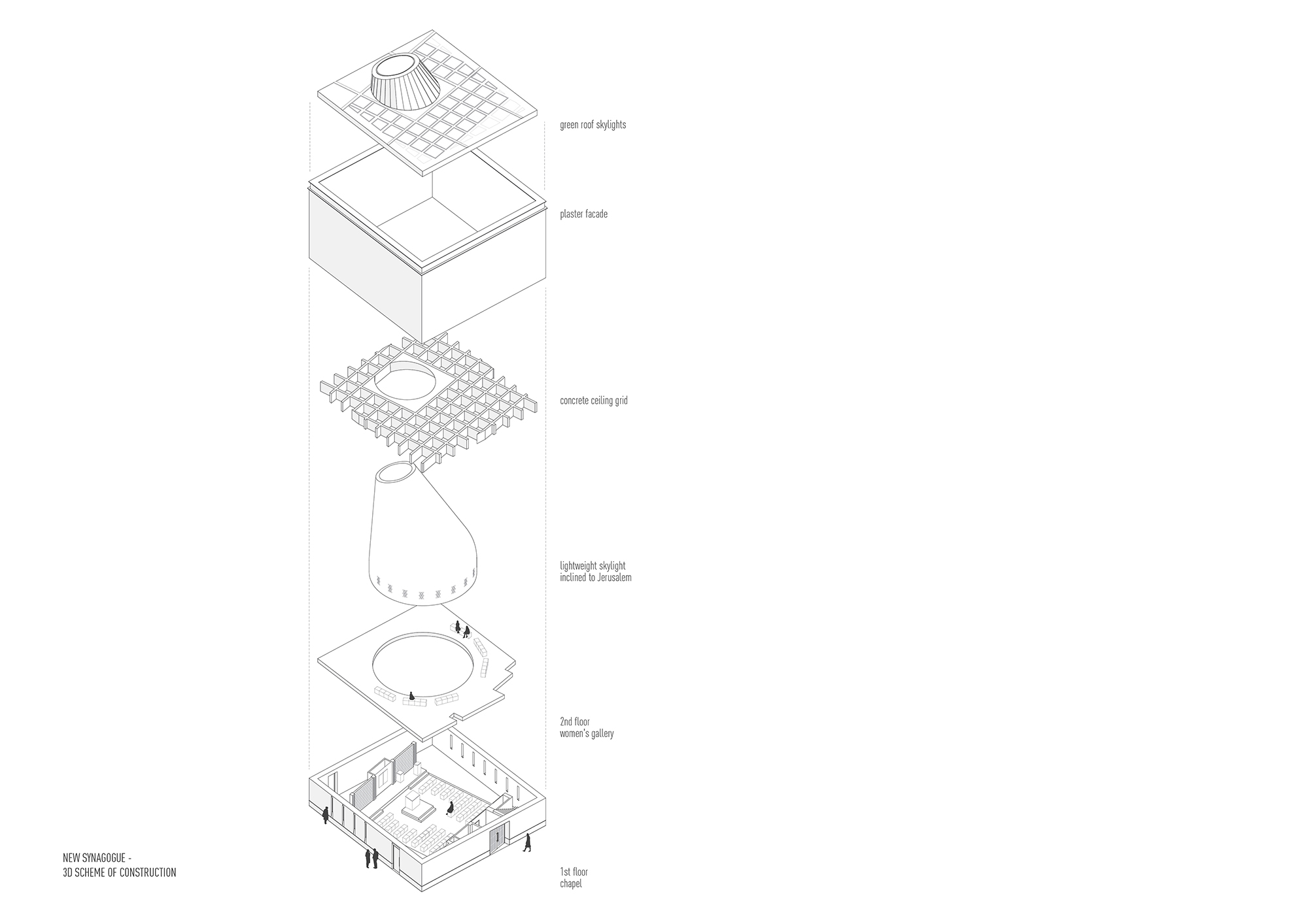
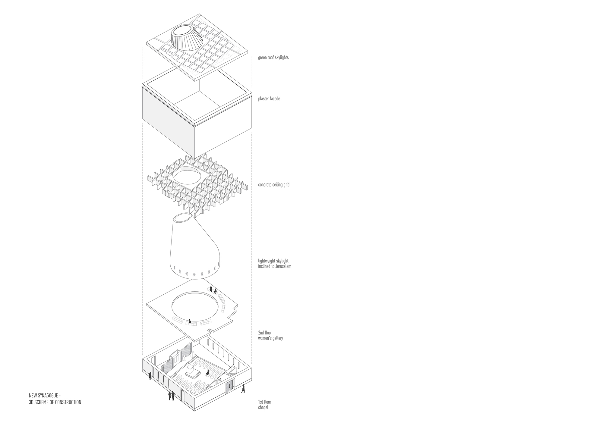
Nová synagóga je dvojpodlažný objekt jednoduchého tvaru. Jej interiér pretína kužeľový svetlík nakláňajúci sa na východ a osvetľujúci priestory modlitebne slnečnými lúčmi smerujúci po osi z Jeruzalemu. Svetlík sa v interiéri postupne smerom k bime (rečnisku) rozširuje a svetlo sa tak rozlieva do priestoru modlitebne nad veriacimi (stelesňujúc myšlienku „Božstvo je všade okolo nás“). Orientácia stavby vychádza z návrhu pôvodnej Olomouckej synagógy. Samotná modlitebňa je však pootočená a rešpektuje tradičnú orientáciu modliacich sa smerom k Jeruzalemu vďaku konceptu „priestor v priestore“. Hmota svetlíku je čiastočne viditeľná z exteriéru a svojim tvaroslovím umožňuje okoloidúcim objekt identifikovať ako stavbu sakrálneho účelu.
Malá spomienková záhrada za synagógou vytvára spojenie medzi synagógou a edukatívnymi miestnosťami v prízemí komunitného centra a poskytuje priestor pre súkromné aktivity obce a štúdium, ktoré hrá v židovskej kultúre od nepamäti veľmi dôležitú úlohu. Záhrada obsahuje tvar kruhu, ktorý symbolizuje priemet kupoly ako spomienka na vypálenú synagógu, ktorá kedysi stávala na tomto mieste.
Portfólio autorky nájdete na tomto odkaze.