Advertorial

Okná Internorm za minuloročné ceny + hliníkový kryt zdarma!

Využite špeciálnu akciu Internorm: okná za minuloročné ceny a hliníkový kryt úplne zadarmo. Ponuka je časovo obmedzená!

Pozvánka na 2. ročník stavebného veľtrhu BigMarket na Slovensku

Na podujatí sa predstaví až 37 vystavovateľov - popredných dodávateľov stavebných materiálov a inovácií s prezentáciou...

Moderné plynové technológie: Efektivita a inovácie pre 21. storočie

Sumarizácia najdôležitejších inovácií, ktoré redefinujúcich využitie tohto energetického zdroja.

Utesňovanie spodných stavieb pomocou hydro-aktívnej fólie AMPHIBIA.

AMPHIBIA 3000 GRIP 1.3 od spoločnosti ATRO predstavuje modernú hydroizolačnú technológiu, ktorá spája vysokú odolnosť,...

Dekarbonizácia individuálneho vykurovania domácností – Green Deal evolučne a nie revolučne

Ambiciózne plány EK narazili na ekonomické možnosti domácností v jednotlivých členských štátoch –...

Minimalistické dvere IDEA – technická precíznosť a čistota prevedenia

IDEA DOOR od spoločnosti JAP prináša do interiéru čistý minimalistický vzhľad vďaka bezrámovému riešeniu a precíznej...

Dom s výhľadom na údolie, Dlouhý Most (ČR)

Kontinuita riešenia od vonkajšieho obkladu až po kovania a kľučky.

Schell Vitus – osvedčené riešenie pre sprchy a umývadlá vo verejnom sektore s viac ako desaťročnou tradíciou

Nástenné nadomietkové armatúry Vitus sú mimoriadne vhodné pre rýchlu a efektívnu...

Kompozitné okná predstavujú súčasnosť a budúcnosť

Okenné profily z kompozitného materiálu RAU-FIPRO X od spoločnosti Rehau sú v porovnaní s tradičnými plastovými profilmi mnohonásobne...

Myotis - stoly 2025

Najnovší sortiment stolov pre zariadenie interiérov...

Priemyselné sklenené priečky Dorsis Digero: svetelné rozhranie pre moderné interiéry

Spojenie moderného dizajnu, funkčnosti a svetla do harmonického architektonického prvku.

Význam prirodzeného svetla pre moderné a flexibilné pracovné prostredie

Kancelárska budova Baumit v slovinskom Trzine prešla premenou na moderné a udržateľné pracovisko. Architekti kládli dôraz...

Konferencia Xella Dialóg predstaví novinky a trendy v stavebníctve

Mottom šiesteho ročníku on-line konferencie odborníkov Xella Dialóg je Efektívny návrh budov 2025+: zmeny a riešenia

Murovací robot WLTR stavia svoj prvý dom na Slovensku

Robot WLTR predstavuje moderný prístup k murovaným konštrukciám. Vďaka automatizácii dokáže rýchlo, presne a bezpečne realizovať...

Nová éra bezpečnosti s I-tec Secure od Internorm

Okrem bezpečnosti majú okná aj elegantný vzhľad, pretože nie sú viditeľné žiadne uzamykacie časti kovania.

Lantern house - diplomová práca

Diplomová práca z Katedry architektonickej tvorby VŠVÚ navrhnutá na Cenu profesora Lacka.
Diela
Red 326.10.2016
8140+6
Lantern house - diplomová práca
Autori: Mgr. art. Júlia PočatkováSpolupráca: Prof. Ing. arch. Robert Votický, Dip. Arch (vedúci diplomovej práce)Návrh: 2015 - 2016Adresa: Hviezdoslavovo nám 18, Bratislava, SlovenskoPublikované: 26. október 2016

Projekt Lantern house vznikol na podklade poznatkov nadobudnutých počas pracovnej stáže v Stuttgarte, Nemecku. Tu začal môj záujem o dizajn pomocou svetla, nakoľko som bola okrem iného súčasťou tímu dizajnérov pre fasády, pre vedecko technologický kampus v meste Riyadh v Sudskej Arábii. Tak isto som bola prítomná pri workshope LAVA AXON Kinetic ceiling/Kinetic structure, ktorá ma priviedla k záujmu o digitálnu prefabrikáciu s využitím v kinetických štruktúrach. S poznatkami a nadobudnutou inšpiráciou som sa po ukončení stáže pustila do diplomovej práce, ktorej hlavný obsah mal byť vystavený na dizajne pomocou prirodzeného svetla s prvkami kinetizmu či adaptability.

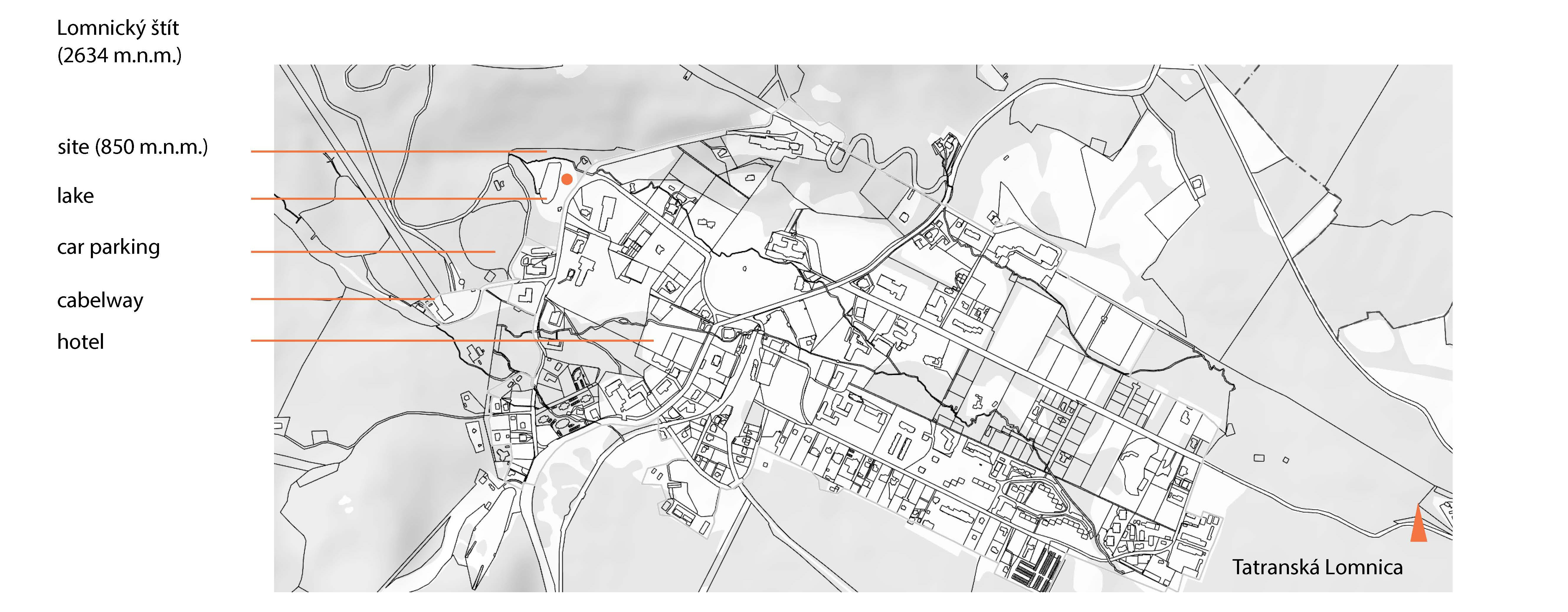
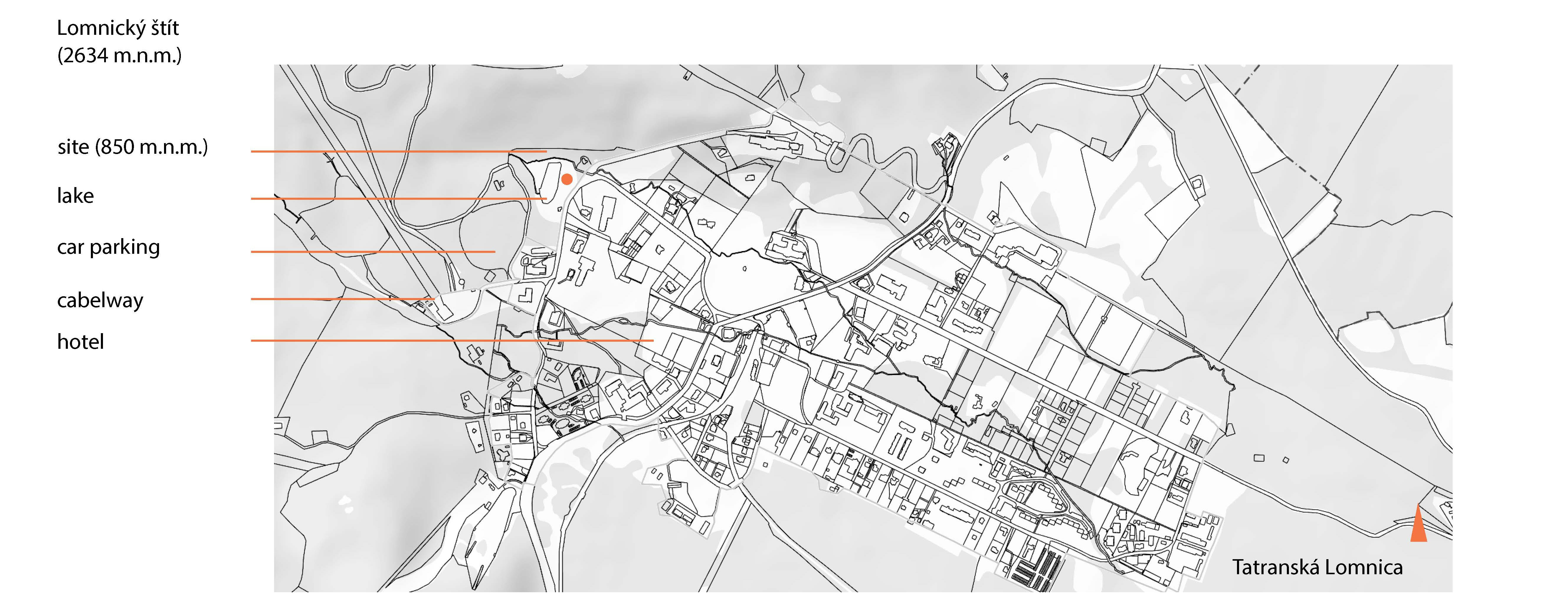
Témou diplomovej práce je Dom pre meteorológa. Objekt je situovaný v Tatranskej Lomnici, pod Lomnickým štítom kde sa nachádza Observatórium. Slúži na meteorologické merania a pozorovania Slovenského hydrometeorologického ústavu. V roku 1964 sa miesto stalo trvalým pracoviskom astronómov z Astronomického ústavu Slovenskej akadémie vied. Oba ústavy spolupracujú nakoľko hlavným objektom pozorovaní je Slnko. Samostatná budova je spojená s visutou lanovkou Tatranská Lomnica – Lomnický štít. Presun z práce domov pre meteorológa bude teda nenáročný a rýchly.

Situácia
Situácia
Poloha
Poloha

Svetlo ako dynamický prvok, meniaci a opakujúci sa v čase, dáva priestoru v rôznych fázach, rôznu identitu. Architektúra je statická a využíva rozličné formy na dosiahnutie potrebného využitia svetla pre určitý typ či charakter priestoru. Premenila som slnko v nástroj na vytvorenie kinetickej podstaty domu, ktorý je stále sa meniaci podobne ako slnko samo. 

V diplomovom projekte pracujem s vyslovenou hypotézou o pamäti svetla. Pripúšťam fakt existencie inteligentného materiálu pamätajúceho si svetlo podobne ako fosfor alebo teplo si pamätajúce materiály. Pracujem s myšlienkou udržateľnosti svetla bez pomoci pridaných energií. Využívam poznatky o inteligentných materiáloch a predpokladám vývoj v oblasti svetla nie len v zdravotnom a energetickom odvetví ale aj chemickom či hig-tech sektore.

59
Youtube
Analýza pohybu slnka
Analýza pohybu slnka
Difúzne horizontálne  žiarenie - analýza
Difúzne horizontálne žiarenie - analýza
Difúzne horizontálne  žiarenie - analýza
Difúzne horizontálne žiarenie - analýza
Definovanie geometrie
Definovanie geometrie
125
Youtube

Náplňou práce meteorológa je predpovedať počasie. Majiteľ domu teda bude vedieť s pomocou materiálu pamätajúceho si svetlo pripraviť svoj dom na nadchádzajúce priaznivé či nepriaznivé svetelné podmienky a podľa toho svetlo buď uschovať alebo odfiltrovať. Bude vedieť intuitívne využívať tento materiál vo svoj prospech. Plocha domu bude mať možnosť zmeniť pozíciu z vnútra smerom von a opačne. Dom bude mať možnosť prevrátiť svoj povrch. Pamätané svetlo sa bude vedieť využiť v interiéri či exteriéri podľa potreby.

Konštrukcia dvojitej fasády
Konštrukcia dvojitej fasády
Geometria fasádnych lamelov
Geometria fasádnych lamelov
Regulácia svetla pomocou natočenia lamelov
Regulácia svetla pomocou natočenia lamelov
Regulácia svetla pomocou natočenia lamelov
Regulácia svetla pomocou natočenia lamelov
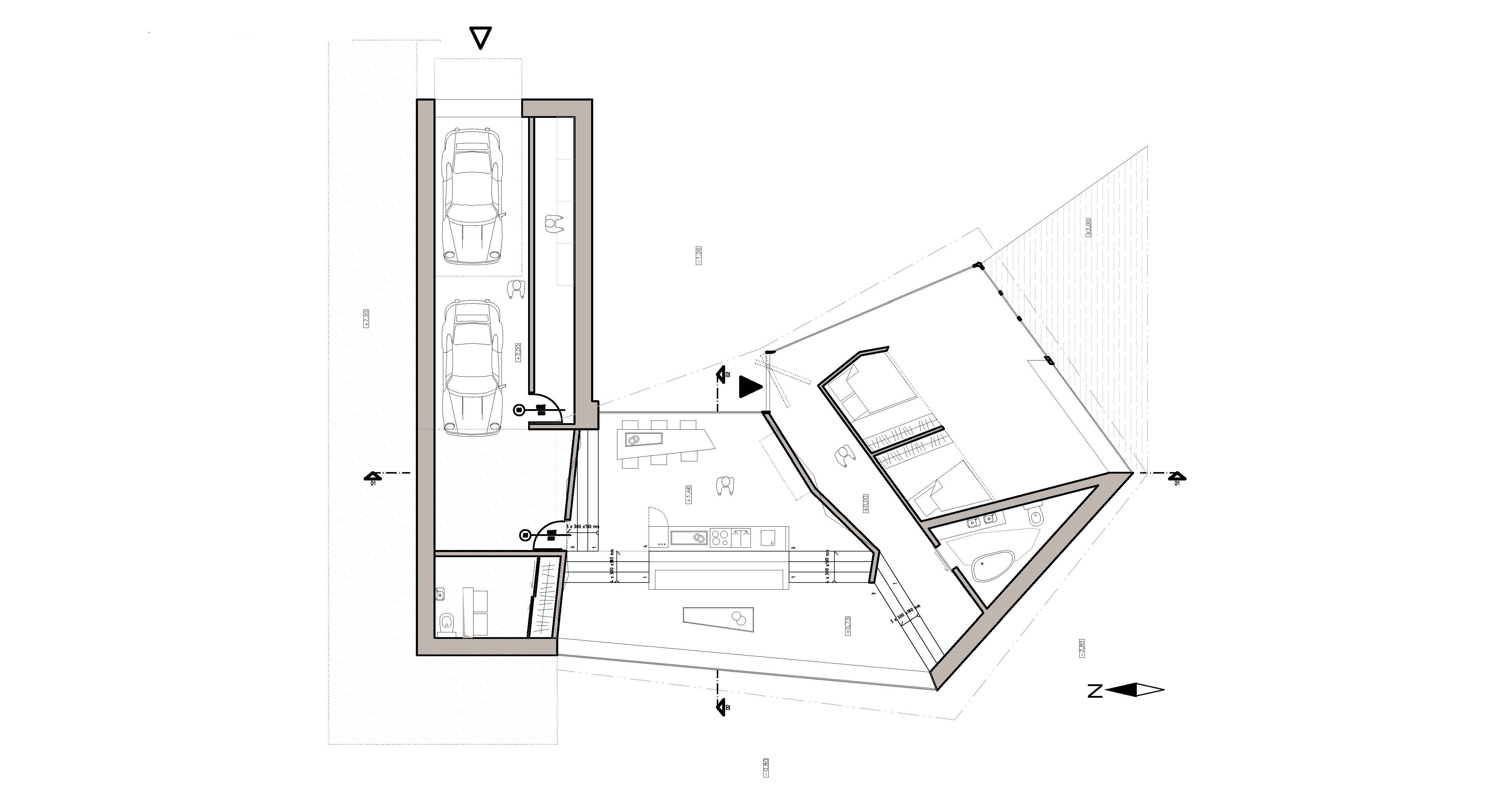
Pôdorys
Pôdorys
Rez
Rez
Pohľady
Pohľady
Pohľady
Pohľady

Text: Júlia Počatková 

Poloha diela

Mgr. art. Júlia Počatková

Súvisiace články

Vložené
26. október 2016
0
814
Hlavný obsahHlavný obsah
Čakajte prosím