Advertorial

Pozvánka na 2. ročník stavebného veľtrhu BigMarket na Slovensku

Na podujatí sa predstaví až 37 vystavovateľov - popredných dodávateľov stavebných materiálov a inovácií s prezentáciou...

Hotel Hirschen Spa House, Rakúsko

Novotvar v prostredí alpskej obce.

Vytvorte si kúpeľňu snov: dizajnové riešenie od značky hansgrohe

Hansgrohe - prémiová značka kúpeľňových riešení, ponúka nadčasový dizajn, technickú precíznosť a udržateľné inovácie...

Okná Internorm za minuloročné ceny + hliníkový kryt zdarma!

Využite špeciálnu akciu Internorm: okná za minuloročné ceny a hliníkový kryt úplne zadarmo. Ponuka je časovo obmedzená!

Moderné plynové technológie: Efektivita a inovácie pre 21. storočie

Sumarizácia najdôležitejších inovácií, ktoré redefinujúcich využitie tohto energetického zdroja.

Utesňovanie spodných stavieb pomocou hydro-aktívnej fólie AMPHIBIA.

AMPHIBIA 3000 GRIP 1.3 od spoločnosti ATRO predstavuje modernú hydroizolačnú technológiu, ktorá spája vysokú odolnosť,...

Dekarbonizácia individuálneho vykurovania domácností – Green Deal evolučne a nie revolučne

Ambiciózne plány EK narazili na ekonomické možnosti domácností v jednotlivých členských štátoch –...

Minimalistické dvere IDEA – technická precíznosť a čistota prevedenia

IDEA DOOR od spoločnosti JAP prináša do interiéru čistý minimalistický vzhľad vďaka bezrámovému riešeniu a precíznej...

Dom s výhľadom na údolie, Dlouhý Most (ČR)

Kontinuita riešenia od vonkajšieho obkladu až po kovania a kľučky.

Schell Vitus – osvedčené riešenie pre sprchy a umývadlá vo verejnom sektore s viac ako desaťročnou tradíciou

Nástenné nadomietkové armatúry Vitus sú mimoriadne vhodné pre rýchlu a efektívnu...

Kompozitné okná predstavujú súčasnosť a budúcnosť

Okenné profily z kompozitného materiálu RAU-FIPRO X od spoločnosti Rehau sú v porovnaní s tradičnými plastovými profilmi mnohonásobne...

Myotis - stoly 2025

Najnovší sortiment stolov pre zariadenie interiérov...

Priemyselné sklenené priečky Dorsis Digero: svetelné rozhranie pre moderné interiéry

Spojenie moderného dizajnu, funkčnosti a svetla do harmonického architektonického prvku.

Význam prirodzeného svetla pre moderné a flexibilné pracovné prostredie

Kancelárska budova Baumit v slovinskom Trzine prešla premenou na moderné a udržateľné pracovisko. Architekti kládli dôraz...

Konferencia Xella Dialóg predstaví novinky a trendy v stavebníctve

Mottom šiesteho ročníku on-line konferencie odborníkov Xella Dialóg je Efektívny návrh budov 2025+: zmeny a riešenia

Návrh infocentra a krycej stavby karnera archeologického parku v Trnave - diplomová práca

Diplomová práca z Fakulty architektúry STU navrhnutá na Cenu profesora Lacka.
Diela
Red 317.09.2016
20300+24
Návrh infocentra a krycej stavby karnera archeologického parku v Trnave - diplomová práca
Autori: Ing. arch. Filip TrajteľSpolupráca: doc. Ing. arch. Jana Gregorová, PhD. (vedúci práce)Návrh: 2015 - 2016Adresa: Námestie slobody 19, Bratislava, SlovenskoPublikované: 17. september 2016

Architektonická štúdia, vypracovaná pre začatie komplexnej obnovy územia príkostolného cintorína pri bazilike sv. Mikuláša, v nadväznosti na spôsob prezentácie a prekrytia zachovanej kostnice  bývalého karnera v Mestskej pamiatkovej rezervácií Trnava. Cieľmi architektonickej štúdie boli:

  • prezentácia lokality príkostolného cintorína  s prvkami z rôznych  vývojových etáp územia  nad terénom, prioritne však z renesancie
  • prezentácia podzemnej časti karnera - kostnice, s návrhom krycej konštrukcie v kontexte lokality príkostolného cintorína v súlade s rámcovou metódou obnovy
  • využiť systém mestského opevnenia s časťou ochodze pre možnosť vnímania archeologického parku zhora
  • sprístupnenie a prezentácia  priestorov pod terénom (krypty, pivnice pod arcibiskupským ordinariátom) v rámci územia
  • návrh informačného centra v objekte bývalej márnice vrátane informačného systému celého územia 
  • zakomponovanie ostatných cirkevných a kultúrno-spoločenských objektov do riešeného územia
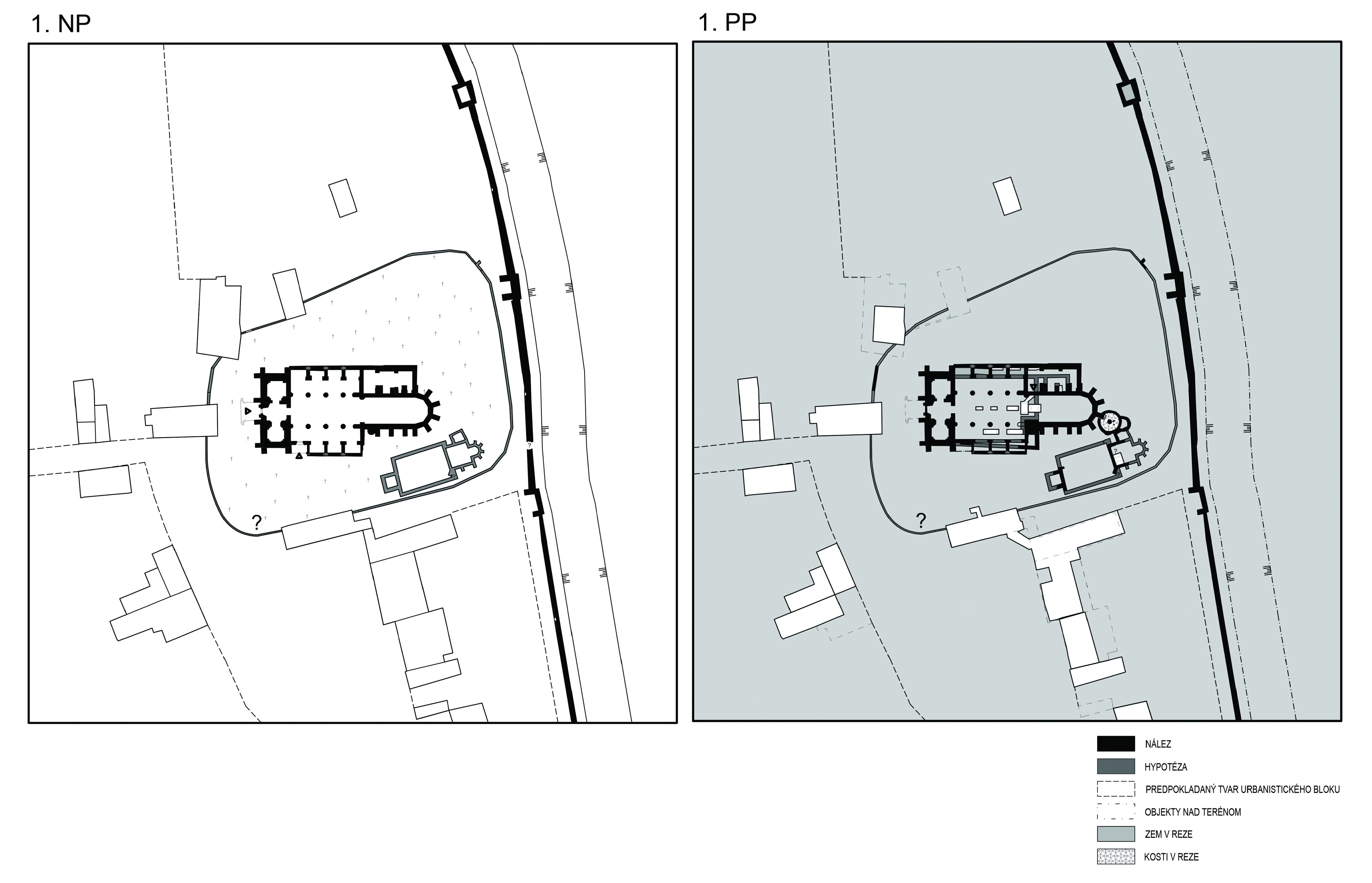
Širšie vzťahy
Širšie vzťahy

Riešené územie je v súčasnosti vymedzené komunikáciami, ktoré obchádzajú z oboch strán kostol sv. Mikuláša v Trnave. Zo severnej strany mimo iné pozemok vymedzuje baroková budova bývalej márnice v súčasnosti dom pútnika. Zo strany východnej je pozemok vymedzený mestským opevnením s možnosťou výstupu na ochodzu a zo strany južnej tvorí hranicu budova a oplotenie arcibiskupského ordinariátu. Zo strany západnej sa kostol čelnou fasádou obracia do Námestia sv. Mikuláša. Pozemok v smere zo západu na východ prekonáva výškový rozdiel 1400 mm. V súčasnosti ním prechádza frekventovaný peší ťah spájajúci mestské centrum so sídliskom Družba. Na tomto ťahu je v dlažbe odprezentovaná gotická fáza zaniknutého kostola sv. Michala. Severne od nej je provizórne prekrytý základ románskeho karnera, ktorý je v superpozícií s presbytériom kostola sv. Mikuláša. Veľmi nevhodne vedie okolo spevnená komunikácia slúžiaca ako zásobovacia trasa do arcibiskupského ordinariátu.  Pozemok má veľké predpoklady na to, aby slúžil ako mestský archeologický park, no jeho potenciál je aktuálne využitý len minimálne.

Situácia - súčasný stav
Situácia - súčasný stav
Foto - Súčasný stav lokality
Foto - Súčasný stav lokality
Foto - Súčasný stav lokality
Foto - Súčasný stav lokality

Na základe výkresu problémov a výkresu rámcovej metódy sa stanovila koncepcia parku tak, že hlavný sídelný peší ťah sa odklonil južne od prezentácie kostola sv. Michala a zásobovacia trasa do arcibiskupského ordinariátu sa presunula na zjazdný chodník popod hradby. Vjazd na ňu bude kontrolovaný pomocou pilomatov. Aby mohla byť zachovaná dostatočná prechodová šírka presúvaného hlavného pešieho ťahu, plot pred budovou ordinariátu bol asanovaný. Po presunutí komunikácií tak vznikol nerušený priestor ohraničený zo severu budovou infocentra (bývalá márnica), z juhu pešou komunikáciou, z východu hradbami a zo západu Bazilikou sv. Mikuláša. Jedná sa vlastne o východnú časť príkostolného cintorína, ktorý je vymedzený prezentáciou ohradného múru formou vyloženia v dlažbe. Prezentácia ohradného múru je realizovaná v maximálnej možnej miere, pričom je prirodzene prerušená len v mieste, kde dnes stoja neskôr postavené stavby. Rámcovou metódou pamiatkovej obnovy bolo predpísané zníženie nivelety práve vo východnej časti cintorína a to o -720 mm, čo je pôvodná stredoveká úroveň terénu, ktorá bola zachovaná ešte v časoch renesancie. Plocha, na ktorej sa znížil terén začína na hrane zjazdného chodníka popod hradbami a končí pri napojení presbytéria Baziliky sv. Mikuláša na hlavnú loď. Vzniknutý výškový rozdiel sa prekonáva 4 schodiskovými stupňami a rampami. V tejto časti parku sa nachádza najdôležitejší exponát celej lokality karner pod novo navrhnutou krycou stavbou a ďalej je tu prezentácia goticko–renesančnej fázy kostola sv. Michala realizovaná formou múrikov výšky 650mm. Terénnym úpravám sa nevyhla ani južná časť západnej polovice príkostolného cintorína, kde bol v rámci pamiatkovej obnovy odstránený oporný múr z  19. storočia a schodisko. Po odstránení múru má prechod parkom charakter šikmej komunikácie prekonávajúcej na dĺžke cca 80 metrov prevýšenie 1400 mm.  Severná časť západnej polovice sa zaobišla bez terénnych úprav.

Výkres problémov
Výkres problémov
Slohová analýza
Slohová analýza
Zadanie rámcovej metódy
Zadanie rámcovej metódy
Stav lokality v Renesancii
Stav lokality v Renesancii
Rámcová metóda - prezentácia renesancie
Rámcová metóda - prezentácia renesancie

Čo sa týka úpravy plôch komunikácií v rámci celej plochy archeologického parku boli na ňu použité vo veľkej miere prírodné materiály, a to hlavne andezit v lámanej alebo v rezanej podobe. Andezitová dlažba z kociek o rozmeroch 250x250 resp. 250x500 je použitá na všetkých plochách peších komunikácií okrem chodníkov v ploche trávnika. Tie sú realizované zo šľapákov uložených do štrkového lôžka. Identickým spôsobom sú realizované aj plochy pri hlavnom vstupe do Baziliky sv. Mikuláša. Z lámaného andezitu je vyhotovený aj zjazdný chodník popod hradby. Kvôli požiadavke pevnosti pre zjazdné komunikácie je kameň kladený do betónového lôžka. Z dôvodu bezpečnosti boli pozdĺž tejto komunikácie osadené dopravné zábrany vo forme stĺpikov.

Prevažnú časť zelene v archeologickom parku tvoria trávnaté plochy z dôvodu, aby vysoká zeleň nebránila vo vnímaní lokality ako celku. V rámci príkostolného cintorína stáli dva stromy, ktoré v návrhu ostali zachované a vo východnej časti bolo situovaných niekoľko stromov nanovo. Keďže za budovou infocentra a aj pozdĺž šľapákovej komunikácie vedúcej ku karneru boli navrhnuté lavičky, spomínané stromy tu budú zabezpečovať tieň a navodzovať parkovú atmosféru.

Návrh dispozično - prevádzkových vzťahov (1. NP)
Návrh dispozično - prevádzkových vzťahov (1. NP)
Návrh dispozično - prevádzkových vzťahov (2. NP)
Návrh dispozično - prevádzkových vzťahov (2. NP)
Návrh dispozično - prevádzkových vzťahov (1. PP)
Návrh dispozično - prevádzkových vzťahov (1. PP)
Komplexný návrh - stavebné úpravy - pôdorys
Komplexný návrh - stavebné úpravy - pôdorys
Komplexný návrh - stavebné úpravy - rez
Komplexný návrh - stavebné úpravy - rez
Komplexný návrh 1. NP
Komplexný návrh 1. NP
Komplexný návrh 1. PP
Komplexný návrh 1. PP
Komplexný návrh - Rezopohľady
Komplexný návrh - Rezopohľady
Vizualizácie lokality
Vizualizácie lokality
Vizualizácie lokality
Vizualizácie lokality
Vizualizácie lokality
Vizualizácie lokality
Vizualizácie lokality
Vizualizácie lokality
Vizualizácie lokality
Vizualizácie lokality

Súčasný stav karnera

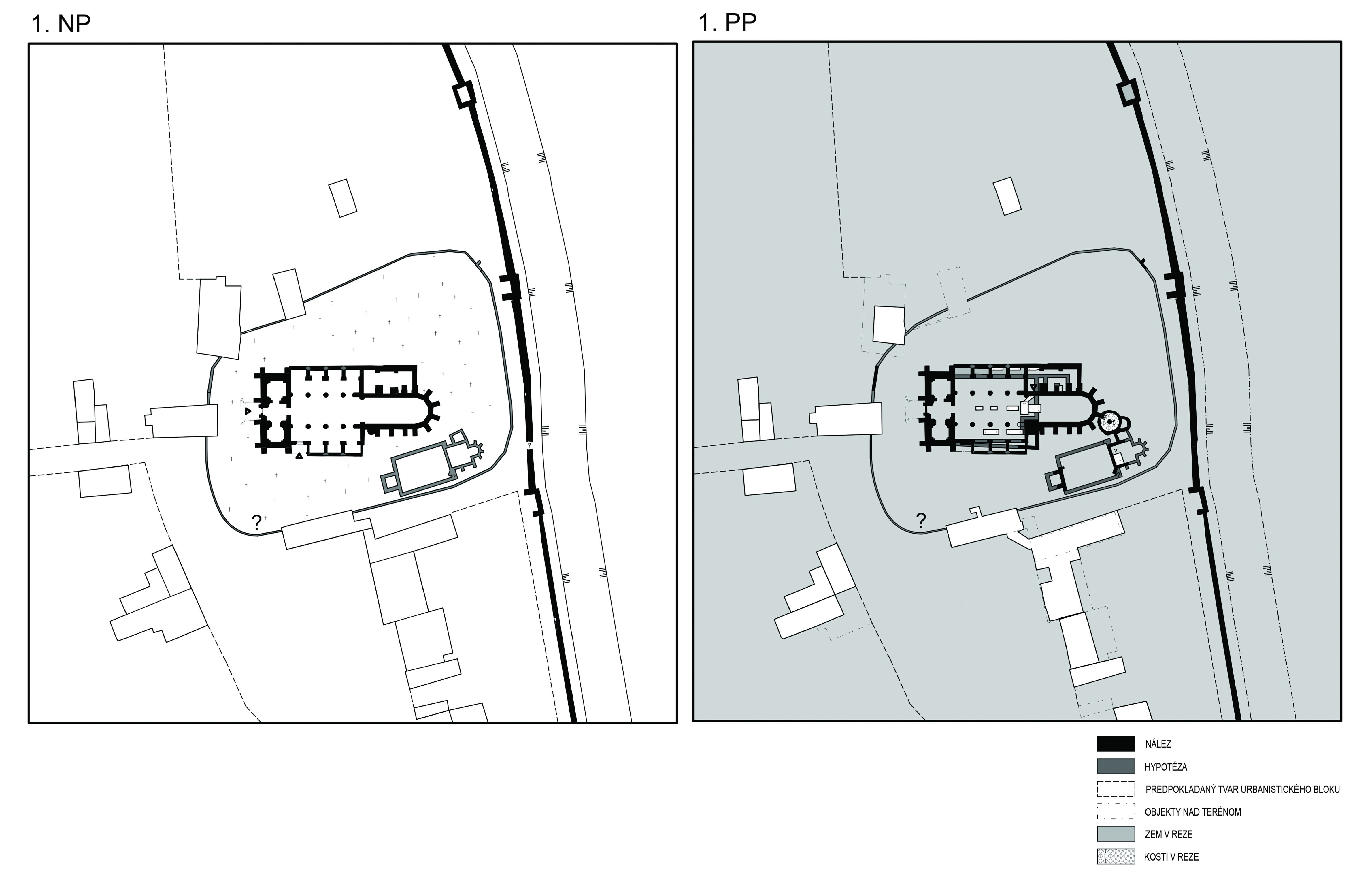
Počas záchranného výskumu v roku 2008 bola juhovýchodne od polygonálneho uzáveru svätyne Baziliky sv. Mikuláša objavená južná časť pôdorysu murovanej kruhovej stavby. Odkrytá stavba mala kruhový pôdorys, jej murivo bolo zapustené do žltého sprašového podložia. Vnútorný priemer dosahoval šírku  670 cm a  vonkajší 820 cm. Šírka muriva nebola jednotná, plynule sa rozširovala a zužovala. Jeho maximálna šírka (120 cm) bola zachytená na južnej a minimálna (70 cm) na východnej strane. Maximálna zachovaná výška dosiahla 560 cm. Murivo bolo vybudované z lomového kameňa a sekundárne použitých  tehál – plevoviek, spájaných maltou so zvyškami pliev. Vnútorná strana muriva bola lícovaná, tvorili ju nahrubo otesané kamene zriedka kombinované s tehlami. Výskum sa ďalej sústredil na sondáž vo vnútri kruhovej stavby s cieľom určiť jej pôvodnú funkciu. V hĺbke 240 cm od úrovne zistenia sa zachytila homogénna vrstva kostí  o hrúbke 320 cm. Dno kruhovej stavby sa nachádzalo v hĺbke 560 cm a tvorila ho žltá spraš. Tesne nad ním bola nekompaktná, približne 2-3 cm hrubá vrstva malty, ktorá zrejme vznikla pri výstavbe kruhovej stavby. Zvyšky základov apsidy sa podarilo zachytiť v juhovýchodnej časti skúmanej plochy. Zachovali sa vo vnútri barokovej prístavby zaniknutého kostola sv. Michala v podobe  muriva z lomových kameňov a zvyškov malty, ktorá mala podobnú  štruktúru ako malta v murive kruhovej stavby. V severovýchodnej časti skúmanej plochy bola apsida porušená mladšími hrobmi. Zvyšky jej základovej ryhy predstavovala asi 5 cm hrubá vrstva tmavohnedej hliny. Na základe uvedených zistení mala apsida podkovovitý tvar, pričom miesto jej pripojenia ku kruhovej stavbe možno iba predpokladať. Na základe uvedeného možno odkrytú kruhovú stavbu interpretovať ako románsku kostnicu s apsidou. Jej rámcové časové zaradenie do 12., príp. 13. stor. sa opiera iba o tri zlomky keramiky. Karner sa nachádza v superpozícií voči Bazilike sv. Mikuláša, ktorej operák pri výstavbe vnikol do jeho interiéru nakoľko stavitelia o zaniknutej stavbe karnera v časoch výstavby baziliky nemali poznatky. Južne od karnera sa nachádza zaniknutý kostol sv. Michala, ktorého gotická fáza je v súčasnosti odprezentovaná v dlažbe. Karner je momentálne zakrytý dočasnou drevenou krycou stavbou.

Archeologické zameranie karnera
Archeologické zameranie karnera
Súčasná krycia stavba
Súčasná krycia stavba

Filozofia návrhu

Na najvyššom bode historického jadra mesta Trnava v roku 2008 archeológovia objavili pozostatky románskeho karnera – najstaršej stavby v meste.  Tento nález je dôkazom kultového významu lokality, ktorý siaha hlboko do histórie mesta. Okrem karnera sa tu našli hroby z 9. – 10. storočia a aj pozostatky zaniknutého kostola sv. Michala, ktorý mal niekoľko vývojových etáp. Veľkou zaujímavosťou v lokalite sú aj barokové krypty prístupné z kaplnky pri Bazilike sv. Mikuláša a suterény pod budovou arcibiskupského ordinariátu.

Množstvo, význam nálezov, ale aj samotná poloha priam predurčujú využitie lokality ako archeologického parku.

Hlavnými determinantmi riešenia celej lokality boli:

  • Komunikačné väzby
  • Informačný systém
  • Sprístupnenie nadzemných a podzemných priestorov
  • Rámcová metóda obnovy príkostolného cintorína s karnerom – prezentácia renesancie.

Základnú koncepciu komunikačných väzieb pri návrhu lokality určoval sídelný peší ťah smerom z centra mesta na sídlisko družba. Jeho smer priamo ponad archeologické nálezy kostola sv. Michala sa vnímal ako problém. Tak isto aj zásobovacia trasa (zjazdný chodník) do arcibiskupského ordinariátu prechádzala nevhodne blízko karnera a ponad archeologické nálezy. Výsledná koncepcia teda eliminuje tieto problémy tak, že sídelný peši ťah obchádza archeologické nálezy sprava a zásobovacia trasa bola preložená východným smerom popod hradby na zjazdný chodník.

Determinanty návrhu krycej stavby
Determinanty návrhu krycej stavby

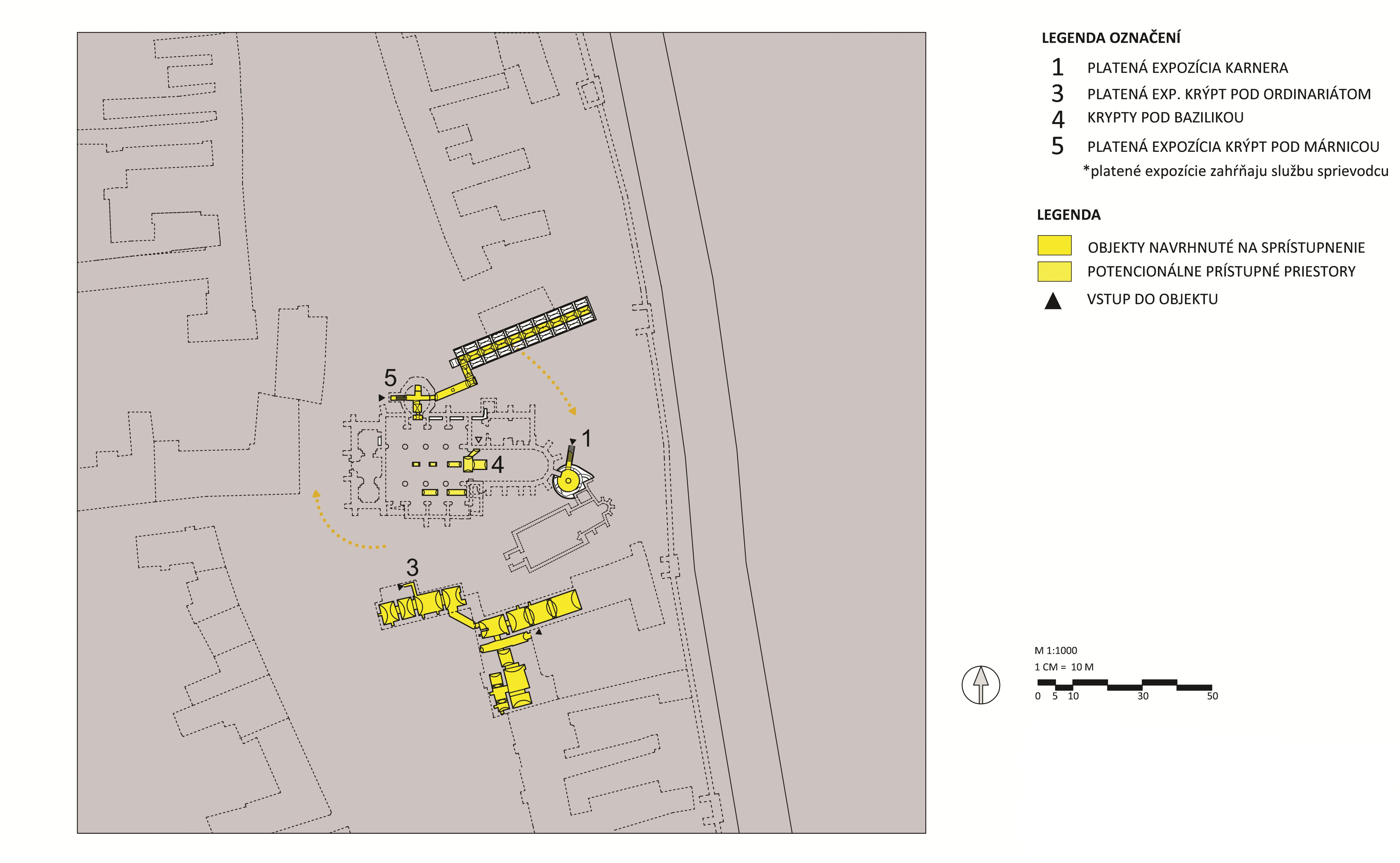
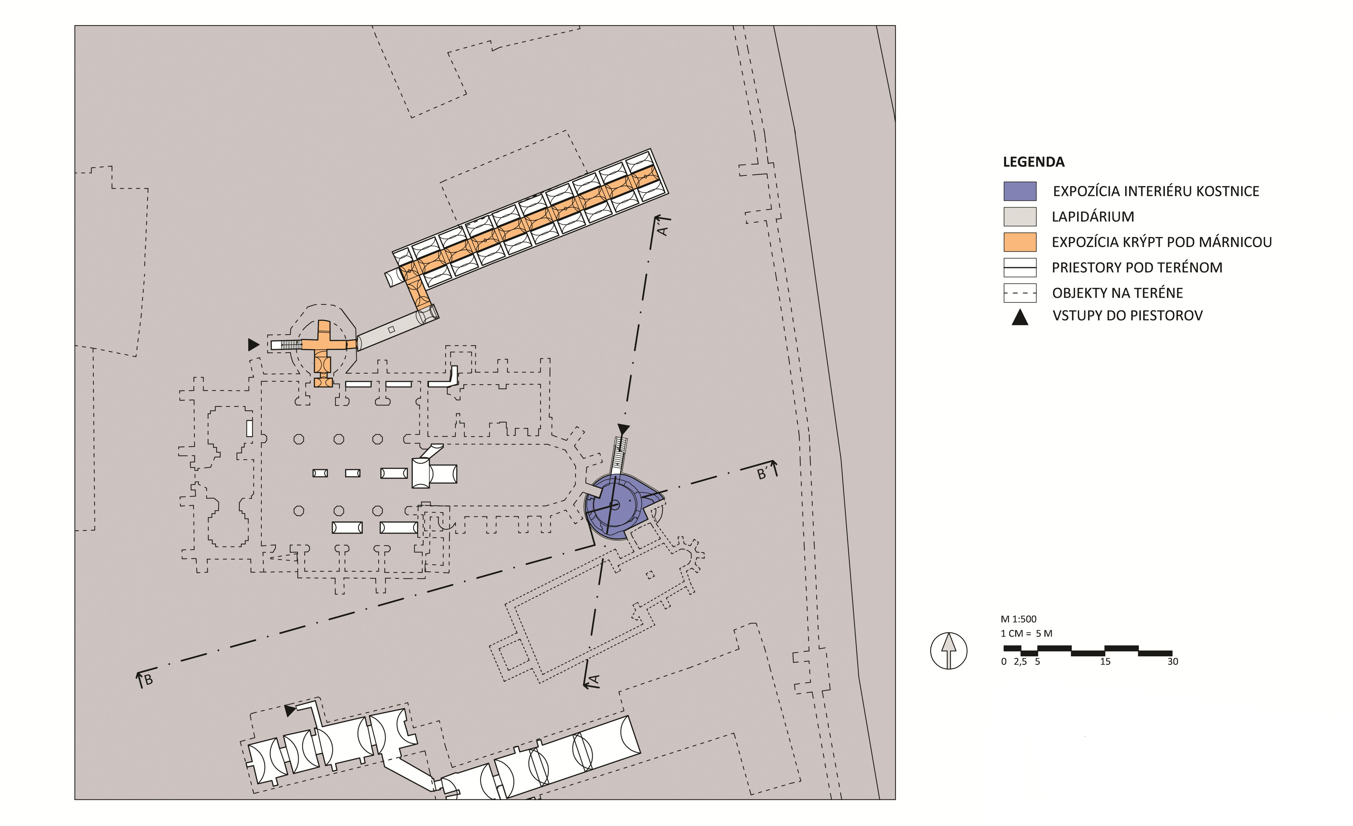
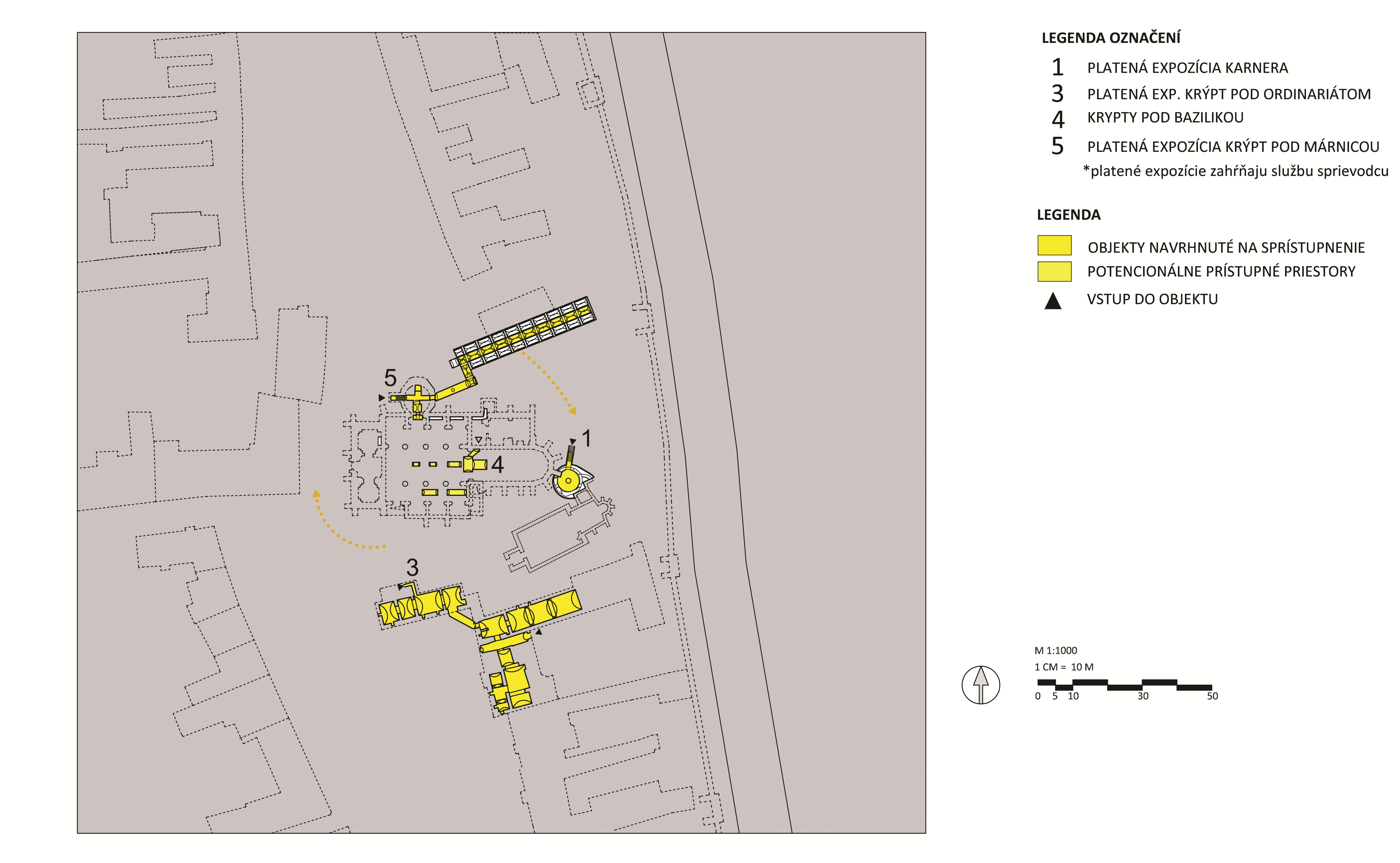
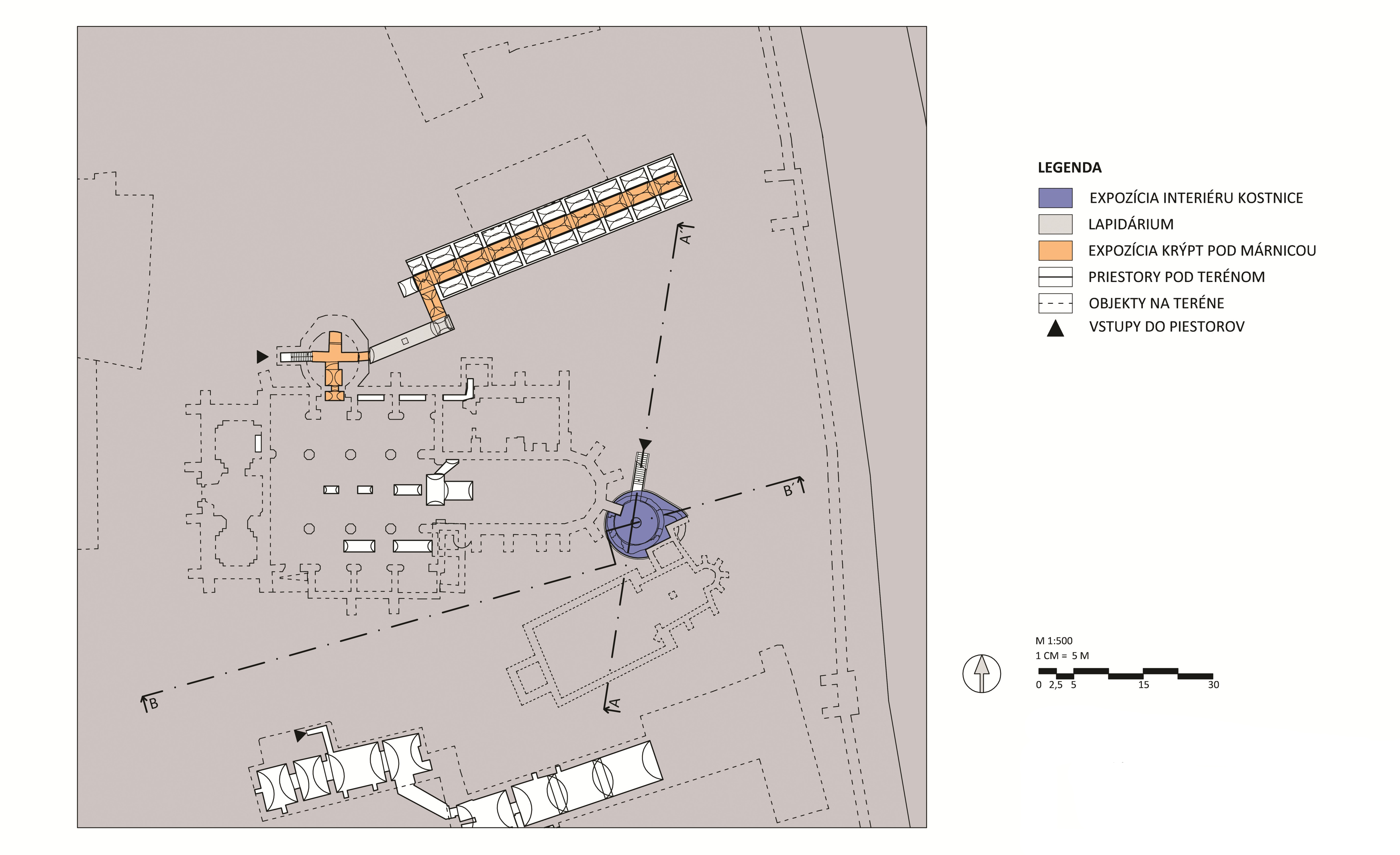
Informačný systém je navrhnutý tak, že východiskovým bodom pri prehliadke lokality je infocentrum situované v budove bývalej márnice. Prehliadkový okruh vedie s návštevníkmi sprievodca, pričom začína a rovnako končí v budove infocentra. Pri jednotlivých zastávkach sú situované informačné panely podávajúce informácie návštevníkom mimo času prehliadok. Základné informácie o režime prehliadok sú situované prirodzene na hlavnej pešej trase pri prezentácií kostola sv. Michala a pri vstupoch do lokality (rampa pri infocentre a rampa z Námestia sv. Mikuláša). Dôležitou súčasťou prehliadky je výstup na ochodzu hradieb, odkiaľ je možno vnímať celú lokalitu kompaktne. Samozrejme, aj tu sa nachádza informačný panel.

Archeologický park je vymedzený ohradným múrom prikostolného cintorína, a preto snaha sprístupniť priestory, ktoré majú orientované vstupy do tejto plochy bola maximálna. Oproti súčasnosti budú po obnove prístupné:

  • budova bývalej márnice aj s podkrovím,
  • suterény pod arcibiskupským ordinariátom,
  • v maximalizovanej interiér karnera,
  • barokové krypty.

Vo veľkej miere určila podobu prezentácie celej lokality aj rámcová metóda – prezentácia renesancie, ktorá zadefinovala konkrétny prístup k riešeniu jednotlivých objektov v rámci archeologického parku. Zníženie nivelety o -720 mm oproti súčasnému bodu 0,000 najviac ovplyvnilo riešenie celej lokality nakoľko sa tejto úrovni musela prispôsobiť prezentácia zaniknutých architektúr, konštrukcia krycej stavby karnera a aj riešenie všetkých komunikácií.

Návrh krycej stavby - stavebné úpravy
Návrh krycej stavby - stavebné úpravy
Návrh krycej stavby - pôdorys strechy a rez
Návrh krycej stavby - pôdorys strechy a rez
Návrh krycej stavby - horizontálny a priečny rez
Návrh krycej stavby - horizontálny a priečny rez

Rámcová metóda pamiatkovej obnovy predpísala kryciu stavbu karnera riešiť ako minimálne výrazovo pôsobiacu s prezentáciou dochovaného originálu v interiéri.

Pri návrhu boli rozhodujúce determinanty, ktoré boli variantne nastavené na základe analýz, predpokladov a odporúčaní KPU Trnava. Sú to:

  • osadenie  do terénu voči súčasnej nivelete +-0,00, alebo voči stredovekej nivelete -72 cm,
  • prekrytie iba kostnice, alebo aj apsidy z murivami sakristie,
  • mikroklíma,
  • nosný konštrukčný systém krycej stavby,
  • vnútorné konštrukcie,
  • miera vstupu verejnosti do karnera.

V prípade môjho návrhu sa pristúpilo k zníženej nivelete o -720 mm, čo malo za následok použitie dvakrát zalomenej konštrukcie, pričom v interiéri môžeme zlom chápať ako náznak objemu zaniknutej časti karnera. Vo vnútri krycej stavby sú okrem originálu karnera vnímateľné aj zvyšky apsidy a murivá sakristií kostola sv. Michala. Na streche krycej stavby je náznak pôdorysu kaplnky s apsidou realizovaný formou tehlového múrika pričom úroveň podlahy kaplnky je naznačená štrkovým násypom. Pôdorys kaplnky s apsidou je vnímateľný aj z vnútra krycej stavby, kde je realizovaný formou štukatúry z hrubšej omietky na strope. Vchod do krycej stavby je situovaný zo severnej strany a je krytý uzáverom, ktorý sa elektro-hydraulicky zasúva a tým zabezpečuje uzavretie interiéru v časoch mimo prehliadky. Návštevníci vstupujú do interiéru kovovým schodiskom so šírkou 1400 mm. Pri nástupe do schodiska je informačný panel riešený ako kovový reliéf, na ktorom sa návštevník dozvie podstatné informácie o exponátoch. Po zostúpení 15 stupňov schodiska sa dostanú do interiéru kostnice. Cez sklenú podlahu môžu návštevníci vnímať dno kostnice s násypom ľudských kostí, ktoré sú nasvietené zo spodnej strany konštrukcie podlahy. Voľne môžu ďalej pozorovať korunu muriva karnera, ktorá je zachovaná v rôznych výškach. Sakristie kostola sv. Michala sú bodovo nasvietené, pričom svietidlo sa nachádza nad úrovňou očí za pilierom baziliky a tak návštevníkom neprekáža.

Vstupné schodisko je riešené ako kovové schodnicové, pričom stredná časť stupňov je odoberateľná kvôli servisu technológie pod schodiskom. Výsuvný uzáver vchodu je riešený ako kovový rám s plechovou strechou. Teleskopické hydraulické vzpery a vodiace lišty posuvného zábradlia a madiel sú ukryté za AVG panelmi nesenými na roštoch. Informačný panel pri vstupe do krycej stavby je riešený ako kovový box primontovaný na stenu schodiskového priestoru pod úrovňou terénu. V jeho vnútri sa nachádza elektrorozvádzač a v prípade potreby aj podtlakový, resp. pretlakový ventilátor. Podlaha z pochôdzneho skla je nesená kovovou konštrukciou, ktorá funguje ako Vierendeelov nosník a je založená na mikropilótach z vnútornej strany kostnice. Paženie zeminy pri odtlačku apsidy je vyhotovené z cortenového plechu. Všetky viditeľné kovové časti krycej stavby sú opatrené práškovou farbou z obsahom kovových čiastočiek v odtieni anódovaného hliníka. Vnútorné steny a strop krycej stavby sú upravené monochromatickým akrylátovým nástrekom odtieň RAL 1015.

Návrh krycej stavby - rezopohľady
Návrh krycej stavby - rezopohľady
Návrh krycej stavby - rezopohľady
Návrh krycej stavby - rezopohľady

Bočné steny krycej stavby sú prefabrikované dielce z vodotesného betónu založené na kovových zemných skrutkách KRINER. Styk skrutky a prefabrikátu je riešený spôsobom zmonolitnenia a to tak, že na tyčový prvok trčiaci z hlavice zemnej skrutky sa nasúvajú jednotlivé prefabrikáty, ktoré majú v mieste styku odhalené kovové oko. Po navlečení ôk na tyč sa dielce previažu a miesto styku sa zaleje vodotesným betónom. Rovnako je realizovaný aj priestor schodiska.

Strešná konštrukcia je riešená ako dvakrát zalomený oceľový rošt pozváraný z profilov výšky 200 mm. V mieste jednotlivých roštových polí je navarený trapézový plech a výstuže. Rošt bude po zmontovaní a povrchovej úprave spodnej strany primontovaný na bočné steny pomocou kovových spojovacích prvkov, ktoré budú následne zaliate vodotesným betónom. Strecha je na štyroch miestach perforovaná a osadená vetracími mriežkami s klapkou proti vode. Celá strecha je pokrytá poistnou hydroizoláciou, ktorá je založená na mieste styku bočných stien a strechy. Na izolácií je spádová vrstva z lahčeného betónu a na nej ešte zosilnená vrstva hydroizolácie s plastových pásov. Strešná vrstvy uzatvára štrkový násyp. Náznak pôdorysnej stopy kaplnky s apsidou je vymurovaný z plných pálených tehál, ktoré sú z dôvodu ochrany proti vode  napustené vodným sklom.

Podlahový nosník je z kovu a po montáži na mieste stavby sa založí na vŕtané mikropilóty. Tabule z pôchodzneho skla sú uložené klasickým spôsobom na pružné podložky a spoj je uzatvorený čiernym tmelom.

Výsuvný uzáver krycej stavby je riešený ako kovový rám a jeho posun budú zabezpečovať teleskopické hydraulické vzpery, ktoré sa osadia do prefabrikovaných bočných stien schodiskového priestoru. Hydraulický kompresor bude uložený pod schodiskom. Sklenené zábradlie a kovové madlá schodiska posuvné spolu s uzáverom budú nesené v kovových vodiacich lištách skrytých pod AVG panelmi namontovanými na nosný rošt.

Návrh krycej stavby - varianty odvetrania
Návrh krycej stavby - varianty odvetrania
Vizualizácie krycej stavby karnera
Vizualizácie krycej stavby karnera
Vizualizácie krycej stavby karnera
Vizualizácie krycej stavby karnera
Vizualizácie krycej stavby karnera
Vizualizácie krycej stavby karnera
Vizualizácie krycej stavby karnera
Vizualizácie krycej stavby karnera

Infocentrum

Funkcia infocentra bola situovaná v budove bývalej barokovej márnice, ktorá v nedávnej minulosti slúžila aj ako dom pútnikov. Pôvodne baroková stavba bola v časoch klasicizmu zväčšená o prístavbu z východnej strany. Jedná sa o jednotrakt zastrešený sedlovou strechou s murovanými štítmi a malými podlomenicami. Baroková časť stavby má stropy klenuté českými plackami a pruskými klenbami. Budova nie je vedená ako NKP, no jej poloha si vyžadovala citlivý prístup. Obnova tejto stavby je založená na prezentácií barokovej kultúrnej vrstvy s rešpektovaním neskoršieho klasicizmu a na dostavbe hmoty v tradičnom tvare a materiálovom prejave, aby nedošlo k narušeniu charakteru budovy.

Prezentácia baroka v prípade tejto stavby mala za následok to, že vstupný portál sa premiestnil o jednu os vpravo, nakoľko tu bol v časoch baroka vstup. Tomu sa podriadila aj dispozícia. Portál je osadený analogickou rekonštrukciou barokových dvojkrídlových dverí. Prístavba bola realizovaná k východnej štítovej stene v rozsahu cca 3,5m. Rozsah pôvodnej stavby je vnímateľný podľa sokla a rímsy. Prístavba je bez rímsy z východnej strany perforovaná dvojicou malých okien a dverami medzi nimi. Zo severnej strany pribudli na fasáde rovnako dve malé okná. Následne sa stavba prekryla novou sedlovou strechou v barokovej proporcií s krokvovou konštrukciu krovu. Na novo boli postavené aj oba murované štíty s osvetľovacími otvormi. Na pôvodnej časti objektu sa nachádzajú okenné šambrány, na ktorých sú osadené kovové okenice v dobovom štýle. Na prístavbe sa šambrány naznačili drevenými osteniami okien a dverí, ktoré sú tiež osadené kovovými okenicami jednoduchého designu. Objekt mal pôvodne dva komíny. Návrh počíta z odstránením jedného z nich a zachovaný bude doplnený o hlavicu a nadstavený do výšky hrebeňa novej strechy.

Márnica (súčasný stav) - pôdorys 1. NP
Márnica (súčasný stav) - pôdorys 1. NP
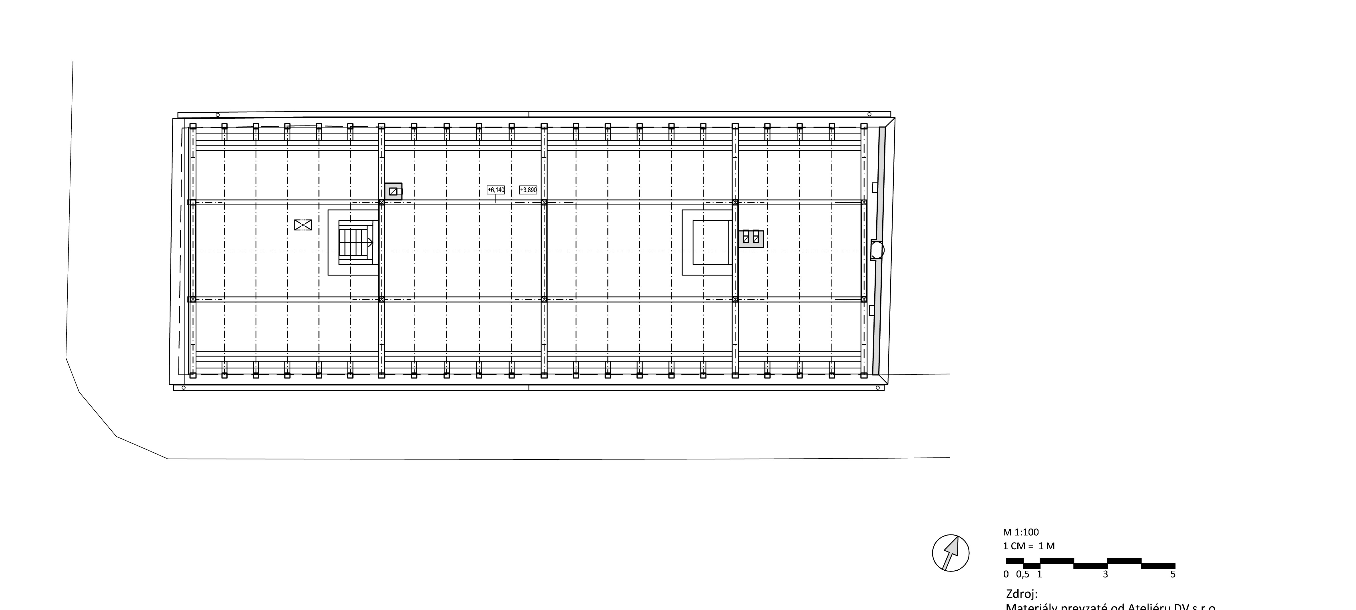
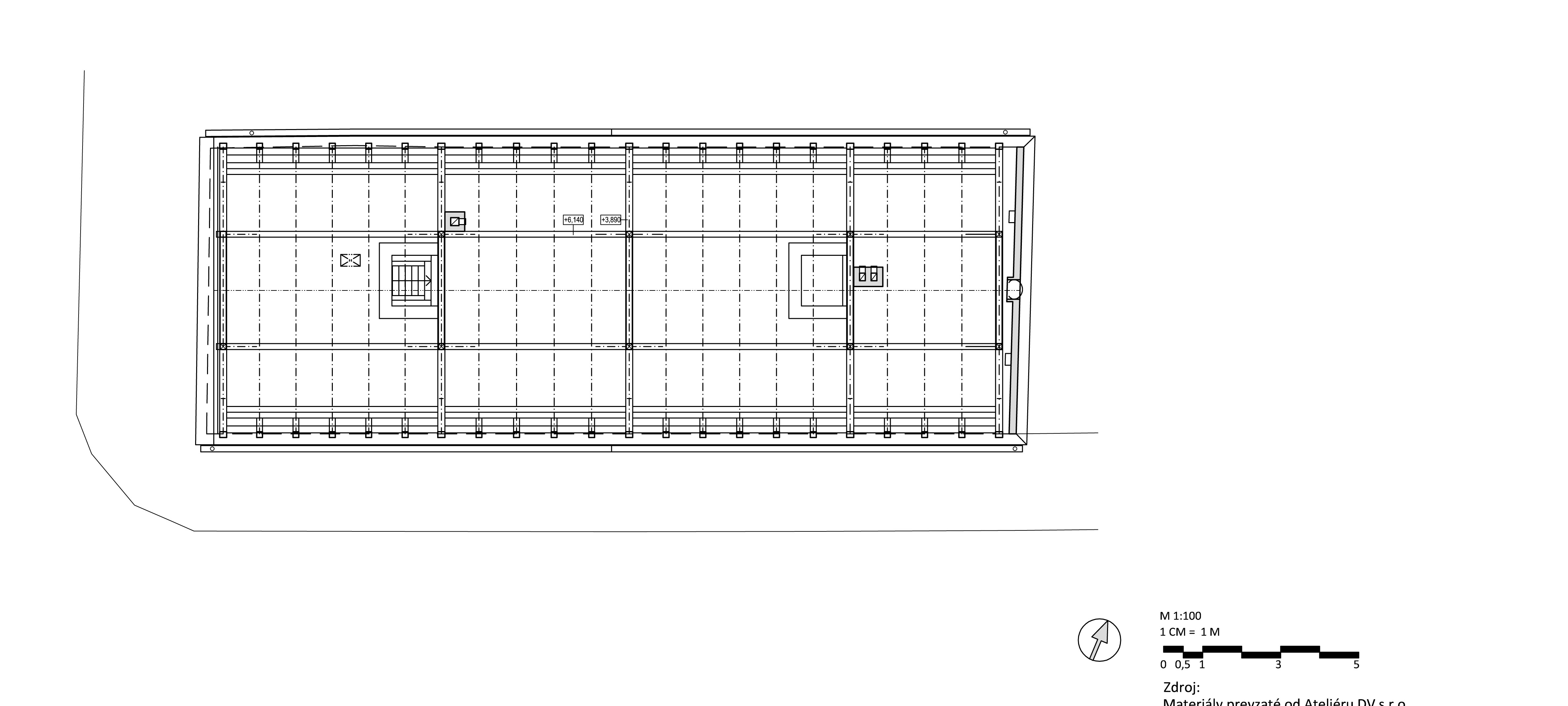
Márnica (súčasný stav) - pôdorys krovu
Márnica (súčasný stav) - pôdorys krovu
Márnica (súčasný stav) - rez
Márnica (súčasný stav) - rez
Márnica (súčasný stav) - rez
Márnica (súčasný stav) - rez
Márnica (súčasný stav) - pohľady
Márnica (súčasný stav) - pohľady
Márnica (súčasný stav)
Márnica (súčasný stav)
Márnica (súčasný stav)
Márnica (súčasný stav)

Jednotraktový objekt má dva vstupy, pričom hlavný je z južnej fasády. Po vstupe sa návštevník dostane do haly, kde sa nachádza pult s pracovníkom infocentra, ktorý zabezpečuje predaj vstupeniek a organizáciu prehliadok. V miestnosti je k dispozícií aj šatňa. Na ľavo od haly sa vstupuje do expozičnej miestnosti venovanej histórií lokality. Na pravo od haly je priechodná expozičná miestnosť venovaná cintorínu. Za ňou v severnom smere je denná miestnosť zamestnancov prístupná z haly. Z expozičnej miestnosti sa návštevníci dostanú do chodby, odkiaľ sú prístupné kompletné hygieny (ženy, muži, bezbariérové WC a zamestnanci). Ďalej sa tu nachádza výťahová plošina a schody vedúce do podkrovia. Z tejto chodby majú návštevníci možnosť vyjsť za budovu infocentra, kde je situované exteriérové posedenie v tieni stromu s výhľadom na archeologický park. Tým istým vchodom majú návštevníci z vonku v letných mesiacoch možnosť ísť na WC do budovy.

V podkroví sa nachádza veľký expozičný priestor kde budú umiestnené expozície k jednotlivým architektúram v lokalite. Na medzipodeste schodov vedúcich do podkrovia sa nachádza miestnosť upratovačky a sklad.

Architektonicko-historický výskum márnice
Architektonicko-historický výskum márnice
Návrh infocentra - stavebné úpravy
Návrh infocentra - stavebné úpravy

Pôvodná časť stavby je vnímateľná na základe rímsy a sokla ale aj na základe rozdielov v povrchovej úprave. Tá je mimo prístavby riešená ako hladká vápno piesková omietka smotanovej farby v kombinácií so sivým soklom a sivou profilovanou rímsou. Pôvodné okenné šambrány sú taktiež opatrené vápenným náterom sivej farby. Okenice na nich osadené sú očiernené metódou kalenia. Okenné a dverné výplne na pôvodnej časti stavby sú namorené hnedým moridlom.

Stena prístavby má voči pôvodnej stavbe tmavšiu omietku a nemá ani sokel ani rímsu. Okenné ostenia sú z masívneho dreva namorené na sivo rovnako ako aj okenné výplne. Jednoduché okenice sú zakalené na čierno. Dvere vedúce do budovy s východnej strany sú oplechované čiernym plechom. Stavba je zastrešená sedlovou strechou s pálenou keramickou krytinou – bobrovka klasickej oranžovo – červenej farby.

Interiér stavby je ometený vápenno – pieskovou omietkou a vymaľovaný na bielo. Podlahy sú na celom prízemí okrem priestorov hygieny riešené ako tehlové. V miestnostiach WC je keramická dlažba. V týchto priestoroch je aj zhotovený aj stropný podhľad kvôli vedeniu odvetrávacích systémov. Schodiskové stupne a podlaha v podkroví sú z dlážkovice namorenej olejom. V podkroví sú priznané krokvy a podhľad je vyhotovený ako sadrokartónový biely. Všetky interiérové výplne sú z masívneho dreva namoreného olejom.

Návrh infocentra - funkcie a prevádzky 1. NP
Návrh infocentra - funkcie a prevádzky 1. NP
Návrh infocentra - funkcie a prevádzky 2. NP
Návrh infocentra - funkcie a prevádzky 2. NP
Návrh infocentra - pôdorys 1. NP
Návrh infocentra - pôdorys 1. NP
Návrh infocentra - pôdorys 2. NP
Návrh infocentra - pôdorys 2. NP
Návrh infocentra -pozdĺžny rez
Návrh infocentra -pozdĺžny rez
Návrh infocentra - rezy
Návrh infocentra - rezy

Prístavba k pôvodnej budove je riešená ako murovaná z pálených tehál. Vnútorné priečky sú sadrokartónové montované na nosnú kovovú konštrukciu. Strop prístavby je železobetónová krížom armovaná doska hrúbky 150mm. Šachta pre inštaláciu zdvýhacej plošiny je železobetónová a stropná konštrukcia sa o ňu opiera. Schody vedúce do podkrovia sú riešené ako schodnicové s kovovou schodnicou a drevenými stupňami. Priečky v priestore podkrovia sú sadrokartónové s kovovou nosnou konštrukciou. Strecha má jednoduchú krokvovú konštrukciu stuženú od úrovňou podlahy a nesenú na drevených pomúrniciach. Strešné štíty sú murované z plných pálených tehál.  Podkrovie je zaizolovaná strešnými panelmi PUREN hrúbky 200mm s tým že panely sú naložené na krokvách ktoré sú v interiéry priznané.

Návrh infocentra - pohľady
Návrh infocentra - pohľady
Vizualizácia infocentra
Vizualizácia infocentra
Vizualizácia infocentra
Vizualizácia infocentra

Krypty

Atraktívnou súčasťou archeologického parku po obnovu budú aj barokové krypty prístupné z kaplnky Panny Márie Trnavskej. V súčasnosti sú pri vstupe do kaplnky veľmi nevhodne použité originálne historické náhrobné kamene a to ako obklad sokla. Pre ich prezentáciu v rámci lokality bolo navrhnuté v spojovacej chodbe krýpt lapidárium. Úprava tohto priestoru si vyžiadala doplnenie zvýšenej podlahy, aby v rámci jej hrúbky mohlo byť vedené osvetlenie. Nakoľko sa v vstupnom priestore do krýpt našli zvyšky tehlovej podlahy pristúpilo sa k jej opätovnému zhotoveniu. Z tehly je teda zhotovená aj zvýšená časť podlahy. Výškový rozdiel oproti úrovni pôvodnej podlahy je 100 mm a je prekonaný rampou. Nová podlaha, ale v priestore lapidária nie je realizovaná v celom rozsahu podlahového priestoru. V ľavej časti chodby je ponechaná sonda na pôvodnú podlahu z dusanej hliny, ktorá je zachovaná v ostatných častiach krýpt. V mieste sondy sú inštalované náhrobné kamene na kovových podstavcoch. Sonda je zo spodnej hrany novej podlahy osvetlená LED pásom a sú tu inštalované aj bodové svetlá osvetľujúce jednotlivé náhrobné kamene. Informačné panely v lapidáriu sú dva, pričom sú umiestnené na rampách vedúcich na zvýšenú časť novej podlahy. Na druhom panely je okrem písomnej informácie k exponátom zo zadnej strany inštalované bodové svietidlo osvetľujúce originálny barokový oltár.

Krypty - súčasný stav
Krypty - súčasný stav
Krypty - návrh
Krypty - návrh

Okrem zriadenia lapidária si priestory krýpt vyžiadali aj opätovné sfunkčnenie odvetrávacieho systému, ktorý je riešený formou vetracích prieduchov umiestnených v strede určitých klenbových polí. V súčasnosti boli z pôvodného počtu prieduchov  5 funkčné len dva, pričom vetrák nad spojovacou chodbou bol na teréne ukončený akousi komínovou hlavicou a prieduch nad koncovým oltárom bol ukončený provizórnym vetracím stĺpikom.  Po obnove budú všetky nefunkčné vetracie prieduchy sfunkčnené a doplnené vetracími stĺpikmi. Okrem zabezpečenia vetrania budú mať prieduchy po obnove aj funkciu miest na inštaláciu svietidiel. Nakoľko vedenie elektroinštalácie je z pamiatkových dôvodov možné len po teréne, bude vedenie spustené do krýpt práve cez prieduchy. V priestoroch s novovytvorenou tehlovou podlahou bude vedenie uložené pod vrstvou tehál.

Návrh lapidária - stavebné úpravy
Návrh lapidária - stavebné úpravy
Návrh lapidária
Návrh lapidária

Keďže samotné krypty budú exponátom, miera úpravy týchto priestorov bola minimálna. Medzi nové prvky patrí tehlová podlaha v prirodzenom červeno hnedom odtieni. Je kladená do pieskového lôžka s tým, že ako izolačná vrstva slúži zhutnené penové sklo. Vmieste analytickej sondy na pôvodnú podlahu ústúpený rad tehál vytvára škáru na inštaláciu LED pásu. Bodové svietidlá  osvetľujúce náhrobné kamene sú zapustené do hlinenej podlahy. Dva informačné panely a stojany, na ktorých sú inštalované náhrobné kamene sú zhotovené z kovu s povrchom upraveným práškovou farbou s kovovými čiastočkami v odtieni anódovaného hliníka.

Vizualizácia lapidária
Vizualizácia lapidária
Vizualizácia lapidária
Vizualizácia lapidária

Architektonická štúdia bola vypracovaná ako podklad pre začatie komplexnej obnovy územia príkostolného cintorína pri bazilike sv. Mikuláša , v nadväznosti na spôsob prezentácie a prekrytia zachovanej kostnice  bývalého karnera v Mestskej pamiatkovej rezervácií Trnava.

Ciele vytýčené v úvode sa podarilo naplniť a výsledkom štúdie je komplexný návrh archeologického parku v ktorom sú v rámci dispozično – prevádzkových vzťahov zapojené a podľa stanovenej rámcovej metódy odprezentované všetky dôležité exponáty. Súčasťou štúdie bol aj architektonický návrh krycej stavby karnera ktorý bol vypracovaný so zreteľom na vopred stanovené determinanty. Ďalšou súčasťou bol návrh funkcie infocentra situovanej do existujúcej budovy, ktorá bola pre tento účel upravená. Infocentrum má byť východiskovým bodom pri prehliadke celej lokality čomu sa prispôsobilo jeho dispozično - prevádzkové riešenie.

Slovník vybraných termínov

Karner - (z lat. carnarium  = kostnica) samostatná centrálna stavba na kvadratickom, kruhovom alebo polygonálnom pôdoryse. Takáto stavba je súčasťou cintorína a jej dvojitá funkcia je vyjadrená rozdelením priestoru na spodnú, podzemnú časť, ktorá slúži za kostnicu a hornú kaplnku, obyčajne s pripojenou apsidou s oltárom, prípadne i s vežičkou.

Apsida - polkruhový alebo podkovovitý, niekedy aj viacuholníkový či kvadratický výklenok, slúžiaci v stredoveku ako záver (ukončenie) východnej strany kostola, v ktorom býval umiestnený oltár.

Sakristia - priestor alebo priamo miestnosť pri kostole slúžiaca na odkladanie liturgických potrieb (rúch, nádob, kníh) a prípravu kňaza a miništrantov na omšu. Zvyčajne bola napojená zo severnej strany na presbytérium.

Presbytérium - priestor pre oltár a kňaza, oddelený, väčšinou víťazným oblúkom, od lode kostola. V období gotiky má zvyčajne štvoruholníkový pôdorys. Oproti apside poskytuje viac miesta pre kňaza, ďalších ľudí a oltár.

zdroj : http://www.apsida.sk/slovnicek

Zoznam východiskových podkladov

  • Architektonicko-urbanistická štúdia "Prezentácia archeologickej lokality Karner Trnava". Hlavný autor a koordinátor doc. Ing. arch. Jana Gregorová, Phd., spolupráca: Ing. arch. Silvia Petrášová, PhD., Ing. arch. Zuzana Ondrejková, PhD., 2016
  • Archeologický výskum románskeho karnera a exteriéru Baziliky sv. Mikuláša v Trnave. vypr. -  Klára Kuzmová. Erik Hrnčiarik
  • Architektonicko-historická analýza murovaných objektov, odkrytých archeologickým výskumom v okolí Baziliky sv. Mikuláša. vypr. – Jaroslava Žuffová
  • Prvé výsledky výskumu kostola sv. Mikuláša v Trnave. vypr. Jaroslava Žuffová, Daniela Zacharová
  • Správa z georadarového prieskumu Dómu sv. Mikuláša v Trnave. vypr. TERRA spol. s.r.o.
  • Archeologické nálezisko kostol sv. Mikuláša Trnava – Porealizačné zameranie. vypr. GEOMAS. s.r.o.
  • Zameranie skutkového stavu domu Pútnika (bývalej márnice). vypr. Atelier DV. s.r.o.

Podklady: Filip Trajteľ

Poloha diela

Ing. arch. Filip Trajteľ

Súvisiace články

Vložené
23. august 2016
0
2030
Hlavný obsahHlavný obsah
Čakajte prosím