Na podujatí sa predstaví až 37 vystavovateľov - popredných dodávateľov stavebných materiálov a inovácií s prezentáciou...
Novotvar v prostredí alpskej obce.
Hansgrohe - prémiová značka kúpeľňových riešení, ponúka nadčasový dizajn, technickú precíznosť a udržateľné inovácie...
Využite špeciálnu akciu Internorm: okná za minuloročné ceny a hliníkový kryt úplne zadarmo. Ponuka je časovo obmedzená!
Sumarizácia najdôležitejších inovácií, ktoré redefinujúcich využitie tohto energetického zdroja.
AMPHIBIA 3000 GRIP 1.3 od spoločnosti ATRO predstavuje modernú hydroizolačnú technológiu, ktorá spája vysokú odolnosť,...
Ambiciózne plány EK narazili na ekonomické možnosti domácností v jednotlivých členských štátoch –...
IDEA DOOR od spoločnosti JAP prináša do interiéru čistý minimalistický vzhľad vďaka bezrámovému riešeniu a precíznej...
Kontinuita riešenia od vonkajšieho obkladu až po kovania a kľučky.
Nástenné nadomietkové armatúry Vitus sú mimoriadne vhodné pre rýchlu a efektívnu...
Okenné profily z kompozitného materiálu RAU-FIPRO X od spoločnosti Rehau sú v porovnaní s tradičnými plastovými profilmi mnohonásobne...
Najnovší sortiment stolov pre zariadenie interiérov...
Spojenie moderného dizajnu, funkčnosti a svetla do harmonického architektonického prvku.
Kancelárska budova Baumit v slovinskom Trzine prešla premenou na moderné a udržateľné pracovisko. Architekti kládli dôraz...
Mottom šiesteho ročníku on-line konferencie odborníkov Xella Dialóg je Efektívny návrh budov 2025+: zmeny a riešenia

Text autora:
Predmetom zadania je hľadanie nových foriem a tvaroslovných riešení výškovej administratívnej budovy s takmer nulovou potrebou energie. Svoj návrh som do prostredia vsadil tak, aby v čo najväčšej miere využil existujúcu infraštruktúru, vyzdvihol potenciál oddychovo rekreačnej zóny Chorvátske rameno a doplnil existujúci urbanizmus v prípustnej miere. Architektonický výraz odráža funkčné požiadavky, ale prioritne fyzikálne prostredie. Návrh ohľaduplne pracuje s existujúcim prostredím a zároveň jeho snahou je vytvoriť kvalitné vnútorne prostredie príjemné a pohodlné pre prácu.
Riešené územie sa rozprestiera na ploche 6200 m2 ohraničené ulicami Bosákova, Jantárová cesta v mestskej časti Bratislava – Petržalka. Na druhej strane ulice Bosákova sa nachádza plocha zelene a vodný kanál Chorvátske rameno, ktoré tu končí. Západná hranica územia je ohraničená ulicou Jantárová cesta, jej nadjazdom, ktorý prekonáva ulicu Einsteinova a diaľnicu. Jantárová cesta tvorí centrálnu os Petržalky. V súčasnosti sa buduje na tejto osi I. etapa nosného systému hromadnej dopravy – električková trať v úseku Šafárikovo Námestie – Janíkov dvor. Na náprotivnej strane Jantárovej cesty je situovaný administratívno-obytný komplex Tatra City, supermarket a v súčasnosti vo výstavbe obytný dom Muchovo námestie. Severná a čiastočne východná časť územia je v súčasnosti neatraktívna, zanedbaná k čomu pravdepodobne napomáha hlučná železnica a diaľnica. Nachádza sa tu skupina starších stromov.
Cieľom návrhu je vytvoriť polyfunkčné, atraktívne prostredie pre bývanie, rekreáciu, obchod a prácu. Spojenie oddychových plôch Chorvátskeho ramena a Sadu Janka Kráľa preklenutím diaľnice premostením a tým eliminovať obmedzené spojenie Petržalky s nábrežím Dunaja a Starým Mestom. Vytvoriť takú kvalitu premostenia, ktorá by dopĺňala svojou formou koncepciu zelených plôch Chorvátskeho ramena a sadu J.K. Cieľom návrhu je v čo najväčšej možnej miere využiť existujúcu dopravnú infraštruktúru a navzájom ju poprepájať tak, aby bola nielen pre obyvateľov Petržalky atraktívna a aby uprednostnili mestskú hromadnú dopravu pred osobnou. Takýto koncept zahŕňa vytvorenie prestupného bodu - železničnej zástavky na riešenom území, električkovú zástavku, autobusovú zástavku MHD, záchytne parkovisko a stojisko pre bicykle.
Vstup na pozemok pre automobilovú dopravu je z ulice Černiševského do podzemného podlažia, v ktorom je určené miesto pre zásobovanie objektu a parkovanie. Hlavný vstup do objektu je z juhovýchodnej strany, z ulice Bosákova. Vstup do administratívnej časti je zdieľaný so vstupom do obchodnej pasáže. Vedľajší vstup do administratívnej časti je umiestnený na nároží budovy zo strany križovania ulíc Jantárová cesta a ul. Bosákova. Vedľajší vstup do obchodnej pasáže je situovaný v najnižšej časti podstavy budovy zo strany Jantárovej cesty, v tesnej nadväznosti na zástavku električky.
Objekt tvorí jedna výrazná vertikálna hmota prevažne štvorcového pôdorysného priemetu so zaoblenými rohmi. Prvých sedem podlaží vystupuje do priestoru smerom na severovýchod. Táto hmota tvorí podstavu budovy, ktorá je plynulým optickým prechodom z horizontály do vertikálnej hmoty. Vertikála budovy je umiestnená na nároží ulíc. Najvyššie podlažia ustupujú so severu na juh.
Prvé podzemné podlažie je určené zásobovaniu a statickej doprave. Podzemné podlažia a 1. NP je spojené aj s ďalšími objektmi komplexu. Jednotvárny architektonický výraz budovy vytvára presklená fasáda s výrazne dynamickými tieniacimi prvkami s fotovoltaickými panelmi. K akcentom budovy patria solárny komín na najvyššom podlaží, lodžie so zeleňou rozmiestené do zvislice a ustúpené podlažia s terasami so zeleňou.
Vstupný priestor tvorí priestranné foyer, z ktorého je prístupné výťahové lobby, a schodisko.
Druhé a tretie nadzemné podlažie je venované konferenčnej sále (kapacita 250 sedení) s prislúchajúcim výstavným priestorom s kaviarňou a strešnými terasami. Tieto dve podlažia svojou geometriou vytvárajú vo foyer galériu.
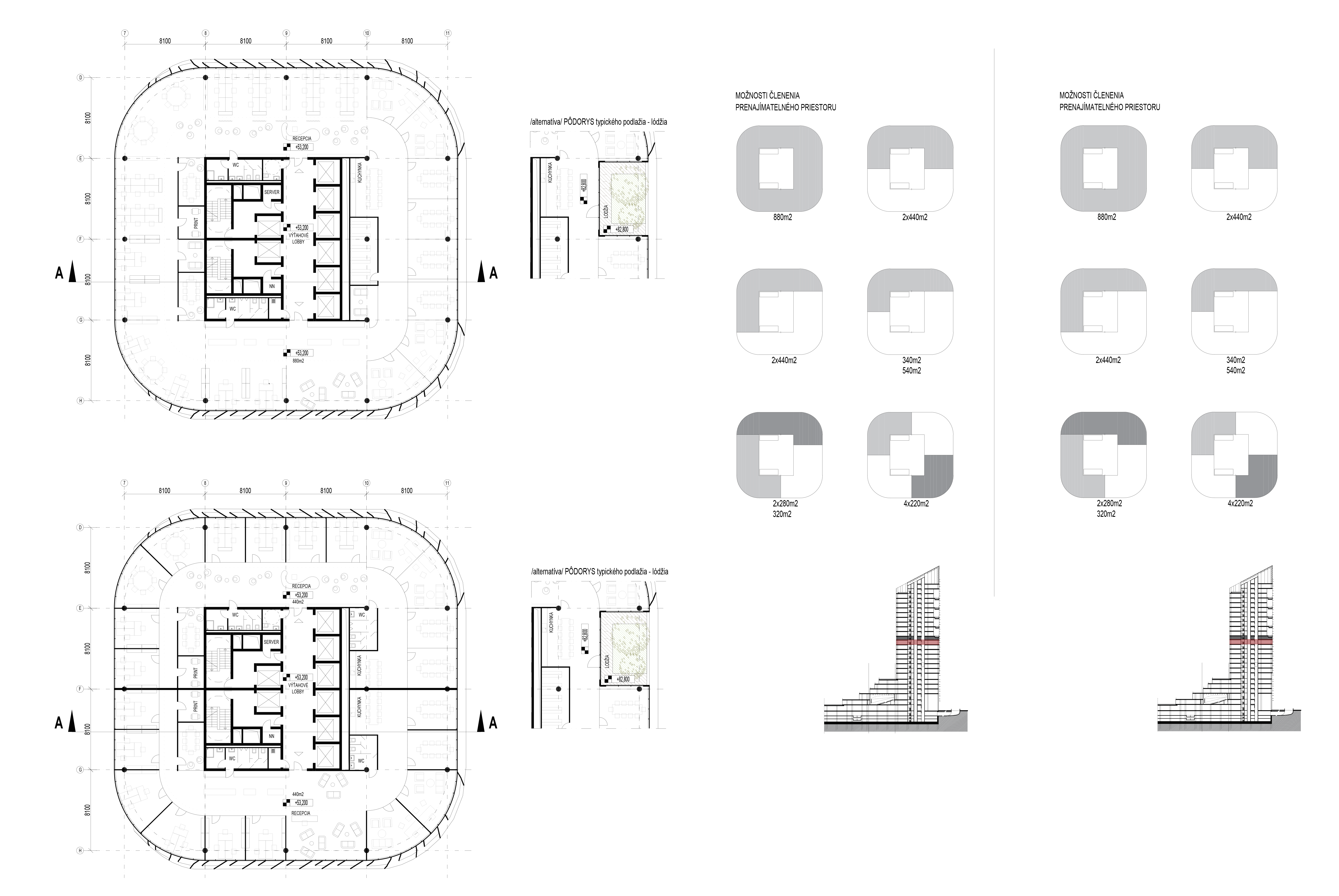
Štvrté až šieste podlažie je koncipované ako veľkopriestorové kancelárie, ktoré sú určené malým pracujúcim skupinám a jednotlivcom. Prenajíma sa samostatné pracovné miesto a nie časť podlažia. Siedme podlažie je reštaurácia s kapacitou približne 200 sedení a terasou orientovanou na severovýchod. Prístupná je cez samostatný výťah z foyer (návštevníci), alebo výťahové lobby (pracujúci). Zásobovanie reštaurácie je zabezpečené pomocou nákladného výťahu z 1. podzemného podlažia.
Od 8.NP po 25.NP sa nachádzajú administratívne priestory (typické podlažie), 15. NP je určené ako technické podlažie. Ďalšie typické podlažia sú doplnené o lodžie na južnej fasáde, ktoré zastupujú absentujúci kontakt s exteriérom a vpúšťajú do vnútornej dispozície prirodzene svetlo. Vrchné ustúpené podlažia sú určené pre technické zariadenia budov a solárny komín. Budova disponuje podzemnými podlažiami v max. počte 3.
Celý objekt je navrhnutý v modulovej osnove 8100x8100mm. Prevládajúcou konštrukciou je železobetónový skelet v kombinácií so stenovým (vertikálne jadro). Konštrukcie stropov sú železobetónové, na typických podlažiach bezprievlakové. Vonkajší obal solárneho komína tvorí oceľová priehradová konštrukcia so sklenenými panelmi a hliníkovými lamelami. Objekt je založený vaňou z vodonepriepustného železobetónu. Fasádu tvorí stĺpikovo – priečnikova hliníková konštrukcia s izolačným zasklením a hliníkové tieniace lamely.
Komplex je navrhnutý tak, aby vytvoril nový (chýbajúci) ekosystém s nadväznosťou na Chorvátske rameno a pomohol tak ľahšie znášať dopady novej zástavby na životné prostredie, extrémy počasia a vyformoval nové rôznorodé prostredie. Nosným prvkom ekologického konceptu je zeleň. Vysoká , nízka, ale aj napr. pobytový trávnik. Zeleň je aplikovaná v horizontálnej (park, verejné plochy) aj vertikálnej rovine (fasády, lodžie a terasy). Retenčné jazero v parku zadržiava dažďovú vodu zo spevnených plôch, ktorá je následne použitá na zavlažovanie zelene.
V samotnej riešenej budove uvažujem s niekoľkými koncepciami, ktoré majú znížiť dopady na životné prostredie a dopomôcť k udržateľnosti budovy. Preferované prirodzené vetranie je zabezpečené pomocou podtlaku v budove, ktorý vytvára solárny komín. Prichádzajúci čerstvý vzduch prúdi do budovy cez vetracie vertikálne štrbiny na fasáde. Ohriaty a znečistený vzduch je cez vertikálne jadro odvádzaný prirodzeným komínovým efektom hore na strechu. Tento jednoduchý systém dokáže zminimalizovať používanie núteného vetrania len na letné a zimné mesiace. Chladenie a vykurovanie objektu je pomocou akumulácie žb jadra a tepelného čerpadlá využívajúceho podzemnú vodu pod objektom. K ochladzovaniu budovy v letných mesiacoch sú využívané aj zelené strechy, terasy a lodžie.
Tieniaci systém je navrhnutý tak, aby reflektoval potreby užívateľov, teda zabraňoval v letných mesiacoch dopadaniu priameho slnečného žiarenia na fasádu, ale zároveň prepúšťal denné svetlo do interiéru. Charakter a tvar tienenia vychádza z kolmého priemetu slnečného žiarenia v deň letného slnovratu v pol hodinových intervaloch. Plocha tieniacich prvkov je využitá k inštalácií fotovoltaických článkov a tým je systém zároveň aj ziskový, lebo premenou energie vieme pokryť spotrebu elektrickej energie na vybavenie a technické zariadenia budov a ďalej distribuovať elektrickú energiu do siete.
Vitualizácie:
Fotografie modelu:
Podklady: Jakub Števanka