Advertorial

Minimalistické dvere IDEA – technická precíznosť a čistota prevedenia

IDEA DOOR od spoločnosti JAP prináša do interiéru čistý minimalistický vzhľad vďaka bezrámovému riešeniu a precíznej...

Schell Vitus – osvedčené riešenie pre sprchy a umývadlá vo verejnom sektore s viac ako desaťročnou tradíciou

Nástenné nadomietkové armatúry Vitus sú mimoriadne vhodné pre rýchlu a efektívnu...

Kompozitné okná predstavujú súčasnosť a budúcnosť

Okenné profily z kompozitného materiálu RAU-FIPRO X od spoločnosti Rehau sú v porovnaní s tradičnými plastovými profilmi mnohonásobne...

Myotis - stoly 2025

Najnovší sortiment stolov pre zariadenie interiérov...

Priemyselné sklenené priečky Dorsis Digero: svetelné rozhranie pre moderné interiéry

Spojenie moderného dizajnu, funkčnosti a svetla do harmonického architektonického prvku.

Význam prirodzeného svetla pre moderné a flexibilné pracovné prostredie

Kancelárska budova Baumit v slovinskom Trzine prešla premenou na moderné a udržateľné pracovisko. Architekti kládli dôraz...

Konferencia Xella Dialóg predstaví novinky a trendy v stavebníctve

Mottom šiesteho ročníku on-line konferencie odborníkov Xella Dialóg je Efektívny návrh budov 2025+: zmeny a riešenia

Murovací robot WLTR stavia svoj prvý dom na Slovensku

Robot WLTR predstavuje moderný prístup k murovaným konštrukciám. Vďaka automatizácii dokáže rýchlo, presne a bezpečne realizovať...

Nová éra bezpečnosti s I-tec Secure od Internorm

Okrem bezpečnosti majú okná aj elegantný vzhľad, pretože nie sú viditeľné žiadne uzamykacie časti kovania.

Skryté zárubne JAP – intenzívny zážitok z bývania

Dvere MASTER v skrytej zárubni AKTIVE je možné vyrobiť až do výšky 3 700 mm

Tienenie namiesto klimatizácie

Internorm stavia na energetickú efektívnosť a inteligentné tieniace riešenia.

BigMat International Architecture Award 2025 - vybrané diela

Slovensko vo výbere zastupuje šesť realizácií.

Milník udržateľnej výroby okien: Internorm zavádza Low-Carbon-Glas iplus

Spoločnosť Internorm odteraz stavia na novej variante tepelnoizolačného skla od AGC, ktorá v produkcii ročne ušetrí 10...

Výsledky 20. ročníka medzinárodnej študentskej súťaže Saint-Gobain Architecture Student Contest 2025

Jubilejný 20. ročník prestížnej medzinárodnej súťaže pre študentov architektúry priniesol...

Dvere MASTER - pre interiéry navrhnuté s rozumom aj vášňou!

Otočné a posuvné dvere MASTER od podlahy až po strop, ponúkajú mimoriadnu variabilitu výšky, materiálu a zladenia so skrytými...

Byt K76, Bratislava

Železobetónový rebierkový strop, plná pálená tehla, drevené trámy...
Diela
Red 308.08.2025
20390+48
Byt K76, Bratislava
Autori: Ing. arch. Katarína Príkopská, Ing. arch. Ivan Príkopský, Ing. arch. Tomáš SzőkePodlažná plocha: 73 m2Návrh: 2024 - 2025Realizácia: 2024 - 2025Adresa: Bratislava – Staré Mesto, SlovenskoPublikované: 8. august 2025

Bývanie v bratislavskom Starom Meste s výrazným rukopisom ateliéru TOITO architekti. Nosnou témou ráznej rekonštrukcie bytu sú aj v tomto prípade premyslené stavebné úpravy, odhalenie  pôvodných vrstiev a konštrukcií. Dôležitú súčasť bývania šitého na mieru tvoria precízne nábytkové solitéry, definujúce jednotlivé funkčné celky.

 

Viac prezradia autori:

Povojnová výstavba v Bratislave používala všetok dostupný materiál. V jednom bytovom dome z plnej pálenej tehly sú drevené aj železobetónové stropy, terazzo na schodisku, drevené okná, plechová strecha. Takto vytvorená atmosféra sa opakuje naprieč celým starým mestom. Rekonštrukcia bytu K76 odhaľuje pamäť doby na kosť. Samotná očista je základom celého interiéru. Nové prvky zámerne vrstvia ďalej. Staviame vedľa seba kontrastné materiály a detail, tak aby reflektovali jednotlivé osobnosti domáceho páru.

Celý priestor je poctou remeslu a pravdivosti materiálov – bez zbytočného prikrášľovania, zato s dôrazom na detail, autenticitu a architektonickú úprimnosť.

Foto: Peter Jurkovič - JRKVC
Foto: Peter Jurkovič - JRKVC
Foto: Peter Jurkovič - JRKVC
Foto: Peter Jurkovič - JRKVC
Foto: Peter Jurkovič - JRKVC
Foto: Peter Jurkovič - JRKVC
Foto: Peter Jurkovič - JRKVC
Foto: Peter Jurkovič - JRKVC
Foto: Peter Jurkovič - JRKVC
Foto: Peter Jurkovič - JRKVC
Foto: Peter Jurkovič - JRKVC
Foto: Peter Jurkovič - JRKVC
Foto: Peter Jurkovič - JRKVC
Foto: Peter Jurkovič - JRKVC
Foto: Peter Jurkovič - JRKVC
Foto: Peter Jurkovič - JRKVC
Foto: Peter Jurkovič - JRKVC
Foto: Peter Jurkovič - JRKVC
Foto: Peter Jurkovič - JRKVC
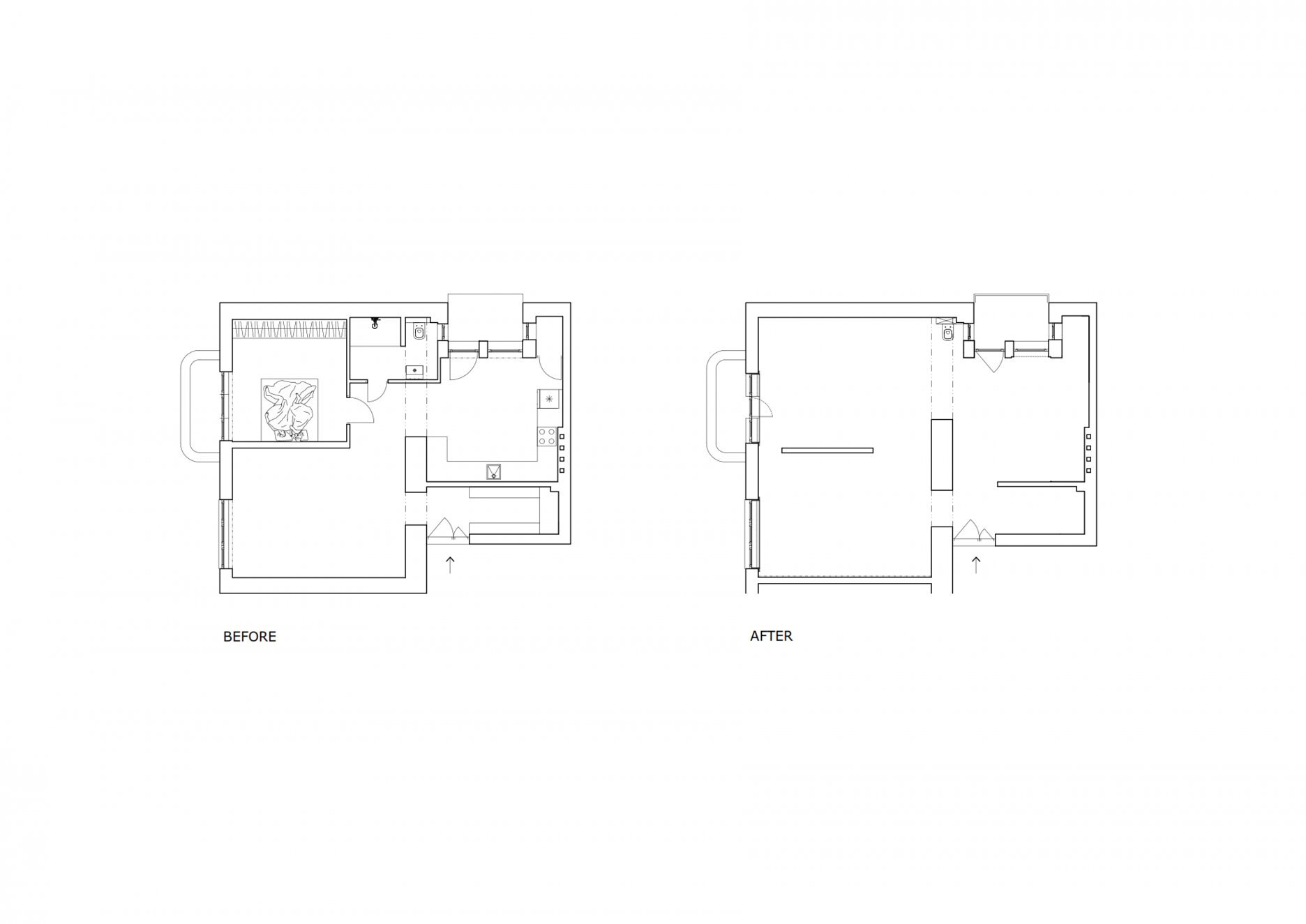
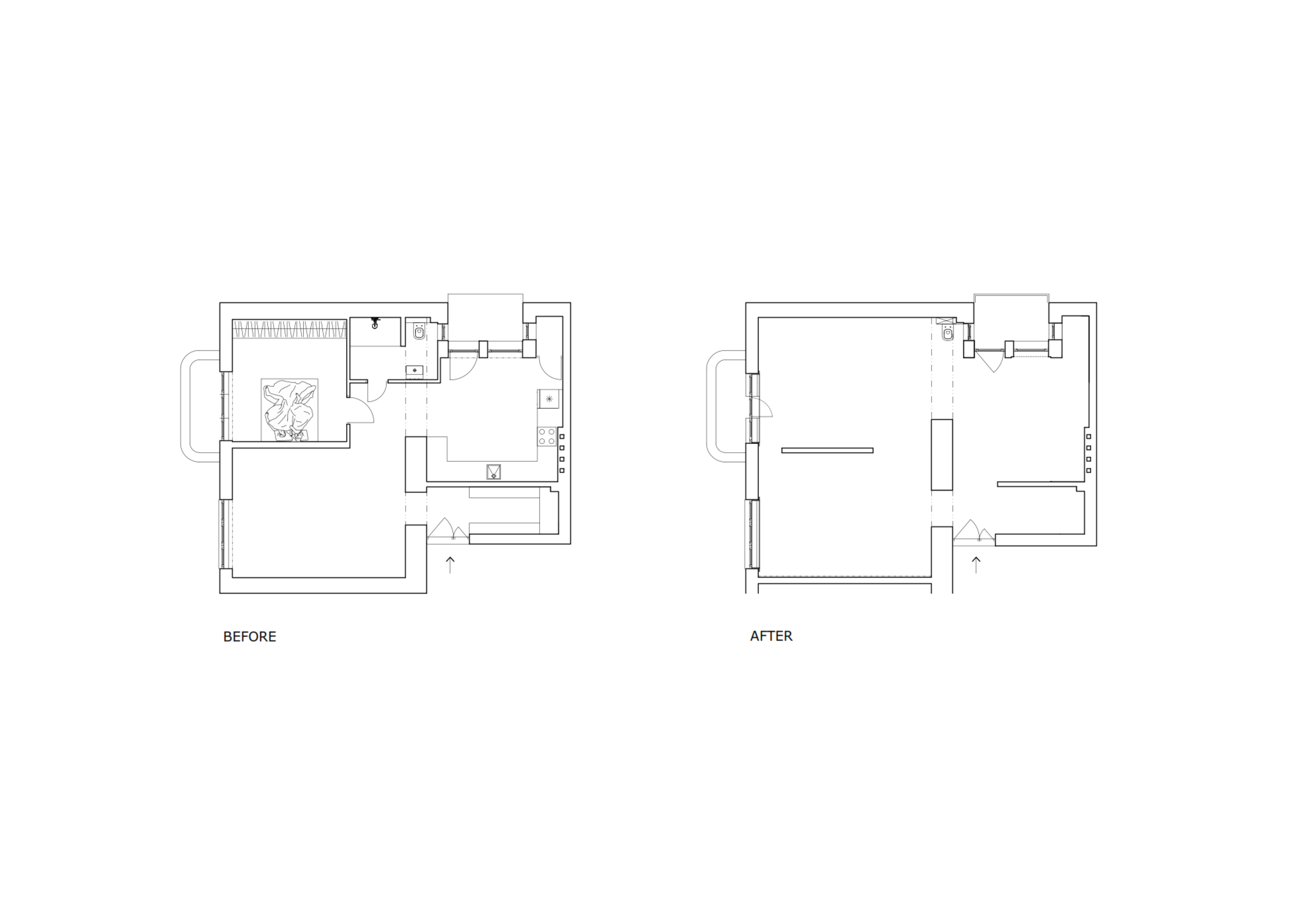
Pôdorysy - východiskový vs. nový stav
Pôdorysy - východiskový vs. nový stavAutor: TOITO architekti
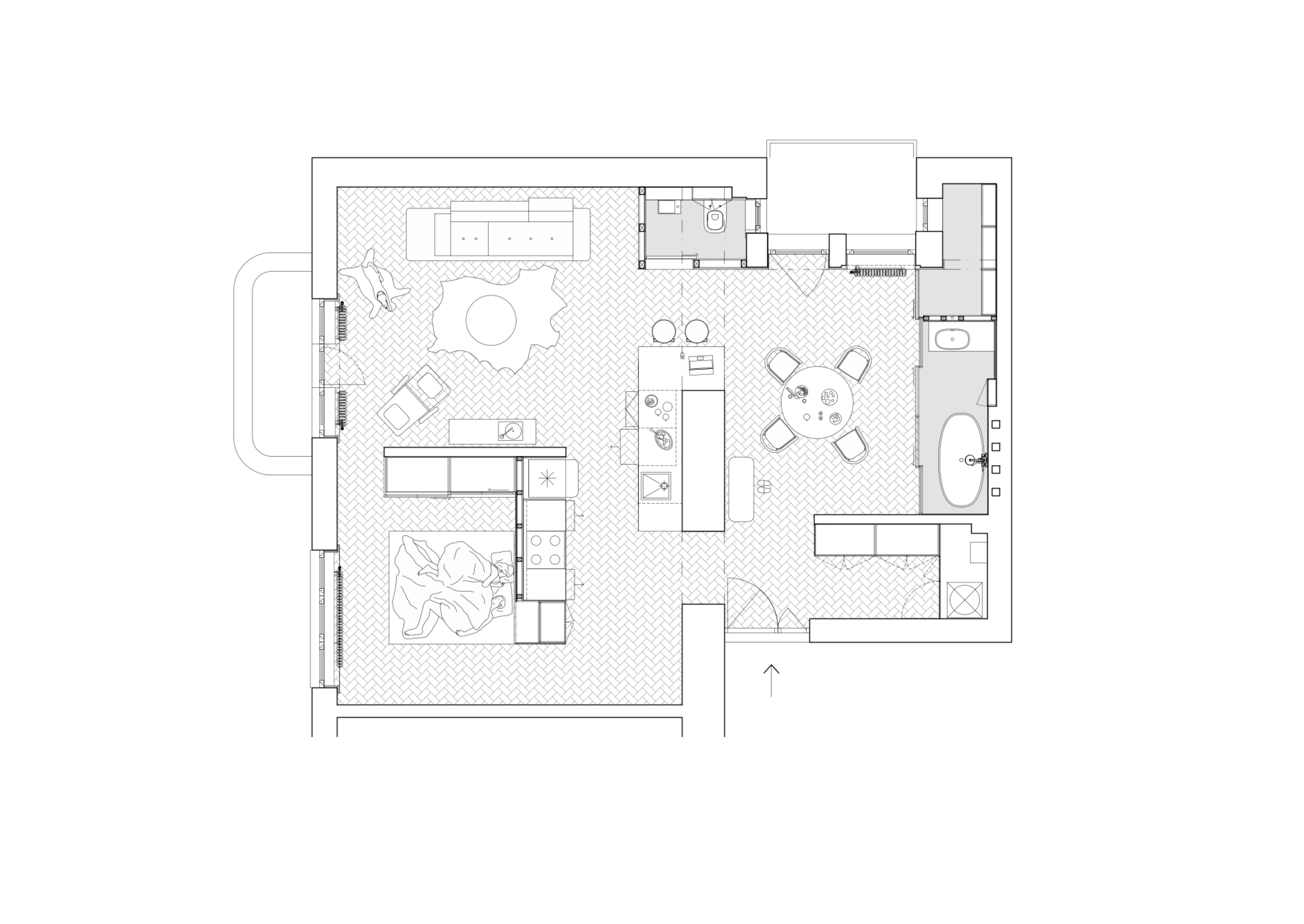
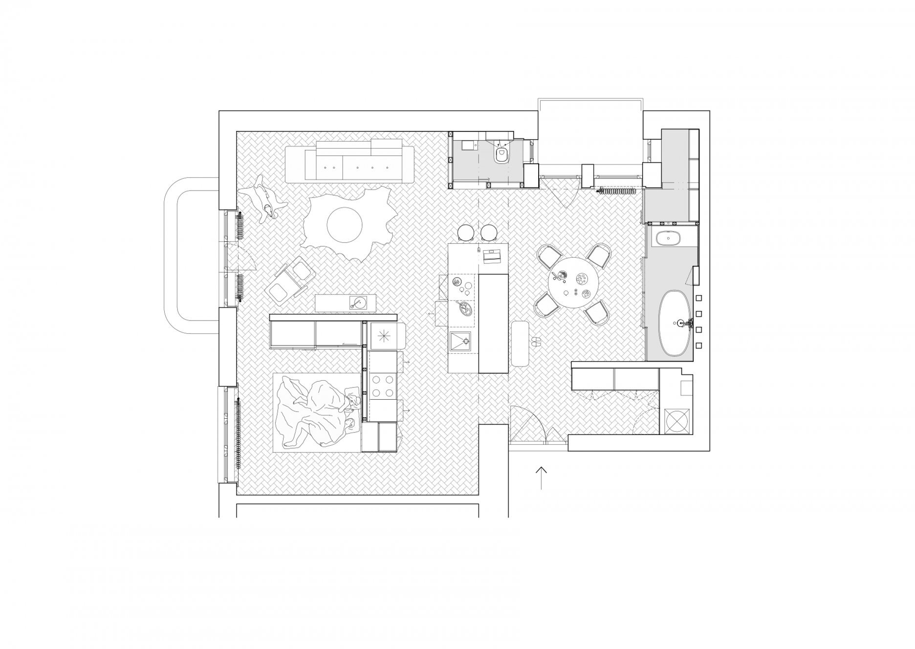
Pôdorys - nový stav
Pôdorys - nový stavAutor: TOITO architekti

Podklady: TOITO architekti
Foto: Peter Jurkovič - JRKVC

Poloha diela

Ing. arch. Katarína Príkopská
Ing. arch. Ivan Príkopský
Ing. arch. Tomáš Szőke

Súvisiace články

Matej HakárSKBratislava
Vložené
3. jún 2025
0
2039
Hlavný obsahHlavný obsah
Čakajte prosím