Advertorial

Hotel Hirschen Spa House, Rakúsko

Novotvar v prostredí alpskej obce.

Vytvorte si kúpeľňu snov: dizajnové riešenie od značky hansgrohe

Hansgrohe - prémiová značka kúpeľňových riešení, ponúka nadčasový dizajn, technickú precíznosť a udržateľné inovácie...

Okná Internorm za minuloročné ceny + hliníkový kryt zdarma!

Využite špeciálnu akciu Internorm: okná za minuloročné ceny a hliníkový kryt úplne zadarmo. Ponuka je časovo obmedzená!

Pozvánka na 2. ročník stavebného veľtrhu BigMarket na Slovensku

Na podujatí sa predstaví až 37 vystavovateľov - popredných dodávateľov stavebných materiálov a inovácií s prezentáciou...

Moderné plynové technológie: Efektivita a inovácie pre 21. storočie

Sumarizácia najdôležitejších inovácií, ktoré redefinujúcich využitie tohto energetického zdroja.

Utesňovanie spodných stavieb pomocou hydro-aktívnej fólie AMPHIBIA.

AMPHIBIA 3000 GRIP 1.3 od spoločnosti ATRO predstavuje modernú hydroizolačnú technológiu, ktorá spája vysokú odolnosť,...

Dekarbonizácia individuálneho vykurovania domácností – Green Deal evolučne a nie revolučne

Ambiciózne plány EK narazili na ekonomické možnosti domácností v jednotlivých členských štátoch –...

Minimalistické dvere IDEA – technická precíznosť a čistota prevedenia

IDEA DOOR od spoločnosti JAP prináša do interiéru čistý minimalistický vzhľad vďaka bezrámovému riešeniu a precíznej...

Dom s výhľadom na údolie, Dlouhý Most (ČR)

Kontinuita riešenia od vonkajšieho obkladu až po kovania a kľučky.

Schell Vitus – osvedčené riešenie pre sprchy a umývadlá vo verejnom sektore s viac ako desaťročnou tradíciou

Nástenné nadomietkové armatúry Vitus sú mimoriadne vhodné pre rýchlu a efektívnu...

Kompozitné okná predstavujú súčasnosť a budúcnosť

Okenné profily z kompozitného materiálu RAU-FIPRO X od spoločnosti Rehau sú v porovnaní s tradičnými plastovými profilmi mnohonásobne...

Myotis - stoly 2025

Najnovší sortiment stolov pre zariadenie interiérov...

Priemyselné sklenené priečky Dorsis Digero: svetelné rozhranie pre moderné interiéry

Spojenie moderného dizajnu, funkčnosti a svetla do harmonického architektonického prvku.

Význam prirodzeného svetla pre moderné a flexibilné pracovné prostredie

Kancelárska budova Baumit v slovinskom Trzine prešla premenou na moderné a udržateľné pracovisko. Architekti kládli dôraz...

Konferencia Xella Dialóg predstaví novinky a trendy v stavebníctve

Mottom šiesteho ročníku on-line konferencie odborníkov Xella Dialóg je Efektívny návrh budov 2025+: zmeny a riešenia

Dom Davle, Praha-západ

Drevostavba v prírode neďaleko Prahy.
Diela
Red 317.08.2025
16640+19
Dom Davle, Praha-západ
Autori: Mga. Vít Svoboda (0,5 Studio), Mga. Pavel Nový (0,5 studio)Spolupráca: Amos design (projekt a realizácia)Podlažná plocha: 139 m2 Návrh: 2021 - 2022Realizácia: 2022 - 2023Adresa: Davle, Česká republikaPublikované: 17. august 2025

Investori oslovili ateliér 0,5 Studio s požiadavkou navrhnúť rodinný dom na podlhovastom pozemku v bezprostrednom kontakte s lesom. Ich zadaním bolo vytvoriť dom, ktorý prirodzene zapadne do prostredia.

Klienti si želali prepojiť princípy funkcionalistickej architektúry s osobným vzťahom k umeniu a krajine.

Dom má slúžiť nielen ako obytný priestor, ale aj ako galéria – miesto, kde sú výtvarné diela každodennou súčasťou života...

Dôležitú úlohu v zadaní zohrávala požiadavka realizovať objekt ako úspornú drevostavbu.

Miesto a koncept

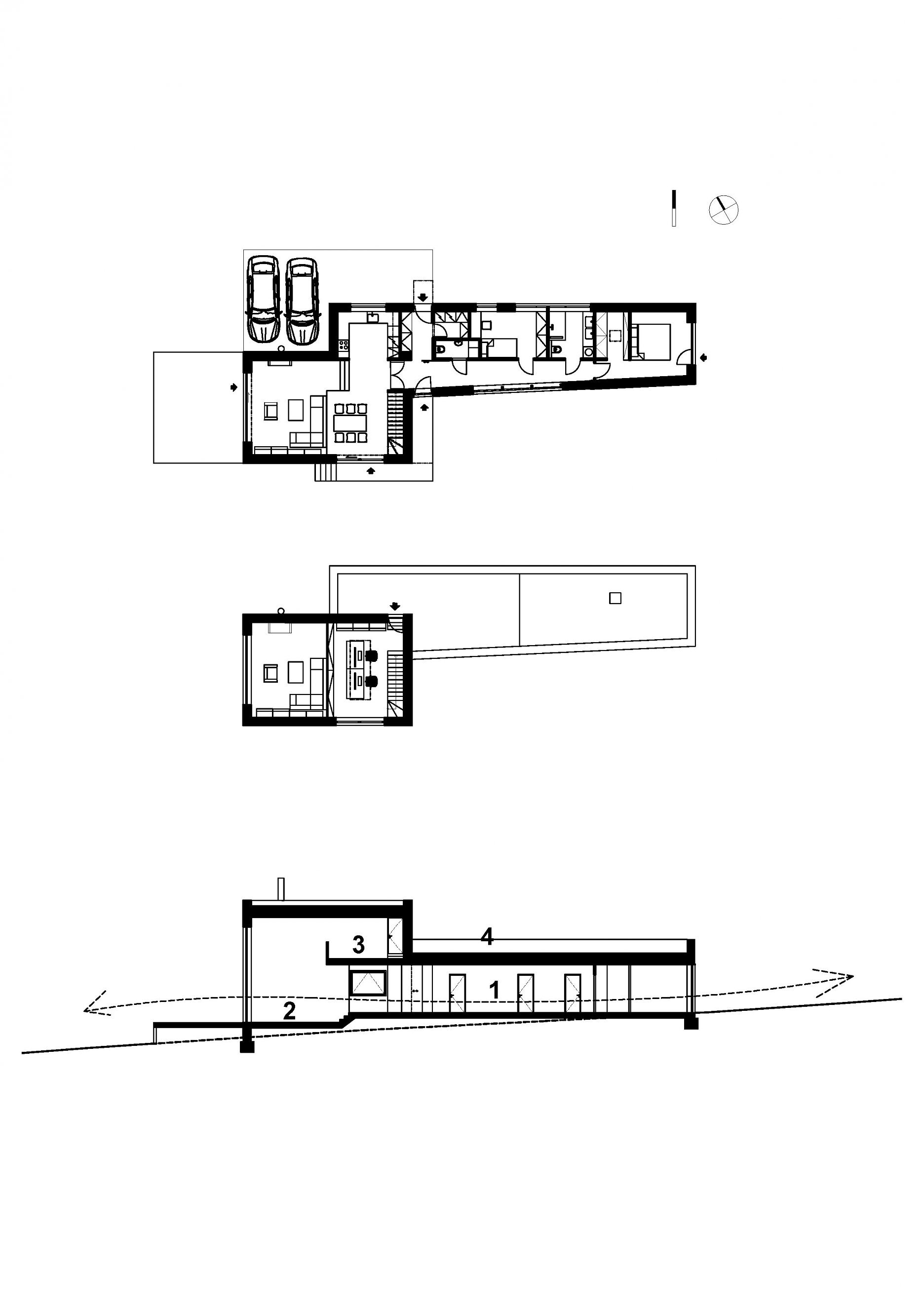
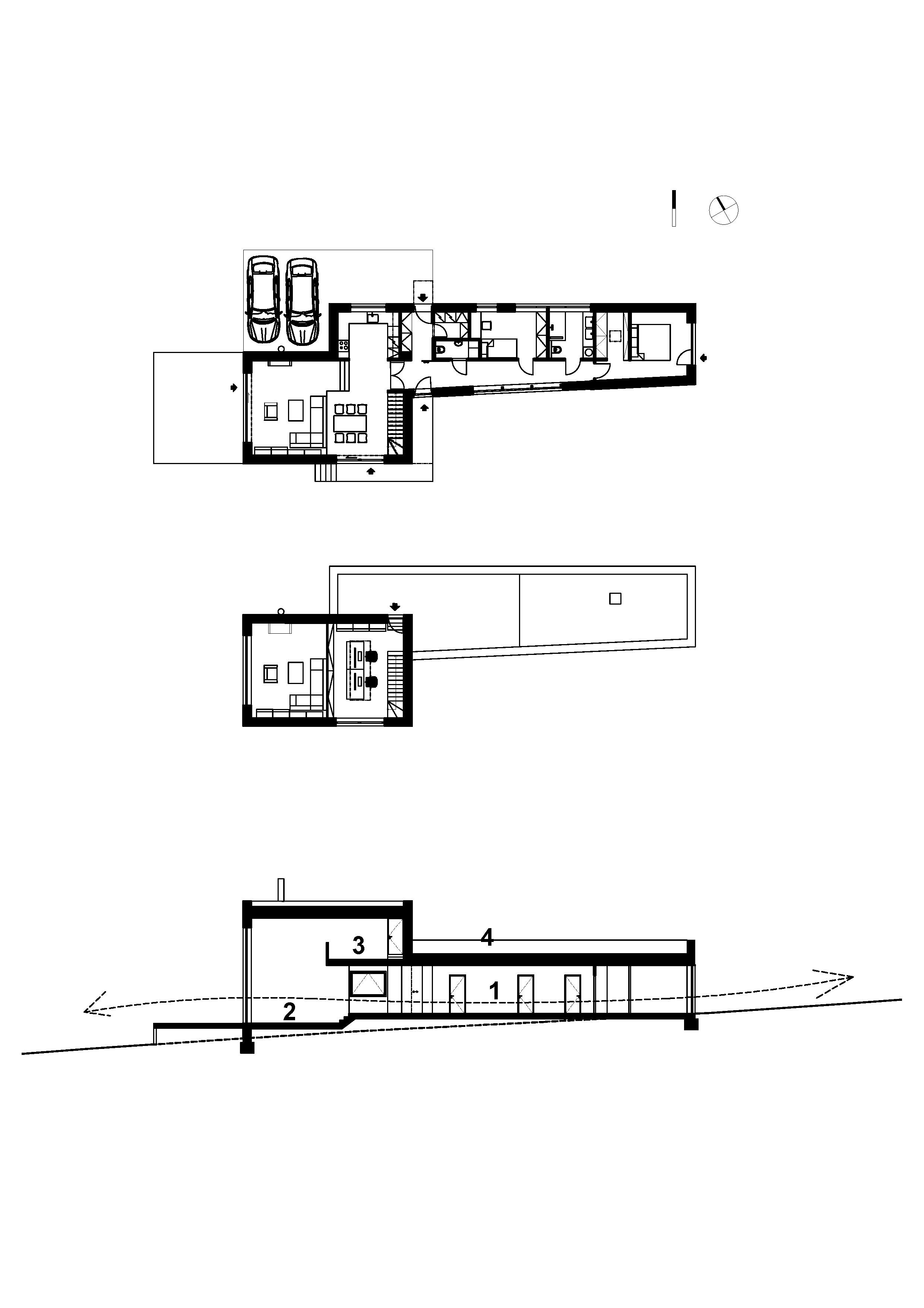
Lineárna forma domu plynulo kopíruje mierne svahovitý terén a z interiéru otvára priehľady do lesa. Obytná časť s pracovňou je voči kľudovej zóne zvýšená, čo opticky zvýrazňuje prítomnosť domu v krajine.

Osi a výškové úrovne

Návrh domu stojí na dvoch hlavných kompozičných osiach. Priečna os vedie od vstupu z príjazdovej cesty, prechádza stredom domu a smeruje ďalej do záhrady. Pozdĺžna os sleduje tvar pozemku a prepája jednotlivé obytné zóny v logickej nadväznosti na terén a orientáciu na krajinu.

Výškové členenie domu prirodzene reaguje na svah. V najnižšej časti sa nachádza otvorený, prevýšený obytný priestor, ktorý tvorí ťažisko domu. Naň nadväzujú kuchyňa s jedálňou, spálňa a izba. Súčasťou obytného priestoru je aj pracovňa s výhľadom do lesa a prístupom na terasu. Pochôdzna strecha funguje ako ďalšia obytná vrstva domu v kontakte s prírodou.

Vstupy a vnútorné prechody plynulo nadväzujú na terén a pôvodné lesné cesty v okolí.

Materiály a atmosféra

Dom je realizovaný ako drevostavba z panelového systému Novatop. Interiér aj exteriér definujú prírodné materiály, svetlé lazúry a striedma farebnosť. Atmosféru domu formujú svetlo, priehľady a rytmus pohybu krajinou.

Pohľadové plochy tvoria bielo lazúrované drevené panely, okná sú drevohliníkové. Podlahy pokrýva jednoliata betónová stierka, ktorá zjednocuje celý interiér. Vstavaný nábytok definuje jednotlivé funkčné zóny.

Technické riešenie

Energetický koncept stavby využíva tepelné čerpadlo zem – voda, podlahové vykurovanie a kvalitné zasklenie.

Okolie domu slúži ako rozšírenie obytného priestoru – vznikli tu miesta na posedenie, prírodné chodníky i priestor na kúpanie v malom bazéne. Architektúra nenápadne rámuje každodenný život v priamom kontakte s prírodou.

Foto: MgA. Peter Fabo
Foto: MgA. Peter Fabo
Foto: MgA. Peter Fabo
Foto: MgA. Peter Fabo
Foto: MgA. Peter Fabo
Foto: MgA. Peter Fabo
Foto: MgA. Peter Fabo
Foto: MgA. Peter Fabo
Foto: MgA. Peter Fabo
Foto: MgA. Peter Fabo
Foto: MgA. Peter Fabo
Foto: MgA. Peter Fabo
Foto: MgA. Peter Fabo
Foto: MgA. Peter Fabo
Foto: MgA. Peter Fabo
Foto: MgA. Peter Fabo
Foto: MgA. Peter Fabo
Foto: MgA. Peter Fabo
Foto: MgA. Peter Fabo
Foto: MgA. Peter Fabo
Foto: MgA. Peter Fabo
Foto: MgA. Peter Fabo
Foto: MgA. Peter Fabo
Foto: MgA. Peter Fabo
Foto: MgA. Peter Fabo
Situácia
SituáciaAutor: 0,5 Studio
Pôdorysy a rez
Pôdorysy a rezAutor: 0,5 Studio

Podklady: 0,5 Studio
Fotografie: MgA. Peter Fabo

Poloha diela

Mga. Vít Svoboda
Mga. Pavel Nový

Súvisiace články

Vložené
16. jún 2025
0
1664
Hlavný obsahHlavný obsah
Čakajte prosím